Скачать Типовой проект 902-2-435.87 Альбом III. Архитектурные решения. Конструкции железобетонные. Конструкции металлическиеДата актуализации: 01.01.2021
|
| Обозначение: | Типовой проект 902-2-435.87 |
| Обозначение англ: | 902-2-435.87 |
| Статус: | заменен |
| Название рус.: | Альбом III. Архитектурные решения. Конструкции железобетонные. Конструкции металлические |
| Дата добавления в базу: | 01.09.2013 |
| Дата актуализации: | 01.01.2021 |
| Дата введения: | 01.10.1987 |
| Дата окончания срока действия: | 01.03.1993 |
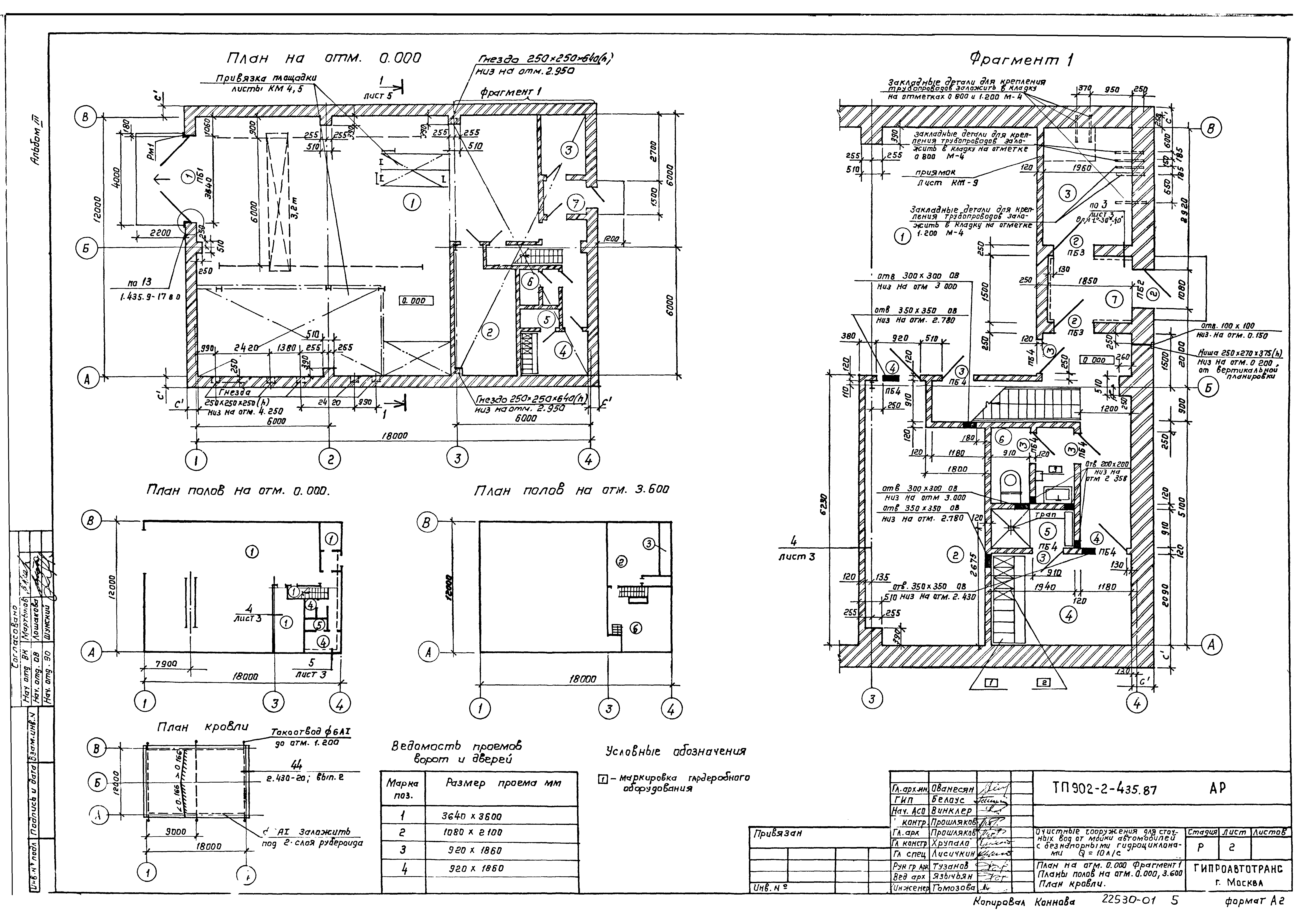
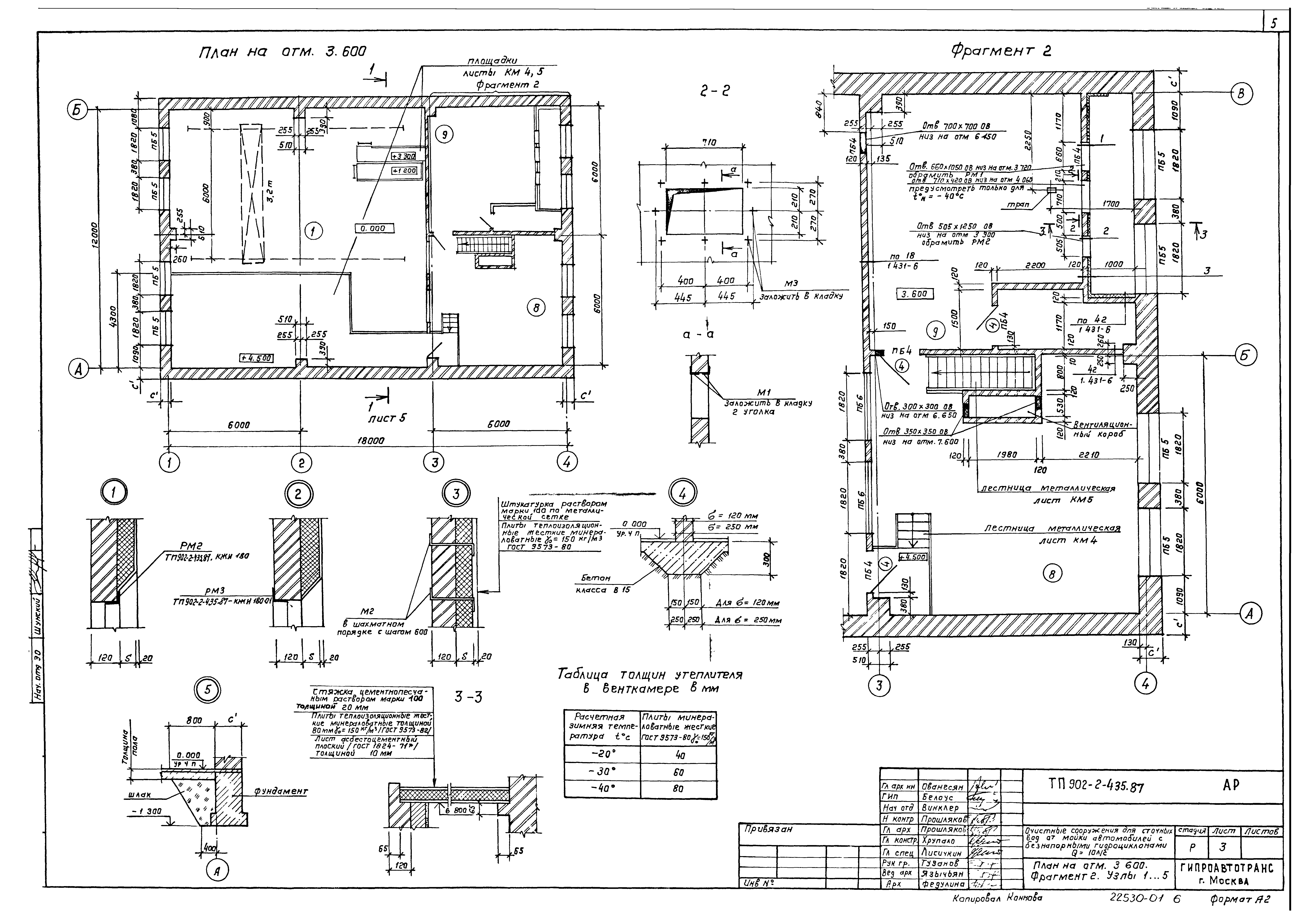
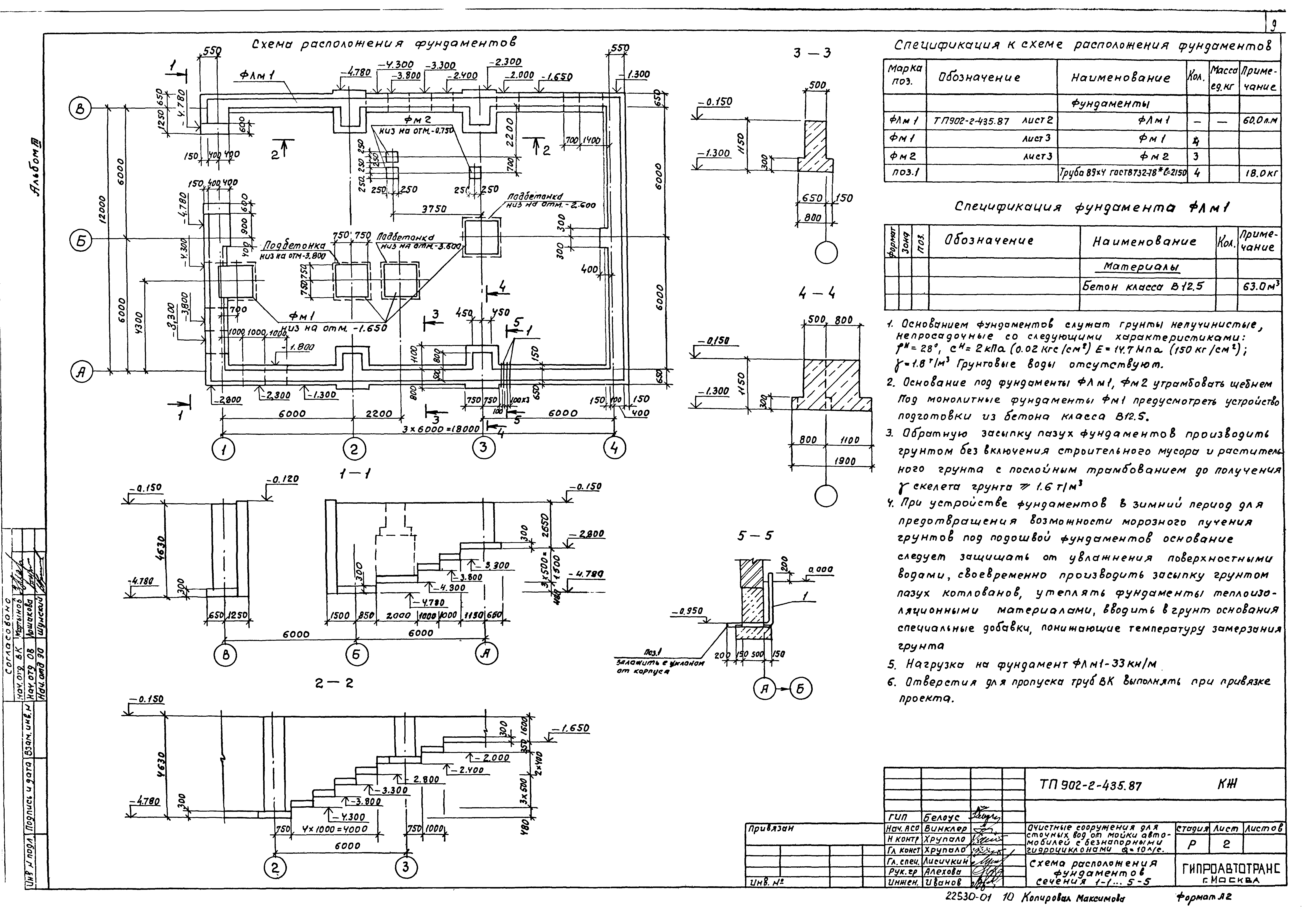
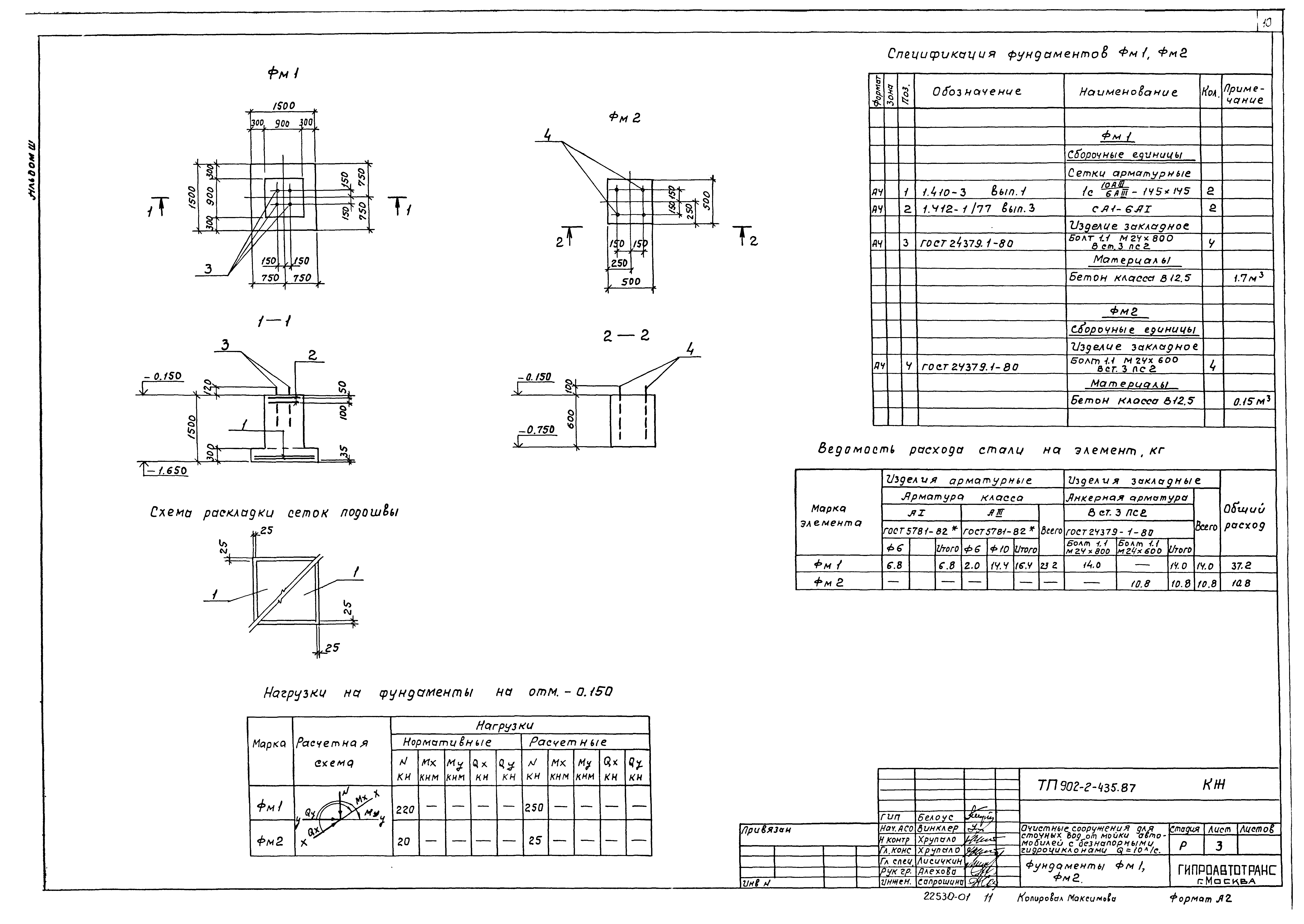
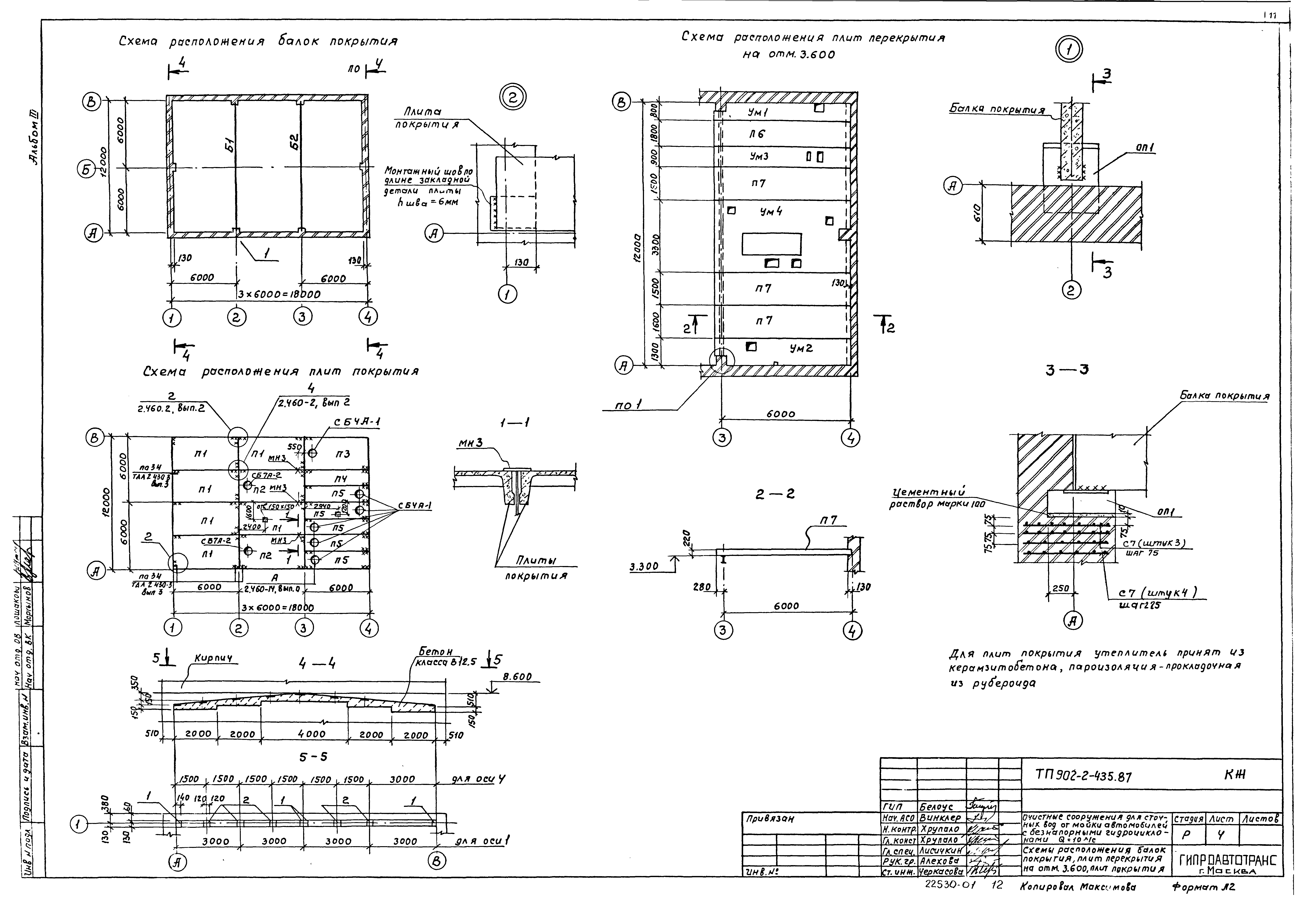
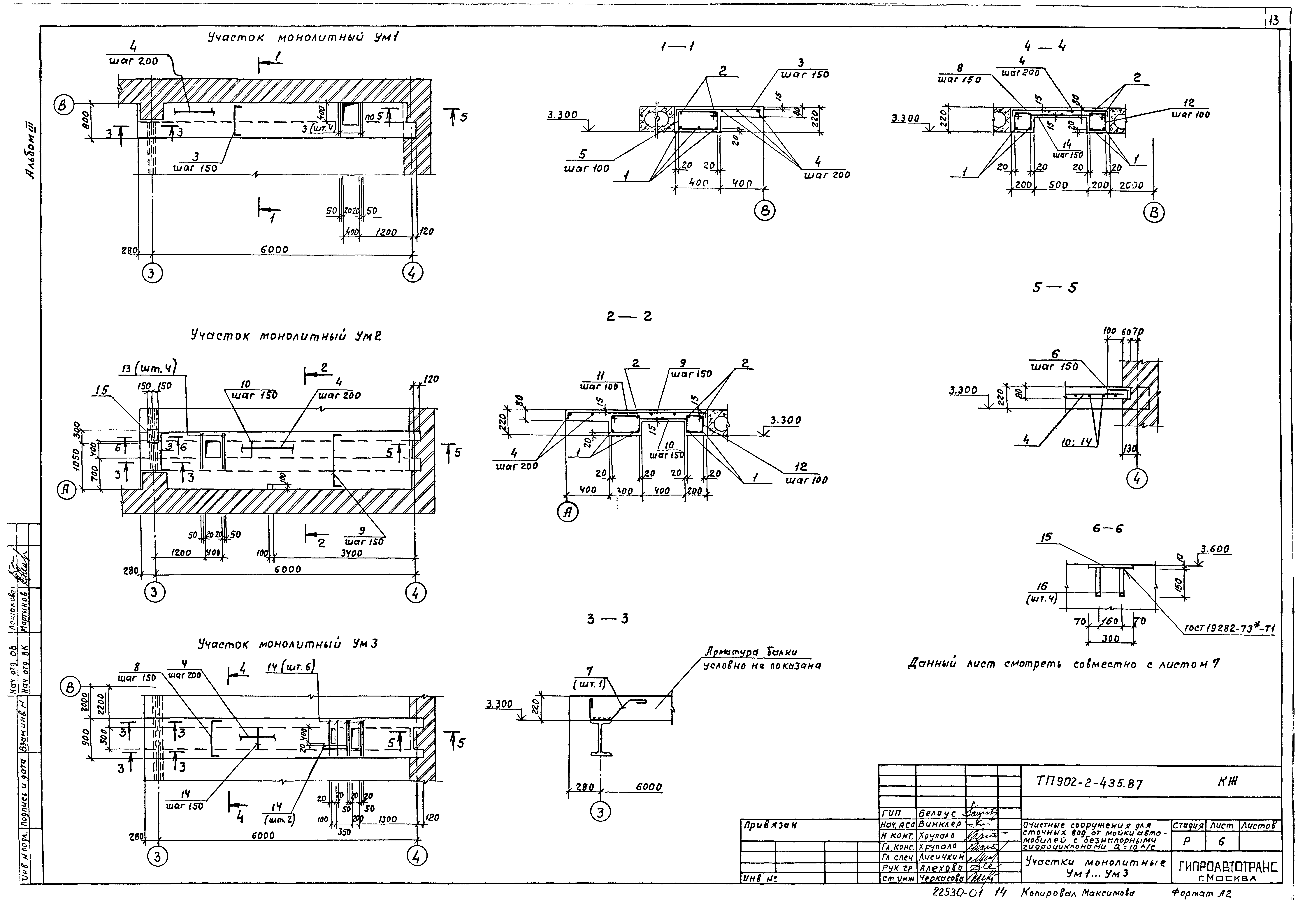
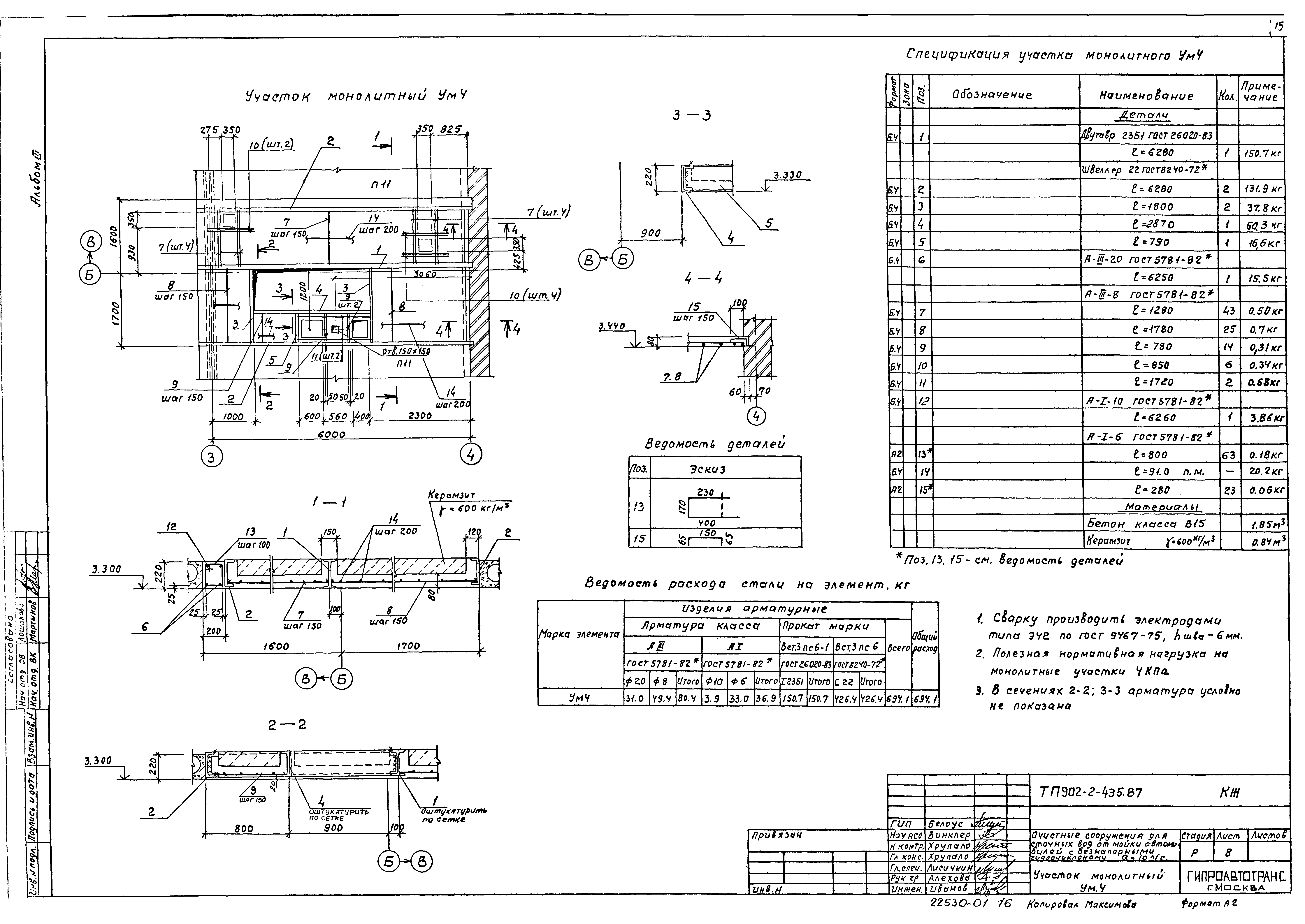
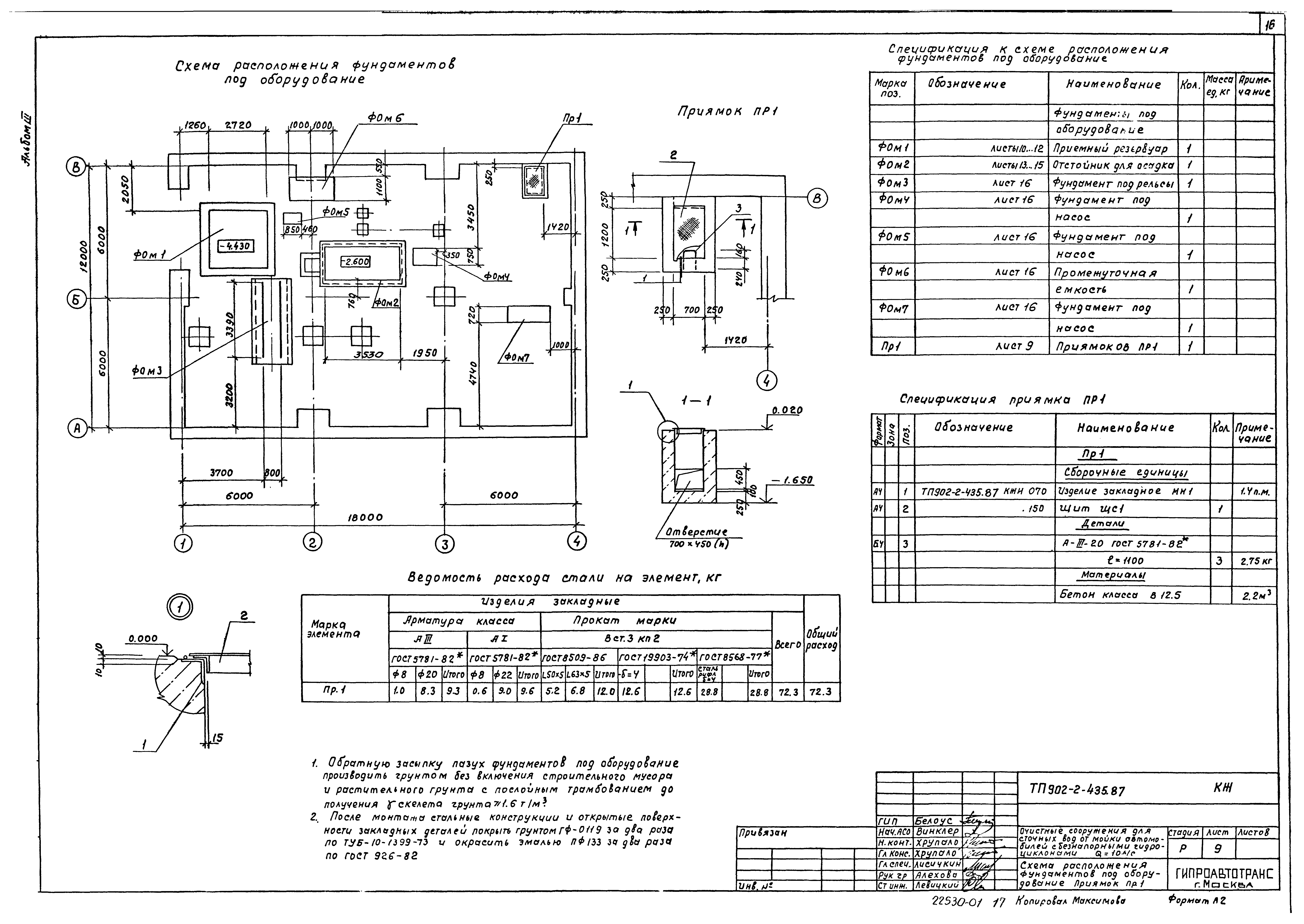
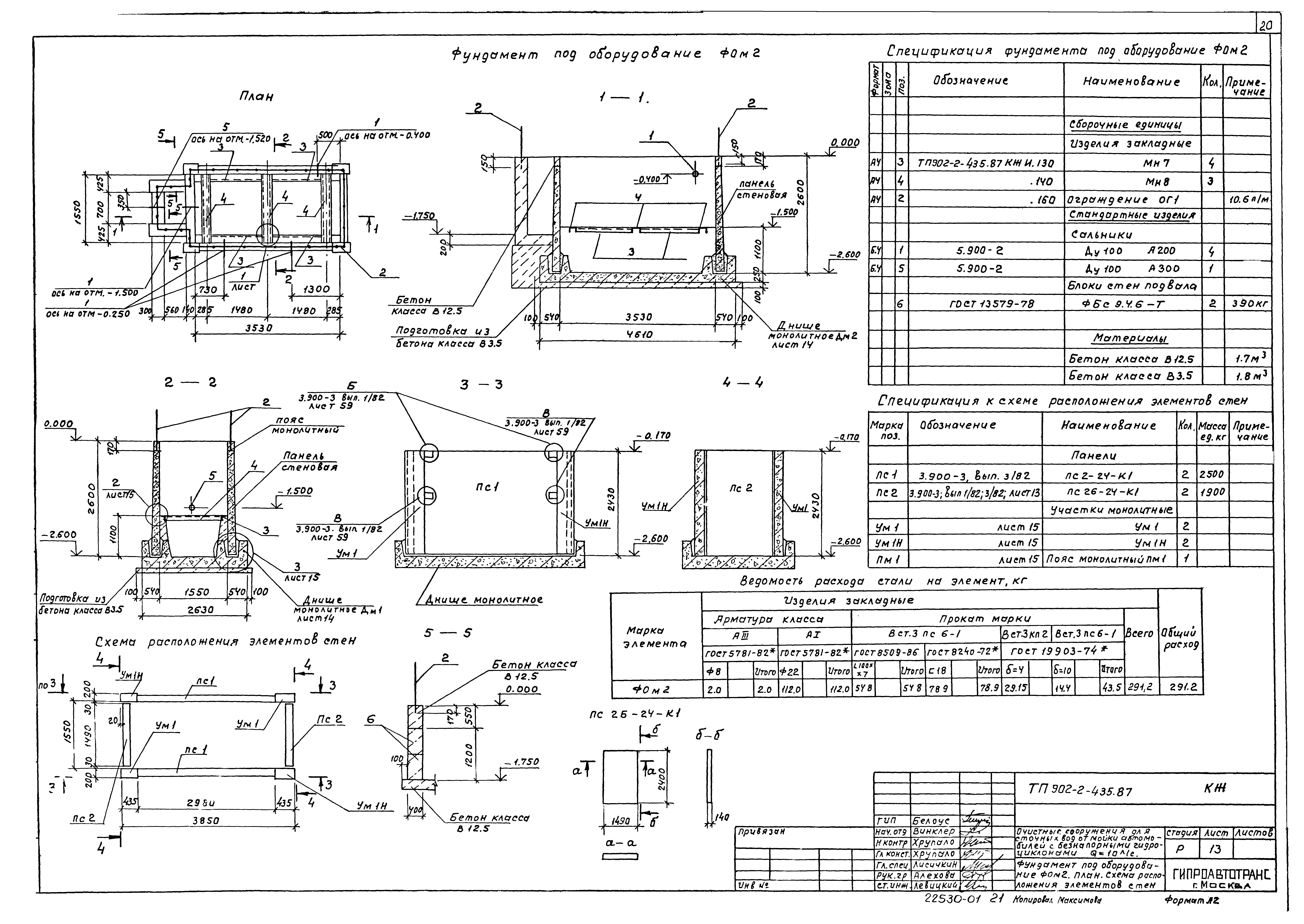
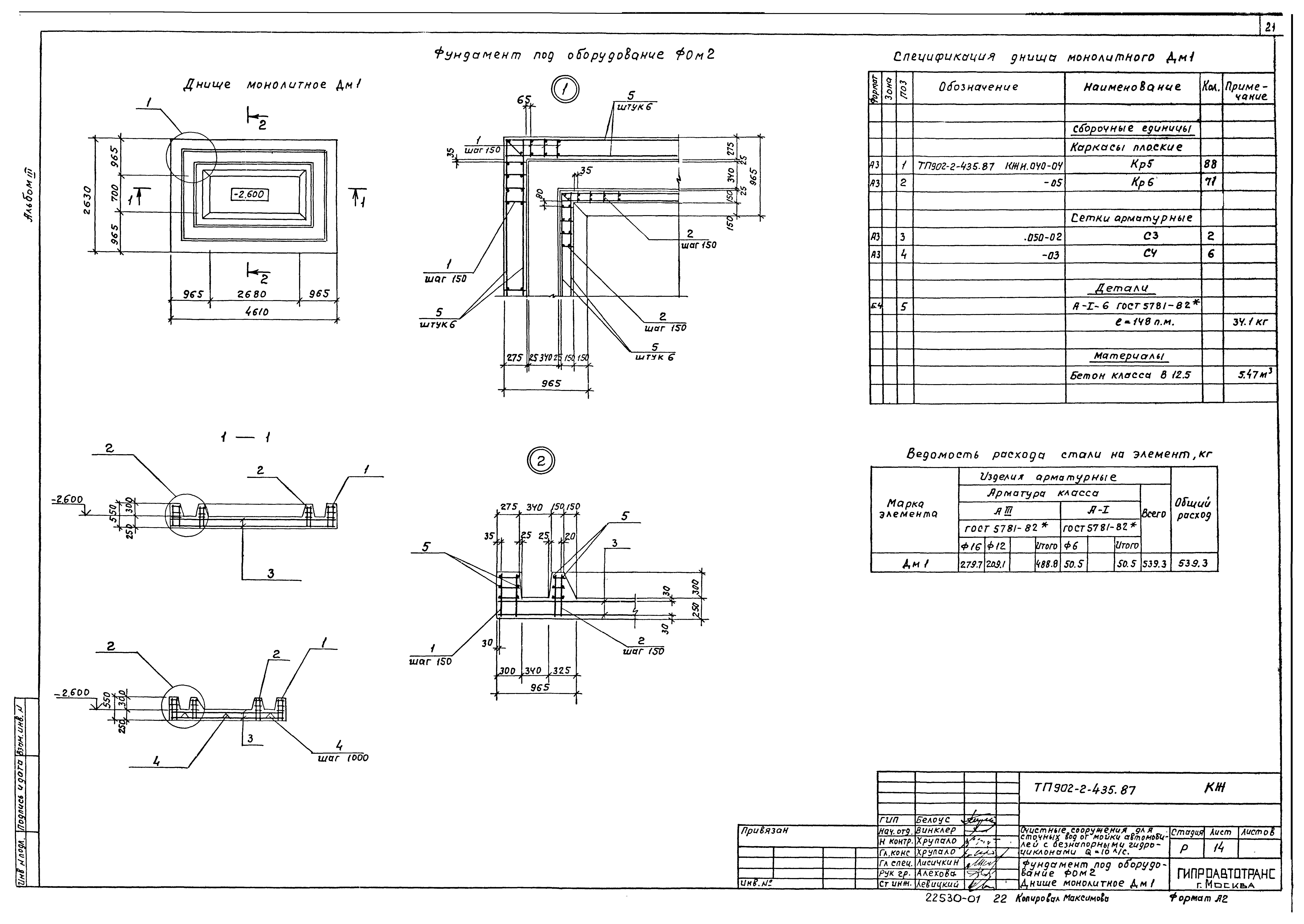
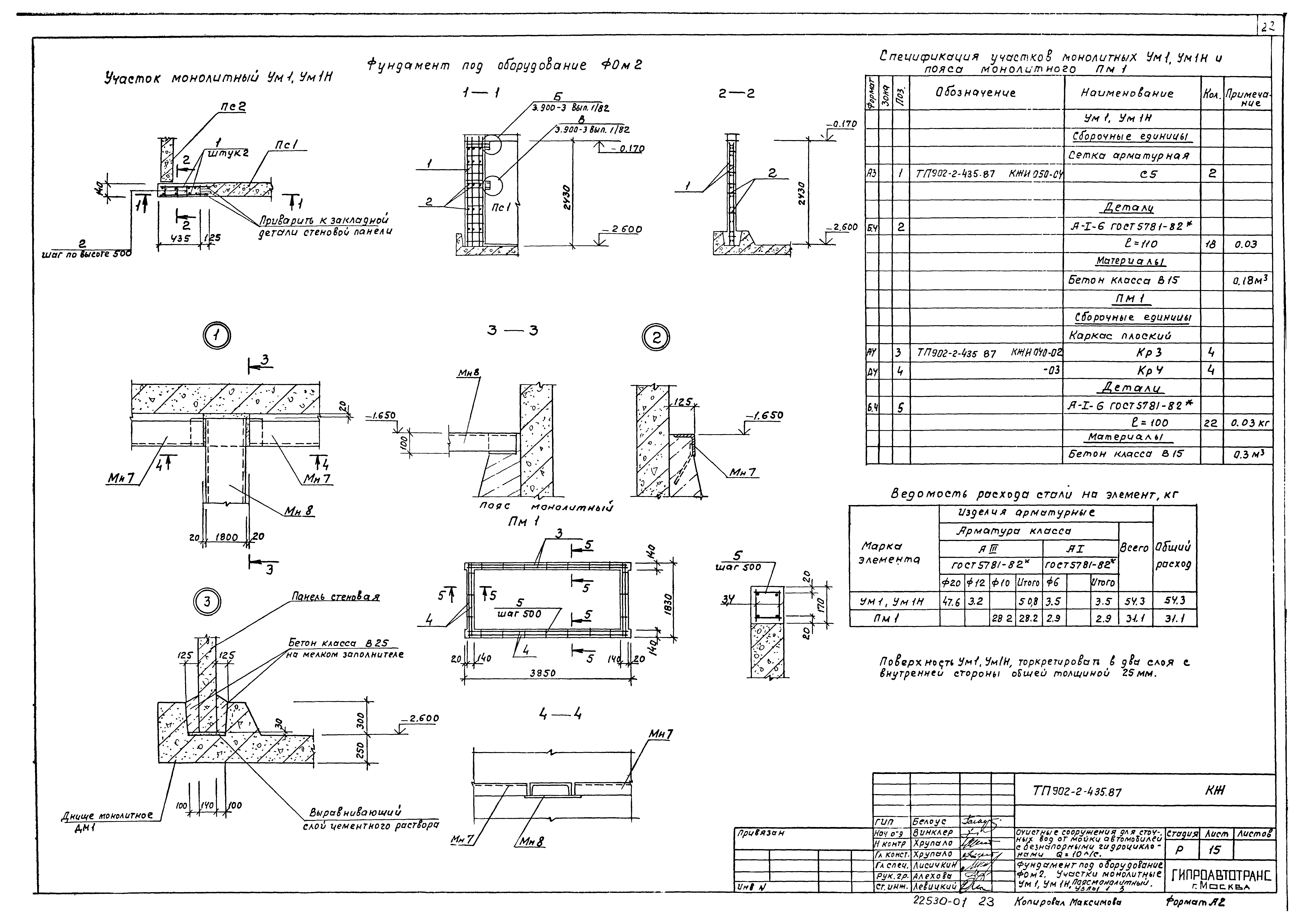
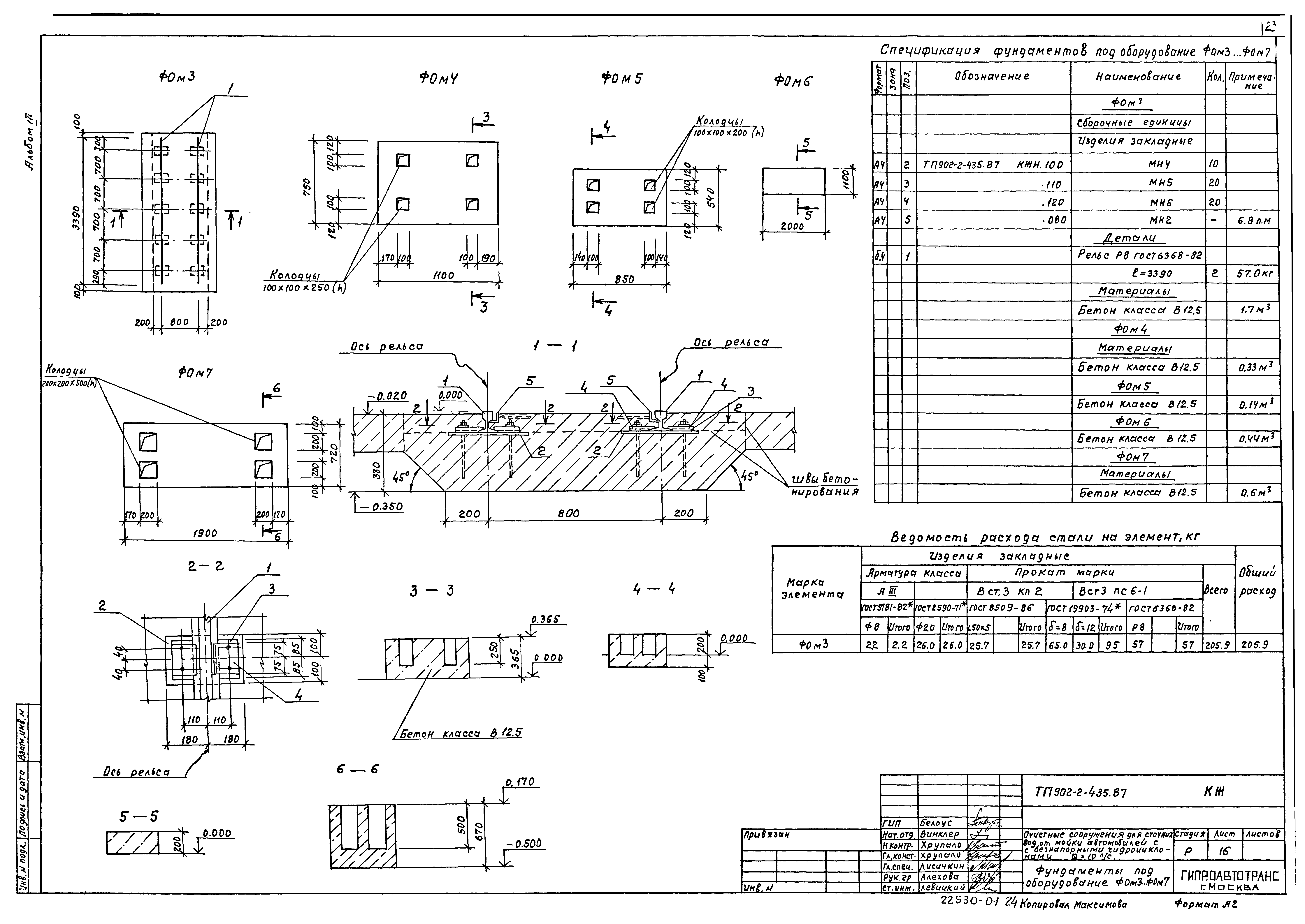
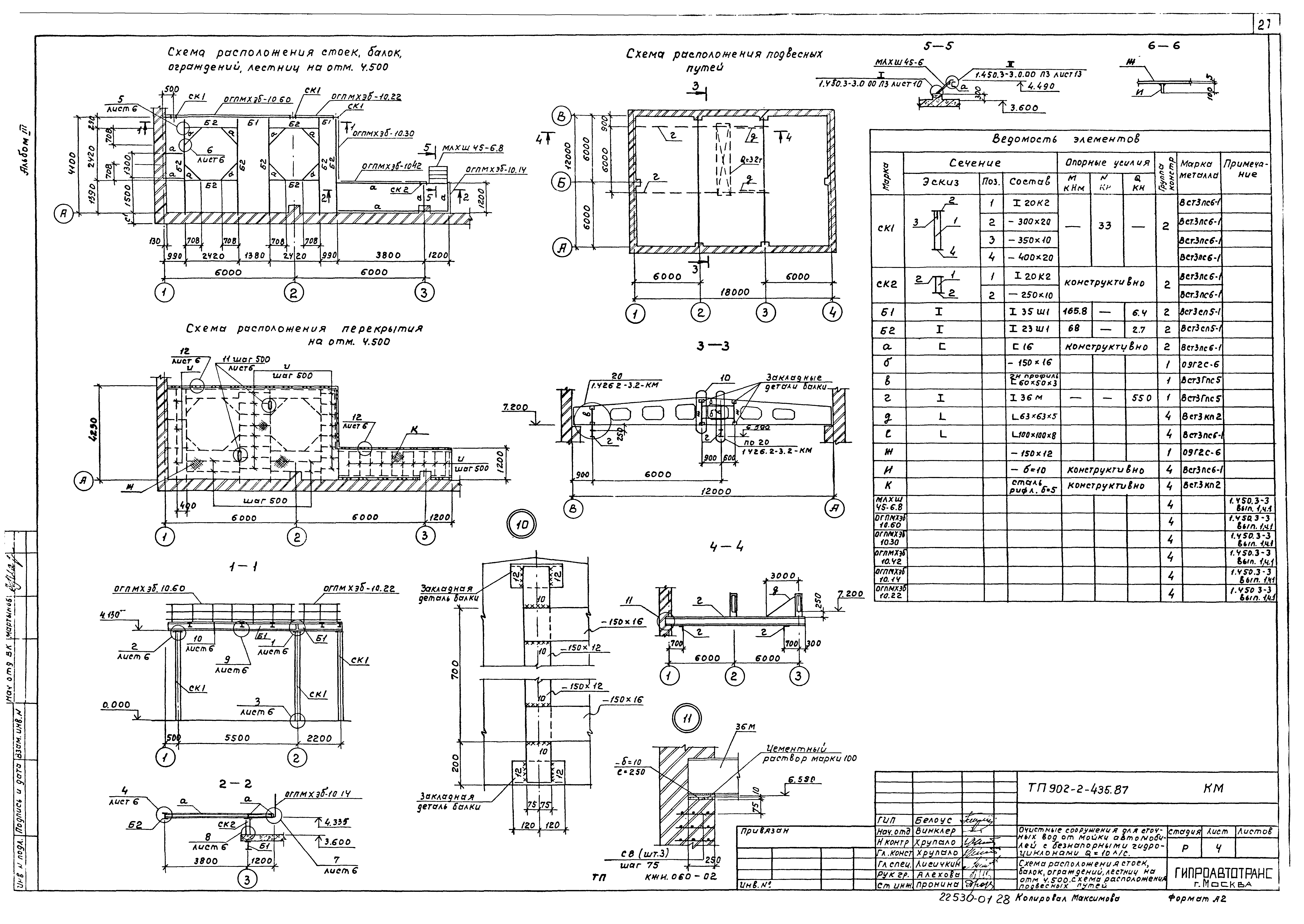
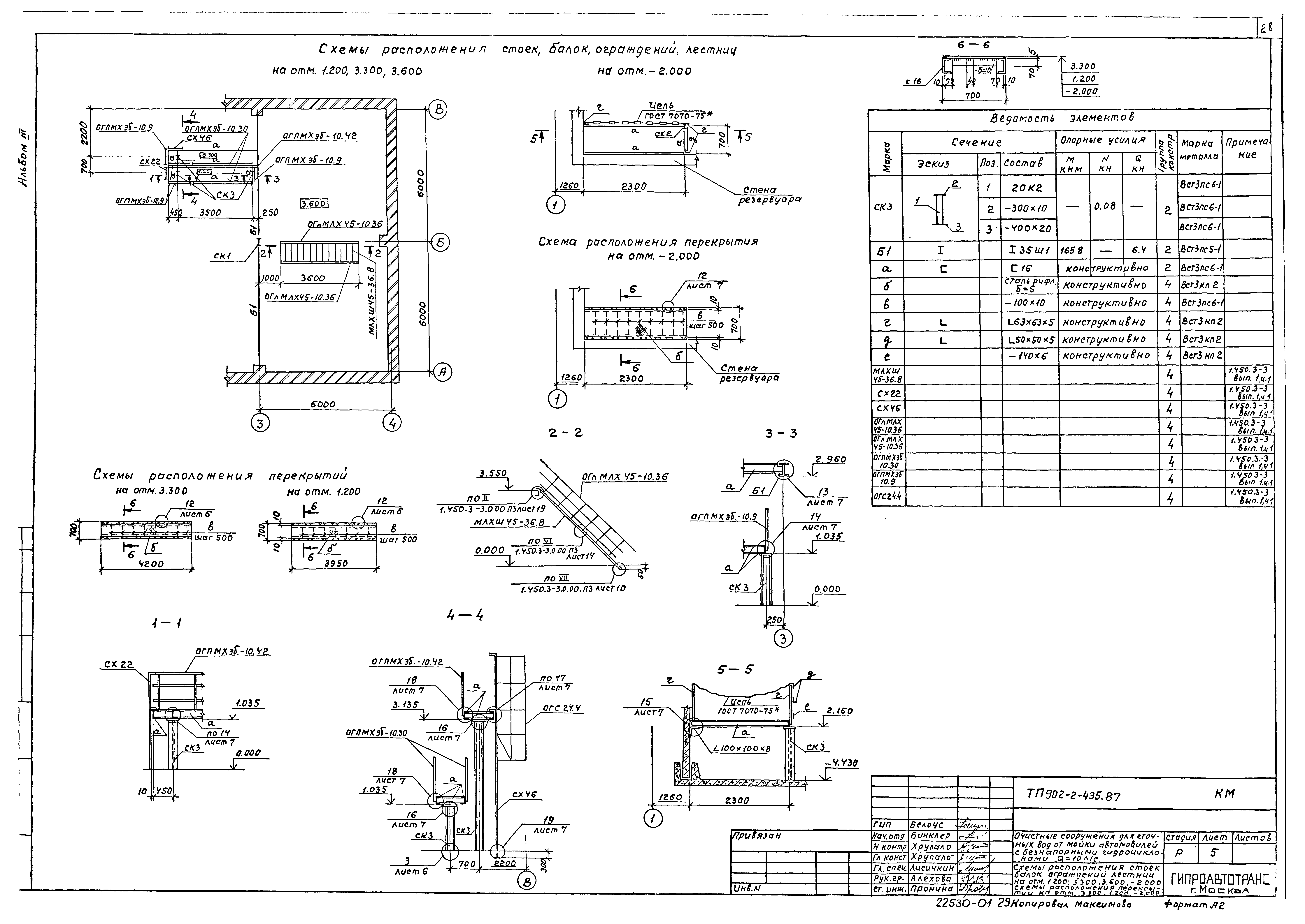
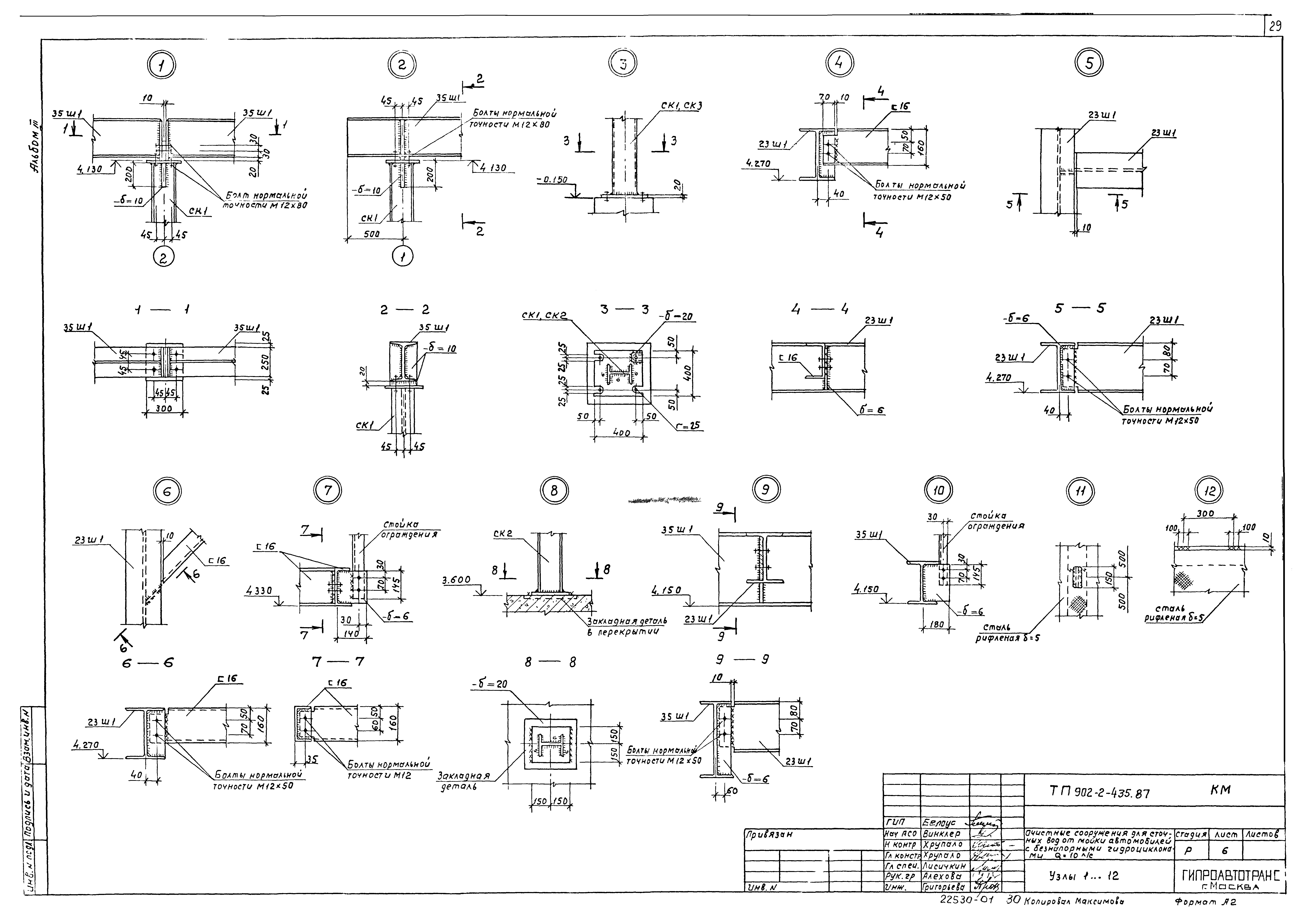
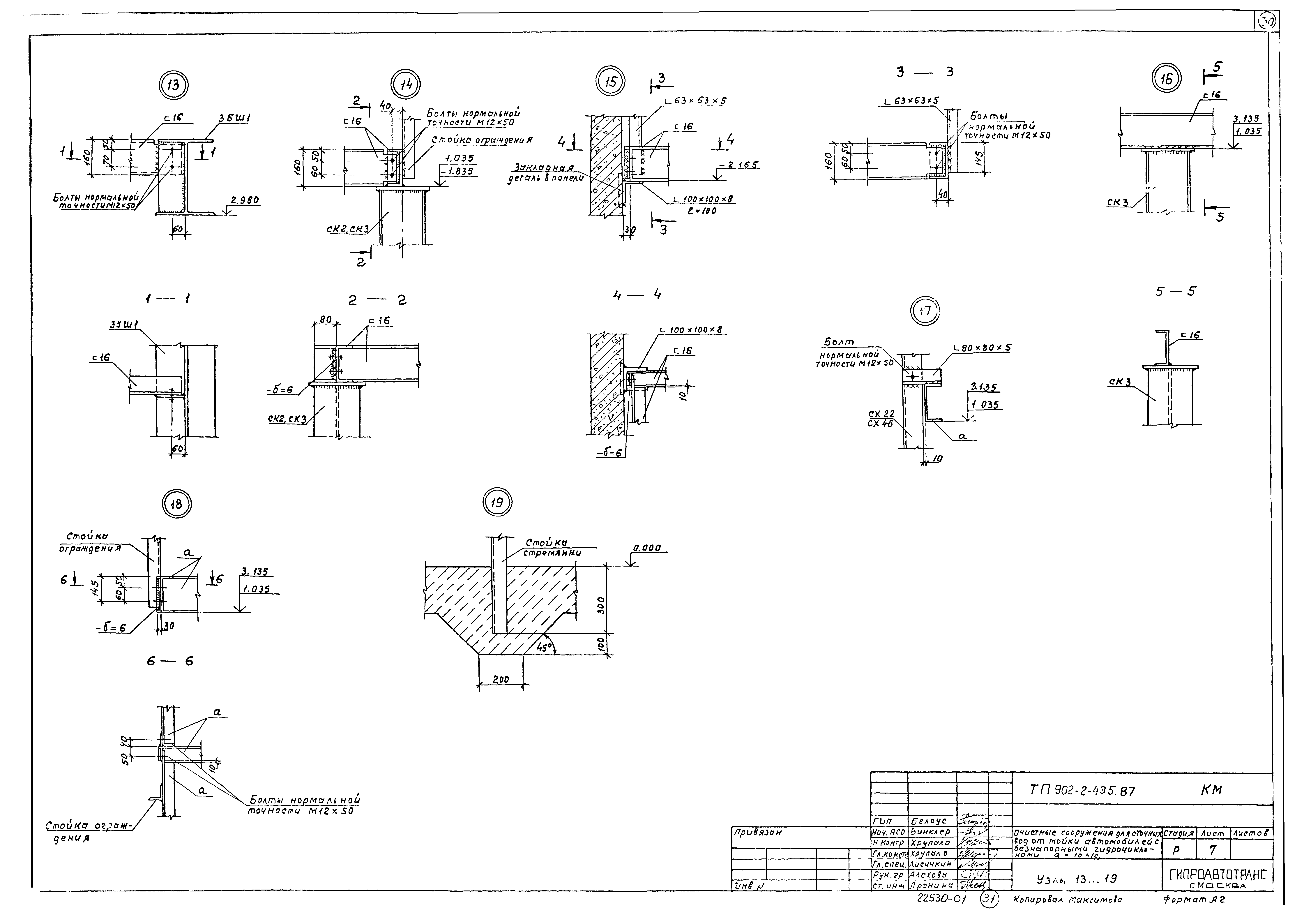
| Оглавление: | ТП 902-2-435.87-АР Архитектурные решения ТП 902-2-435.87-АР-1 Общие данные ТП 902-2-435.87-АР-2 План на отм. 0.000. Фрагмент 1. Планы полов на отм. 0.000;3.600. План кровли ТП 902-2-435.87-АР-3 План на отм. 3.600. Фрагмент 2. Узлы 1...5 ТП 902-2-435.87-АР-4 Спецификации закладных изделий, заполнения проемов, перемычек. Экспликации полов помещений. Ведомость перемычек ТП 902-2-435.87-АР-5 Фасады. Разрез 1-1. Схемы элементов заполнения оконных проемов ТП 902-2-435.87-КЖ Конструкции железобетонные ТП 902-2-435.87-КЖ-1 Общие данные ТП 902-2-435.87-КЖ-2 Схема расположения фундаментов. Сечения 1-1...5-5 ТП 902-2-435.87-КЖ-3 Фундаменты ФМ1,ФМ2 ТП 902-2-435.87-КЖ-4 Схемы расположения балок покрытия, лит перекрытия на отм. 3.600, плит покрытия ТП 902-2-435.87-КЖ-5 Спецификация к схемам расположения балок покрытия плит перекрытия на отм. 3.600, плит покрытия ТП 902-2-435.87-КЖ-6 Участки монолитные УМ1...УМ3 ТП 902-2-435.87-КЖ-7 Спецификация участков монолитных УМ1...УМ3 ТП 902-2-435.87-КЖ-8 Участок монолитный УМ4 ТП 902-2-435.87-КЖ-9 Схема расположения фундаментов под оборудование. Приямок ПР1 ТП 902-2-435.87-КЖ-10 Фундамент под оборудование ФОМ1. План. Разрезы. Лестница Л1 ТП 902-2-435.87-КЖ-11 Фундамент под оборудование ФОМ1. Схема расположения панелей стен и плит перекрытия ТП 902-2-435.87-КЖ-12 Фундамент под оборудование ФОМ1. Днище монолитное ДМ1 ТП 902-2-435.87-КЖ-13 Фундамент под оборудование ФОМ2. План, схема расположения элементов стен ТП 902-2-435.87-КЖ-14 Фундамент под оборудование ФОМ2. Днище монолитное ДМ1 ТП 902-2-435.87-КЖ-15 Фундамент под оборудование ФОМ2. Участки монолитные УМ1,УМ1н. Пояс монолитный ПМ1. Узлы 1...3 ТП 902-2-435.87-КЖ-16 Фундаменты под оборудование ФОМ3...ФОМ7 ТП 902-2-435.87-КМ Конструкции металлические ТП 902-2-435.87-КМ-1 Общие данные (начало) ТП 902-2-435.87-КМ-2 Общие данные (продолжение) ТП 902-2-435.87-КМ-3 Общие данные (окончание) ТП 902-2-435.87-КМ-4 Схема расположения стоек, балок, ограждений лестниц на отм. 4.500. Схема расположения подвесных путей ТП 902-2-435.87-КМ-5 Схемы расположения стоек, балок, ограждений лестниц на отм. 1.200;3.300;3.600,-2.000. Схема расположения перекрытий на отм. 3.300;1.200;-2.000 ТП 902-2-435.87-КМ-6 Узлы 1...12 ТП 902-2-435.87-КМ-7 Узлы 13...19 |
| Разработан: | Гипроавтотранс |
| Утверждён: | 01.10.1987 Минавтотранс РСФСР (Russian Federation Minavtotrans 11) |
| Заменяет собой: | |
| Чем заменён: |






























