Скачать Типовой проект 902-5-40.87 Альбом II. Строительные изделияДата актуализации: 01.01.2021
|
| Обозначение: | Типовой проект 902-5-40.87 |
| Обозначение англ: | 902-5-40.87 |
| Статус: | не определен законодательством |
| Название рус.: | Альбом II. Строительные изделия |
| Дата добавления в базу: | 01.09.2013 |
| Дата актуализации: | 01.01.2021 |
| Дата введения: | 13.05.1987 |
| Дата окончания срока действия: | 30.06.2003 |
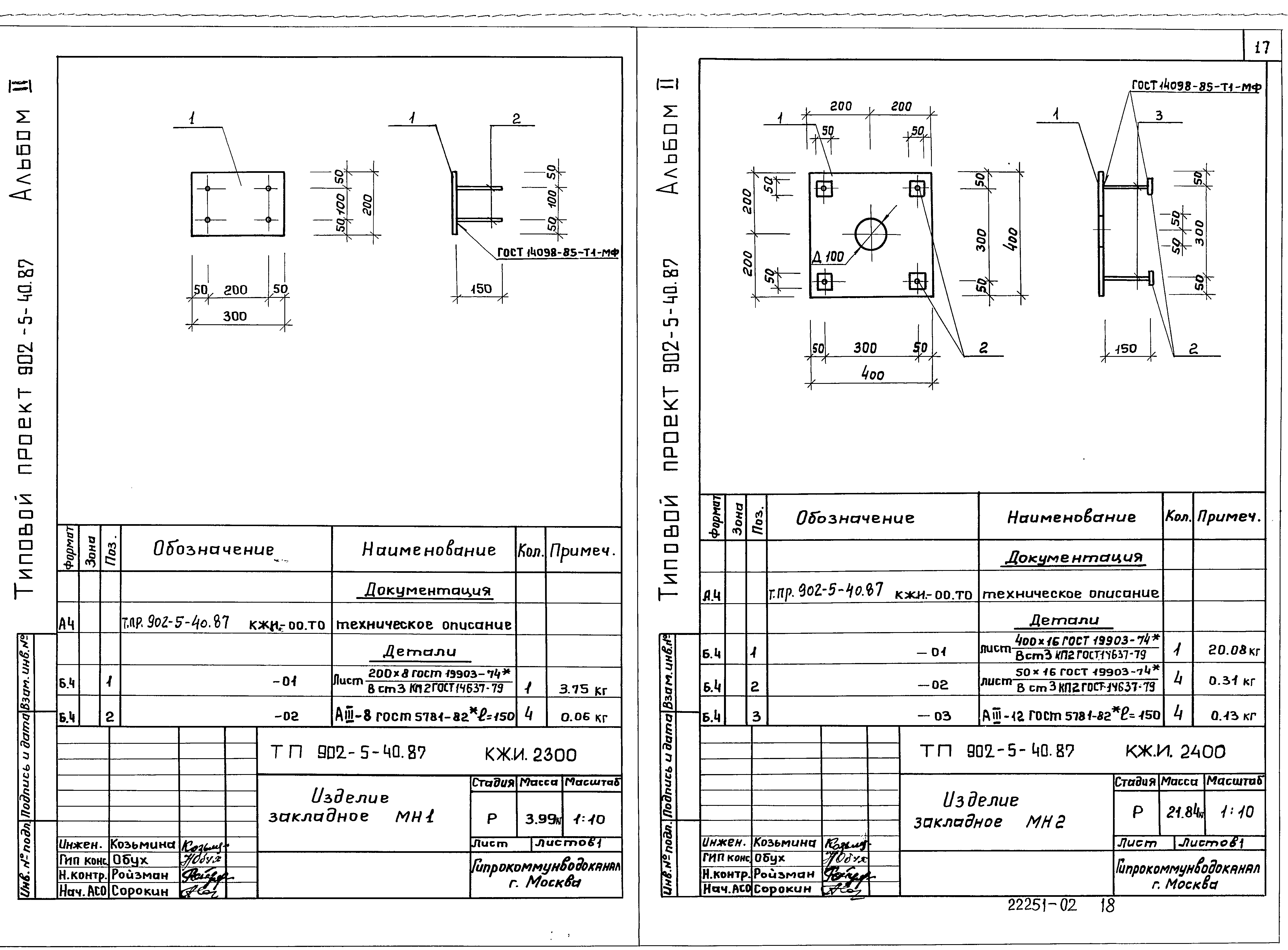
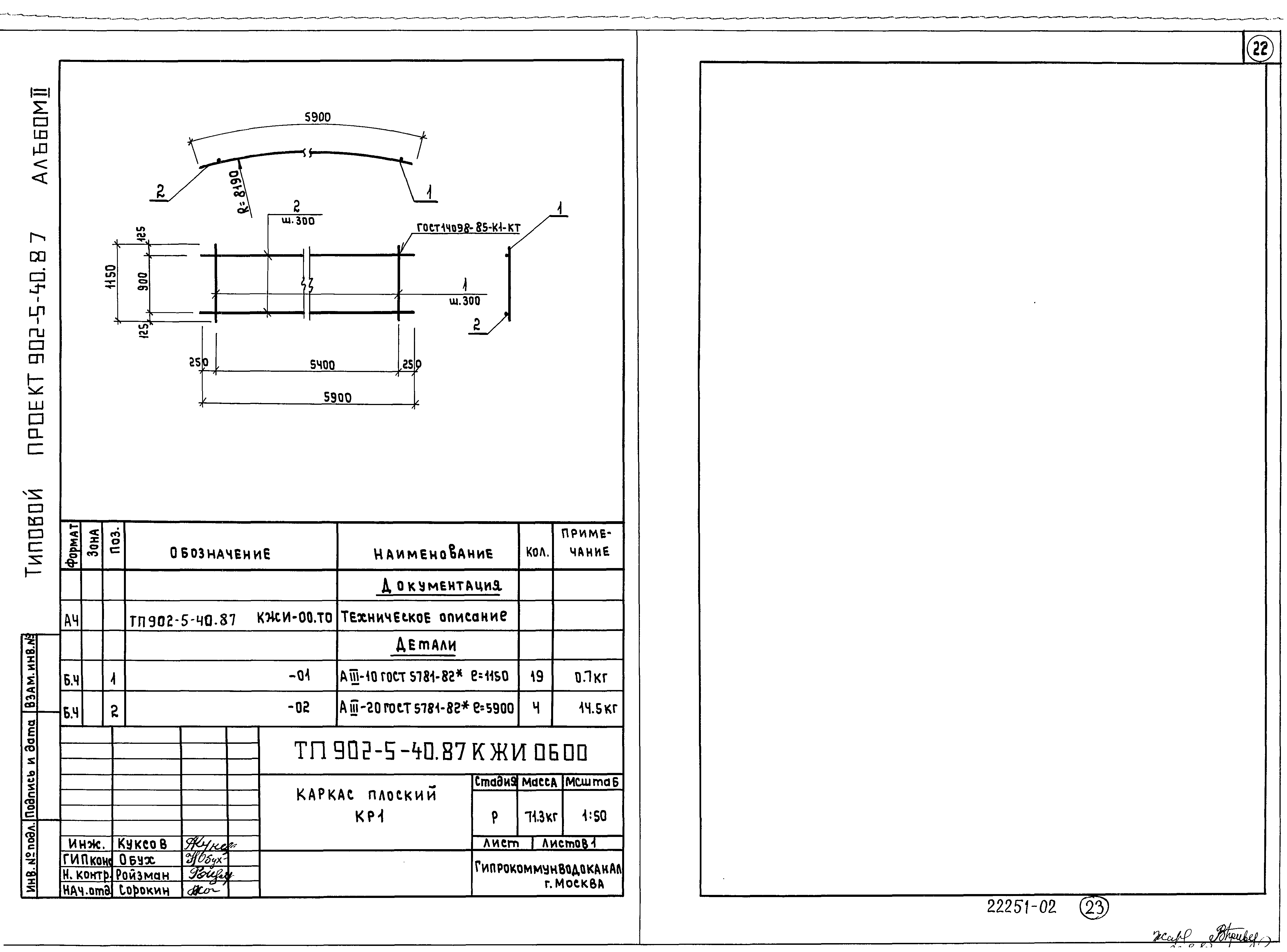
| Оглавление: | ТП 902-5-40.87-КЖИ-0000 Содержание альбома ТП 902-5-40.87-КЖИ-0000.ТО Техническое описание ТП 902-5-40.87-КЖИ-0100 Каркас пространственный КП1 ТП 902-5-40.87-КЖИ-0200 Каркас пространственный КП2 ТП 902-5-40.87-КЖИ-0300 Каркас пространственный КП3 ТП 902-5-40.87-КЖИ-0400 Каркас пространственный КП4 ТП 902-5-40.87-КЖИ-0500 Каркас пространственный КП5 ТП 902-5-40.87-КЖИ-0600 Каркас плоский КР1 ТП 902-5-40.87-КЖИ-0700 Каркас плоский КР2 ТП 902-5-40.87-КЖИ-0800 Каркас плоский КР3 ТП 902-5-40.87-КЖИ-0900 Каркас плоский КР4 ТП 902-5-40.87-КЖИ-1000 Каркас плоский КР5 ТП 902-5-40.87-КЖИ-1100 Каркас плоский КР6 ТП 902-5-40.87-КЖИ-1200 Каркас плоский КР7 ТП 902-5-40.87-КЖИ-1300 Сетка С1 ТП 902-5-40.87-КЖИ-1400 Сетка С2 ТП 902-5-40.87-КЖИ-1500 Сетка С3 ТП 902-5-40.87-КЖИ-1600 Сетка С4 ТП 902-5-40.87-КЖИ-1700 Сетка С5 ТП 902-5-40.87-КЖИ-1800 Сетка С6 ТП 902-5-40.87-КЖИ-1900 Сетка С7 ТП 902-5-40.87-КЖИ-2000 Сетка С8 ТП 902-5-40.87-КЖИ-2100 Сетка С9 ТП 902-5-40.87-КЖИ-2200 Сетка С10 ТП 902-5-40.87-КЖИ-2300 Изделие закладное МН1 ТП 902-5-40.87-КЖИ-2400 Изделие закладное МН2 ТП 902-5-40.87-КЖИ-2500 Изделие закладное МН6 ТП 902-5-40.87-КЖИ-2600 Изделие закладное МН7 ТП 902-5-40.87-КЖИ-2700 Изделие закладное МН8 ТП 902-5-40.87-КЖИ-2800 Изделие закладное МН9 ТП 902-5-40.87-КЖИ-2900 Патрубок ПР1 ТП 902-5-40.87-КЖИ-3000 Изделие накладное НД1 ТП 902-5-40.87-КЖИ-3100 Патрубок ПР2 |
| Разработан: | Гипрокоммунводоканал Минжилкомхоза РСФСР |
| Утверждён: | 13.05.1987 МЖКХ РСФСР (5-тд) |






















