Скачать Типовой проект 902-5-42.87 Альбом I. Архитектурно-строительные решения, конструкции металлические, электротехнические решенияДата актуализации: 01.01.2021
|
| Обозначение: | Типовой проект 902-5-42.87 |
| Обозначение англ: | 902-5-42.87 |
| Статус: | не определен законодательством |
| Название рус.: | Альбом I. Архитектурно-строительные решения, конструкции металлические, электротехнические решения |
| Дата добавления в базу: | 01.09.2013 |
| Дата актуализации: | 01.01.2021 |
| Дата введения: | 13.05.1987 |
| Дата окончания срока действия: | 30.06.2003 |
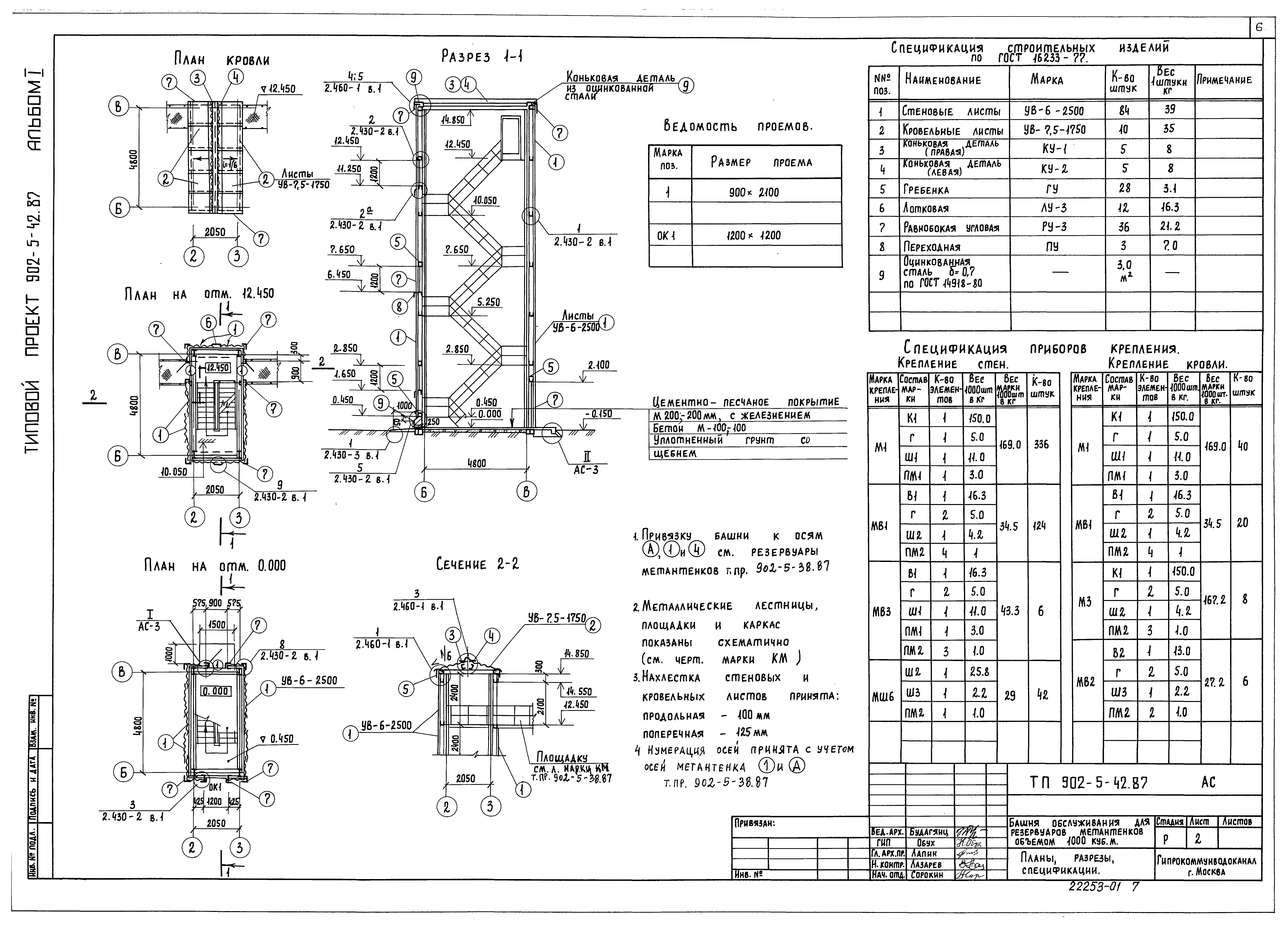
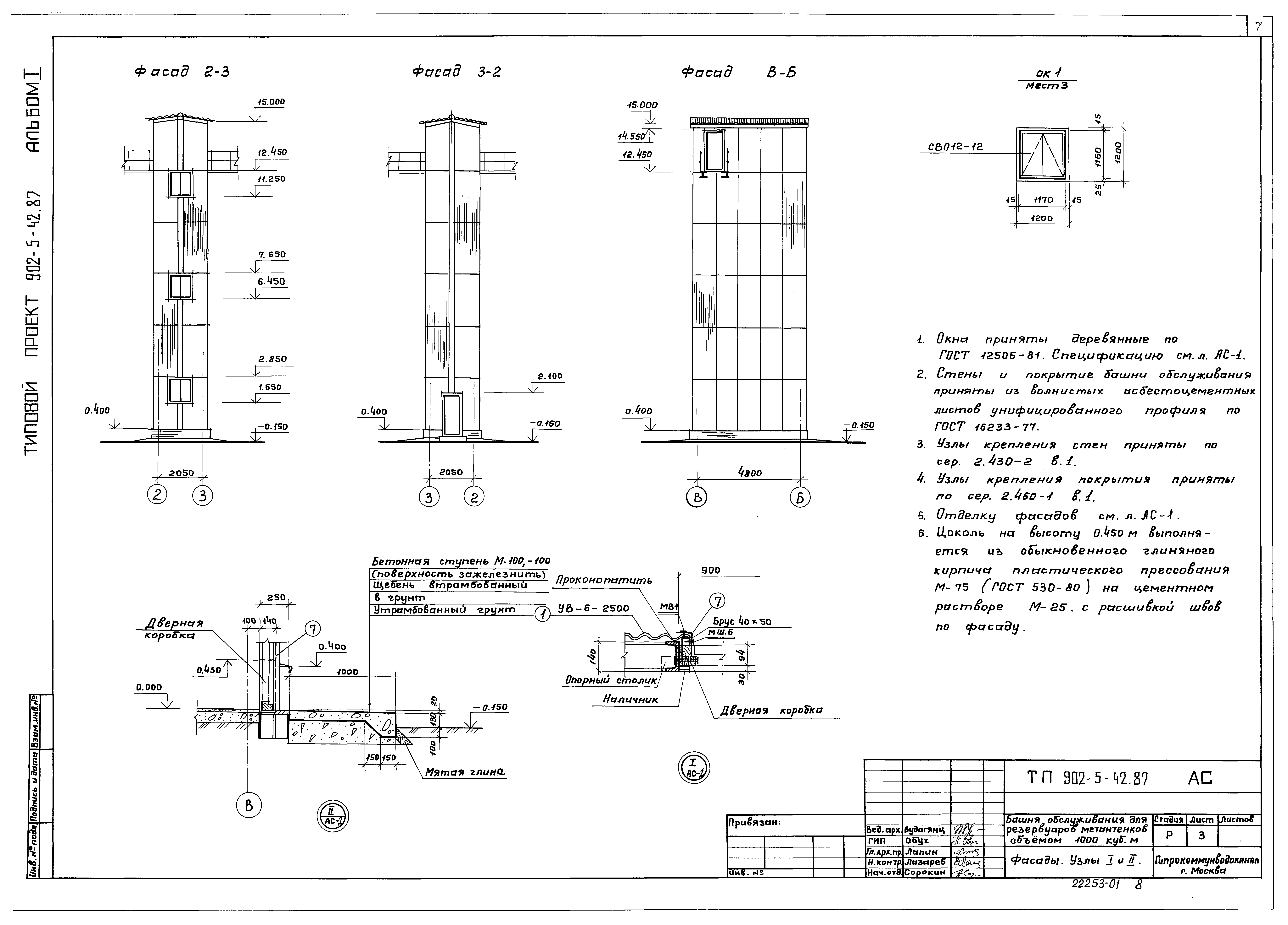
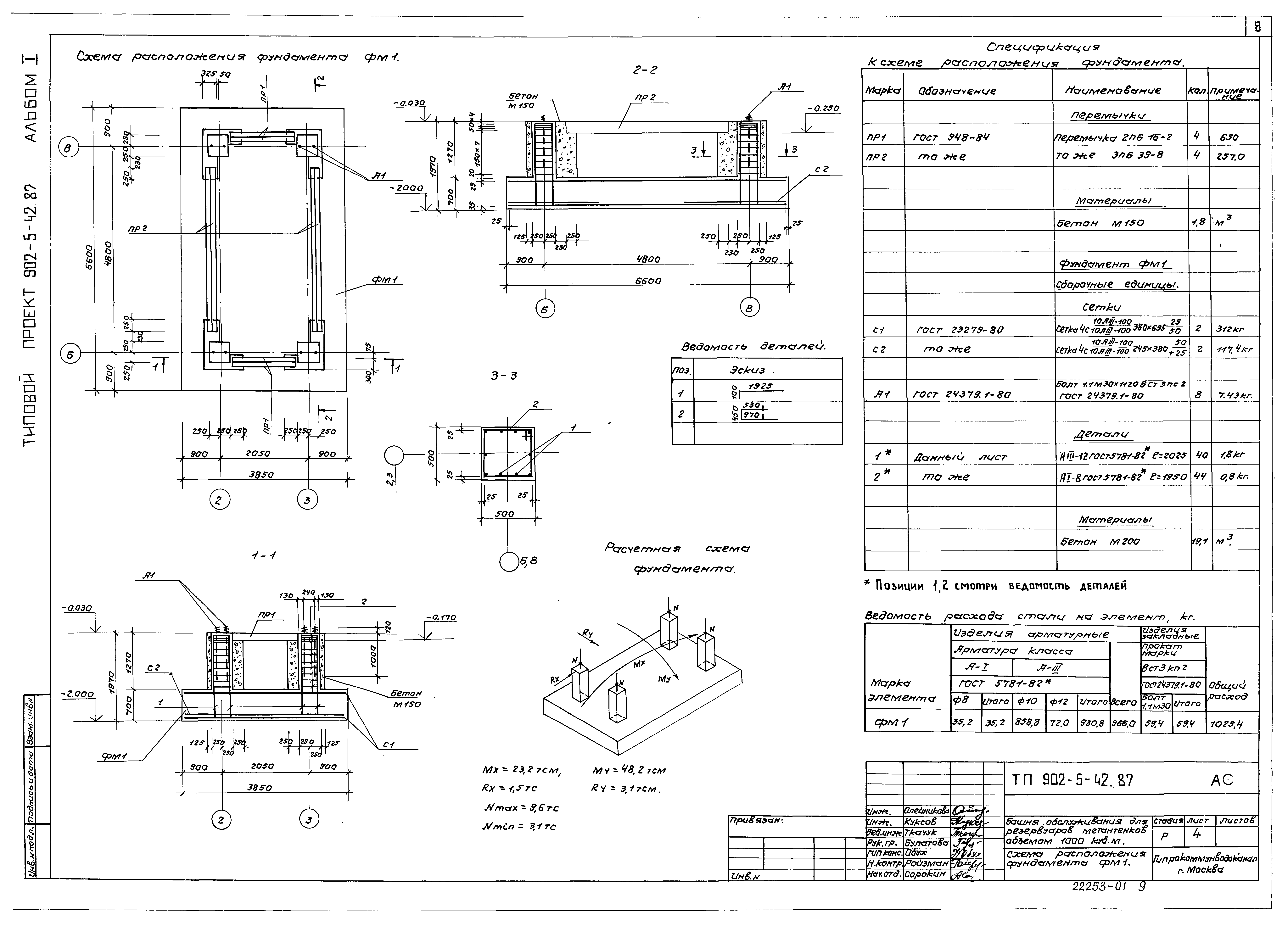
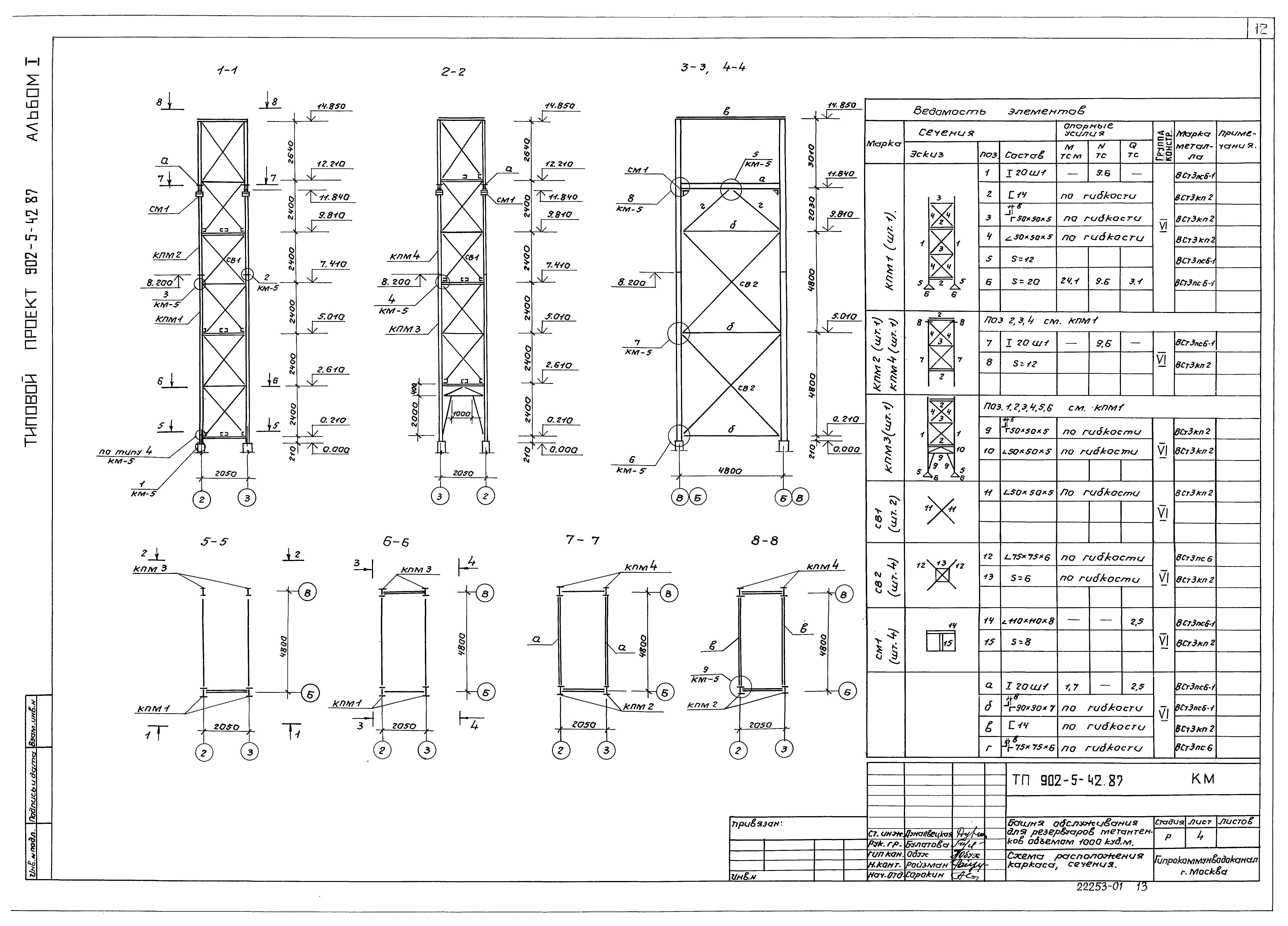
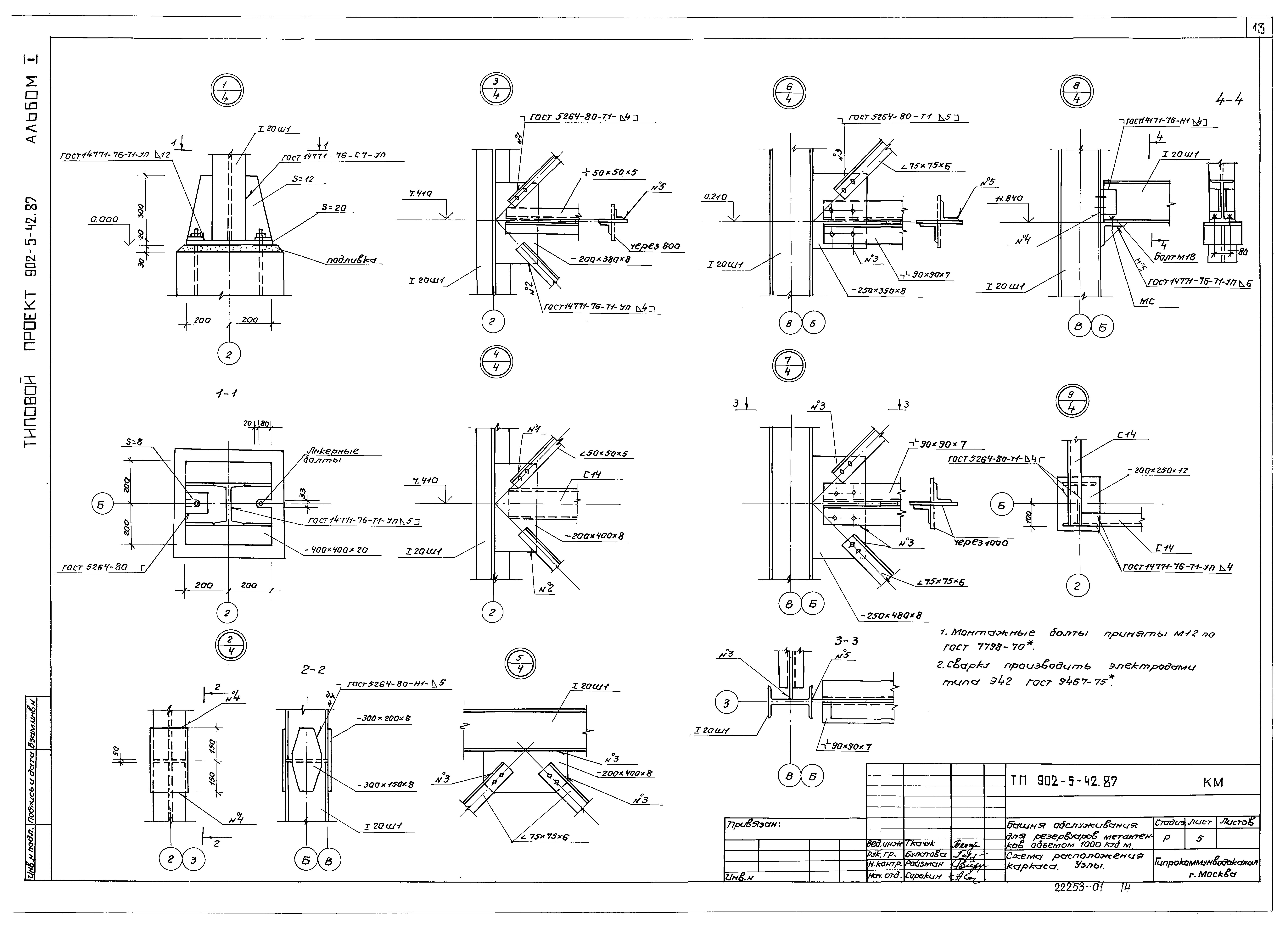
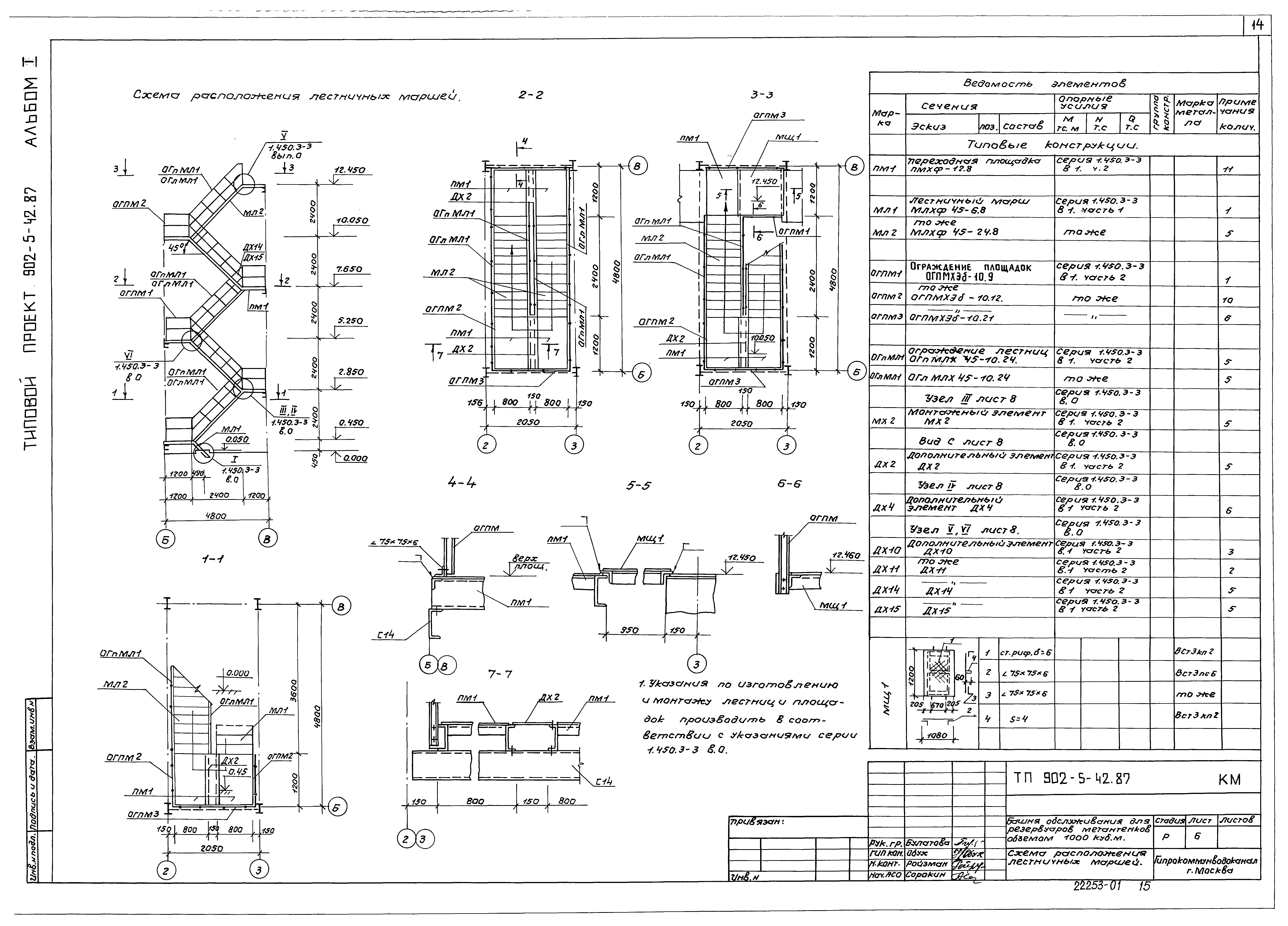
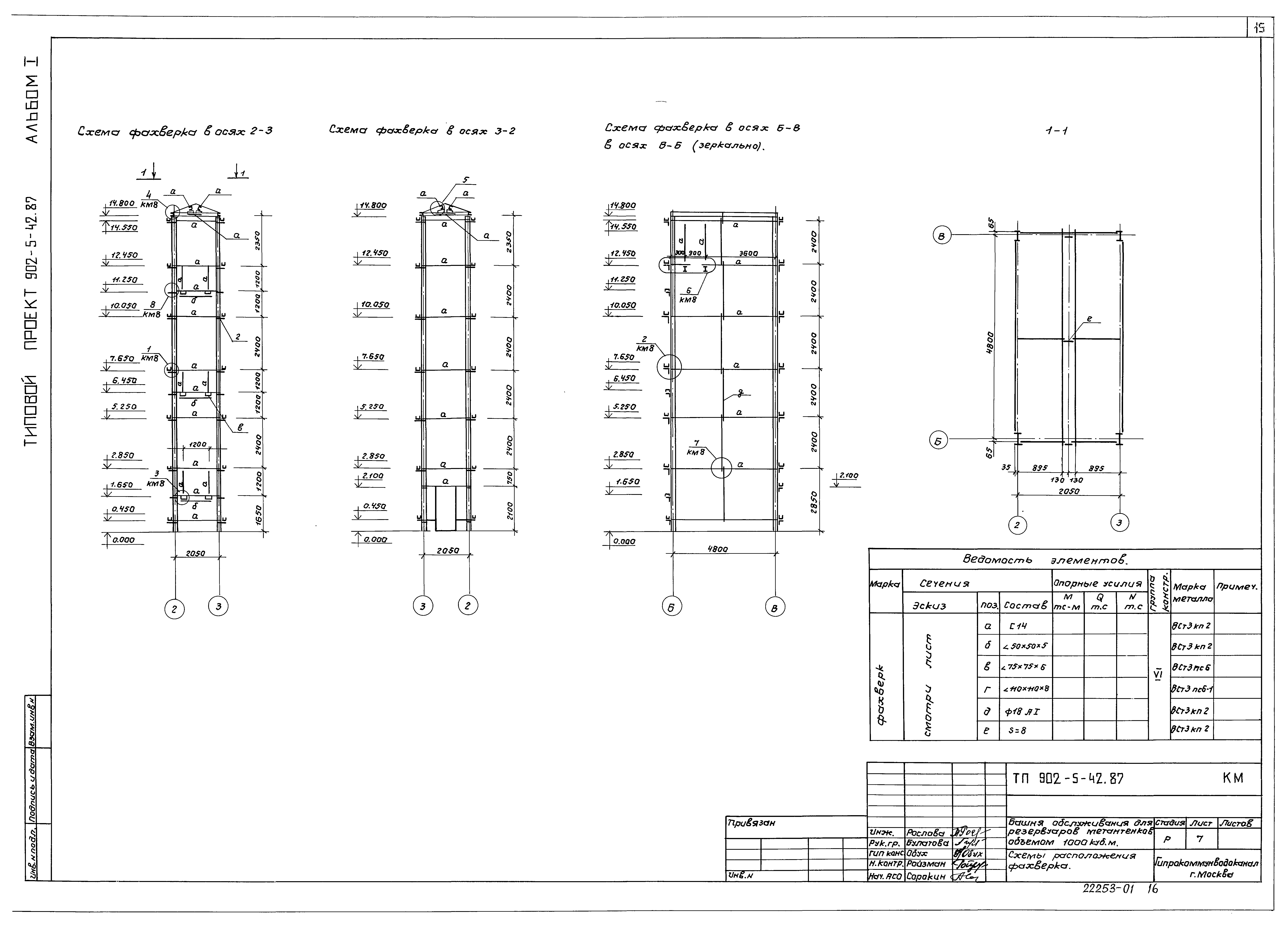
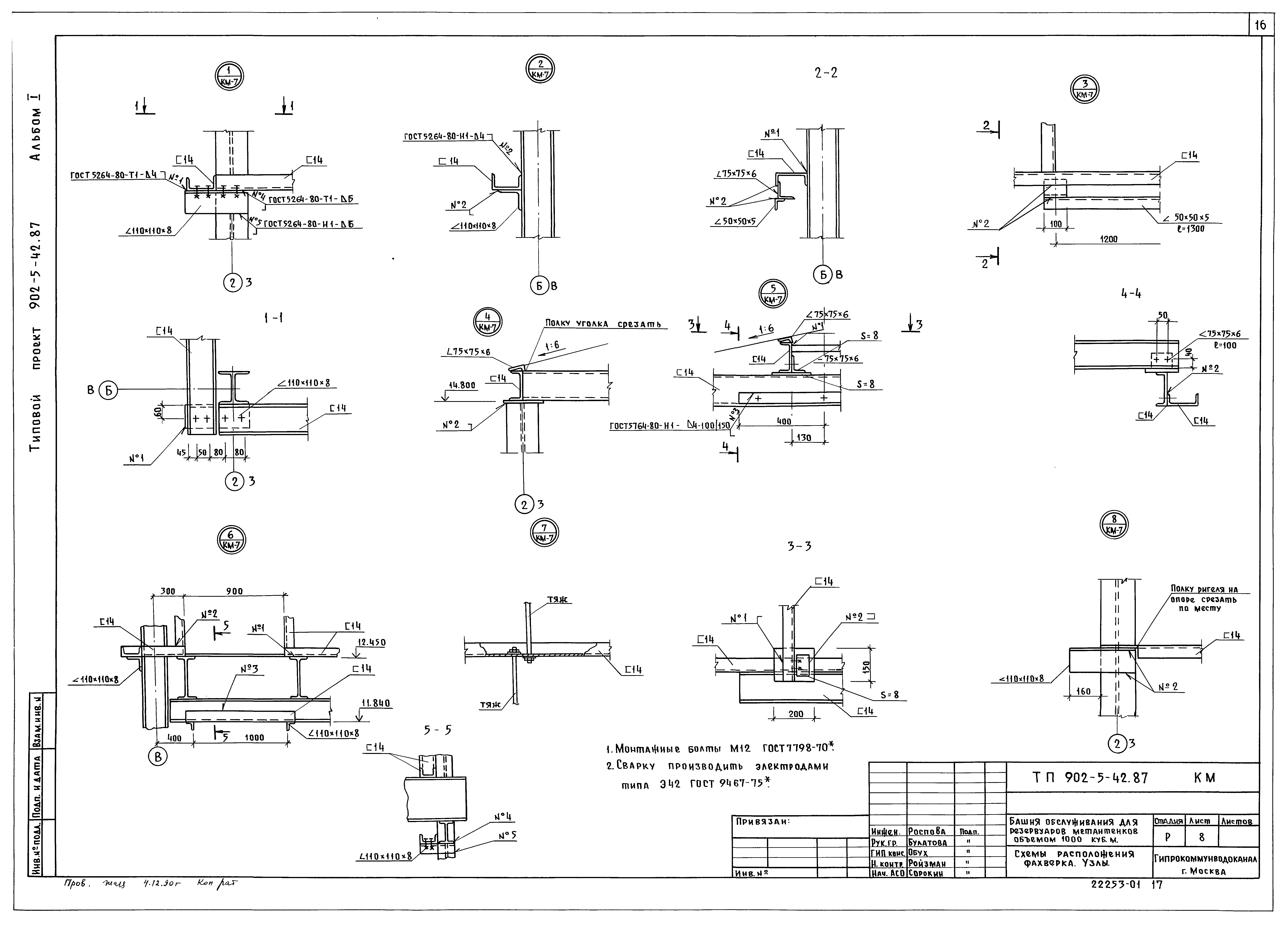
| Оглавление: | ТП 902-5-42.87 Содержание альбома ТП 902-5-42.87-ПЗ-1 Пояснительная записка /начало/ ТП 902-5-42.87-ПЗ-2 Пояснительная записка /окончание/ ТП 902-5-42.87-АС Архитектурно-строительные решения ТП 902-5-42.87-АС-1 Общие данные ТП 902-5-42.87-АС-2 Планы. Разрезы. Спецификация ТП 902-5-42.87-АС-3 Фасады. Узлы 1,2 ТП 902-5-42.87-АС-4 Схема расположения фундамента ФМ-1 ТП 902-5-42.87-КМ Конструкции металлические ТП 902-5-42.87-КМ-1 Общие данные ТП 902-5-42.87-КМ-2 Техническая спецификация металла ТП 902-5-42.87-КМ-3 Ведомость металлоконструкций по видам профилей ТП 902-5-42.87-КМ-4 Схема расположения каркаса. Сечения ТП 902-5-42.87-КМ-5 Схема расположения каркаса. Узлы ТП 902-5-42.87-КМ-6 Схема расположения лестничных маршей. Сечения 1-1;2-2 ТП 902-5-42.87-КМ-7 Схема расположения фахверка ТП 902-5-42.87-КМ-8 Схема расположения фахверка. Узлы ТП 902-5-42.87-ЭО Электротехнические решения ТП 902-5-42.87-ЭО-1 Общие данные ТП 902-5-42.87-ЭО-2 Электроосвещение. Планы и разрез ТП 902-5-42.87-ЭОВР-1 Ведомость объемов электротехнических работ |
| Разработан: | Гипрокоммунводоканал Минжилкомхоза РСФСР |
| Утверждён: | 13.05.1987 МЖКХ РСФСР (5-ТД) |



















