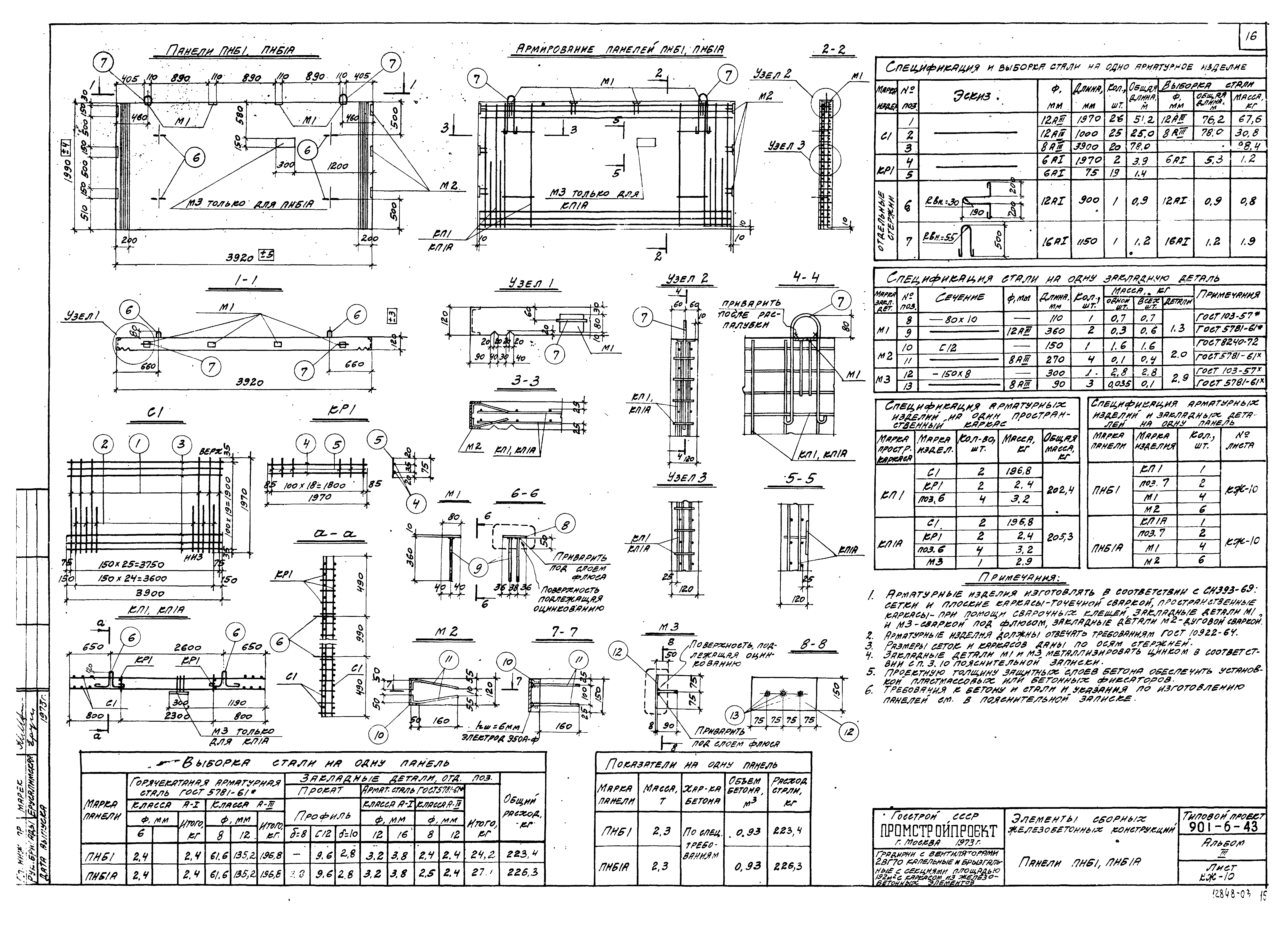
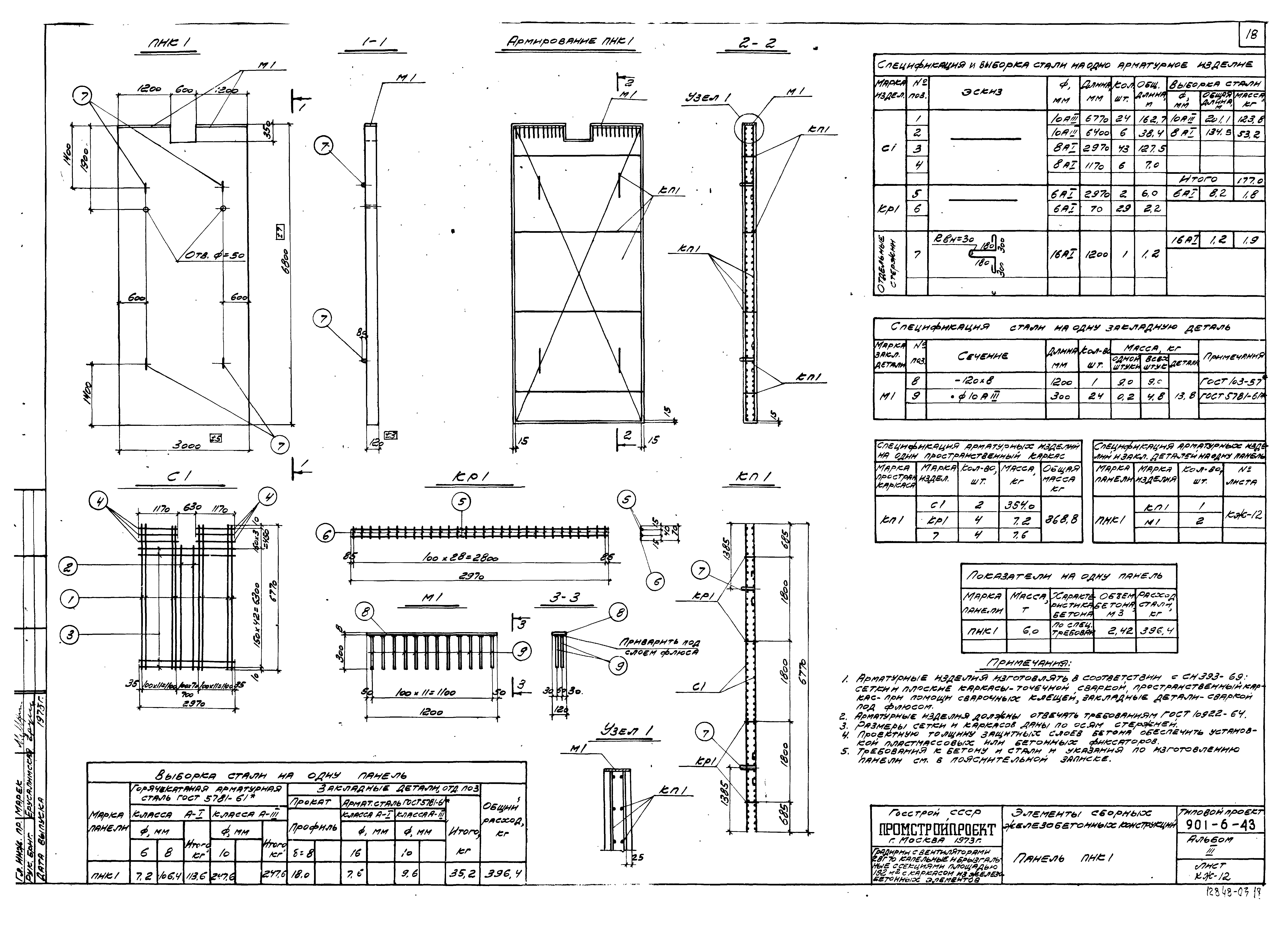
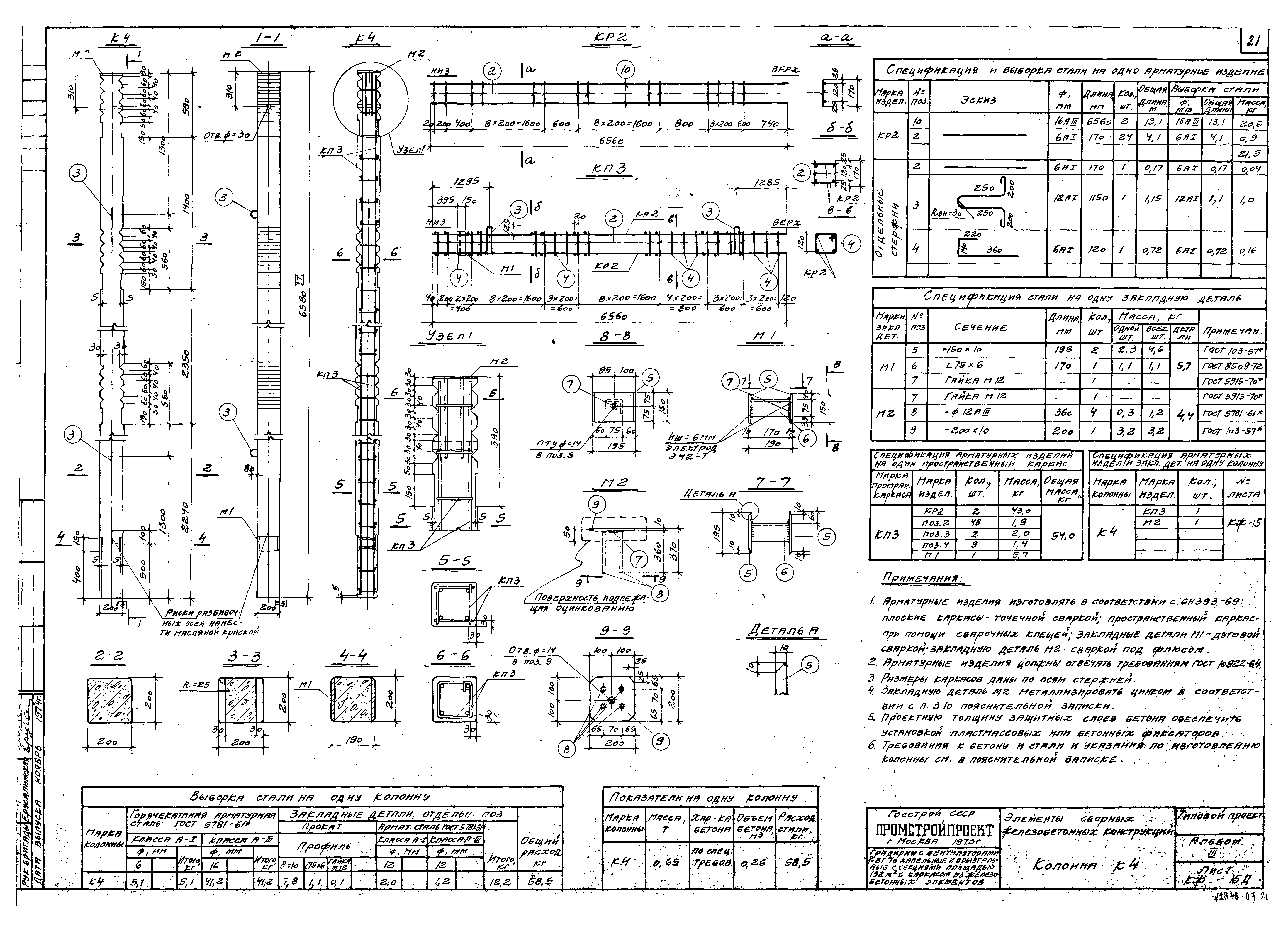
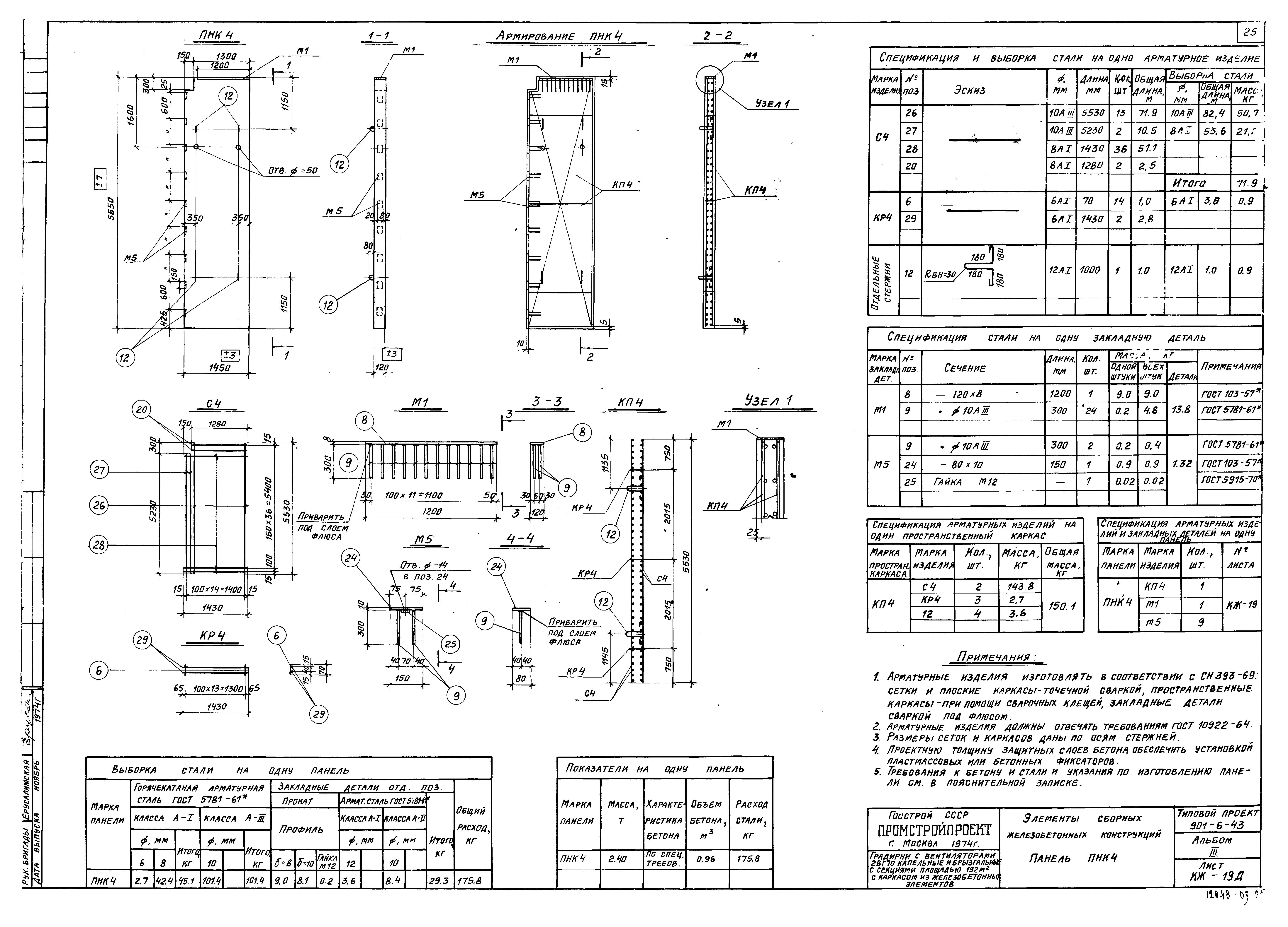
Скачать Типовой проект 901-6-51 Альбом III. Элементы сборных железобетонных конструкций (из ТП 901-6-43)Дата актуализации: 01.01.2021 Типовой проект 901-6-51
Альбом III. Элементы сборных железобетонных конструкций (из ТП 901-6-43)| Обозначение: | Типовой проект 901-6-51 | | Обозначение англ: | 901-6-51 | | Статус: | отменен | | Название рус.: | Альбом III. Элементы сборных железобетонных конструкций (из ТП 901-6-43) | | Дата добавления в базу: | 12.02.2016 | | Дата актуализации: | 01.01.2021 | | Дата введения: | 15.10.1975 | | Дата окончания срока действия: | 01.07.1996 | | Разработан: | Союзводоканалпроект
| | Утверждён: | 12.06.1975 Главпромстройпроект Госстроя СССР (36)
| | Заменяет собой: | |
                         
|