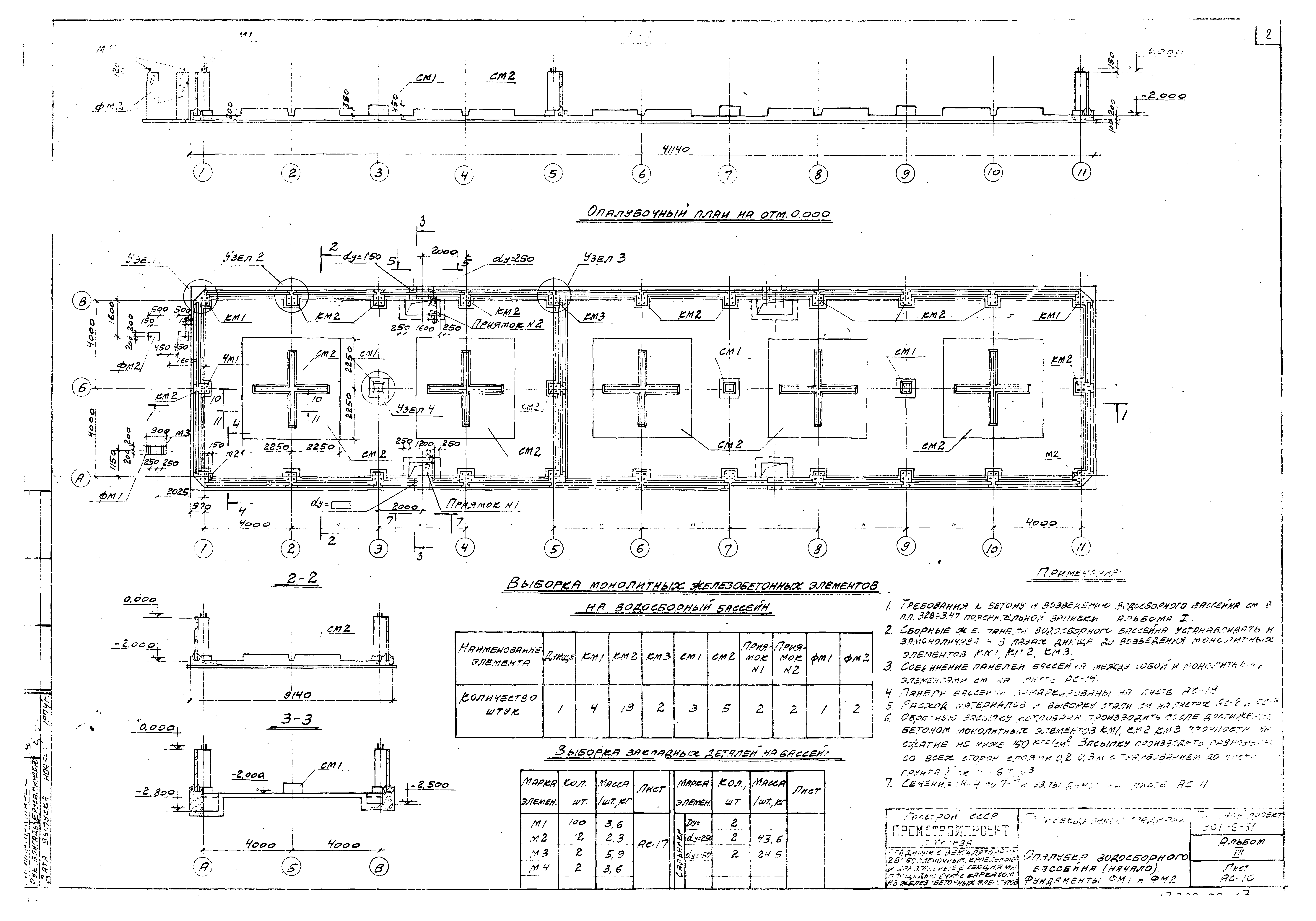
Скачать Типовой проект 901-6-51 Альбом VII. Пятисекционные градирниДата актуализации: 01.01.2021
|
| Обозначение: | Типовой проект 901-6-51 |
| Обозначение англ: | 901-6-51 |
| Статус: | отменен |
| Название рус.: | Альбом VII. Пятисекционные градирни |
| Дата добавления в базу: | 01.09.2013 |
| Дата актуализации: | 01.01.2021 |
| Дата введения: | 15.10.1975 |
| Дата окончания срока действия: | 01.07.1996 |
| Разработан: | ЦНИИпроектстальконструкция Союзводоканалниипроект Промстройпроект |
| Утверждён: | 12.06.1975 Главпромстройпроект Госстроя СССР (36) |
| Заменяет собой: |
|









































