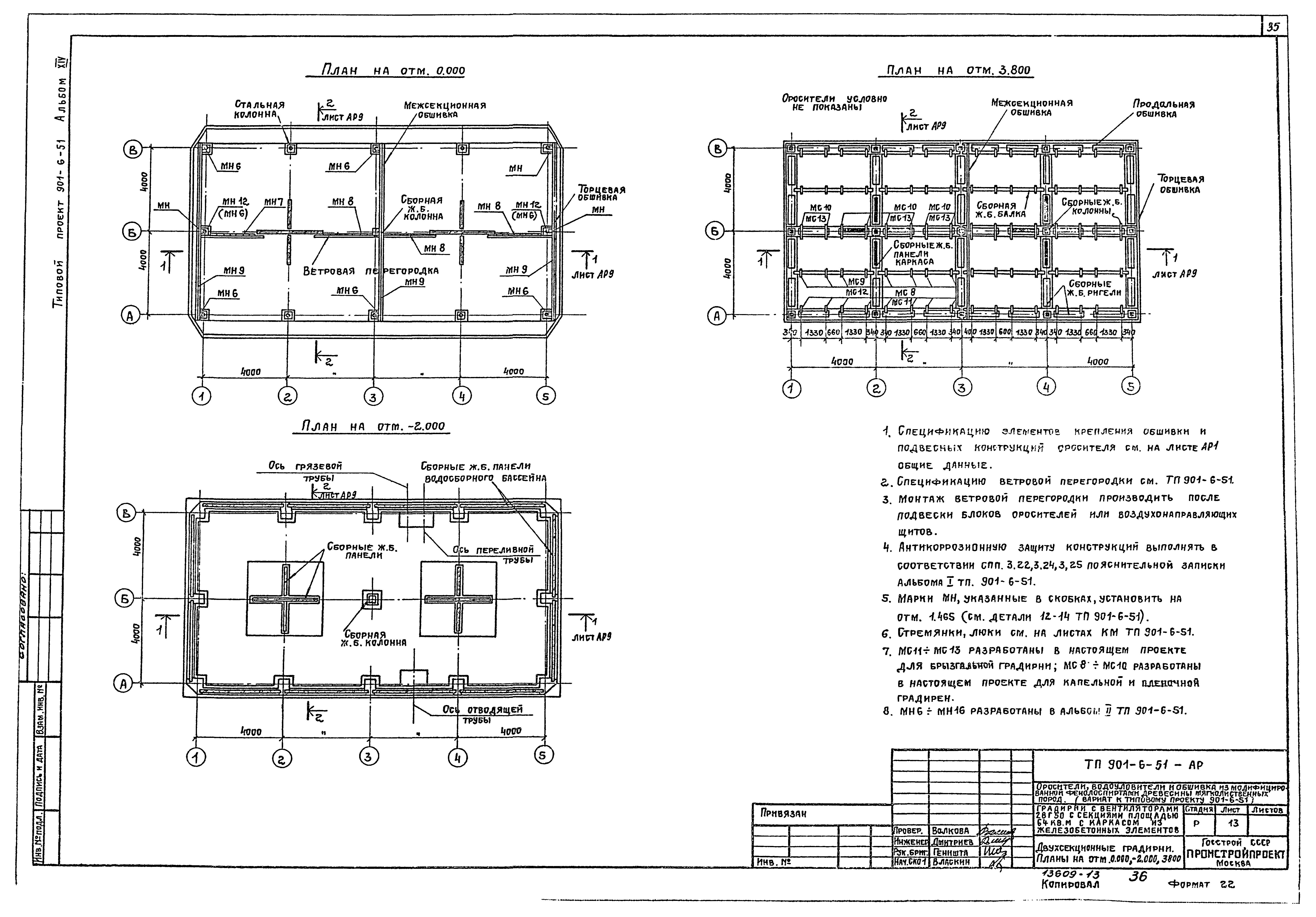
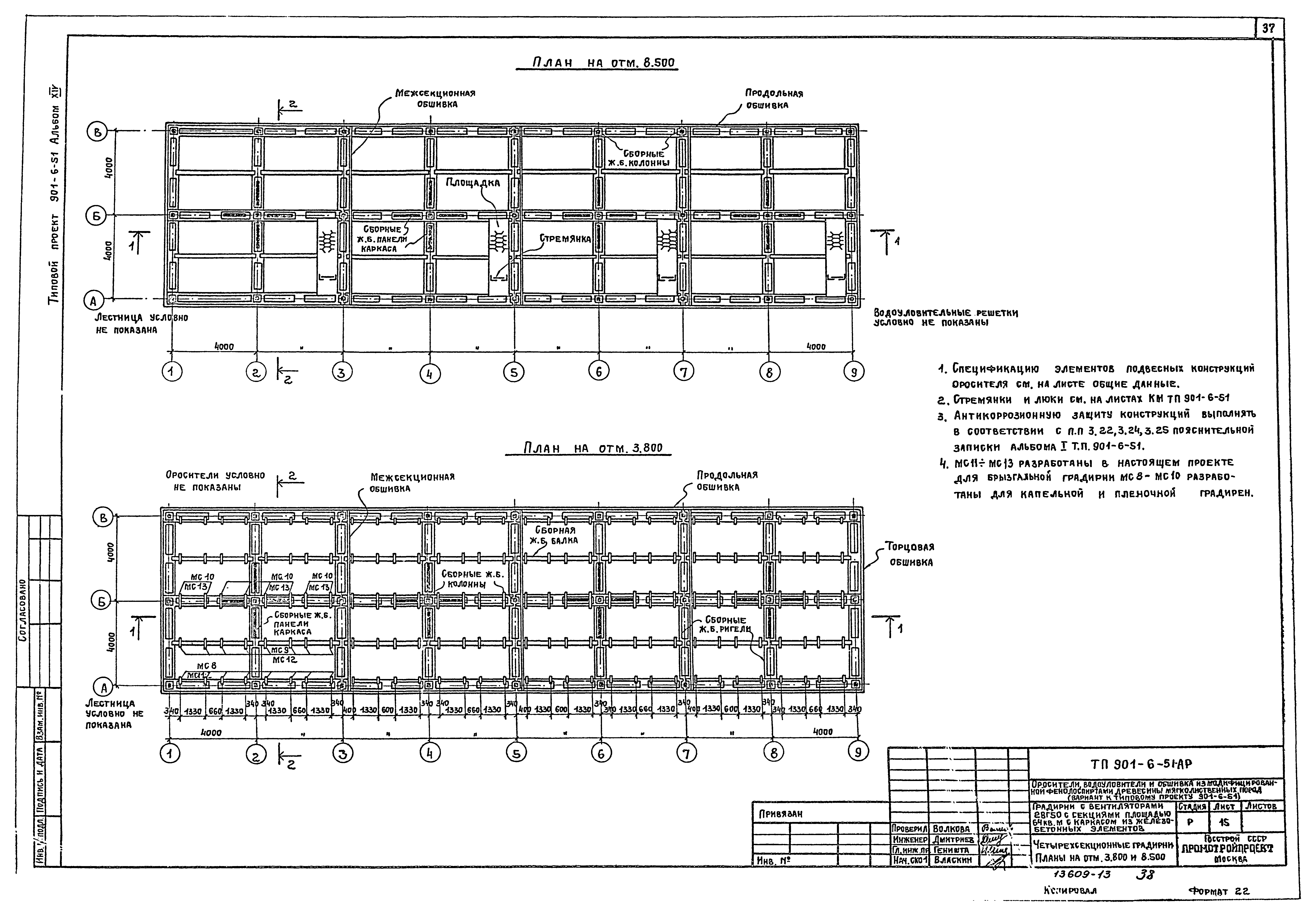
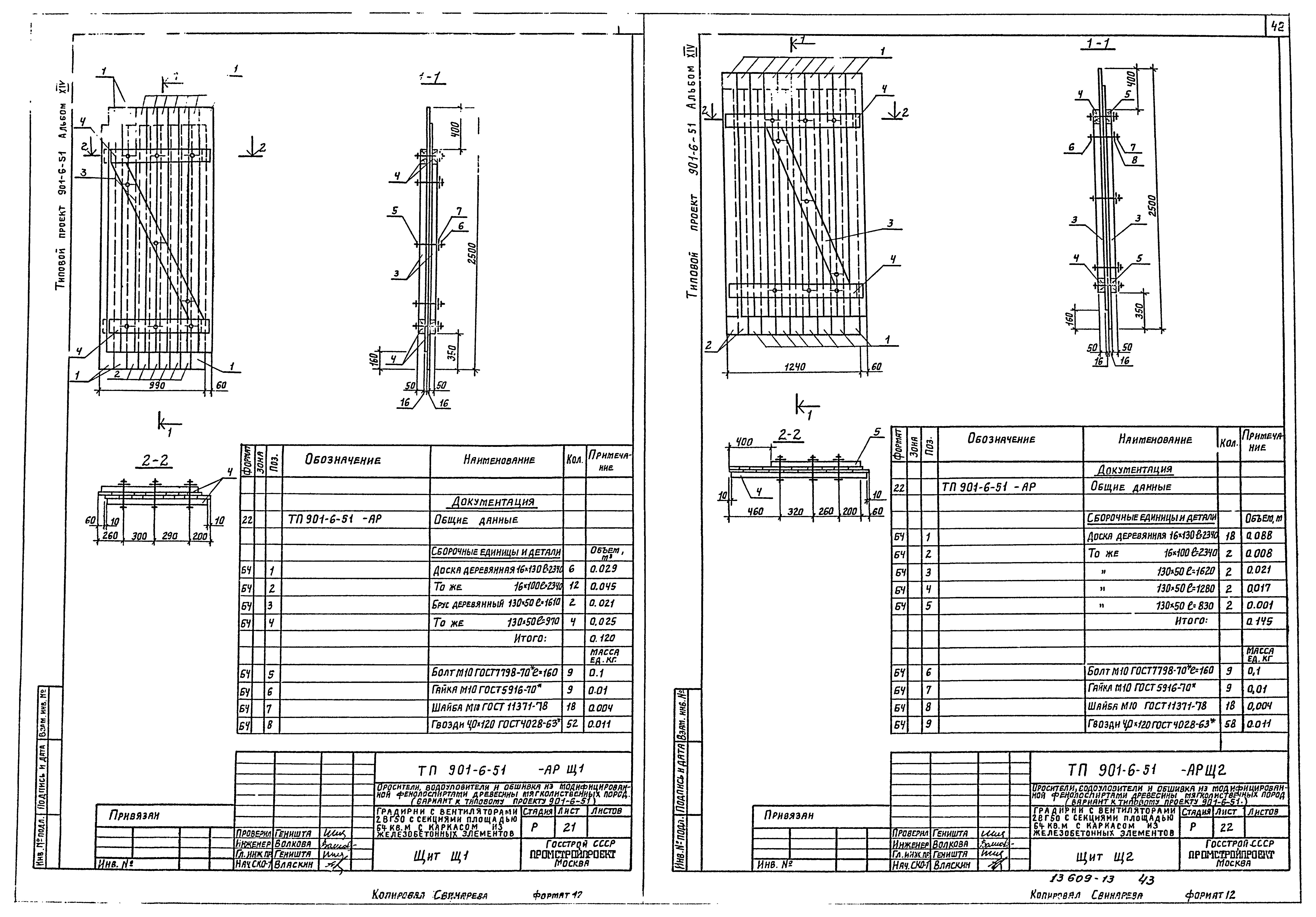
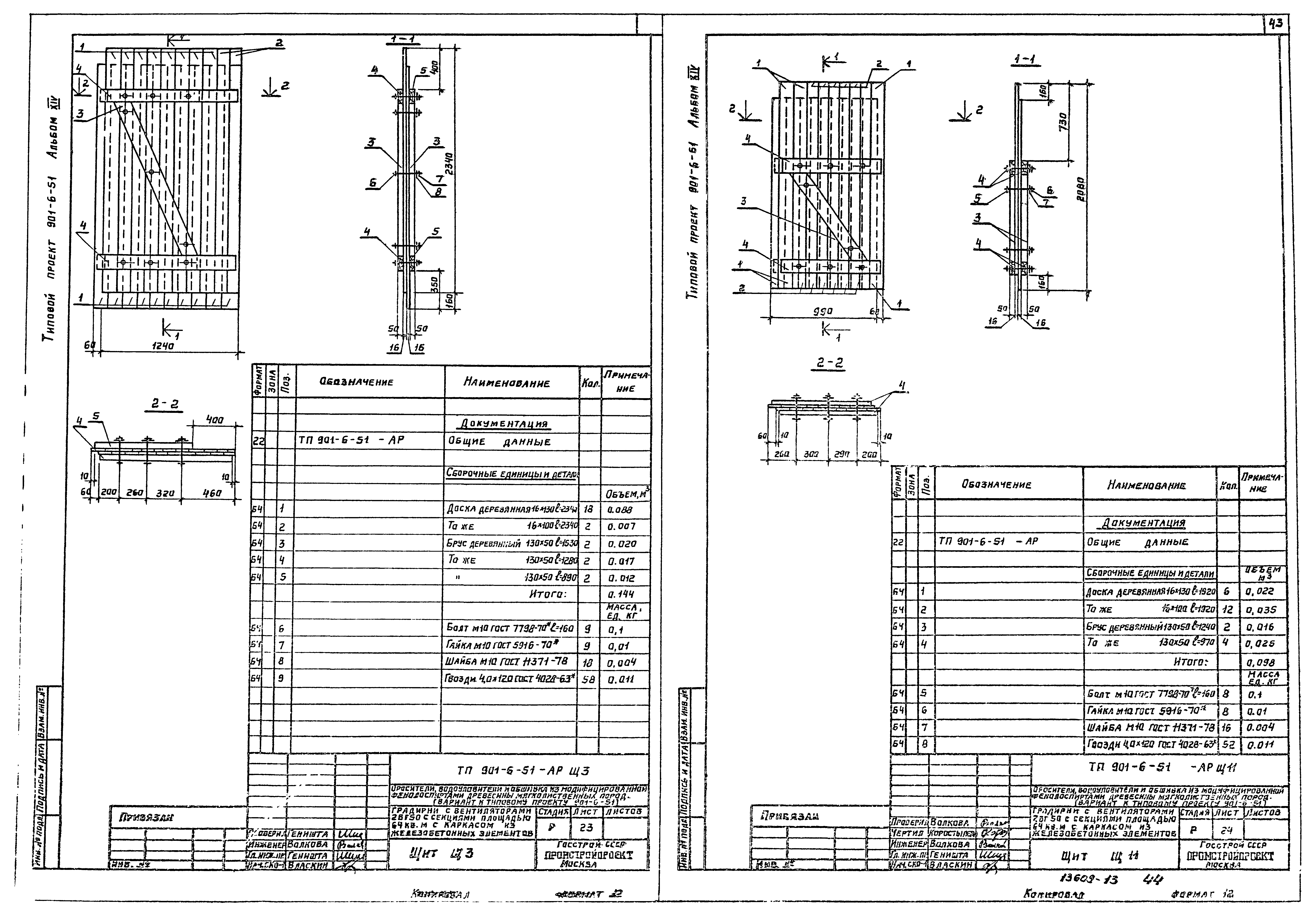
Скачать Типовой проект 901-6-51 Альбом XIV. Оросители, водоуловители и обшивка из модифицированной фенолоспиртами древесины мягколиственных породДата актуализации: 01.01.2021
|
| Обозначение: | Типовой проект 901-6-51 |
| Обозначение англ: | 901-6-51 |
| Статус: | отменен |
| Название рус.: | Альбом XIV. Оросители, водоуловители и обшивка из модифицированной фенолоспиртами древесины мягколиственных пород |
| Дата добавления в базу: | 12.02.2016 |
| Дата актуализации: | 01.01.2021 |
| Дата введения: | 04.03.1980 |
| Дата окончания срока действия: | 01.07.1996 |
| Разработан: | Союзводоканалпроект Промстройпроект Белорусское отделение ЦНИИПроектстальконструкция им. Мельникова |
| Утверждён: | 30.11.1979 Союзводоканалпроект (Soyuzvodokanalproject 72) |
| Заменяет собой: |
|


































































