Скачать Типовой проект 902-2-422.86 Альбом II. Технологическая часть. Конструкции железобетонные и металлические. Электрооборудование и автоматика. Спецификации оборудования

Дата актуализации: 01.01.2021

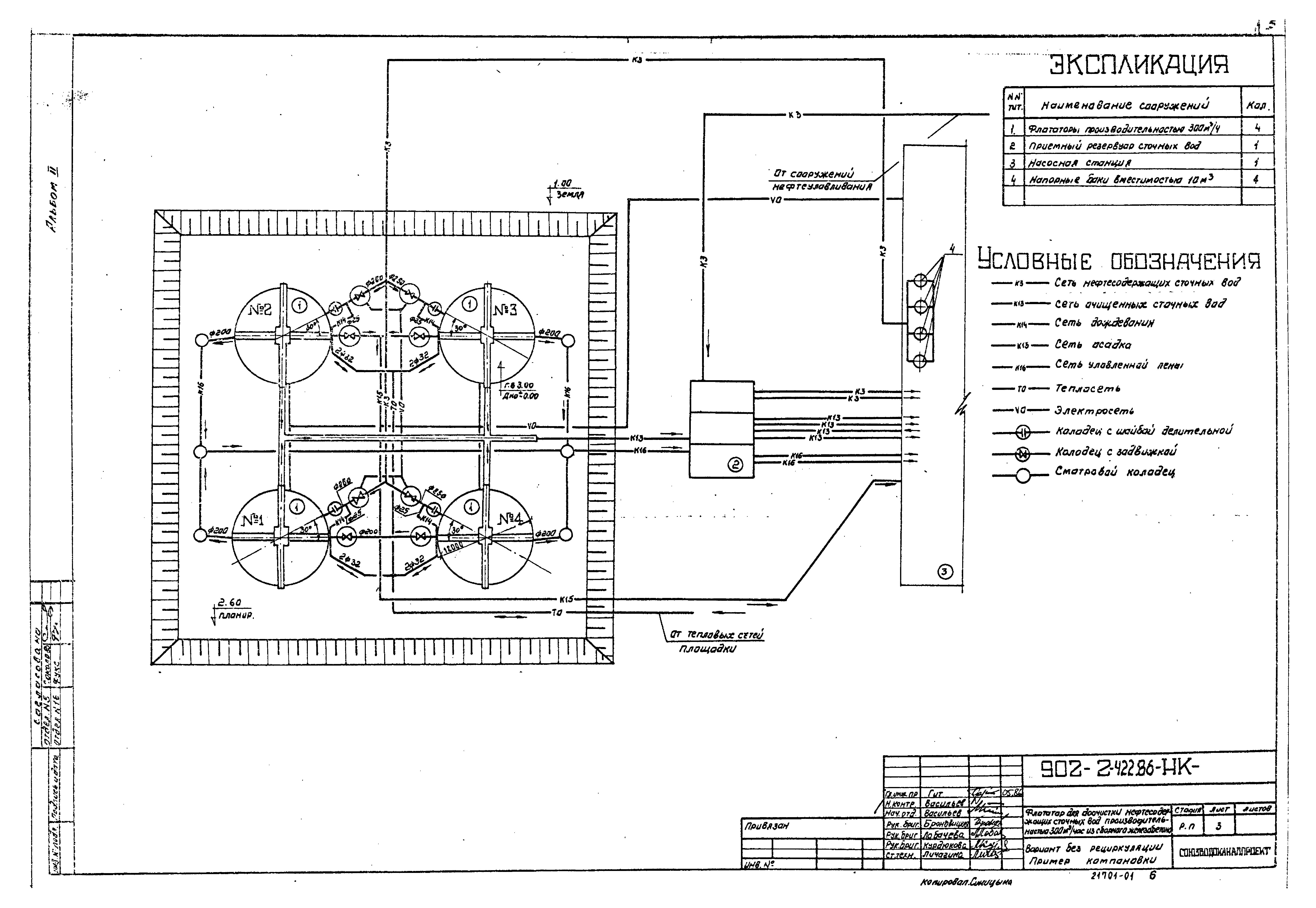
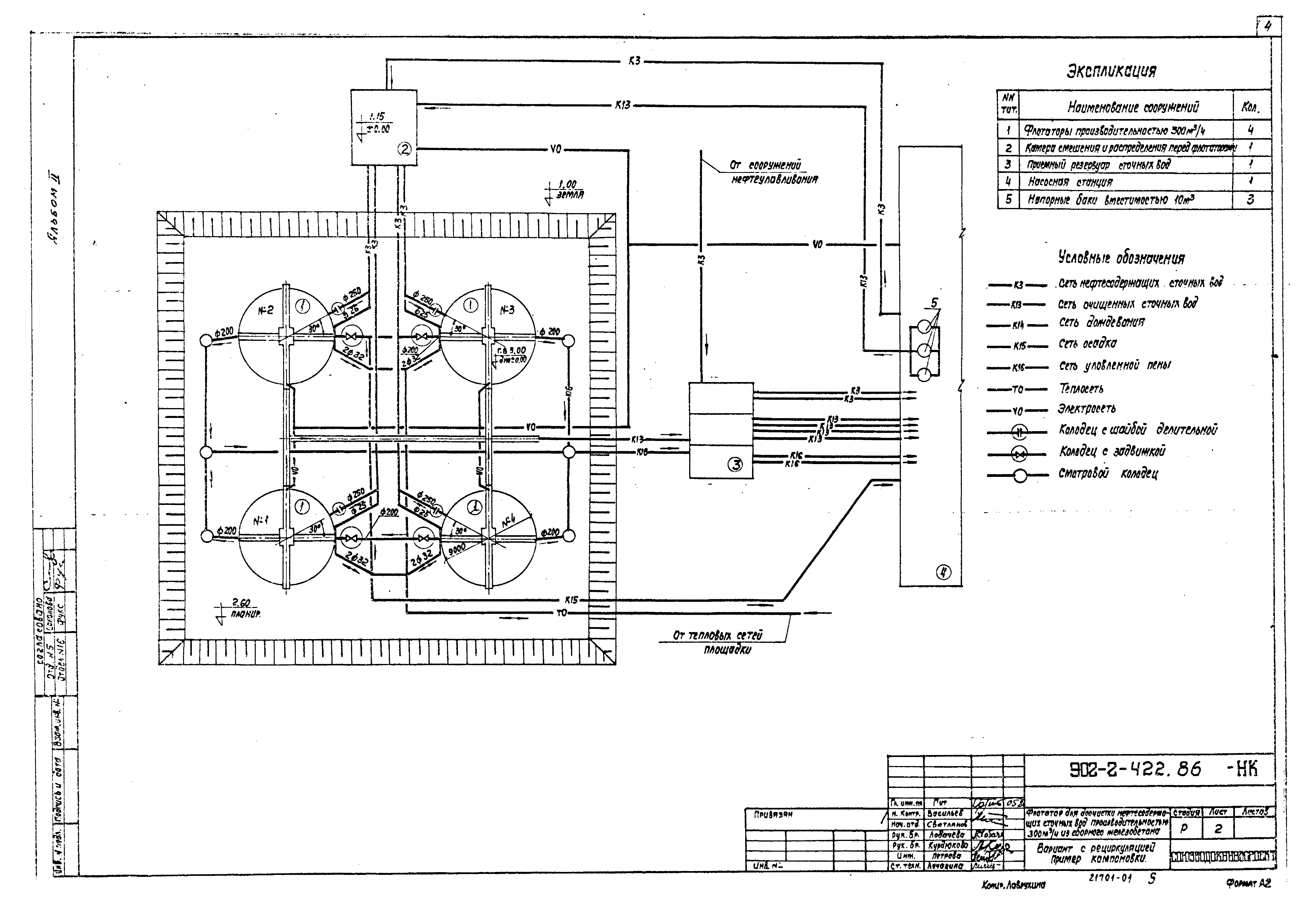
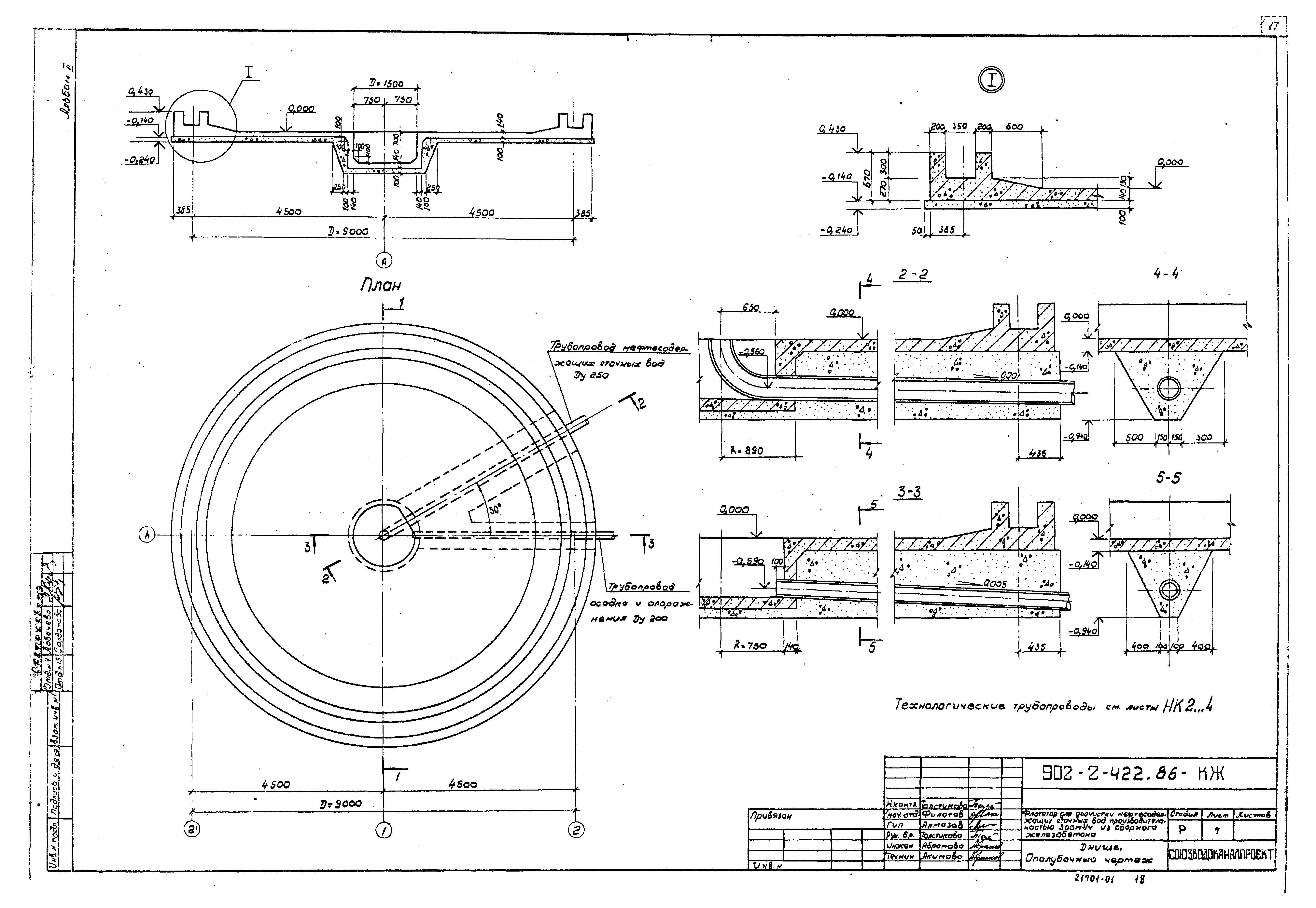
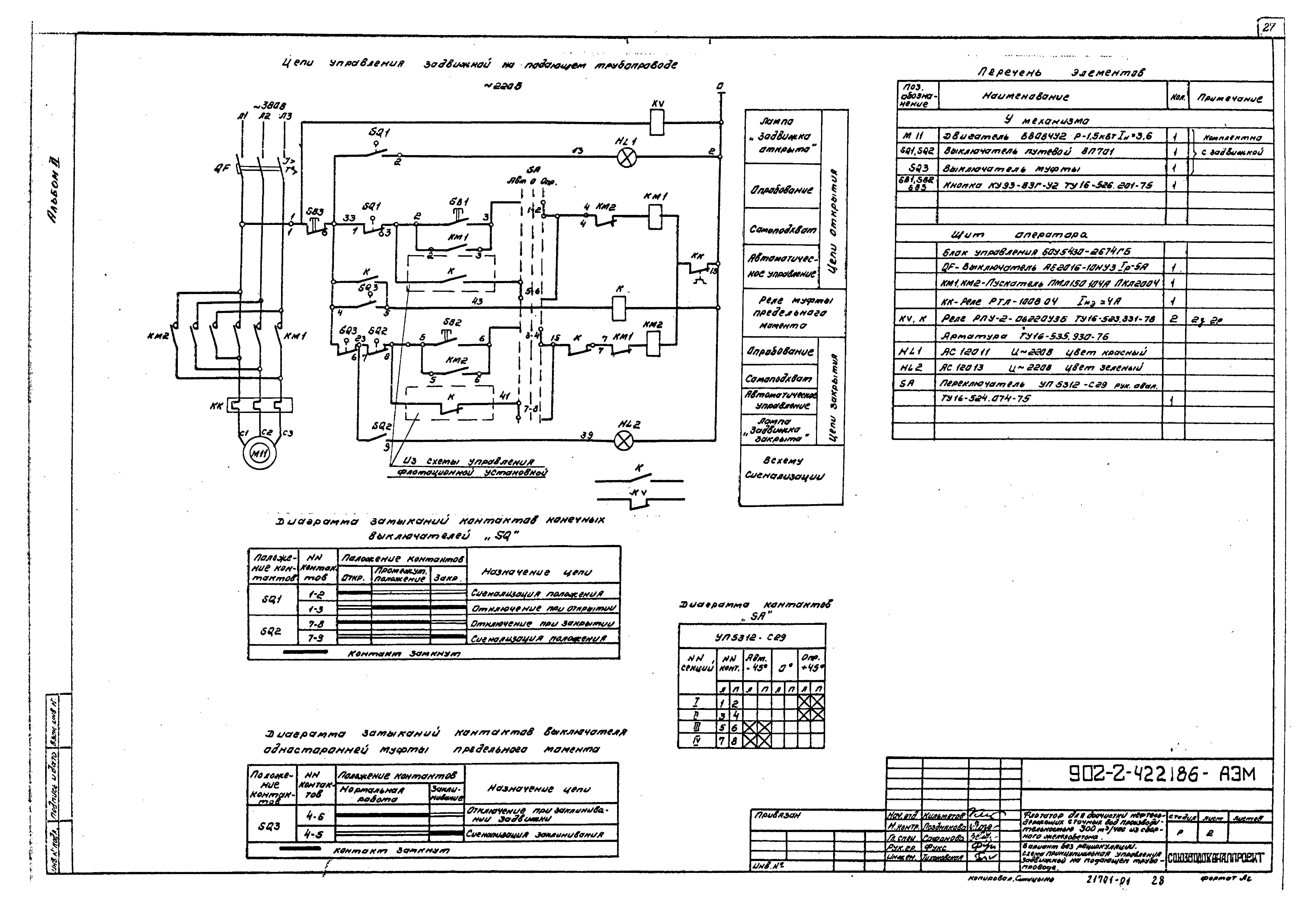
Типовой проект 902-2-422.86

Альбом II. Технологическая часть. Конструкции железобетонные и металлические. Электрооборудование и автоматика. Спецификации оборудования

Обозначение: Типовой проект 902-2-422.86
Обозначение англ: 902-2-422.86
Статус:не определен законодательством
Название рус.:Альбом II. Технологическая часть. Конструкции железобетонные и металлические. Электрооборудование и автоматика. Спецификации оборудования
Дата добавления в базу:01.09.2013
Дата актуализации:01.01.2021
Дата введения:18.07.1986
Дата окончания срока действия:30.06.2003
Разработан: Союзводоканалниипроект
Утверждён:18.07.1986 Госстрой СССР (Государственный комитет Совета Министров СССР по делам строительства) (USSR Gosstroy АЧ-43)
Типовой проект 902-2-422.86Типовой проект 902-2-422.86Типовой проект 902-2-422.86Типовой проект 902-2-422.86Типовой проект 902-2-422.86Типовой проект 902-2-422.86Типовой проект 902-2-422.86Типовой проект 902-2-422.86Типовой проект 902-2-422.86Типовой проект 902-2-422.86Типовой проект 902-2-422.86Типовой проект 902-2-422.86Типовой проект 902-2-422.86Типовой проект 902-2-422.86Типовой проект 902-2-422.86Типовой проект 902-2-422.86Типовой проект 902-2-422.86Типовой проект 902-2-422.86Типовой проект 902-2-422.86Типовой проект 902-2-422.86Типовой проект 902-2-422.86Типовой проект 902-2-422.86Типовой проект 902-2-422.86Типовой проект 902-2-422.86Типовой проект 902-2-422.86Типовой проект 902-2-422.86Типовой проект 902-2-422.86Типовой проект 902-2-422.86Типовой проект 902-2-422.86Типовой проект 902-2-422.86Типовой проект 902-2-422.86Типовой проект 902-2-422.86Типовой проект 902-2-422.86