Скачать Типовой проект 903-1-212.84 Альбом VI. Контроль и регулированиеДата актуализации: 01.01.2021
|
| Обозначение: | Типовой проект 903-1-212.84 |
| Обозначение англ: | 903-1-212.84 |
| Статус: | не определен законодательством |
| Название рус.: | Альбом VI. Контроль и регулирование |
| Дата добавления в базу: | 01.10.2014 |
| Дата актуализации: | 01.01.2021 |
| Дата введения: | 24.05.1984 |
| Дата окончания срока действия: | 30.06.2003 |
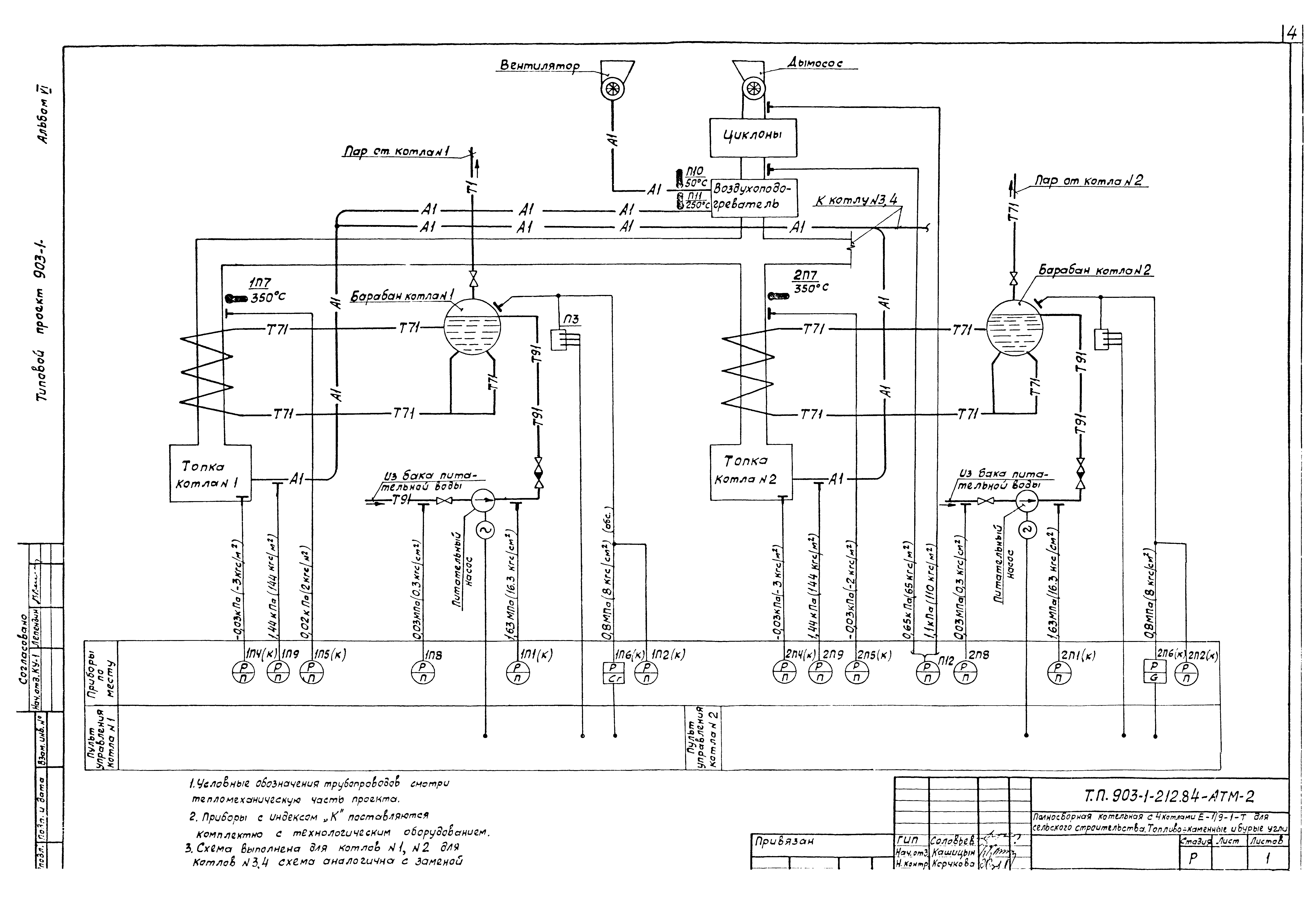
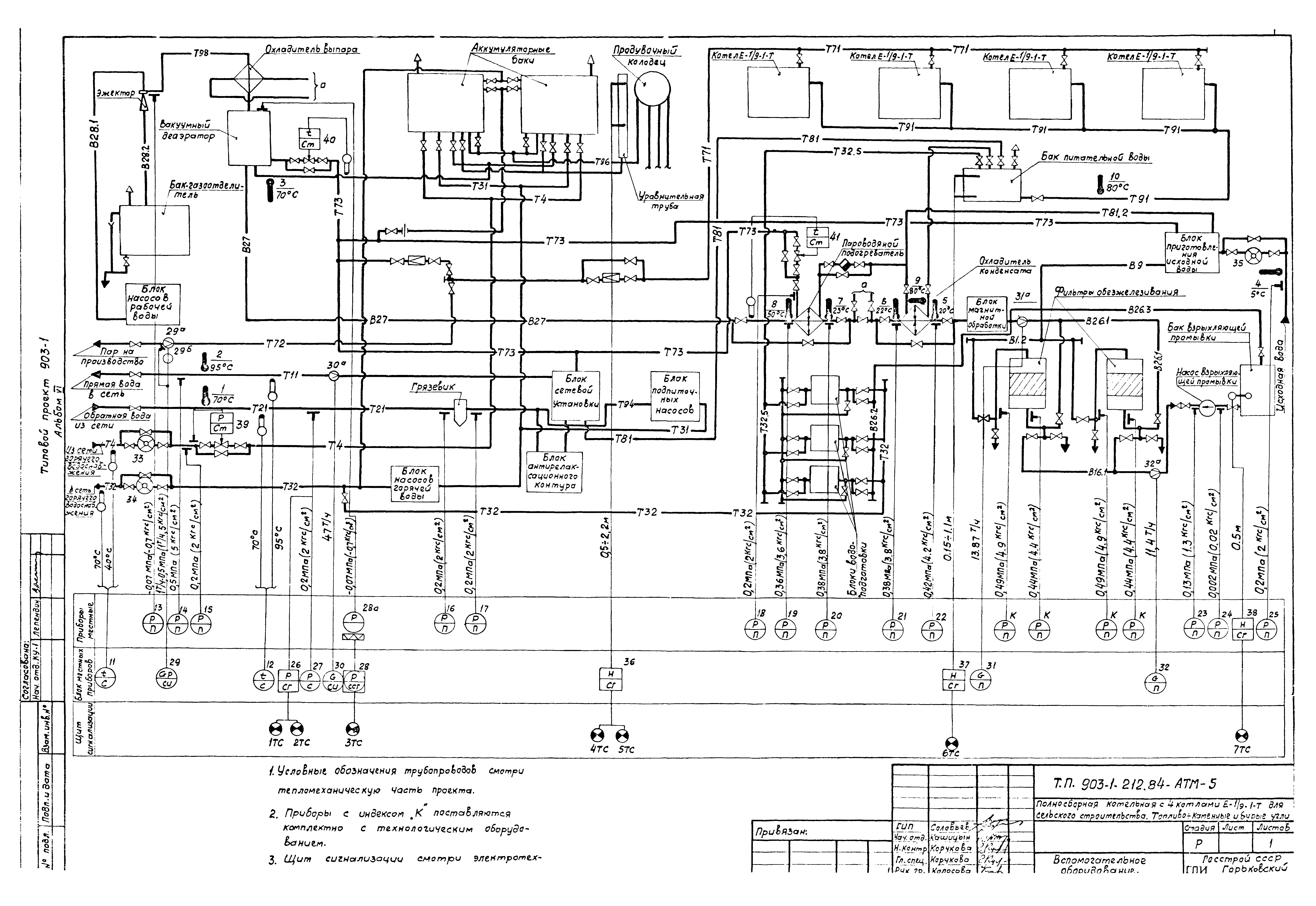
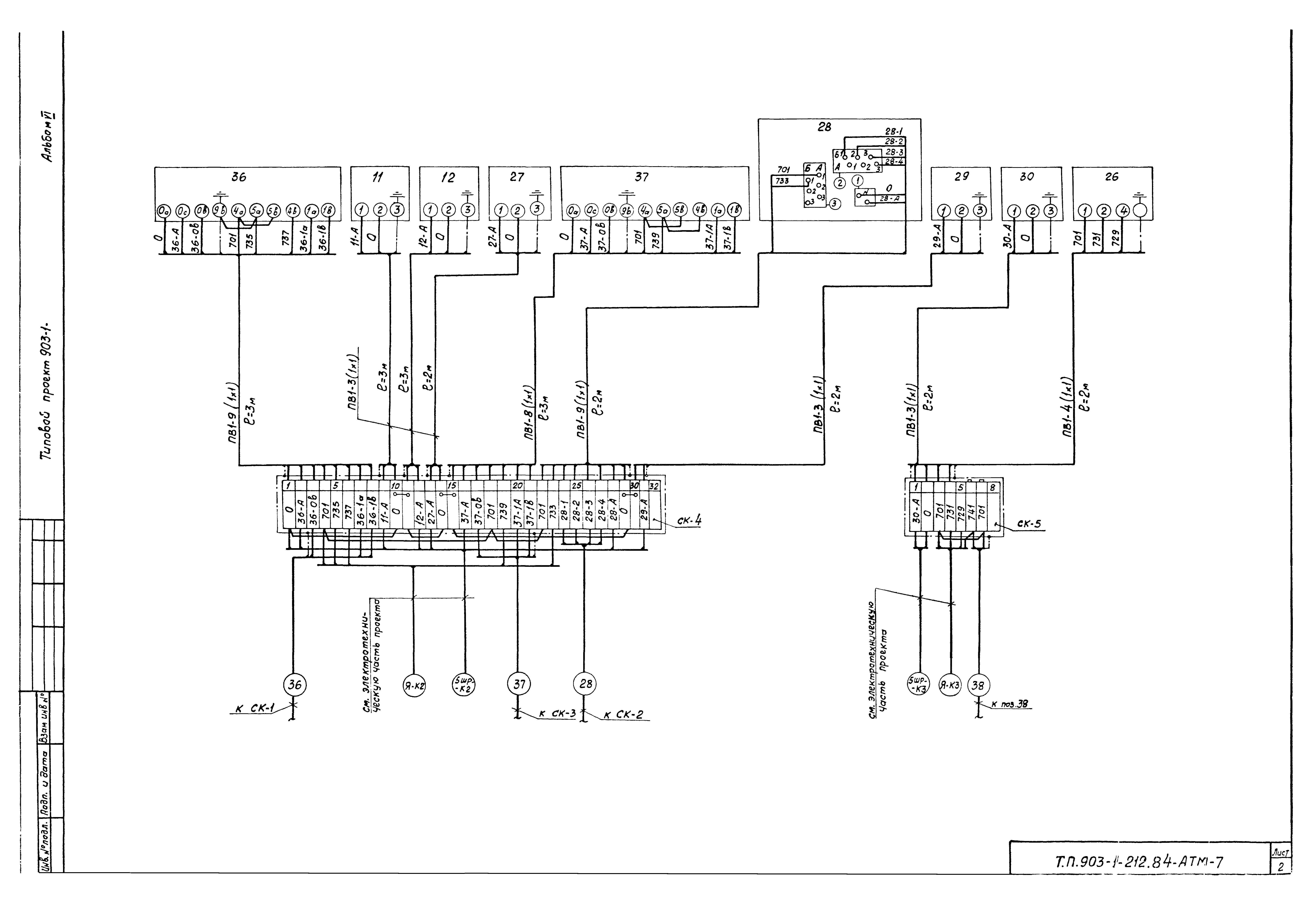
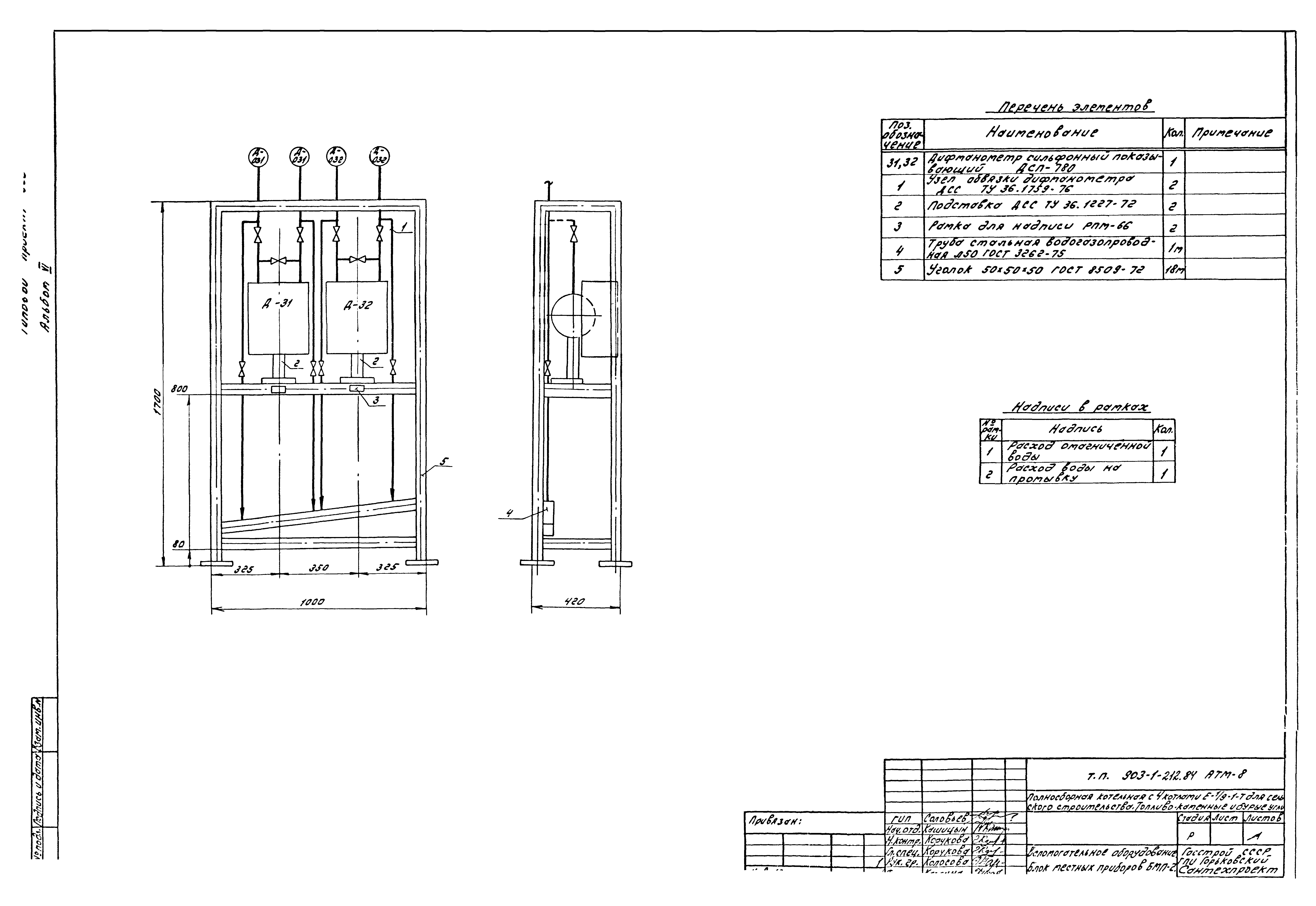
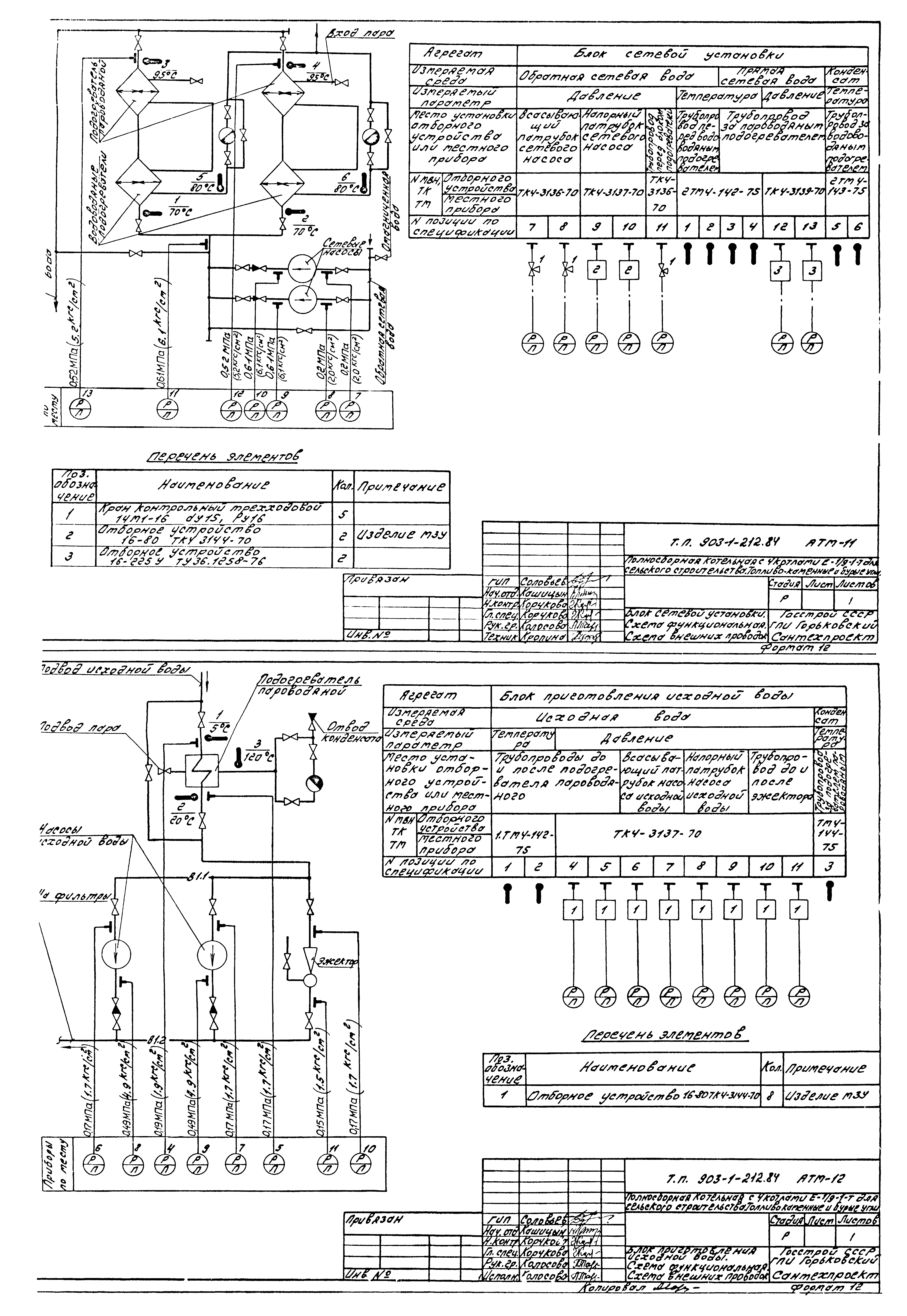
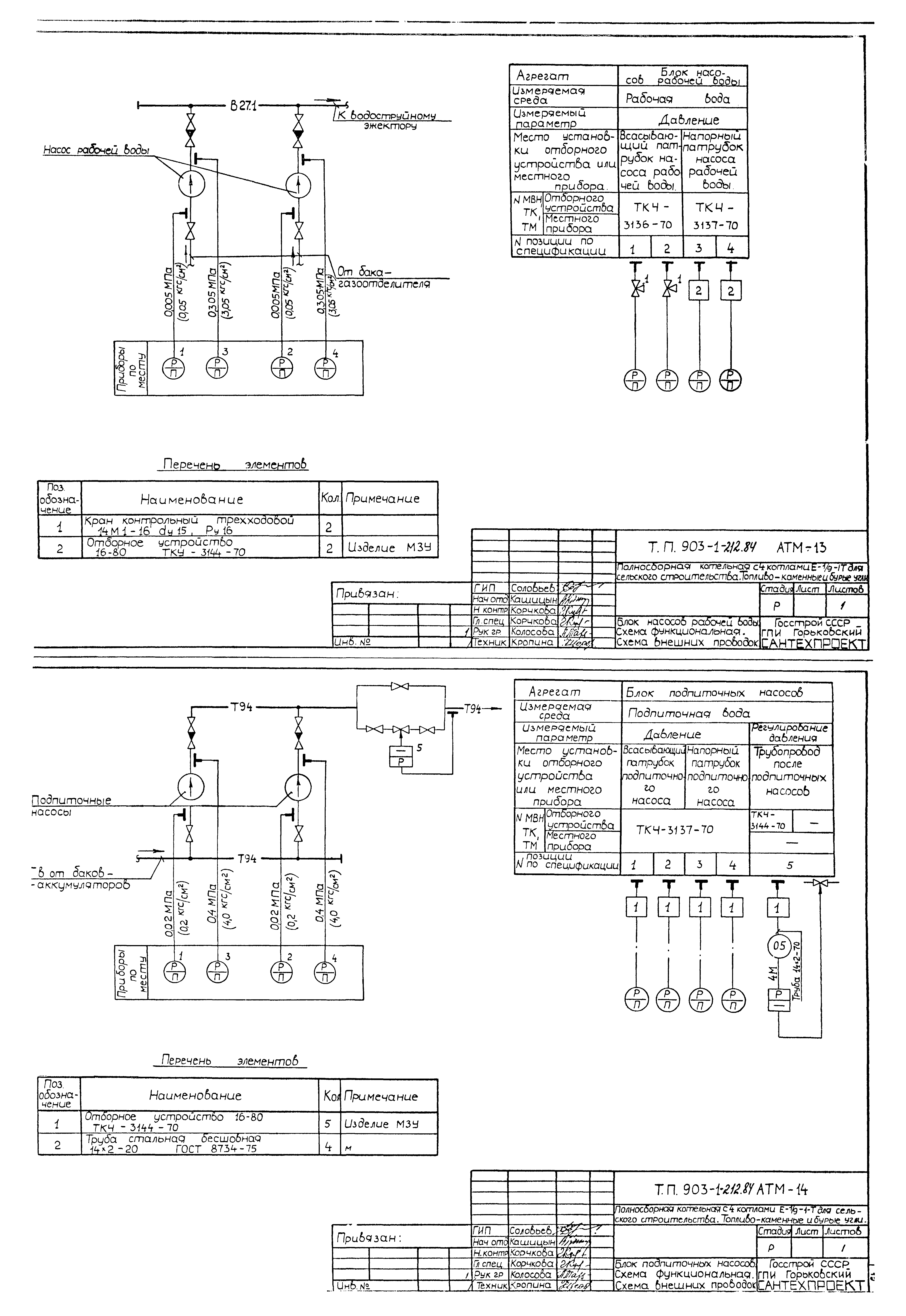
| Оглавление: | Общие данные Котлы Е-1/9-1-Т № 1, 2 (3, 4). Схема функциональная Котлы Е-1/9-1-Т № 1 (2, 3, 4). Пульт управления Котлы Е-1/9-1-Т № 1, 2 (3, 4). Схема внешних проводок Вспомогательное оборудование. Схема функциональная Вспомогательное оборудование. Схема внешних проводок Вспомогательное оборудование. Блок местных приборов БМП-1 Вспомогательное оборудование. Блок местных приборов БМП-2 Вспомогательное оборудование. Результаты расчетов регулирующих органов Узел управления. Схема функциональная. Схема внешних проводок Блок сетевой установки. Схема функциональная. Схема внешних проводок Блок приготовления исходной воды. Схема функциональная. Схема внешних проводок Блок насосов рабочей воды. Схема функциональная. Схема внешних проводок Блок подпиточных насосов. Схема функциональная. Схема внешних проводок Блок насосов горячего водоснабжения. Схема функциональная. Схема внешних проводок Блок антирелаксационного контура. Схема функциональная. Схема внешних проводок План расположения |
| Разработан: | Горьковский Сантехпроект |
| Утверждён: | 13.03.1984 МСХ СССР Главное управление лугов, кормов и пастбищ (11-ЭГ) |


















