Скачать Типовой проект 904-1-56.84 Альбом 6. Архитектурно-строительная и сантехническая части для 4 компрессоровДата актуализации: 01.01.2021
|
| Обозначение: | Типовой проект 904-1-56.84 |
| Обозначение англ: | 904-1-56.84 |
| Статус: | действует |
| Название рус.: | Альбом 6. Архитектурно-строительная и сантехническая части для 4 компрессоров |
| Дата добавления в базу: | 01.09.2013 |
| Дата актуализации: | 01.01.2021 |
| Дата введения: | 30.12.1983 |
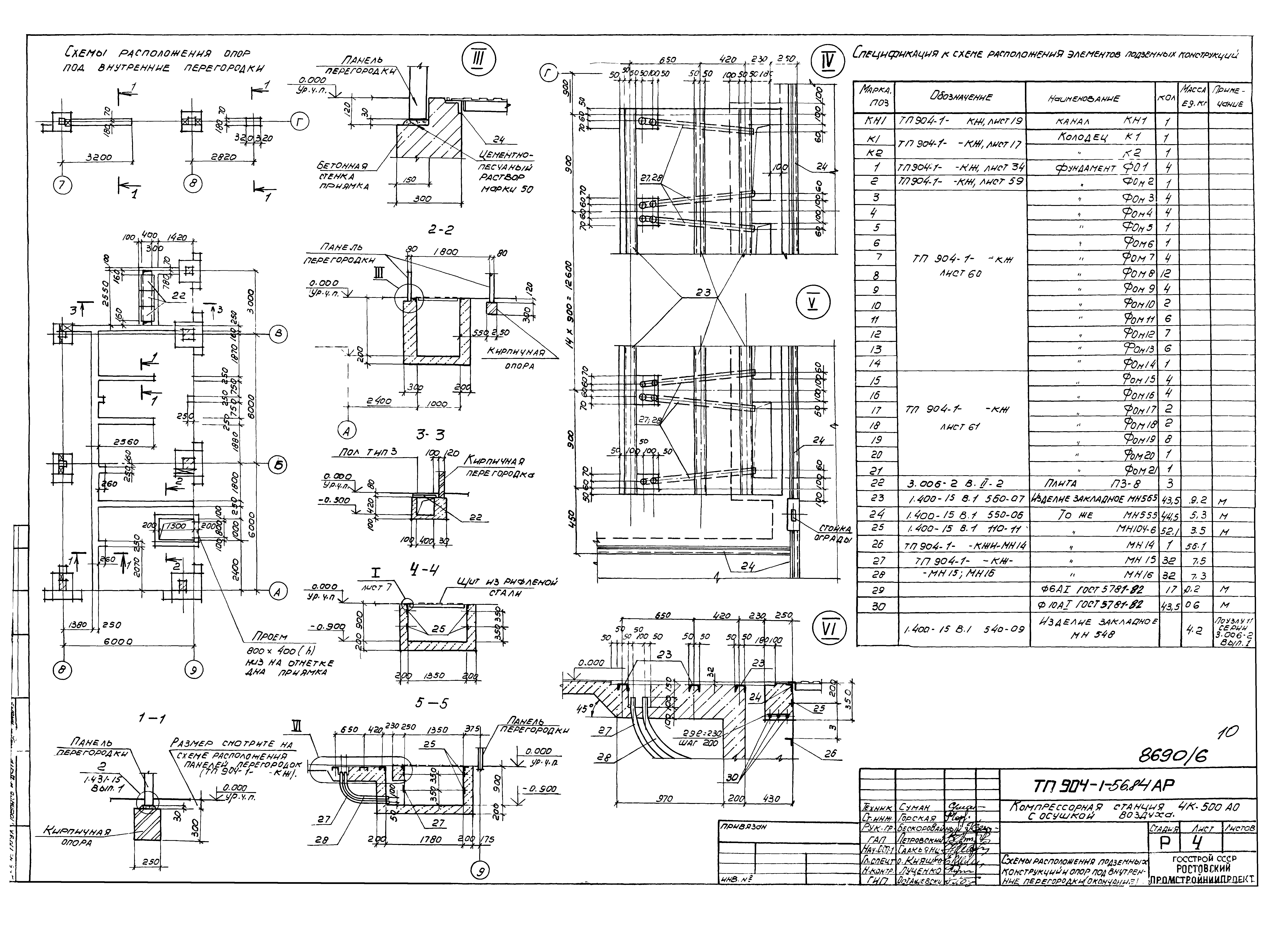
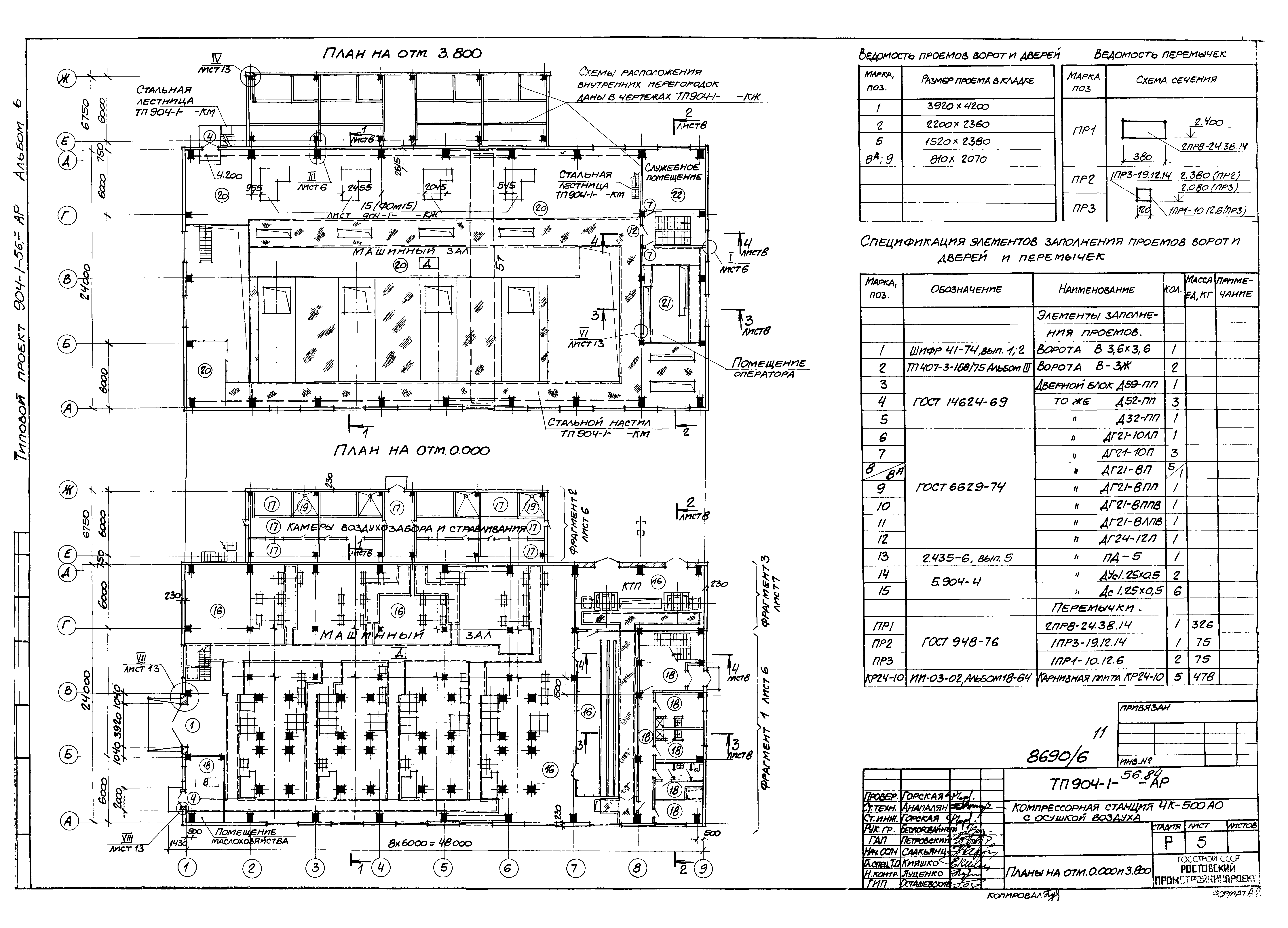
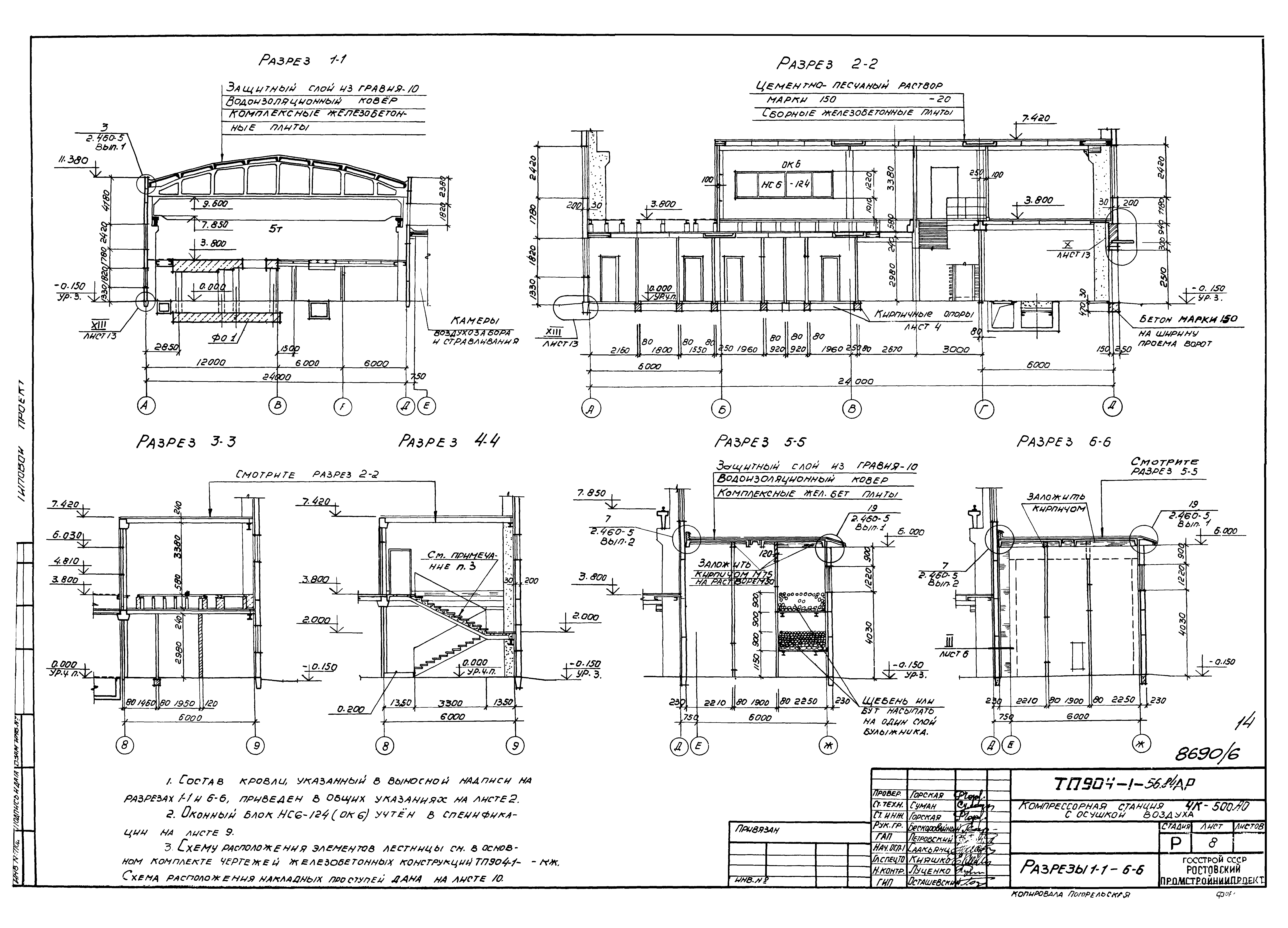
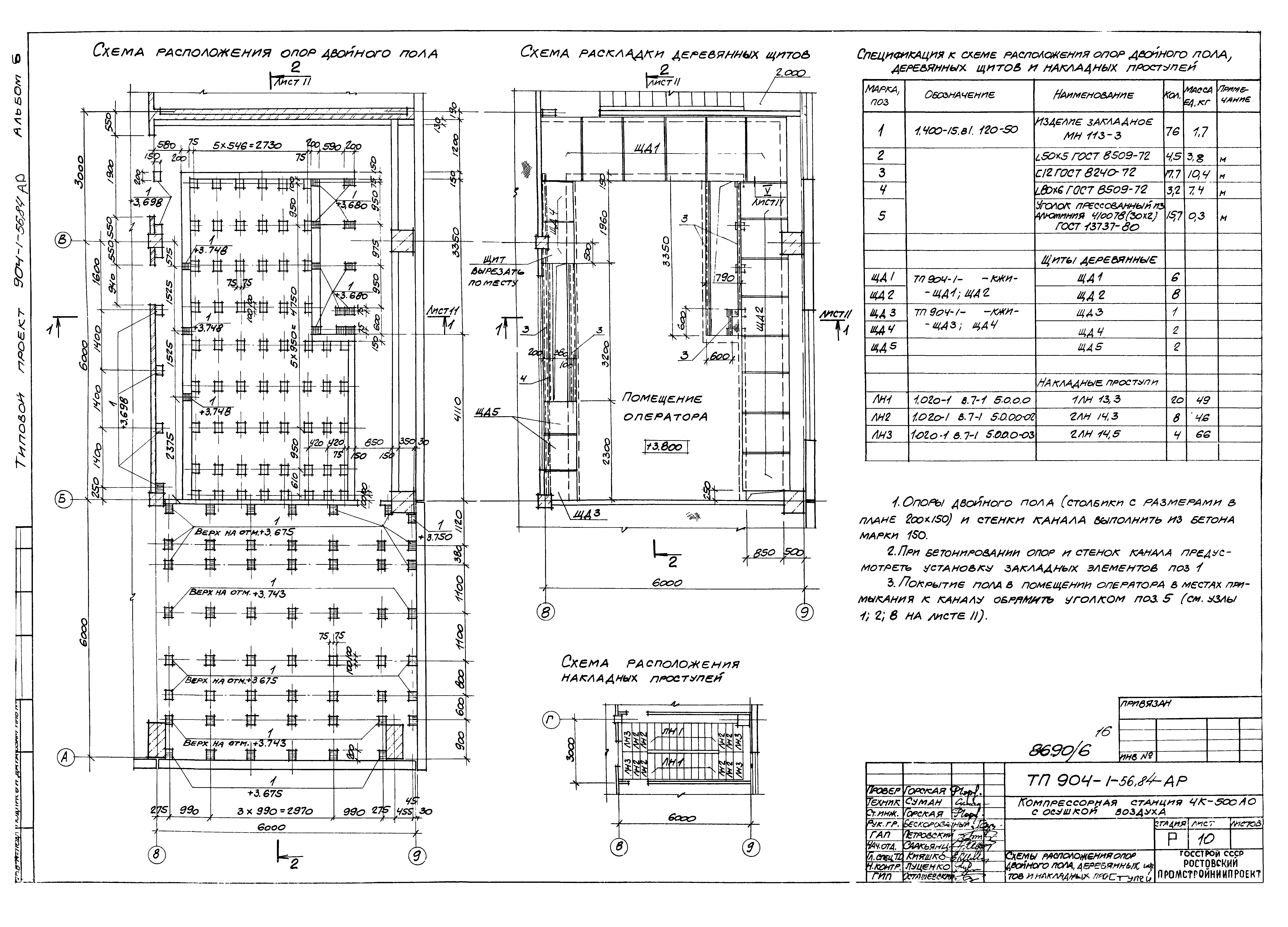
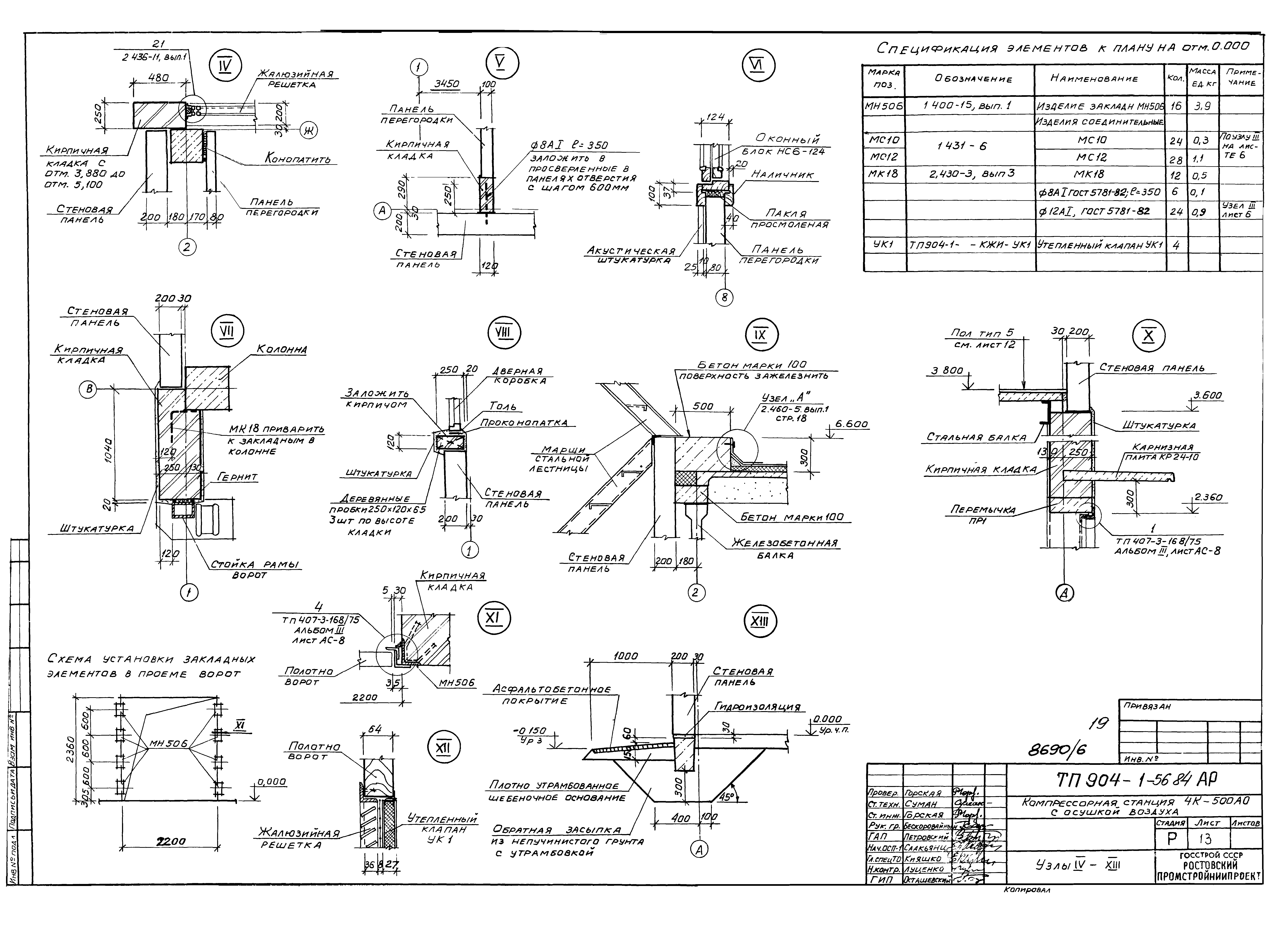
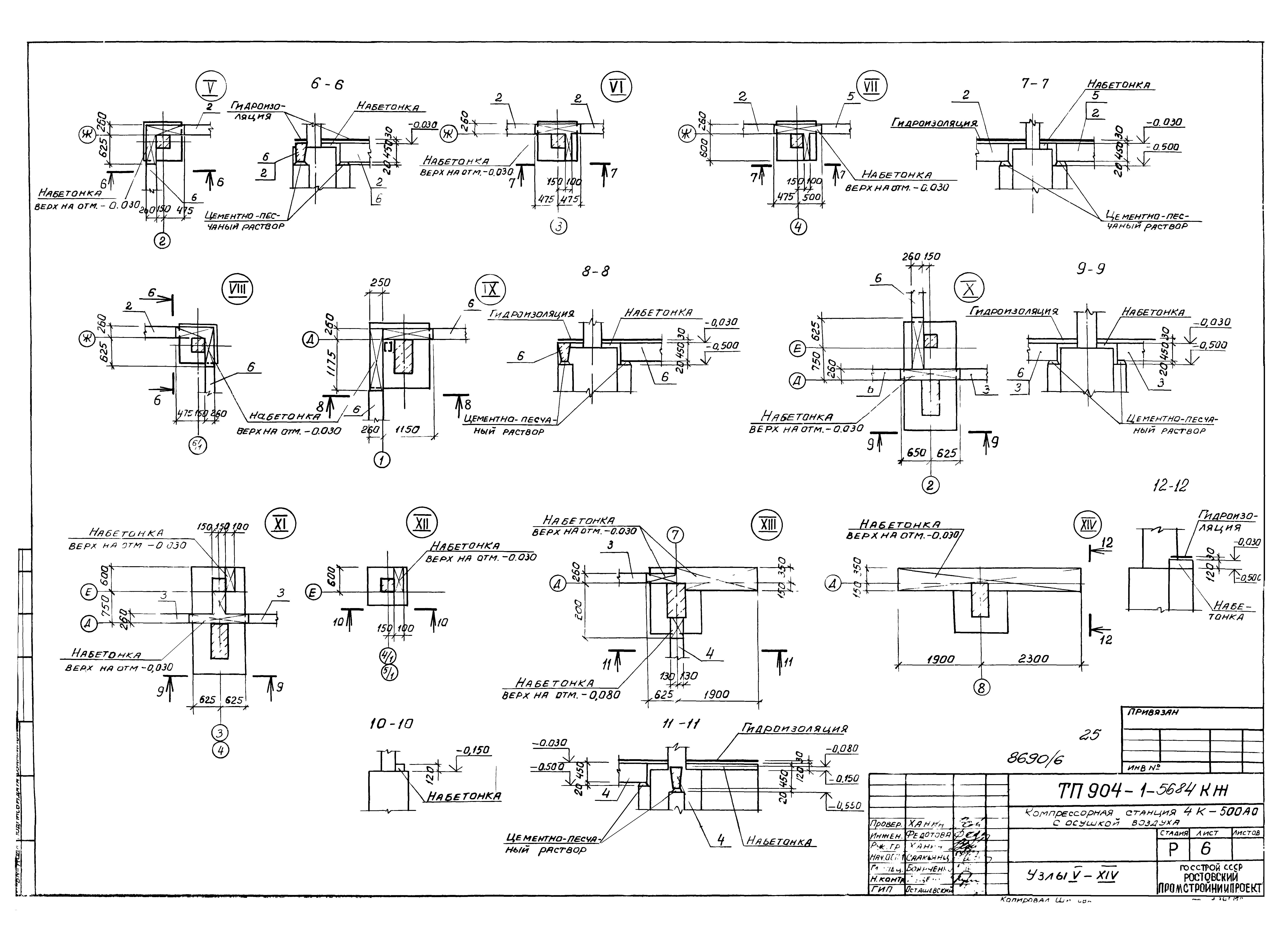
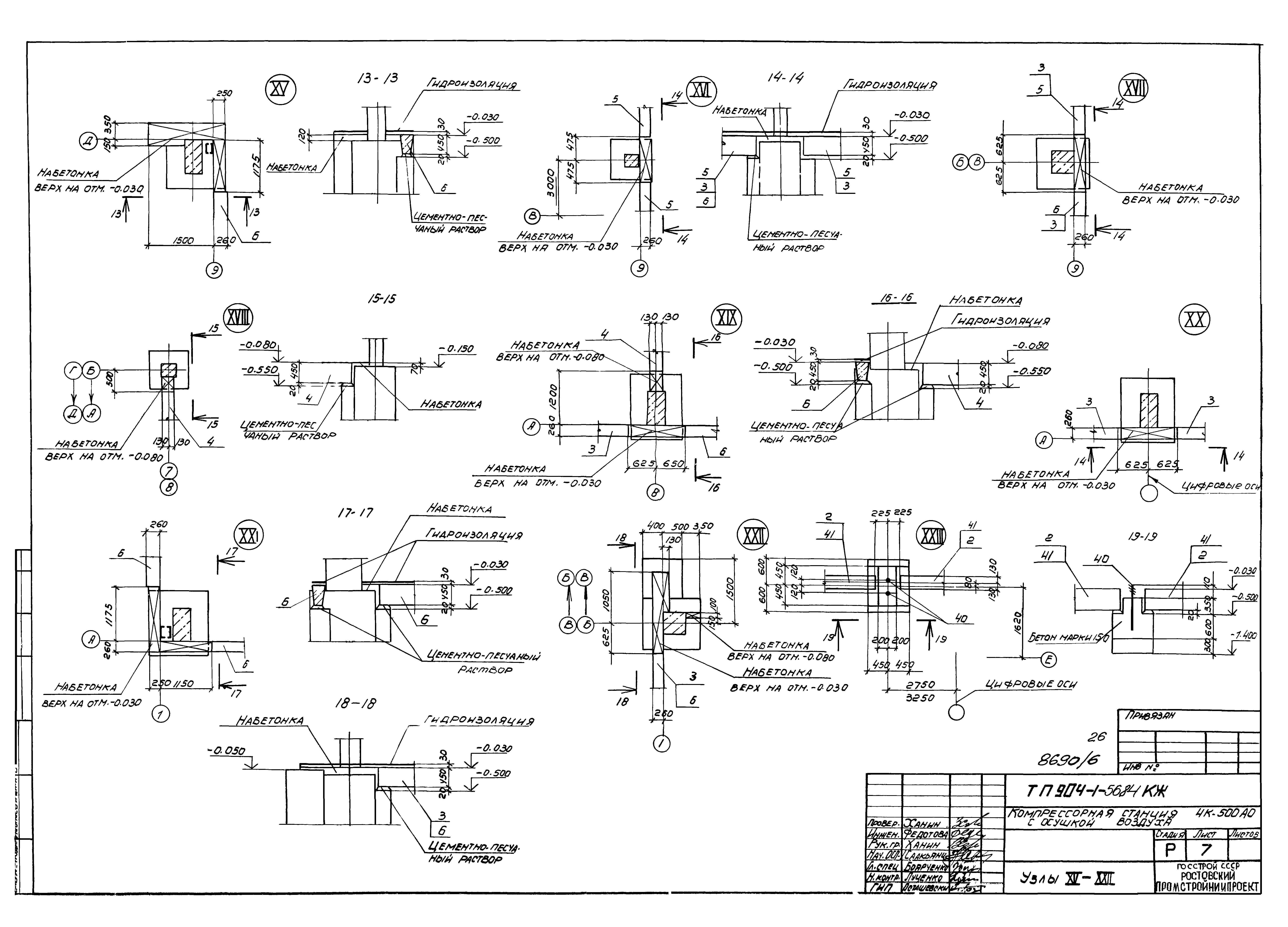
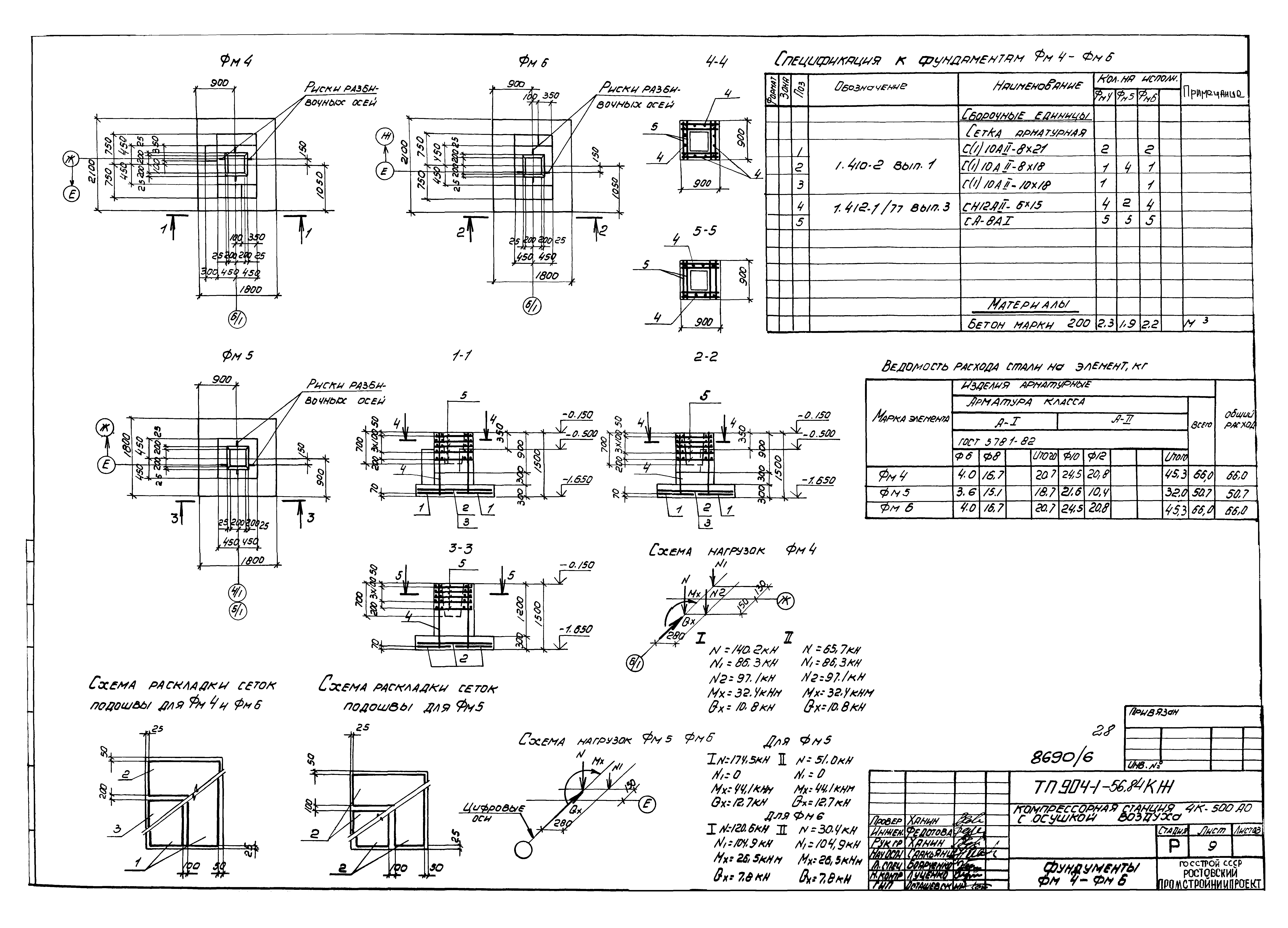
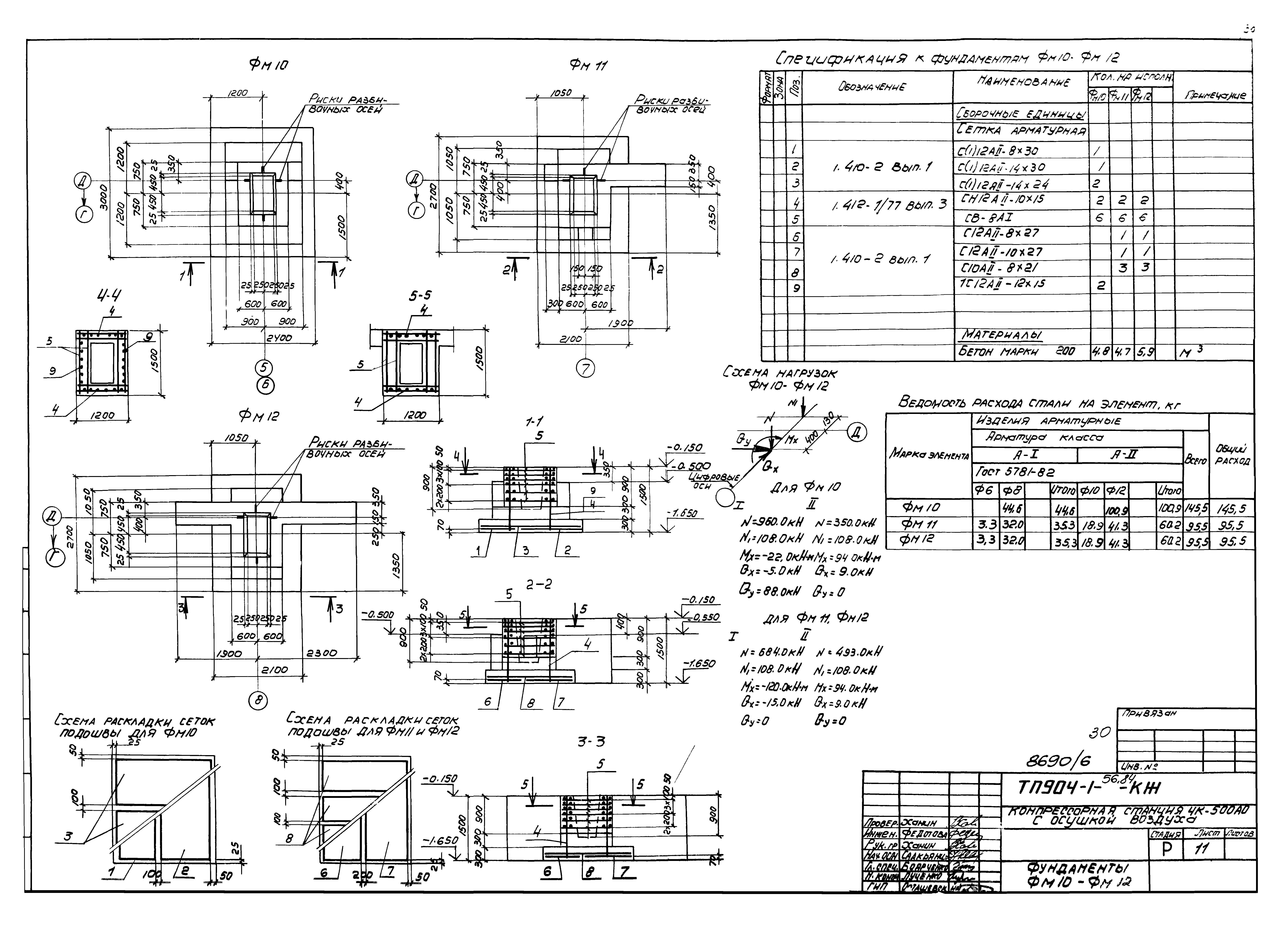
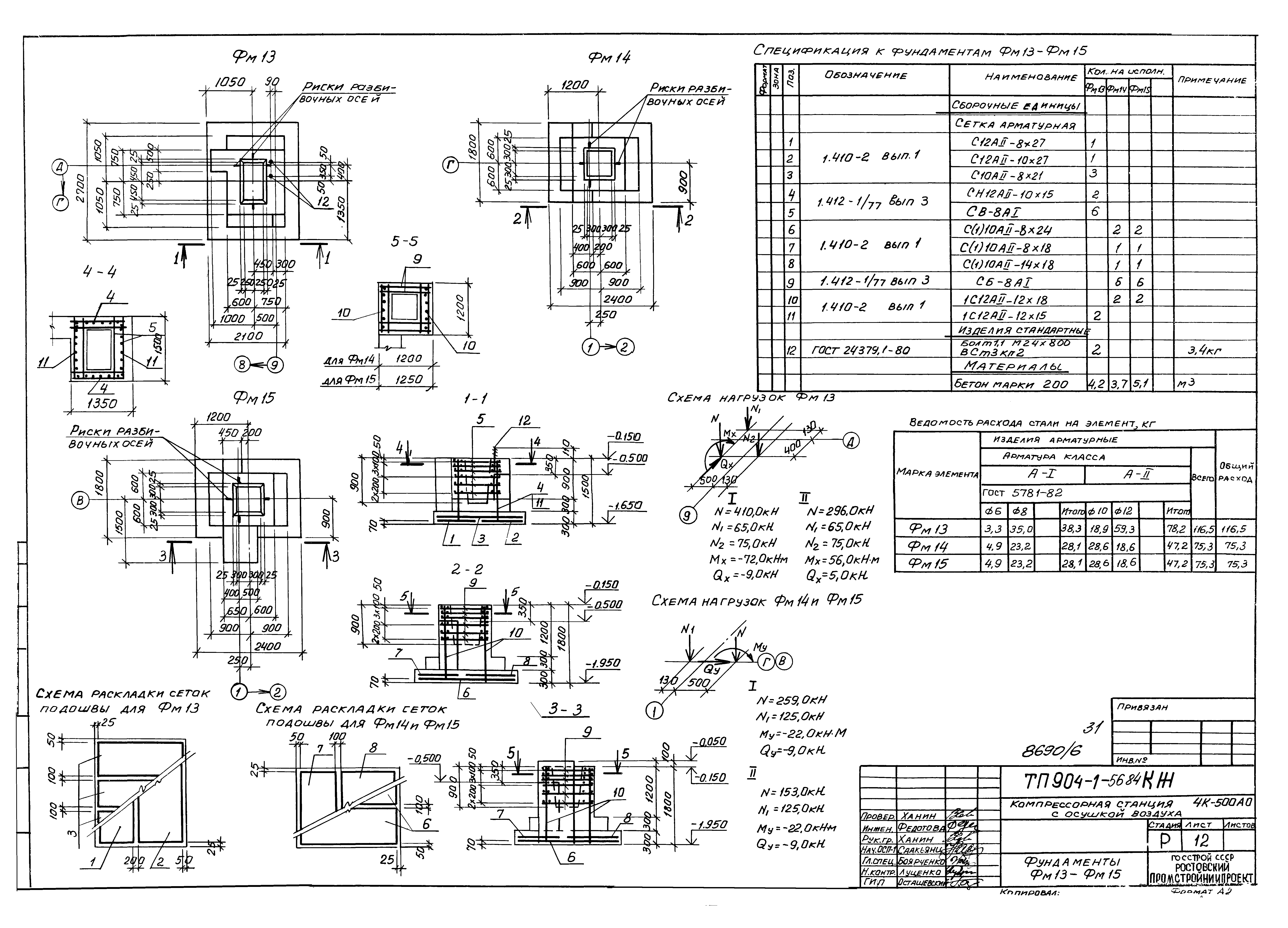
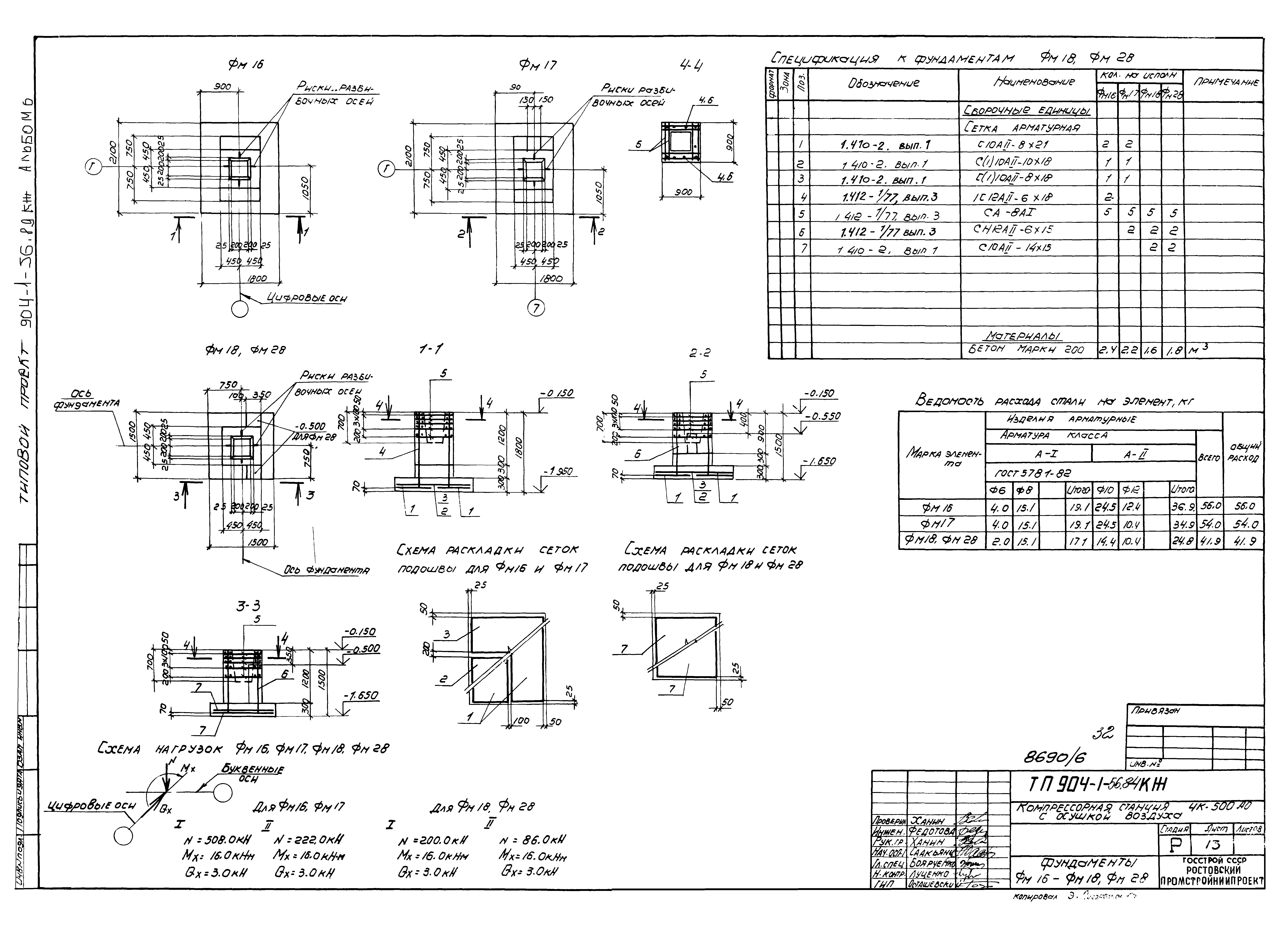
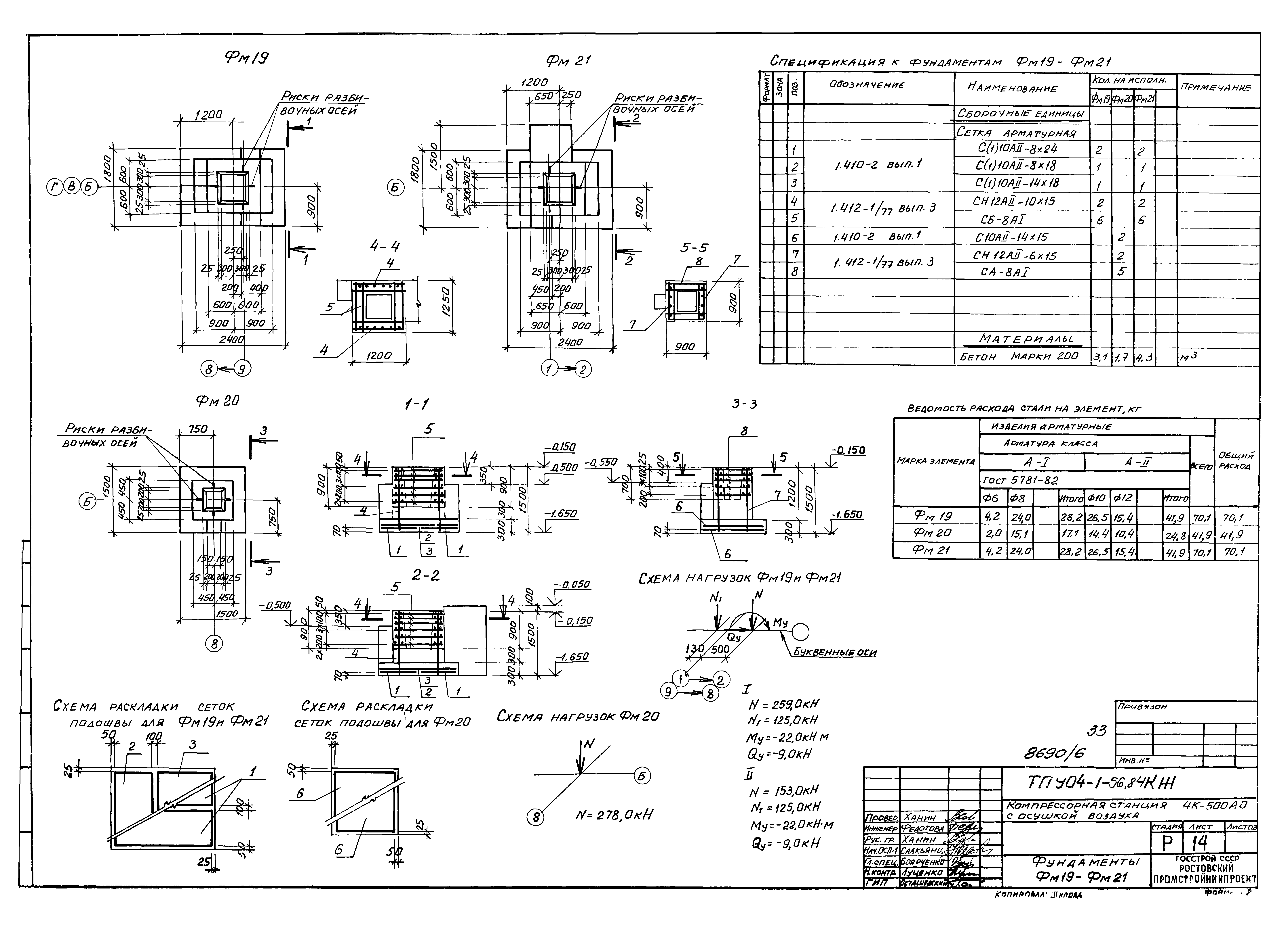
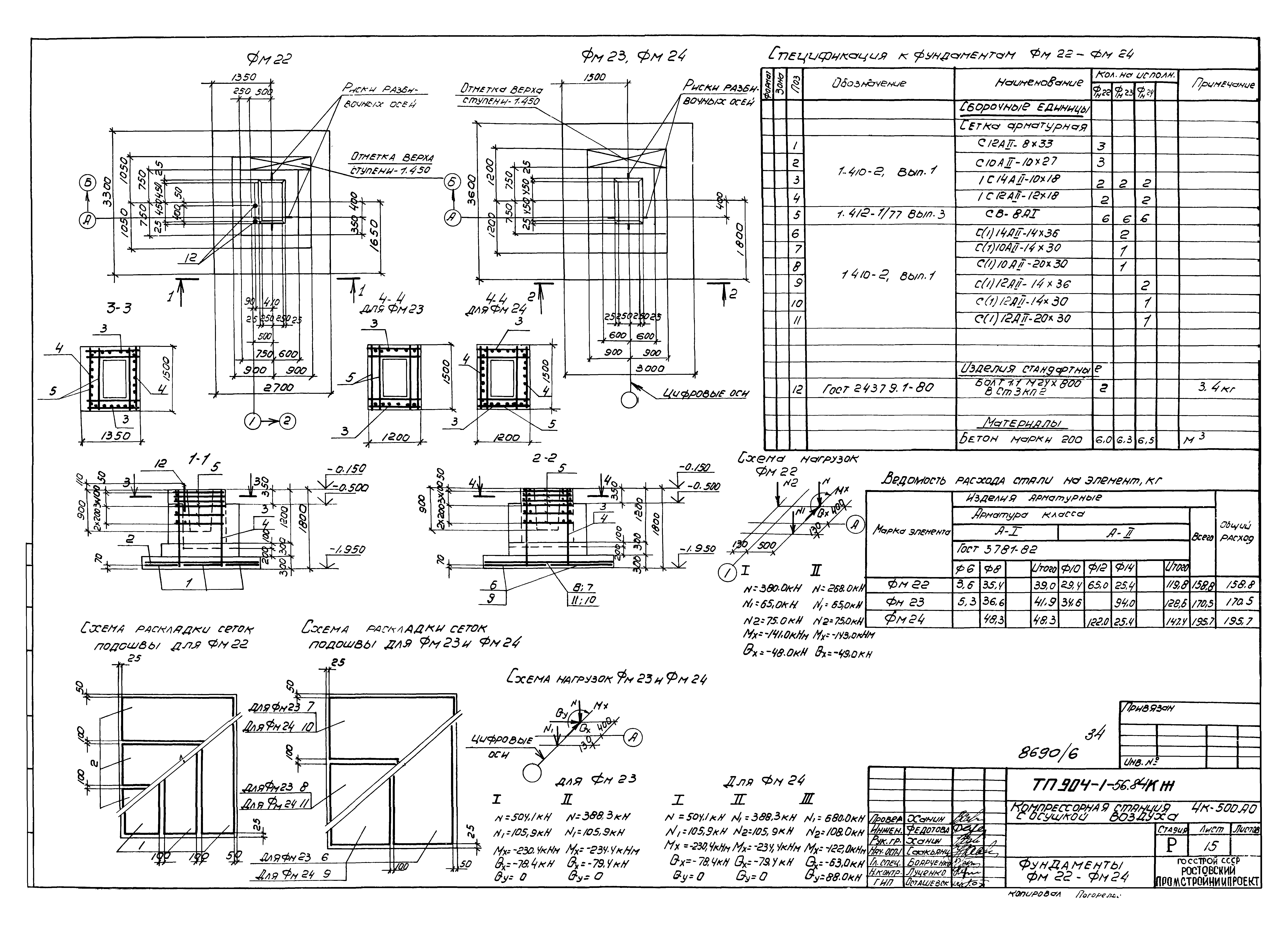
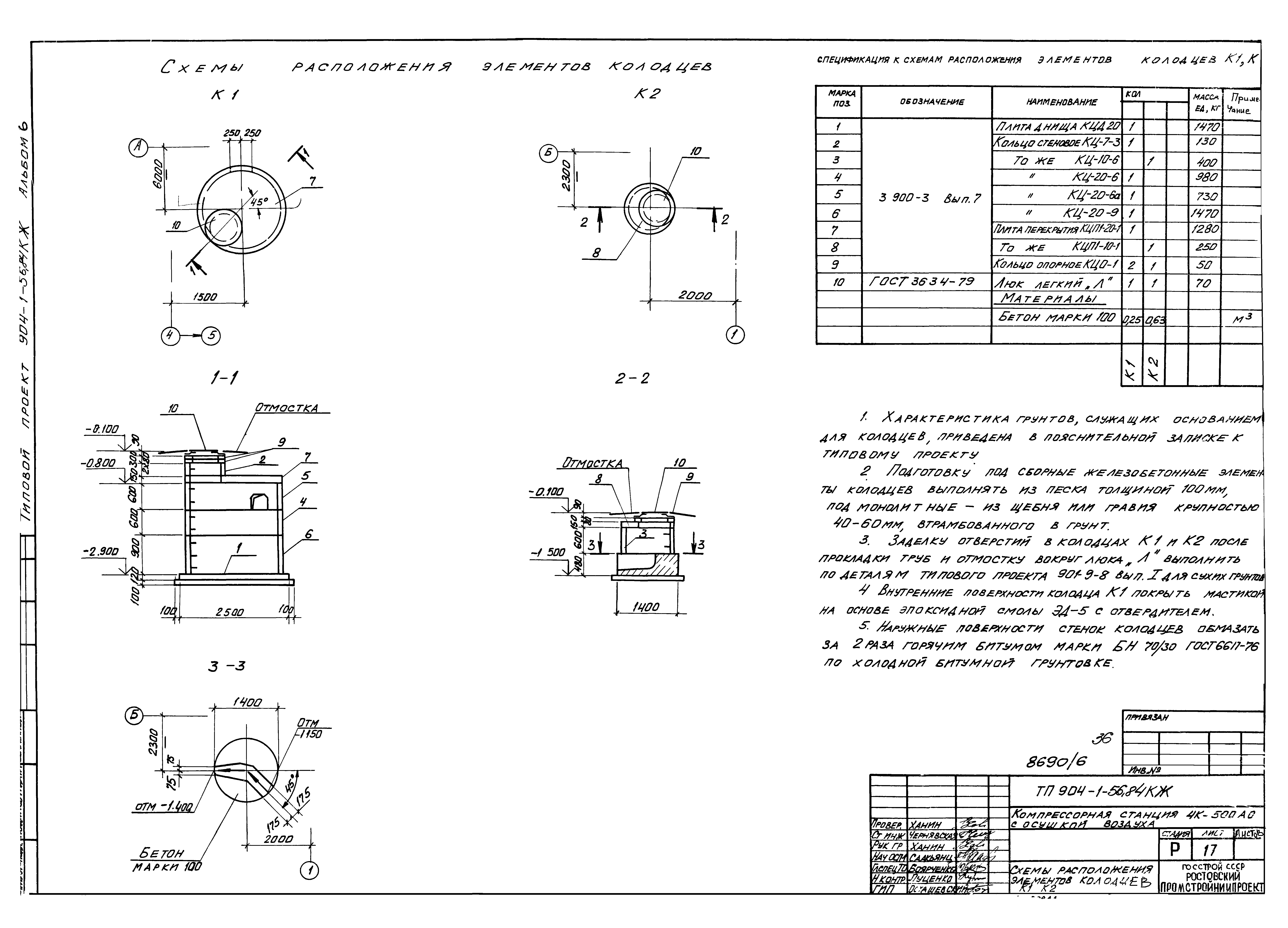
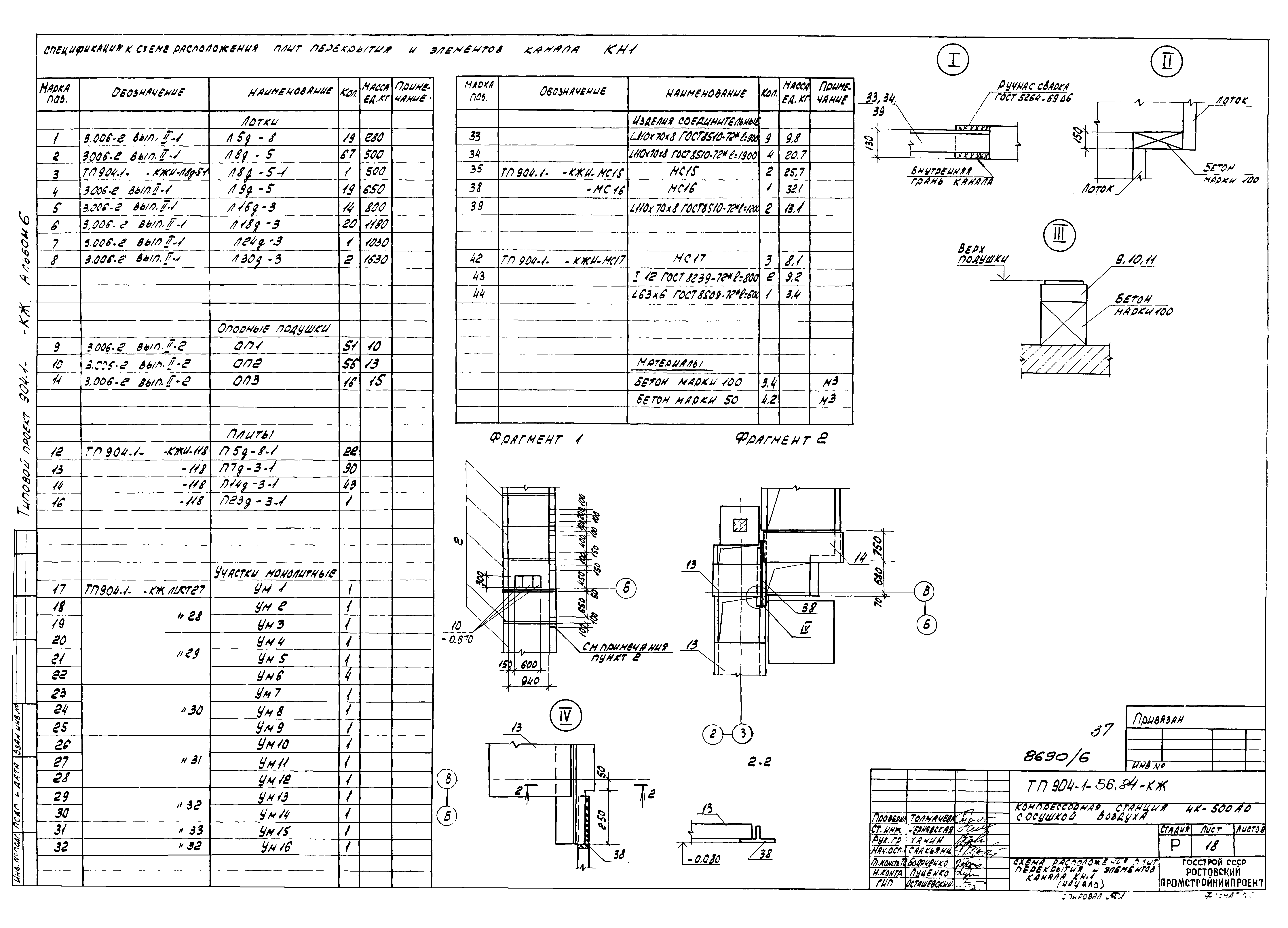
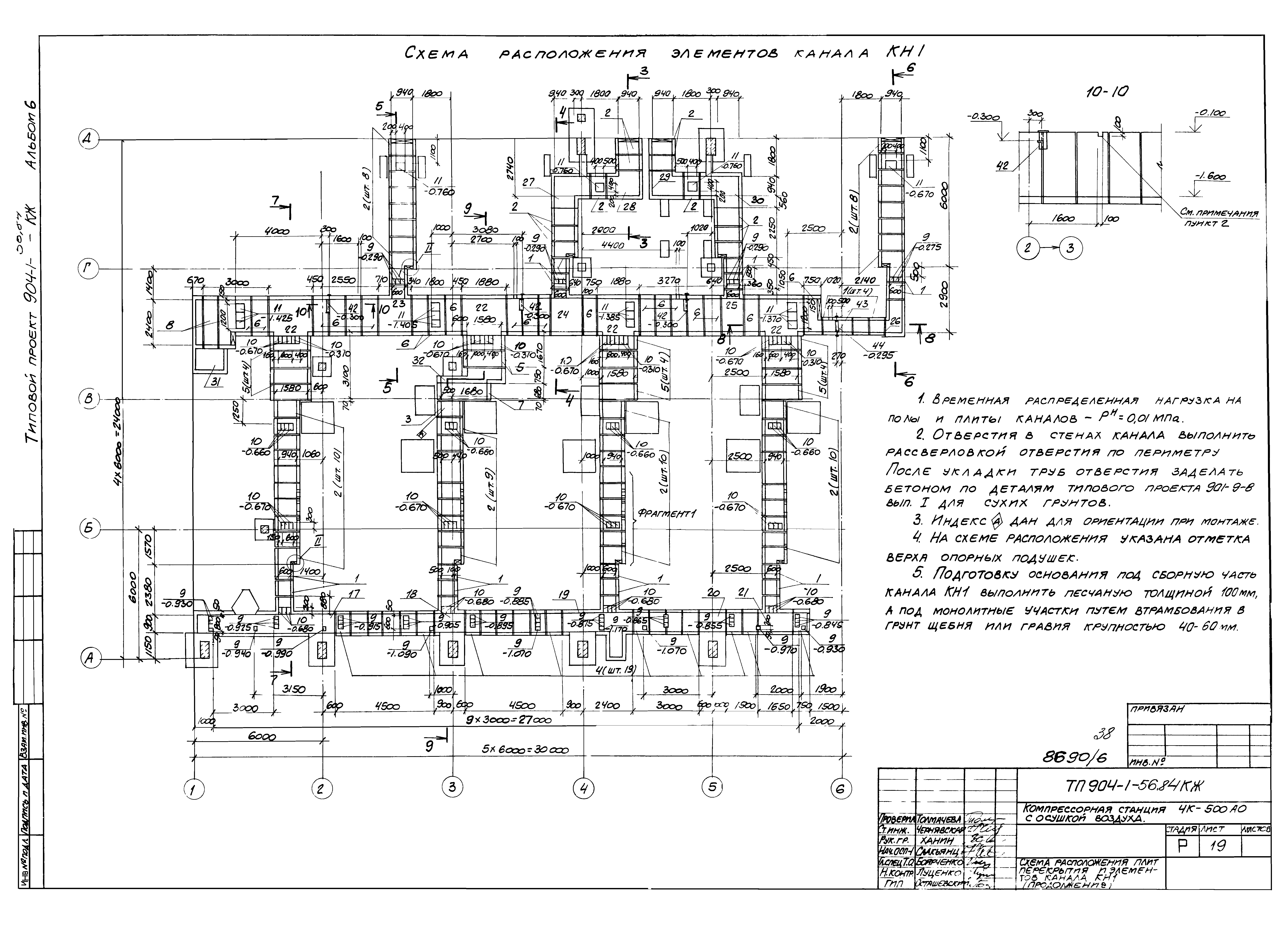
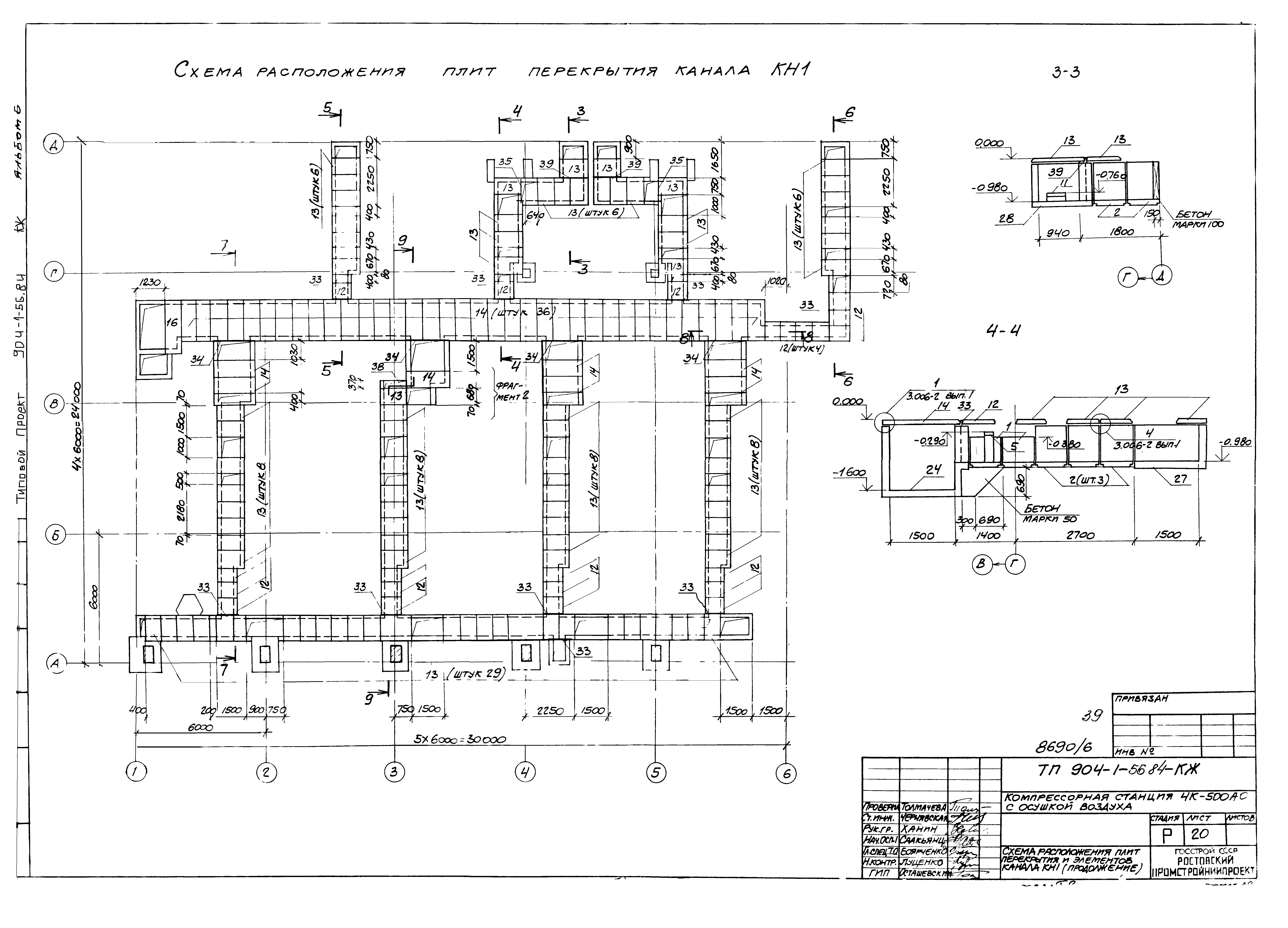
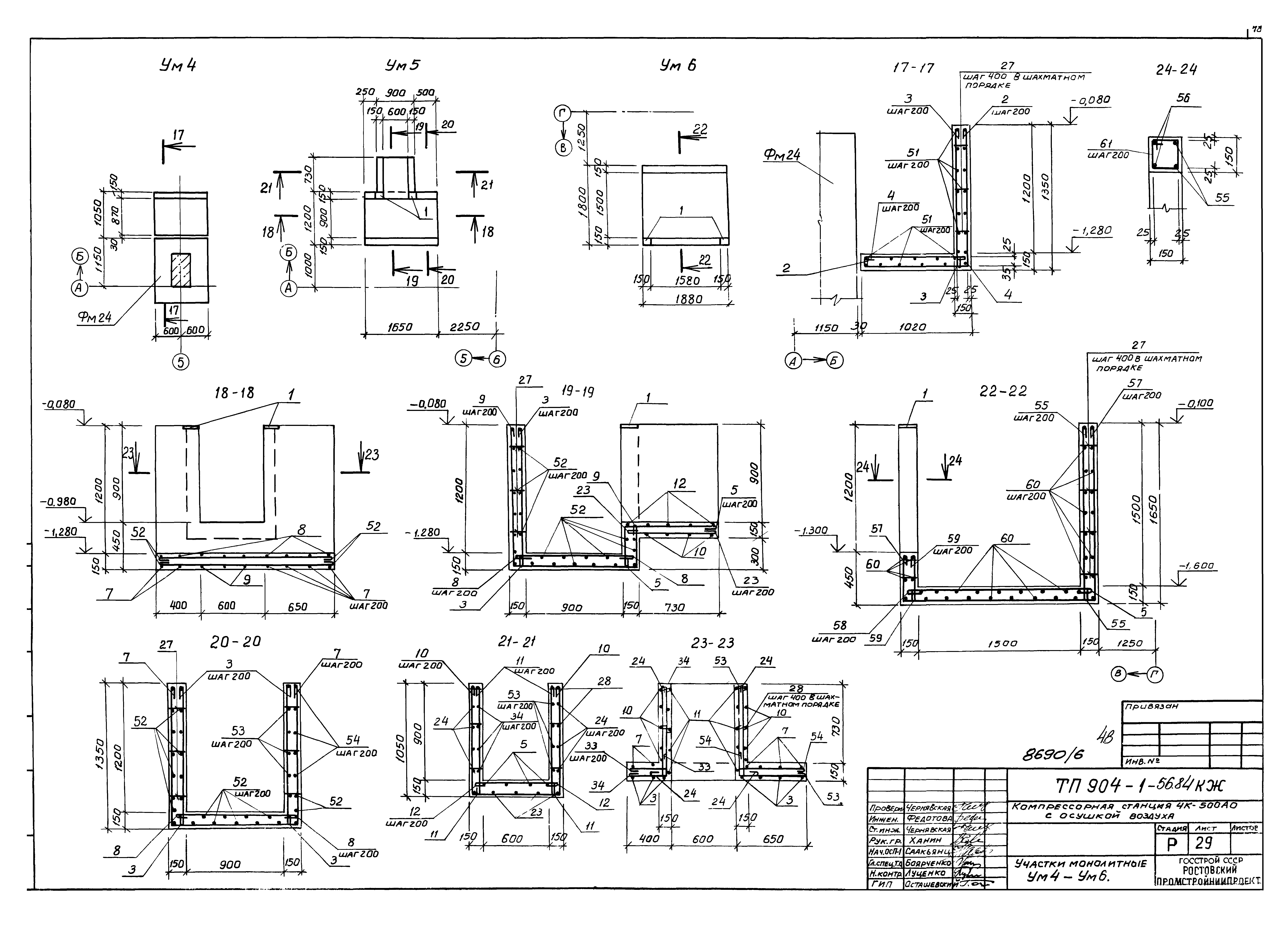
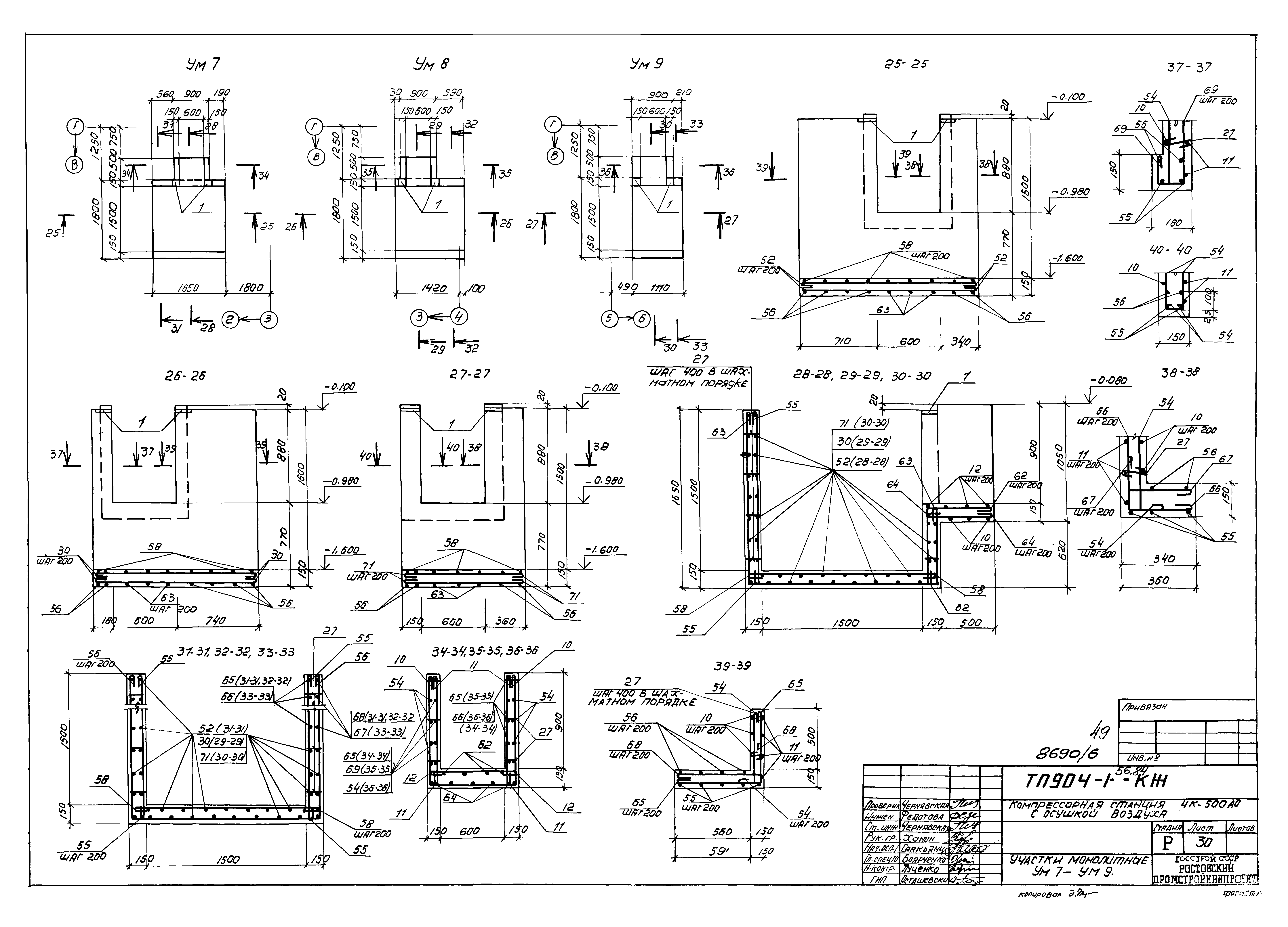
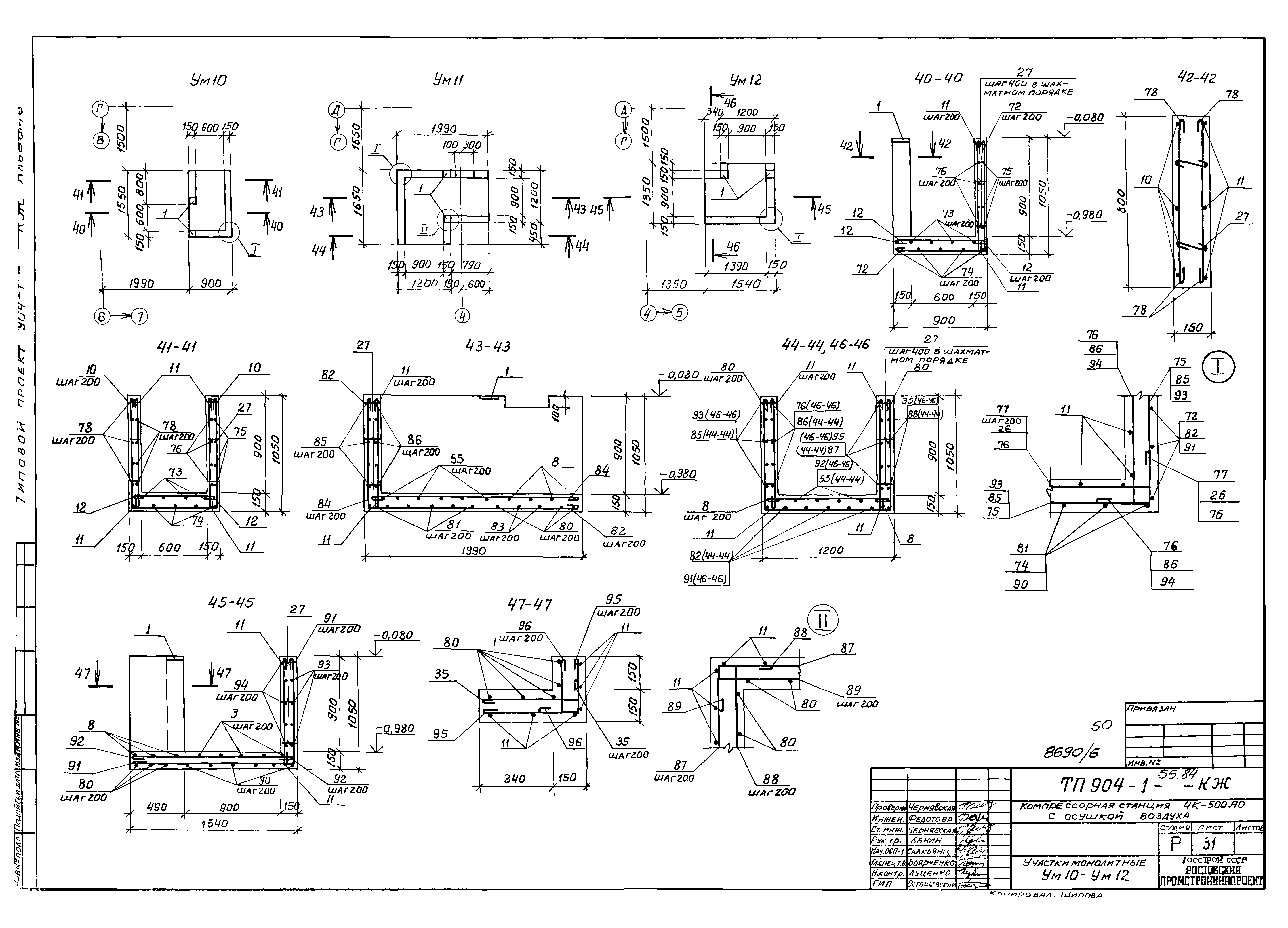
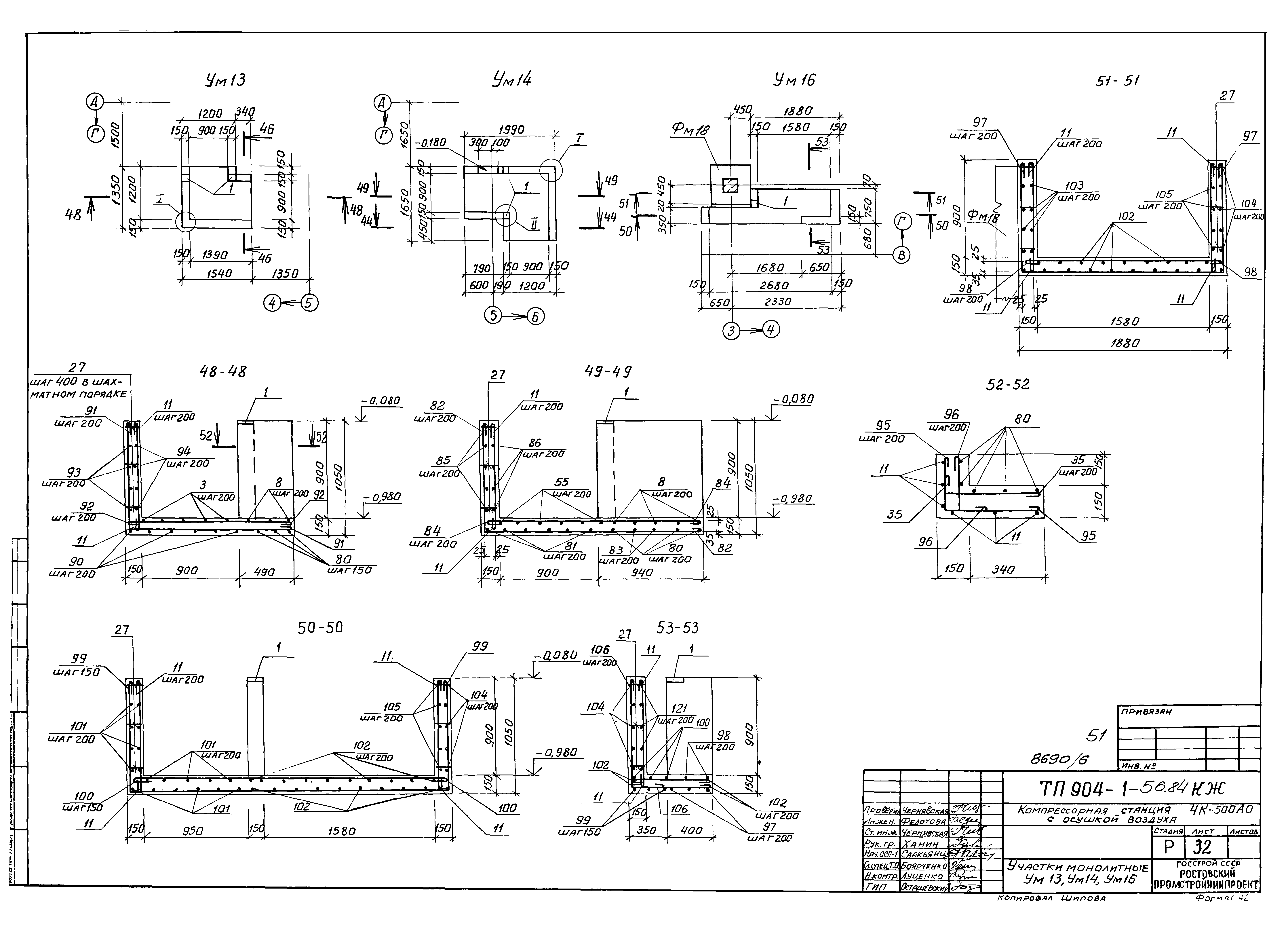
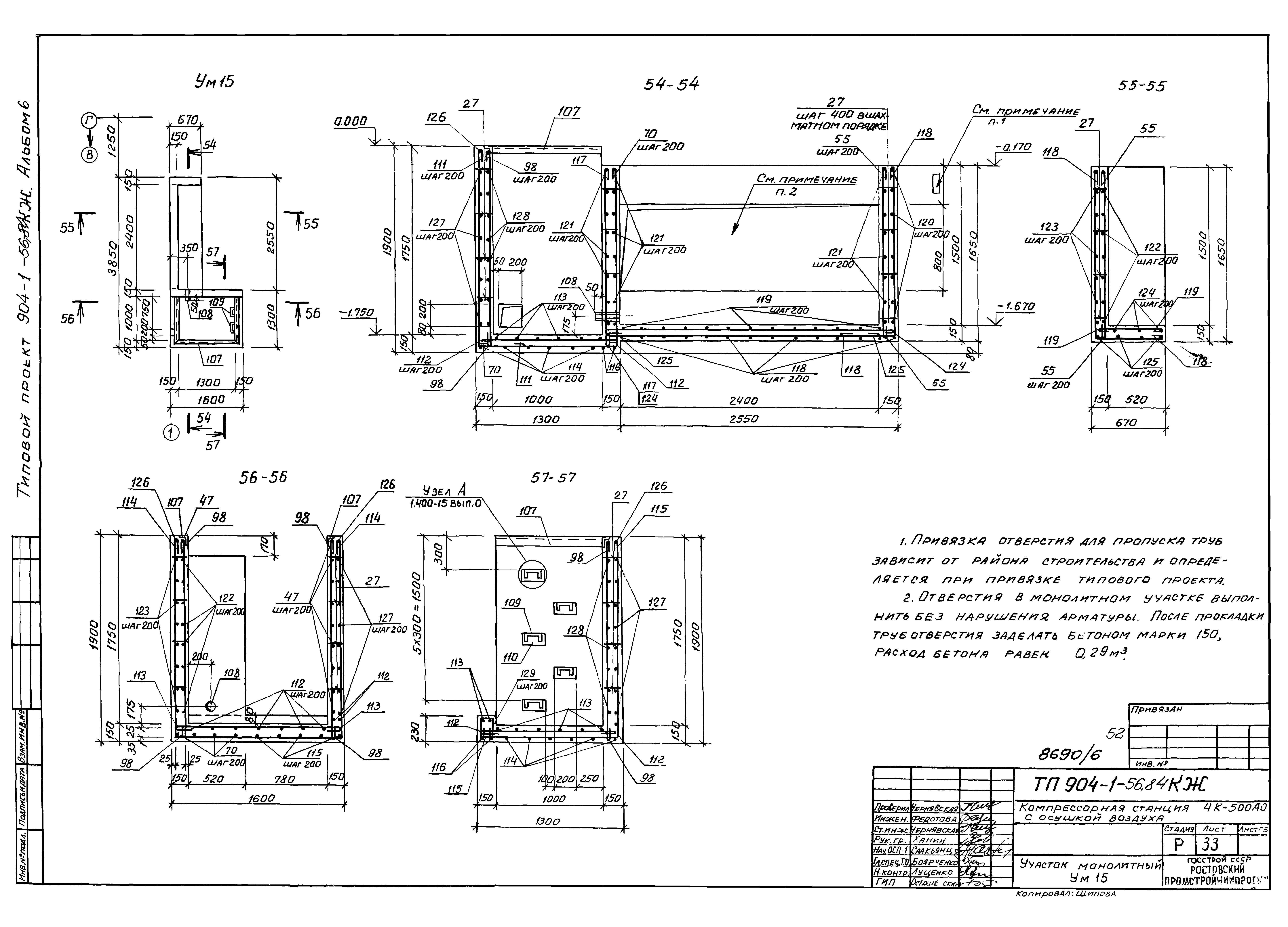
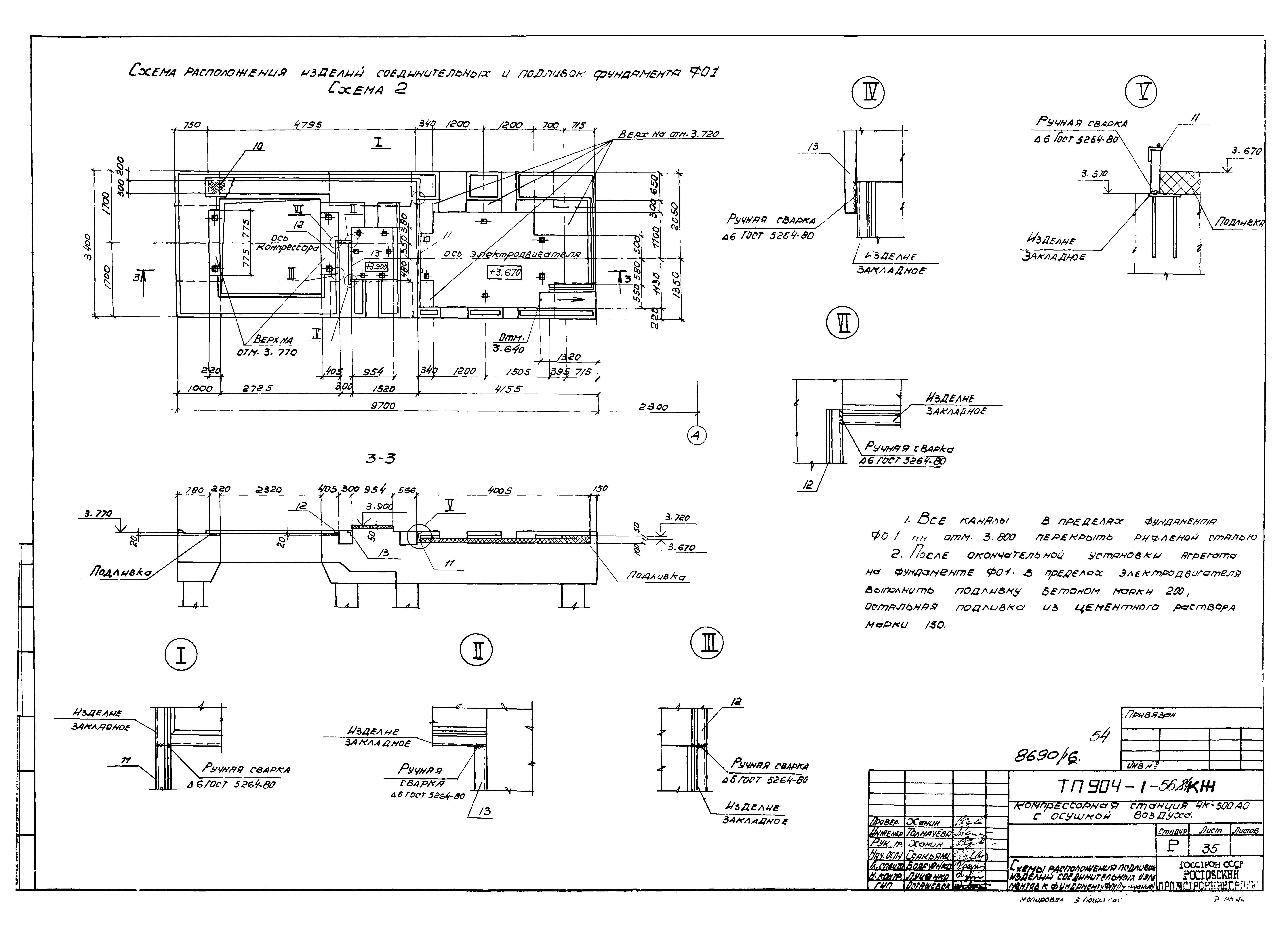
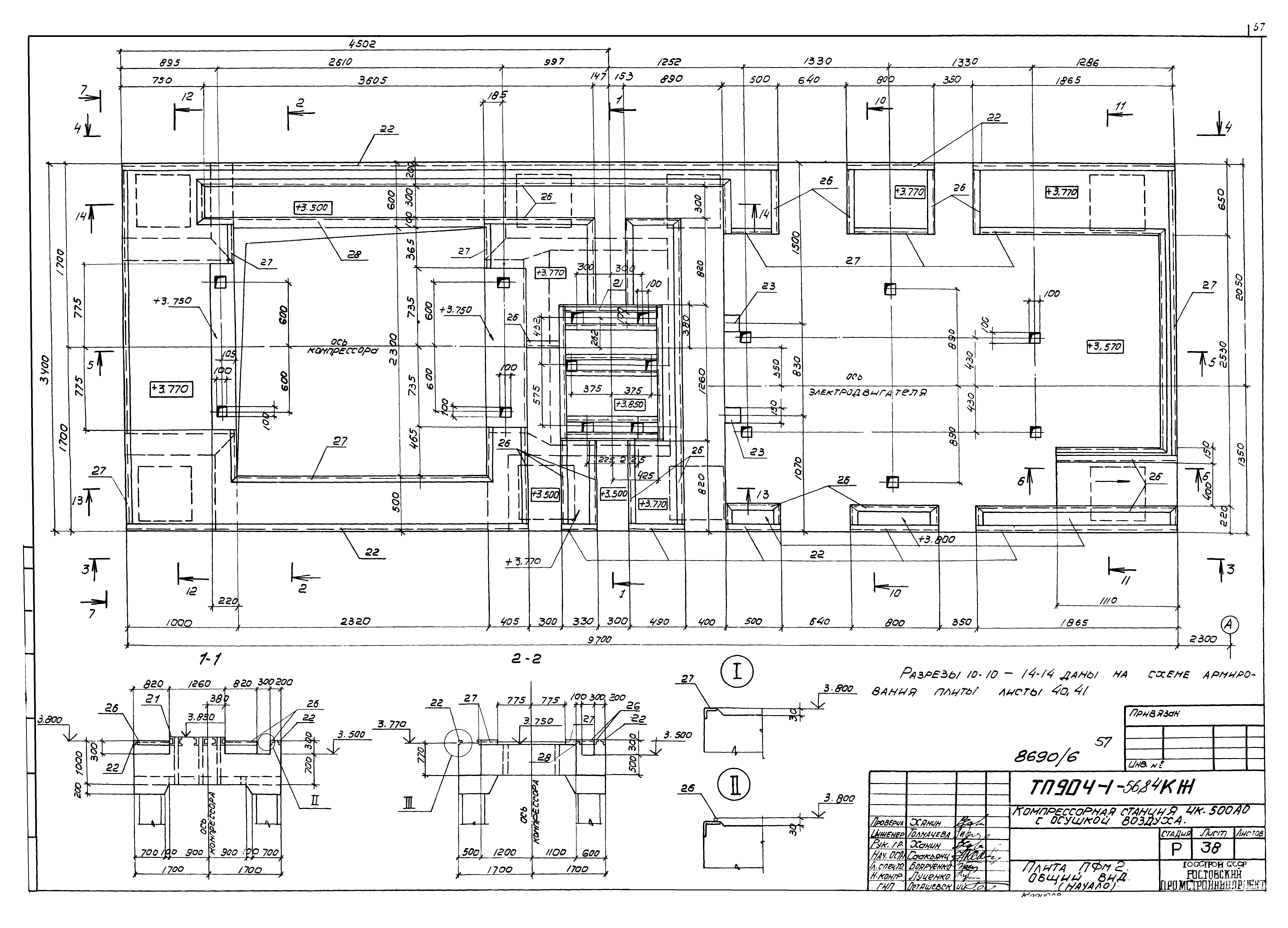
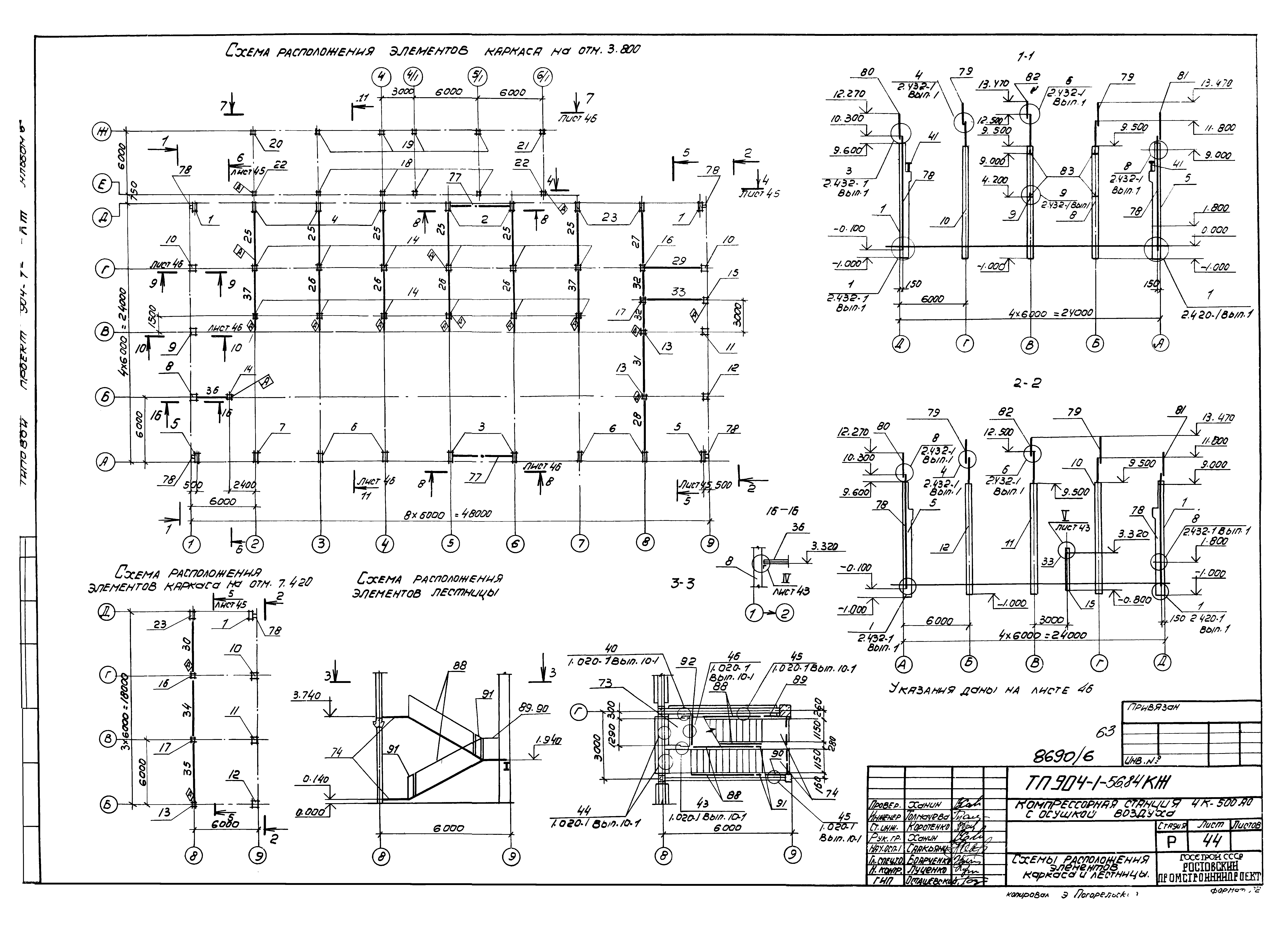
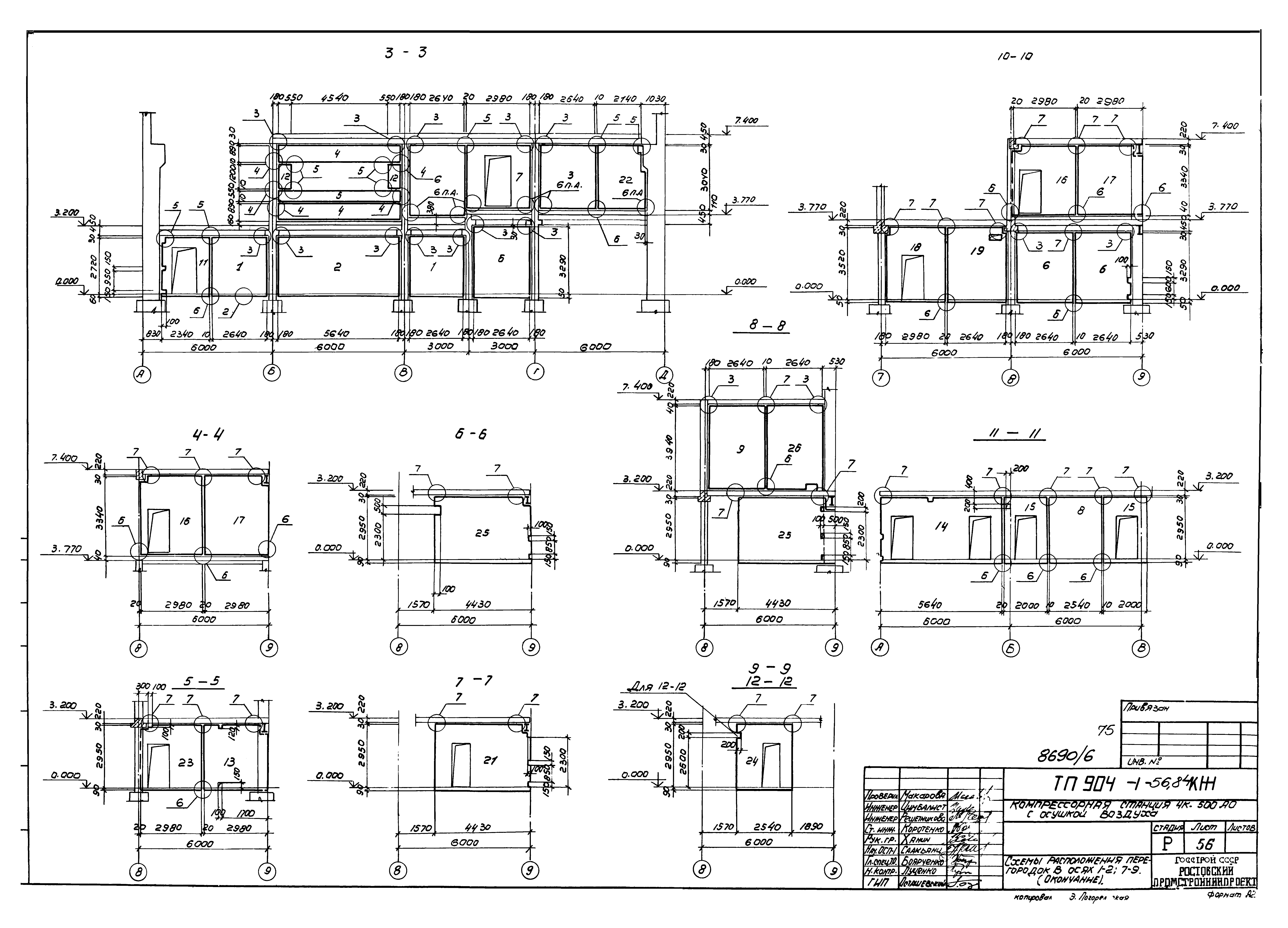
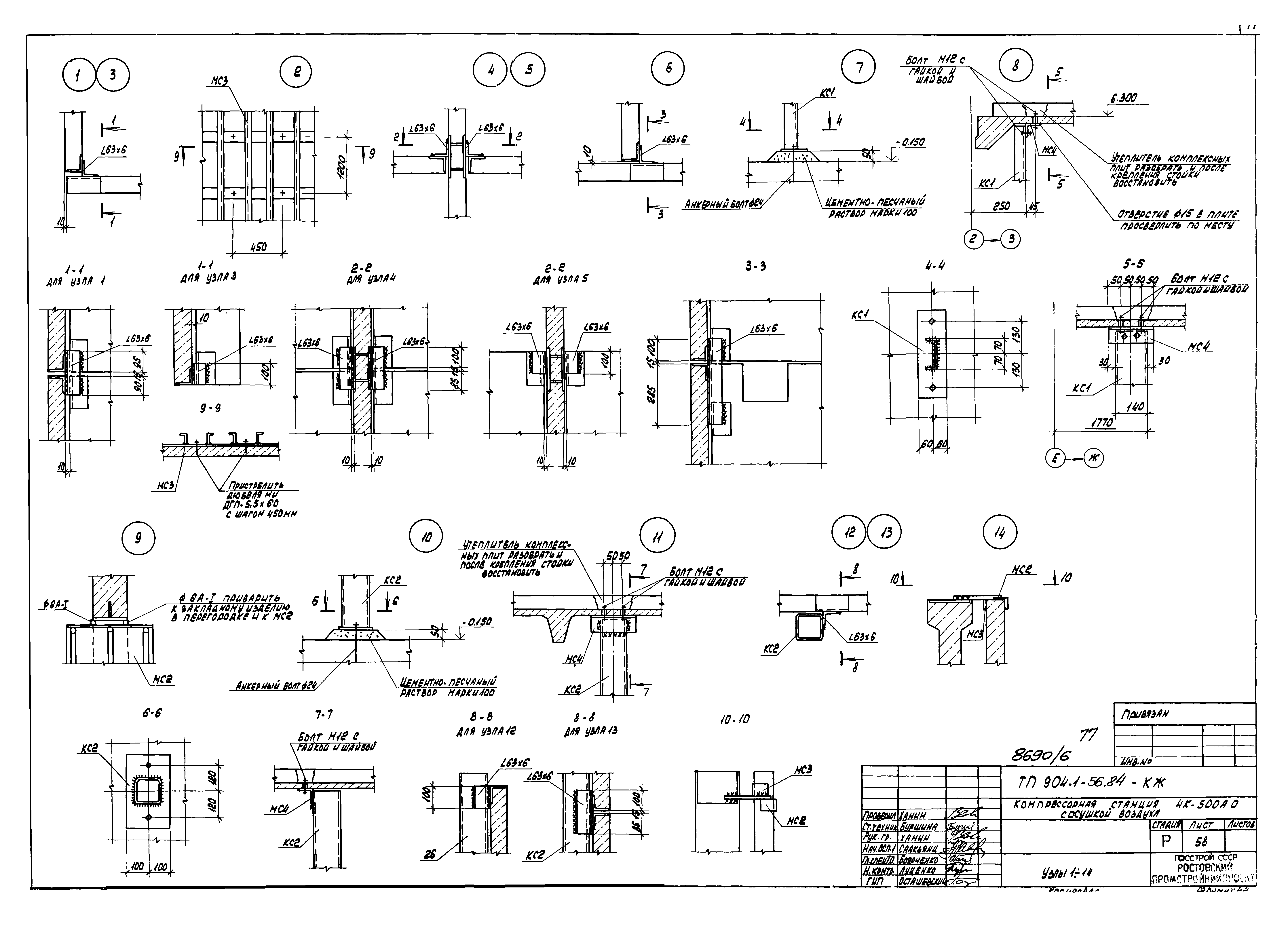
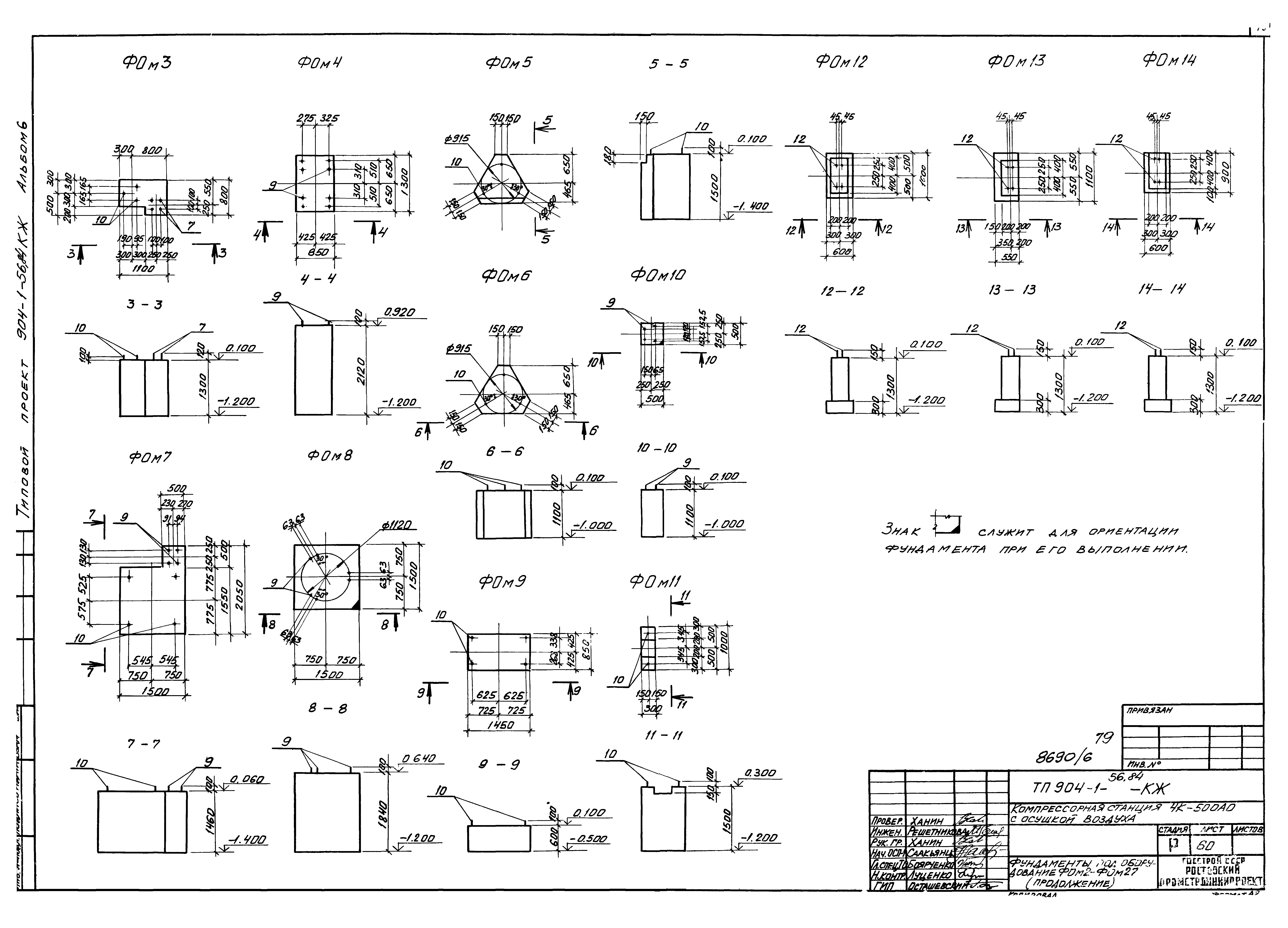
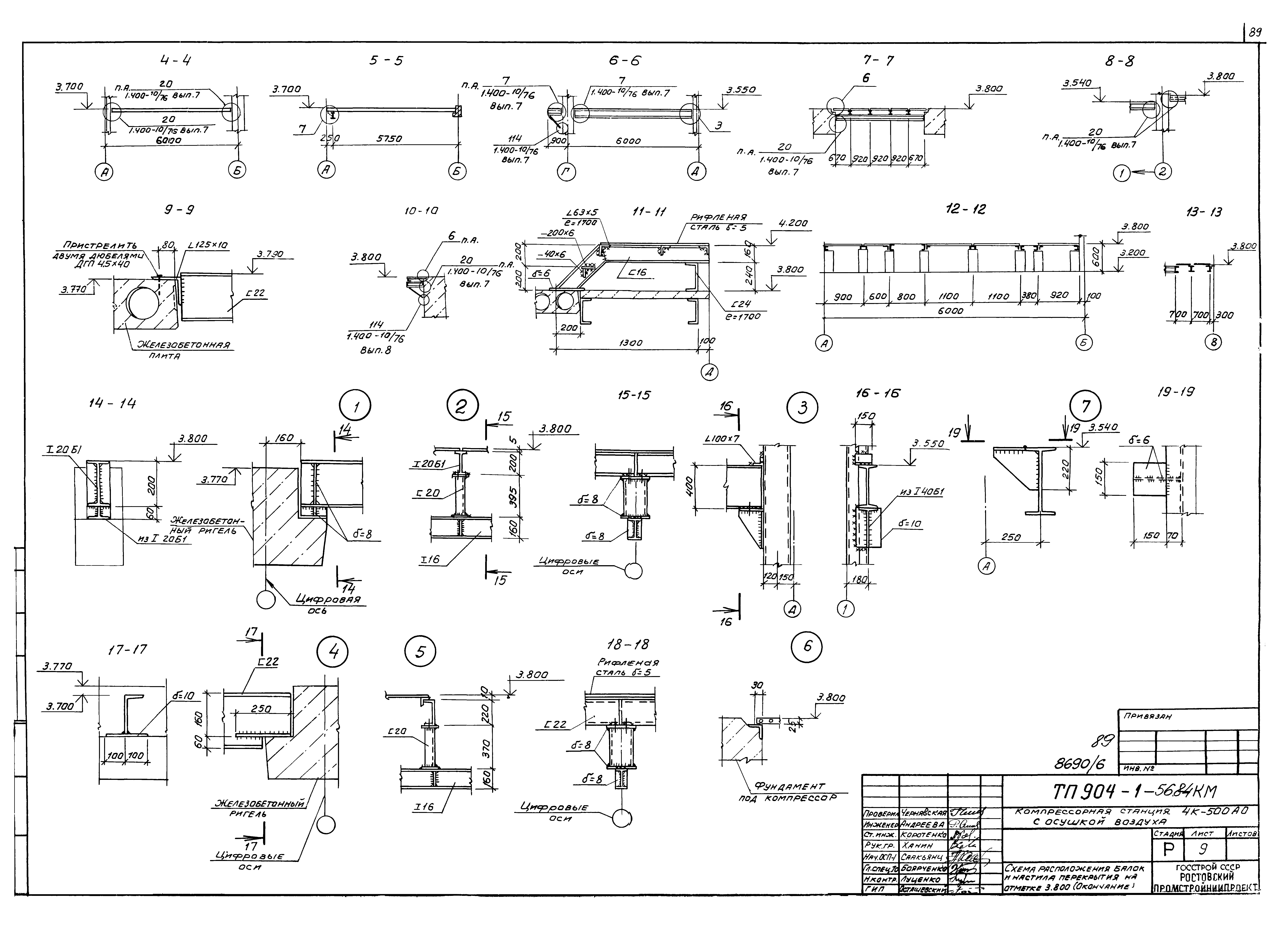
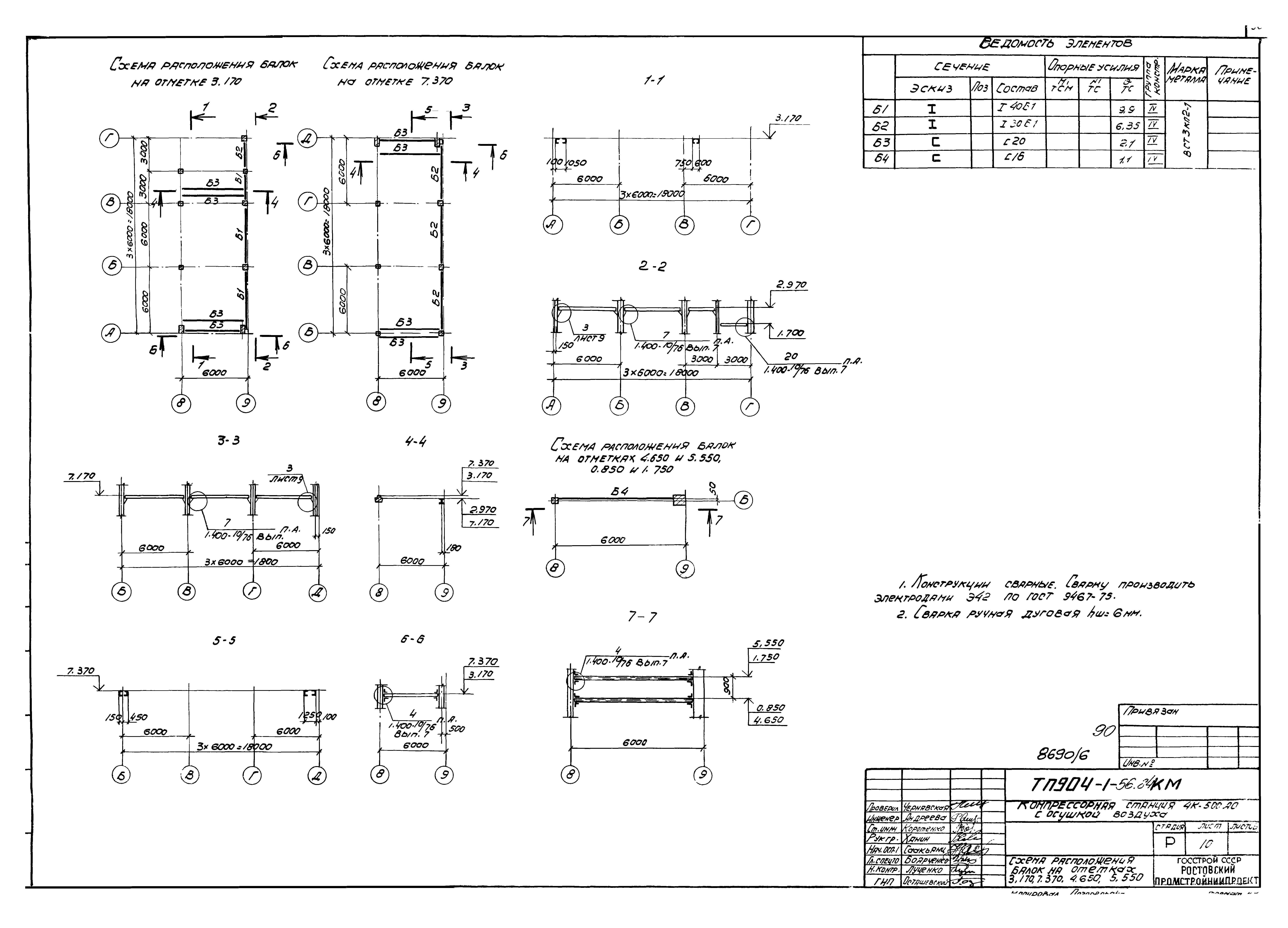
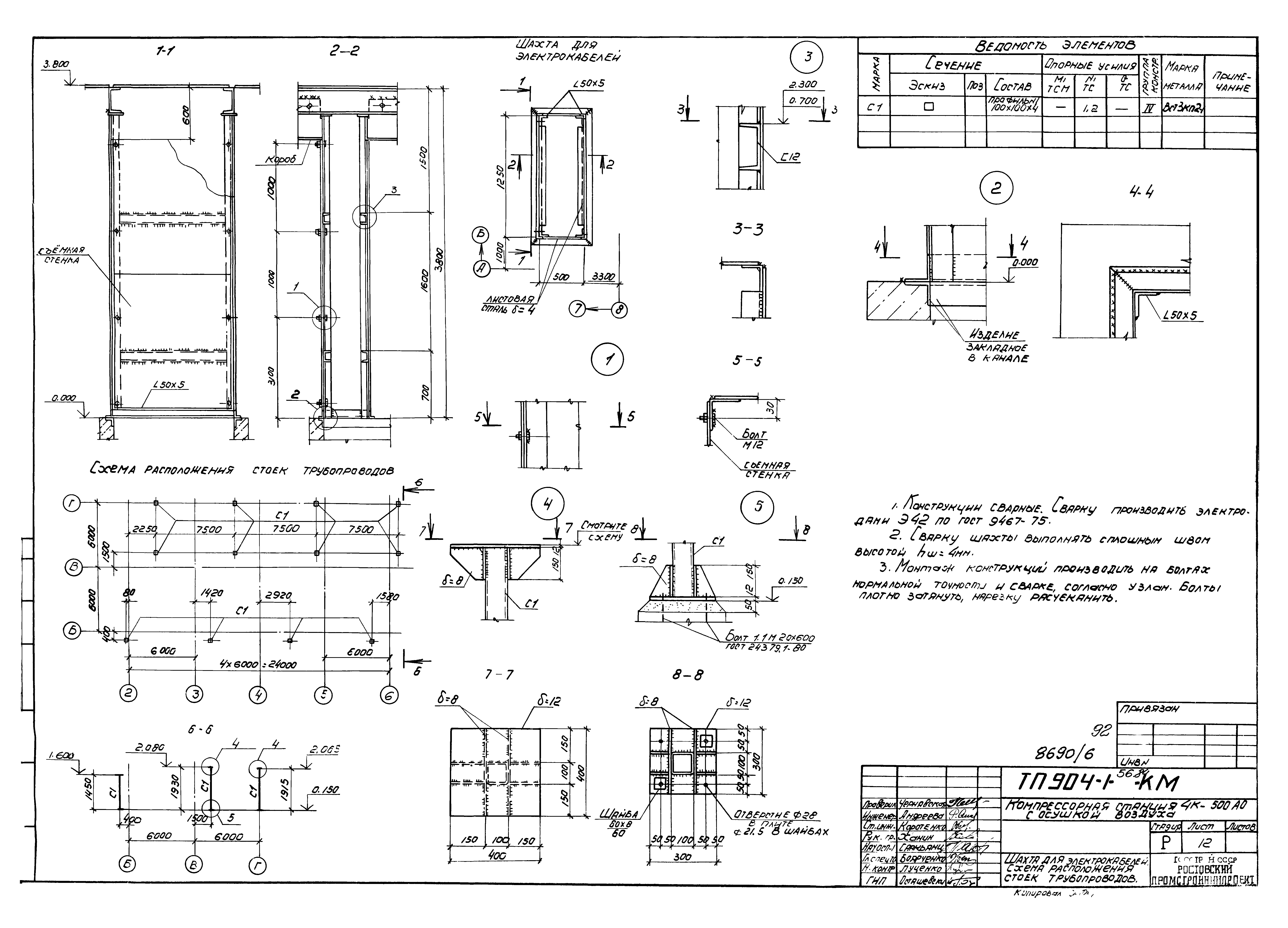
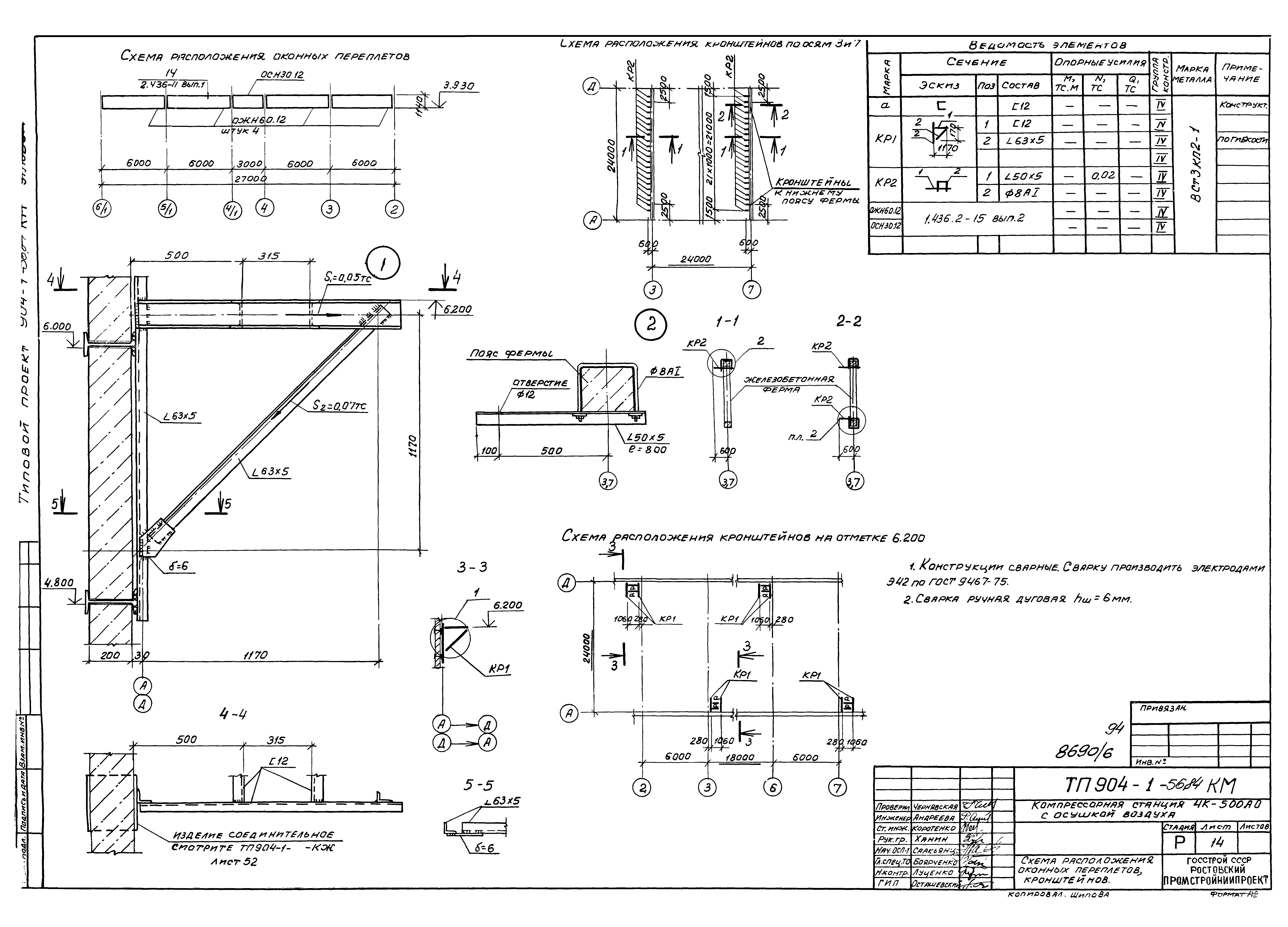
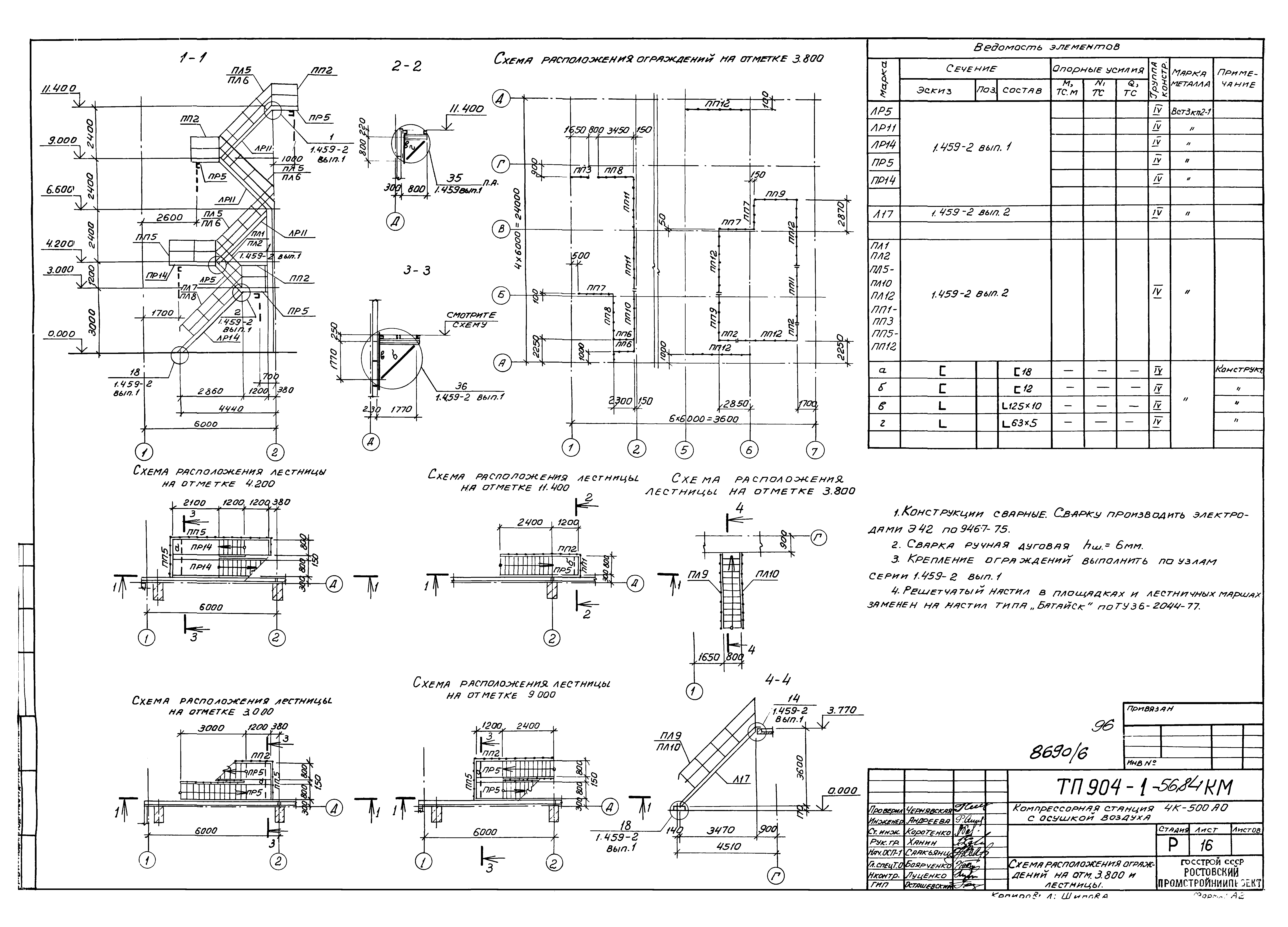
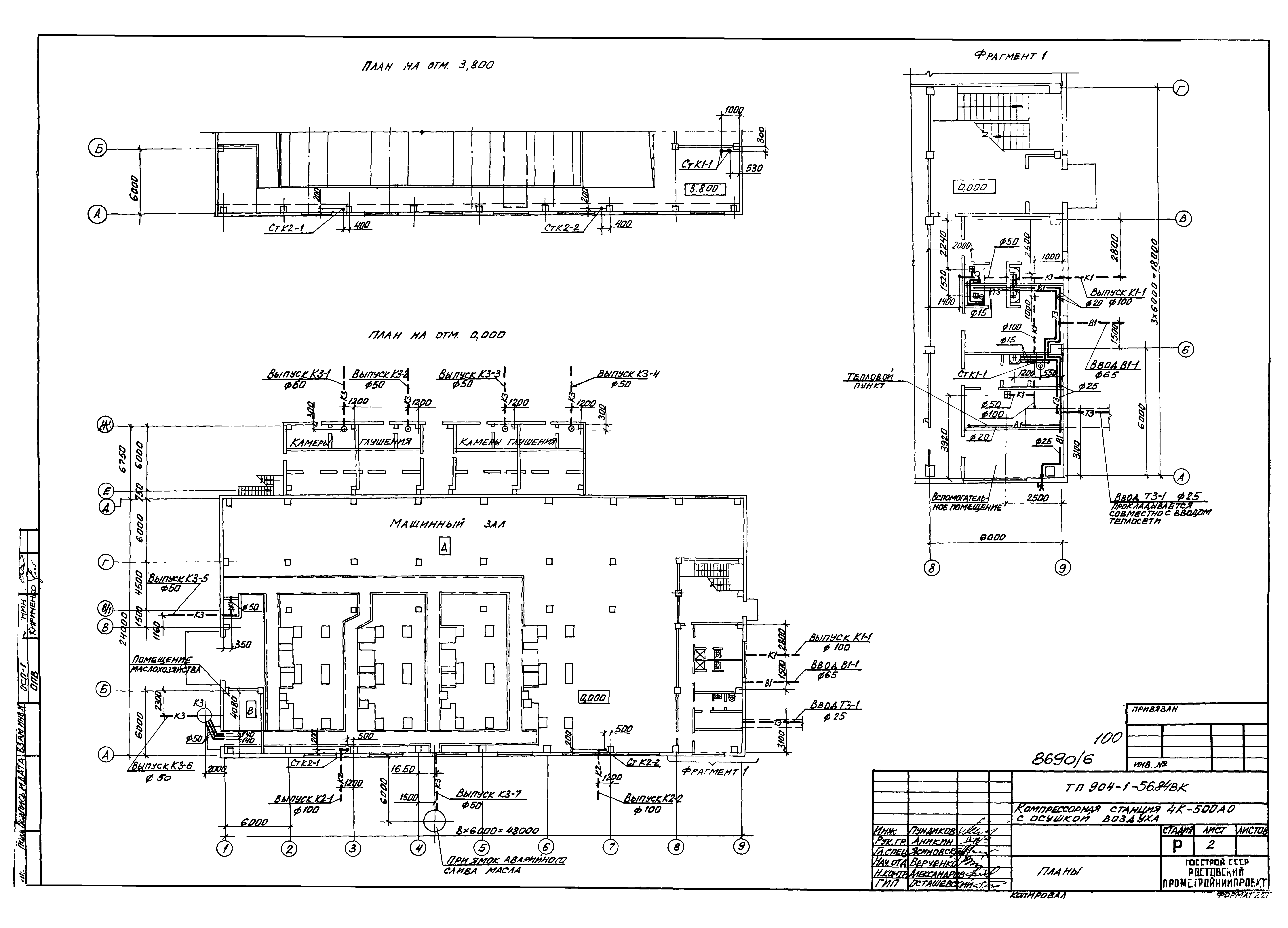
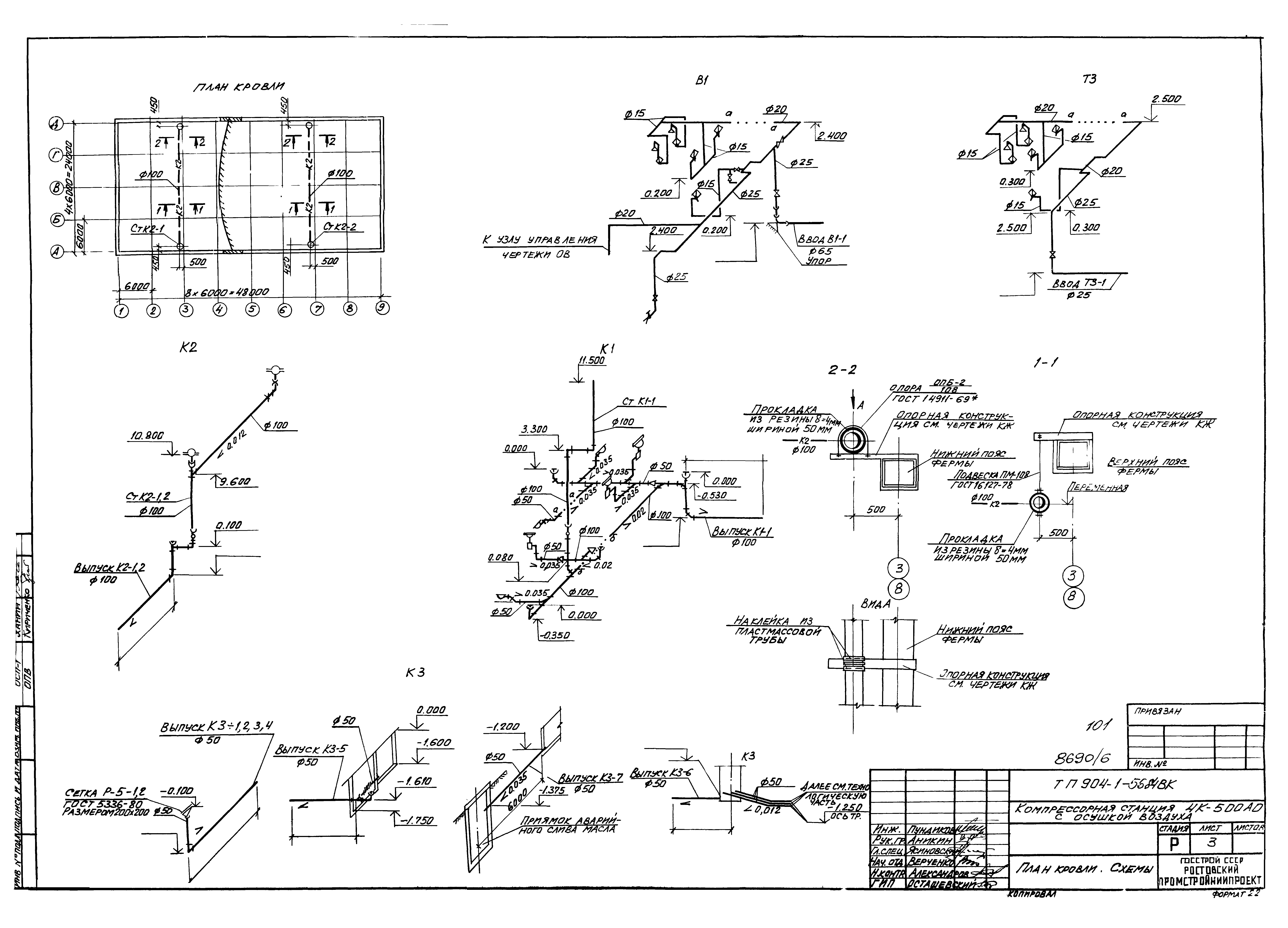
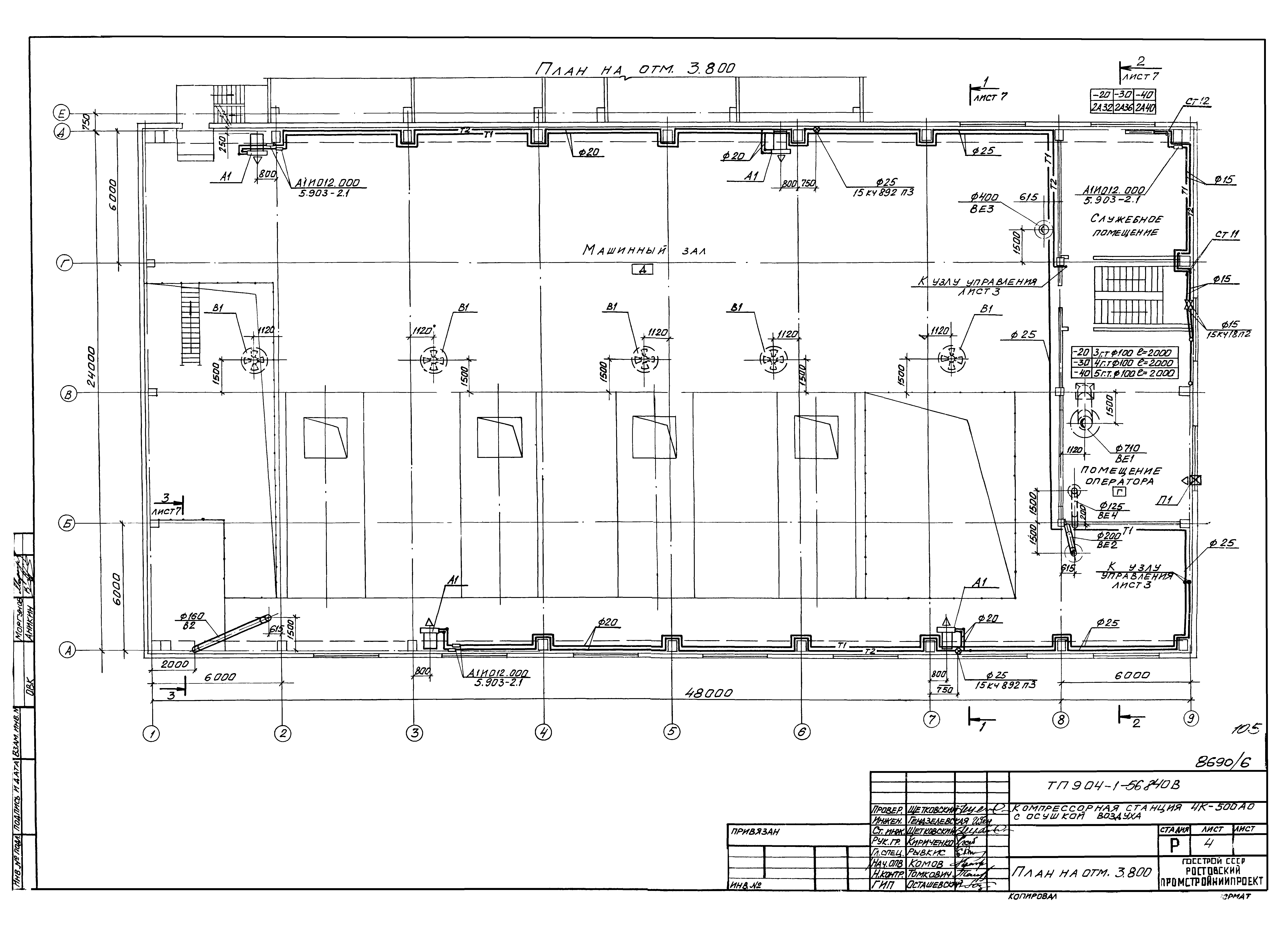
| Оглавление: | ТП 904-1-56.84 Содержание альбома ТП 904-1-56.84-ПЗ Пояснительная записка ТП 904-1-56.84-АР Архитектурные решения ТП 904-1-56.84-АР-1 Общие данные (начало) ТП 904-1-56.84-АР-2 Общие данные (окончание) ТП 904-1-56.84-АР-3 Схемы расположения подземных конструкций и опор под внутренние перегородки (начало) ТП 904-1-56.84-АР-4 Схемы расположения подземных конструкций и опор под внутренние перегородки (окончание) ТП 904-1-56.84-АР-5 Планы на отм. 0.000 и 3.800 ТП 904-1-56.84-АР-6 Фрагменты плана 1,2 ТП 904-1-56.84-АР-7 Фрагмент плана 3 ТП 904-1-56.84-АР-8 Разрезы 1-1-6-6 ТП 904-1-56.84-АР-9 Фасады ТП 904-1-56.84-АР-10 Схемы расположения опор двойного пола, деревянных щитов и накладных проступей ТП 904-1-56.84-АР-11 Сечения 1-1,2-2 ТП 904-1-56.84-АР-12 Ведомость отделки помещений. Экспликация полов. План кровли ТП 904-1-56.84-АР-13 Узлы 4-13. Схема установки закладных элементов в проеме ворот ТП 904-1-56.84-КЖ Конструкции железобетонные ТП 904-1-56.84-КЖ-1 Общие данные (начало) ТП 904-1-56.84-КЖ-2 Общие данные (продолжение) ТП 904-1-56.84-КЖ-3 Общие данные (окончание) ТП 904-1-56.84-КЖ-4 Спецификация к схемам расположения элементов фундаментов ТП 904-1-56.84-КЖ-5 Схема расположения элементов фундаментов ТП 904-1-56.84-КЖ-6 Узлы 5-14 ТП 904-1-56.84-КЖ-7 Узлы 15-22 ТП 904-1-56.84-КЖ-8 Фундаменты ФМ1-ФМ3 ТП 904-1-56.84-КЖ-9 Фундаменты ФМ4-ФМ6 ТП 904-1-56.84-КЖ-10 Фундаменты ФМ7-ФМ9 ТП 904-1-56.84-КЖ-11 Фундаменты ФМ10-ФМ12 ТП 904-1-56.84-КЖ-12 Фундаменты ФМ13-ФМ15 ТП 904-1-56.84-КЖ-13 Фундаменты ФМ16-ФМ18;ФМ28 ТП 904-1-56.84-КЖ-14 Фундаменты ФМ19-ФМ21 ТП 904-1-56.84-КЖ-15 Фундаменты ФМ22-ФМ24 ТП 904-1-56.84-КЖ-16 Фундаменты ФМ25-ФМ27 ТП 904-1-56.84-КЖ-17 Схемы расположения элементов колодцев К1,К2 ТП 904-1-56.84-КЖ-18 Схема расположения плит перекрытия и элементов канала КР1 (начало) ТП 904-1-56.84-КЖ-19 Схема расположения плит перекрытия и элементов канала КР1 (продолжение) ТП 904-1-56.84-КЖ-20 Схема расположения плит перекрытия и элементов канала КР1 (продолжение) ТП 904-1-56.84-КЖ-21 Схема расположения плит перекрытия и элементов канала КР1 (окончание) ТП 904-1-56.84-КЖ-22 Спецификация к участкам монолитным УМ1-УМ3 ТП 904-1-56.84-КЖ-23 Спецификация к участкам монолитным УМ4-УМ8 ТП 904-1-56.84-КЖ-24 Спецификация к участкам монолитным УМ9-УМ14 ТП 904-1-56.84-КЖ-25 Спецификация к участкам монолитным УМ15,УМ16 ТП 904-1-56.84-КЖ-26 Ведомость деталей ТП 904-1-56.84-КЖ-27 Участок монолитный УМ1 ТП 904-1-56.84-КЖ-28 Участки монолитные УМ2,УМ3 ТП 904-1-56.84-КЖ-29 Участки монолитные УМ4-УМ6 ТП 904-1-56.84-КЖ-30 Участки монолитные УМ7-УМ9 ТП 904-1-56.84-КЖ-31 Участки монолитные УМ10-УМ12 ТП 904-1-56.84-КЖ-32 Участки монолитные УМ13,УМ14,УМ16 ТП 904-1-56.84-КЖ-33 Участок монолитный УМ15 ТП 904-1-56.84-КЖ-34 Схема расположения подливок, изделий соединительных и элементов к фундаменту ФО1 (начало) ТП 904-1-56.84-КЖ-35 Схема расположения подливок, изделий соединительных и элементов к фундаменту ФО1 (окончание) ТП 904-1-56.84-КЖ-36 Плита ПФМ1 ТП 904-1-56.84-КЖ-37 Плита ПФМ2. Спецификация ТП 904-1-56.84-КЖ-38 Плита ПФМ2. Общий вид (начало) ТП 904-1-56.84-КЖ-39 Плита ПФМ2. Общий вид (окончание) ТП 904-1-56.84-КЖ-40 Плита ПФМ2. Схема армирования (начало) ТП 904-1-56.84-КЖ-41 Плита ПФМ2. Схема армирования (окончание) ТП 904-1-56.84-КЖ-42 Спецификация к схемам расположения элементов каркаса, лестницы, плит покрытия и фундаментов под оборудование ТП 904-1-56.84-КЖ-43 Узлы 1-5 ТП 904-1-56.84-КЖ-44 Схемы расположения элементов каркаса и лестницы ТП 904-1-56.84-КЖ-45 Схемы расположения ферм и балок покрытия, подкрановых балок ТП 904-1-56.84-КЖ-46 Схема расположения плит покрытия ТП 904-1-56.84-КЖ-47 Схемы расположения плит перекрытия (начало) ТП 904-1-56.84-КЖ-48 Схемы расположения плит перекрытия (окончание) ТП 904-1-56.84-КЖ-49 Плиты ПМ1-ПМ6 (начало) ТП 904-1-56.84-КЖ-50 Плиты ПМ1-ПМ6 (окончание) ТП 904-1-56.84-КЖ-51 Спецификация к схемам расположения стеновых панелей ТП 904-1-56.84-КЖ-52 Схемы расположения стеновых панелей ТП 904-1-56.84-КЖ-53 Фрагменты 1-12 ТП 904-1-56.84-КЖ-54 Фрагменты 13-27 ТП 904-1-56.84-КЖ-55 Схемы расположения перегородок в осях 1-2,7-9 (начало) ТП 904-1-56.84-КЖ-56 Схемы расположения перегородок в осях 1-2,7-9 (окончание) ТП 904-1-56.84-КЖ-57 Схема расположения перегородок в осях Е-Ж ТП 904-1-56.84-КЖ-58 Узлы 1-14 ТП 904-1-56.84-КЖ-59 Фундаменты под оборудование ФОМ2-ФОМ27 (начало) ТП 904-1-56.84-КЖ-60 Фундаменты под оборудование ФОМ2-ФОМ27 (продолжение) ТП 904-1-56.84-КЖ-61 Фундаменты под оборудование ФОМ2-ФОМ27 (окончание) ТП 904-1-56.84-КМ Конструкции металлические ТП 904-1-56.84-КМ-1 Общие данные ТП 904-1-56.84-КМ-2 Ведомость металлоконструкций по видам профилей ТП 904-1-56.84-КМ-3 Техническая спецификация металла на объект (начало) ТП 904-1-56.84-КМ-4 Техническая спецификация металла на объект (окончание) ТП 904-1-56.84-КМ-5 Техническая спецификация металла на лестницы, площадки, ограждения ТП 904-1-56.84-КМ-6 Техническая спецификация металла на оконные переплеты, рельсы и упоры ТП 904-1-56.84-КМ-7 Схема расположения балок и настила перекрытия на отм. 3.800 (начало) ТП 904-1-56.84-КМ-8 Схема расположения балок и настила перекрытия на отм. 3.800 (продолжение) ТП 904-1-56.84-КМ-9 Схема расположения балок и настила перекрытия на отм. 3.800 (окончание) ТП 904-1-56.84-КМ-10 Схема расположения балок на отм. 3.170,7.370,4.650,5.550 ТП 904-1-56.84-КМ-11 Схема расположения коробов электрокабелей ТП 904-1-56.84-КМ-12 Шахта для электрокабелей. Схема расположения стоек трубопроводов ТП 904-1-56.84-КМ-13 Схемы перекрытия каналов ТП 904-1-56.84-КМ-14 Схема расположения оконных переплетов, кронштейнов ТП 904-1-56.84-КМ-15 Схема расположения балок и решеток на отм. 1.150;2.950. Решетки Р1-Р3 ТП 904-1-56.84-КМ-16 Схема расположения ограждений на отм. 3.800 и лестниц ТП 904-1-56.84-КМ-17 Схема расположения опор под трубопровод ТП 904-1-56.84-КМ-18 Схема расположения рельсов и площадки на отм. 8.400 ТП 904-1-56.84-ВК Внутренние водопровод и канализация ТП 904-1-56.84-ВК-1 Общие данные ТП 904-1-56.84-ВК-2 Планы ТП 904-1-56.84-ВК-3 План кровли. Схемы ТП 904-1-56.84-ОВ Отопление и вентиляция ТП 904-1-56.84-ОВ-1 Общие данные (начало) ТП 904-1-56.84-ОВ-2 Общие данные (окончание) ТП 904-1-56.84-ОВ-3 План на отм. 0.000 ТП 904-1-56.84-ОВ-4 План на отм. 3.800 ТП 904-1-56.84-ОВ-5 Схема системы отопления. Узел управления ТП 904-1-56.84-ОВ-6 Схема системы теплоснабжения установок А1 ТП 904-1-56.84-ОВ-7 Разрезы 1-1;2-2;3-3. Схемы систем В2,ВЕ,ВЕ2,ВЕ3,ВЕ4 |
| Разработан: | Ростовский Промстройниипроект Госстроя СССР |
| Утверждён: | 01.11.1983 Минстройдормаш (Minstroydormash 20/83) |













































































































