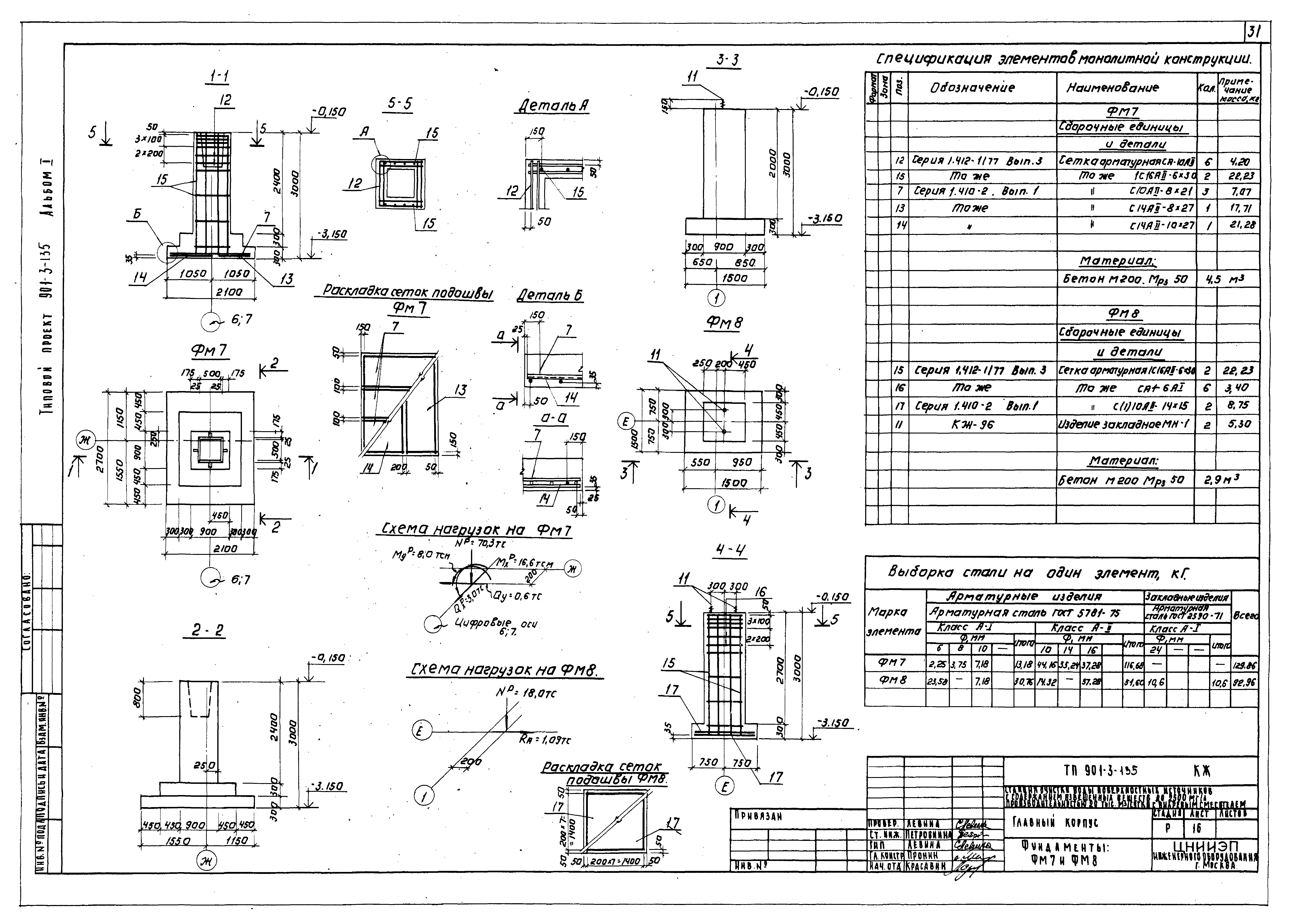
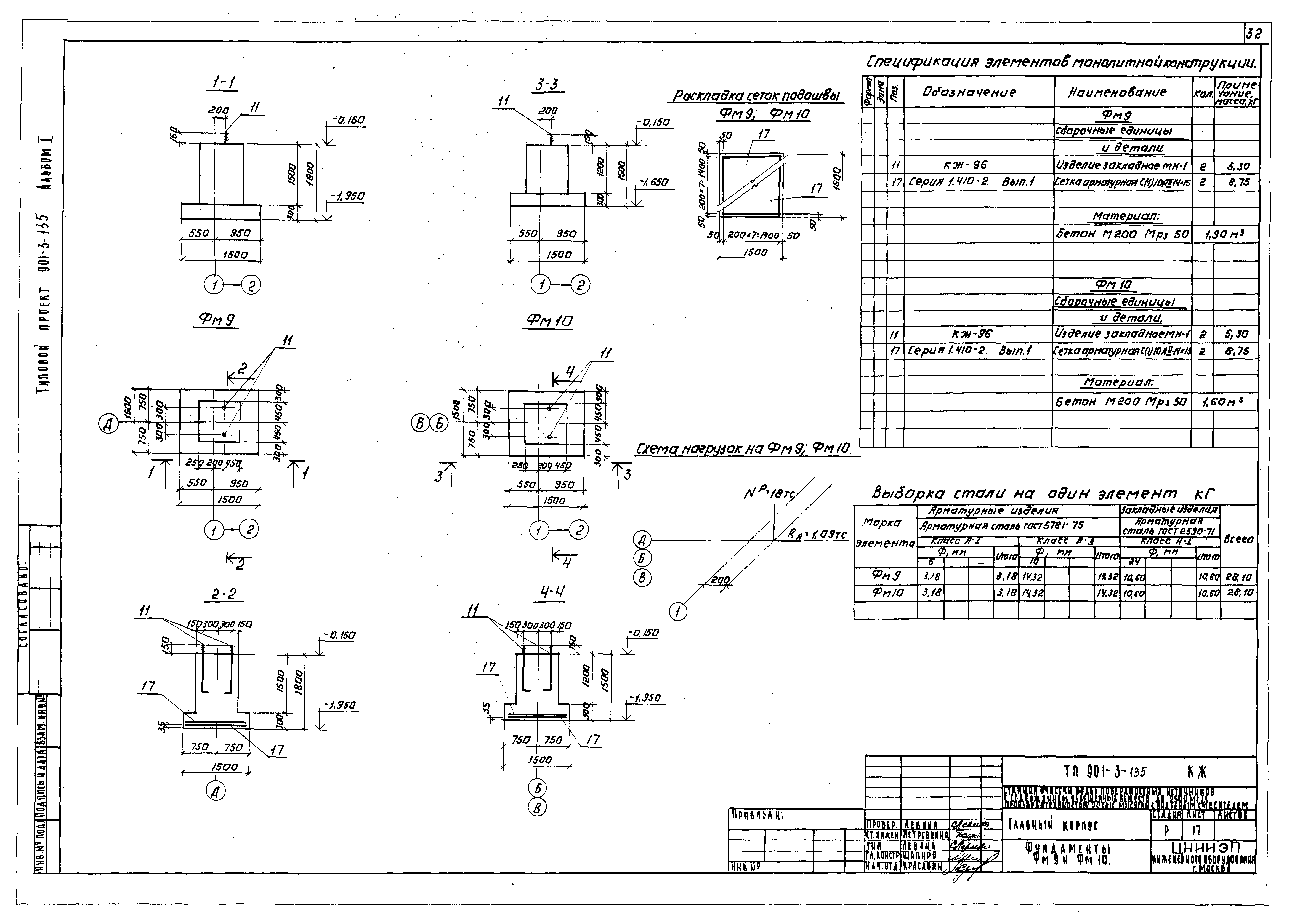
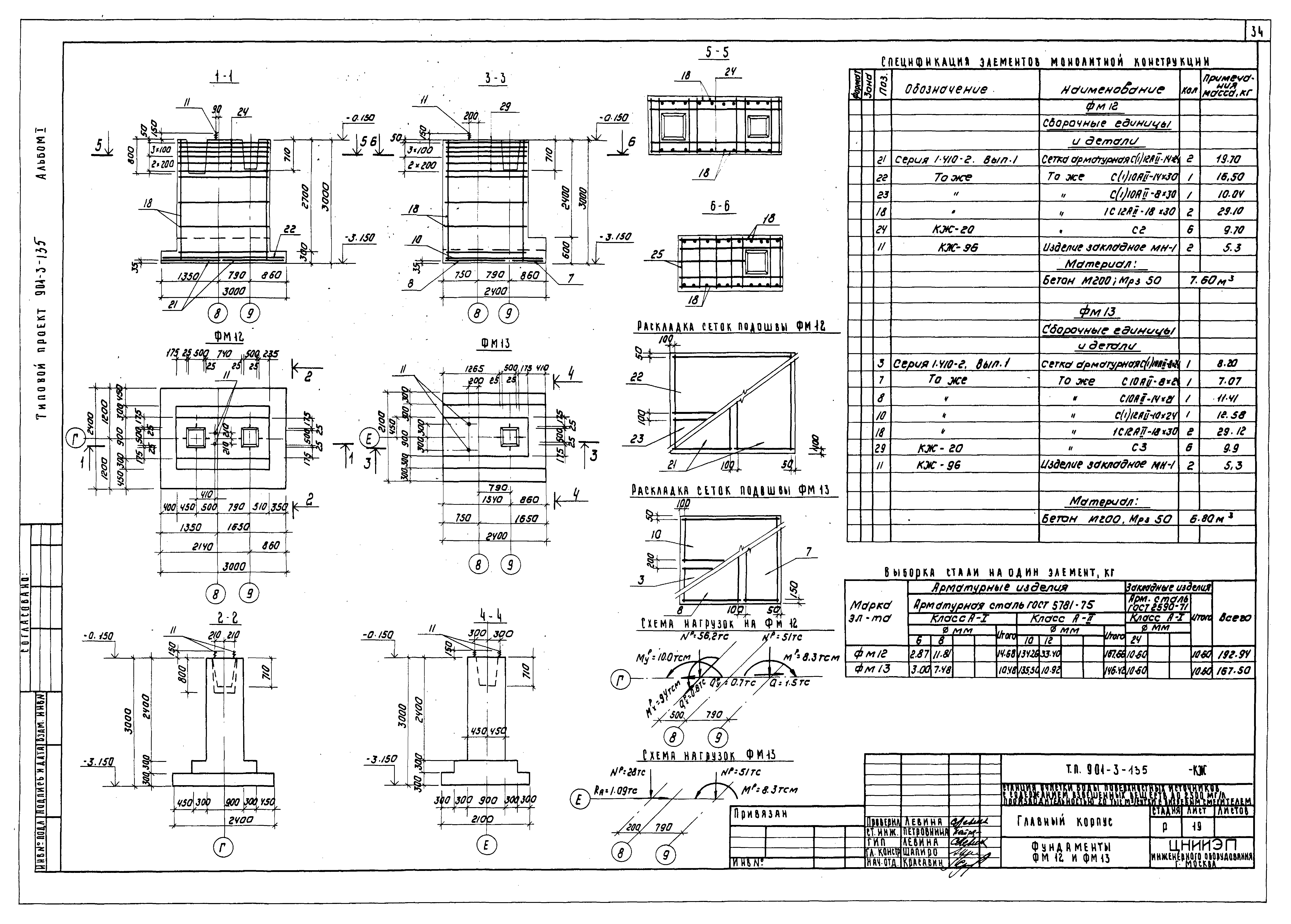
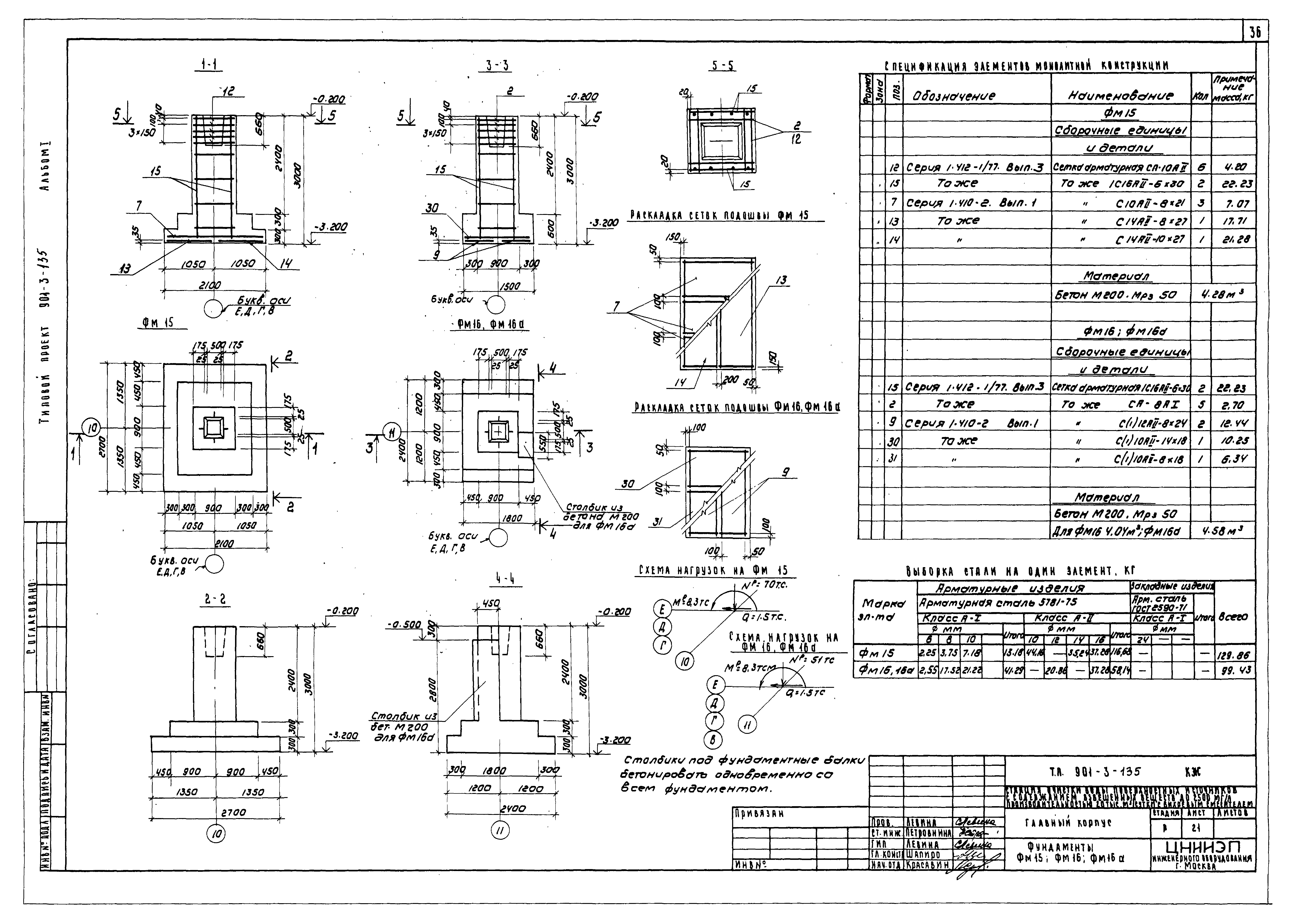
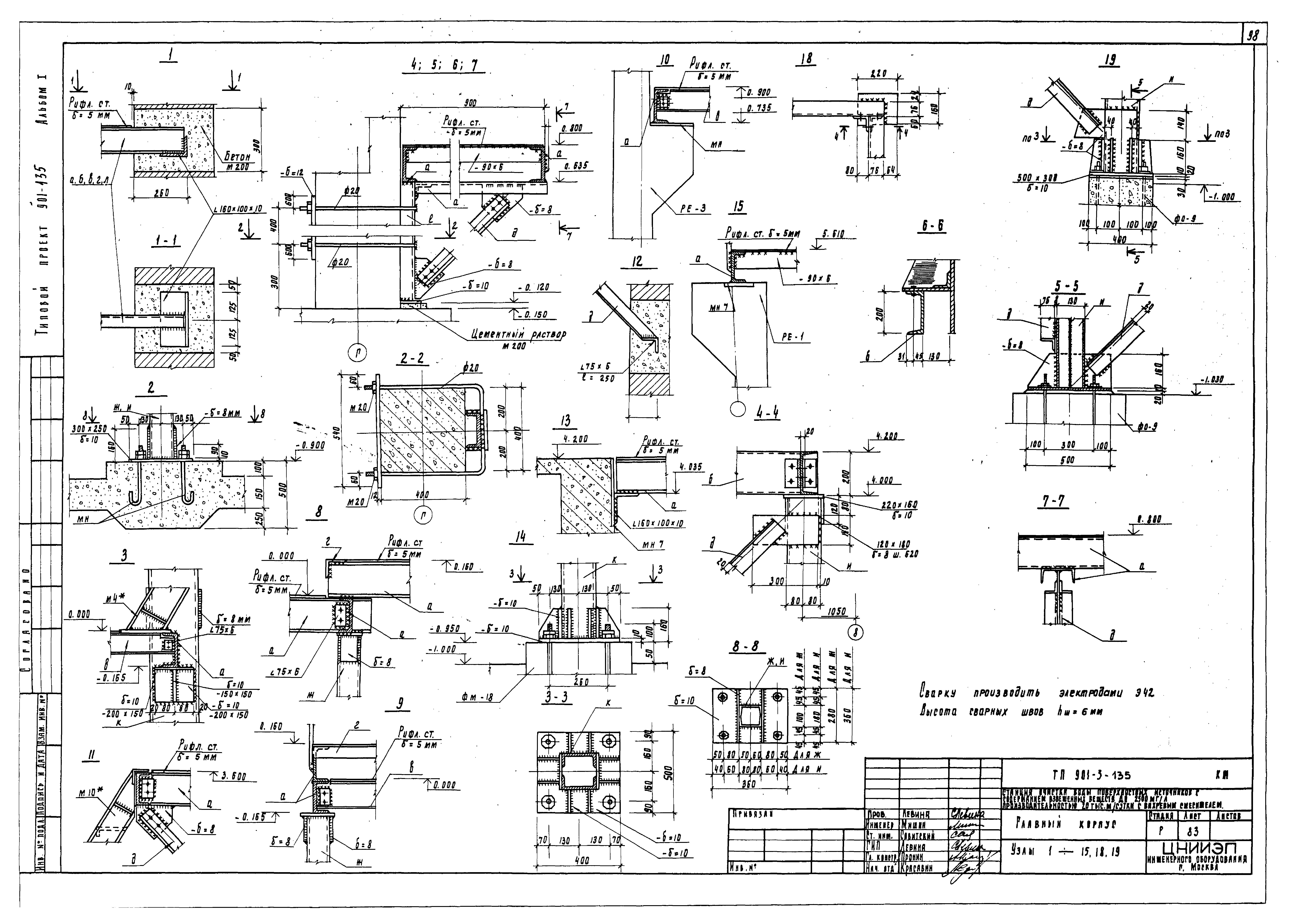
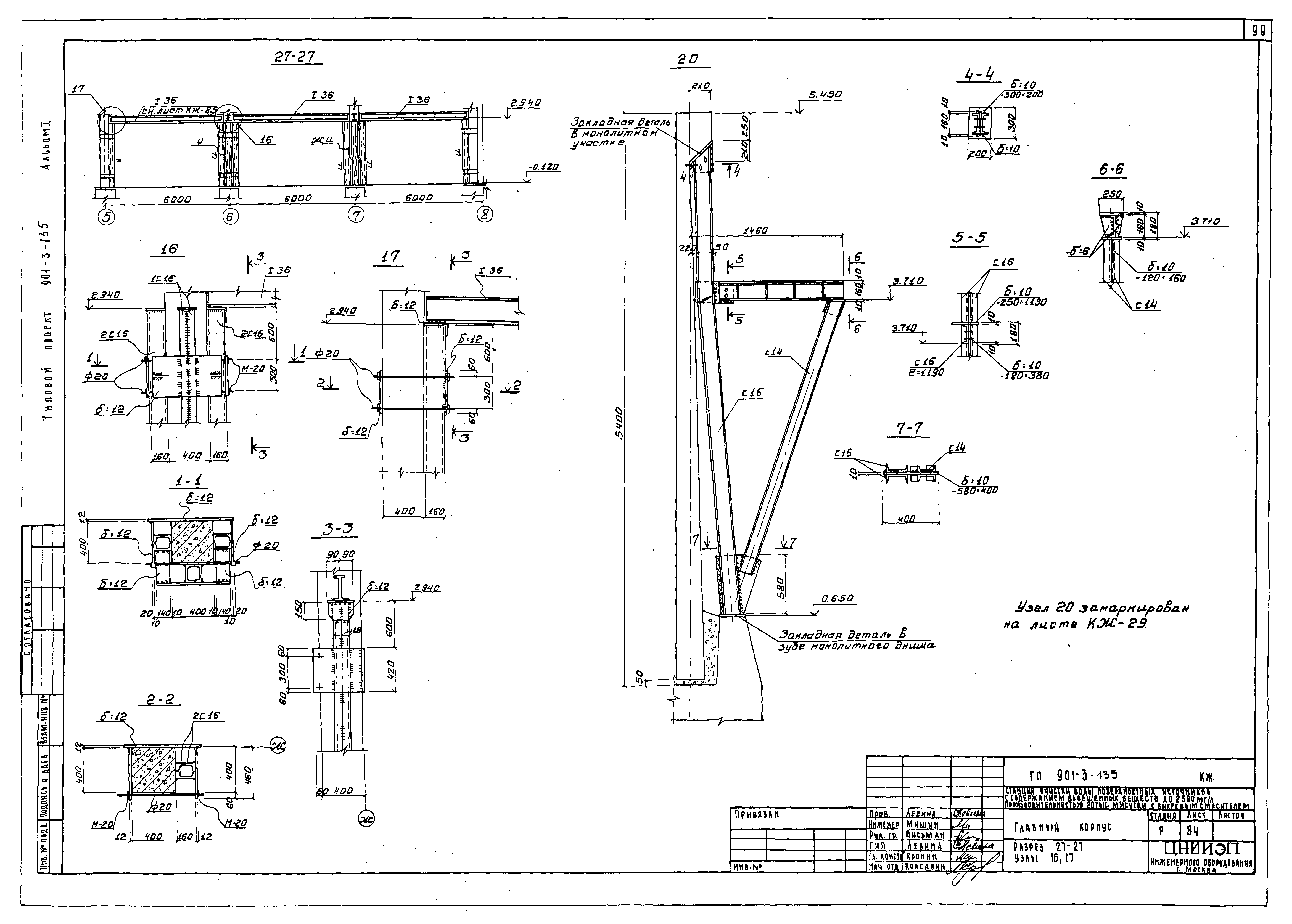
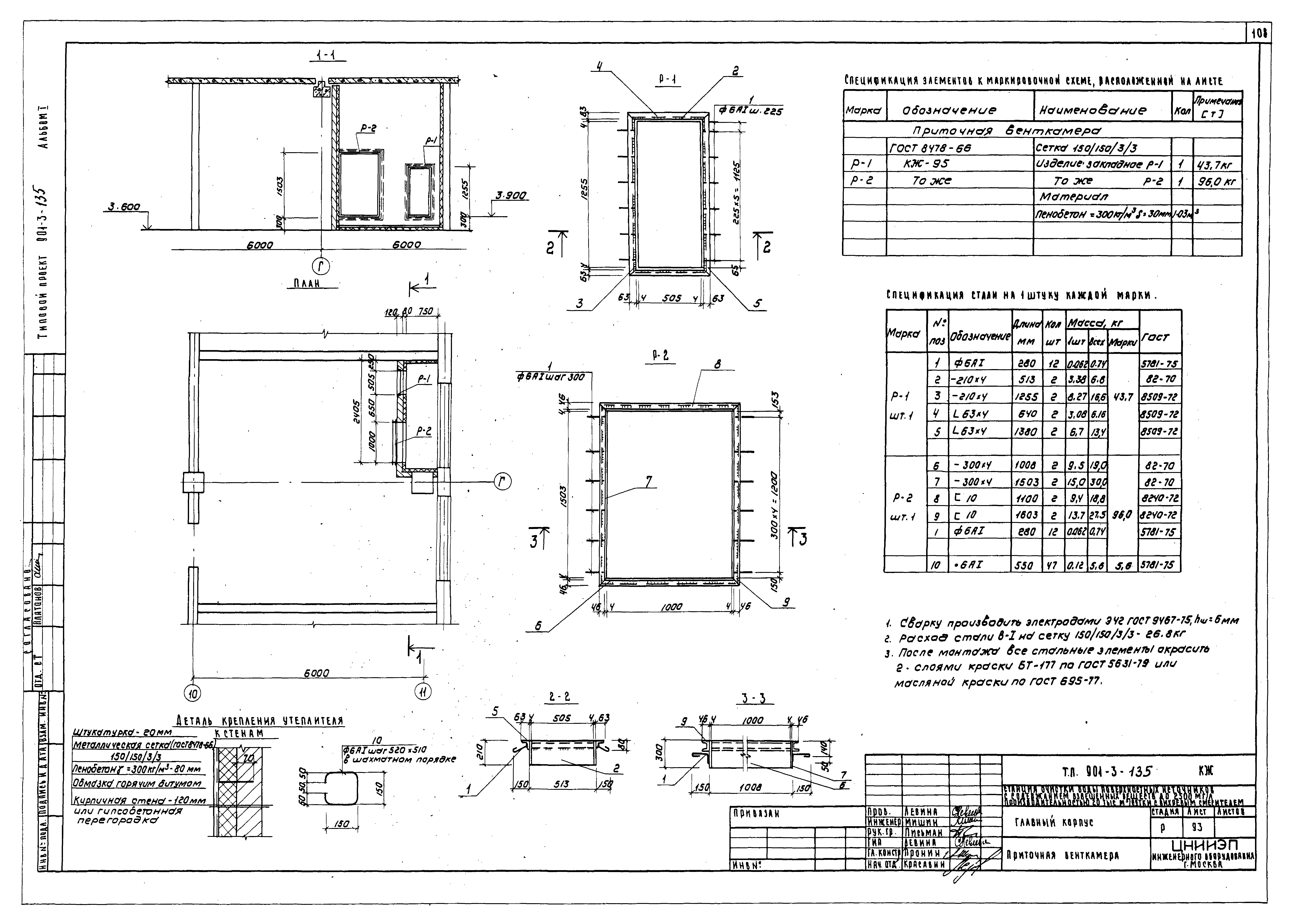
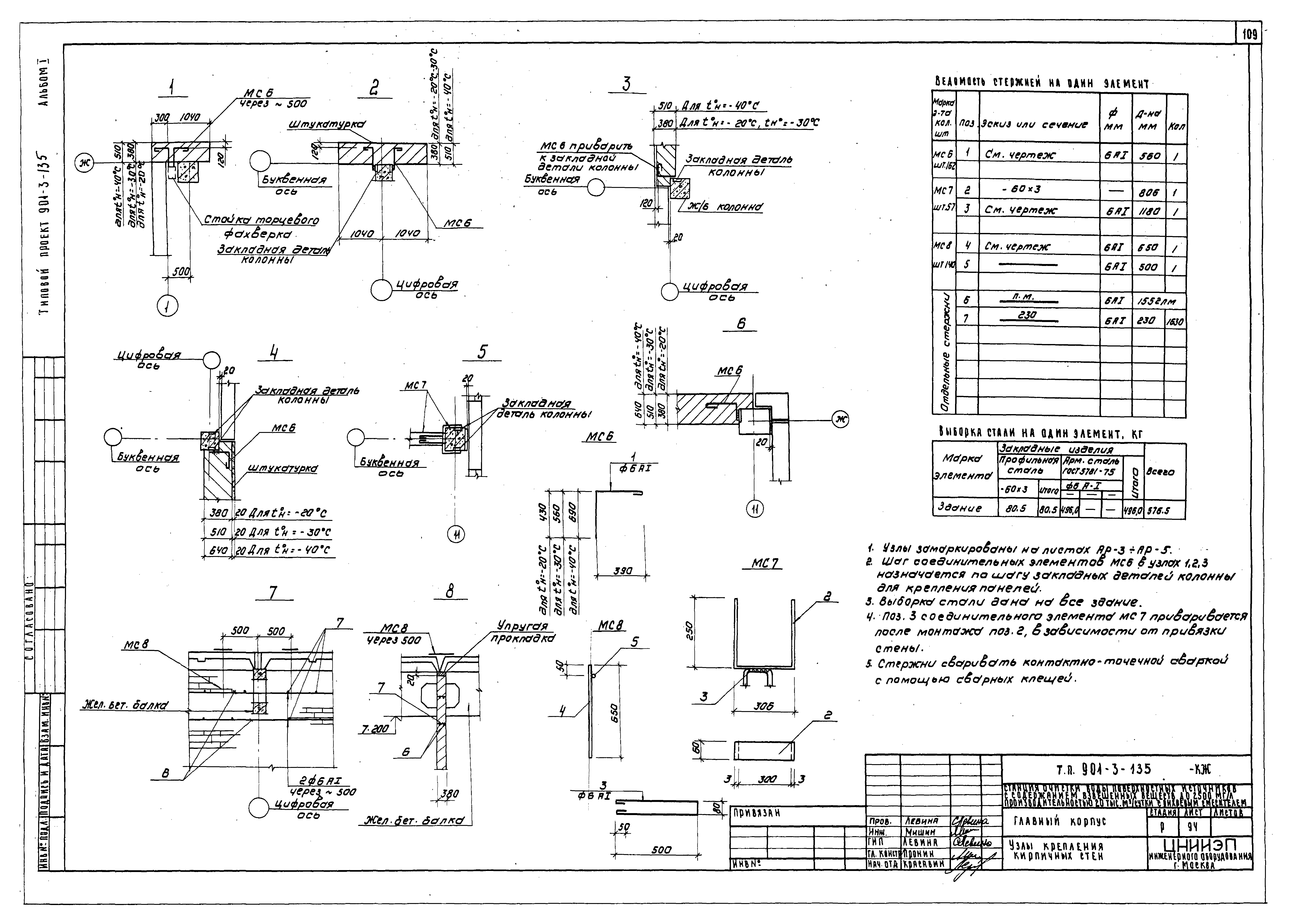
Скачать Типовой проект 901-3-136 Альбом I. Архитектурно-строительная часть (из ТП 901-3-135)Дата актуализации: 01.01.2021 Типовой проект 901-3-136
Альбом I. Архитектурно-строительная часть (из ТП 901-3-135)| Обозначение: | Типовой проект 901-3-136 | | Обозначение англ: | 901-3-136 | | Статус: | заменен | | Название рус.: | Альбом I. Архитектурно-строительная часть (из ТП 901-3-135) | | Дата добавления в базу: | 01.09.2013 | | Дата актуализации: | 01.01.2021 | | Дата введения: | 26.03.1980 | | Дата окончания срока действия: | 01.04.1989 | | Разработан: | ЦНИИЭП
| | Утверждён: | 27.05.1976 Госгражданстрой (Gosgrazhdanstroy 118)
| | Заменяет собой: | | | Чем заменён: | |
                                                                                                             
|