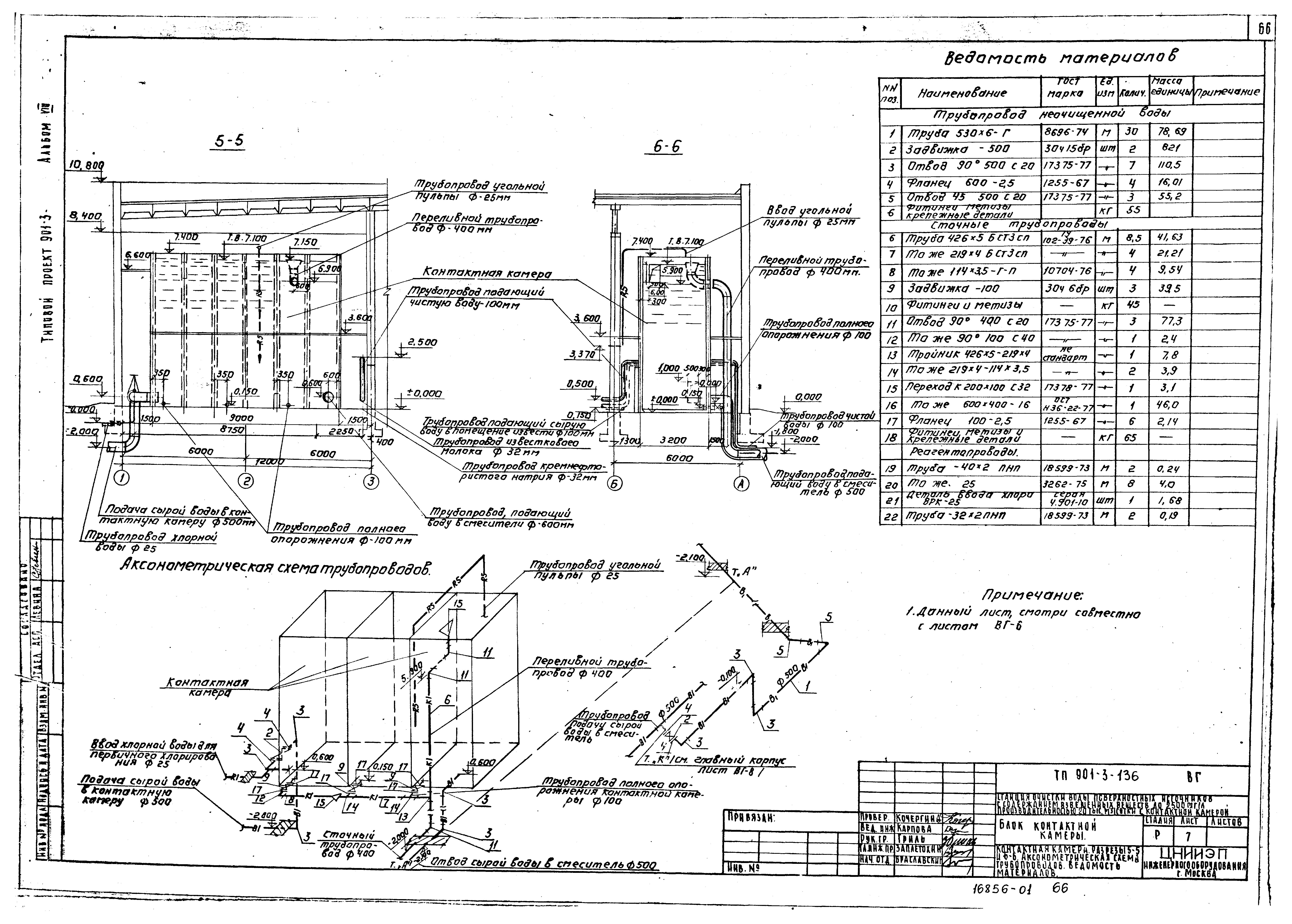
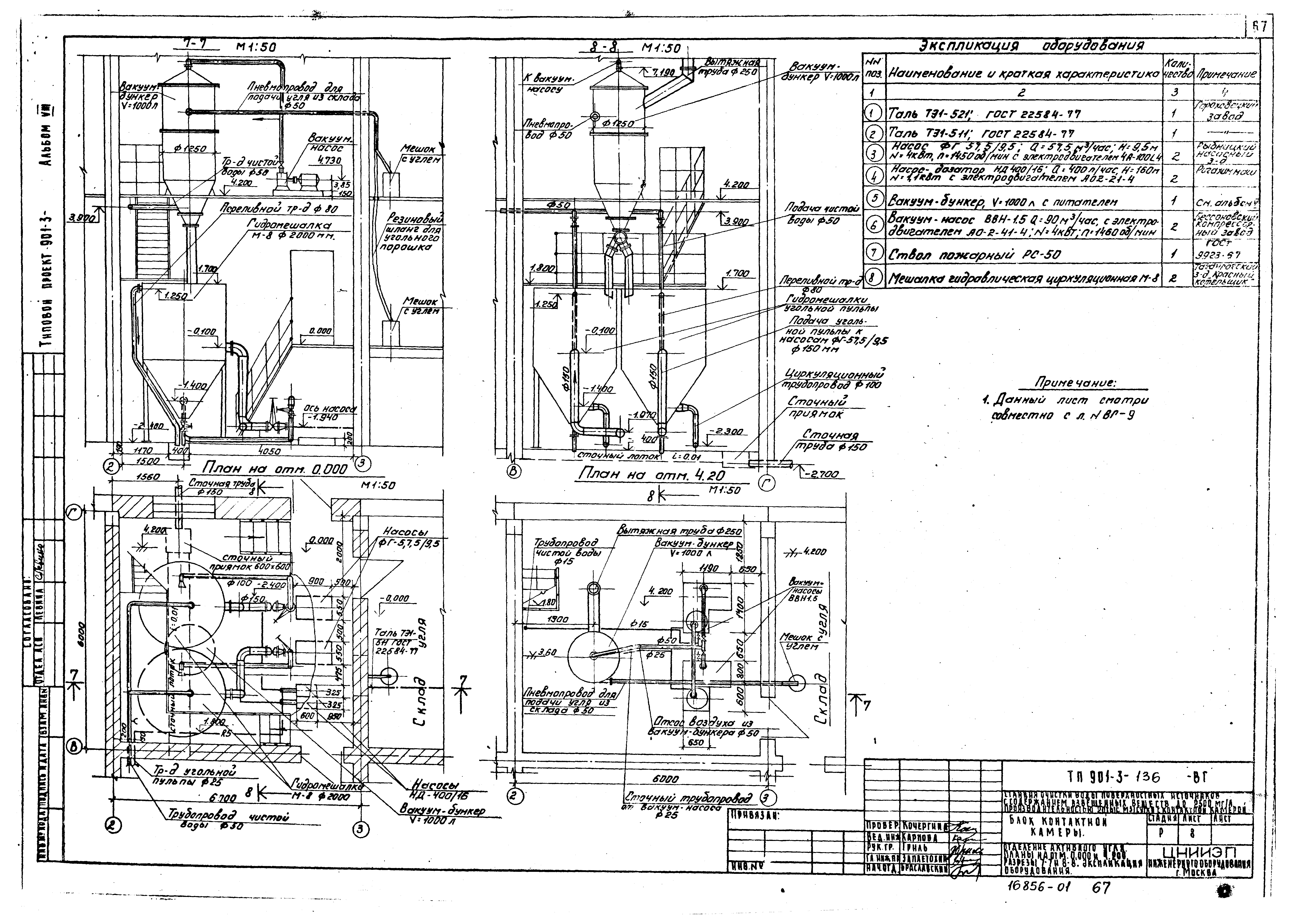
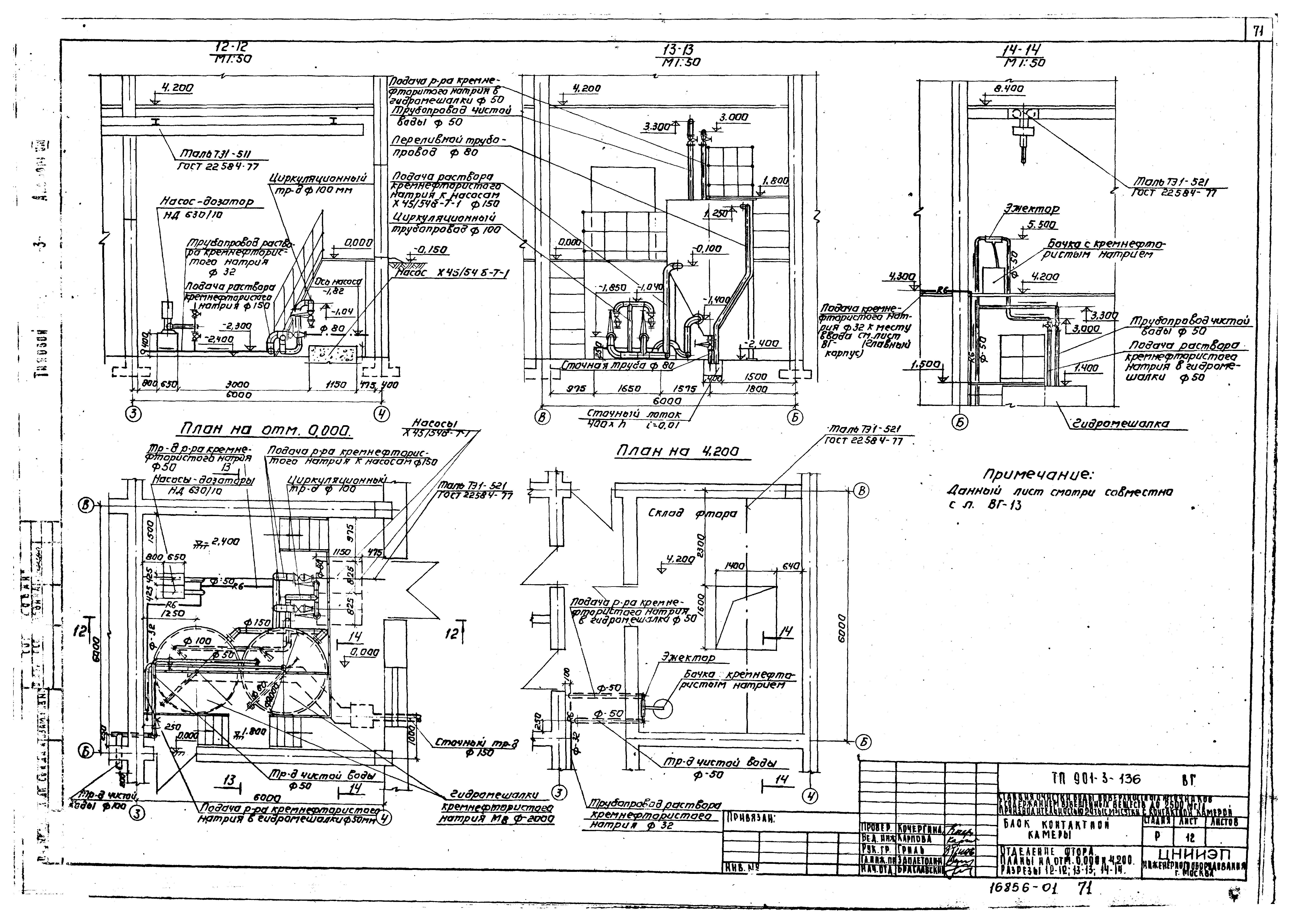
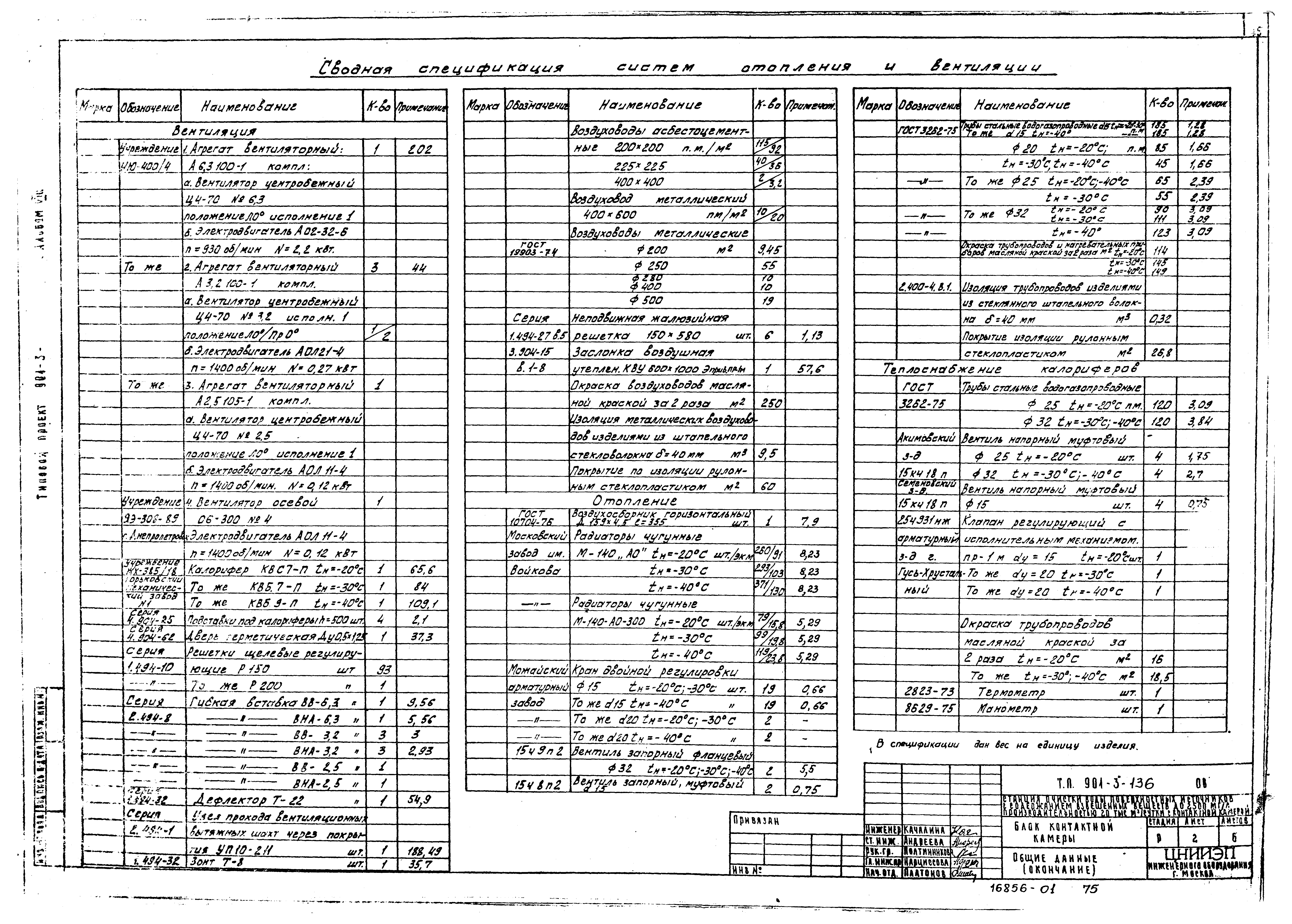
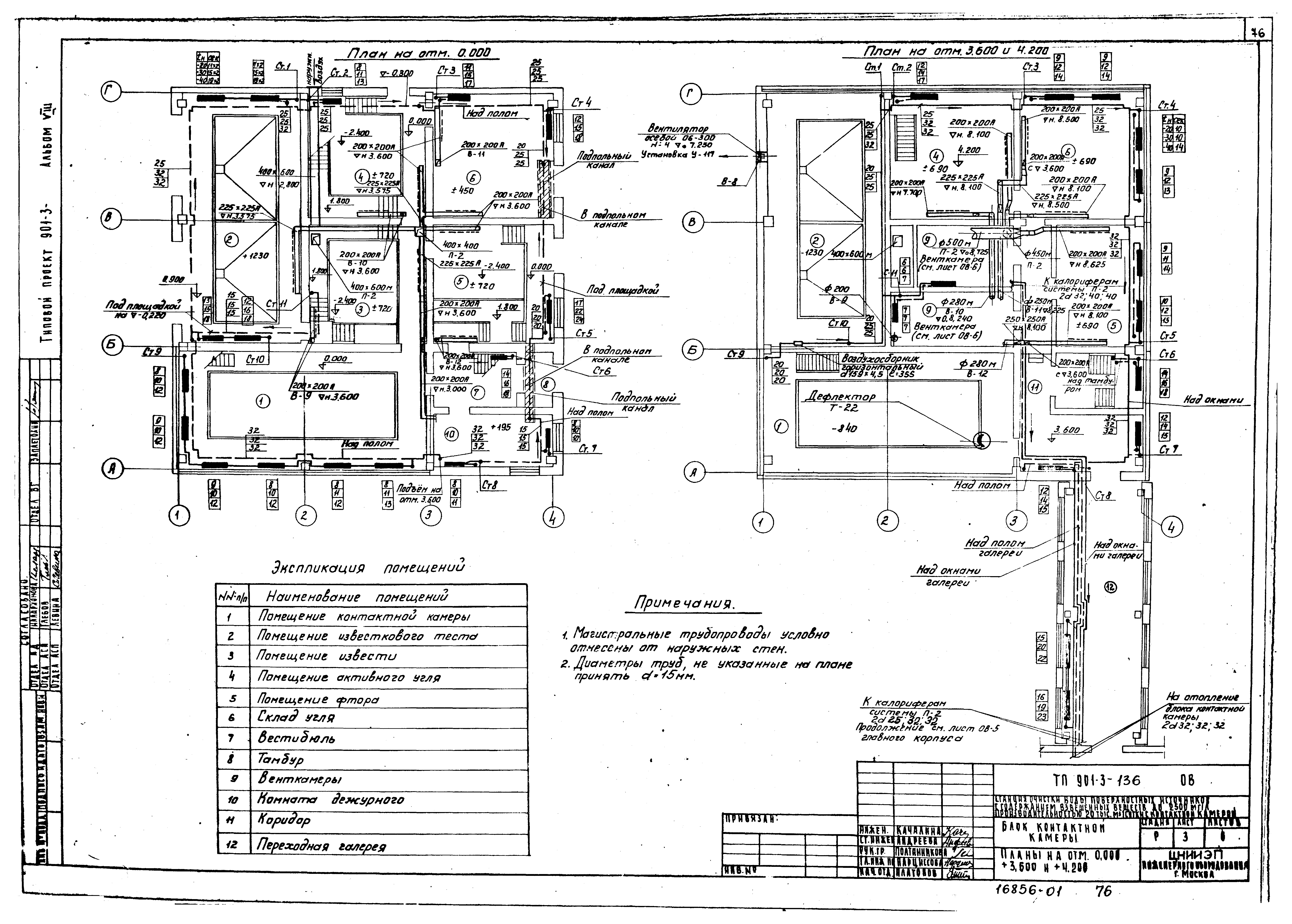
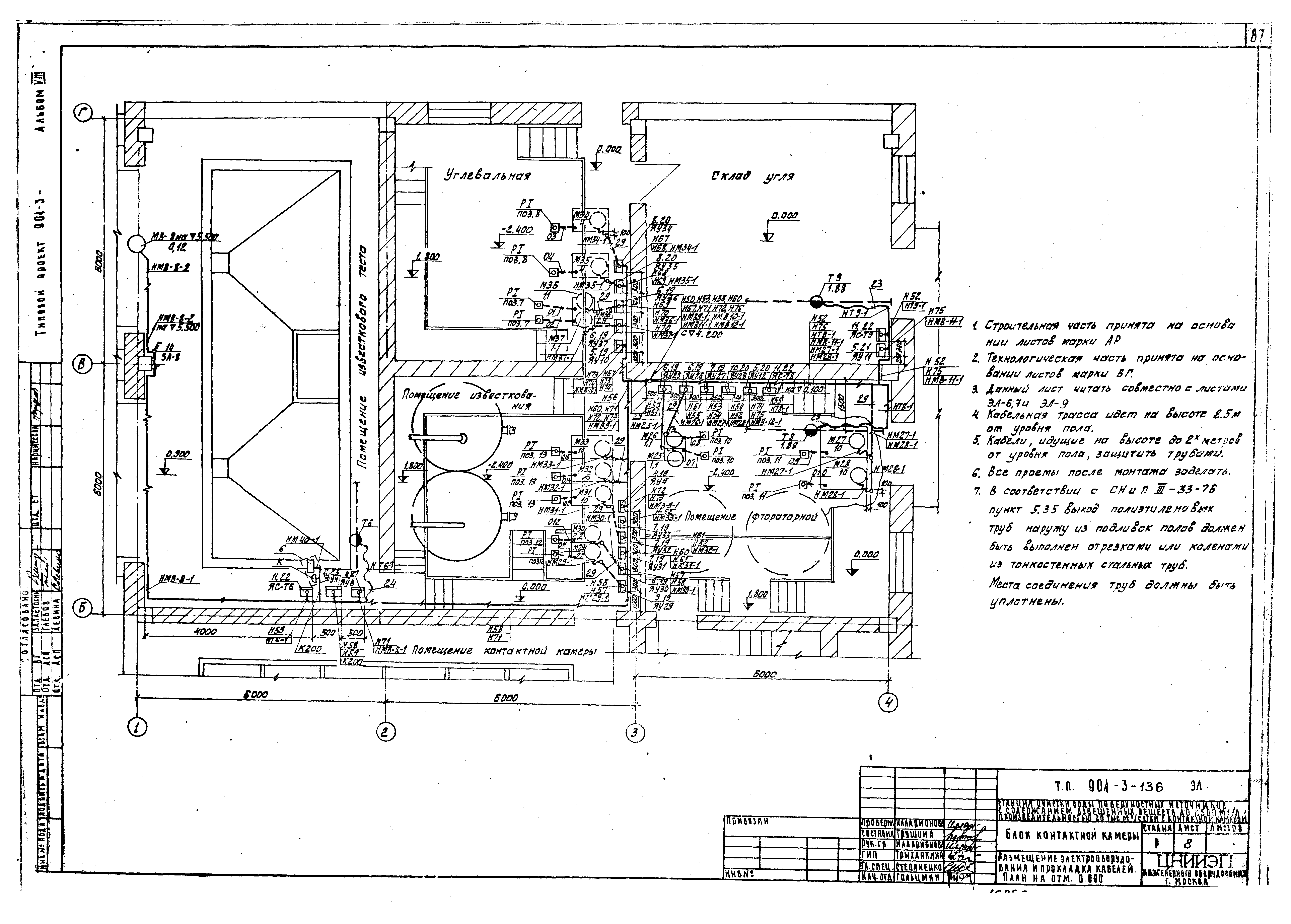
Скачать Типовой проект 901-3-136 Альбом VIII. Архитектурно-строительная, технологическая, санитарно-техническая и электротехническая части, связь и сигнализацияДата актуализации: 01.01.2021 Типовой проект 901-3-136
Альбом VIII. Архитектурно-строительная, технологическая, санитарно-техническая и электротехническая части, связь и сигнализация| Обозначение: | Типовой проект 901-3-136 | | Обозначение англ: | 901-3-136 | | Статус: | заменен | | Название рус.: | Альбом VIII. Архитектурно-строительная, технологическая, санитарно-техническая и электротехническая части, связь и сигнализация | | Дата добавления в базу: | 01.09.2013 | | Дата актуализации: | 01.01.2021 | | Дата введения: | 26.03.1980 | | Дата окончания срока действия: | 01.04.1989 | | Разработан: | ЦНИИЭП
| | Утверждён: | 27.05.1976 Госгражданстрой (Gosgrazhdanstroy 118)
| | Заменяет собой: | | | Чем заменён: | |
                                                                                                  
|