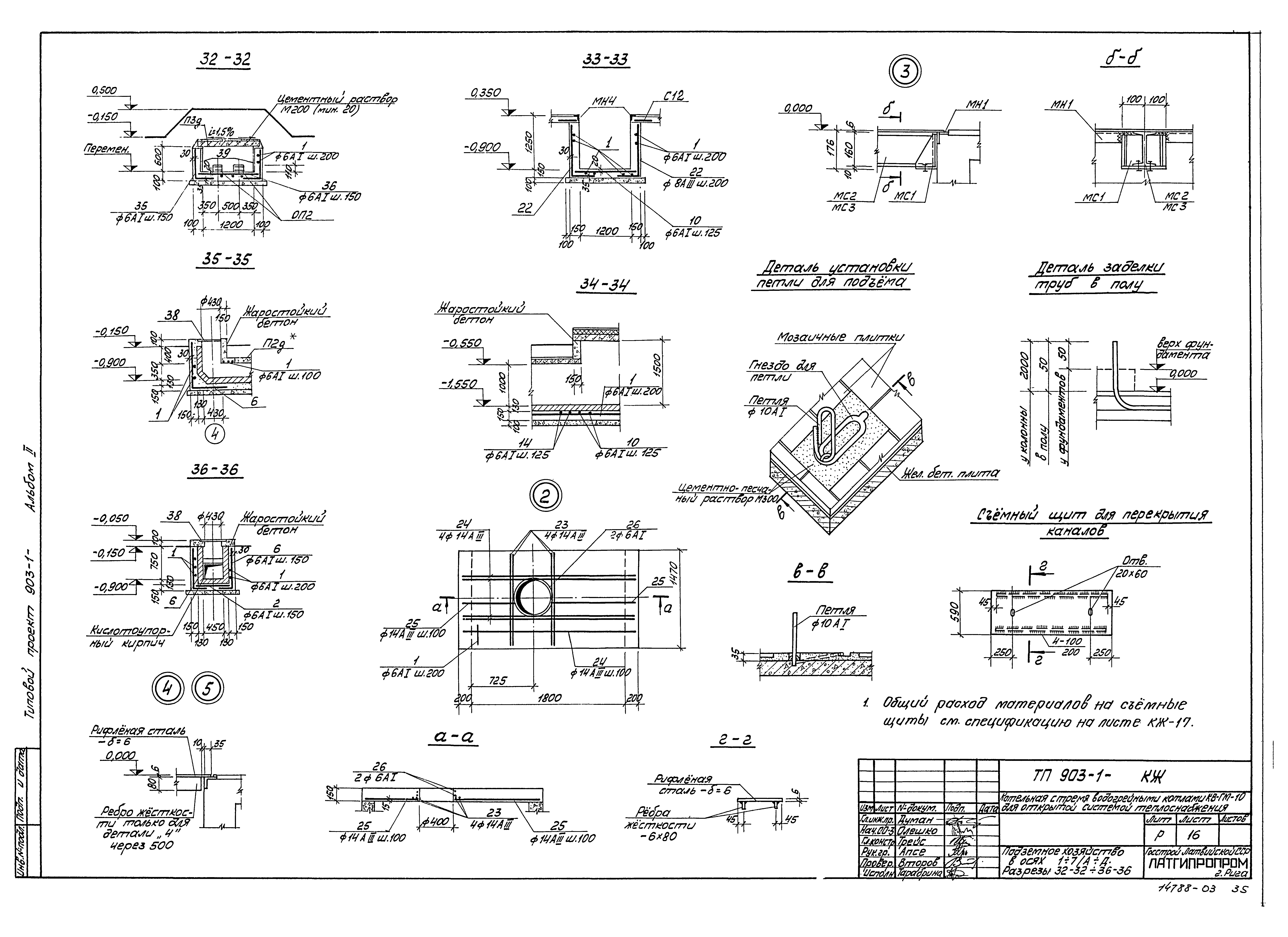
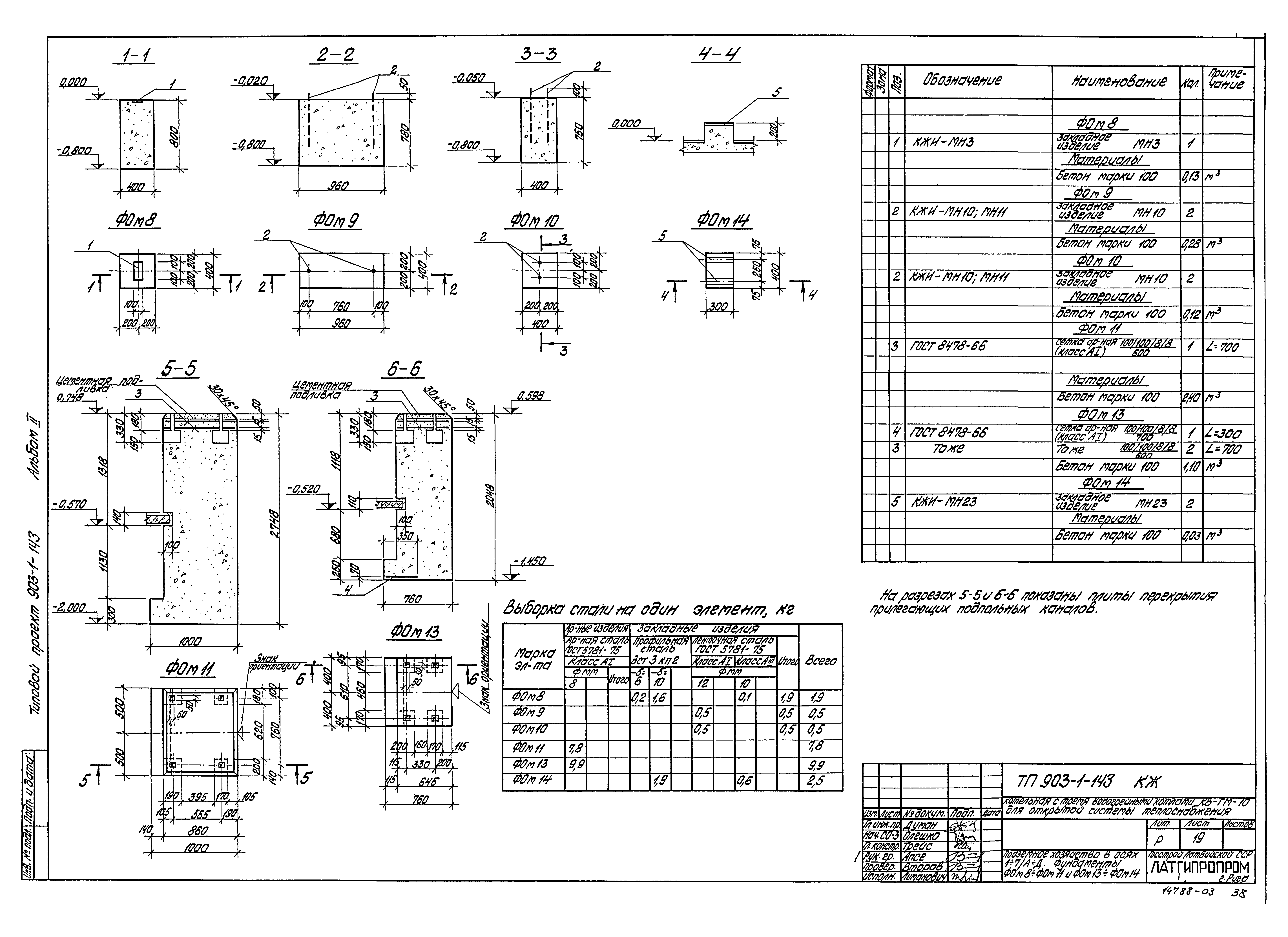
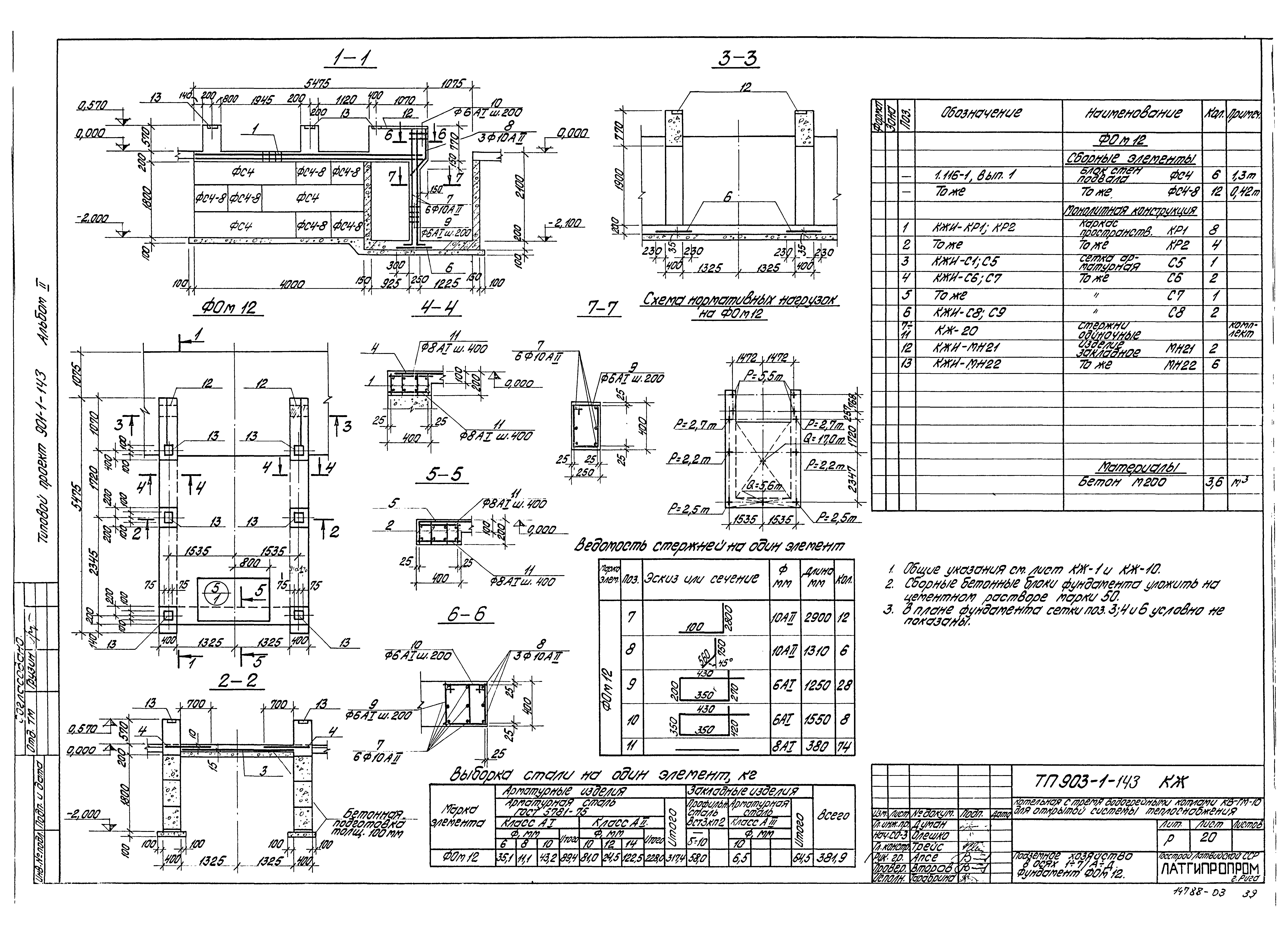
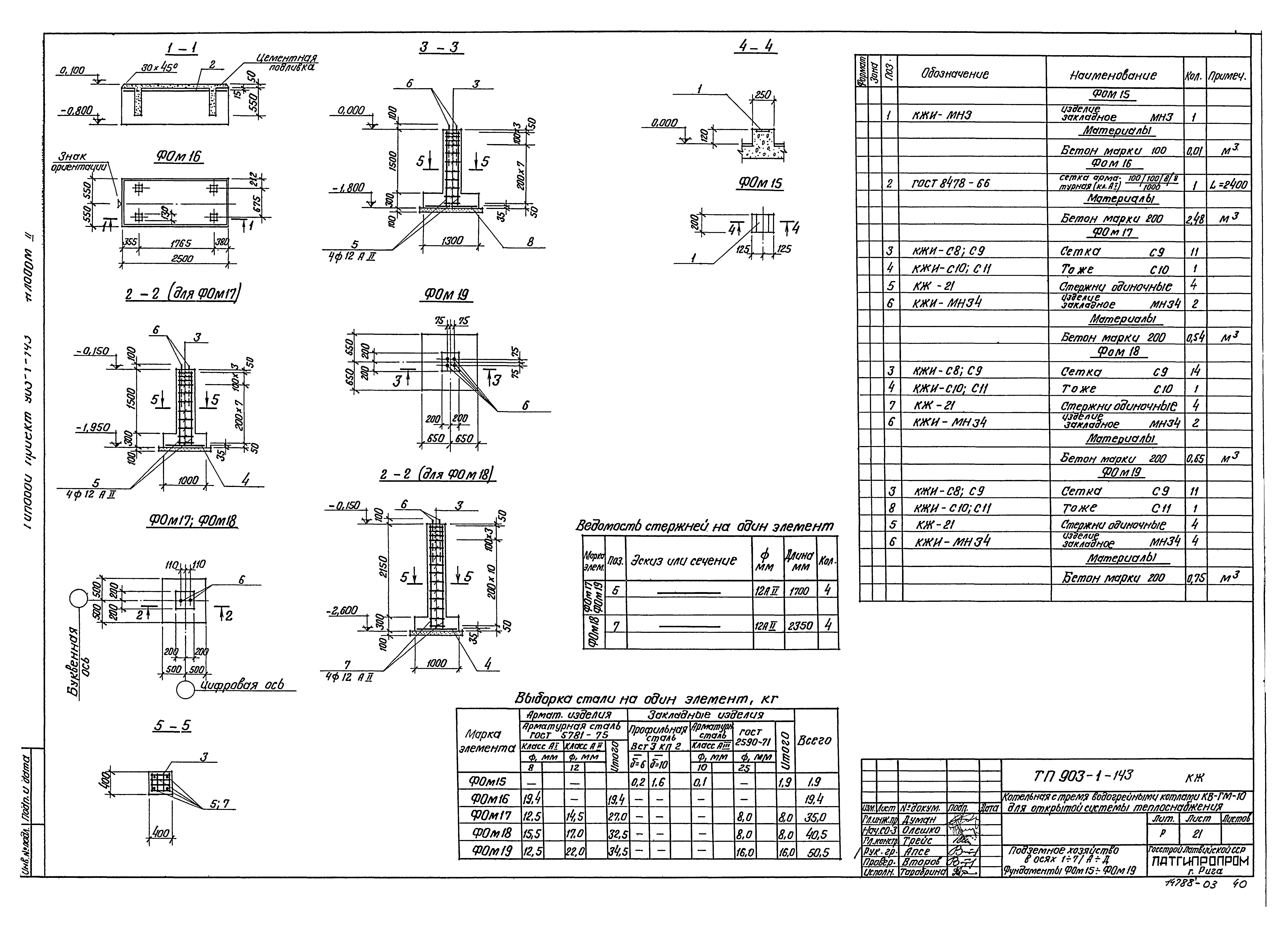
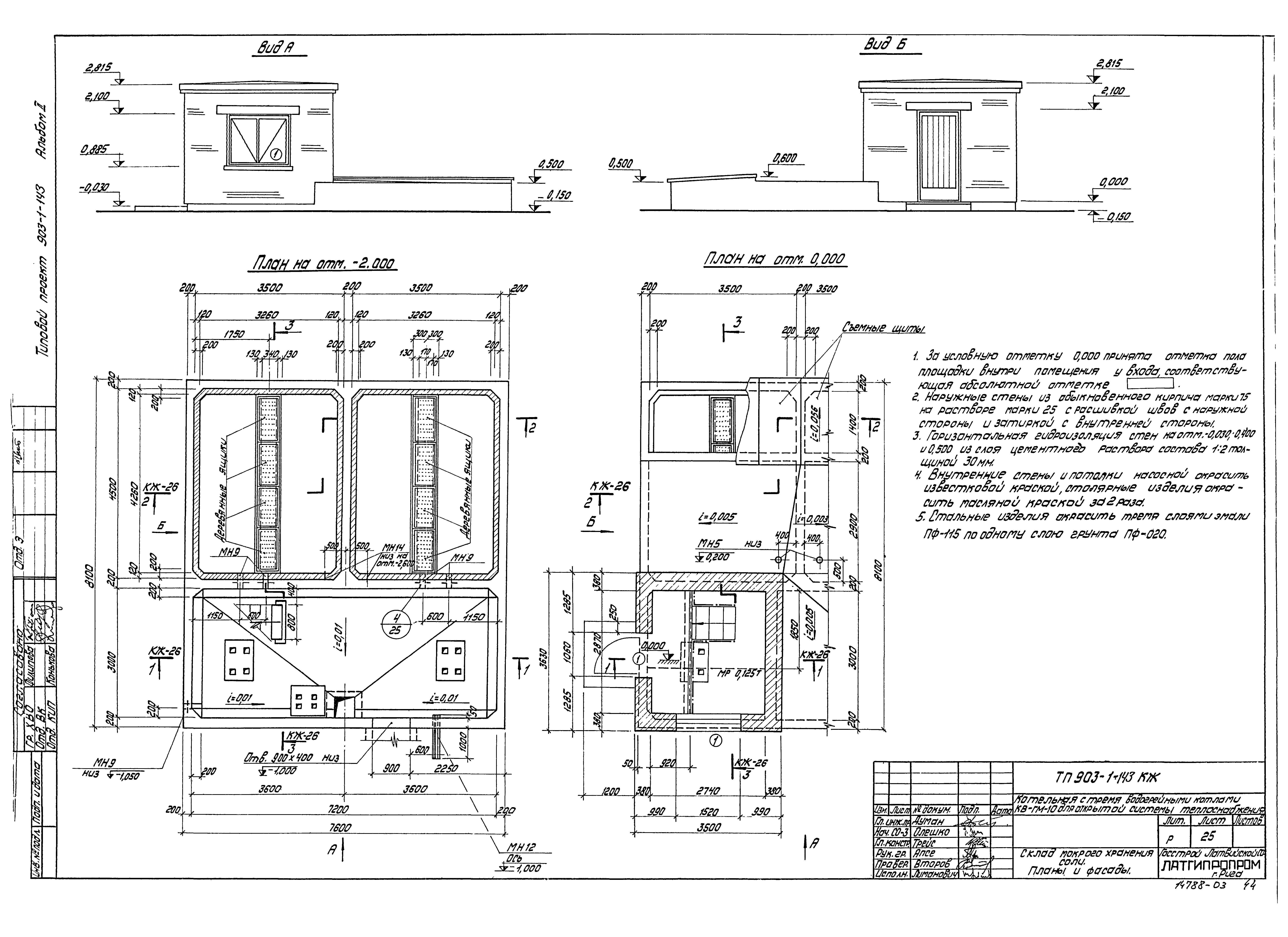
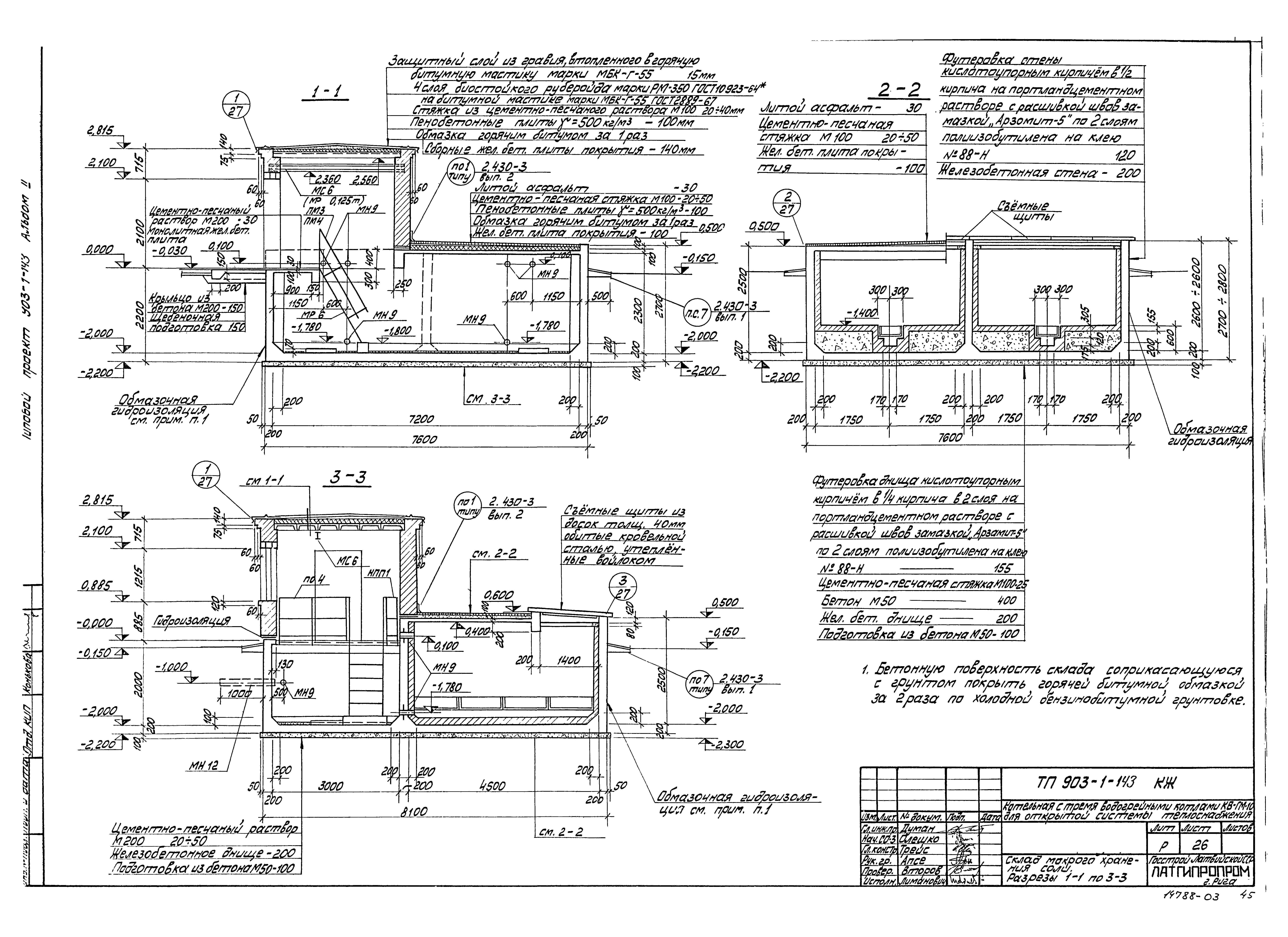
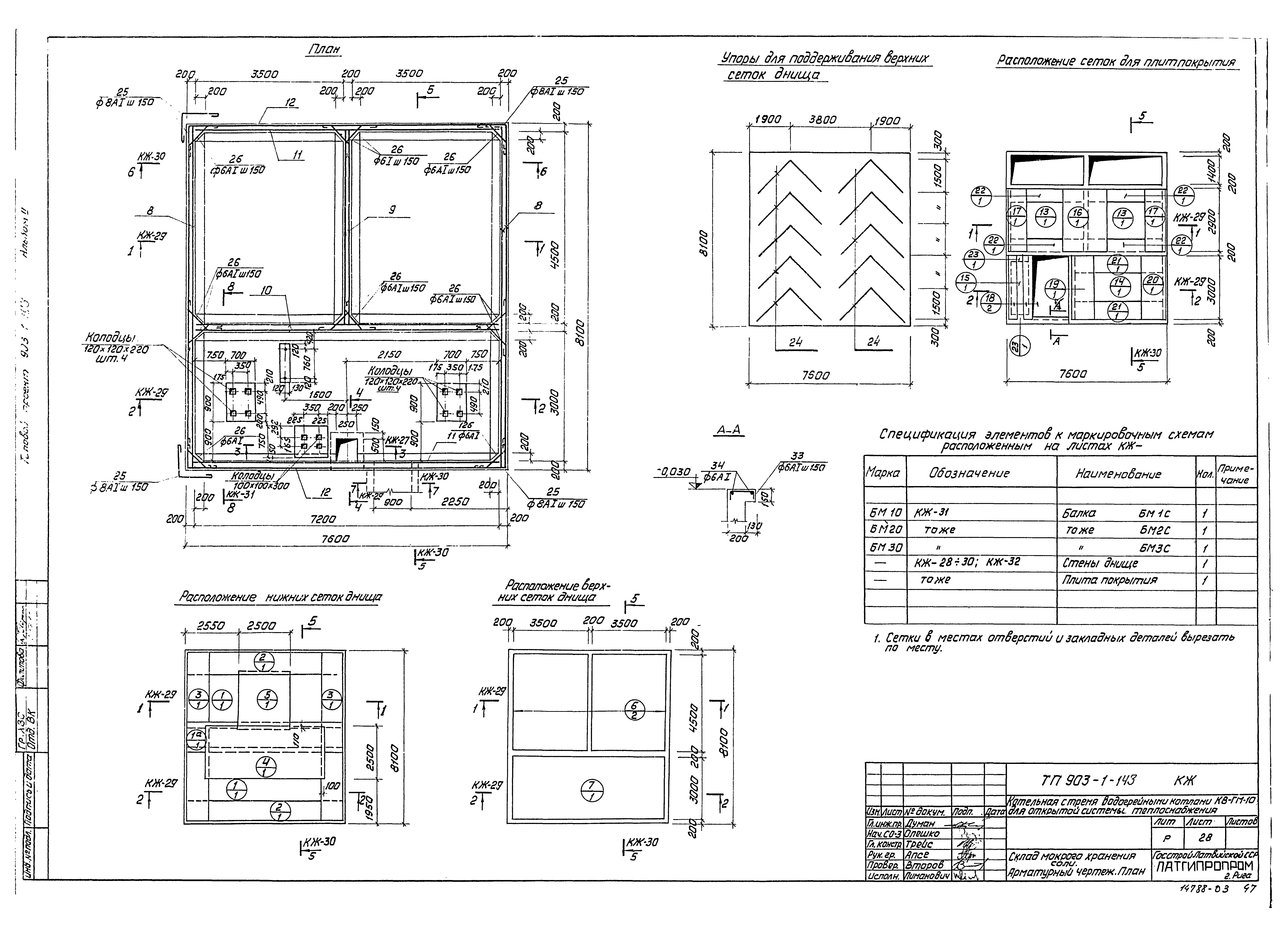
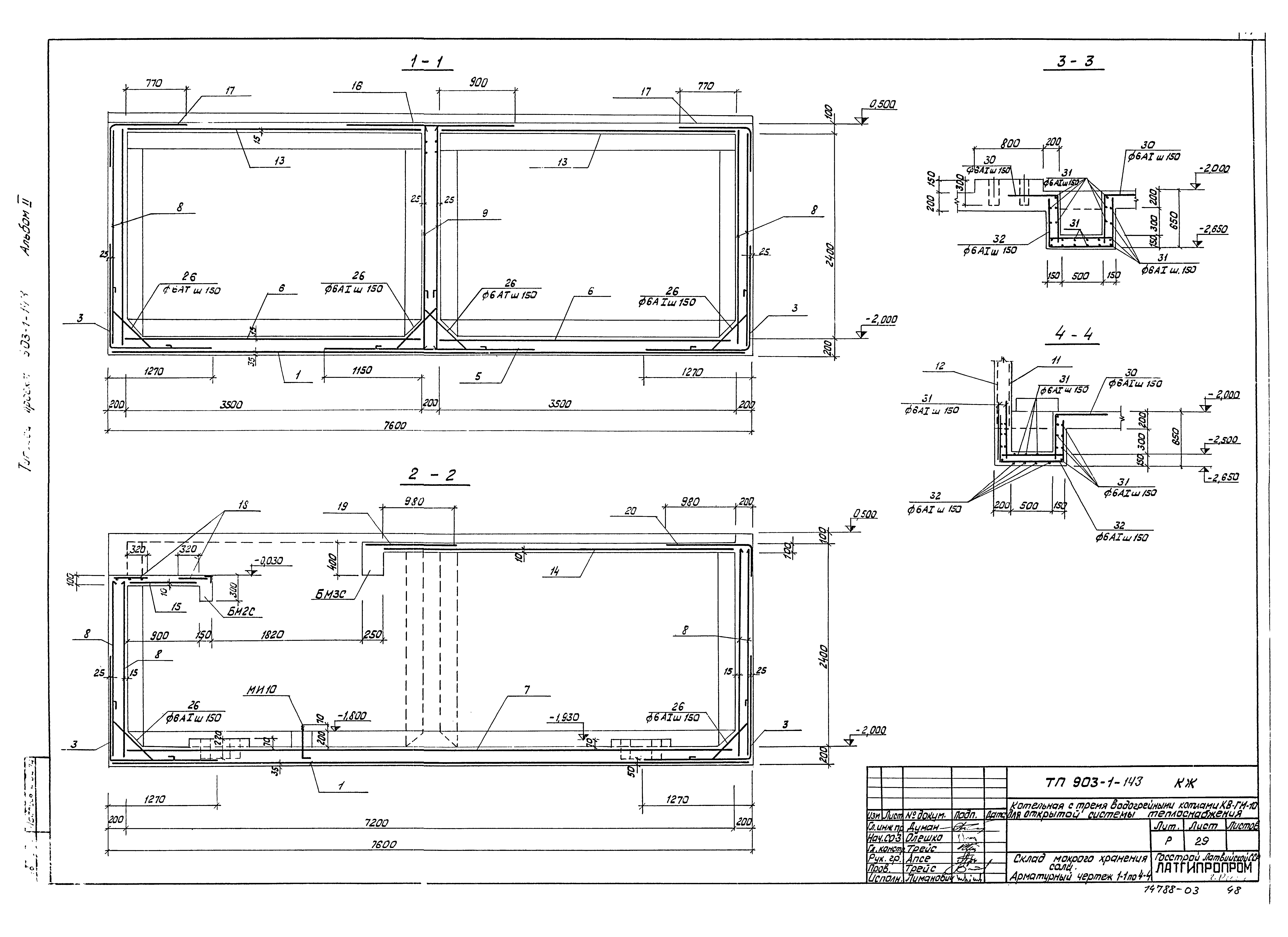
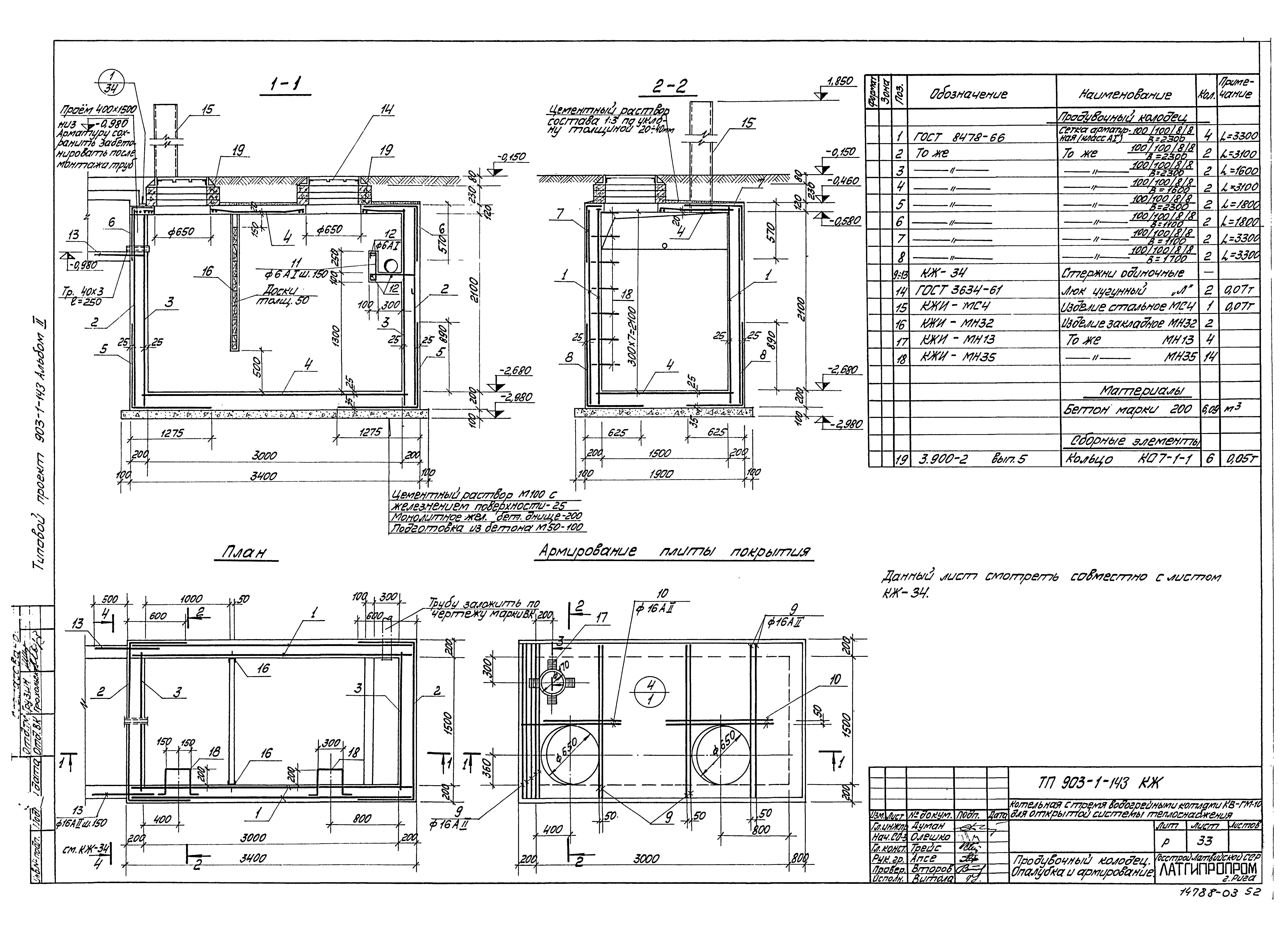
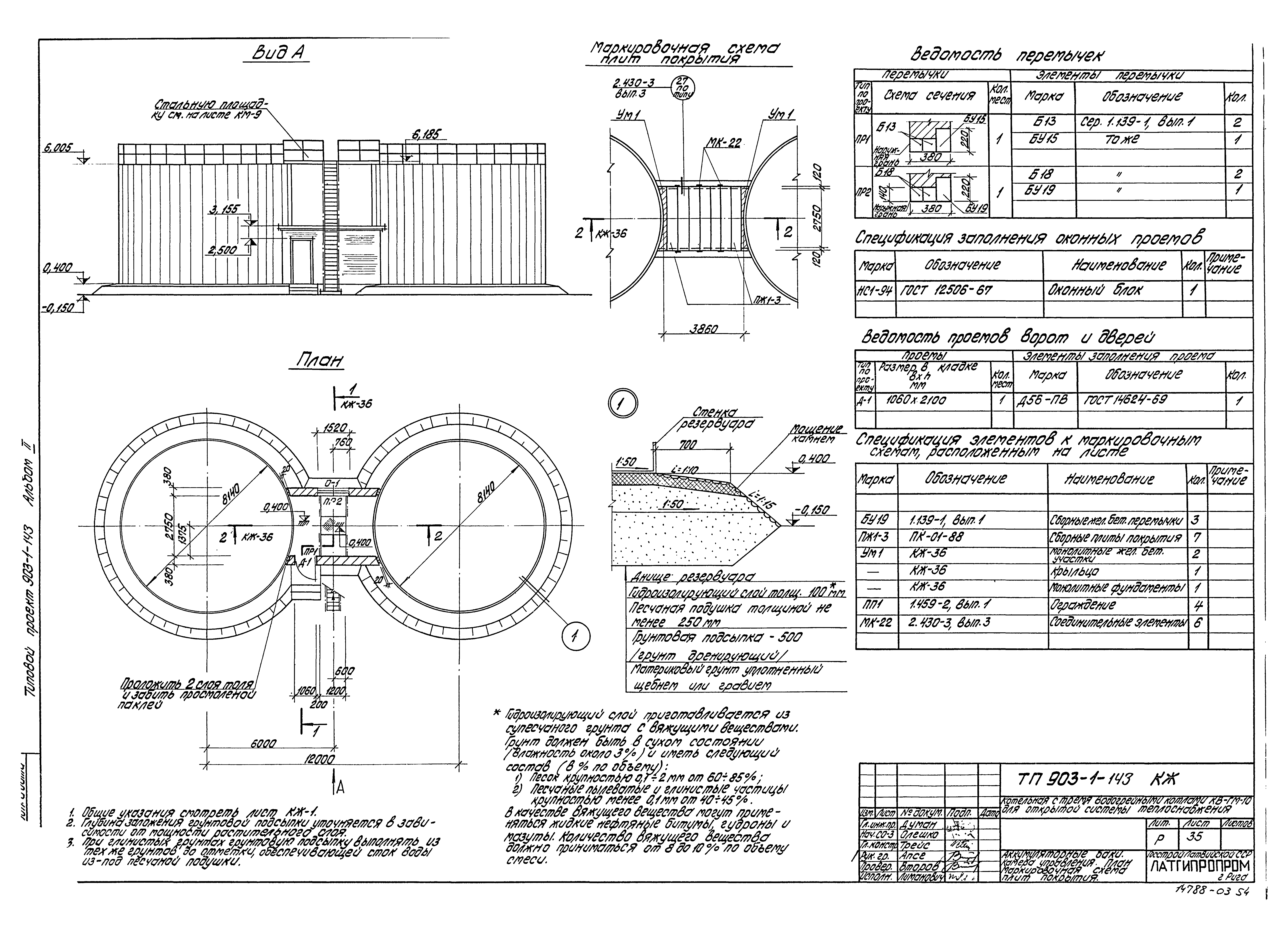
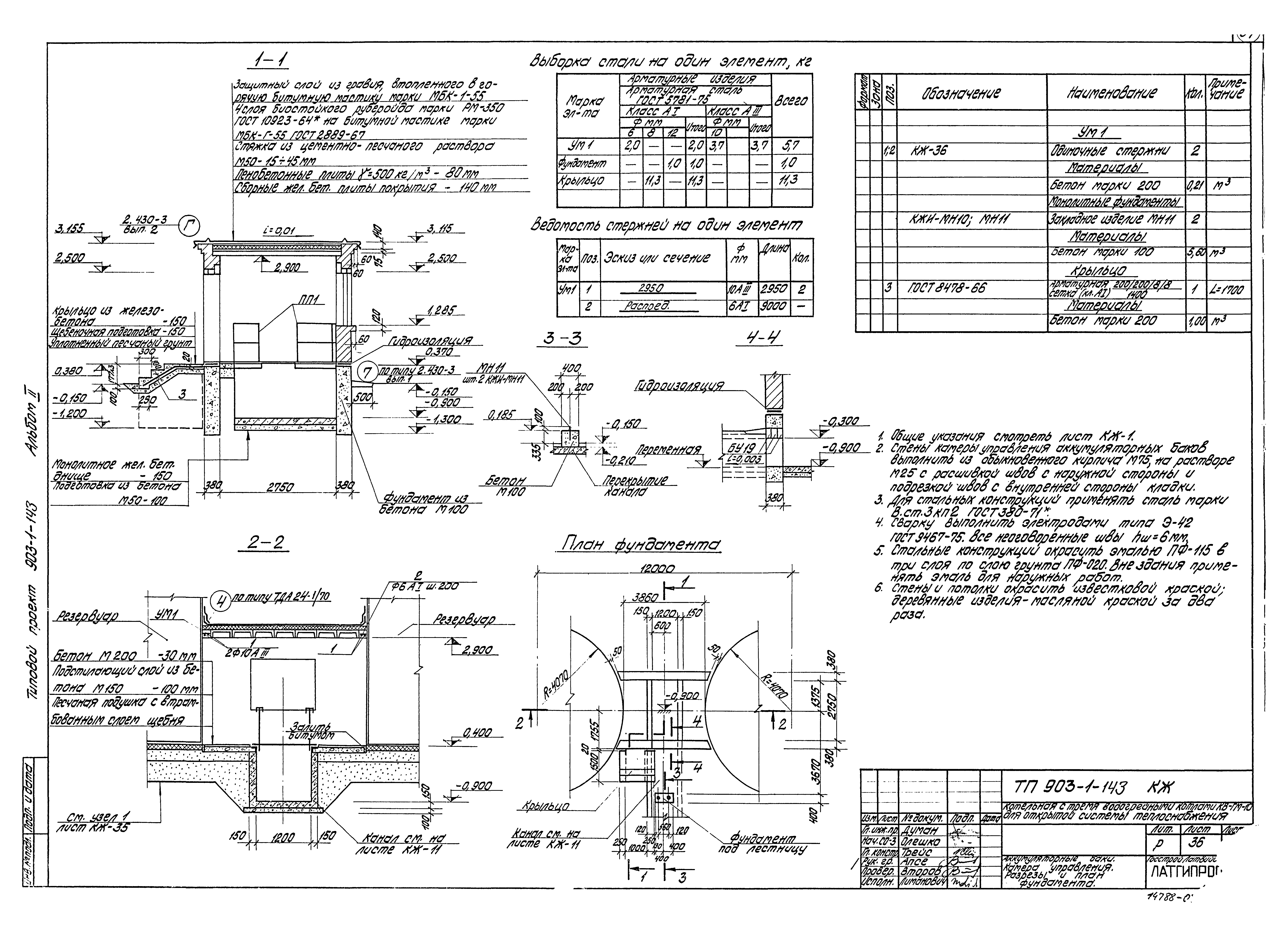
Скачать Типовой проект 903-1-143 Альбом II. Архитектурно-строительная часть. Общие чертежи и нулевой циклДата актуализации: 01.01.2021
|
| Обозначение: | Типовой проект 903-1-143 |
| Обозначение англ: | 903-1-143 |
| Статус: | заменен |
| Название рус.: | Альбом II. Архитектурно-строительная часть. Общие чертежи и нулевой цикл |
| Дата добавления в базу: | 05.05.2017 |
| Дата актуализации: | 01.01.2021 |
| Дата введения: | 01.08.1977 |
| Дата окончания срока действия: | 01.03.1987 |
| Разработан: | Латгипропром |
| Утверждён: | 06.05.1977 Латгипропром (118) |
| Издан: | ЦИТП Госстроя СССР (CITP, Gosstroy (USSR) 1976 г. ) |
| Заменяет собой: |
|
| Чем заменён: |






















































