Скачать Типовой проект 903-1-143 Альбом V. Сантехнические устройства. Тепловые сетиДата актуализации: 01.01.2021
|
| Обозначение: | Типовой проект 903-1-143 |
| Обозначение англ: | 903-1-143 |
| Статус: | заменен |
| Название рус.: | Альбом V. Сантехнические устройства. Тепловые сети |
| Дата добавления в базу: | 01.09.2013 |
| Дата актуализации: | 01.01.2021 |
| Дата введения: | 01.08.1977 |
| Дата окончания срока действия: | 01.03.1987 |
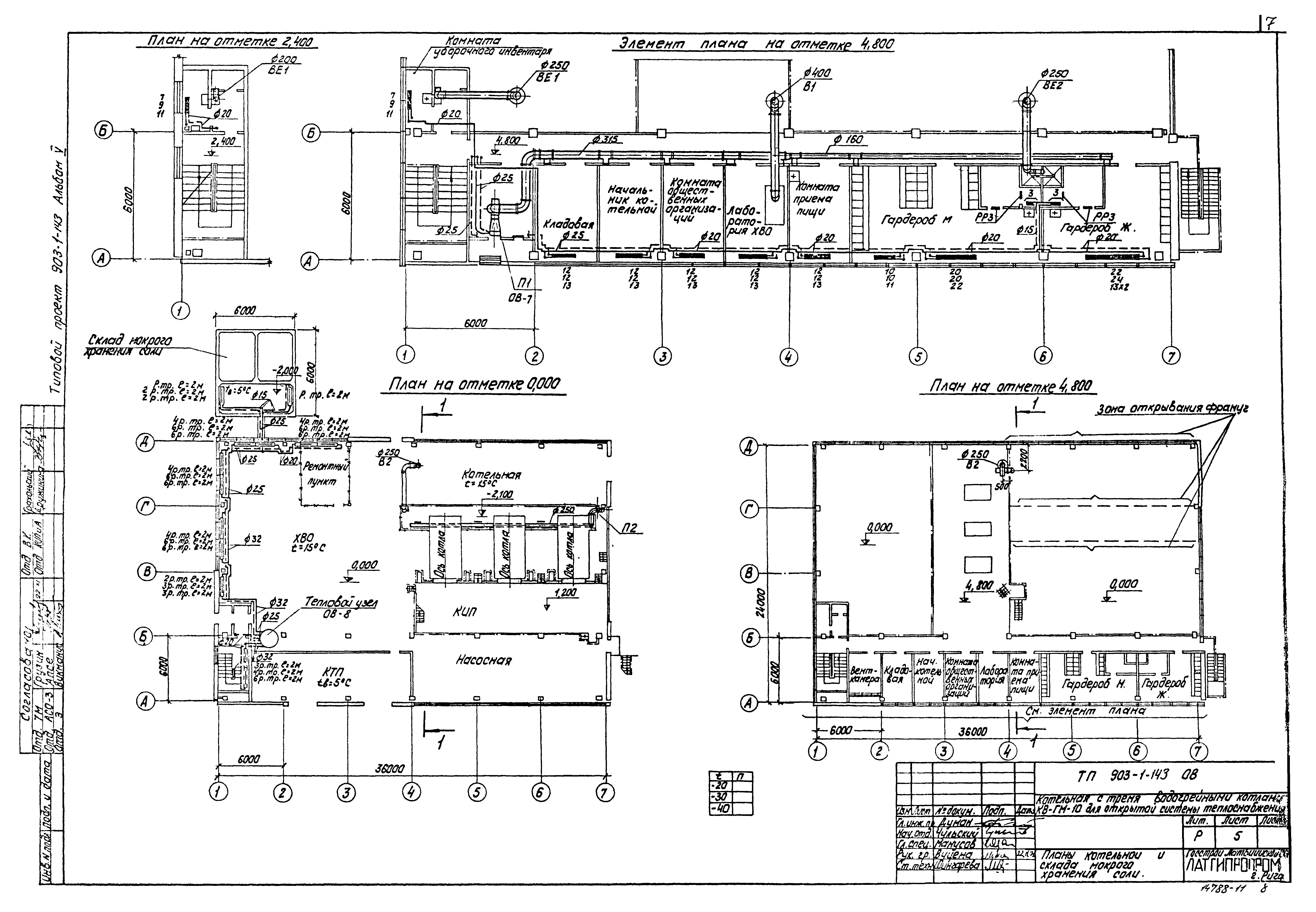
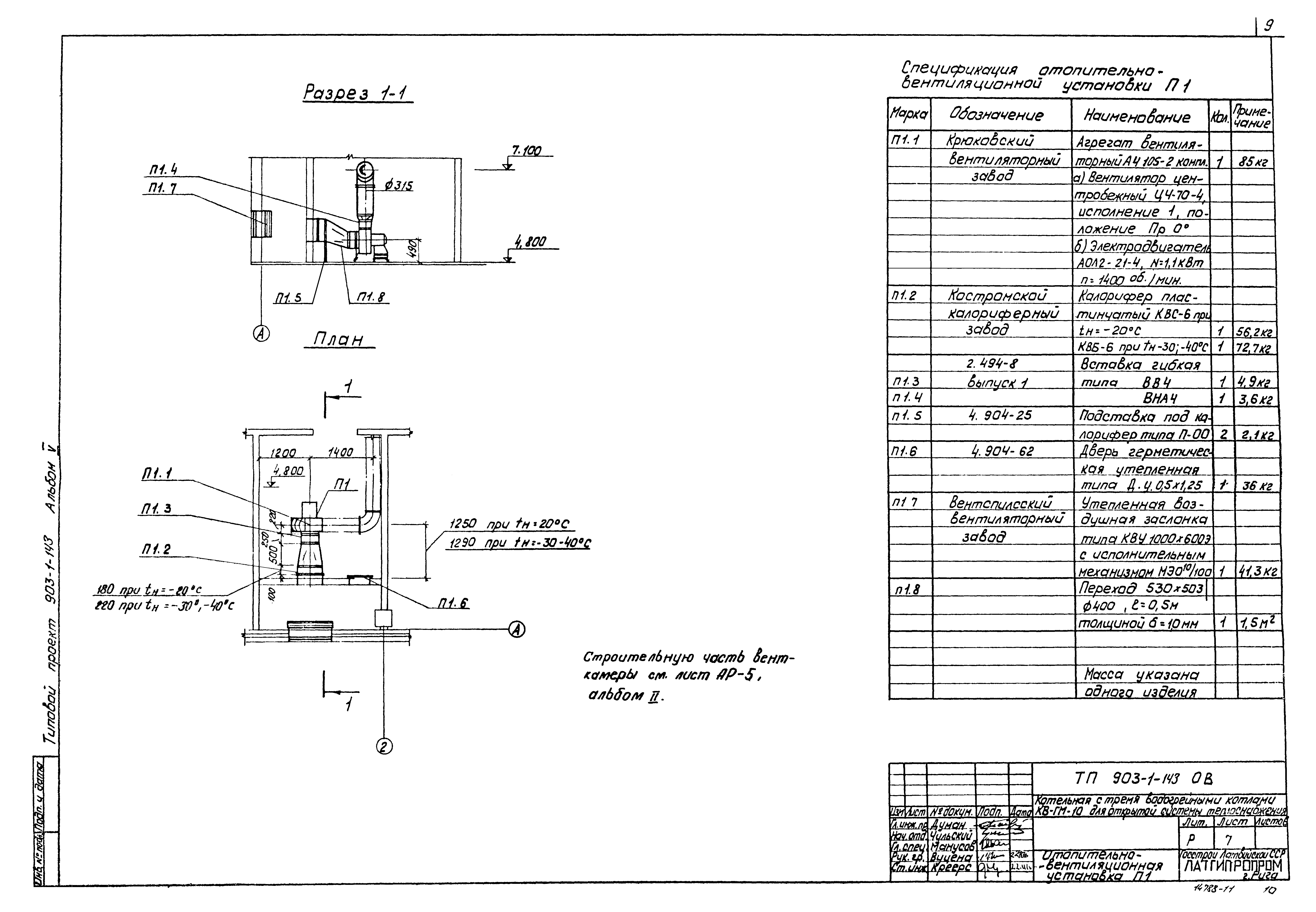
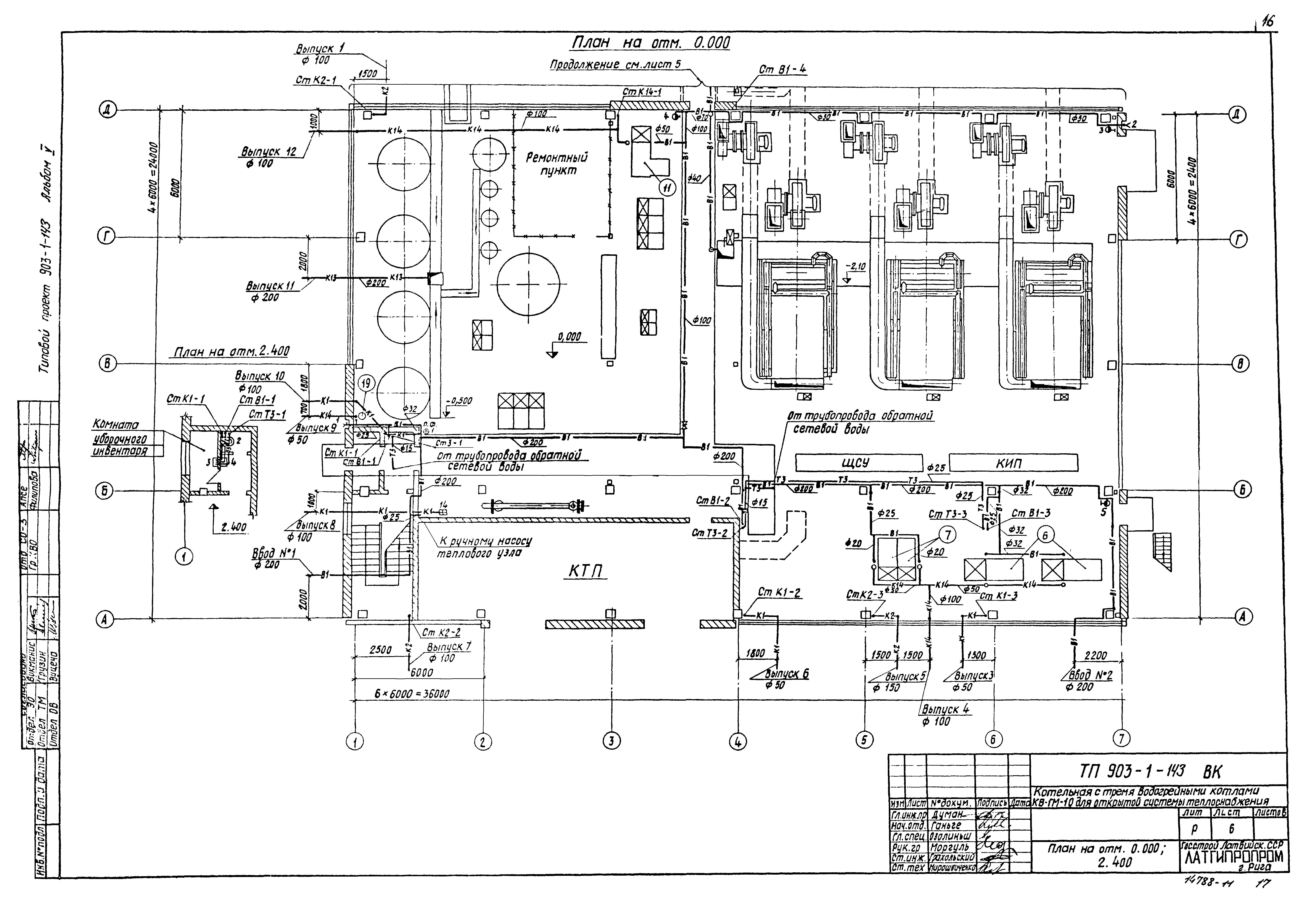
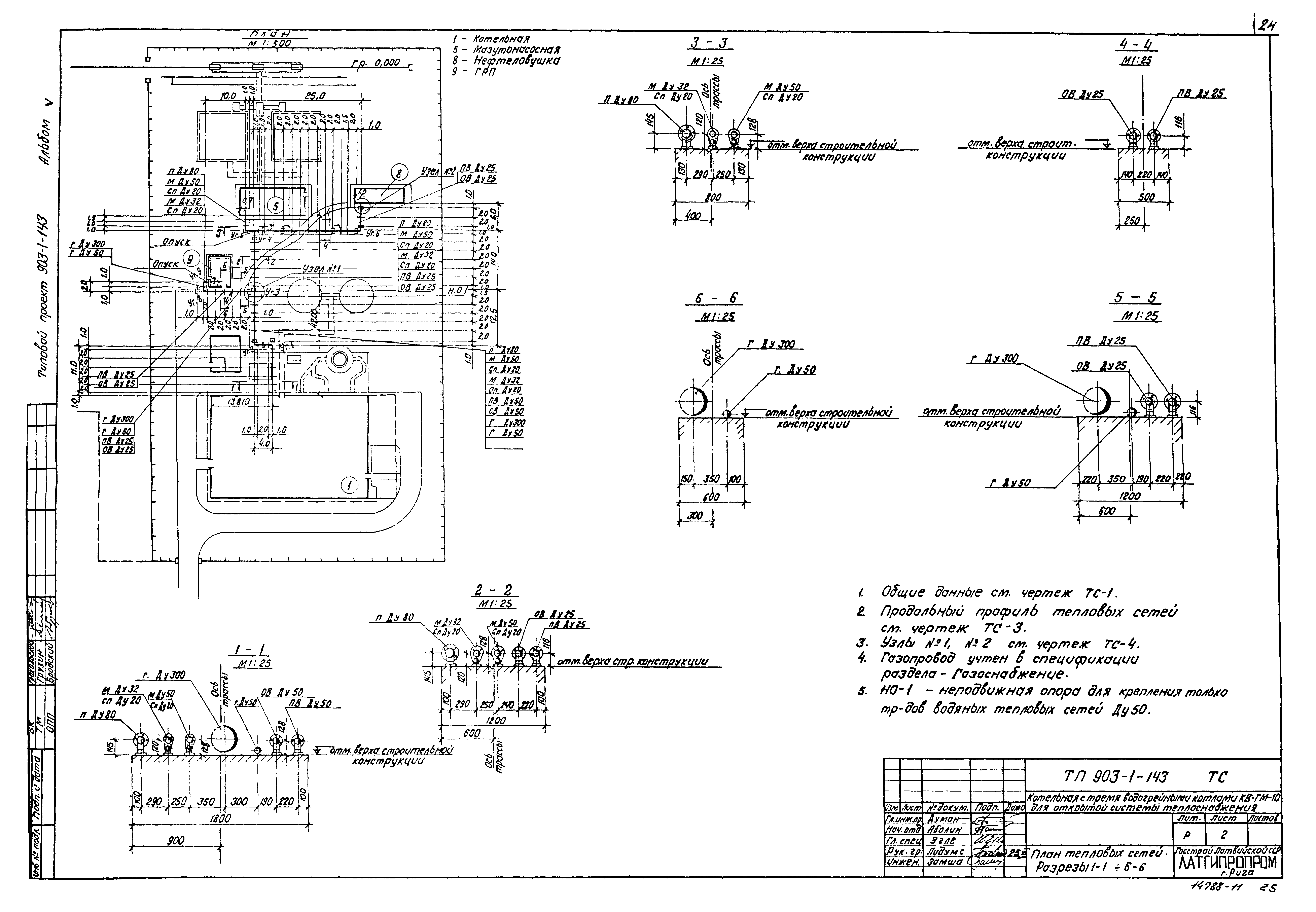
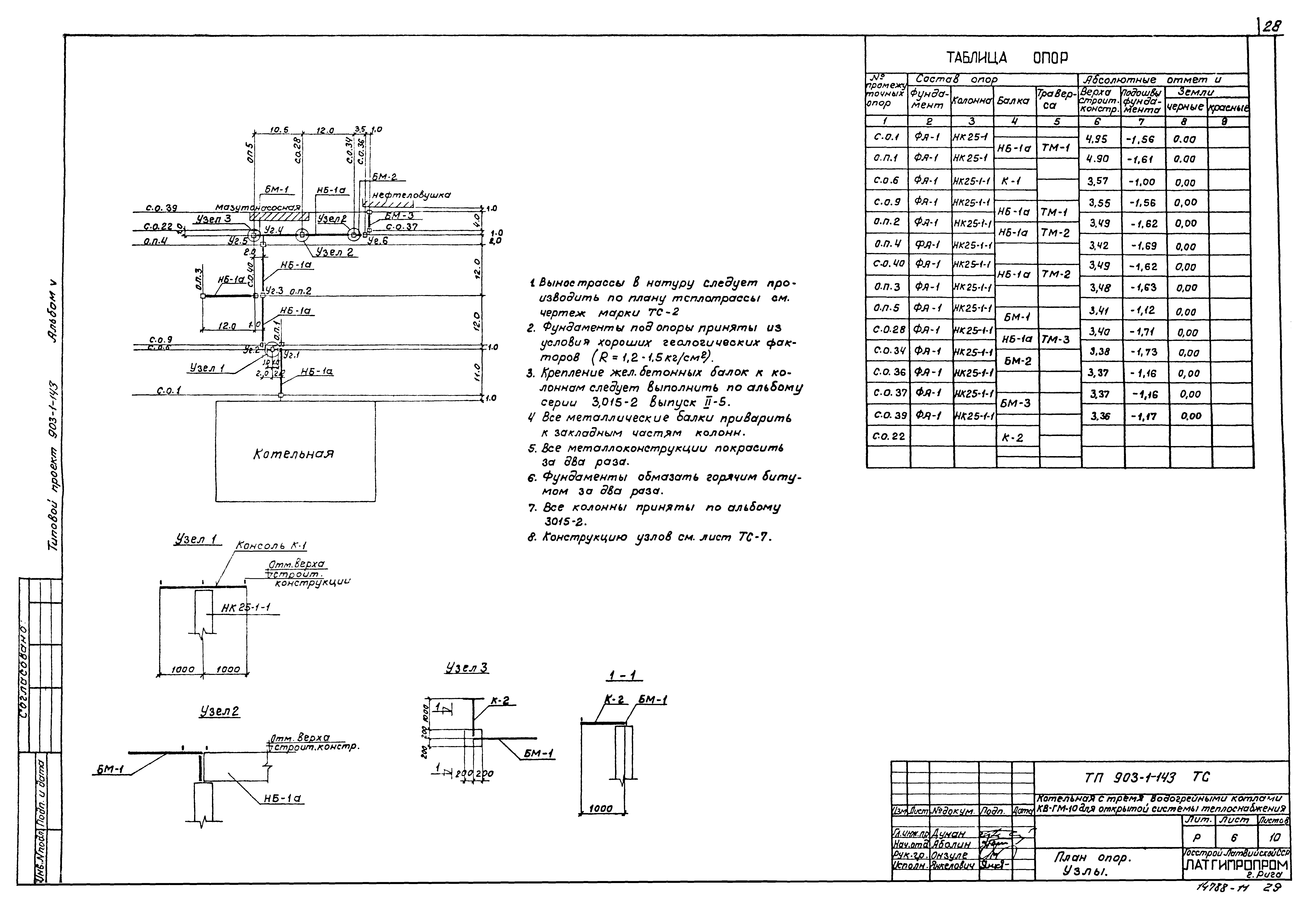
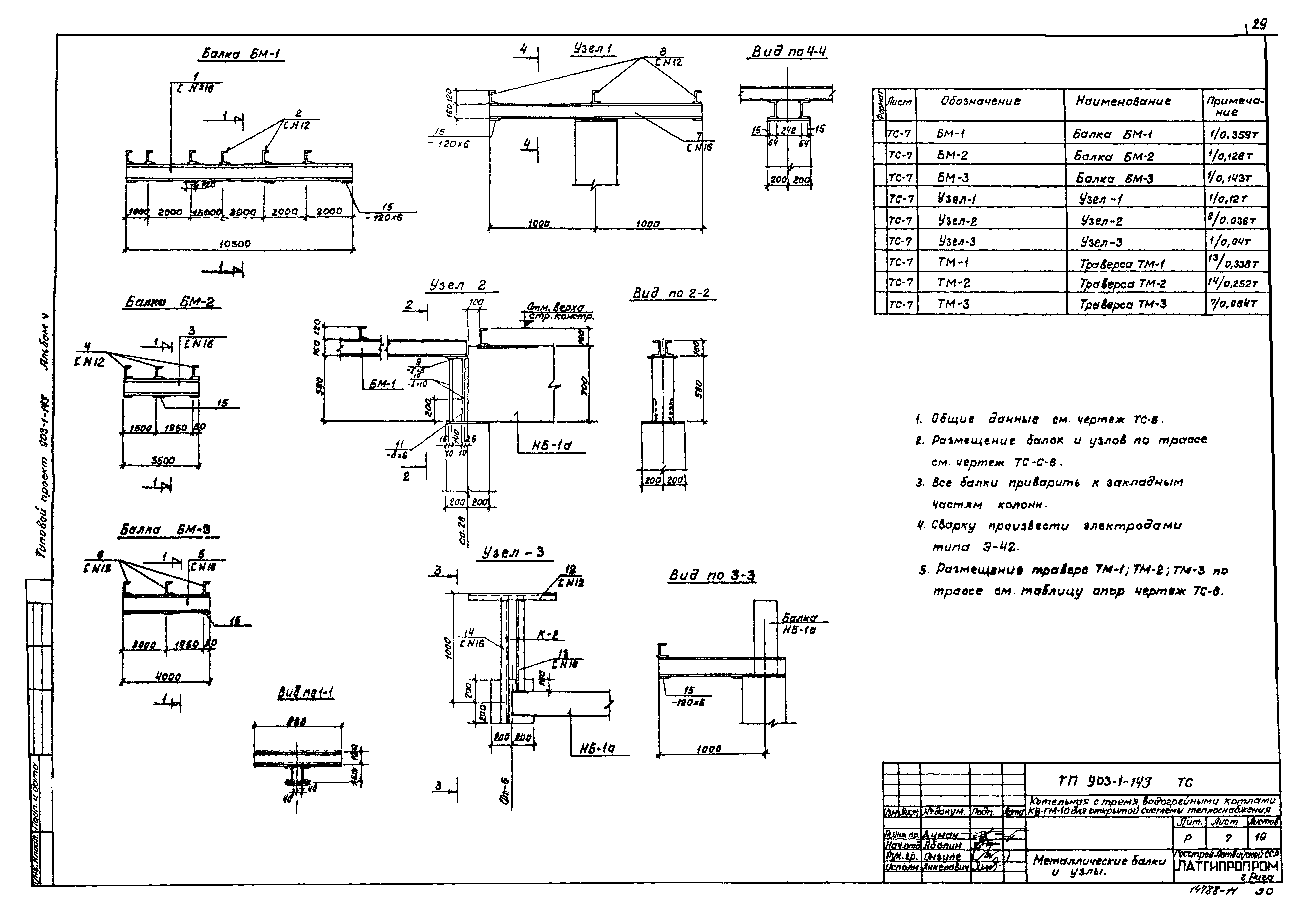
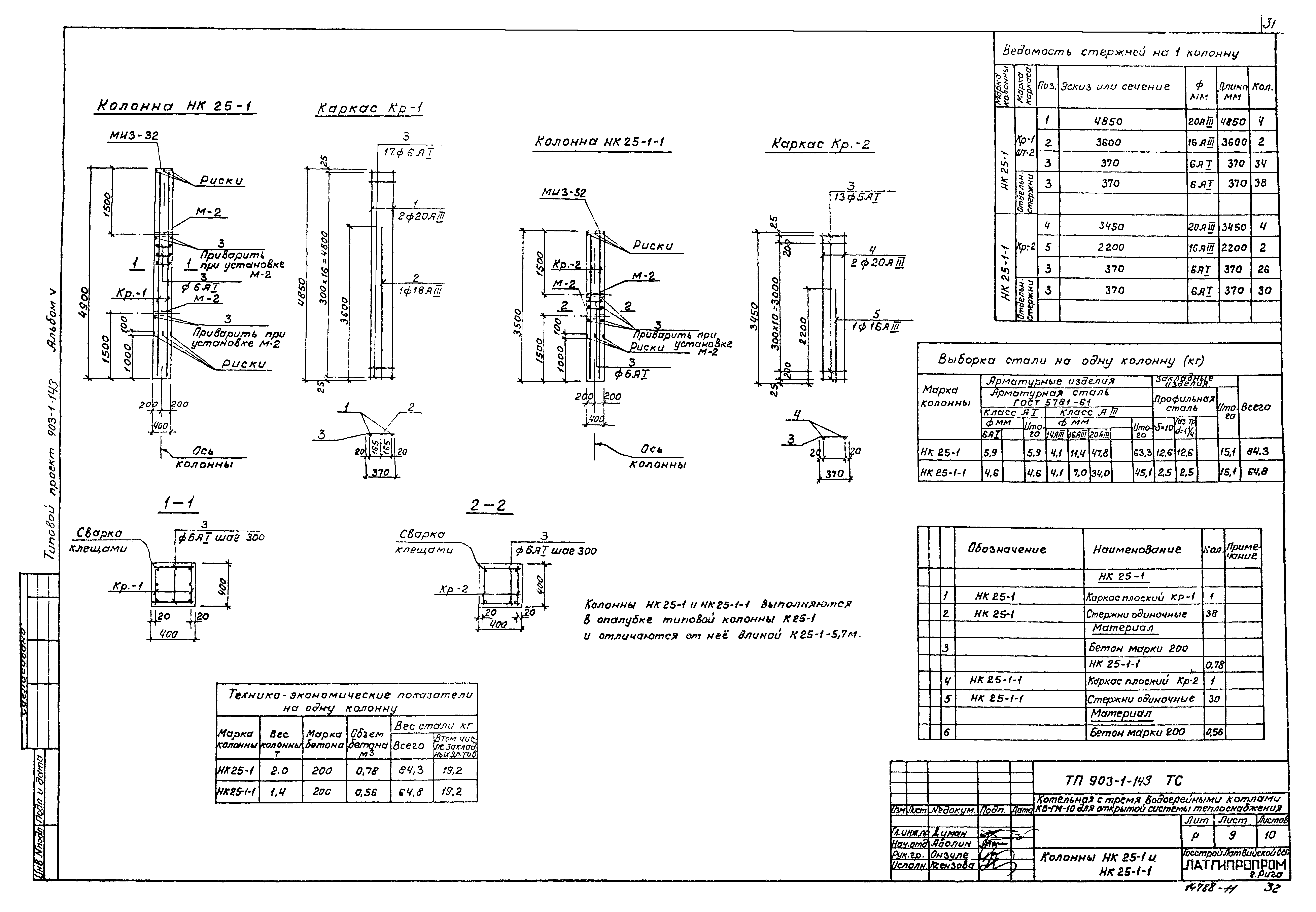
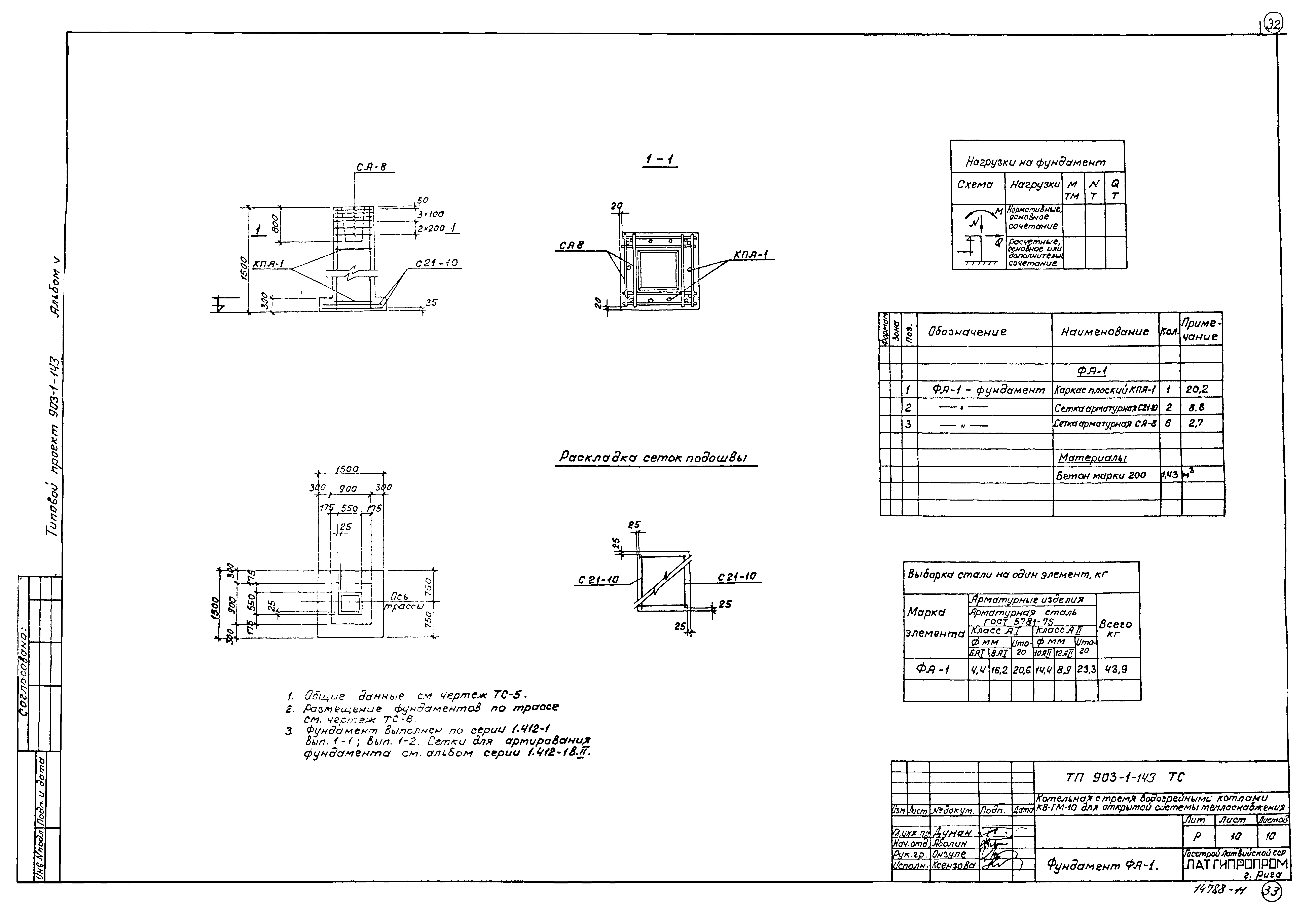
| Оглавление: | ТП 903-1-143 Перечень чертежей альбома ТП 903-1-143-ОВ Отопление, вентиляция ТП 903-1-143-ОВ-1 Общие данные. Лист 1 ТП 903-1-143-ОВ-2 Общие данные. Лист 2 ТП 903-1-143-ОВ-3 Сводная спецификация систем отопления и вентиляции. Лист 1 ТП 903-1-143-ОВ-4 Сводная спецификация систем отопления и вентиляции. Лист 2 ТП 903-1-143-ОВ-5 Планы котельной и склада мокрого хранения соли ТП 903-1-143-ОВ-6 Разрез 1-1 и схемы ТП 903-1-143-ОВ-7 Отопительно-вентиляционная установка П1 ТП 903-1-143-ОВ-8 Тепловой узел. План и разрез ТП 903-1-143-ВК Водоснабжение, канализация ТП 903-1-143-ВК-1 Общие данные (начало) ТП 903-1-143-ВК-2 Общие данные (продолжение) ТП 903-1-143-ВК-3 Общие данные (продолжение) ТП 903-1-143-ВК-4 Общие данные (окончание) ТП 903-1-143-ВК-5 План на отм. 0.000 ТП 903-1-143-ВК-6 План на отм. 0.000;2.400 ТП 903-1-143-ВК-7 План на отм. 4.800 ТП 903-1-143-ВК-8 Схемы систем водопровода В1,Т3 ТП 903-1-143-ВК-9 Схемы систем канализации К1,К13,К14 ТП 903-1-143-ВК-10 Схемы систем канализации К2. План кровли ТП 903-1-143-ВК-11 Примерная схема генплана с сетями "ВК" ТП 903-1-143-ВК-12 Сводная спецификация по внутриплощадочным сетям "ВК" ТП 903-1-143-ТС Тепловые сети ТП 903-1-143-ТС-1 Общие данные ТП 903-1-143-ТС-2 План тепловых сетей. Разрезы 1-1÷6-6 ТП 903-1-143-ТС-3 Продольный профиль тепловых сетей ТП 903-1-143-ТС-4 Узлы №1,№2 ТП 903-1-143-ТС-5 Общие данные (строительная часть) ТП 903-1-143-ТС-6 План опор. Узлы ТП 903-1-143-ТС-7 Металлические балки и узлы ТП 903-1-143-ТС-8 Опалубка балки НБ-1а. Металлическая площадка ТП 903-1-143-ТС-9 Колонны НК-25-1 и НК25-1-1 ТП 903-1-143-ТС-10 Фундамент ФА-1 |
| Разработан: | Латгипропром |
| Утверждён: | 06.05.1977 Латгипропром (118) |
| Чем заменён: |
































