Скачать Типовой проект 903-1-204 Альбом 5.14. Котельная. Архитектурно-строительная часть. Нетиповые изделия (из ТП 903-1-199)Дата актуализации: 01.01.2021
|
| Обозначение: | Типовой проект 903-1-204 |
| Обозначение англ: | 903-1-204 |
| Статус: | действует |
| Название рус.: | Альбом 5.14. Котельная. Архитектурно-строительная часть. Нетиповые изделия (из ТП 903-1-199) |
| Дата добавления в базу: | 01.09.2013 |
| Дата актуализации: | 01.01.2021 |
| Дата введения: | 01.07.1984 |
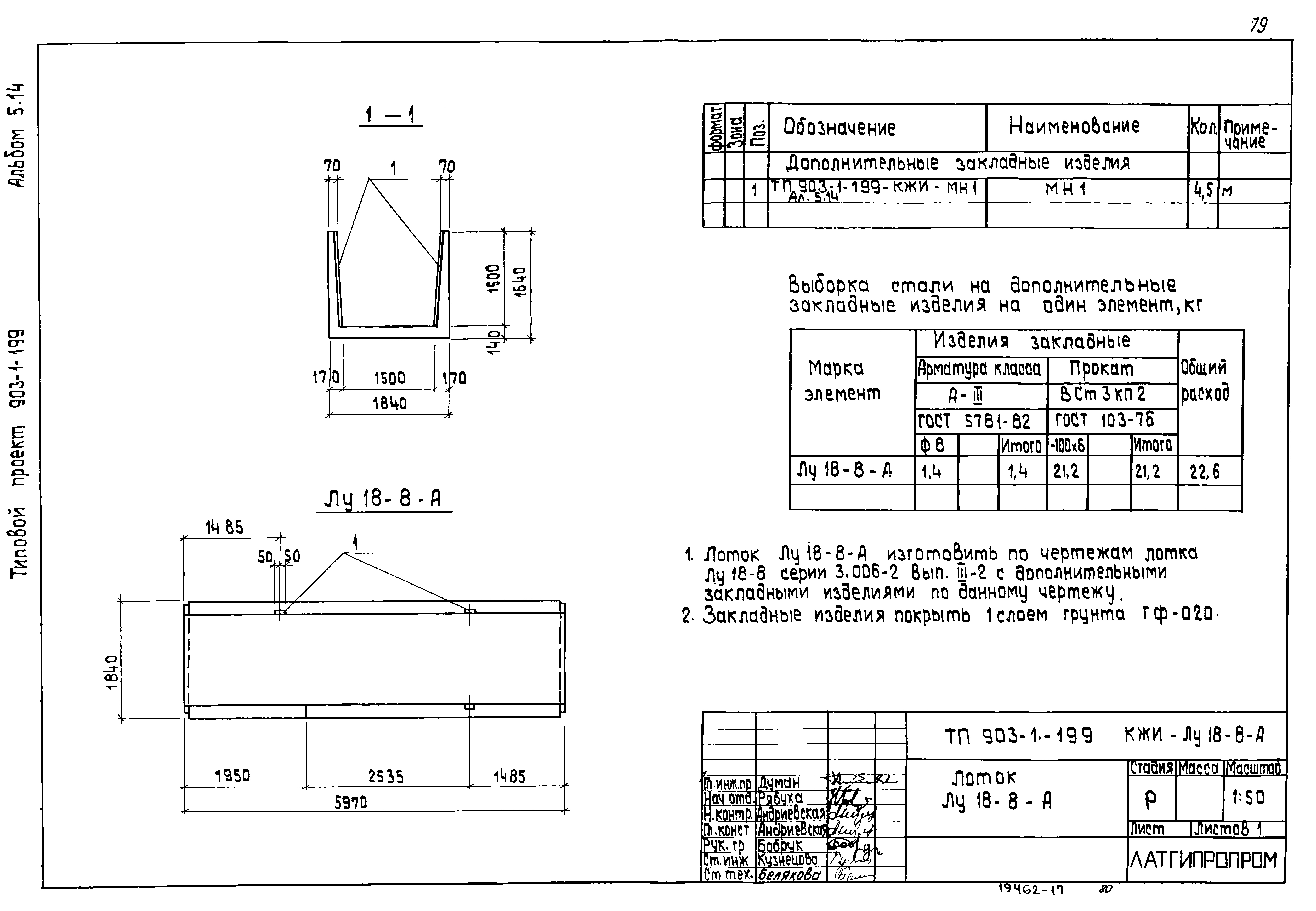
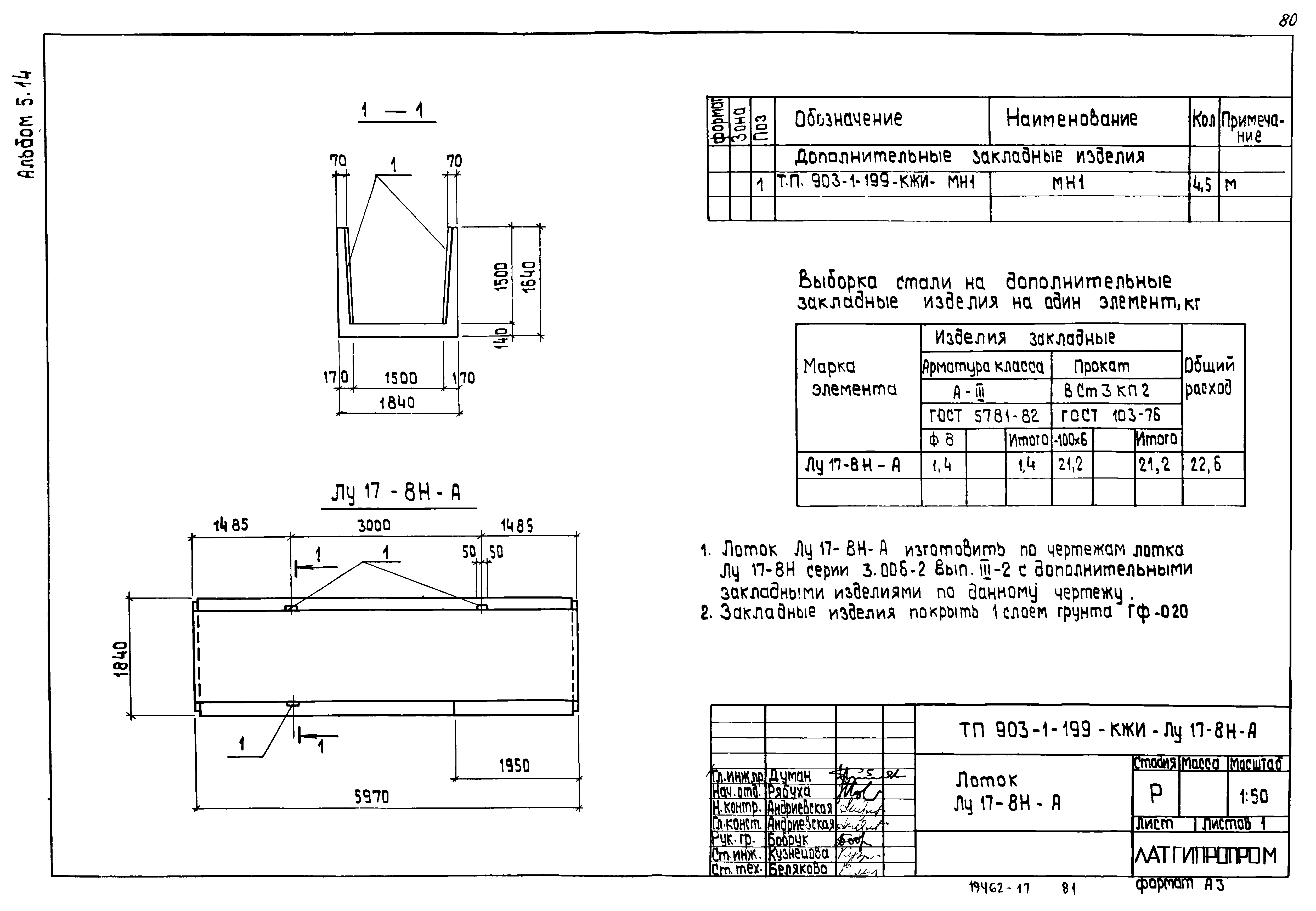
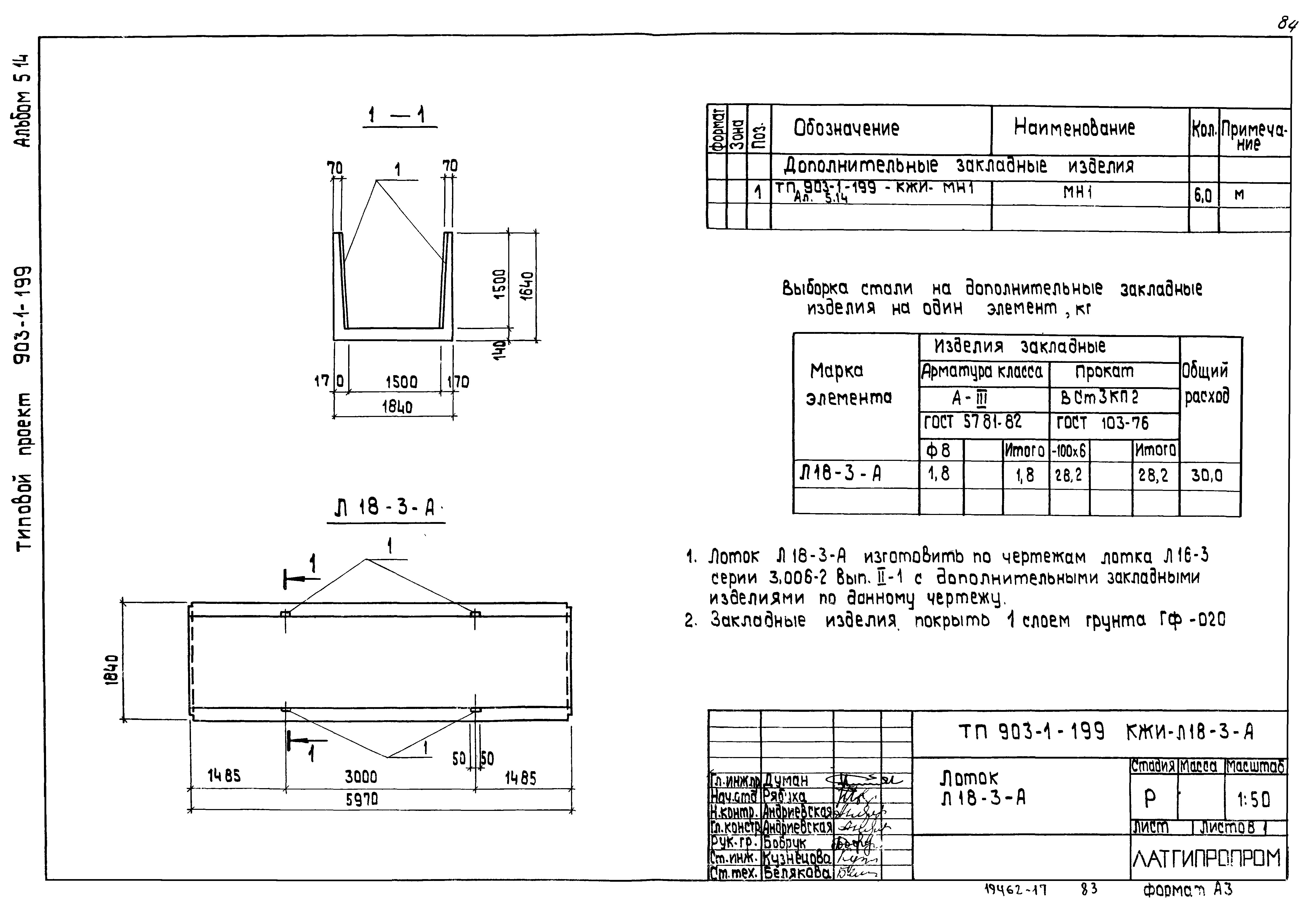
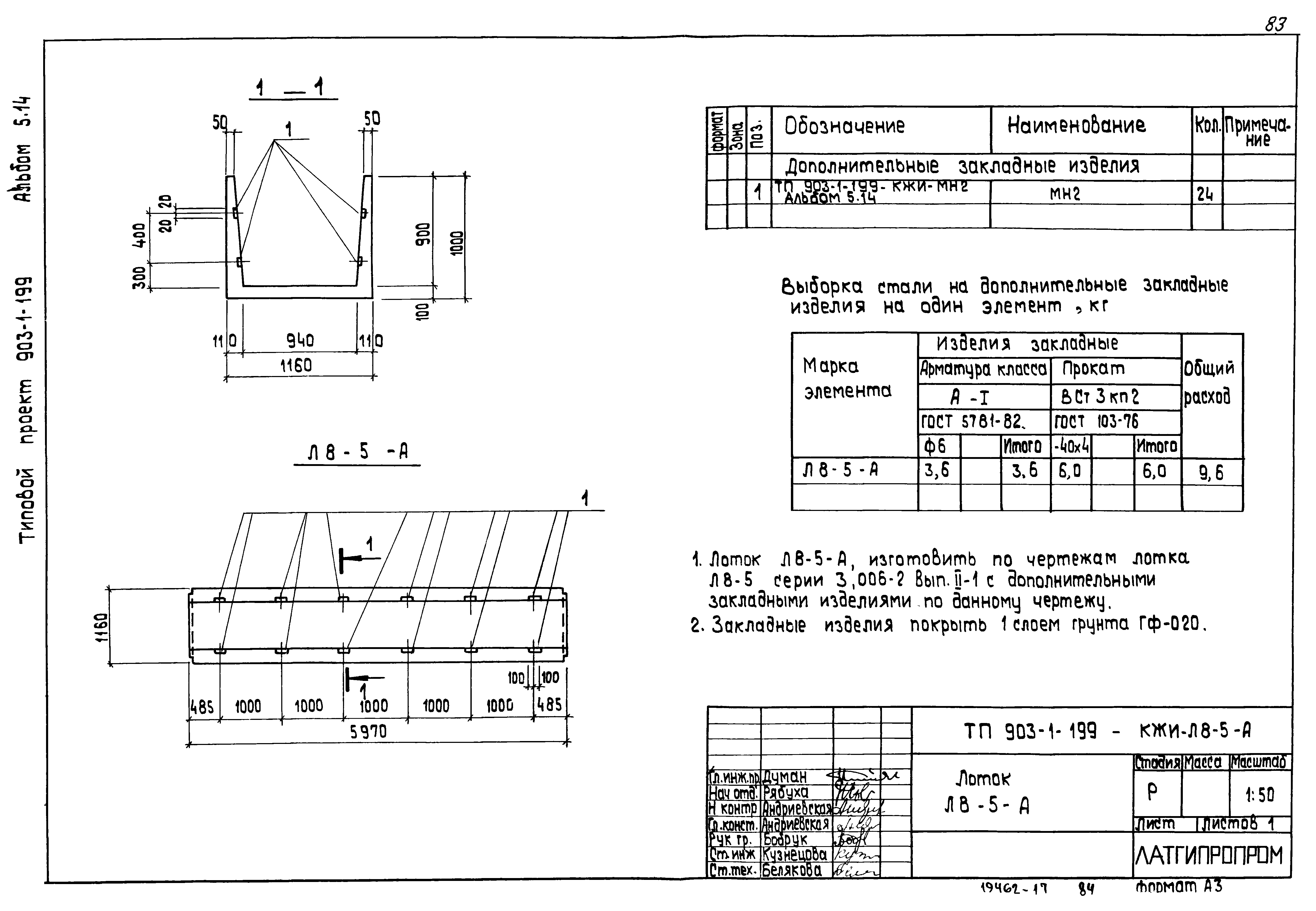
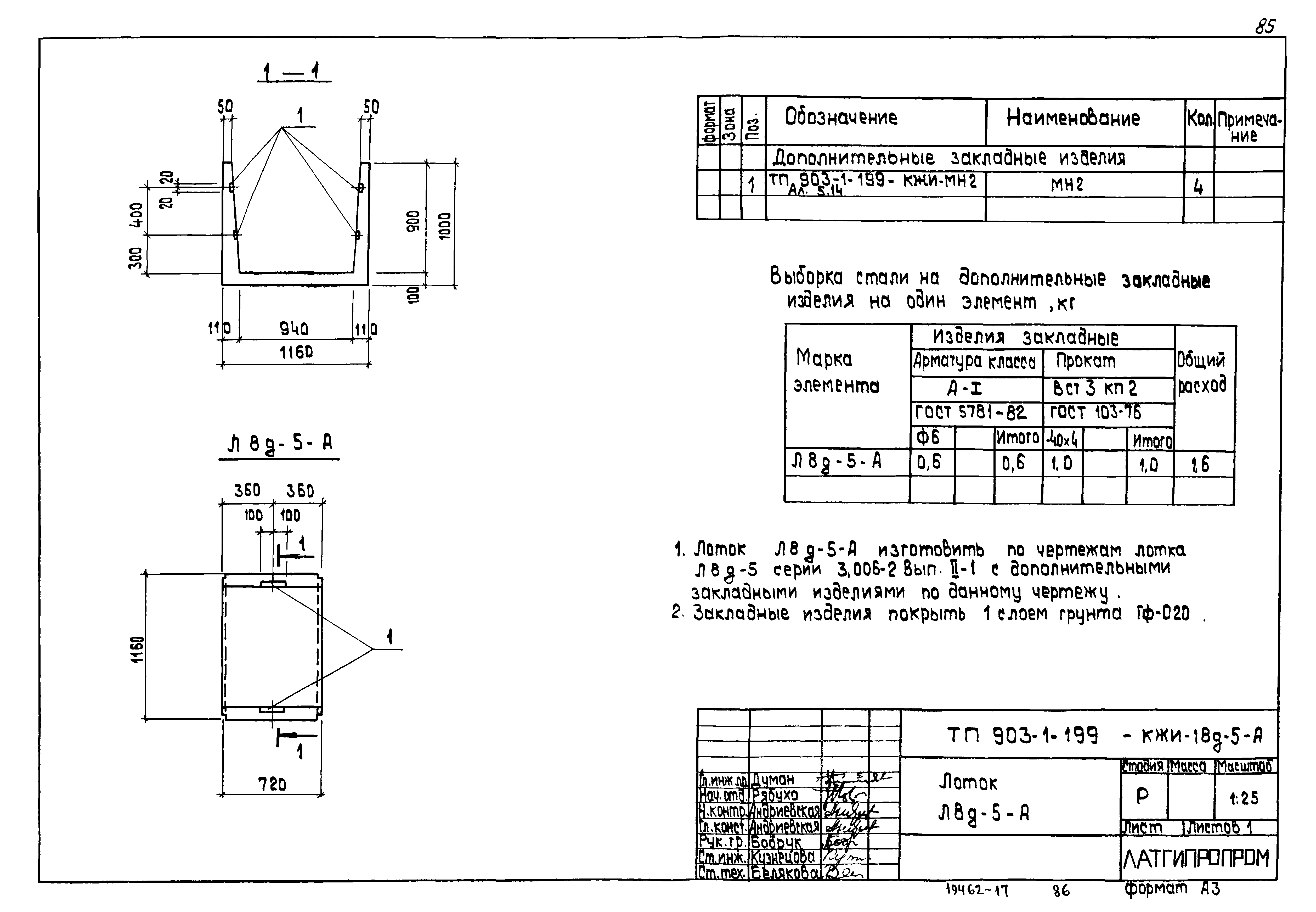
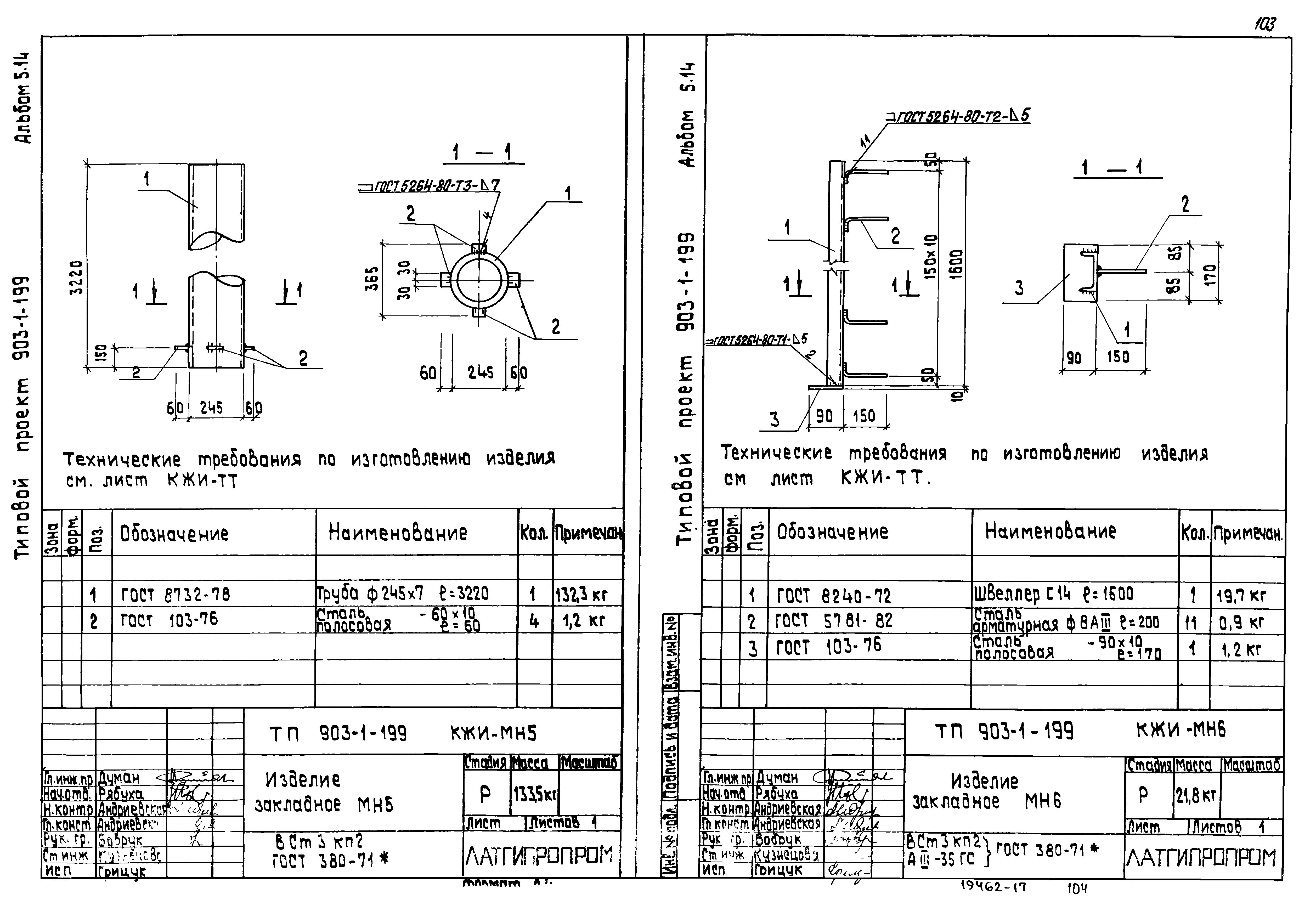
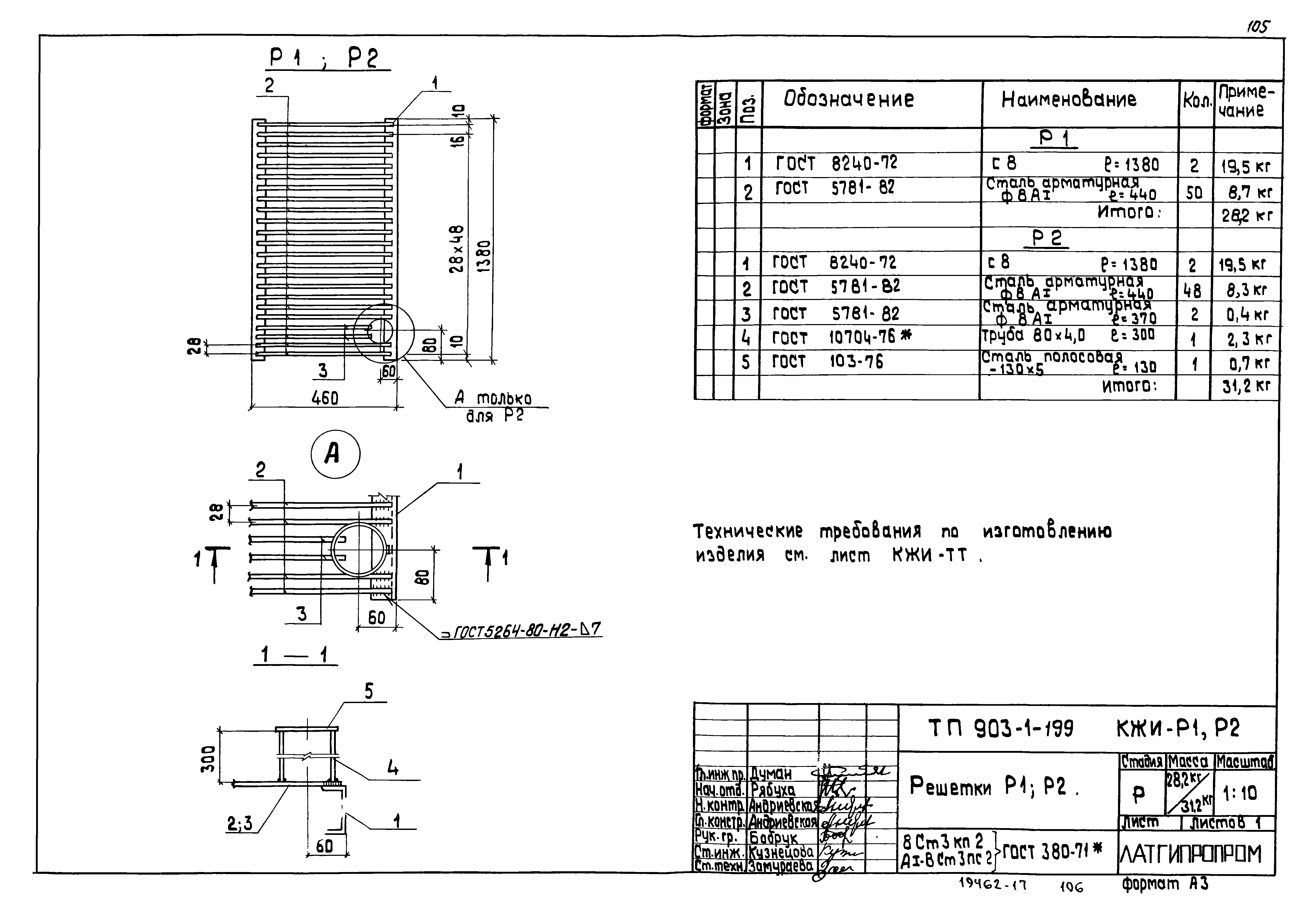
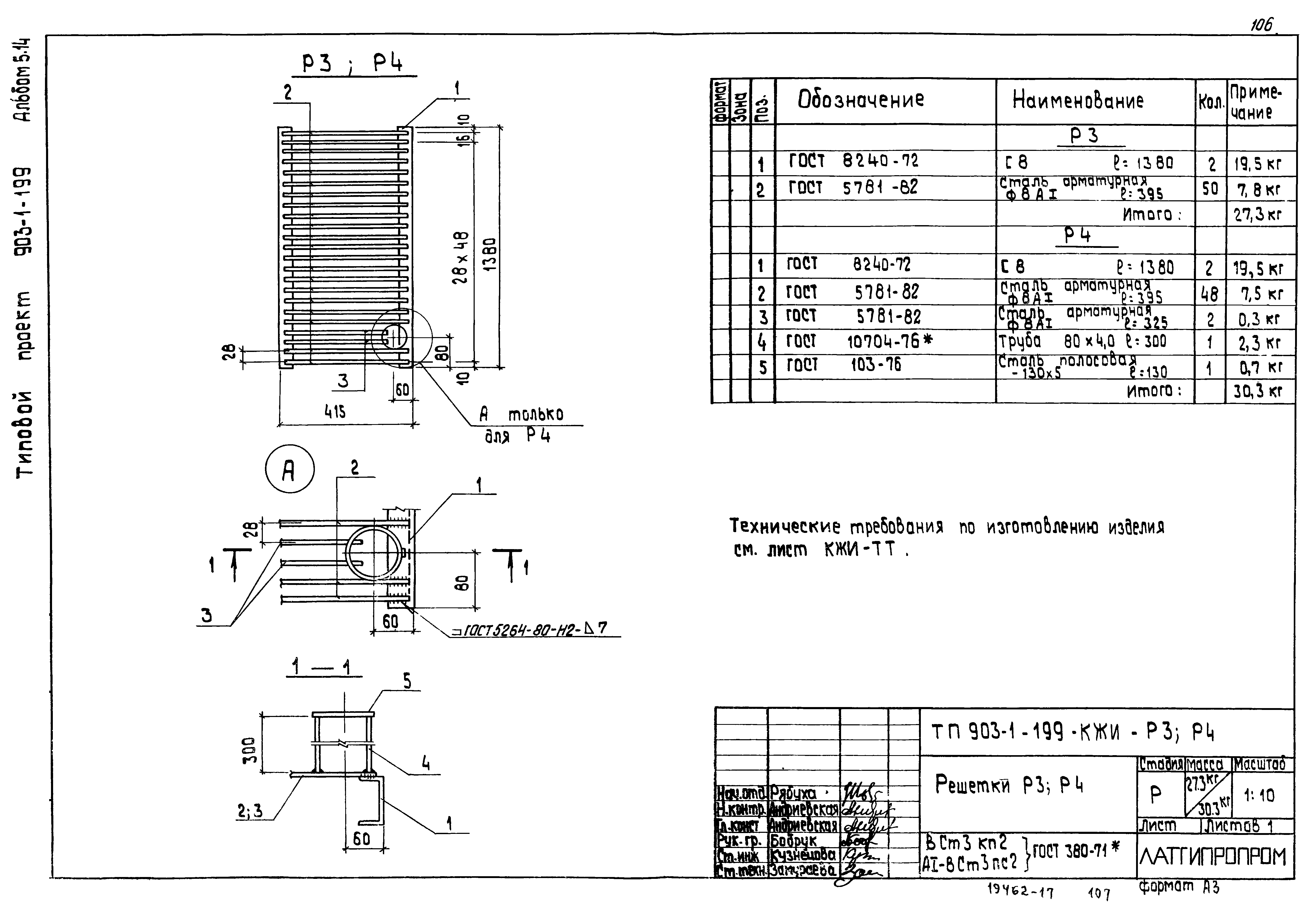
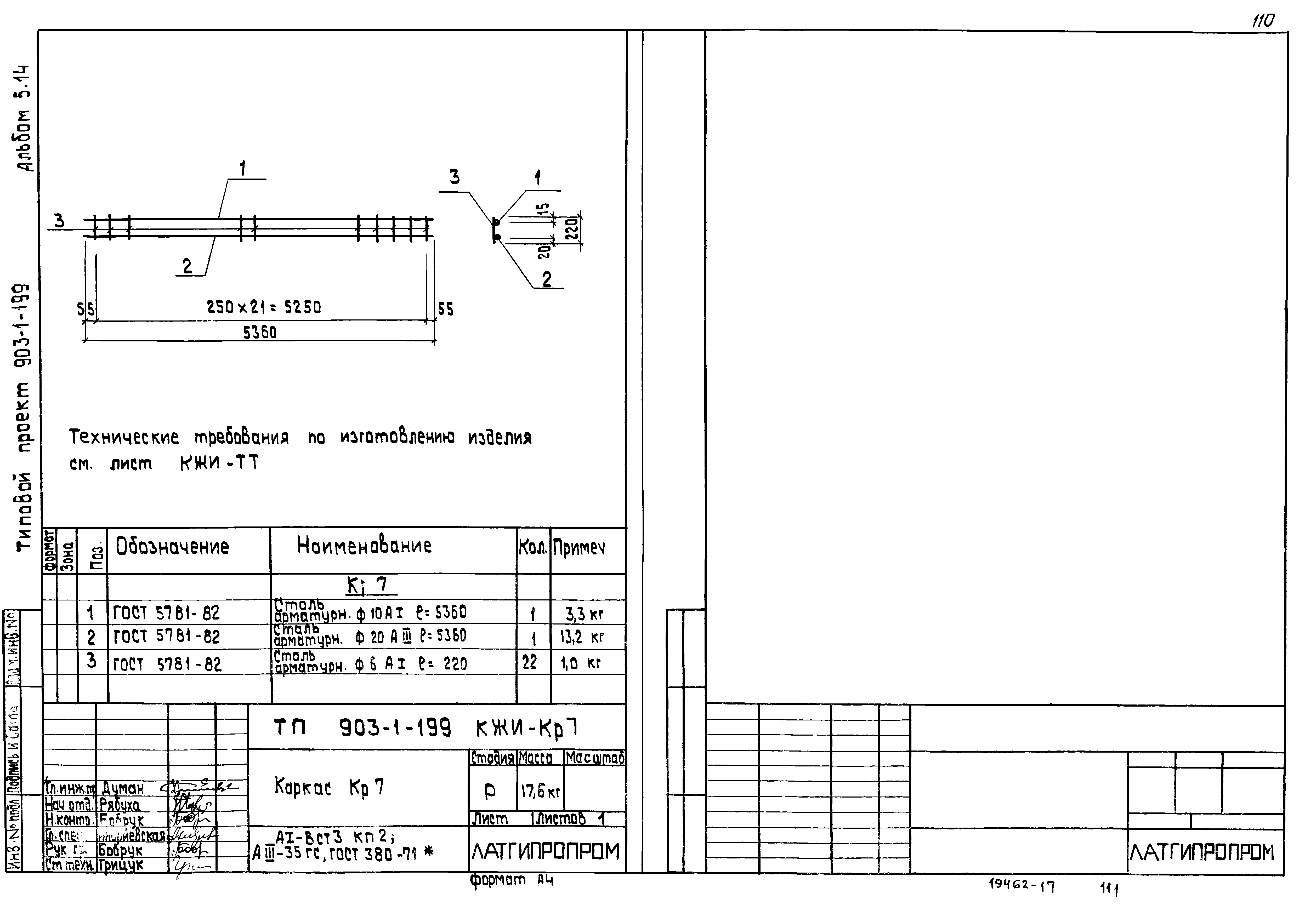
| Оглавление: | ТП 903-1-199 Содержание альбома (начало) ТП 903-1-199 Содержание альбома (продолжение) ТП 903-1-199 Содержание альбома (окончание) ТП 903-1-199-КЖИ-ТТ Технические требования ТП 903-1-199-КЖИ-К72-5а Колонна К72-5а ТП 903-1-199-КЖИ-К72-5б Колонна К72-5б ТП 903-1-199-КЖИ-К72-5в Колонна К72-5в ТП 903-1-199-КЖИ-К72-5г Колонна К72-5г ТП 903-1-199-КЖИ-К72-5д Колонна К72-5д ТП 903-1-199-КЖИ-К72-5е Колонна К72-5е ТП 903-1-199-КЖИ-К72-5ж Колонна К72-5ж ТП 903-1-199-КЖИ-К72-5и Колонна К72-5и ТП 903-1-199-КЖИ-К72-5к Колонна К72-5к ТП 903-1-199-КЖИ-К72-5л Колонна К72-5л ТП 903-1-199-КЖИ-К72-5м Колонна К72-5м ТП 903-1-199-КЖИ-К72-5н Колонна К72-5н ТП 903-1-199-КЖИ-К72-5п Колонна К72-5п ТП 903-1-199-КЖИ-К72-5р Колонна К72-5р ТП 903-1-199-КЖИ-К72-5с Колонна К72-5с ТП 903-1-199-КЖИ-К72-5т Колонна К72-5т ТП 903-1-199-КЖИ-К72-5у Колонна К72-5у ТП 903-1-199-КЖИ-К72-5ф Колонна К72-5ф ТП 903-1-199-КЖИ-К72-5ц Колонна К72-5ц ТП 903-1-199-КЖИ-К72-5ч Колонна К72-5ч ТП 903-1-199-КЖИ-К72-5ш Колонна К72-5ш ТП 903-1-199-КЖИ-К72-5щ Колонна К72-5щ ТП 903-1-199-КЖИ-К72-5э Колонна К72-5э ТП 903-1-199-КЖИ-К72-5ю Колонна К72-5ю ТП 903-1-199-КЖИ-К72-5я Колонна К72-5я ТП 903-1-199-КЖИ-К72-5-1 Колонна К72-5-1 ТП 903-1-199-КЖИ-К72-5-2 Колонна К72-5-2 ТП 903-1-199-КЖИ-К72-18а Колонна К72-18а ТП 903-1-199-КЖИ-К72-18б Колонна К72-18б ТП 903-1-199-КЖИ-К72-18в Колонна К72-18в ТП 903-1-199-КЖИ-К72-18г Колонна К72-18г ТП 903-1-199-КЖИ-К72-18д Колонна К72-18д ТП 903-1-199-КЖИ-К72-18е Колонна К72-18е ТП 903-1-199-КЖИ-КФ18-1а Колонна КФ18-1а ТП 903-1-199-КЖИ-КФ18-1б Колонна КФ18-1б ТП 903-1-199-КЖИ-КФ18-1в Колонна КФ18-1в ТП 903-1-199-КЖИ-К7-1-1 Колонна К7-1-1 ТП 903-1-199-КЖИ-К7-1-2 Колонна К7-1-2 ТП 903-1-199-КЖИ-К7-1-3 Колонна К7-1-3 ТП 903-1-199-КЖИ-ПС600.12.20-П-9-А Стеновая панель ПС600.12.20-П-9-А ТП 903-1-199-КЖИ-ПС600.12.20-П-3-А Стеновая панель ПС600.12.20-П-3-А ТП 903-1-199-КЖИ-ПС600.12.20-П-3-Б Стеновая панель ПС600.12.20-П-3-Б ТП 903-1-199-КЖИ-ПС600.12.20-П-3-В Стеновая панель ПС600.12.20-П-3-В ТП 903-1-199-КЖИ-ПС600.18.20-П-1-А Стеновая панель ПС600.18.20-П-1-А ТП 903-1-199-КЖИ-ПС600.18.20-П-3-А Стеновая панель ПС600.18.20-П-3-А ТП 903-1-199-КЖИ-ПС295.12.20-П-А Стеновая панель ПС295.12.20-П-А ТП 903-1-199-КЖИ-ПС625.12.20-П-31-А, ПС625.12.20-П-22-А Стеновые панели ПС625.12.20-П-31-А, ПС625.12.20-П-22-А ТП 903-1-199-КЖИ-ПС145.18.20-П-А Стеновая панель ПС145.18.20-П-А ТП 903-1-199-КЖИ-ПС145.12.20-П-А Стеновая панель ПС145.12.20-П-А ТП 903-1-199-КЖИ-1БДР18-1АIV-а Балка 1БДР18-1АIV-а ТП 903-1-199-КЖИ-1БДР18-2АIV-а Балка 1БДР18-2АIV-а ТП 903-1-199-КЖИ-2БДР18-3АIV-а Балка 2БДР18-3АIV-а ТП 903-1-199-КЖИ-2БДР18-3АIV-б Балка 2БДР18-3АIV-б ТП 903-1-199-КЖИ-2БДР18-3АIV-в Балка 2БДР18-3АIV-в ТП 903-1-199-КЖИ-2БДР18-3АIV-г Балка 2БДР18-3АIV-г ТП 903-1-199-КЖИ-2БДР18-3АIV-д Балка 2БДР18-3АIV-д ТП 903-1-199-КЖИ-3БДР18-5АIV-а, 3БДР18-4АIV-а Балки 3БДР18-5АIV-а, 3БДР18-4АIV-а ТП 903-1-199-КЖИ-3БДР18-4АIV-б Балка 3БДР18-4АIV-б ТП 903-1-199-КЖИ-Б6-5АIV-а, Б6-6АIV-а, Б6-5АIV-б Балки Б6-5АIV-а, Б6-6АIV-а, Б6-5АIV-б ТП 903-1-199-КЖИ-Б6-7АIV-а, Б6-6АIV-б Балки Б6-7АIV-а, Б6-6АIV-б ТП 903-1-199-КЖИ-2РО4.60-35АТVа, 2РО4.60-35АТVб, 2РО4.60-35АТVв Ригели 2РО4.60-35АТVа, 2РО4.60-35АТVб, 2РО4.60-35АТVв ТП 903-1-199-КЖИ-2РО4.60-35АТVг, 2РО4.60-35АТVд Ригели 2РО4.60-35АТVг, 2РО4.60-35АТVд ТП 903-1-199-КЖИ-2РО4.60-66АТVа, 2РО4.60-66АТVб Ригели 2РО4.60-66АТVа, 2РО4.60-66АТVб ТП 903-1-199-КЖИ-БОП25-1т-А Обвязочная балка БОП25-1т-А ТП 903-1-199-КЖИ-ПВ4-2АТVТ-14Яб(-17Яб), ПВ4-2АТVТ-14Яа,б(-17Яа,б) Плиты ПВ4-2АТVТ-14Яб(-17Яб), ПВ4-2АТVТ-14Яа,б(-17Яа,б) ТП 903-1-199-КЖИ-ПВ14-3АТVТ-7Яб(-8Яб) Плита ПВ14-3АТVТ-7Яб(-8Яб) ТП 903-1-199-КЖИ-ПГ-3АТVТ-8Яб-А Плита ПГ-3АТVТ-8Яб-А ТП 903-1-199-КЖИ-ПГ-3АТVТ-8Я-Г Плита ПГ-3АТVТ-8Я-Г ТП 903-1-199-КЖИ-ПГ-3АТVТ-7Я-А (-8Я-А) Плита ПГ-3АТVТ-7Я-А (-8Я-А) ТП 903-1-199-КЖИ-ПГ-3АТVТ-7Я-А (-8Я-Б) Плита ПГ-3АТVТ-7Я-А (-8Я-Б) ТП 903-1-199-КЖИ-ПГ-3АТVТ-7Я-А (-8Я-В) Плита ПГ-3АТVТ-7Я-А (-8Я-В) ТП 903-1-199-КЖИ-ПАТV/1.5х6.0-1-А Плита ПАТV/1.5х6.0-1-А ТП 903-1-199-КЖИ-ПАТV/1.5х6.0-1б-А Плита ПАТV/1.5х6.0-1б-А ТП 903-1-199-КЖИ-ПРС56-15-6АТVТ-А Плита ПРС56-15-6АТVТ-А ТП 903-1-199-КЖИ-ППБ-1-Д-1/5.98х2.985 Лист 1 Перегородка ППБ-1-Д-1/5.98х2.985 ТП 903-1-199-КЖИ-ППБ-1-Д-1/5.98х2.985 Лист 2 Перегородка ППБ-1-Д-1/5.98х2.986 ТП 903-1-199-КЖИ-ЛУ18-8-А Лоток ЛУ18-8-А ТП 903-1-199-КЖИ-ЛУ17-8Н-А Лоток ЛУ17-8Н-А ТП 903-1-199-КЖИ-ЛУ8-8Н-А Лоток ЛУ8-8Н-А ТП 903-1-199-КЖИ-Л18-3-А Лоток Л18-3-А ТП 903-1-199-КЖИ-Л8-5-А Лоток Л8-5-А ТП 903-1-199-КЖИ-Л8-5*-А Лоток Л8-5*-А ТП 903-1-199-КЖИ-Л8д-5-А Лоток Л8д-5-А ТП 903-1-199-КЖИ-СКМ1 Стойка СКМ1 ТП 903-1-199-КЖИ-СКМ2 Стойка СКМ2 ТП 903-1-199-КЖИ-РК2-1 Столик РК2-1 ТП 903-1-199-КЖИ-РК2-2 Столик РК2-2 ТП 903-1-199-КЖИ-МД1 Столик МД1 ТП 903-1-199-КЖИ-МС1-1 Изделие соединительное МС1-1 ТП 903-1-199-КЖИ-МС1-2 Изделие соединительное МС1-2 ТП 903-1-199-КЖИ-МС1-3 Изделие соединительное МС1-3 ТП 903-1-199-КЖИ-МС1-4 Изделие соединительное МС1-4 ТП 903-1-199-КЖИ-МС1-5 Изделие соединительное МС1-5 ТП 903-1-199-КЖИ-МС1 Изделие соединительное МС1 ТП 903-1-199-КЖИ-МС2 Изделие соединительное МС2 ТП 903-1-199-КЖИ-МС3 Изделие соединительное МС3 ТП 903-1-199-КЖИ-МС4 Изделие соединительное МС4 ТП 903-1-199-КЖИ-МС5 Изделие соединительное МС5 ТП 903-1-199-КЖИ-МС6 Изделие соединительное МС6 ТП 903-1-199-КЖИ-МС7 Изделие соединительное МС7 ТП 903-1-199-КЖИ-МС8 Изделие соединительное МС8 ТП 903-1-199-КЖИ-МН1-1 Изделие закладное МН1-1 ТП 903-1-199-КЖИ-МН1-2 Изделие закладное МН1-2 ТП 903-1-199-КЖИ-МН1-3 Изделие закладное МН1-3 ТП 903-1-199-КЖИ-МН1-4 Изделие закладное МН1-4 ТП 903-1-199-КЖИ-МН1-5 Изделие закладное МН1-5 ТП 903-1-199-КЖИ-МН1-6 Изделие закладное МН1-6 ТП 903-1-199-КЖИ-МН1-7 Изделие закладное МН1-7 ТП 903-1-199-КЖИ-МН1-11 Изделие закладное МН1-11 ТП 903-1-199-КЖИ-МН1-8 Изделие закладное МН1-8 ТП 903-1-199-КЖИ-МН1-9 Изделие закладное МН1-9 ТП 903-1-199-КЖИ-МН1-10 Изделие закладное МН1-10 ТП 903-1-199-КЖИ-МН1 Изделие закладное МН1 ТП 903-1-199-КЖИ-МН2 Изделие закладное МН2 ТП 903-1-199-КЖИ-МН3 Изделие закладное МН3 ТП 903-1-199-КЖИ-МН4 Изделие закладное МН4 ТП 903-1-199-КЖИ-МН5 Изделие закладное МН5 ТП 903-1-199-КЖИ-МН6 Изделие закладное МН6 ТП 903-1-199-КЖИ-МН7 Изделие закладное МН7 ТП 903-1-199-КЖИ-МР1 Рама МР1 ТП 903-1-199-КЖИ-Р1;Р2 Решетки Р1;Р2 ТП 903-1-199-КЖИ-Р3;Р4 Решетки Р3;Р4 ТП 903-1-199-КЖИ-С1 Сетка арматурная С1 ТП 903-1-199-КЖИ-С2 Сетка арматурная С2 ТП 903-1-199-КЖИ-КР1;КР2 Каркасы КР1;КР2 ТП 903-1-199-КЖИ-КР3;КР4 Каркасы КР3;КР4 ТП 903-1-199-КЖИ-КР5 Каркас КР5 ТП 903-1-199-КЖИ-КР6 Каркас КР6 ТП 903-1-199-КЖИ-КР7 Каркас КР7 ТП 903-1-199-КЖИ-К30-7а,К30-7б Колонны К30-7а,К30-7б ТП 903-1-199-КЖИ-К30-7в,К36-2а Колонны К30-7в,К36-2а ТП 903-1-199-КЖИ-РЖ-1 Рама РЖ-1 ТП 903-1-199-КЖИ-РЖ-2 Рама РЖ-2 |
| Разработан: | Латгипропром |
| Утверждён: | 10.11.1983 Главпромстройпроект Госстроя СССР (41) |


















































































































