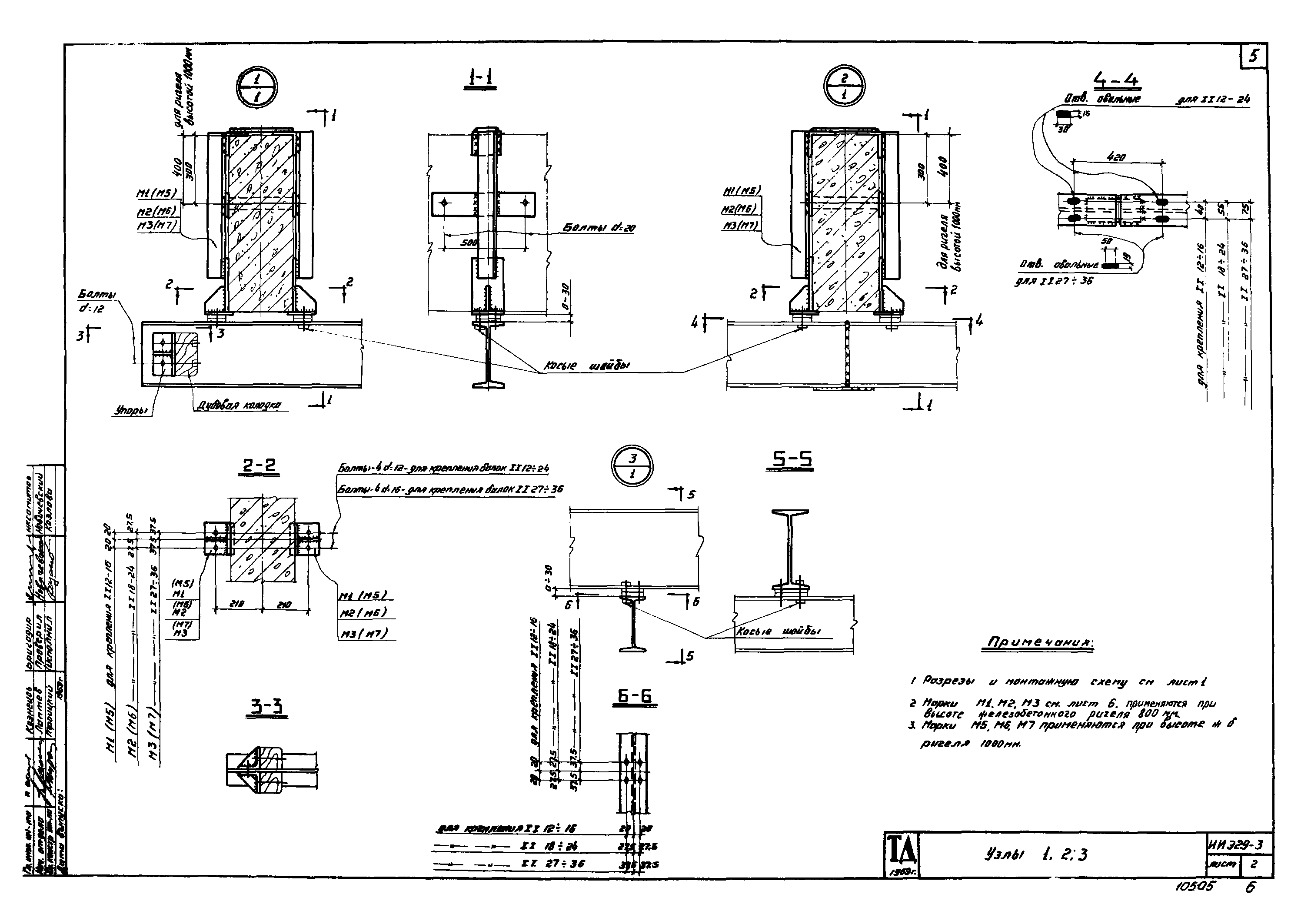
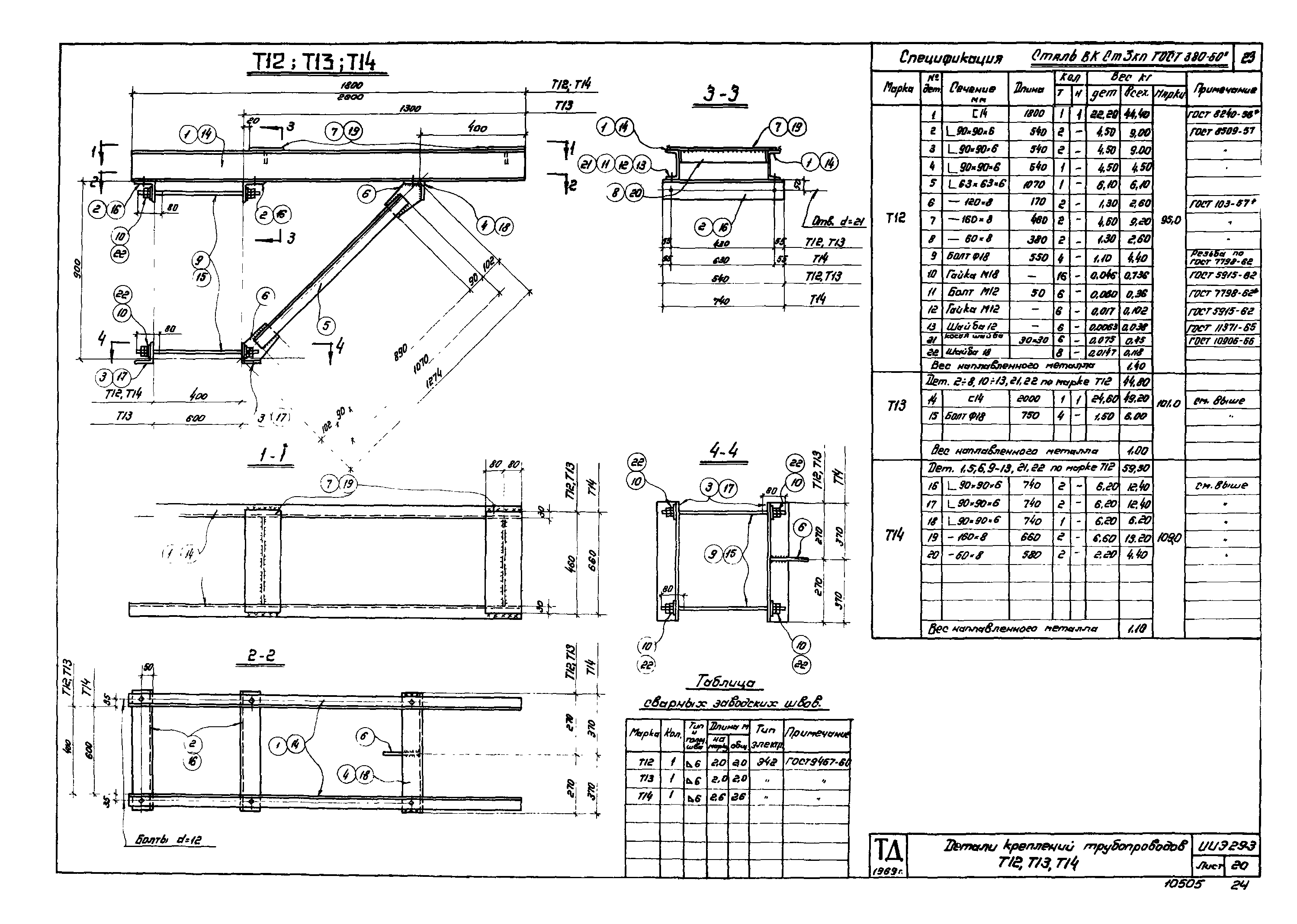
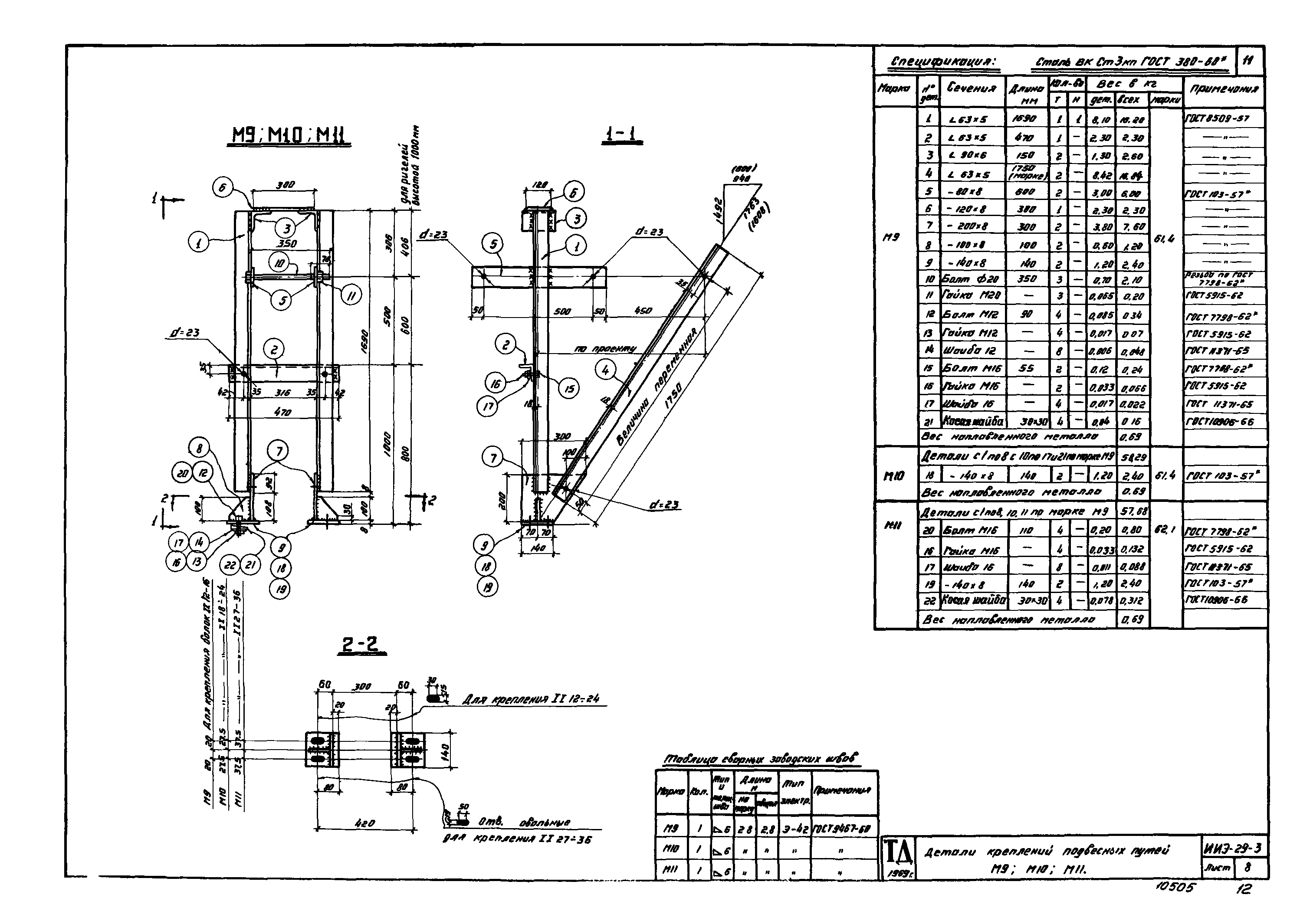
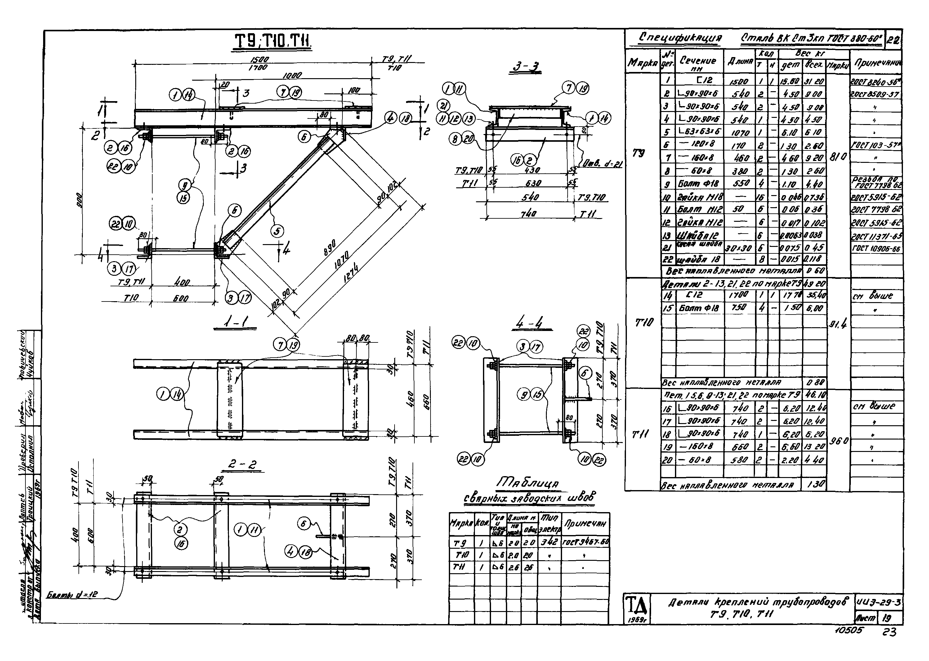
Скачать Серия ИИЭ29-3 Разные стальные конструктивные элементы этажерок. Узлы и детали креплений подвесного транспорта и трубопроводов. Чертежи КМД

Дата актуализации: 01.01.2021

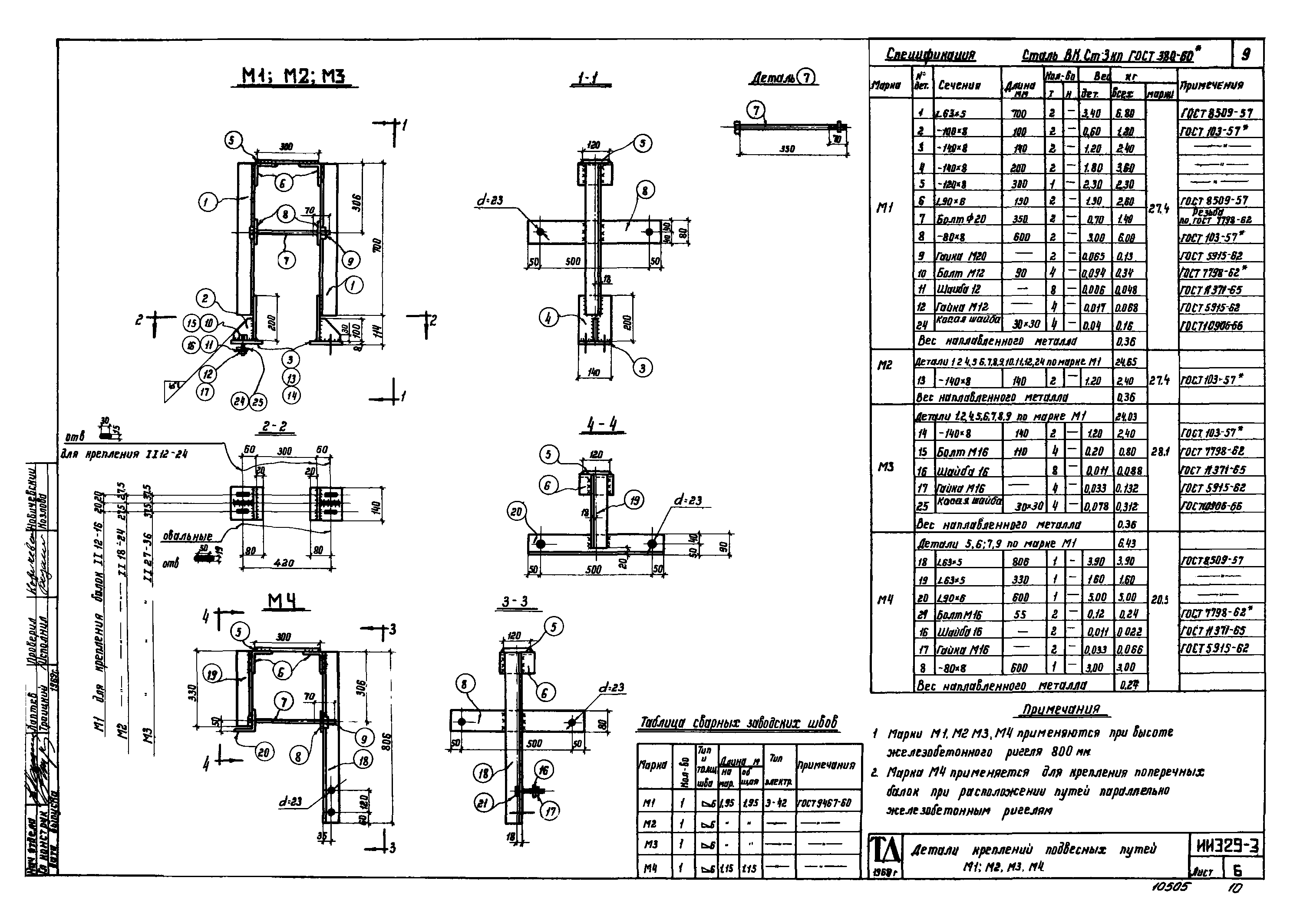
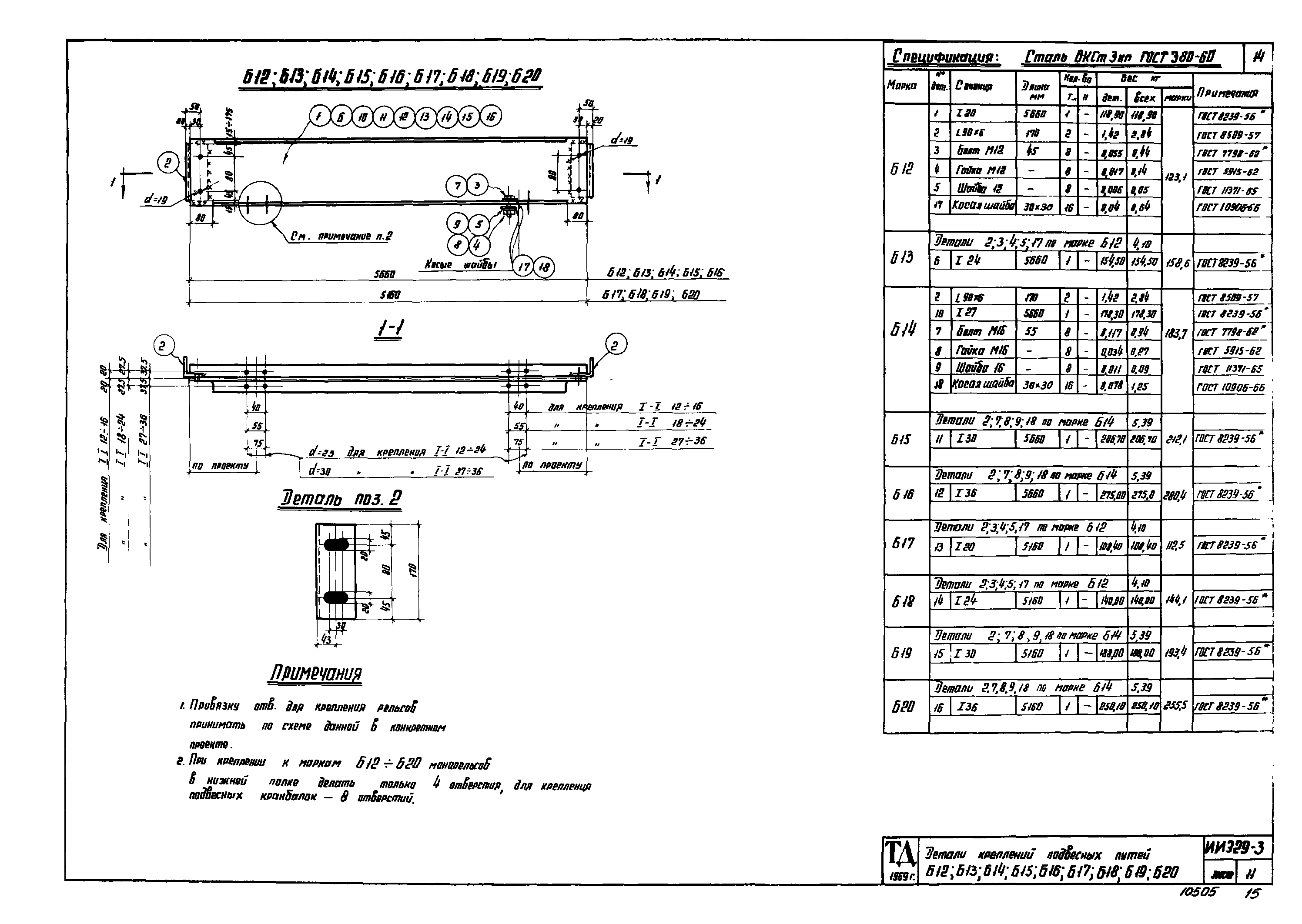
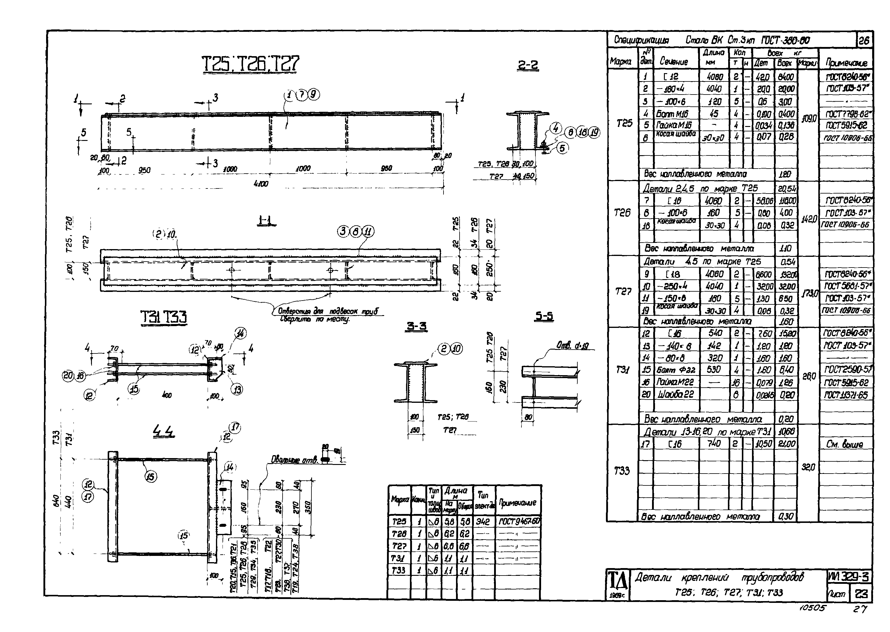
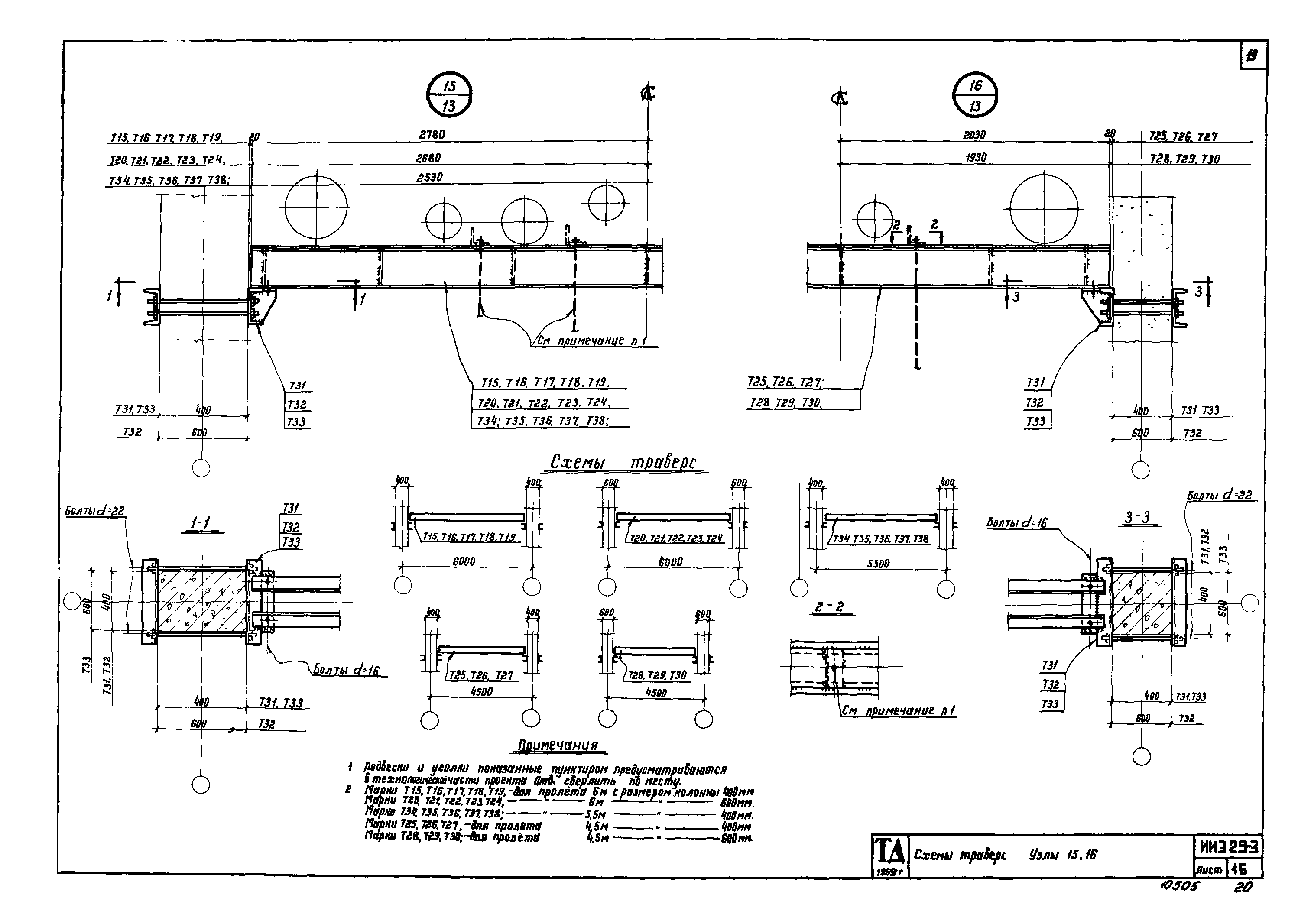
Серия ИИЭ29-3

Разные стальные конструктивные элементы этажерок. Узлы и детали креплений подвесного транспорта и трубопроводов. Чертежи КМД

Обозначение: Серия ИИЭ29-3
Обозначение англ: Series ИИЭ29-3
Статус:не действует
Название рус.:Разные стальные конструктивные элементы этажерок. Узлы и детали креплений подвесного транспорта и трубопроводов. Чертежи КМД
Дата добавления в базу:01.09.2013
Дата актуализации:01.01.2021
Дата введения:01.10.1970
Дата окончания срока действия:01.05.1999
Разработан: ЦНИИпромзданий
ЦНИИпроектстальконструкция
Утверждён:14.07.1970 Госстрой СССР (Государственный комитет Совета Министров СССР по делам строительства) (USSR Gosstroy 82)
Серия ИИЭ29-3Серия ИИЭ29-3Серия ИИЭ29-3Серия ИИЭ29-3Серия ИИЭ29-3Серия ИИЭ29-3Серия ИИЭ29-3Серия ИИЭ29-3Серия ИИЭ29-3Серия ИИЭ29-3Серия ИИЭ29-3Серия ИИЭ29-3Серия ИИЭ29-3Серия ИИЭ29-3Серия ИИЭ29-3Серия ИИЭ29-3Серия ИИЭ29-3Серия ИИЭ29-3Серия ИИЭ29-3Серия ИИЭ29-3Серия ИИЭ29-3Серия ИИЭ29-3Серия ИИЭ29-3Серия ИИЭ29-3Серия ИИЭ29-3Серия ИИЭ29-3Серия ИИЭ29-3Серия ИИЭ29-3Серия ИИЭ29-3Серия ИИЭ29-3