Скачать Типовой проект 903-1-220.86 Альбом 10. Автоматизация. Схемы функциональныеДата актуализации: 01.01.2021
|
| Обозначение: | Типовой проект 903-1-220.86 |
| Обозначение англ: | 903-1-220.86 |
| Статус: | действует |
| Название рус.: | Альбом 10. Автоматизация. Схемы функциональные |
| Дата добавления в базу: | 01.09.2013 |
| Дата актуализации: | 01.01.2021 |
| Дата введения: | 09.01.1986 |
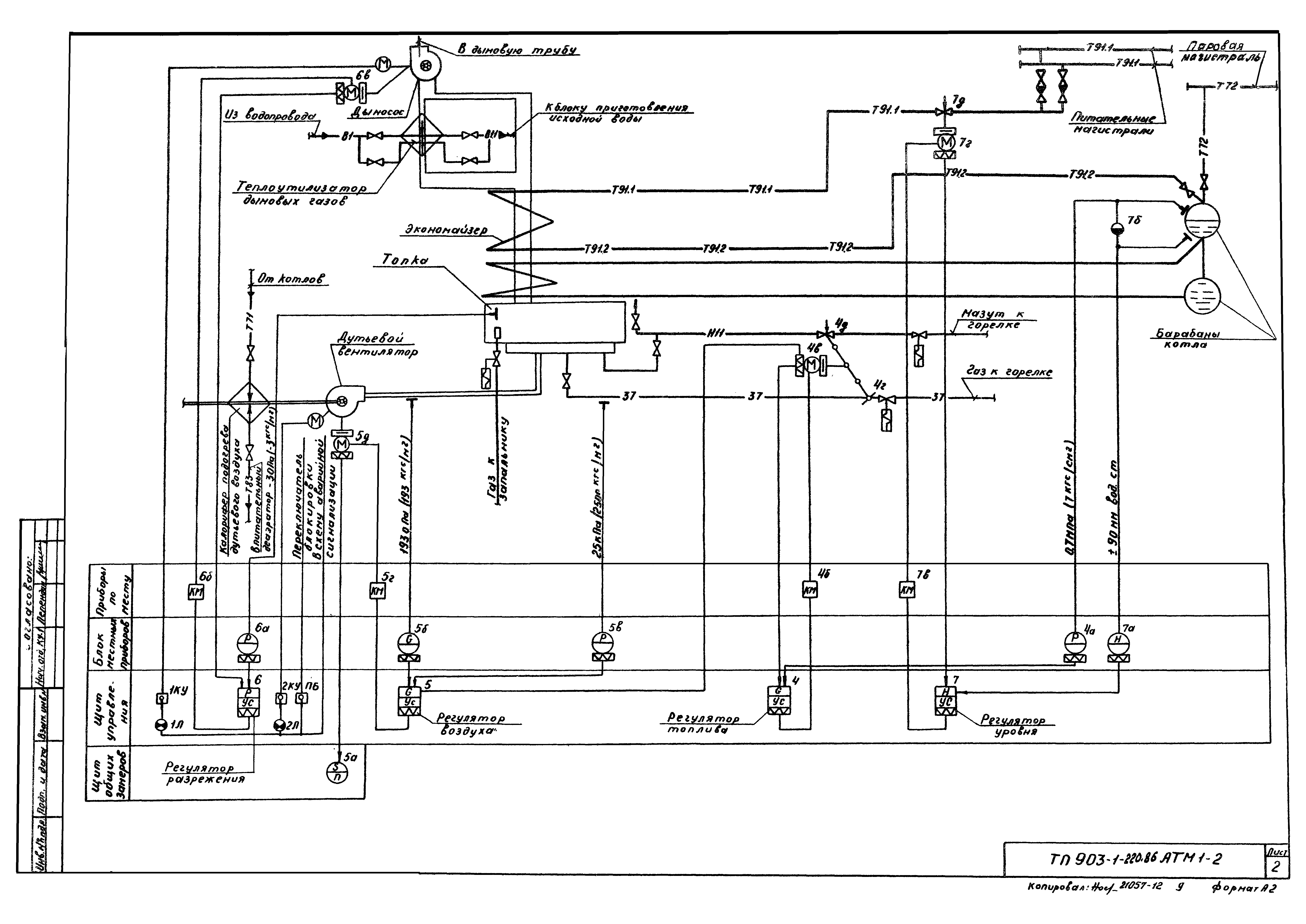
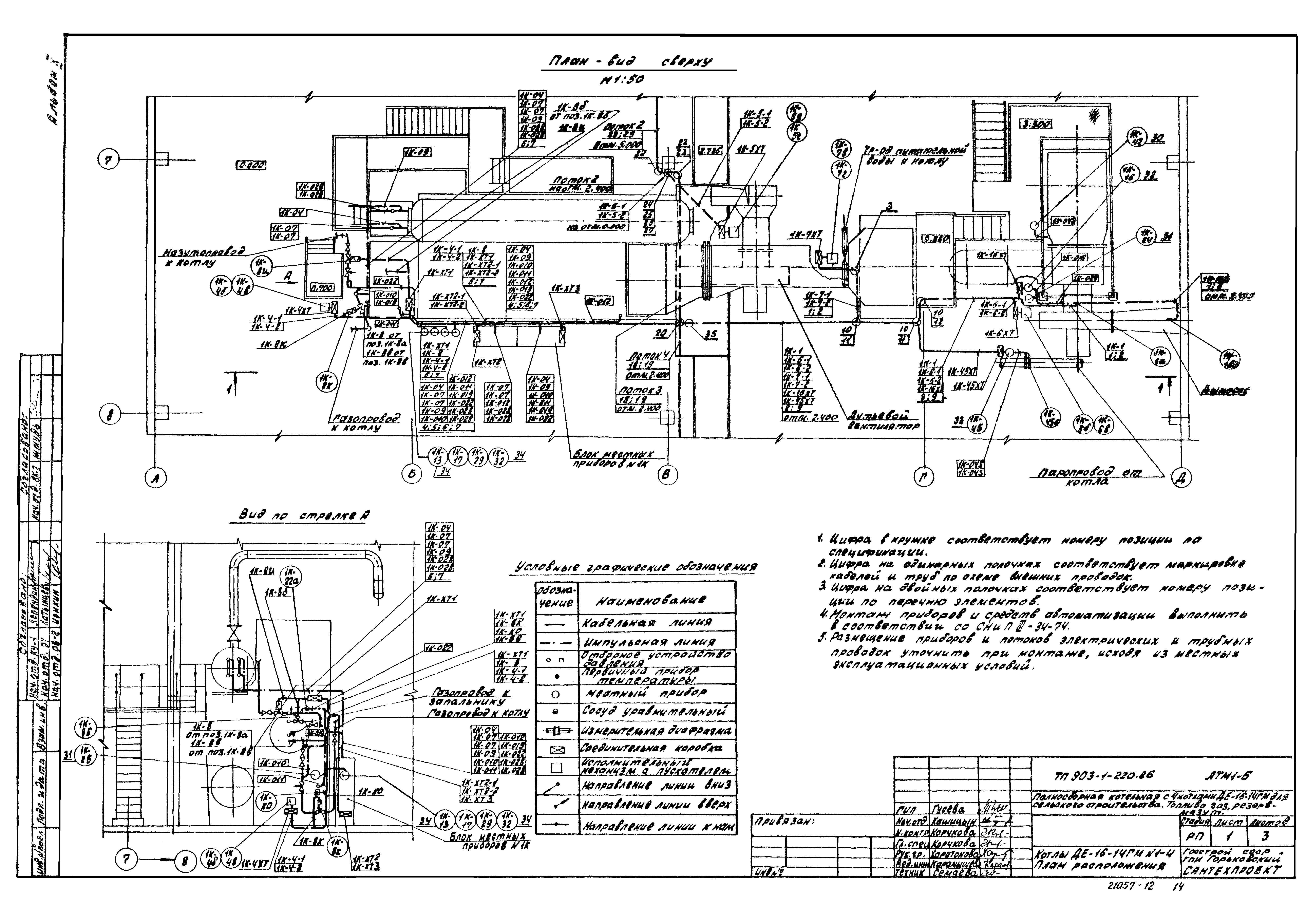
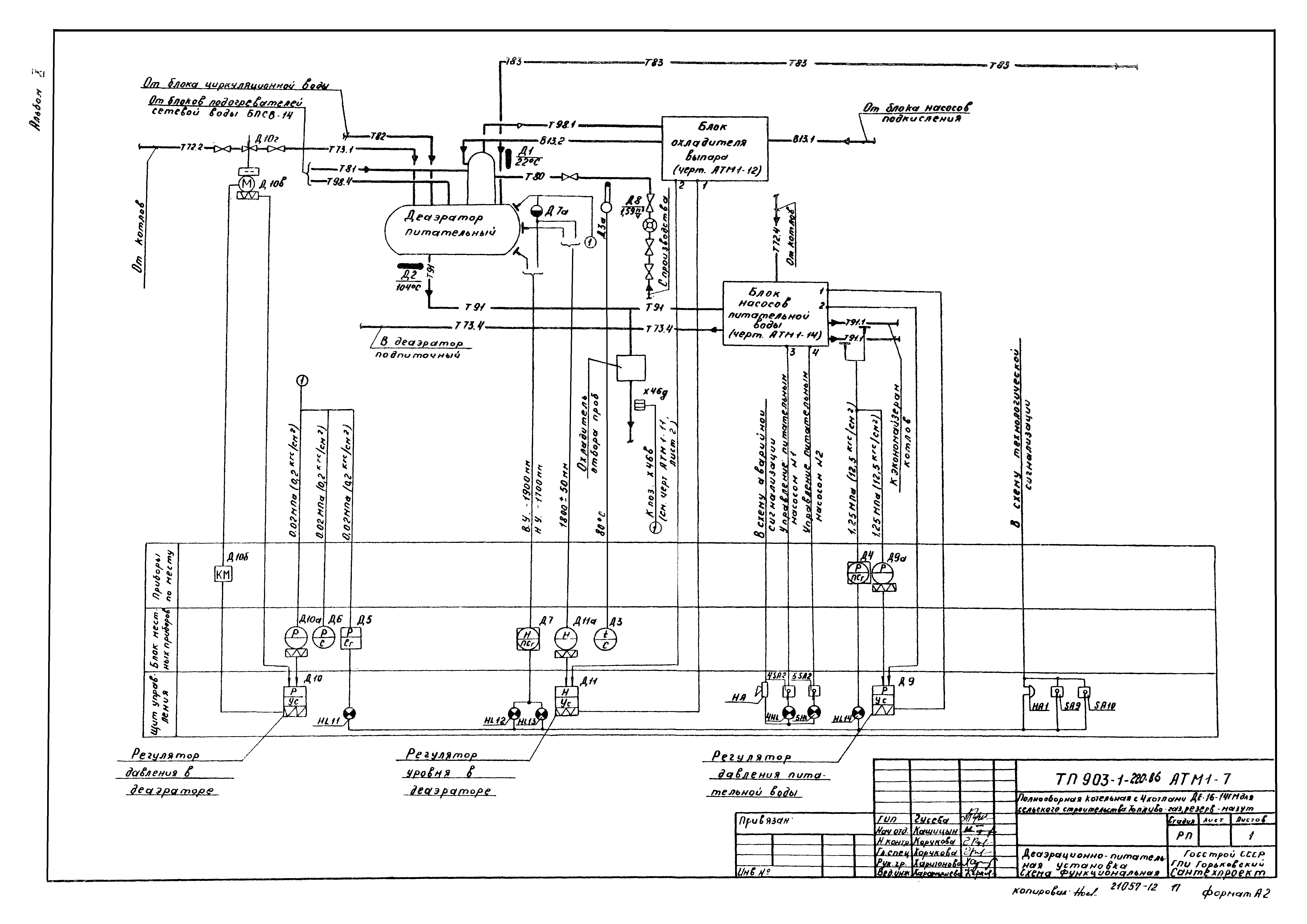
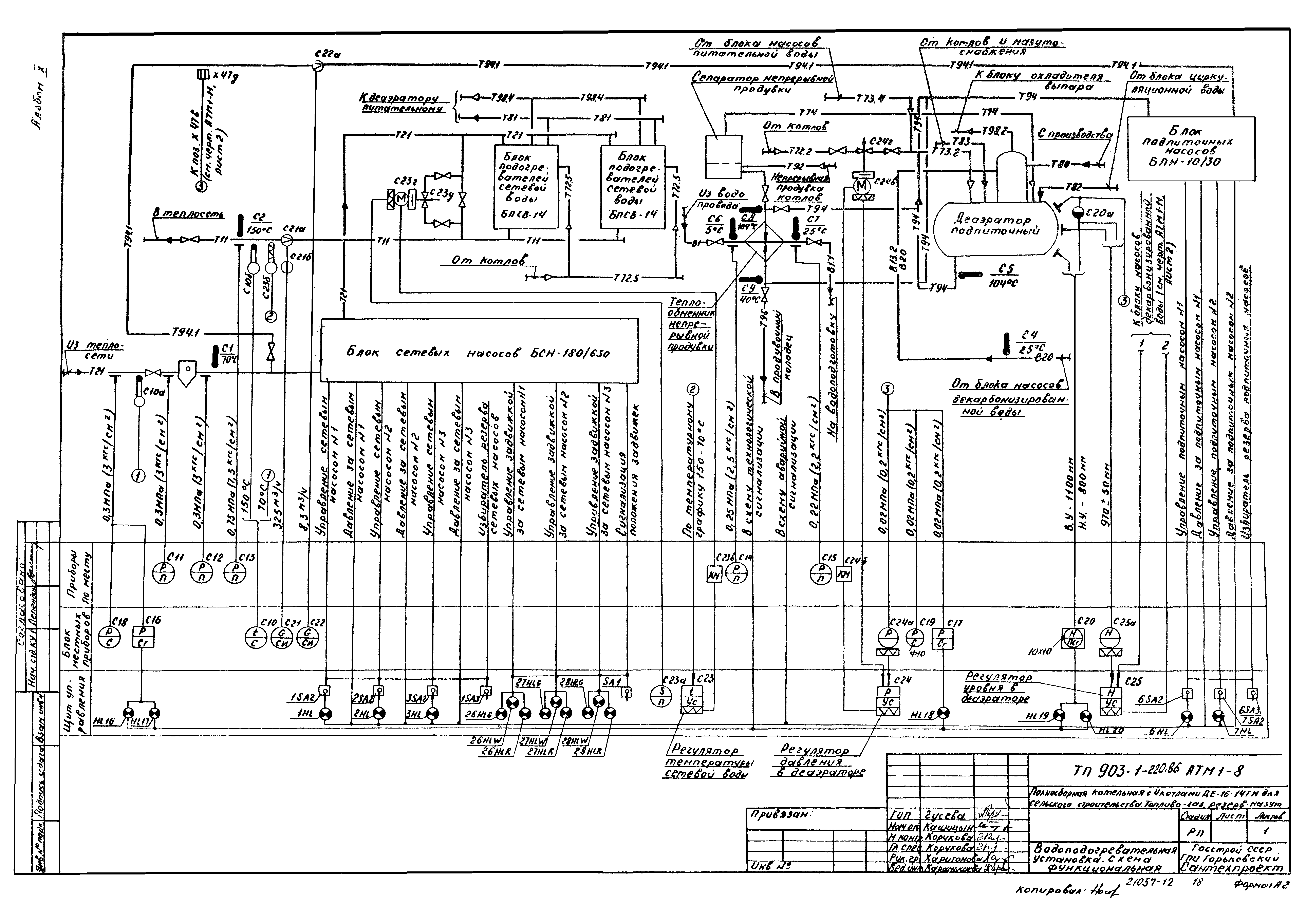
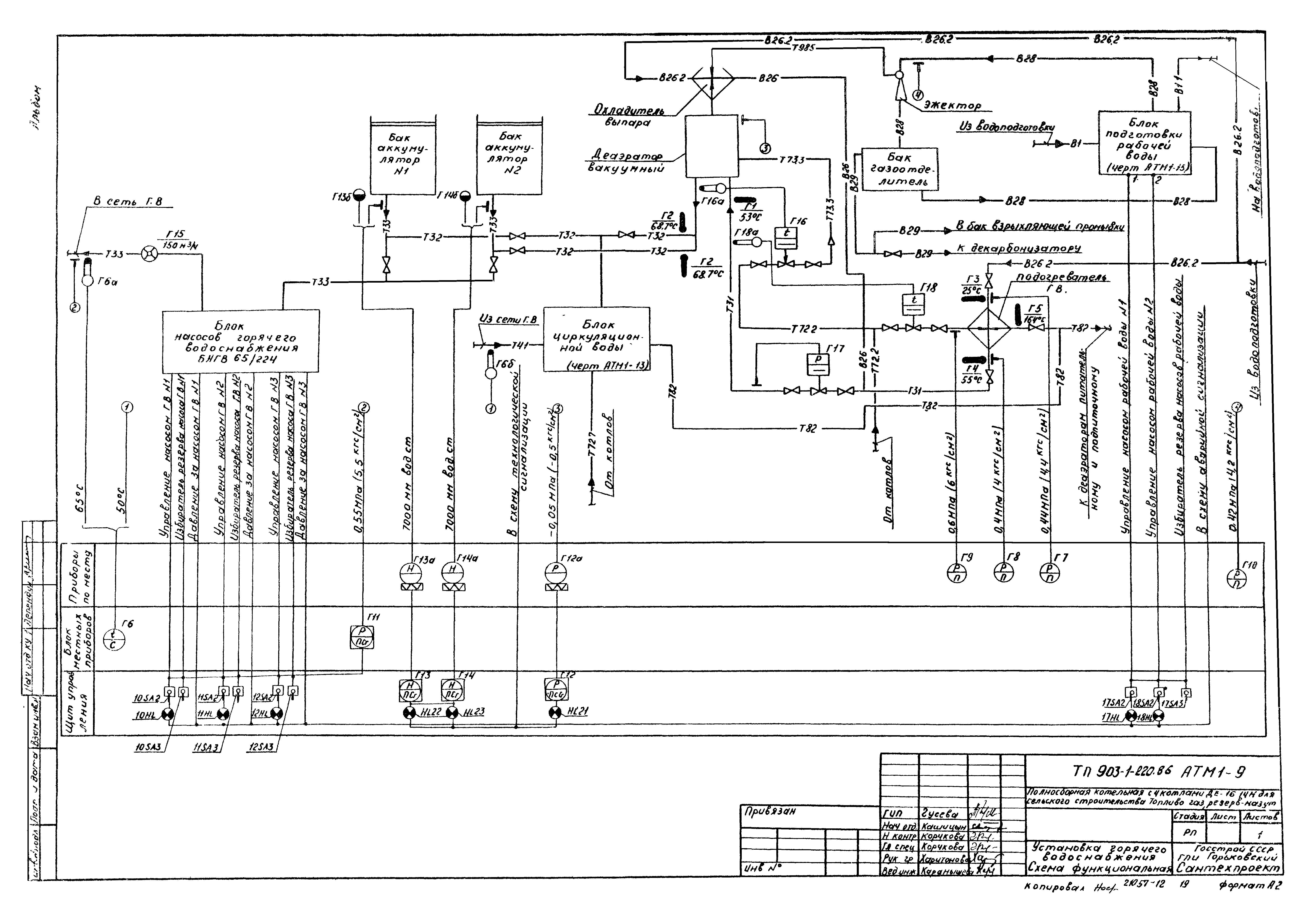
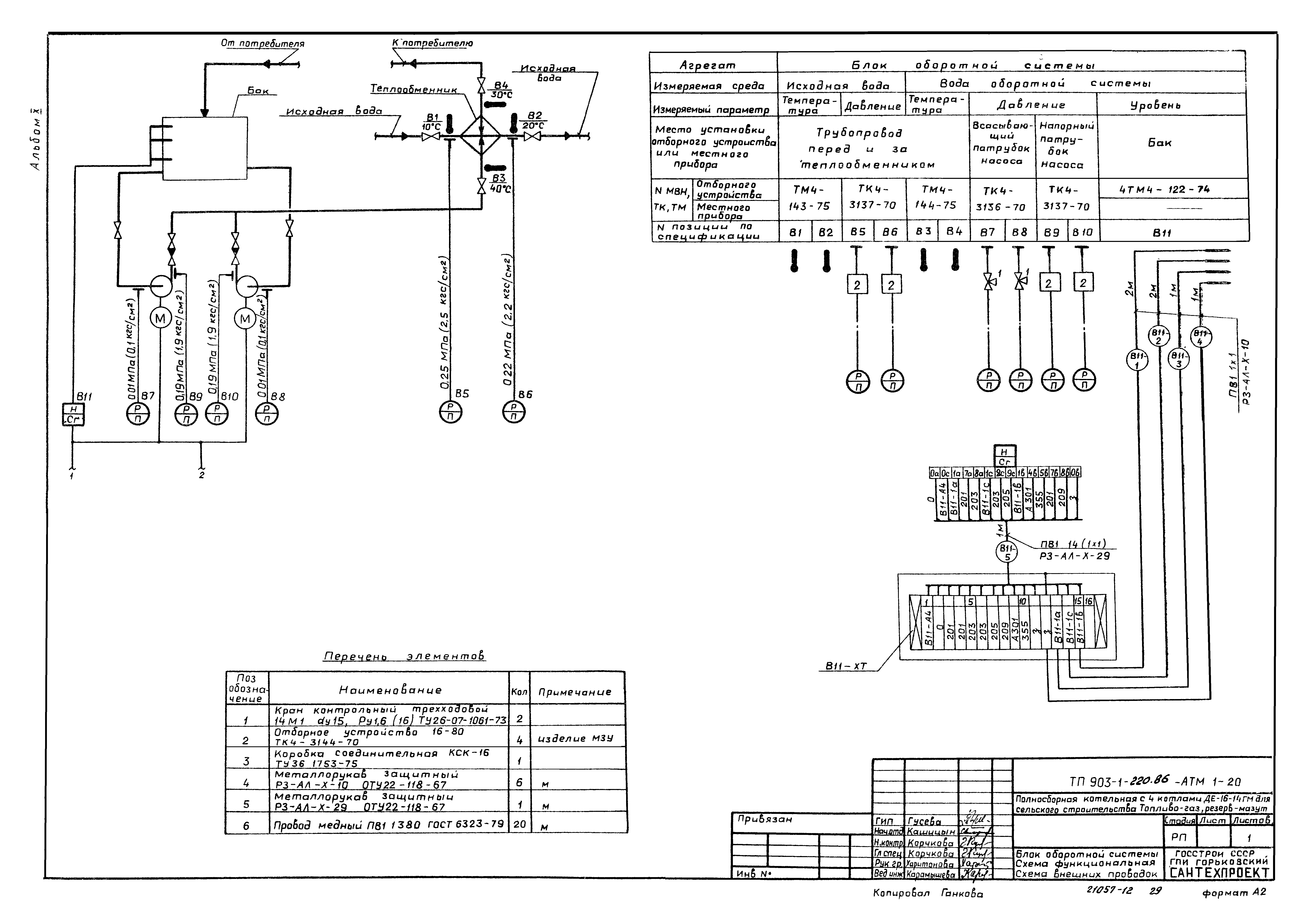
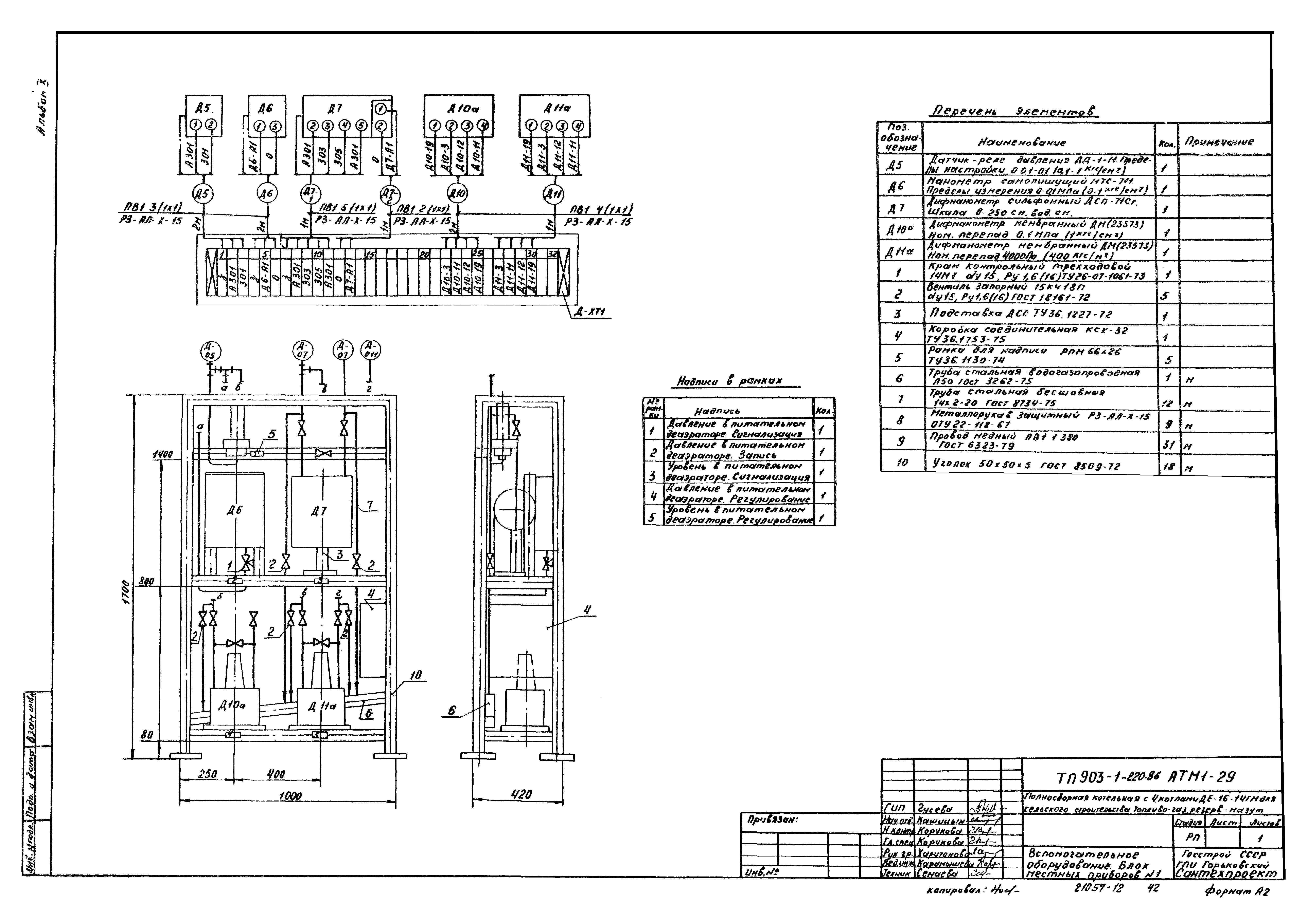
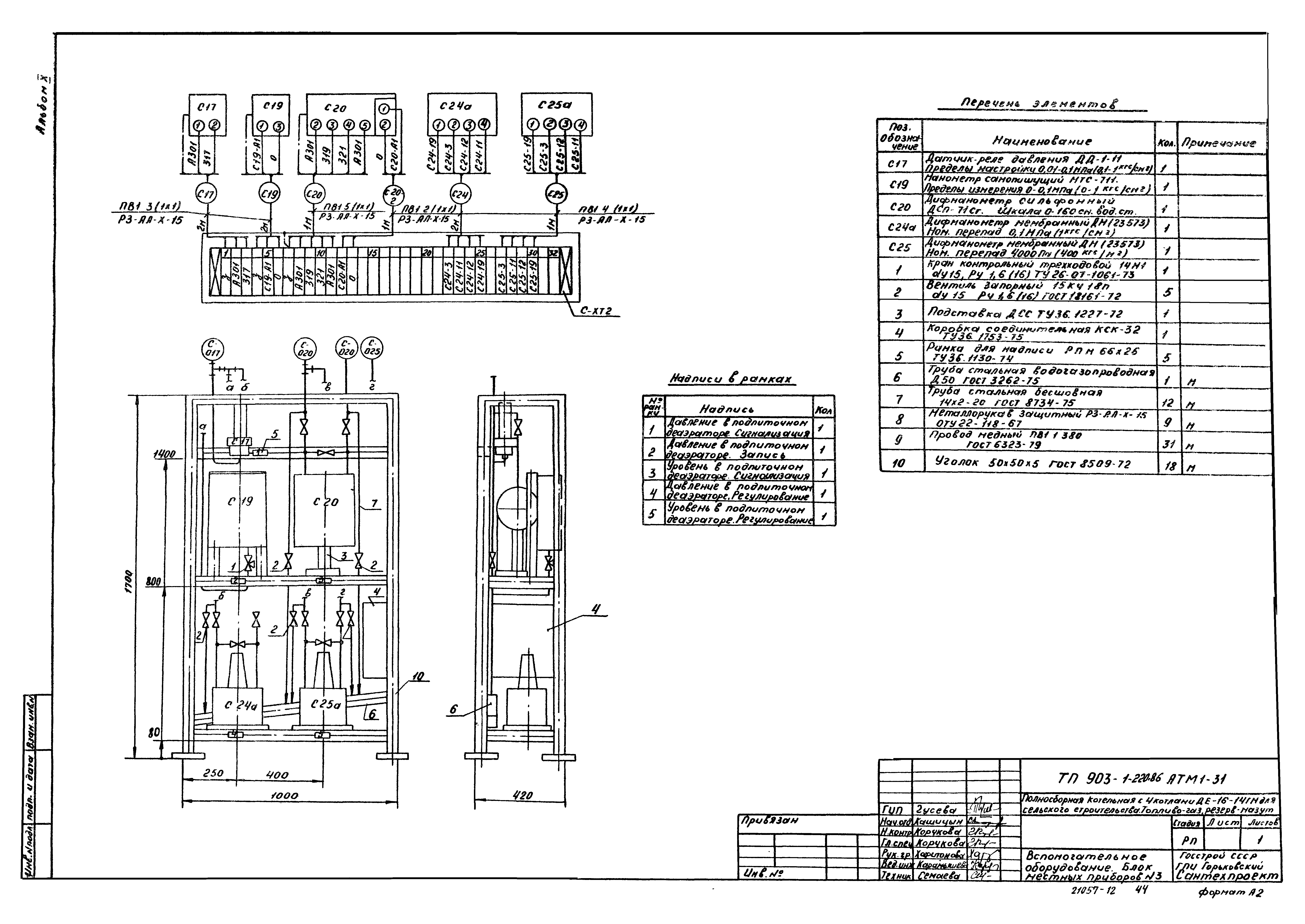
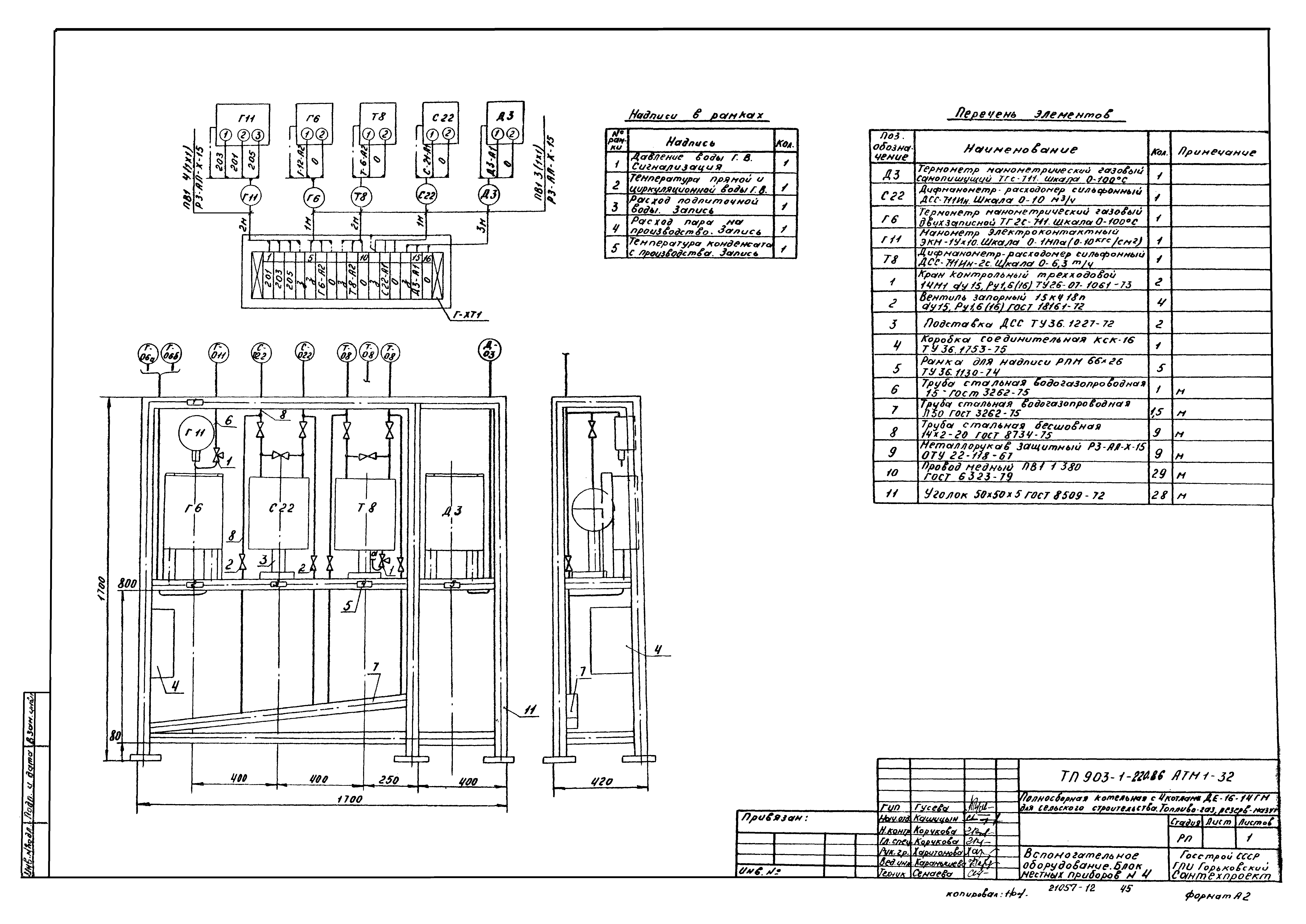
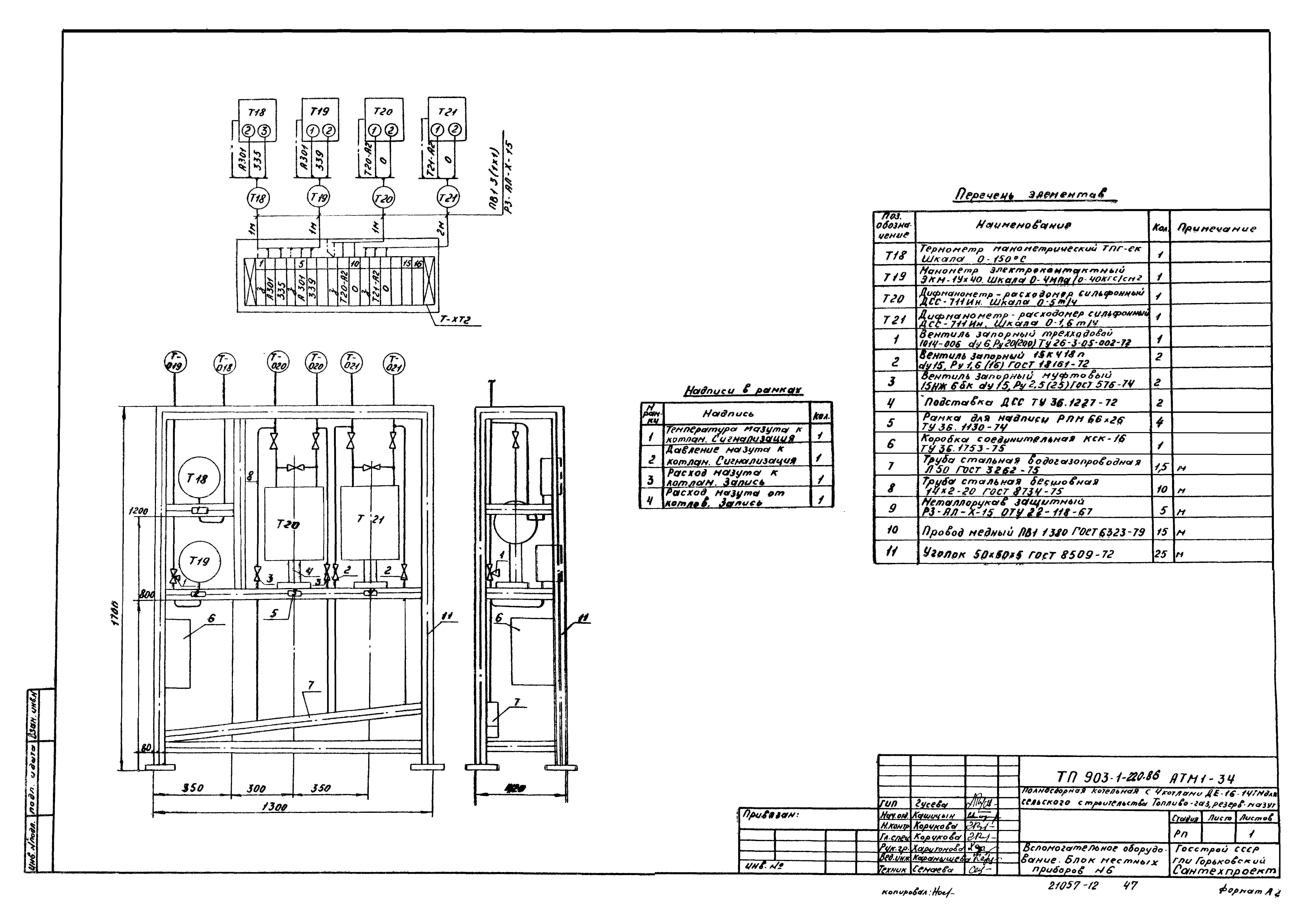
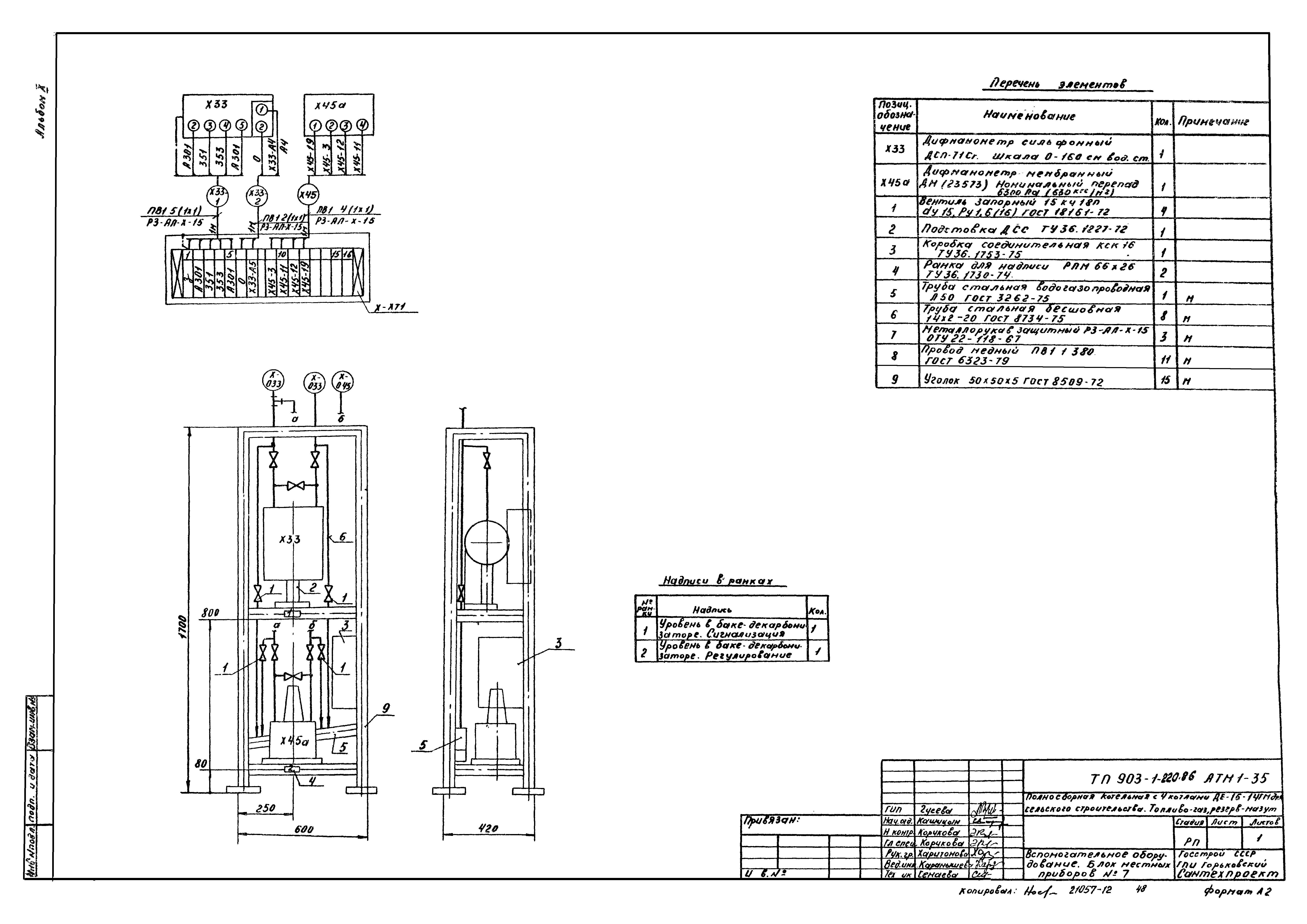
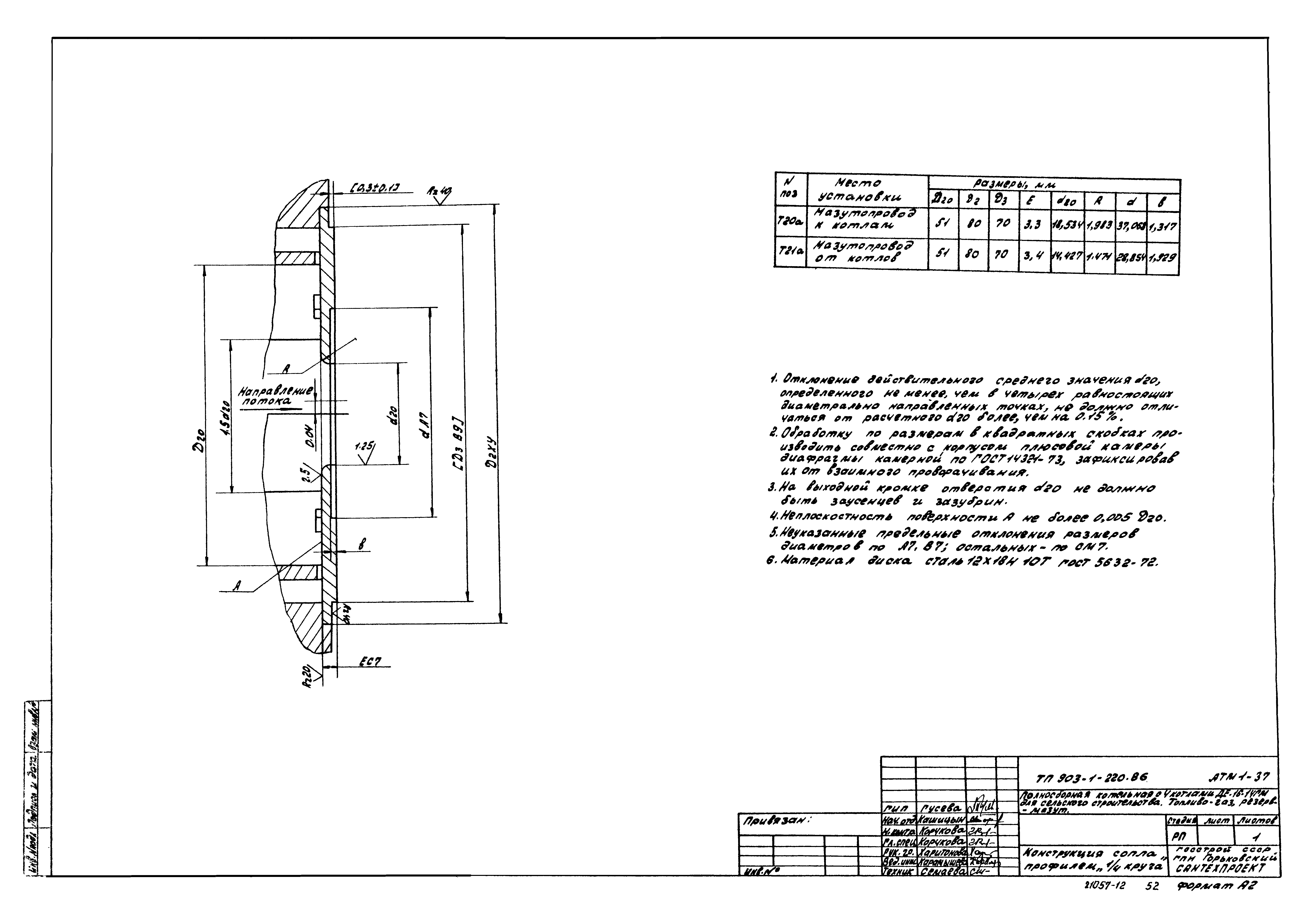
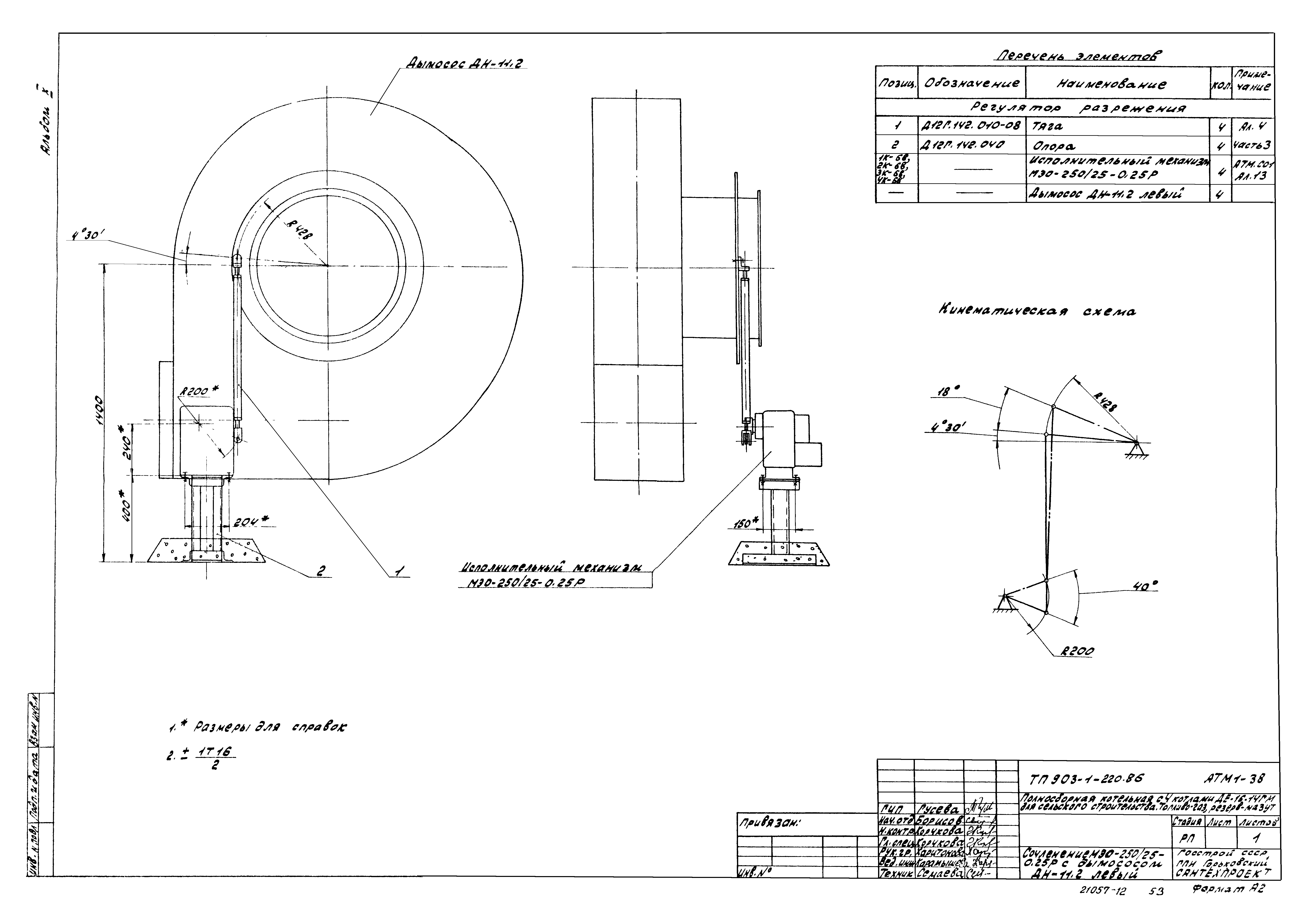
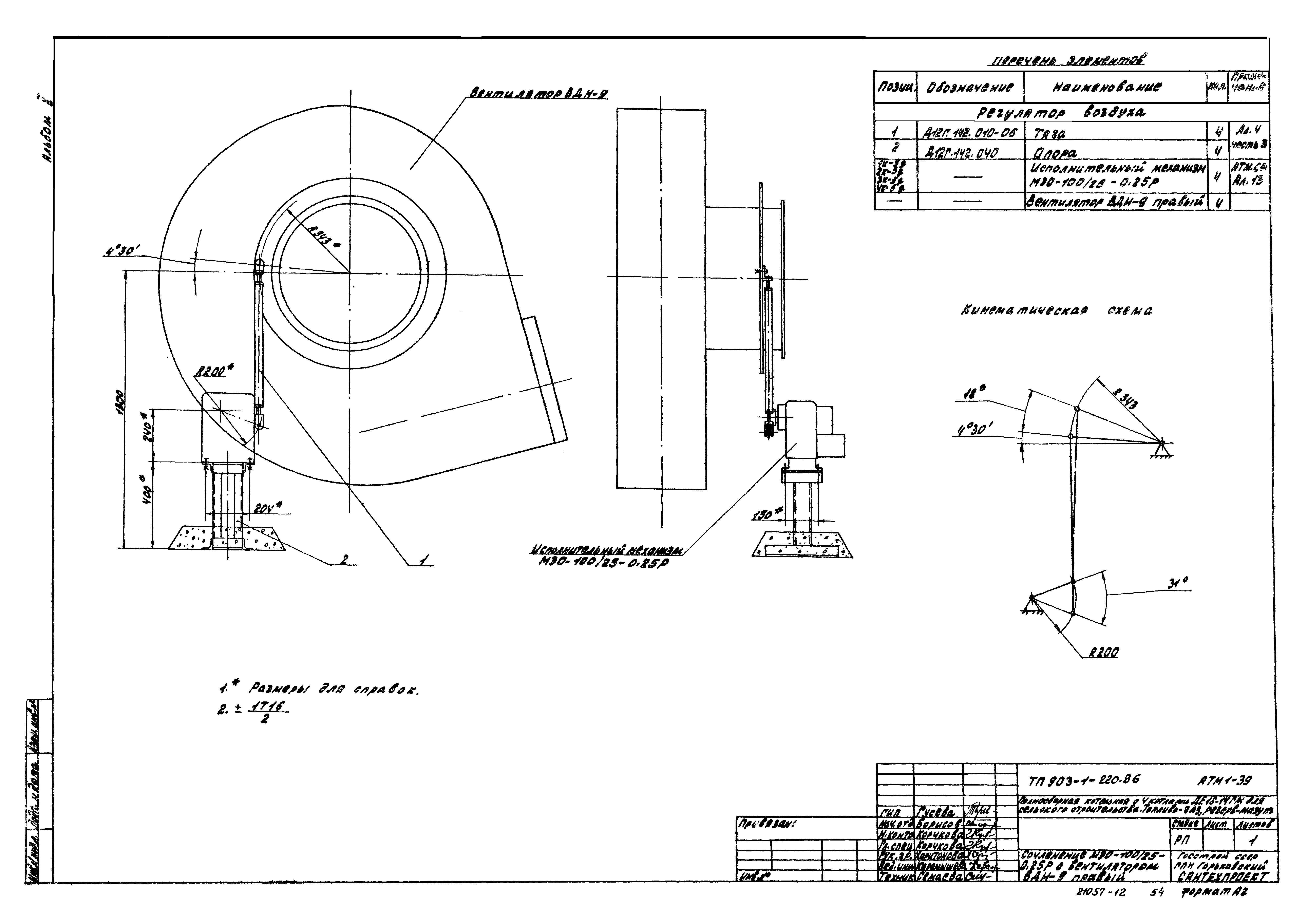
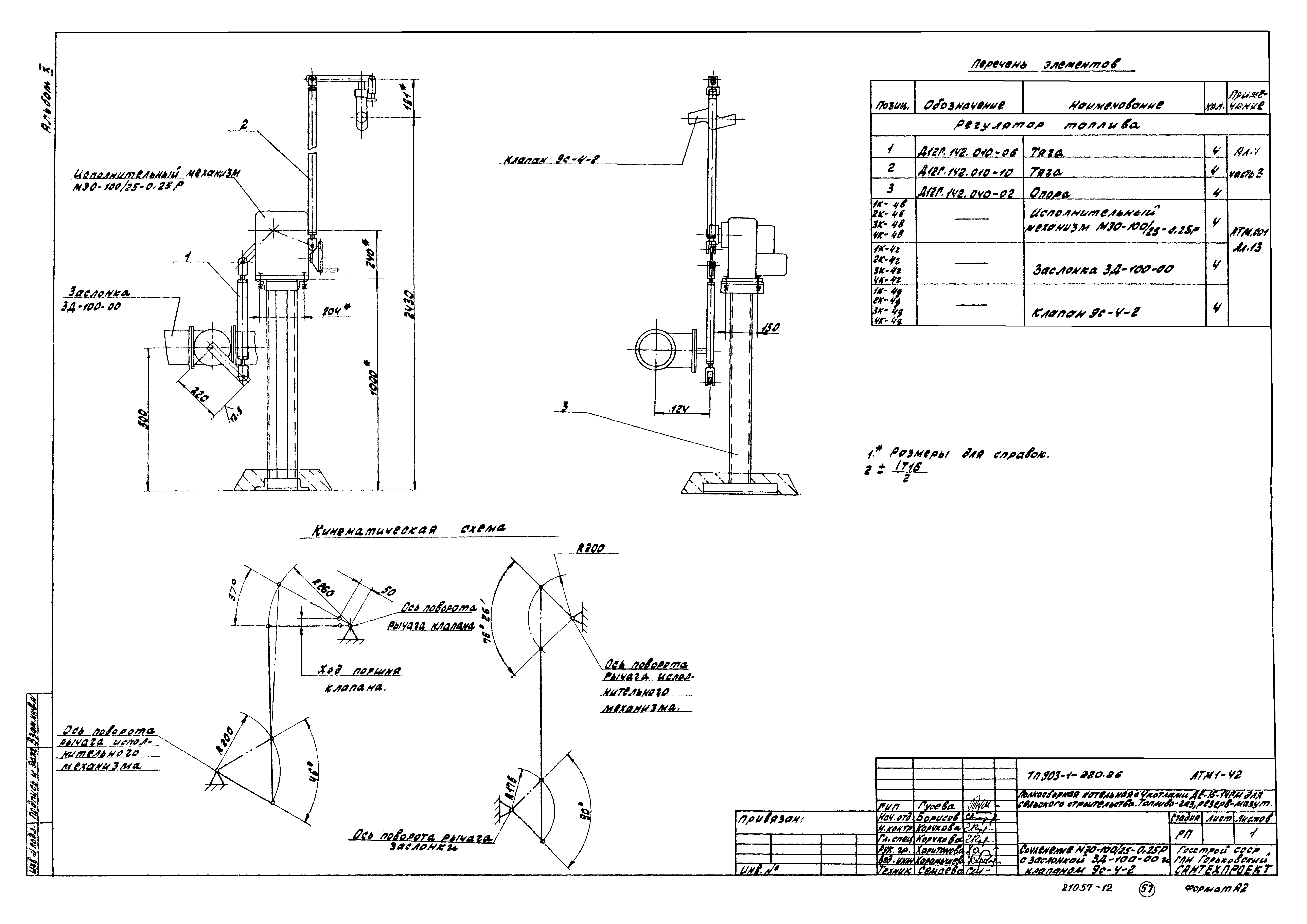
| Оглавление: | ТП 903-1-220.86 Титульный лист ТП 903-1-220.86-АТМ1-1 Общие данные ТП 903-1-220.86-АТМ1-2 Котел ДЕ-16-14ГМ№1(2-4). Схема функциональная< ТП 903-1-220.86-АТМ1-3 Щит управления Щ-ДЕ. Щит общих замеров. Схема подключения ТП 903-1-220.86-АТМ1-4 Котел ДЕ-16-14ГМ№1(2-4). Схема внешних проводок< ТП 903-1-220.86-АТМ1-5 Котел ДЕ-16-14ГМ№1(2-4). Блок местных приборов №1К(2К-4К)< ТП 903-1-220.86-АТМ1-6 Котел ДЕ-16-14ГМ№1(2-4). План расположения< ТП 903-1-220.86-АТМ1-7 Деаэрационно-питательная установка. Схема функциональная ТП 903-1-220.86-АТМ1-8 Водоподогревательная установка. Схема функциональная ТП 903-1-220.86-АТМ1-9 Установка горячего водоснабжения. Схема функциональная ТП 903-1-220.86-АТМ1-10 Паропроводы. Мазутоснабжение. Газоснабжение. Узел управления. Схема функциональная ТП 903-1-220.86-АТМ1-11 Водоподготовка. Оборотное водоснабжение. Схема функциональная ТП 903-1-220.86-АТМ1-12 Блок охладителя выпара. Схема функциональная. Схема внешних проводок ТП 903-1-220.86-АТМ1-13 Блок циркуляционной воды. Схема функциональная. Схема внешних проводок ТП 903-1-220.86-АТМ1-14 Блок насосов питательной воды. Схема функциональная. Схема внешних проводок ТП 903-1-220.86-АТМ1-15 Блок подготовки рабочей воды. Схема функциональная. Схема внешних проводок ТП 903-1-220.86-АТМ1-16 Блок насосов подкисления. Схема функциональная. Схема внешних проводок ТП 903-1-220.86-АТМ1-17 Блок насосов декарбонизированной воды. Схема функциональная. Схема внешних проводок ТП 903-1-220.86-АТМ1-18 Блок насосов промывочной воды. Схема функциональная. Схема внешних проводок ТП 903-1-220.86-АТМ1-19 Блок перекачки конденсата. Схема функциональная. Схема внешних проводок ТП 903-1-220.86-АТМ1-20 Блок оборотной системы. Схема функциональная. Схема внешних проводок ТП 903-1-220.86-АТМ1-21 Щит управления № 1 вспомогательного оборудования. Схема подключения ТП 903-1-220.86-АТМ1-22 Щит управления № 2 вспомогательного оборудования. Схема подключения ТП 903-1-220.86-АТМ1-23 Щит управления № 3 вспомогательного оборудования. Схема подключения ТП 903-1-220.86-АТМ1-24 Деаэрационно-питательная установка. Схема внешних проводок ТП 903-1-220.86-АТМ1-25 Водоподогревательная установка. Схема внешних проводок ТП 903-1-220.86-АТМ1-26 Установка горячего водоснабжения. Схема внешних проводок ТП 903-1-220.86-АТМ1-27 Паропроводы. Мазутоснабжение. Газоснабжение. Узел управления. Схема внешних проводок ТП 903-1-220.86-АТМ1-28 Водоподготовка. Оборотное водоснабжение. Схема внешних проводок ТП 903-1-220.86-АТМ1-29 Вспомогательное оборудование. Блок местных приборов № 1 ТП 903-1-220.86-АТМ1-30 Вспомогательное оборудование. Блок местных приборов № 2 ТП 903-1-220.86-АТМ1-31 Вспомогательное оборудование. Блок местных приборов № 3 ТП 903-1-220.86-АТМ1-32 Вспомогательное оборудование. Блок местных приборов № 4 ТП 903-1-220.86-АТМ1-33 Вспомогательное оборудование. Блок местных приборов № 5 ТП 903-1-220.86-АТМ1-34 Вспомогательное оборудование. Блок местных приборов № 6 ТП 903-1-220.86-АТМ1-35 Вспомогательное оборудование. Блок местных приборов № 7 ТП 903-1-220.86-АТМ1-36 Вспомогательное оборудование. План расположения ТП 903-1-220.86-АТМ1-37 Конструкция сопла профилем "1/4 круга" ТП 903-1-220.86-АТМ1-38 Сочленение МЭО-250/25-0.25Р с дымососом ДН-11,2 левый ТП 903-1-220.86-АТМ1-39 Сочленение МЭО-100/25-0.25Р с вентилятором ВДН-9 правый ТП 903-1-220.86-АТМ1-40 Сочленение МЭО-100/25-0.25Р с клапанами типа 6с, Т-30 ТП 903-1-220.86-АТМ1-41 Сочленение МЭО-100/25-0.25Р с клапанами типа 9с-4-1-1 ТП 903-1-220.86-АТМ1-42 Сочленение МЭО-100/25-0.25Р с заслонкой ЗД-100-00 и клапаном 9с-4-2 |
| Разработан: | Горьковский Сантехпроект |
| Утверждён: | 07.09.1985 Минсельхоз СССР (USSR Minselkhoz 60-ЭГ) |

























































