Скачать Типовые проектные решения 903-09-11.84 Альбом 1. Пояснительная записка, чертежиДата актуализации: 01.01.2021
|
| Обозначение: | Типовые проектные решения 903-09-11.84 |
| Обозначение англ: | 903-09-11.84 |
| Статус: | справочные материалы, мп, тпр |
| Название рус.: | Альбом 1. Пояснительная записка, чертежи |
| Дата добавления в базу: | 01.09.2013 |
| Дата актуализации: | 01.01.2021 |
| Дата окончания срока действия: | 03.11.1983 |
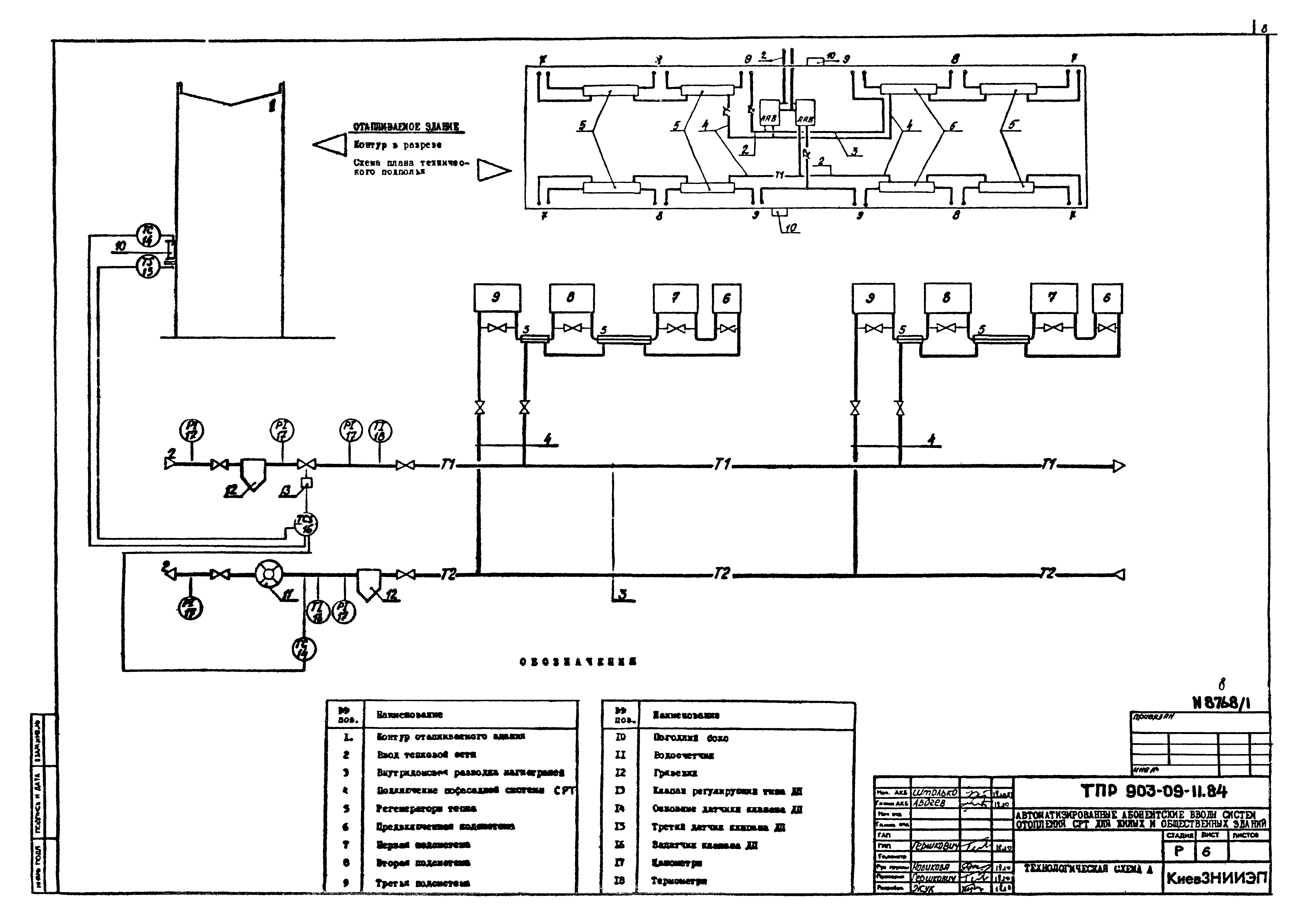
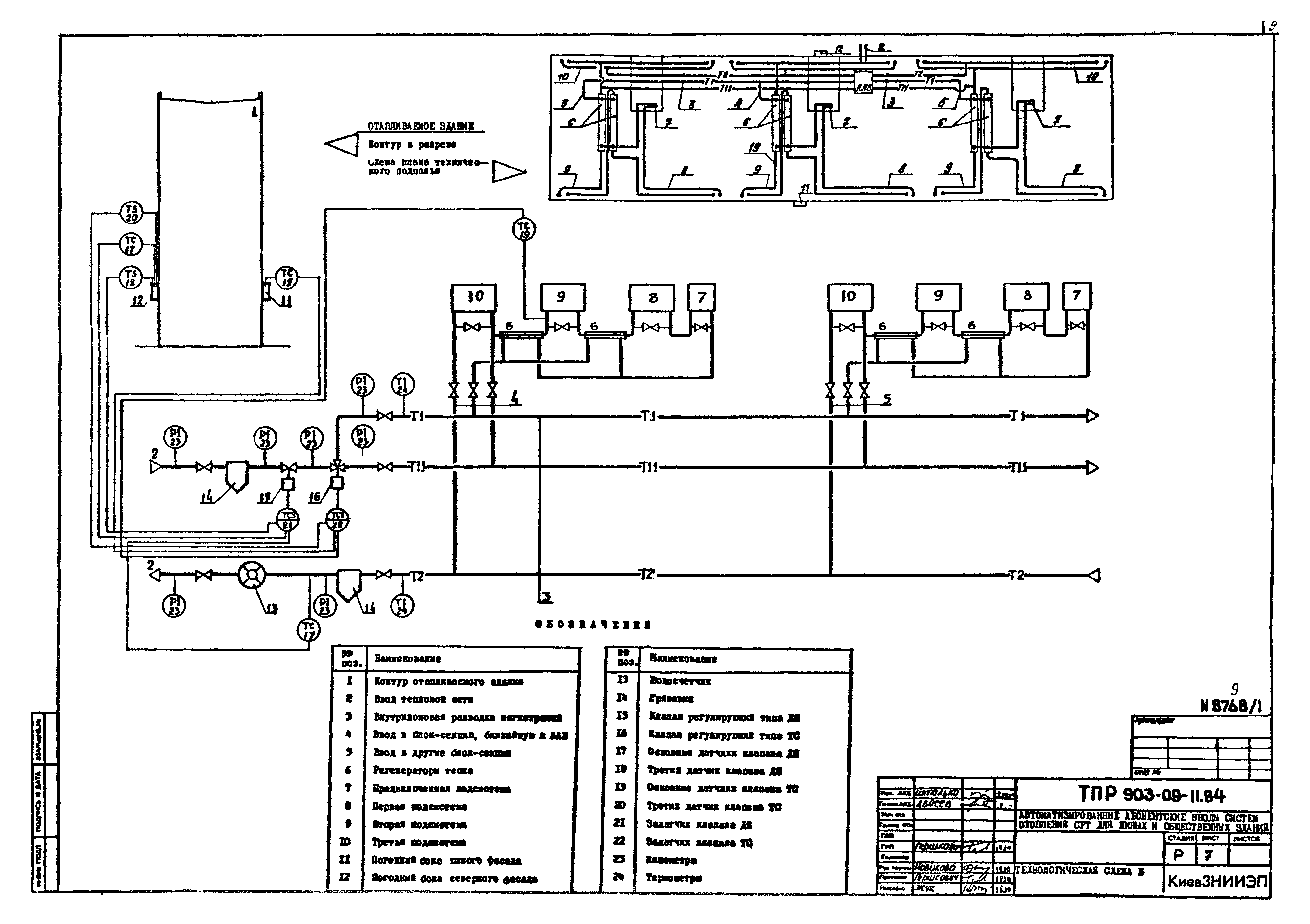
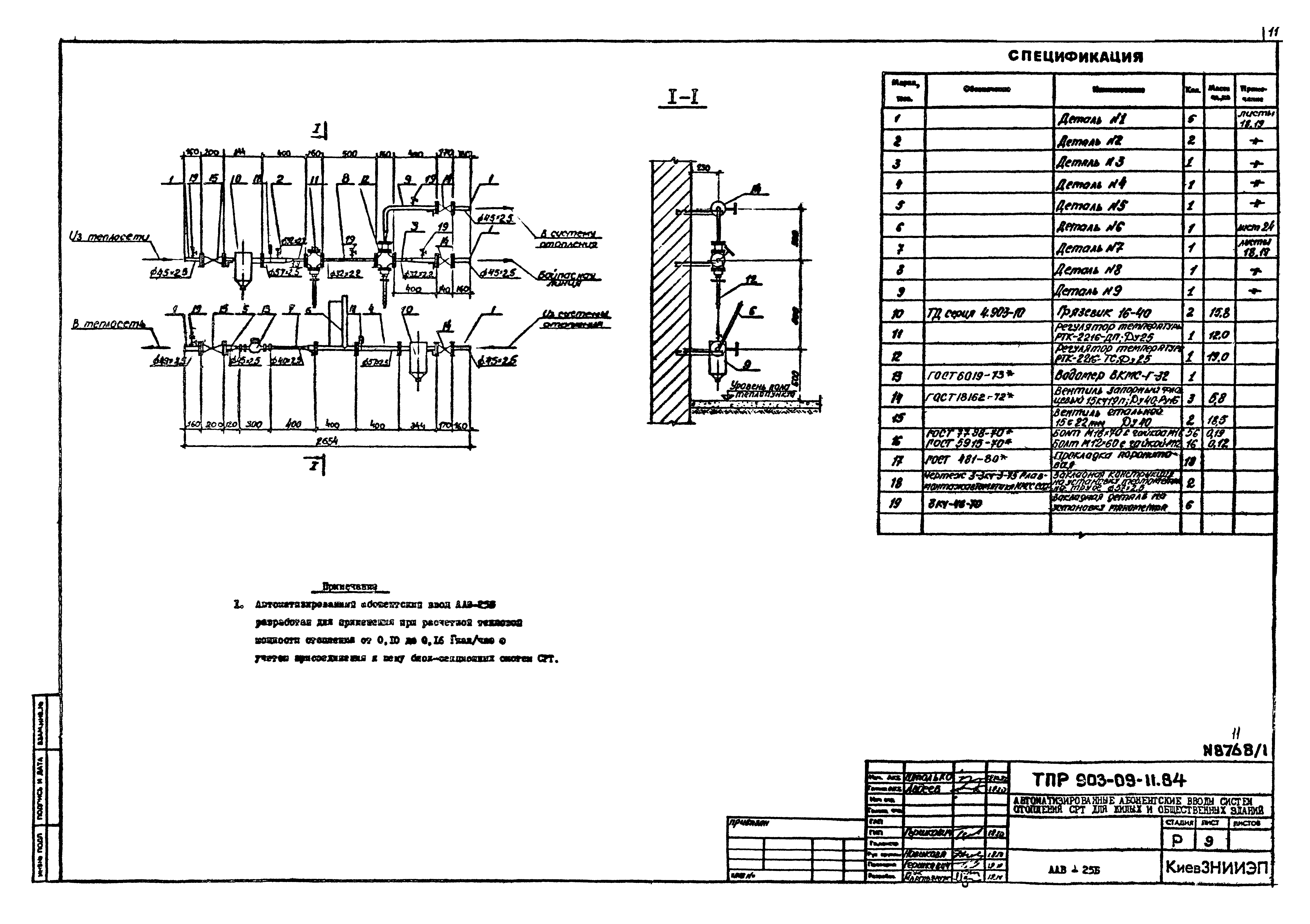
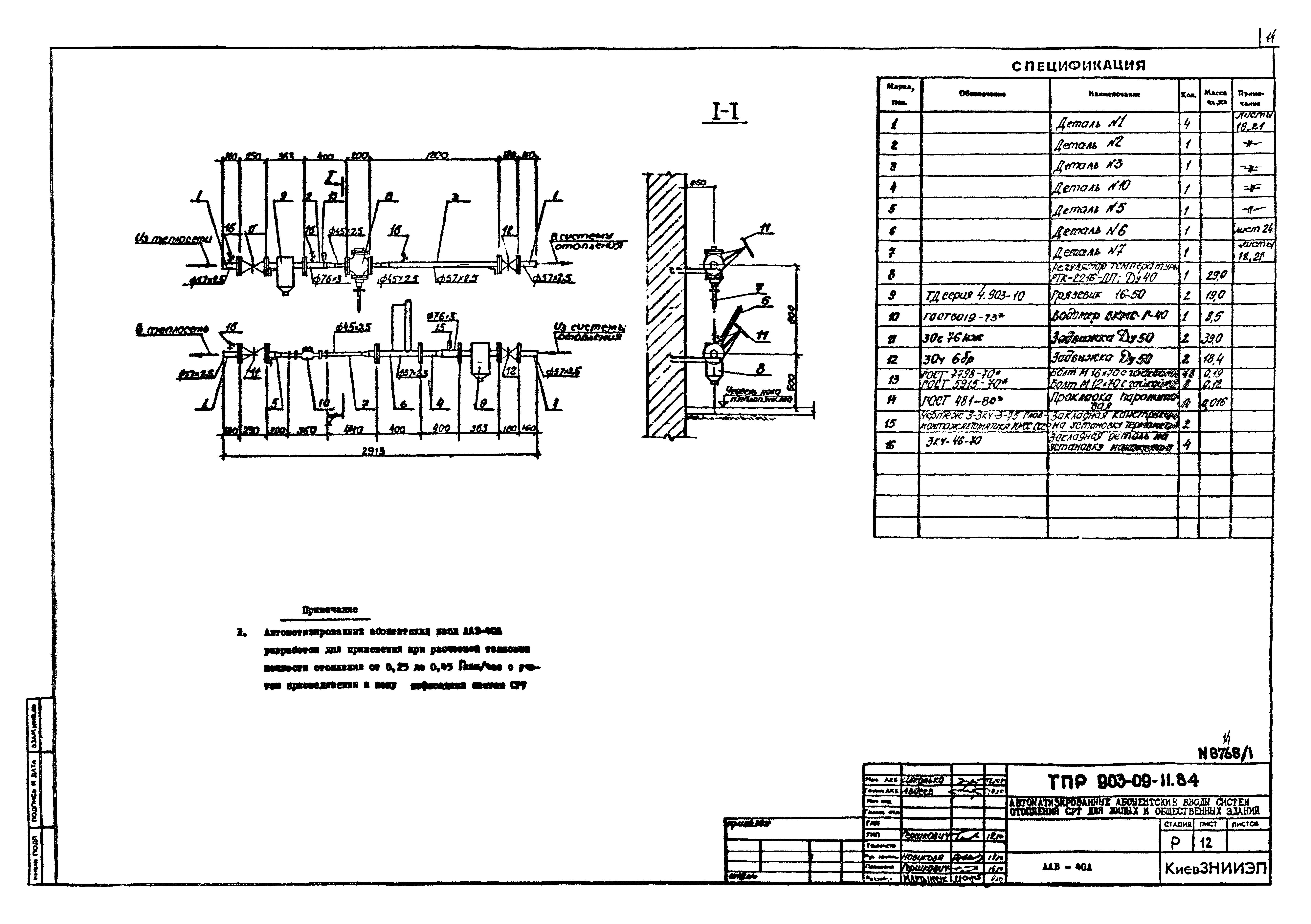
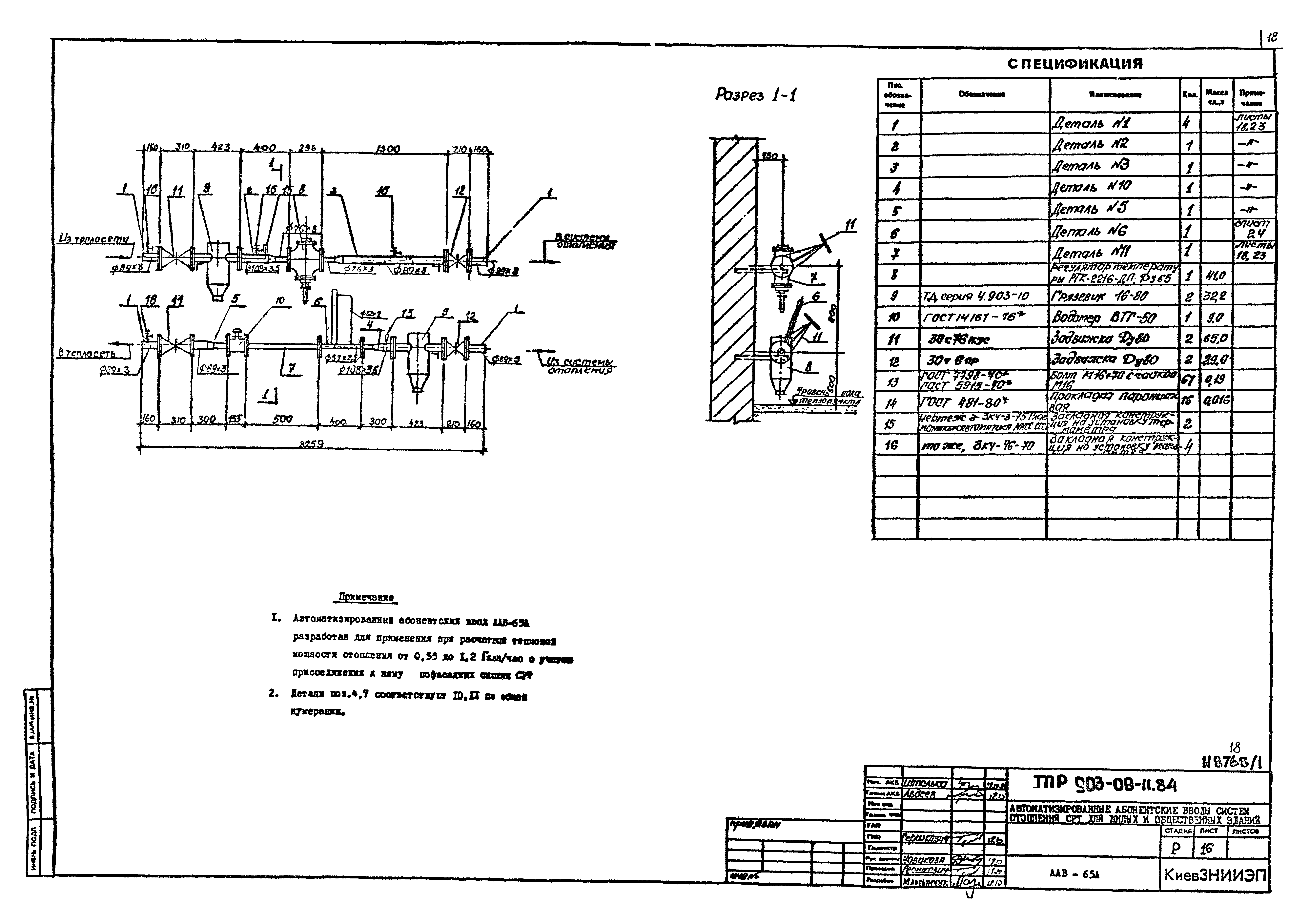
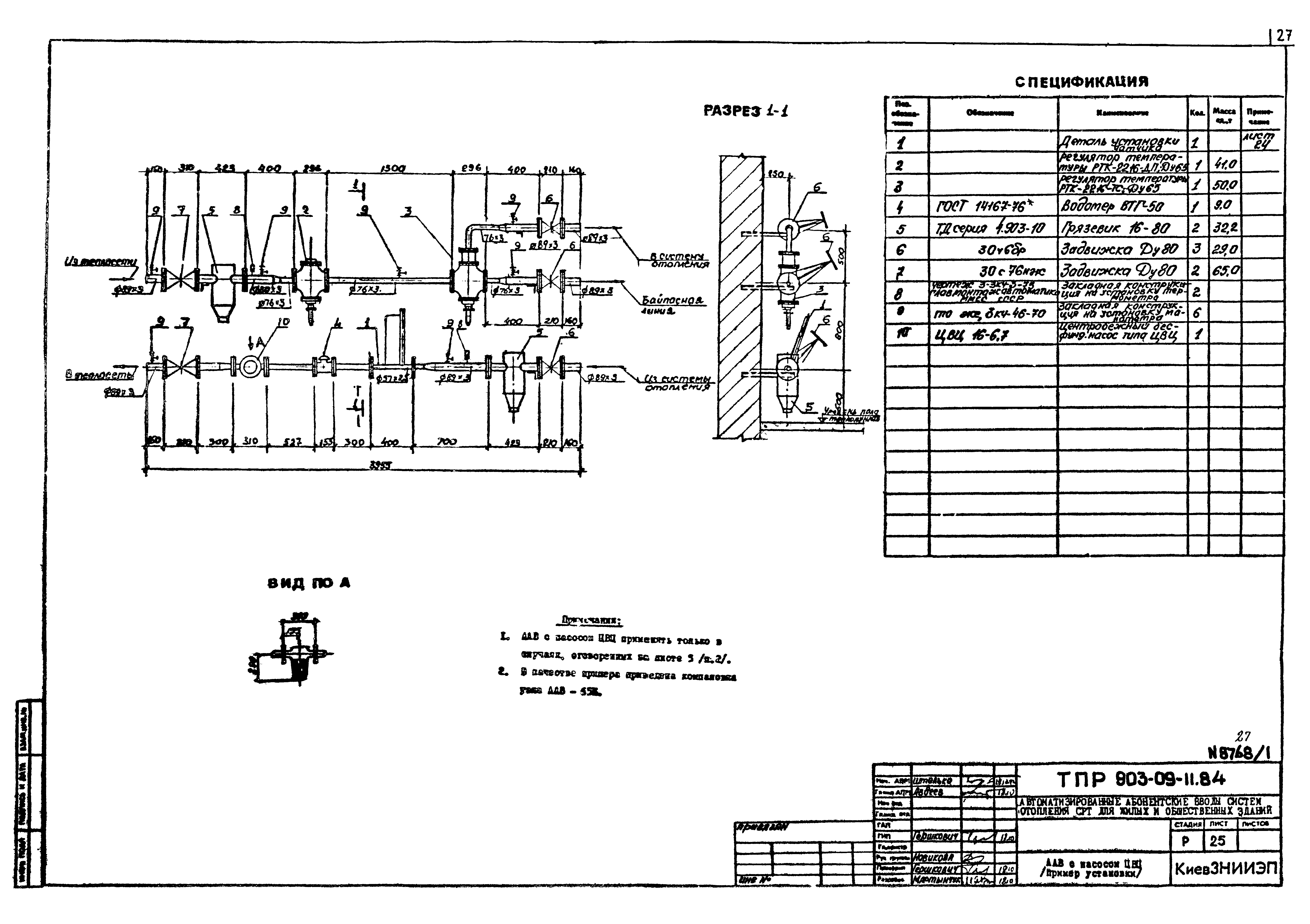
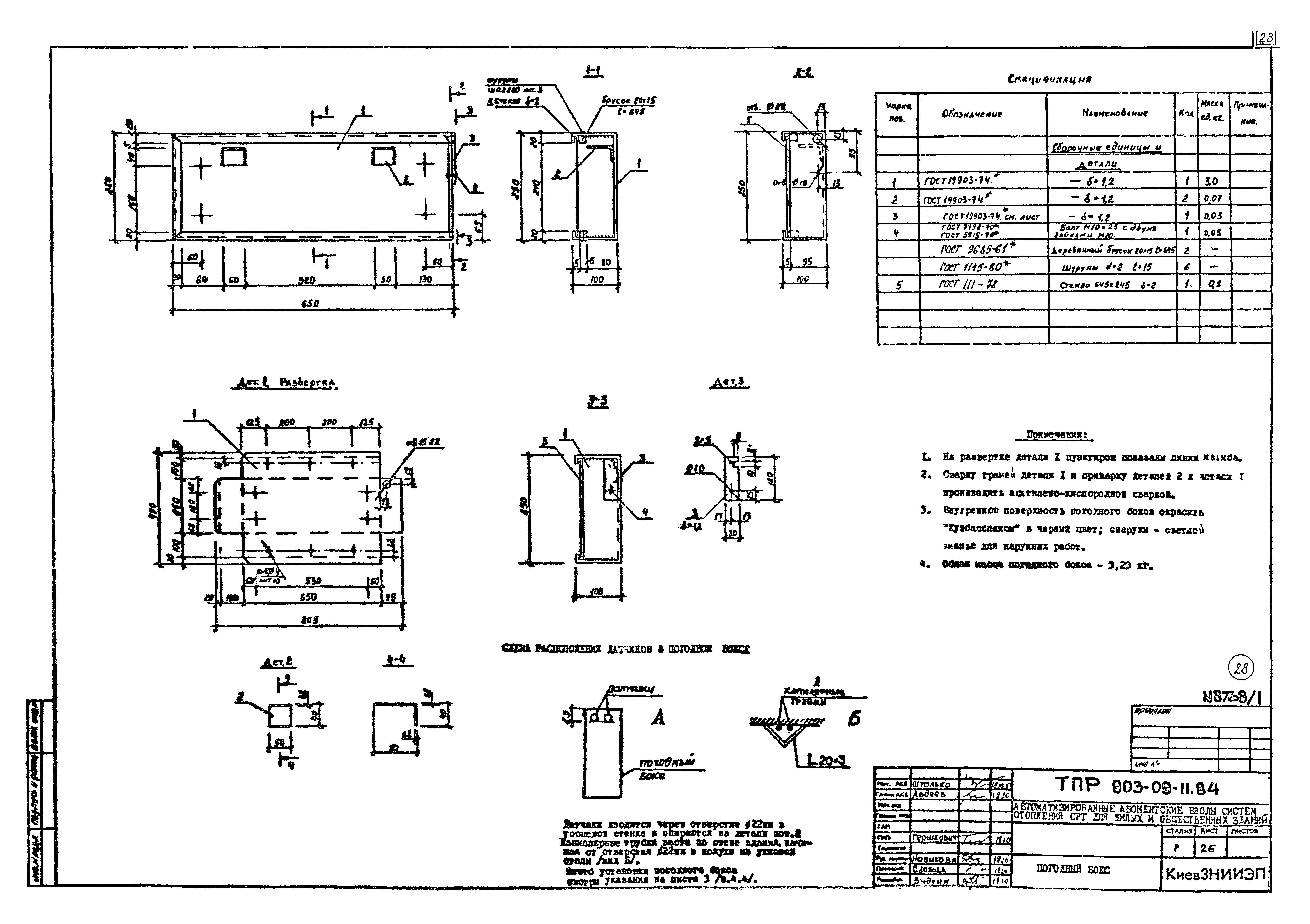
| Оглавление: | ТПР 903-09-11.84 Титульный лист ТПР 903-09-11.84 Содержание альбома ТПР 903-09-11.84 Общие данные (начало) ТПР 903-09-11.84 Общие данные (продолжение) ТПР 903-09-11.84 Общие данные (окончание) ТПР 903-09-11.84 Технологическая схема А ТПР 903-09-11.84 Технологическая схема Б ТПР 903-09-11.84 ААВ-25А ТПР 903-09-11.84 ААВ-25Б ТПР 903-09-11.84 ААВ-32А ТПР 903-09-11.84 ААВ-32Б ТПР 903-09-11.84 ААВ-40А ТПР 903-09-11.84 ААВ-40Б ТПР 903-09-11.84 ААВ-50А ТПР 903-09-11.84 ААВ-50Б ТПР 903-09-11.84 ААВ-65А ТПР 903-09-11.84 ААВ-65Б ТПР 903-09-11.84 Схема деталей ААВ ТПР 903-09-11.84 Размеры деталей ААВ-25 ТПР 903-09-11.84 Размеры деталей ААВ-32 ТПР 903-09-11.84 Размеры деталей ААВ-40 ТПР 903-09-11.84 Размеры деталей ААВ-50 ТПР 903-09-11.84 Размеры деталей ААВ-65 ТПР 903-09-11.84 Детали установки датчиков ТПР 903-09-11.84 ААВ с насосом ЦВП (пример установки) ТПР 903-09-11.84 Погодный бокс |
| Утверждён: | 27.06.1983 Госстрой УССР (UkrSSR Gosstroy 124) |





























