Скачать Типовой проект 903-1-154 Альбом I. Часть 1. Тепломеханическая часть. Компоновка котельной. Установка оборудования неблочного исполнения. Газовоздуховоды. ГазоснабжениеДата актуализации: 01.01.2021
|
| Обозначение: | Типовой проект 903-1-154 |
| Обозначение англ: | 903-1-154 |
| Статус: | действует |
| Название рус.: | Альбом I. Часть 1. Тепломеханическая часть. Компоновка котельной. Установка оборудования неблочного исполнения. Газовоздуховоды. Газоснабжение |
| Дата добавления в базу: | 01.09.2013 |
| Дата актуализации: | 01.01.2021 |
| Дата введения: | 28.09.1978 |
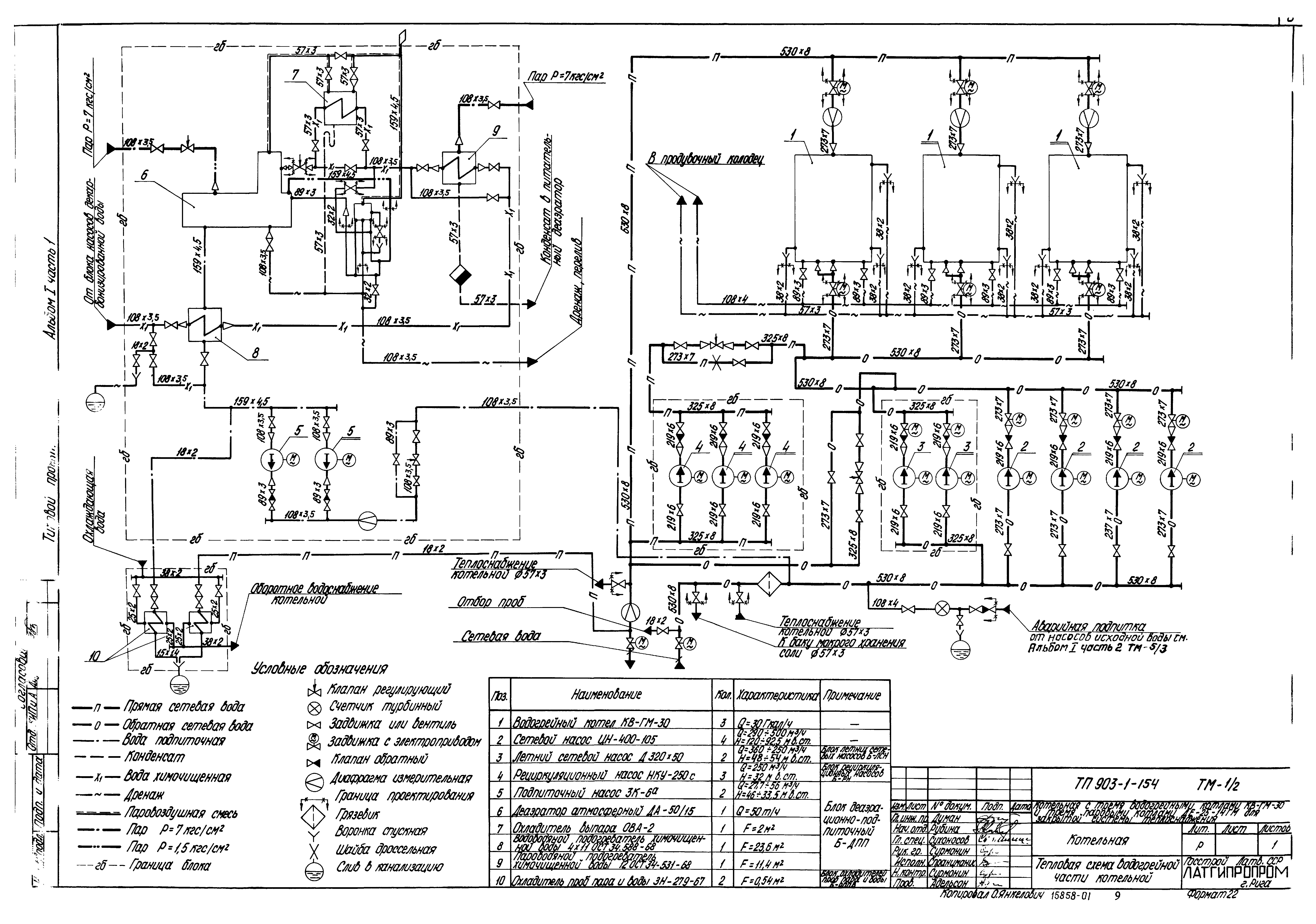
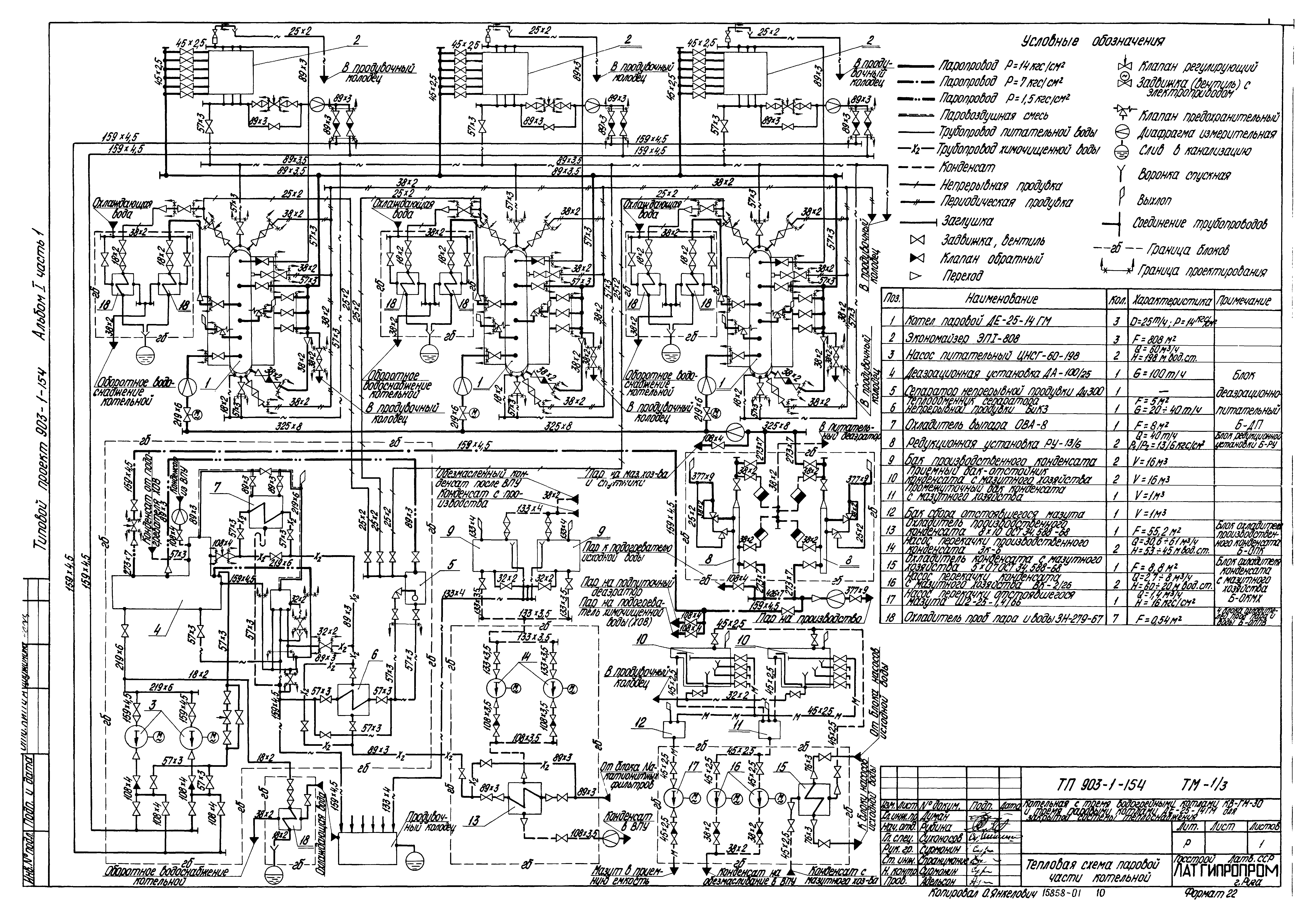
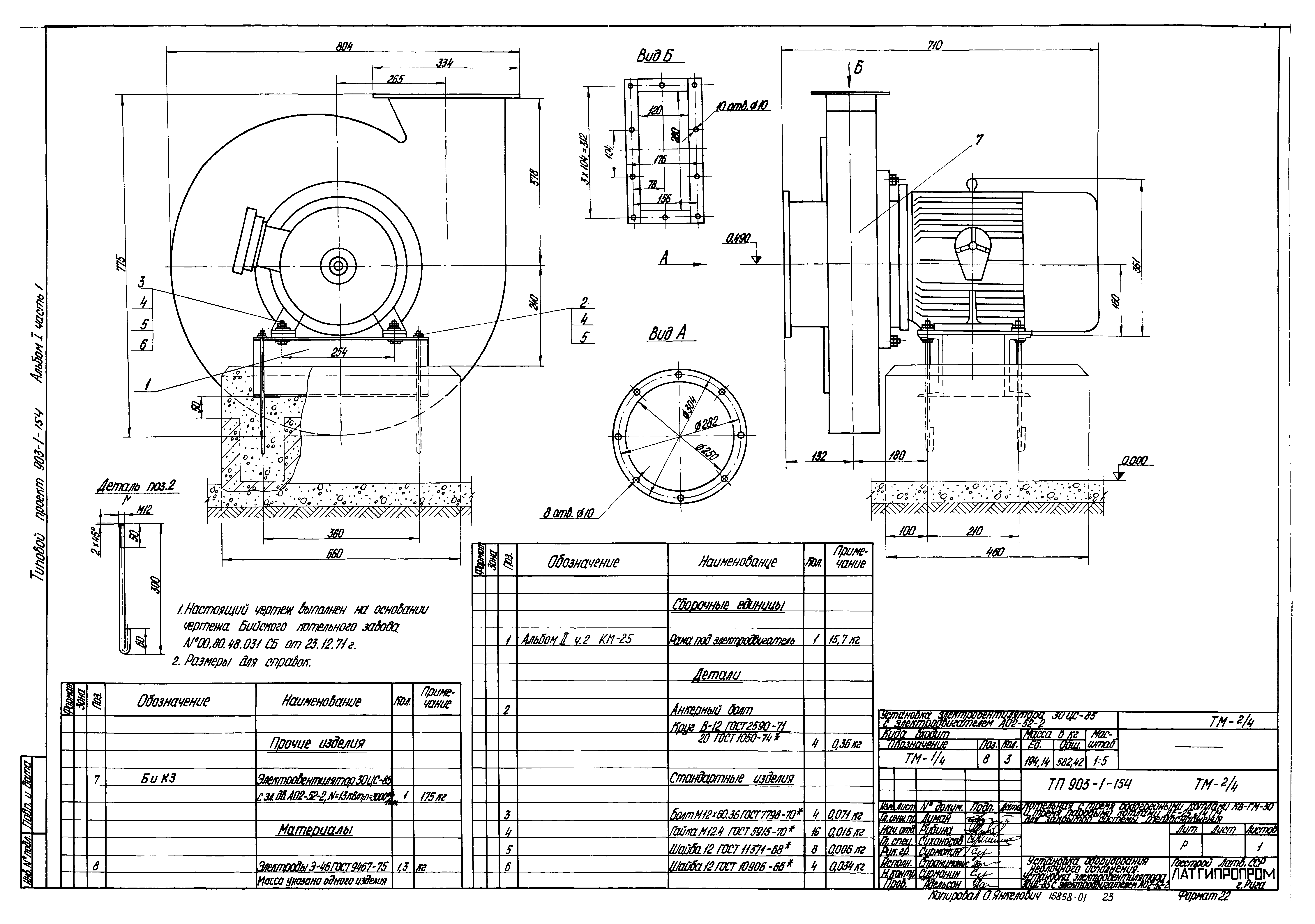
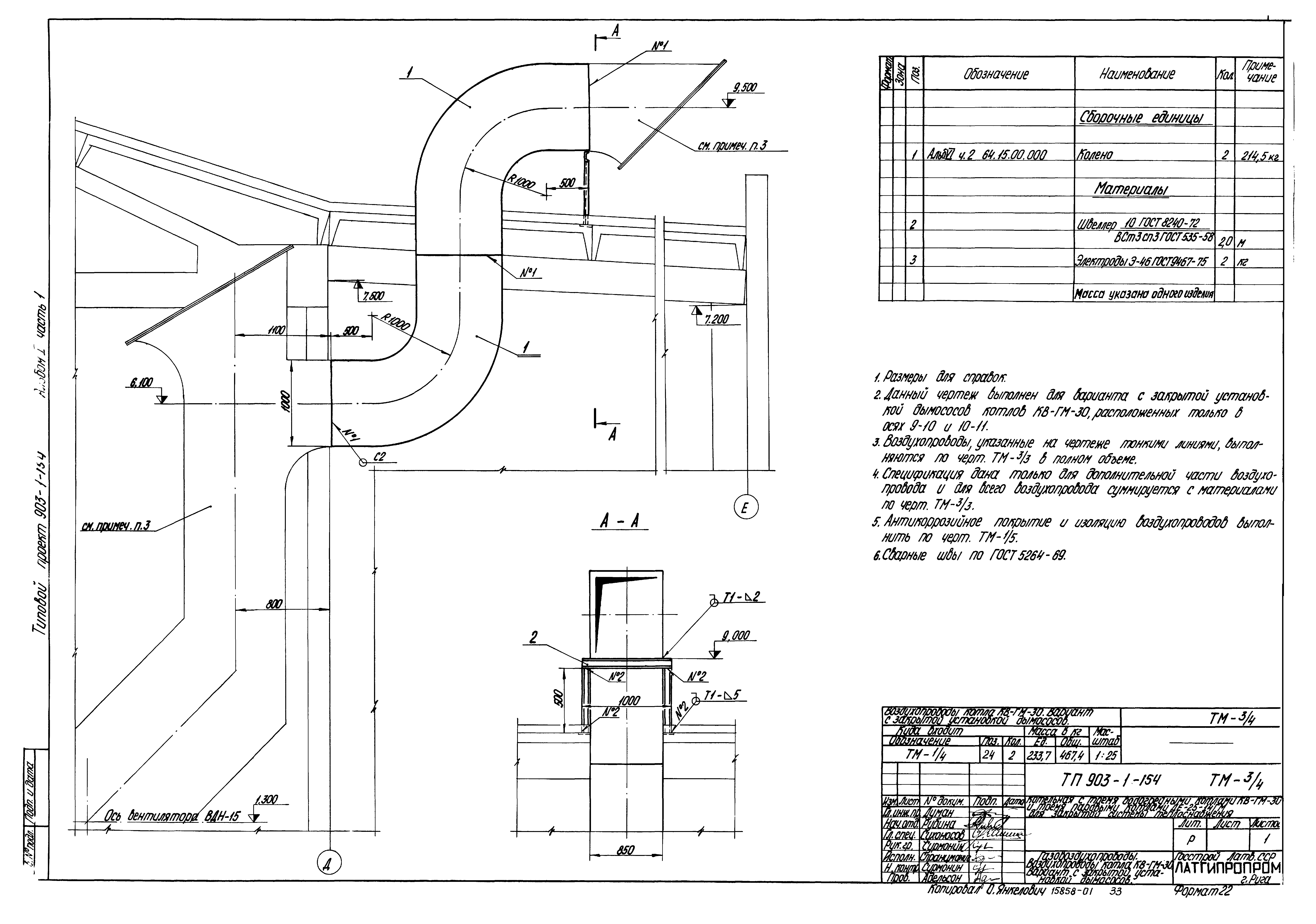
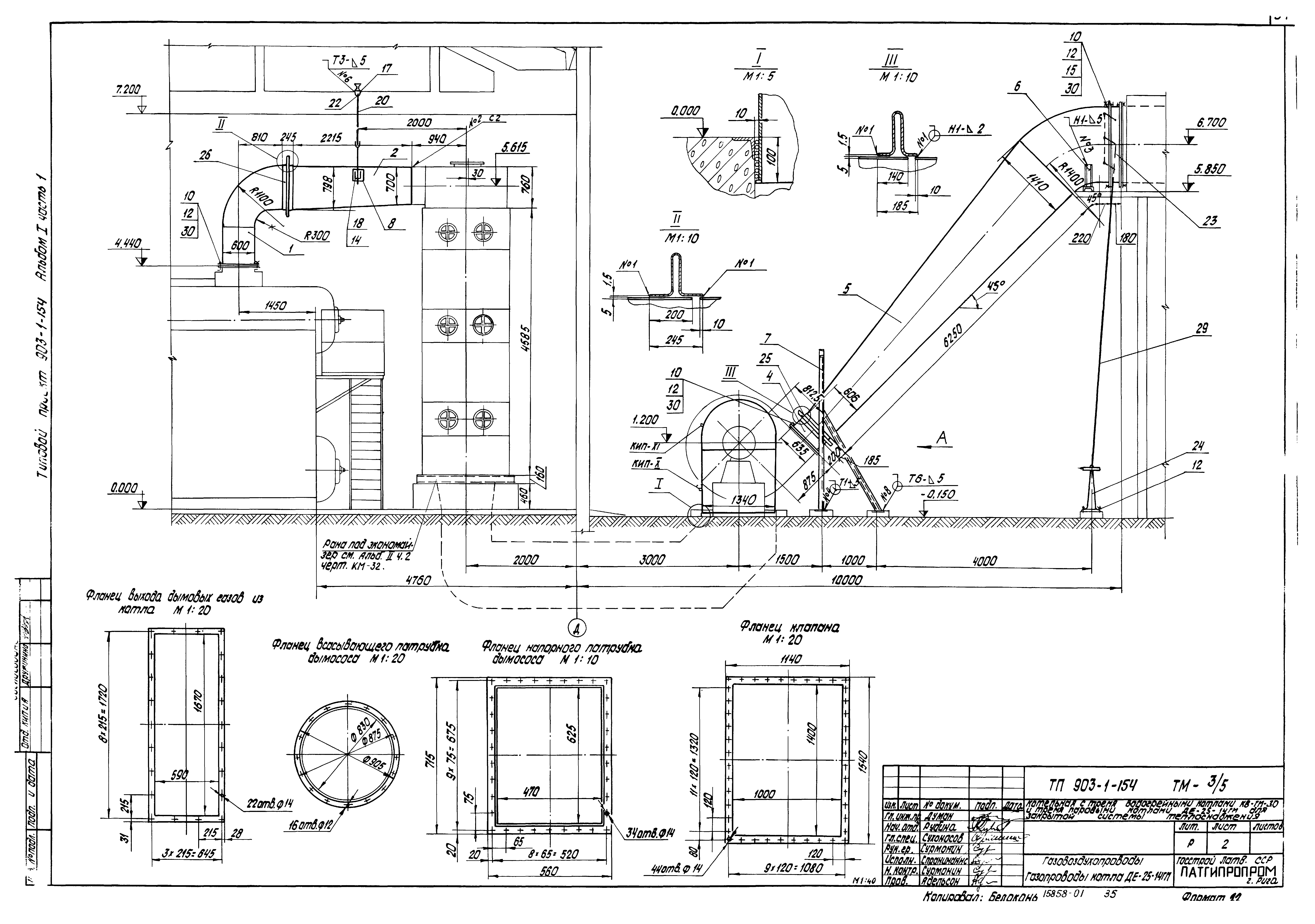
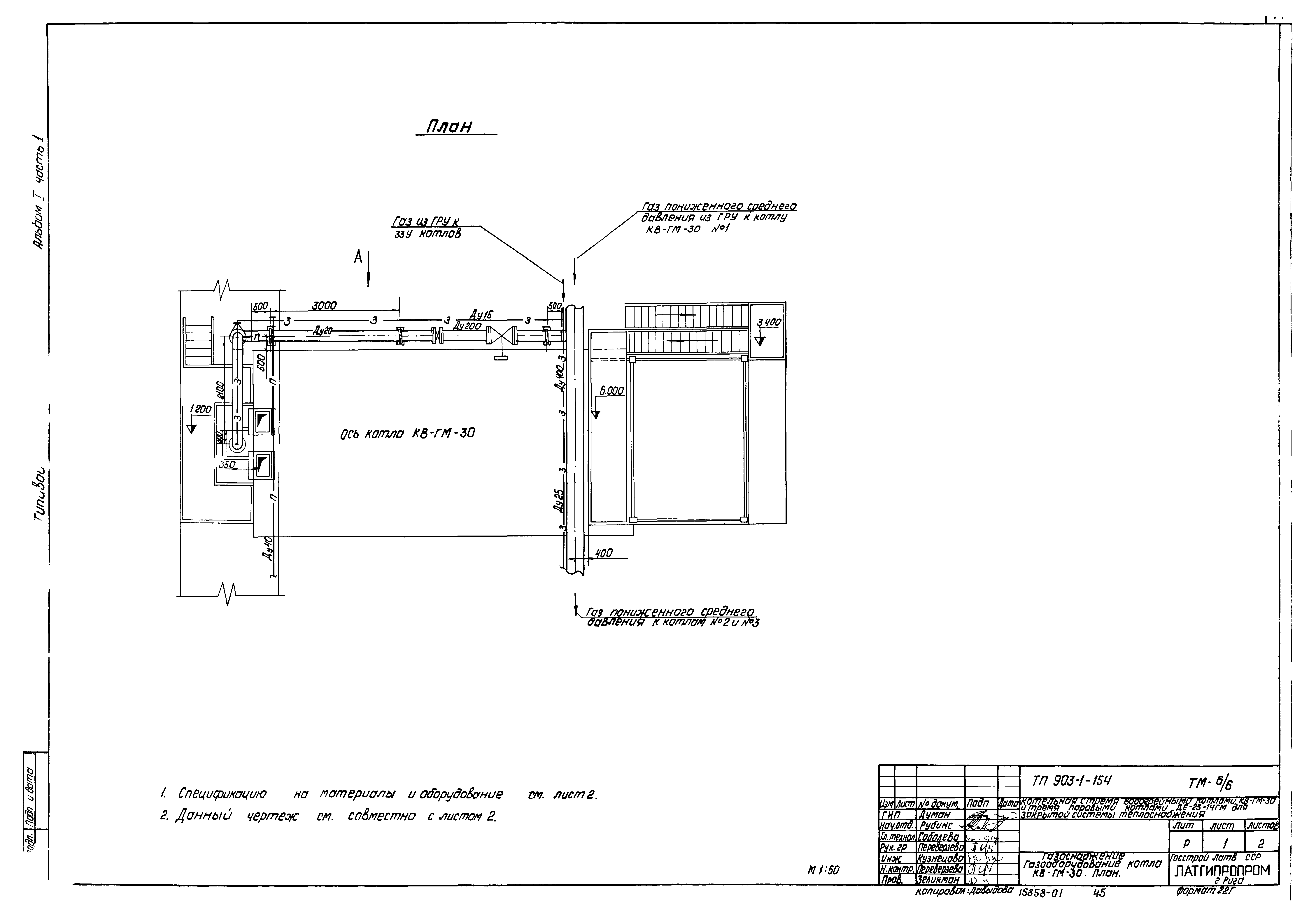
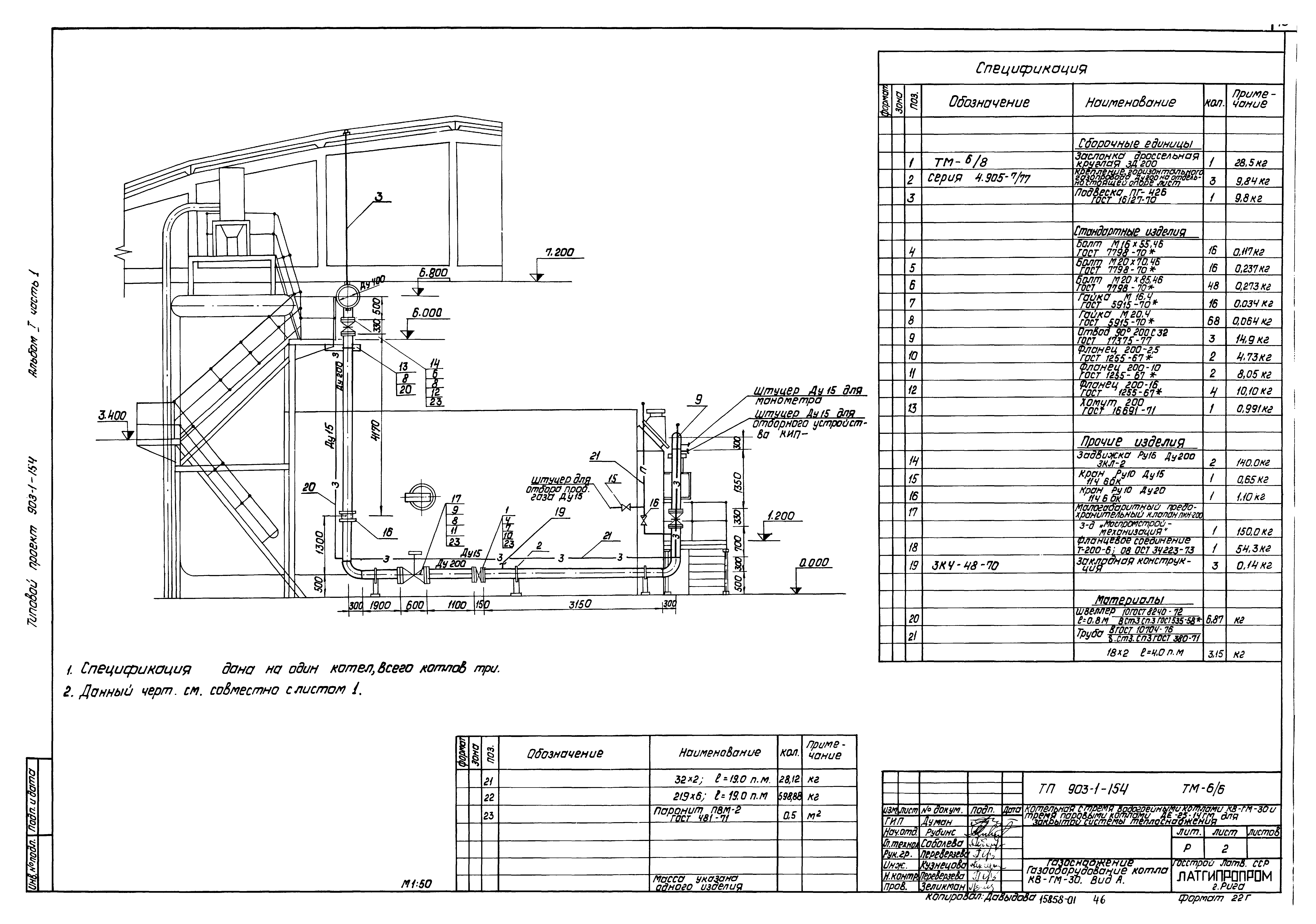
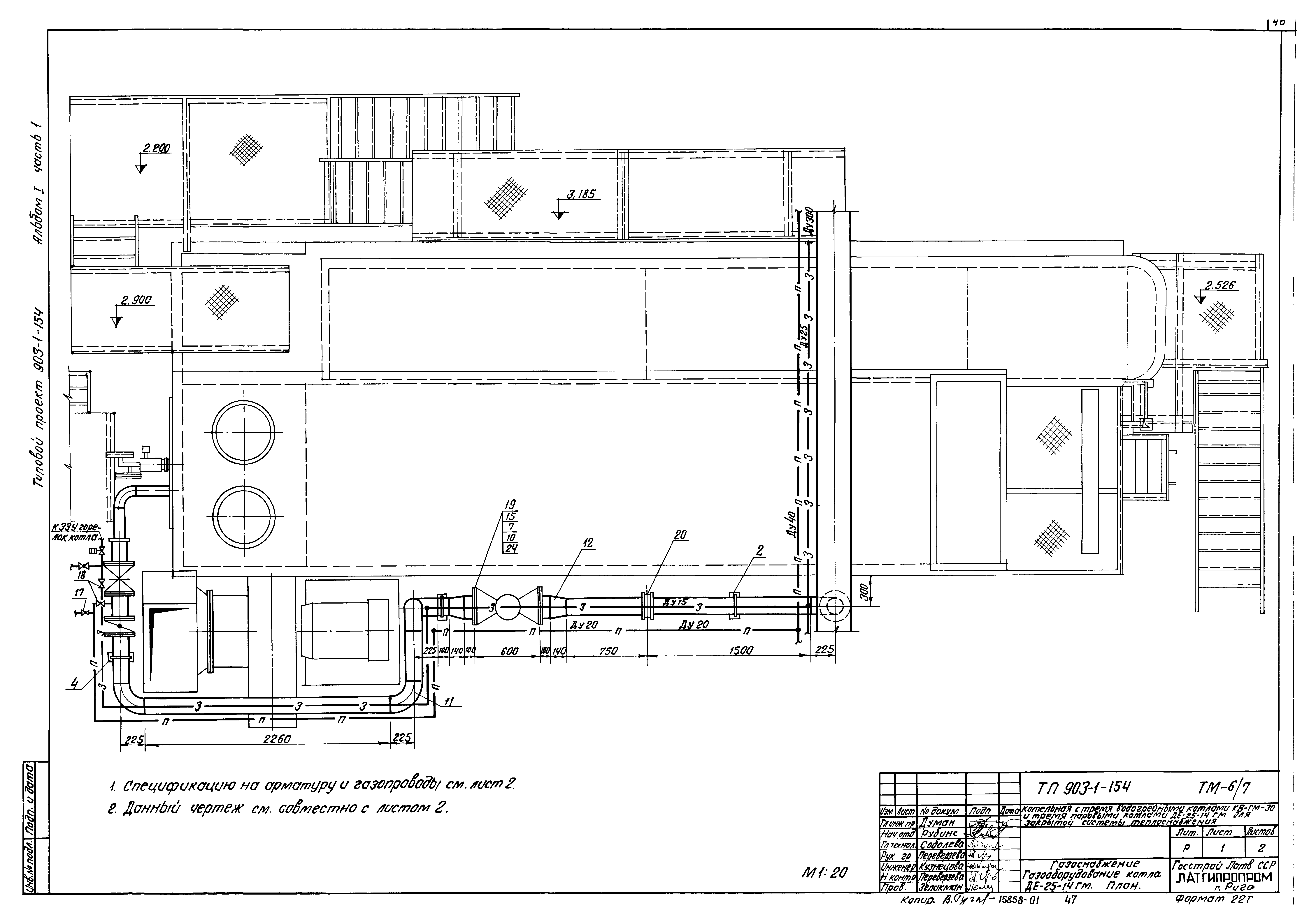
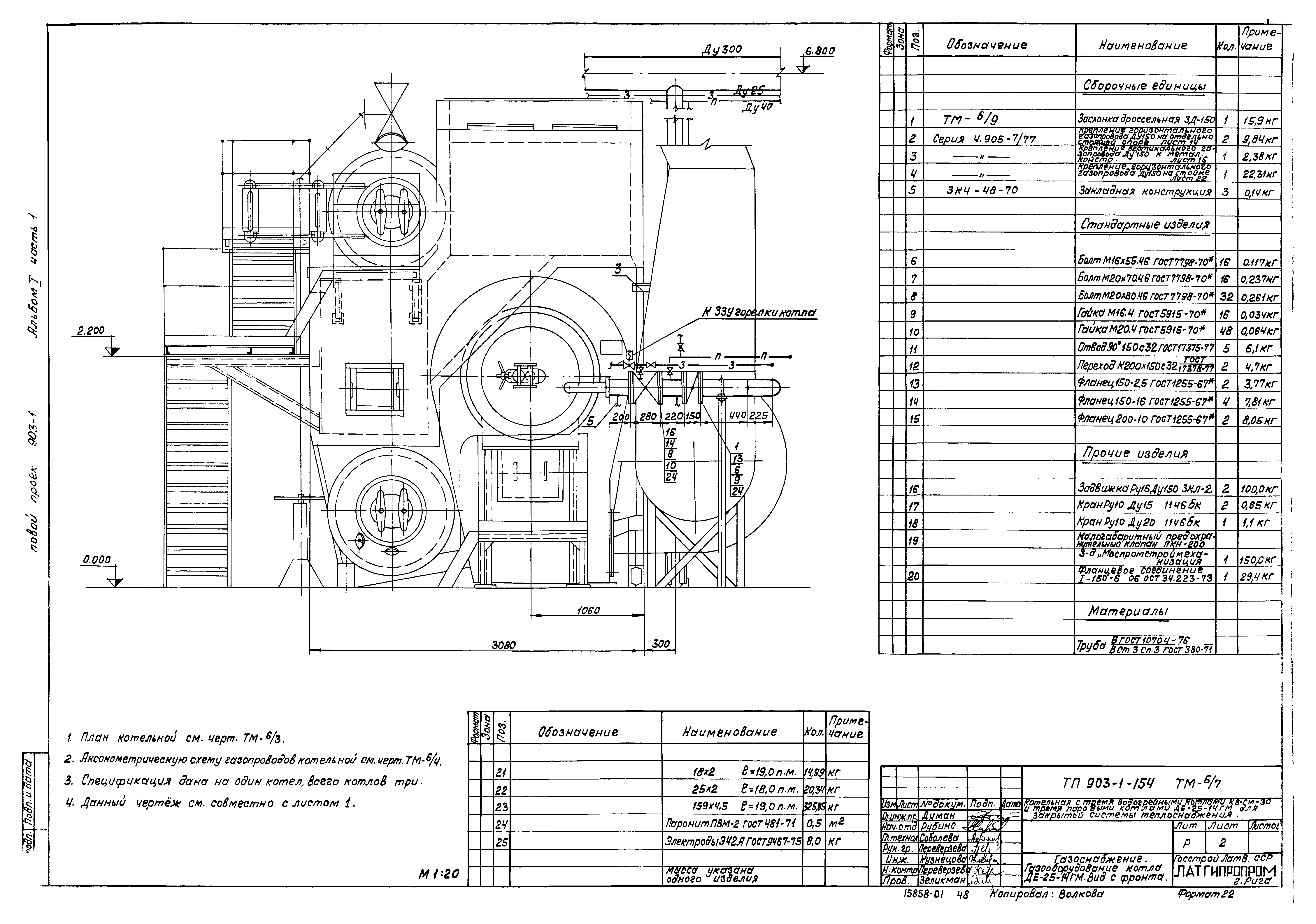
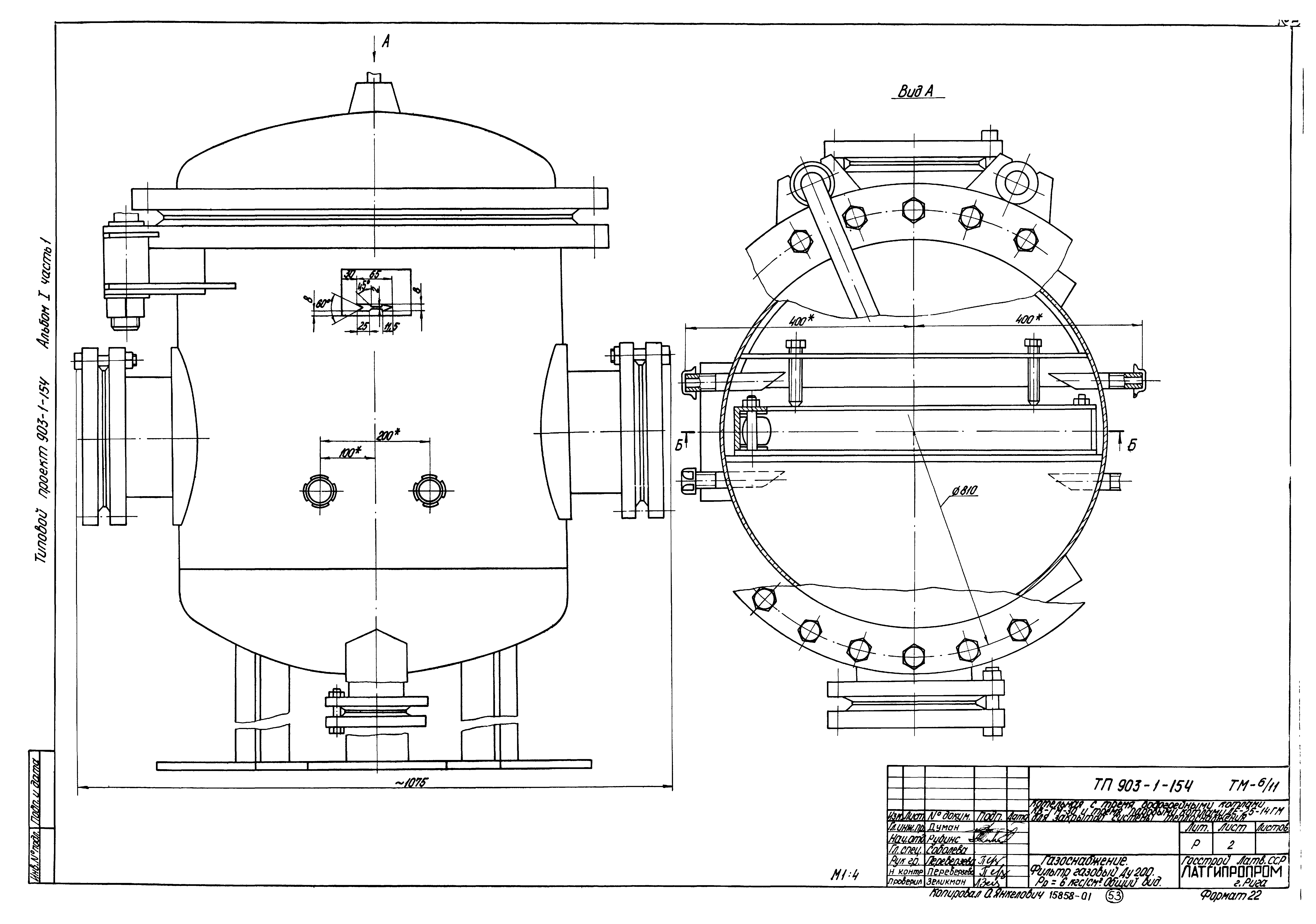
| Оглавление: | ТП 903-1-154-ТМ-1/1-1 Общие данные (начало) ТП 903-1-154-ТМ-1/1-2 Общие данные (продолжение) ТП 903-1-154-ТМ-1/1-3 Общие данные (продолжение) ТП 903-1-154-ТМ-1/1-4 Общие данные (продолжение) ТП 903-1-154-ТМ-1/1-5 Общие данные (продолжение) ТП 903-1-154-ТМ-1/1-6 Общие данные (окончание) ТП 903-1-154-ТМ-1/2-1 Тепловая схема водогрейной части котельной ТП 903-1-154-ТМ-1/3-1 Тепловая схема паровой части котельной ТП 903-1-154-ТМ-1/4-1 Компоновка котельной ТП 903-1-154-ТМ-1/4-2 Компоновка котельной ТП 903-1-154-ТМ-1/5-1 Перечень изолируемых поверхностей ТП 903-1-154-ТМ-1/5-2 Перечень изолируемых поверхностей ТП 903-1-154-ТМ-1/5-3 Перечень изолируемых поверхностей ТП 903-1-154-ТМ-1/5-4 Перечень изолируемых поверхностей ТП 903-1-154-ТМ-1/5-5 Перечень изолируемых поверхностей ТП 903-1-154-ТМ-1/5-6 Перечень изолируемых поверхностей ТП 903-1-154-ТМ-1/5-7 Перечень изолируемых поверхностей ТП 903-1-154-ТМ-2/1-1 Установка оборудования неблочного исполнения. Сводная спецификация ТП 903-1-154-ТМ-2/2-1 Установка оборудования неблочного исполнения. Установка дымососа ДН-17 с электродвигателем АО-114-12/8/6 ТП 903-1-154-ТМ-2/3-1 Установка оборудования неблочного исполнения. Установка вентилятора ВДН-15 с электродвигателем АО-104-12/8/6 ТП 903-1-154-ТМ-2/4-1 Установка оборудования неблочного исполнения. Установка электровентилятора 30ЦС-85 с электродвигателем АО2-52-2 ТП 903-1-154-ТМ-2/5-1 Установка оборудования неблочного исполнения. Установка бака-отстойника замазученного конденсата V=16м³ ТП 903-1-154-ТМ-2/5-2 Установка оборудования неблочного исполнения. Установка бака-отстойника замазученного конденсата V=16м³ ТП 903-1-154-ТМ-2/6-1 Установка оборудования неблочного исполнения. Установка бака-отстойника производственного конденсата V=16м³ ТП 903-1-154-ТМ-2/7-1 Установка оборудования неблочного исполнения. Таблица крепежных деталей для установки оборудования и блоков ТП 903-1-154-ТМ-3/1-1 Газовоздухопроводы. Сводная спецификация ТП 903-1-154-ТМ-3/2-1 Газовоздухопроводы. Газопроводы котла КВ-ГМ-30 ТП 903-1-154-ТМ-3/2-2 Газовоздухопроводы. Газопроводы котла КВ-ГМ-30 ТП 903-1-154-ТМ-3/3-1 Газовоздухопроводы. Воздухопроводы котла КВ-ГМ-30 ТП 903-1-154-ТМ-3/3-2 Газовоздухопроводы. Воздухопроводы котла КВ-ГМ-30 ТП 903-1-154-ТМ-3/4-1 Газовоздухопроводы. Воздухопроводы котла КВ-ГМ-30. Вариант с закрытый установкой дымососов ТП 903-1-154-ТМ-3/5-1 Газовоздухопроводы. Газопроводы котла ДЕ-25-14ГМ ТП 903-1-154-ТМ-3/5-2 Газовоздухопроводы. Газопроводы котла ДЕ-25-14ГМ ТП 903-1-154-ТМ-3/6-1 Газовоздухопроводы. Воздухопроводы котла ДЕ-25-14ГМ ТП 903-1-154-ТМ-6/1-1 Газоснабжение. Общие данные ТП 903-1-154-ТМ-6/2-1 Газоснабжение. Сводная спецификация ТП 903-1-154-ТМ-6/3-1 Газоснабжение. План котельной с разводкой газопроводов ТП 903-1-154-ТМ-6/4-1 Газоснабжение. Аксонометрическая схема газопроводов котельной ТП 903-1-154-ТМ-6/5-1 Газоснабжение. Газорегуляторная установка с 2-мя регуляторами РДУК2-200/105 и РДУК2-100/70. План ТП 903-1-154-ТМ-6/5-2 Газоснабжение. Газорегуляторная установка с 2-мя регуляторами РДУК2-200/105 и РДУК2-100/70. Разрезы А-А и Б-Б ТП 903-1-154-ТМ-6/5-3 Газоснабжение. Газорегуляторная установка с 2-мя регуляторами РДУК2-200/105 и РДУК2-100/70. Разрез В-В ТП 903-1-154-ТМ-6/5-4 Газоснабжение. Аксонометрическая схема газопроводов ГРУ ТП 903-1-154-ТМ-6/6-1 Газоснабжение. Газооборудование котла КВ-ГМ-30. План ТП 903-1-154-ТМ-6/6-2 Газоснабжение. Газооборудование котла КВ-ГМ-30. Вид А ТП 903-1-154-ТМ-6/7-1 Газоснабжение. Газооборудование котла ДЕ-25-14ГМ. План ТП 903-1-154-ТМ-6/7-2 Газоснабжение. Газооборудование котла ДЕ-25-14ГМ. Вид с фронта ТП 903-1-154-ТМ-6/8-1 Газоснабжение. Заслонка дроссельная ЗД-200. Сборочный чертеж ТП 903-1-154-ТМ-6/9-1 Газоснабжение. Заслонка дроссельная ЗД-150. Сборочный чертеж ТП 903-1-154-ТМ-6/10-1 Газоснабжение. Установка сбросного продувочного газопровода. Сборочный чертеж ТП 903-1-154-ТМ-6/11-1 Газоснабжение. Фильтр газовый Ду200Рр=6 кгс/см². Общий вид ТП 903-1-154-ТМ-6/11-2 Газоснабжение. Фильтр газовый Ду200Рр=6 кгс/см². Общий вид |
| Разработан: | Латгипропром |
| Утверждён: | 17.10.1977 Главпромстройпроект Госстроя СССР (71) |





















































