Скачать Типовой проект 903-1-154 Альбом II. Часть 2. Архитектурно-строительная часть. КонструкцииДата актуализации: 01.01.2021
|
| Обозначение: | Типовой проект 903-1-154 |
| Обозначение англ: | 903-1-154 |
| Статус: | действует |
| Название рус.: | Альбом II. Часть 2. Архитектурно-строительная часть. Конструкции |
| Дата добавления в базу: | 01.09.2013 |
| Дата актуализации: | 01.01.2021 |
| Дата введения: | 28.09.1978 |
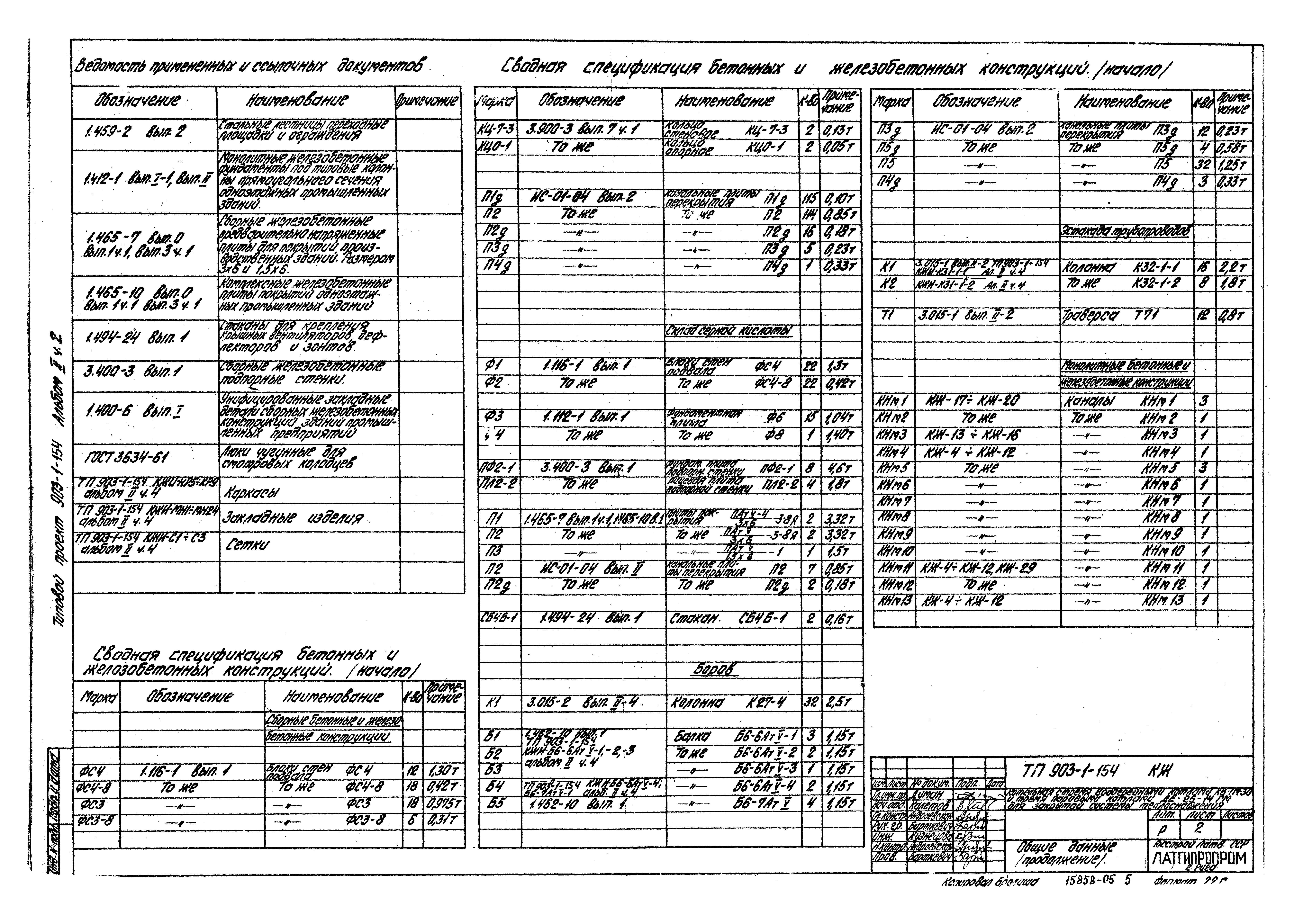
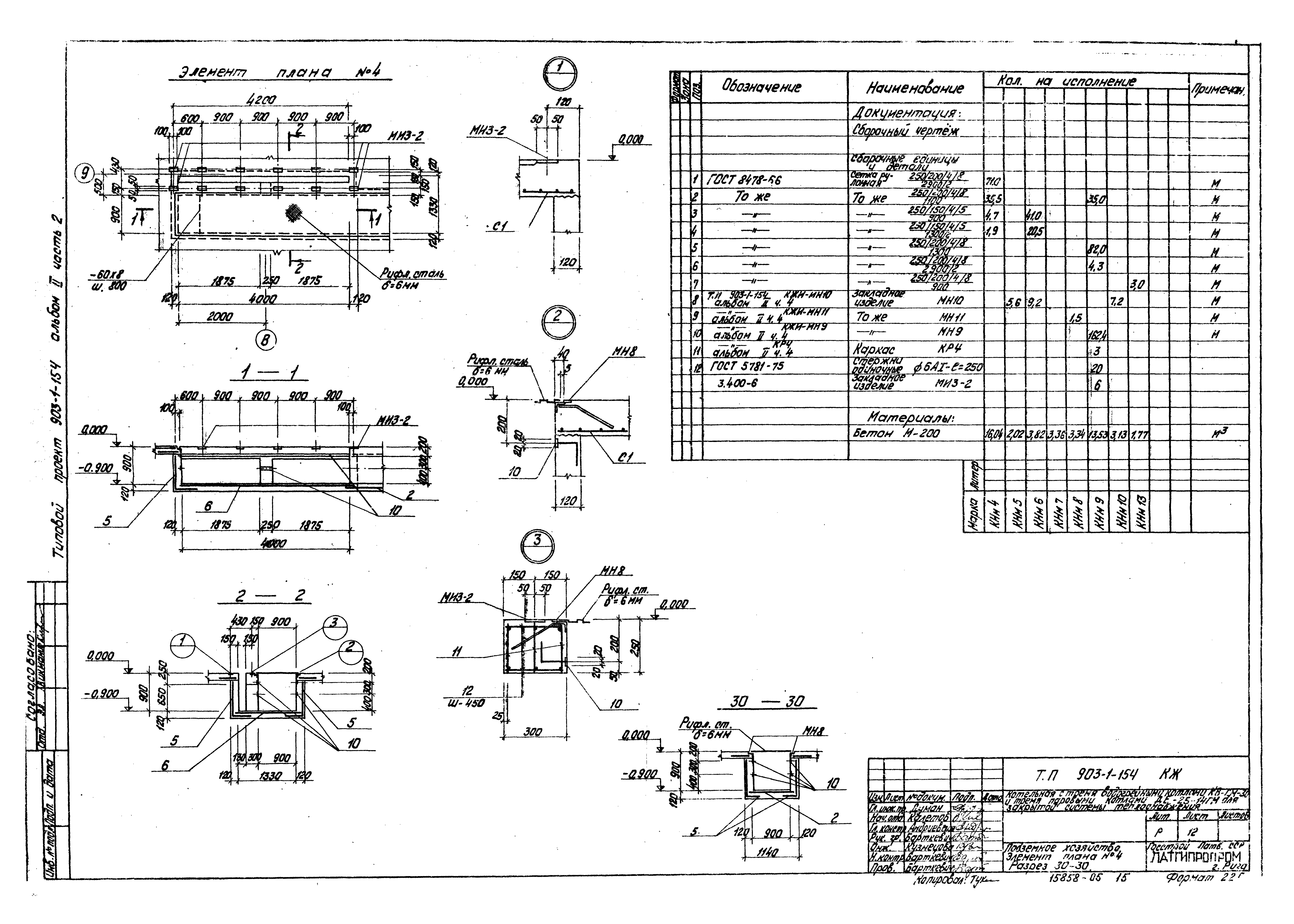
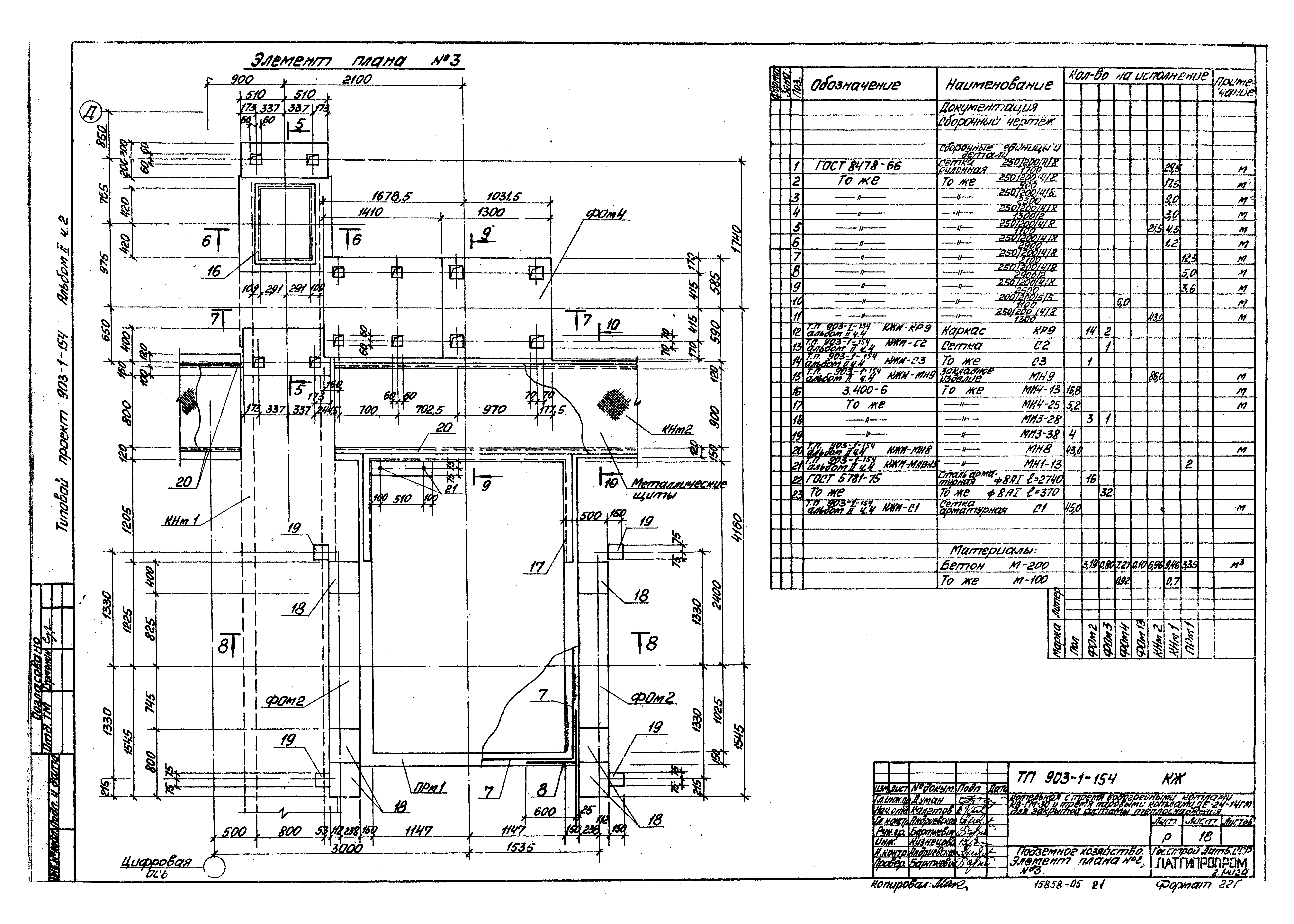
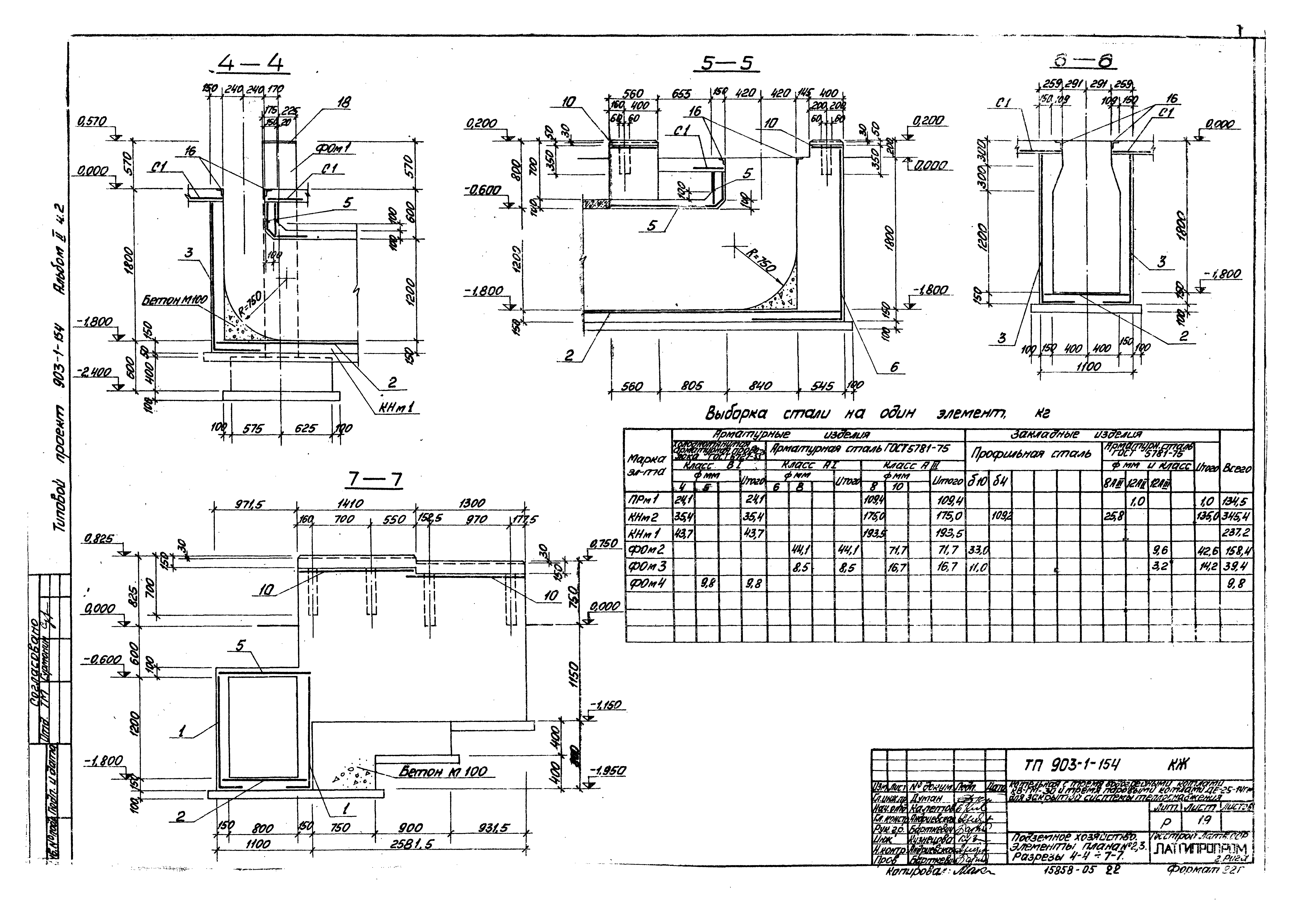
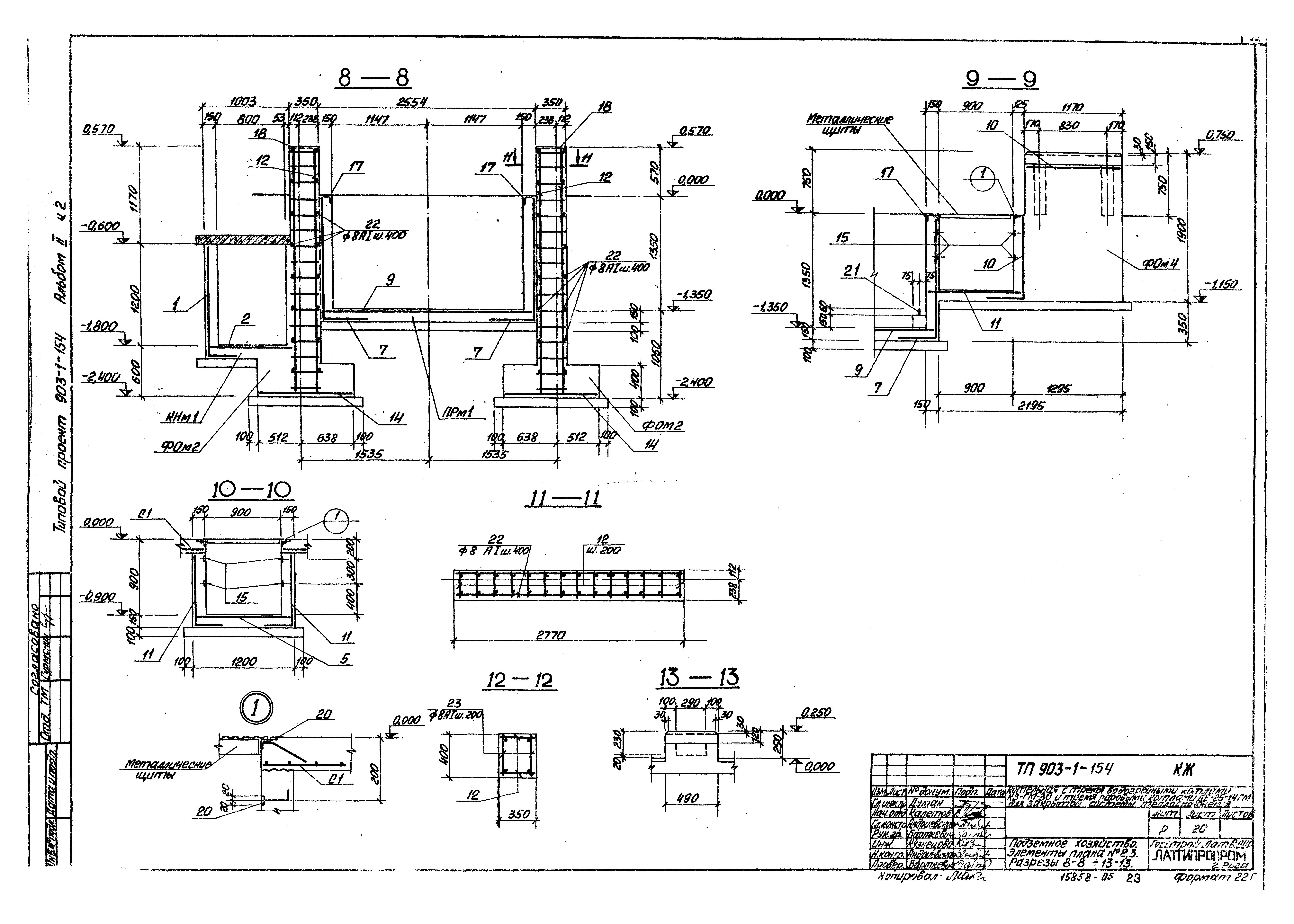
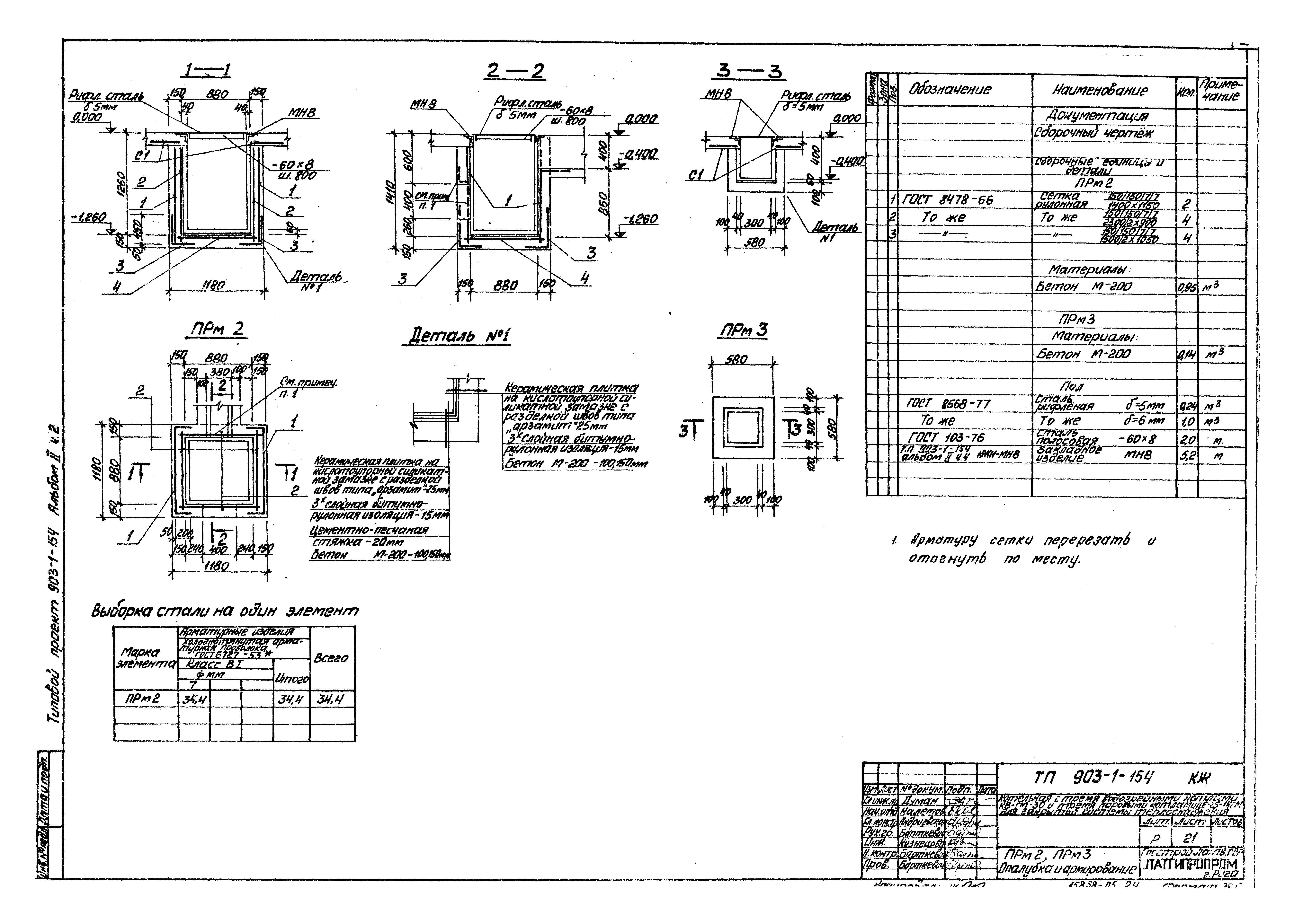
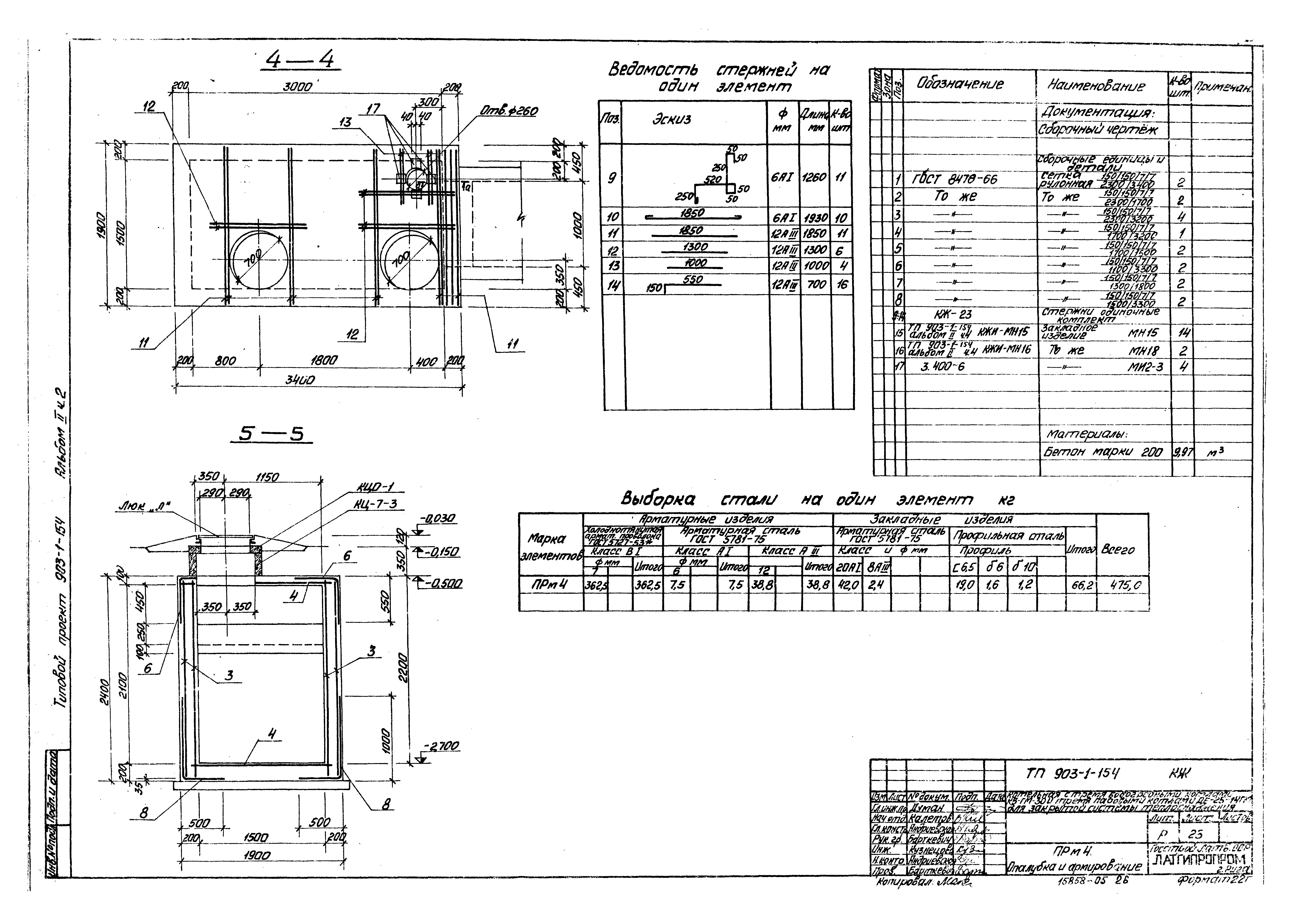
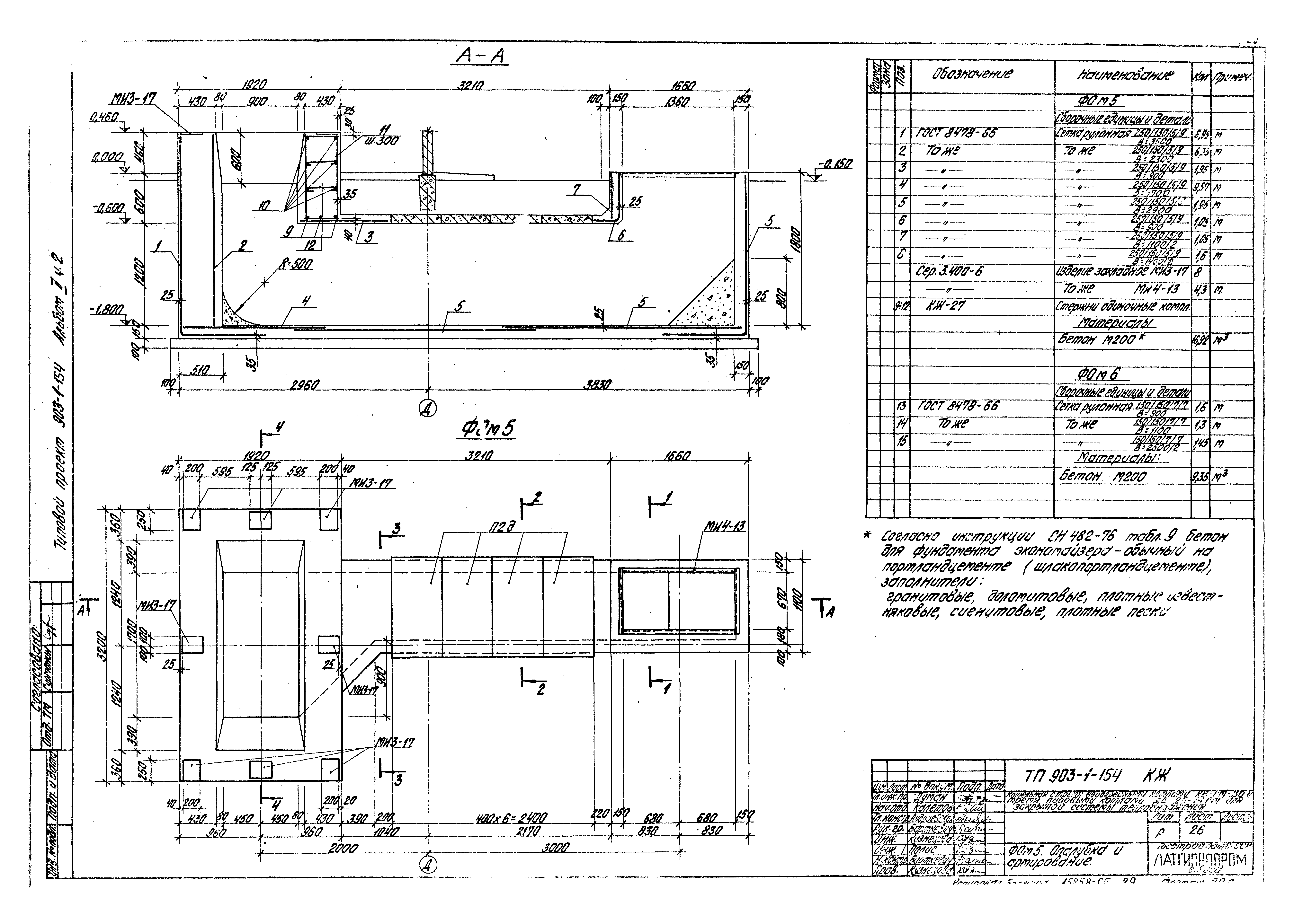
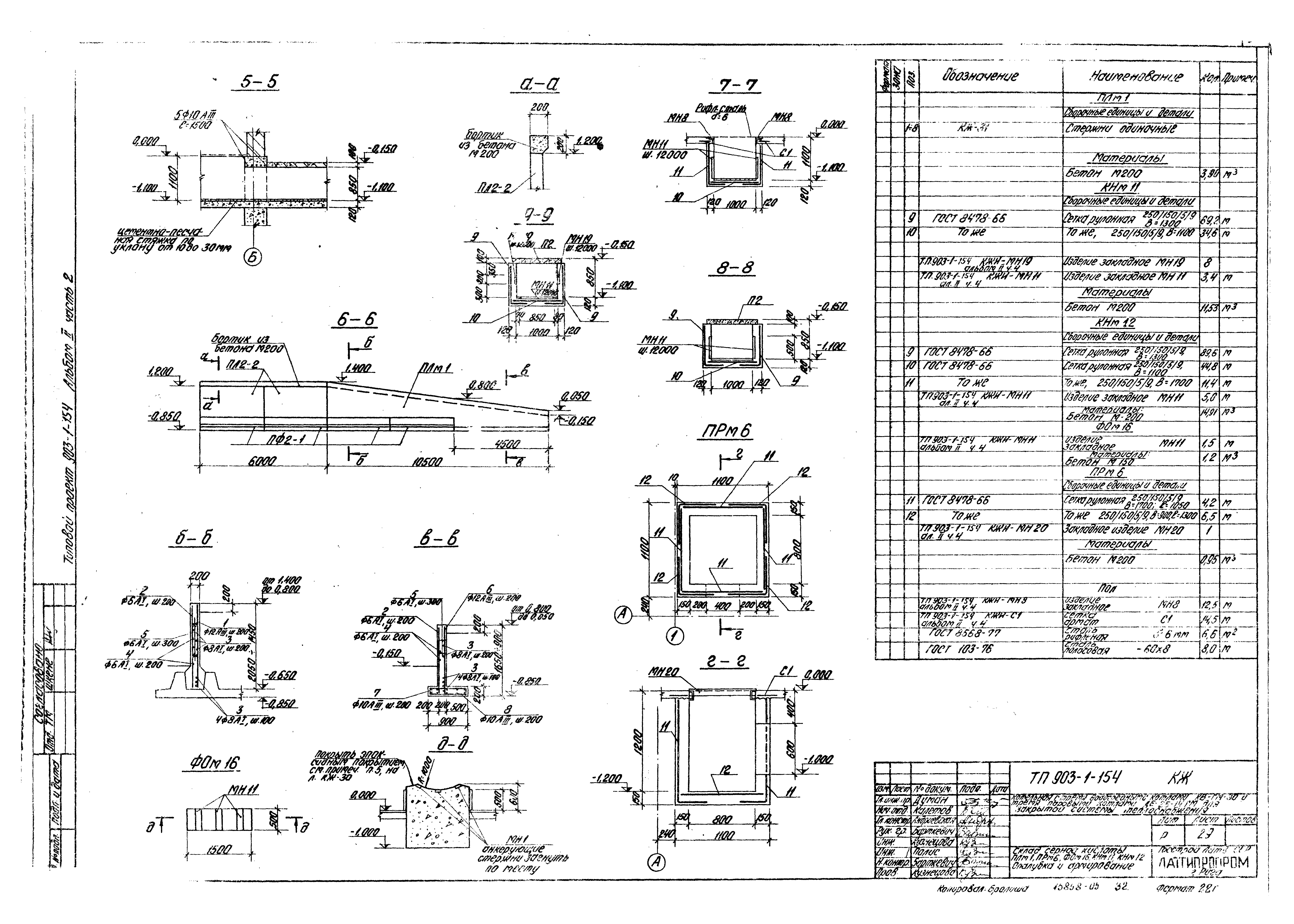
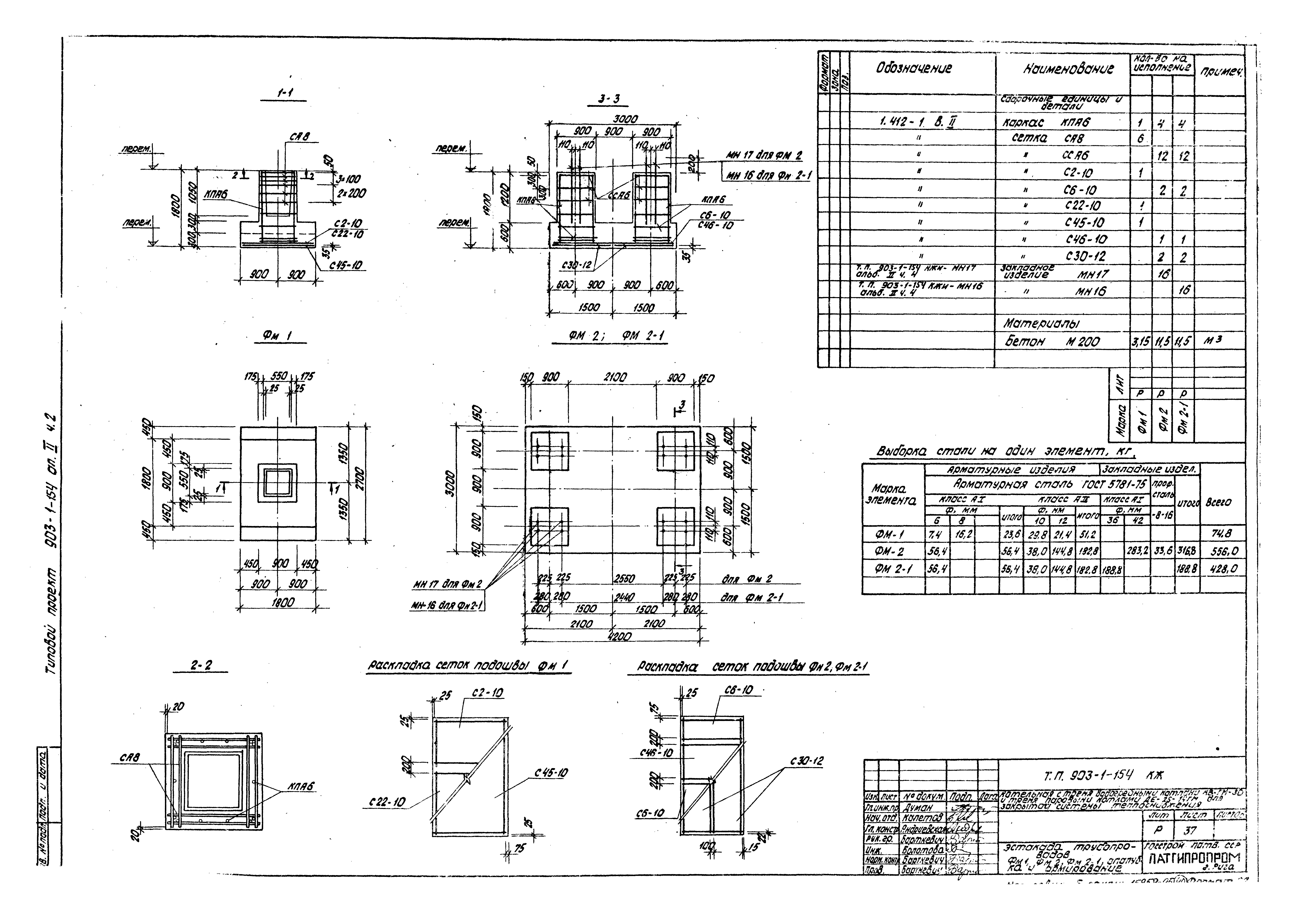
| Оглавление: | Содержание альбома Конструкции железобетонные Общие данные Маркировочный план подземного хозяйства в осях "1 - 5" и "А - Д" Маркировочный план подземного хозяйства в осях "5 - 12" и "А - Д" Маркировочный план подземного хозяйства, схема закладных деталей и перекрытие каналов на отм. 0.000 а осях "1 - 5" и "Д - Е". Разрезы 3-3 - 5-5 Маркировочная схема закладных деталей на отм. 0.000 в осях "7 - 12" и "Д - Е". Разрезы 3-3 - 5-5 Маркировочная схема закладных деталей и перекрытие каналов на отм. 0.000 в осях "1 - 5" и "А - Д" Маркировочная схема закладных деталей и перекрытие каналов на отм. 0.000 в осях "5 - 12" и "А - Д" Подземное хозяйство. Разрезы 6-6 - 17-17 Подземное хозяйство. Разрезы 18-18 - 29-29 Подземное хозяйство. Элемент плана №3. Разрез 30-30 Подземное хозяйство. Элемент плана №1. Разрезы 1-1, 2-2 Подземное хозяйство. Элемент плана №1. Разрезы 3-3 - 7-7 Подземное хозяйство. Элемент плана №1. Разрезы 8-8 - 14-14. Узел 12 Подземное хозяйство. Элемент плана №1. Узлы 1 - 14 Подземное хозяйство. Элемент плана №2. Разрезы 1-1 - 3-3 Подземное хозяйство. Элемент плана №2, №3 Подземное хозяйство. Элемент плана №2, №3. Разрезы 4-4 - 7-7 Подземное хозяйство. Элемент плана №2, №3. Разрезы 8-8 - 13-13 ПРм2. ПРм3. Опалубка и армирование ПРм4. Опалубка и армирование ФОм1. Бн1. ФОм7. ФОм9. ФОм10. ФОм14. Опалубка и армирование ФОм8. ФОм11. ФОм12. ФОм15 ФОм5. Опалубка и армирование ФОм5. ФОм6. Опалубка и армирование Склад серной кислоты. Маркировочные схемы фундаментов, подземного хозяйства и плит покрытия Склад серной кислоты. ПЛм1. ПРм6. ФОм16. КНм11. КНм12. Опалубка и армирование Склад серной кислоты. ПРм5. Опалубка и армирование Склад серной кислоты. ФОм17. ФОм18. Опалубка и армирование Боров. Маркировочная схема колонн, балок, плит перекрытия и покрытия Боров. Разрез 1-1. Ум1 - УМ3. Опалубка и армирование Боров. Ум4 - УМ8. Опалубка и армирование Боров. Ум9, УМ10. Опалубка и армирование. Спецификации Эстакада трубопроводов. Маркировочная схема фундаментов, опор и траверс Эстакада трубопроводов. Фм1, Фм2, Фм2-1. Опалубка и армирование |
| Разработан: | Латгипропром |
| Утверждён: | 17.10.1977 Главпромстройпроект Госстроя СССР (71) |







































