Скачать Типовой проект 903-1-154 Альбом III. Часть 1. Электротехническая часть. Чертежи монтажной зоныДата актуализации: 01.01.2021
|
| Обозначение: | Типовой проект 903-1-154 |
| Обозначение англ: | 903-1-154 |
| Статус: | действует |
| Название рус.: | Альбом III. Часть 1. Электротехническая часть. Чертежи монтажной зоны |
| Дата добавления в базу: | 01.09.2013 |
| Дата актуализации: | 01.01.2021 |
| Дата введения: | 28.09.1978 |
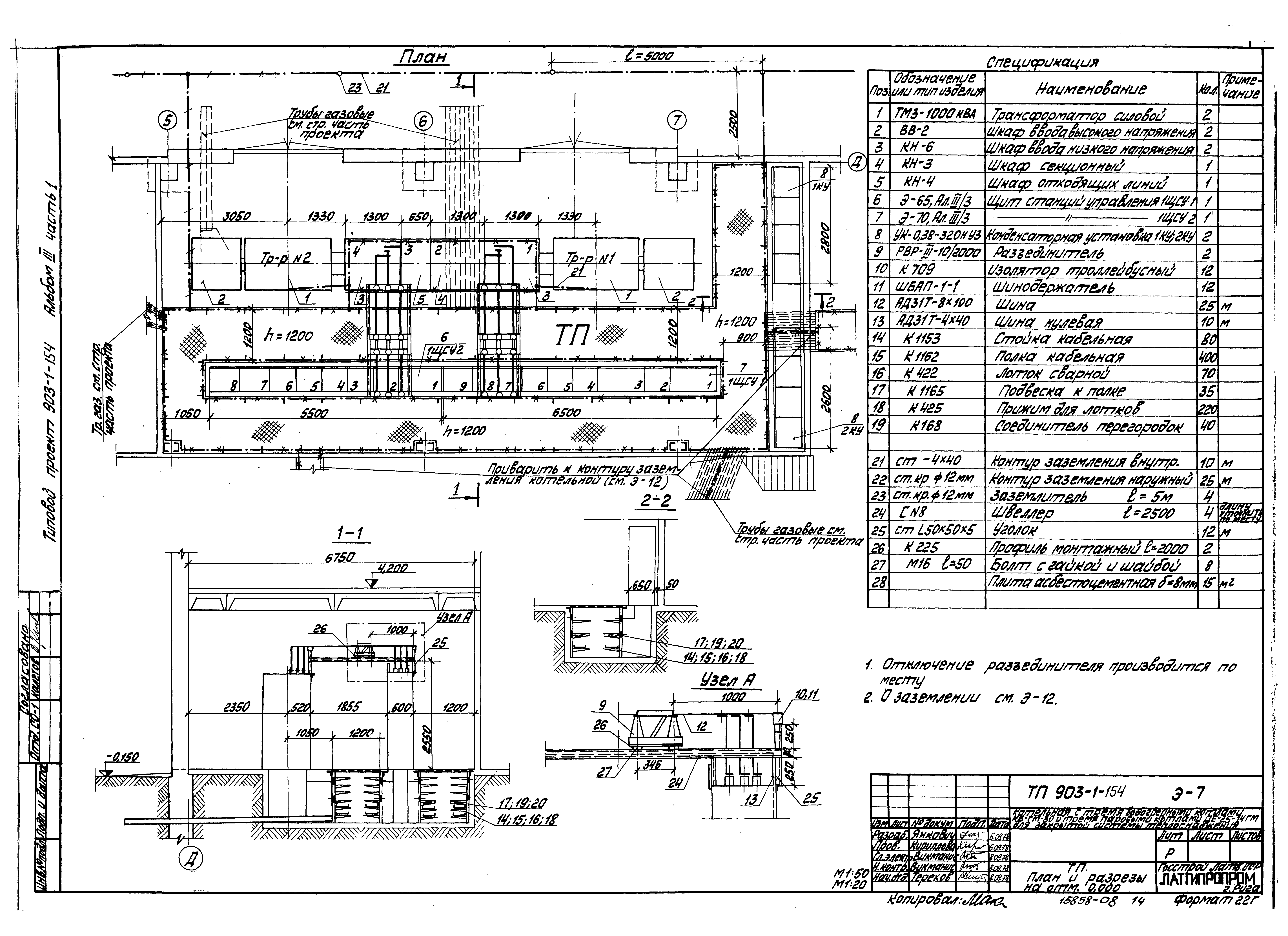
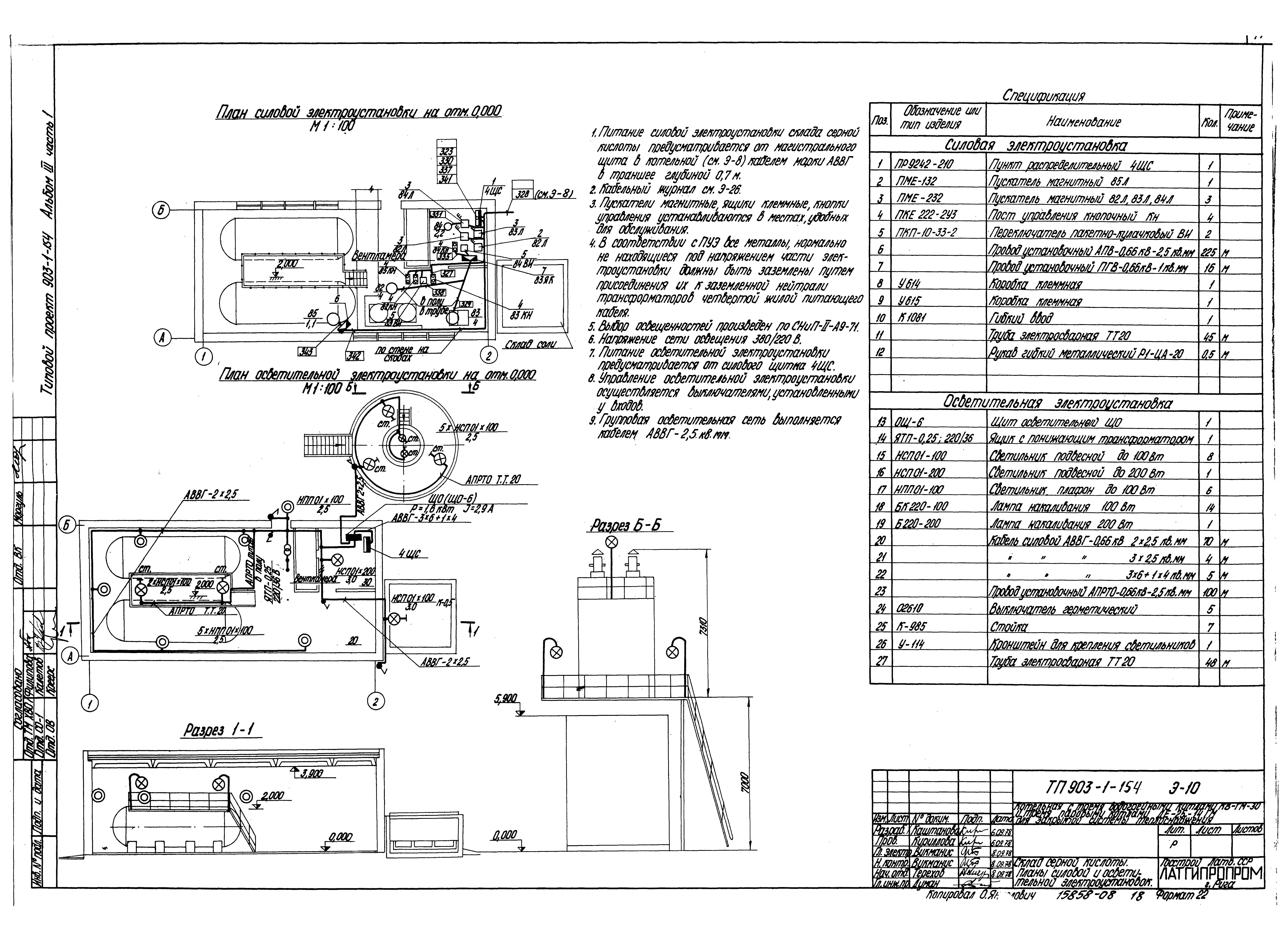
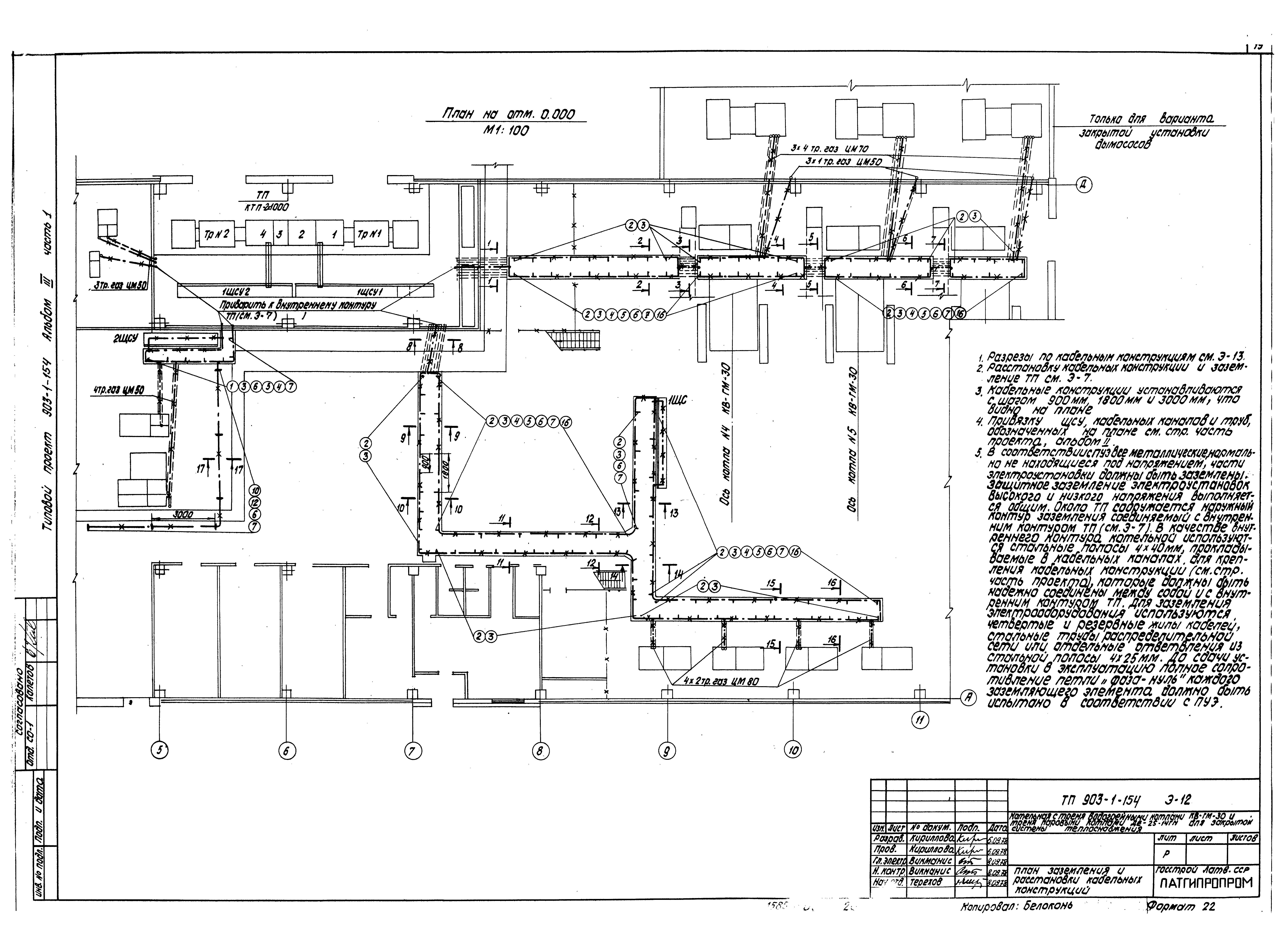
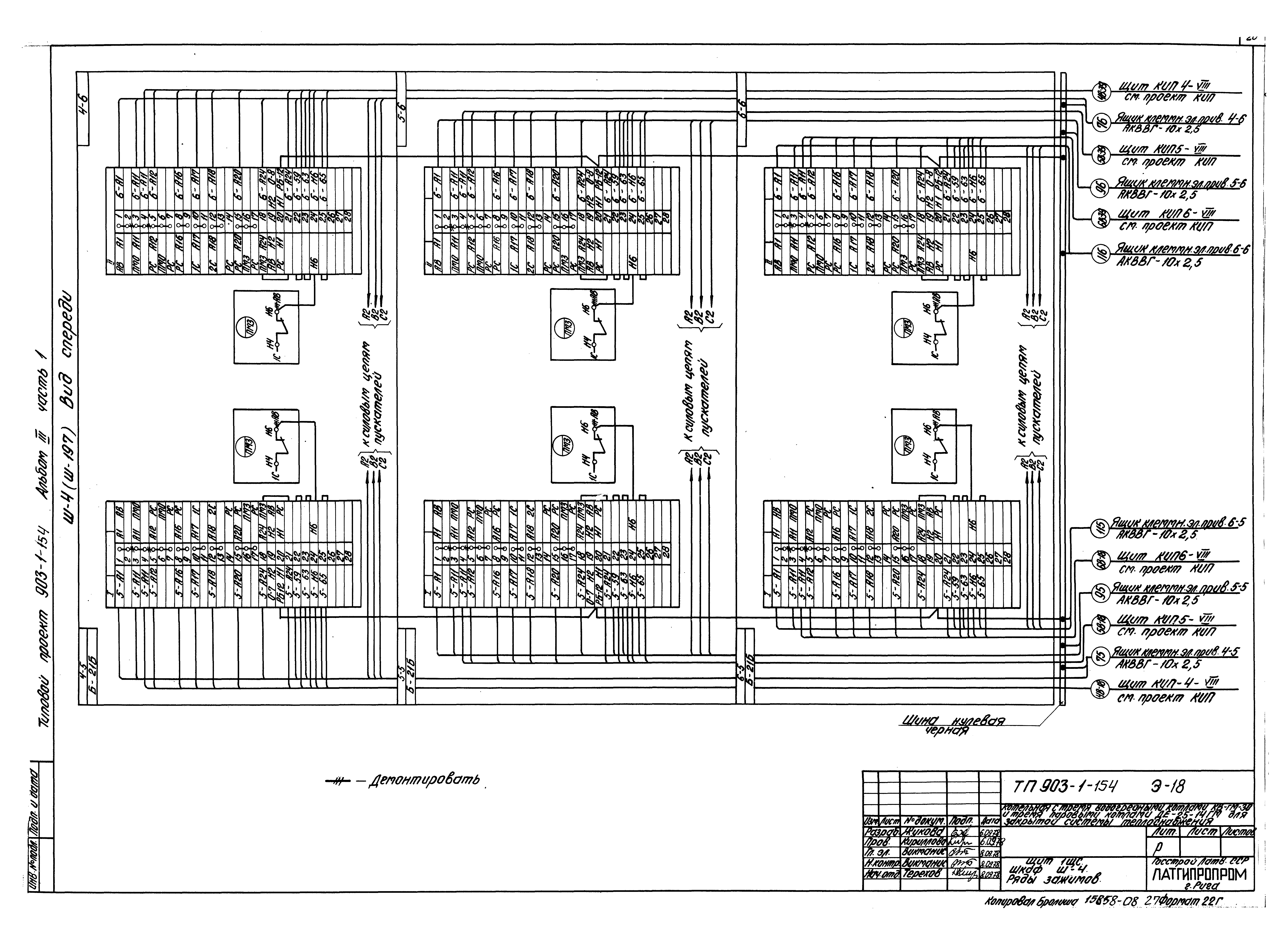
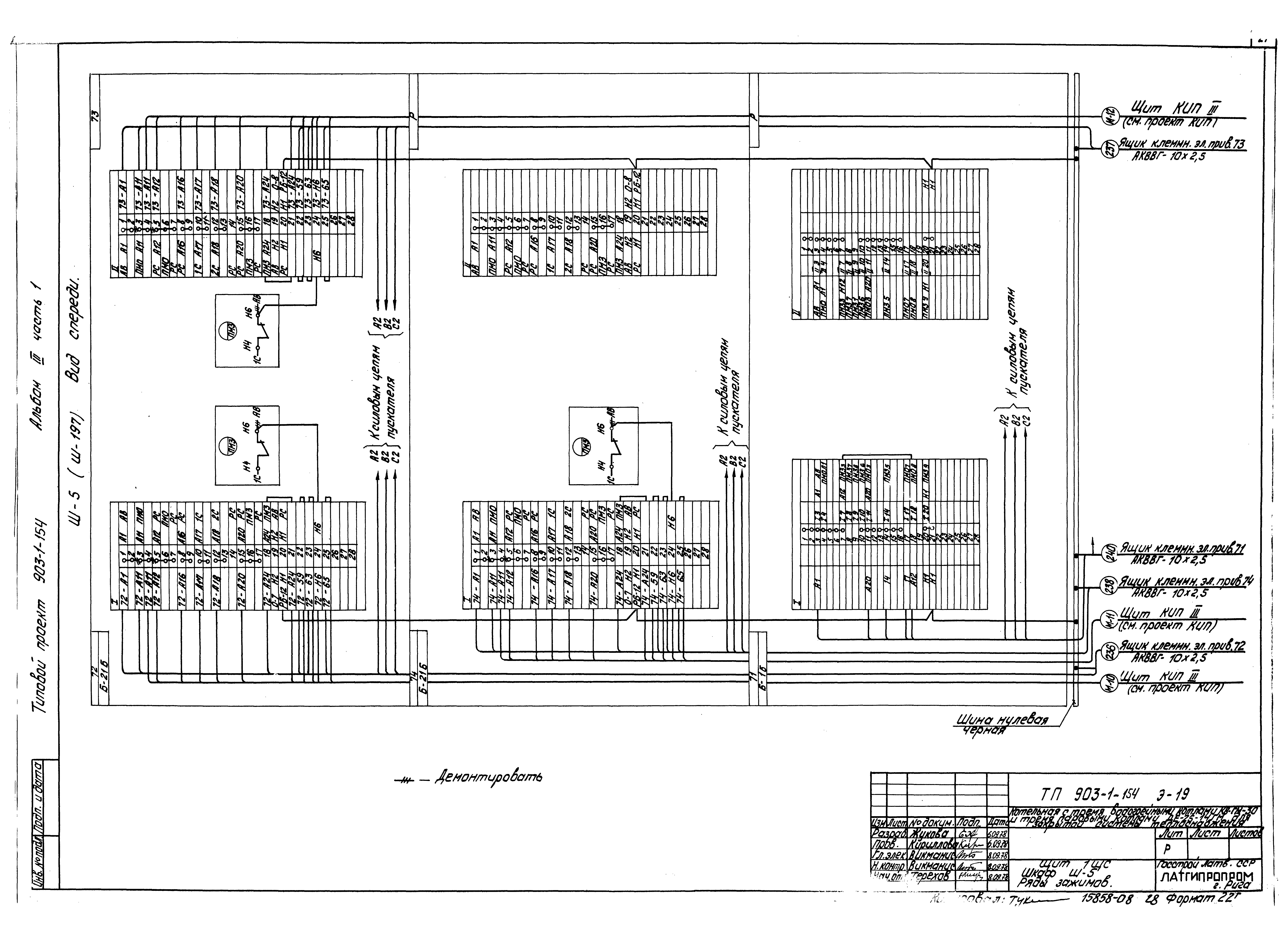
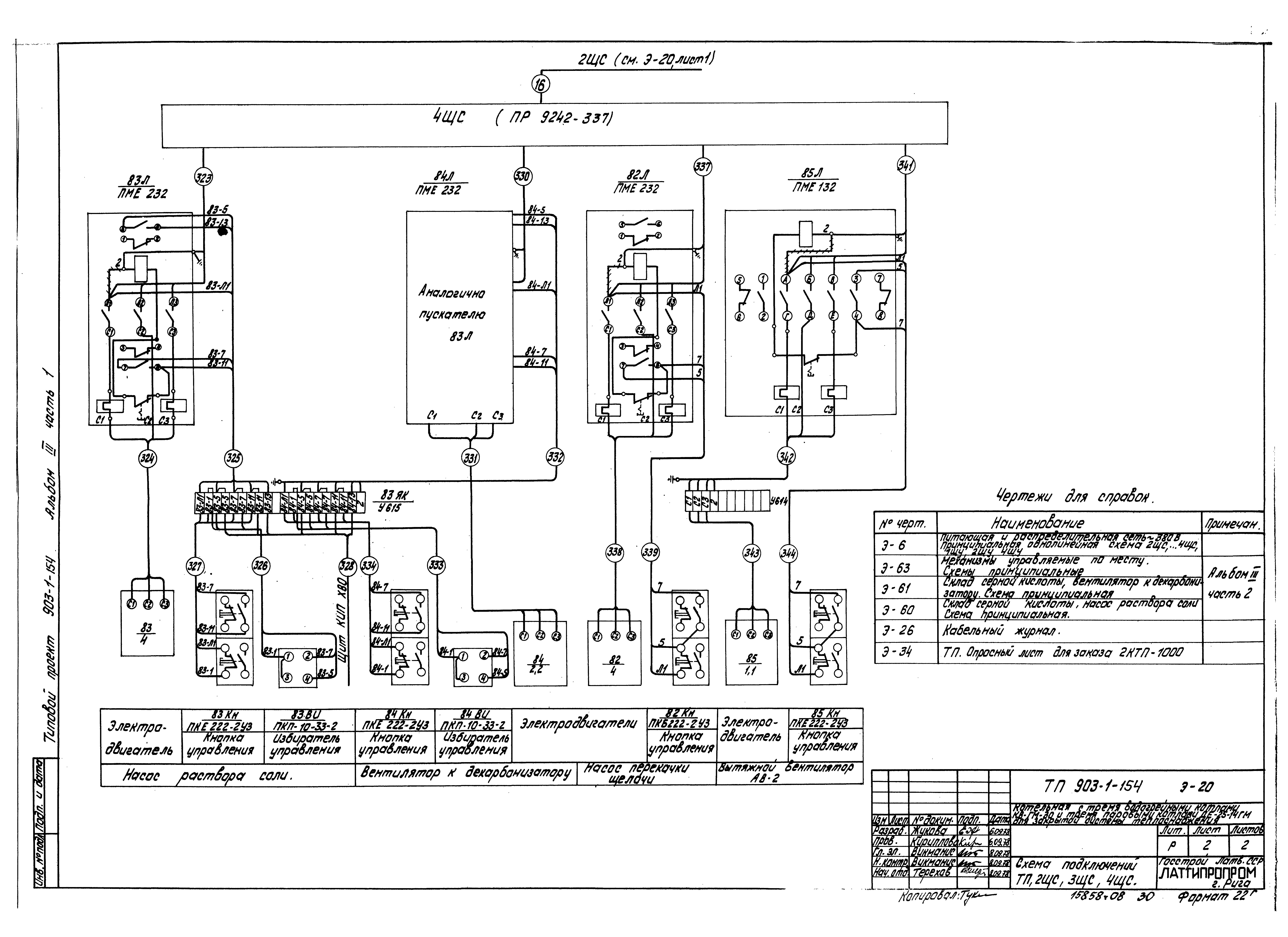
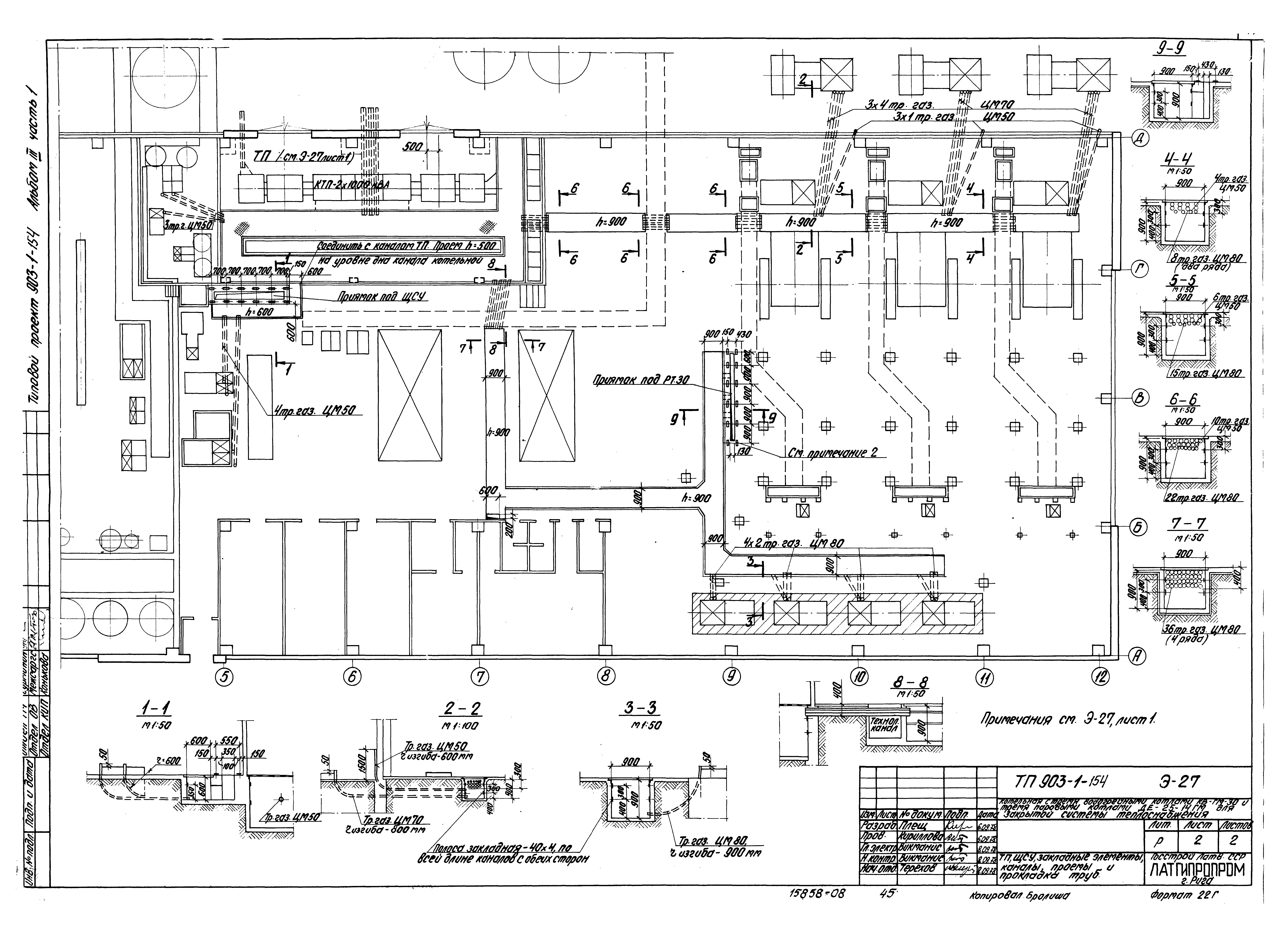
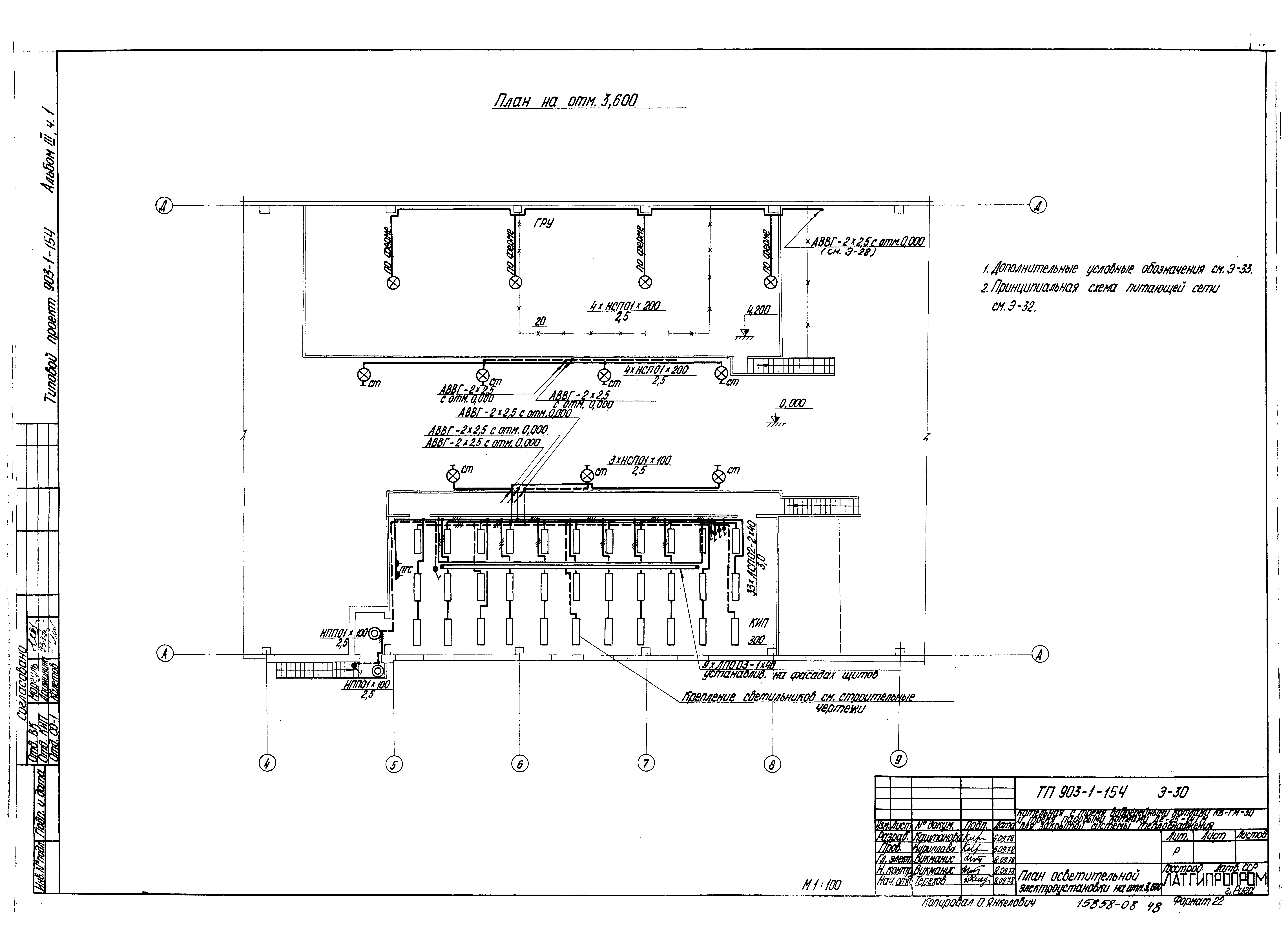
| Оглавление: | Содержание альбома Чертежи монтажной зоны Общие данные Питающая и распределительная сеть 380 В. Принципиальная однолинейная схема 1ЩСУ1 Питающая и распределительная сеть 380 В. Принципиальная однолинейная схема 1ЩСУ2 и индивидуальных фидеров Питающая и распределительная сеть 380 В. Принципиальная однолинейная схема 2ЩСУ Питающая и распределительная сеть 380 В. Принципиальная однолинейная схема 1ЩС Питающая и распределительная сеть 380 В. Принципиальная однолинейная схема 2ЩС…4ЩС, 1ШУ, 2ШУ, 4ШУ ТП. Планы и разрезы на отм. 0.000 План силовой электроустановки на отм. 0.000 План силовой электроустановки на отм. 3.600 Склад серной кислоты. Планы силовой и осветительной электроустановок Генплан. Внутриплощадочные сети, наружное освещение и слаботочные сети План заземления и расстановки кабельных конструкций Разрезы по кабельным конструкциям Задвижки. Схемы принципиальные АВР питания щита задвижек ЩС типа РТ30 и сигнализация отключения автоматов в шкафах. Схемы принципиальные Щит 1ЩС. Шкафы Ш-1, Ш-2. Ряды зажимов Щит 1ЩС. Шкаф Ш-3. Ряды зажимов Щит 1ЩС. Шкаф Ш-4. Ряды зажимов Щит 1ЩС. Шкаф Ш-5. Ряды зажимов Схема подключений ТП, 2ЩС, 3ЩС, 4ЩС Схема подключений 1ЩСУ1 Схема подключений 1ЩСУ2 Схема подключений 2ЩСУ Схема подключений 1ЩС Шкафы управления навесные 1ШУ…4ШУ. Схемы соединений и подключений Кабельный журнал ТП, ЩСУ, закладные элементы, каналы, проемы и прокладка труб План осветительной электроустановки на отм. 0.000 в осях 1…8 План осветительной электроустановки на отм. 0.000 в осях 8…12, фрагменты плана градирни и вариант закрытой установки дымососов План осветительной электроустановки на отм. 3.600 План осветительной электроустановки площадок приемных баков-отстойников конденсата Принципиальная схема питающей сети электроосвещения План осветительной электроустановки. Спецификации. Дополнительные условные обозначения Задание заводу-изготовителю на комплектную трансформаторную подстанцию 2КТП-1000 Опросный лист для заказа 2КТП-1000 Задание заводу-изготовителю на силовые распределительные шкафы серии РТ30-69 Щит 1ЩС серии РТ30-69. Задание на изготовление Слаботочные устройства Пояснительная записка и спецификация Сети связи на отм. 0.000 и 3.600. Скелетная схема |
| Разработан: | Латгипропром |
| Утверждён: | 17.10.1977 Главпромстройпроект Госстроя СССР (71) |






















































