Скачать Типовой проект 903-1-154 Альбом III. Часть 3. Электротехническая часть. Задание заводу-изготовителю на щиты управления крупноблочныеДата актуализации: 01.01.2021
|
| Обозначение: | Типовой проект 903-1-154 |
| Обозначение англ: | 903-1-154 |
| Статус: | действует |
| Название рус.: | Альбом III. Часть 3. Электротехническая часть. Задание заводу-изготовителю на щиты управления крупноблочные |
| Дата добавления в базу: | 01.09.2013 |
| Дата актуализации: | 01.01.2021 |
| Дата введения: | 28.09.1978 |
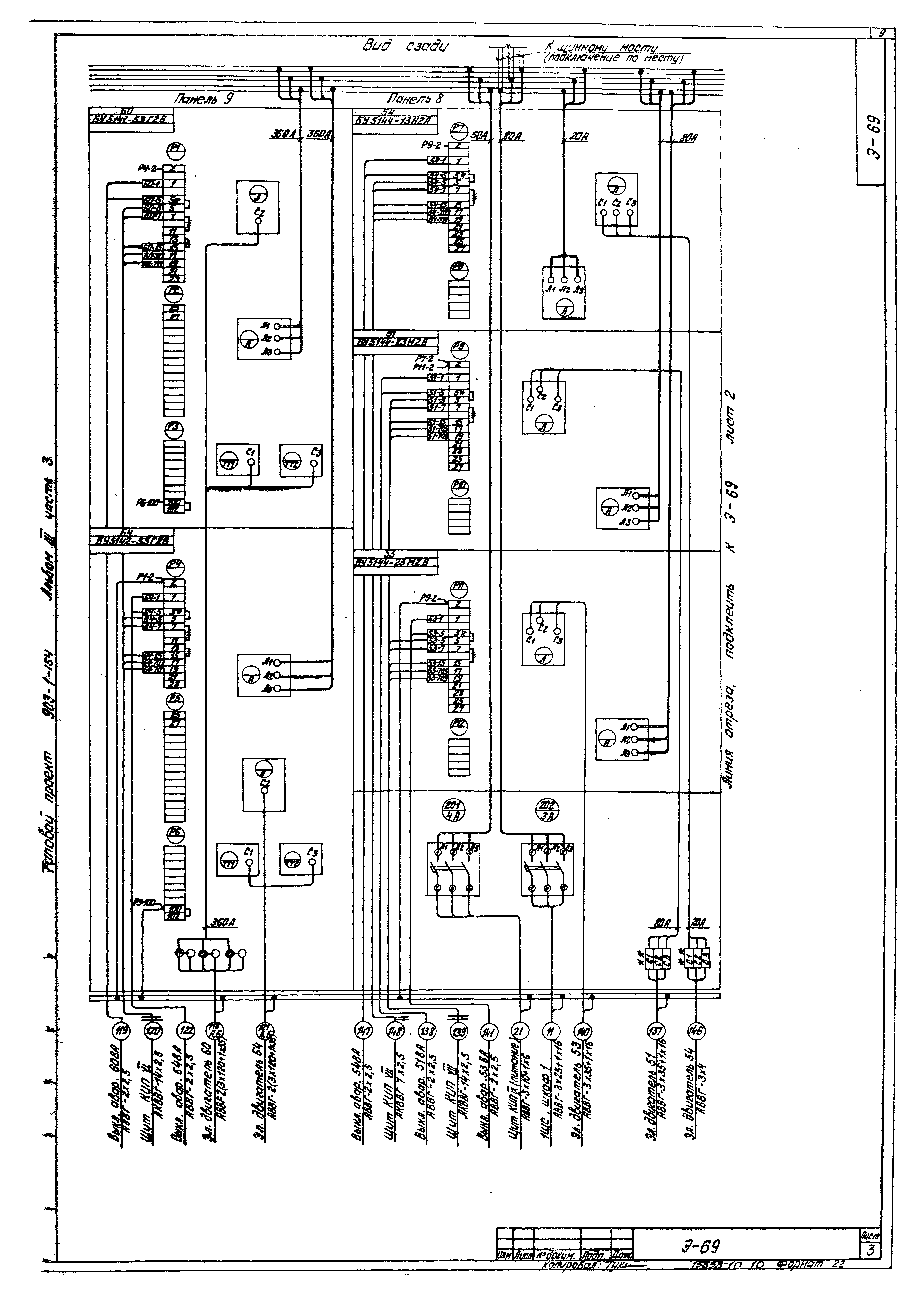
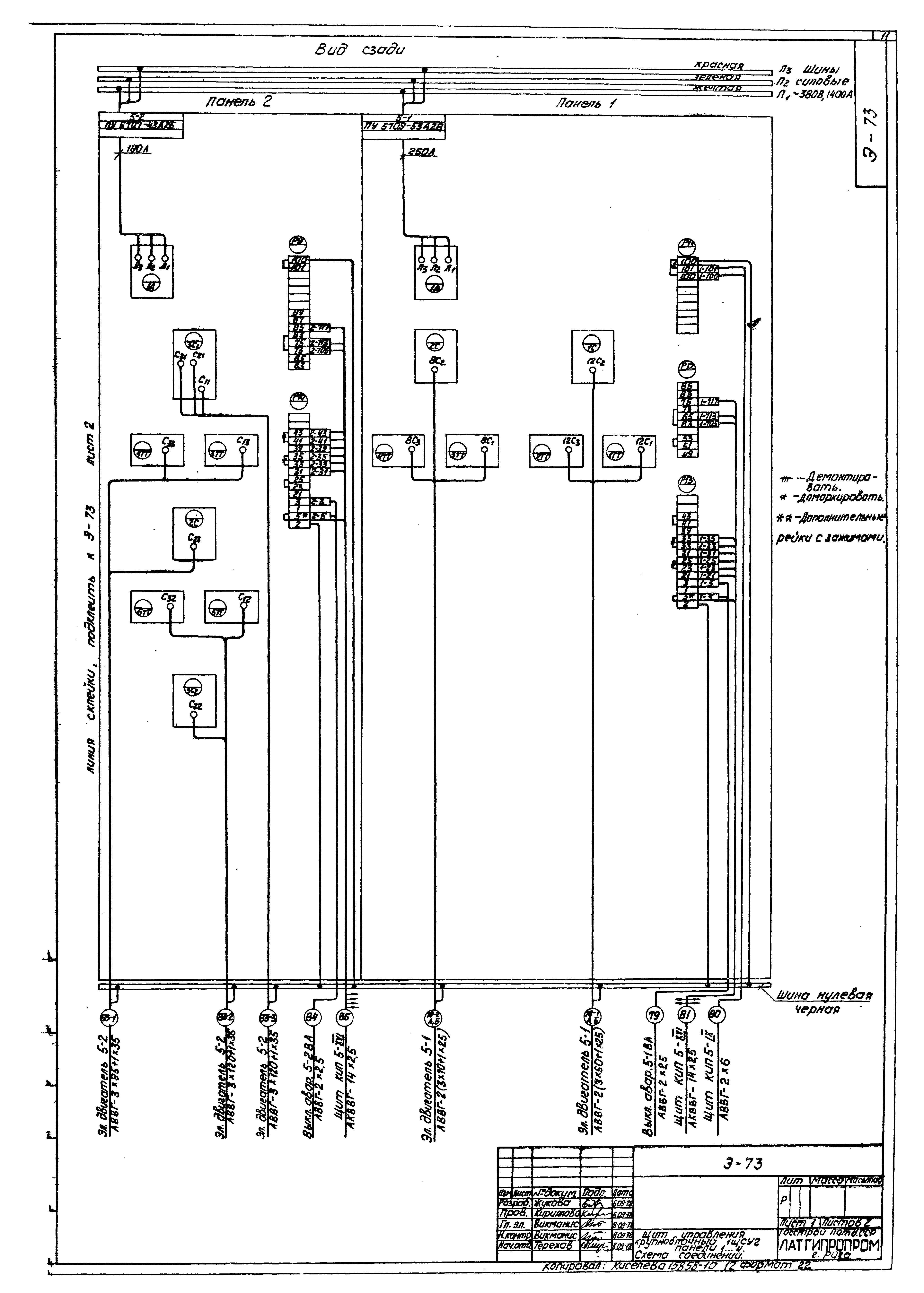
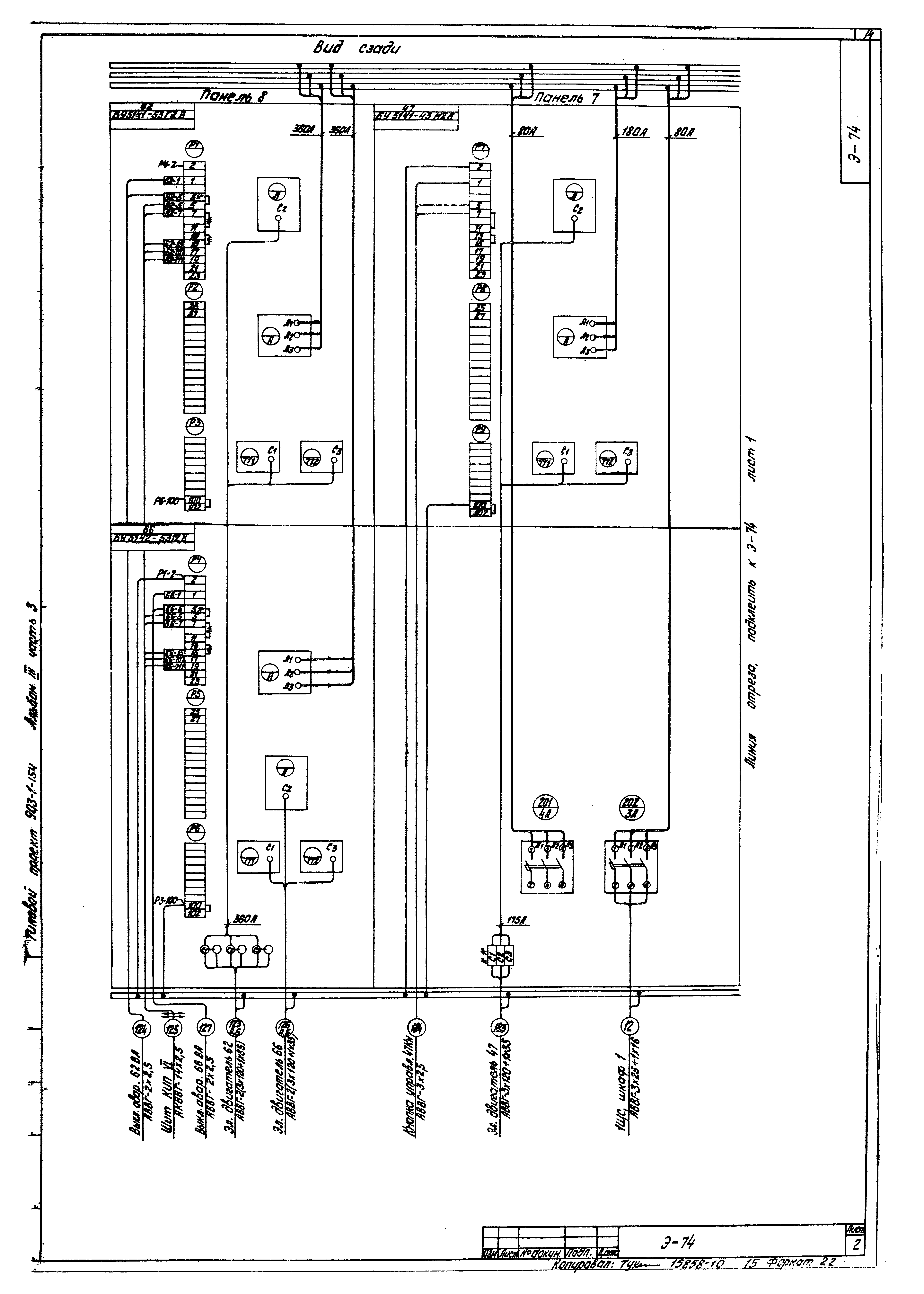
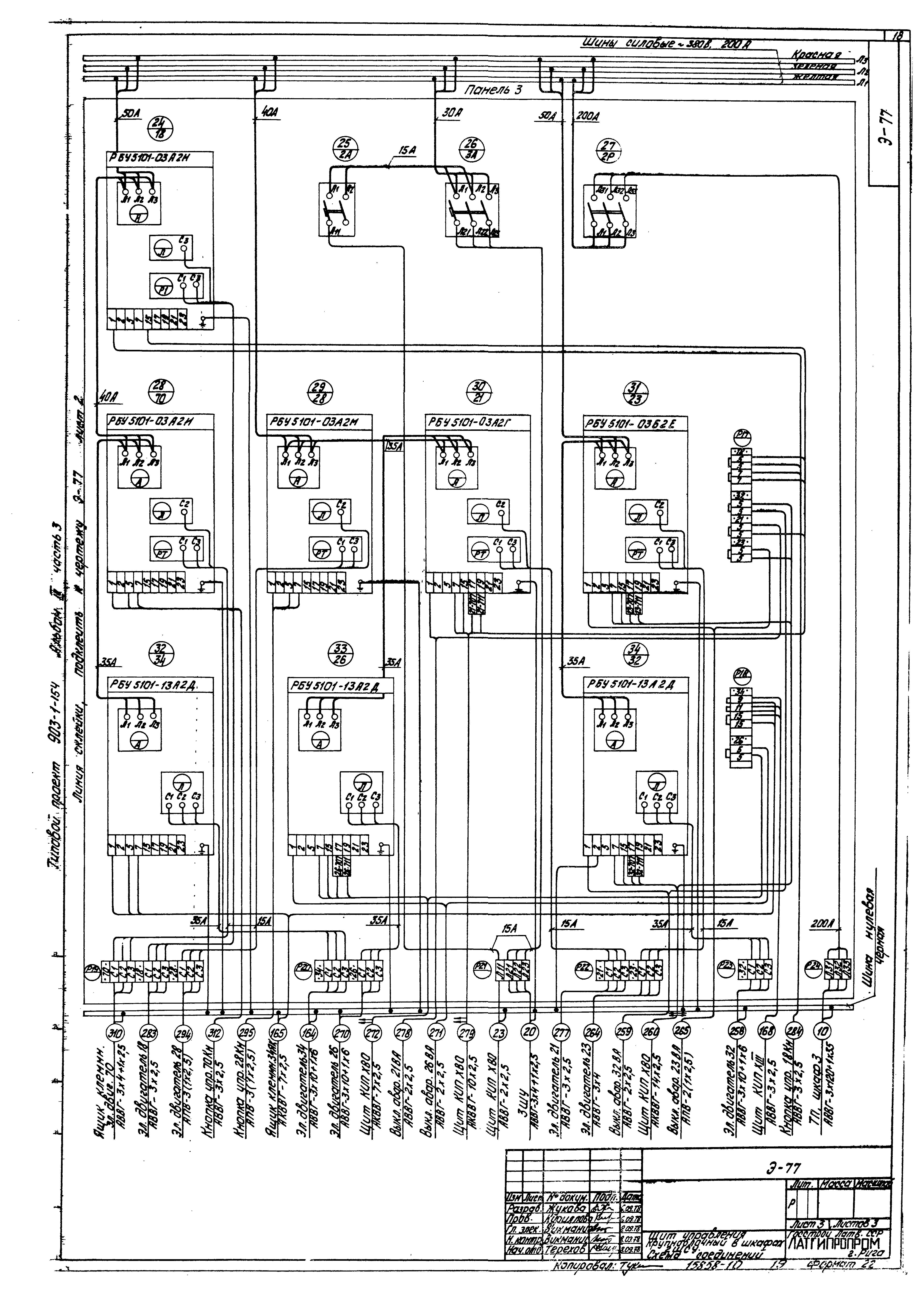
| Оглавление: | Содержание альбома Общие данные Щит управления крупноблочный 1ЩСУ1. Общий вид Щит управления крупноблочный 1ЩСУ1. Технические данные электрооборудования Щит управления крупноблочный 1ЩСУ1. Перечень надписей Щит управления крупноблочный 1ЩСУ1. Панели 1…4. Схема соединений Щит управления крупноблочный 1ЩСУ1. Панели 5…9. Схема соединений Щит управления крупноблочный 1ЩСУ2. Общий вид Щит управления крупноблочный 1ЩСУ2. Технические данные электрооборудования Щит управления крупноблочный 1ЩСУ2. Перечень надписей Щит управления крупноблочный 1ЩСУ2. Панели 1…4. Схема соединений Щит управления крупноблочный 1ЩСУ2. Панели 5…8. Схема соединений Щит управления крупноблочный в шкафах 2ЩСУ. Общий вид Щит управления крупноблочный в шкафах 2ЩСУ. Технические данные электрооборудования Щит управления крупноблочный в шкафах 2ЩСУ. Панель 2. Технические данные электрооборудования Щит управления крупноблочный в шкафах 2ЩСУ. Схема соединений Щит управления крупноблочный в шкафах 2ЩСУ. Панель 1. Общий вид Щит управления крупноблочный в шкафах 2ЩСУ. Панель 1.Технические данные электрооборудования Щит управления крупноблочный в шкафах 2ЩСУ. Панель 1. Перечень надписей Щит управления крупноблочный в шкафах 2ЩСУ. Панель 1. Схема соединений Щит управления крупноблочный в шкафах 2ЩСУ. Панель 2. Общий вид Щит управления крупноблочный в шкафах 2ЩСУ. Панель 3. Схема соединений Щит управления крупноблочный в шкафах 2ЩСУ. Панель 3. Общий вид Щит управления крупноблочный в шкафах 2ЩСУ. Панель 3.Технические данные электрооборудования Щит управления крупноблочный в шкафах 2ЩСУ. Панель 3. Перечень надписей |
| Разработан: | Латгипропром |
| Утверждён: | 17.10.1977 Главпромстройпроект Госстроя СССР (71) |























