Скачать Типовой проект 903-1-154 Альбом V. Сантехнические устройства. Тепловые сетиДата актуализации: 01.01.2021
|
| Обозначение: | Типовой проект 903-1-154 |
| Обозначение англ: | 903-1-154 |
| Статус: | действует |
| Название рус.: | Альбом V. Сантехнические устройства. Тепловые сети |
| Дата добавления в базу: | 01.09.2013 |
| Дата актуализации: | 01.01.2021 |
| Дата введения: | 28.09.1978 |
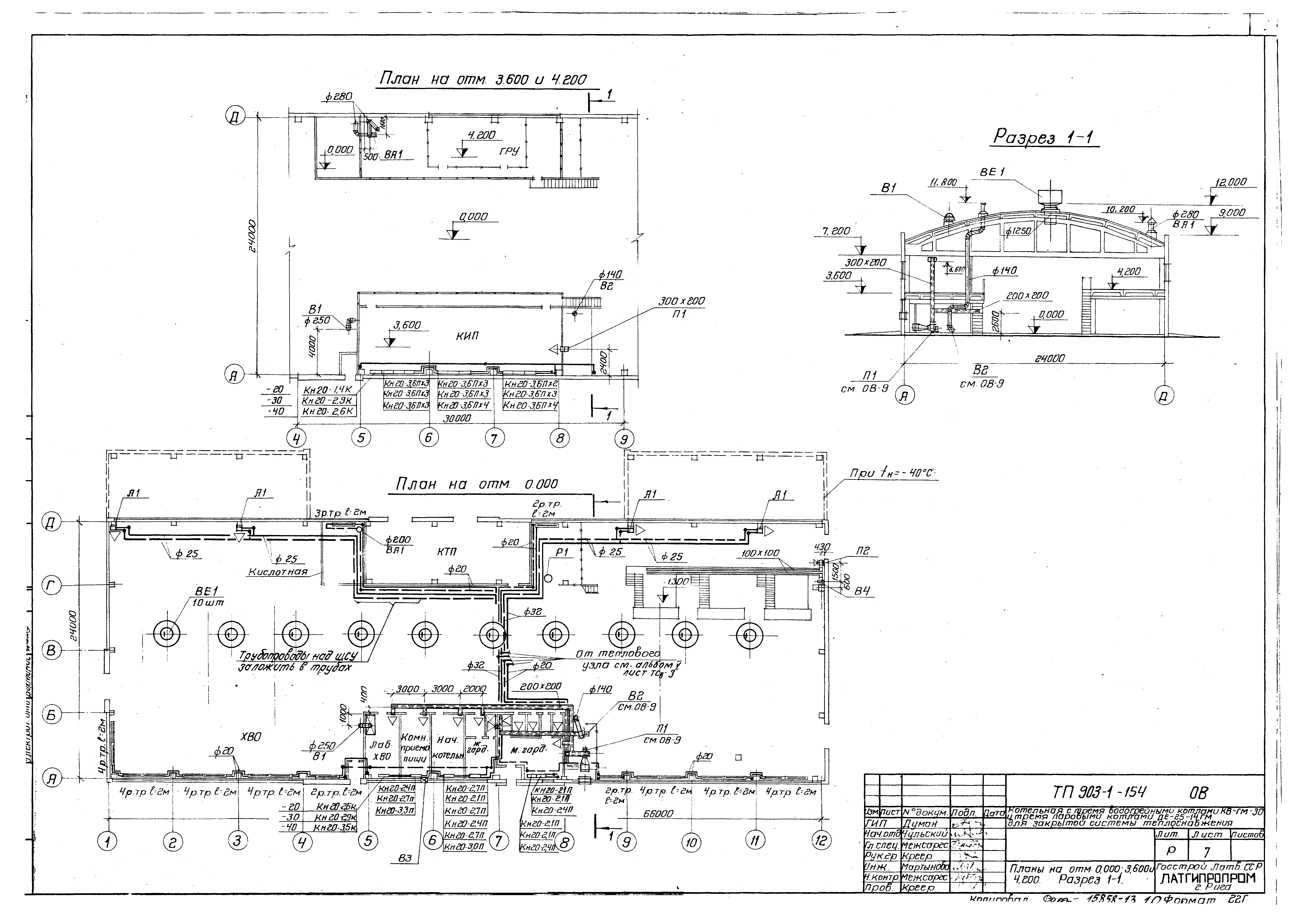
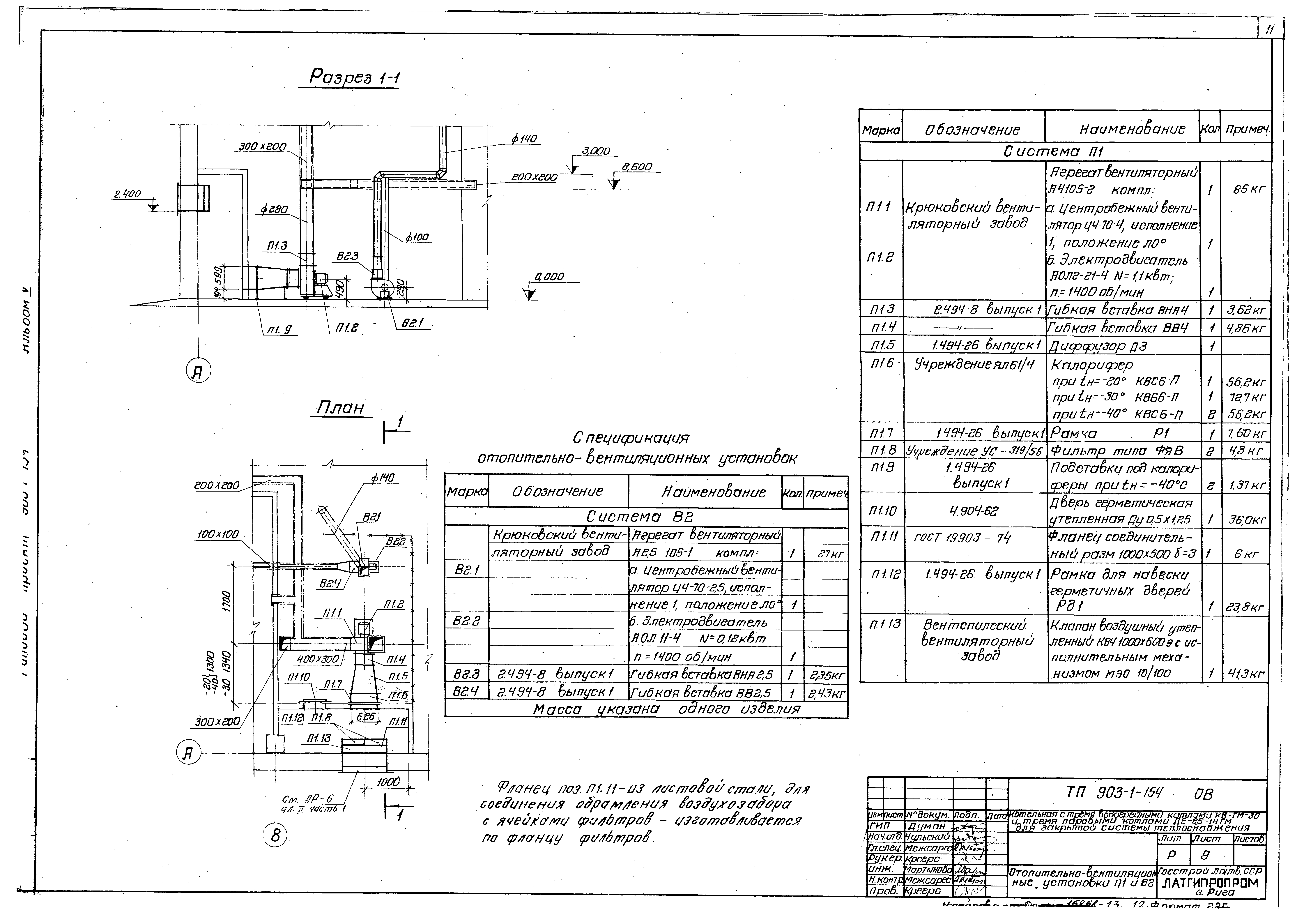
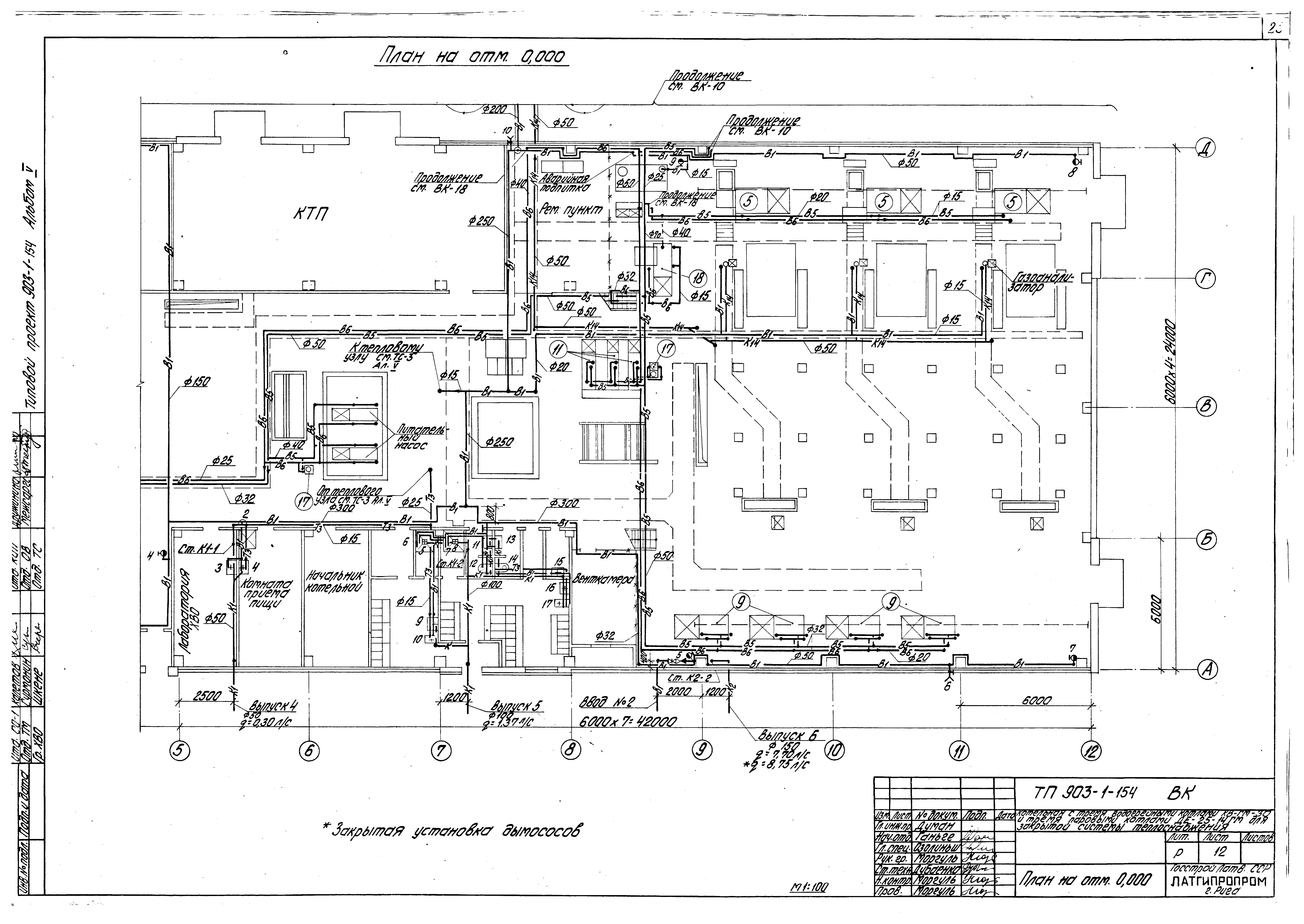
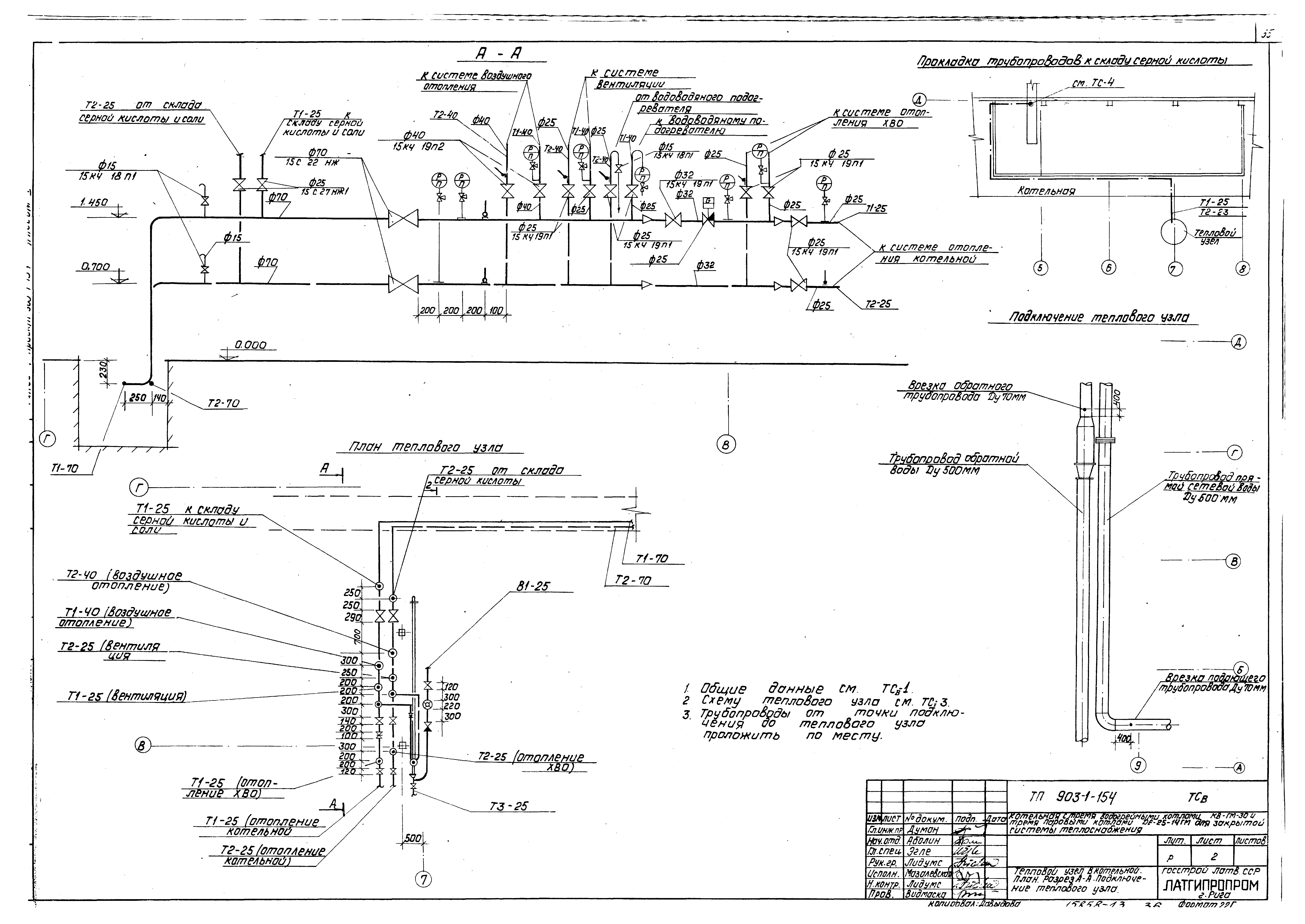
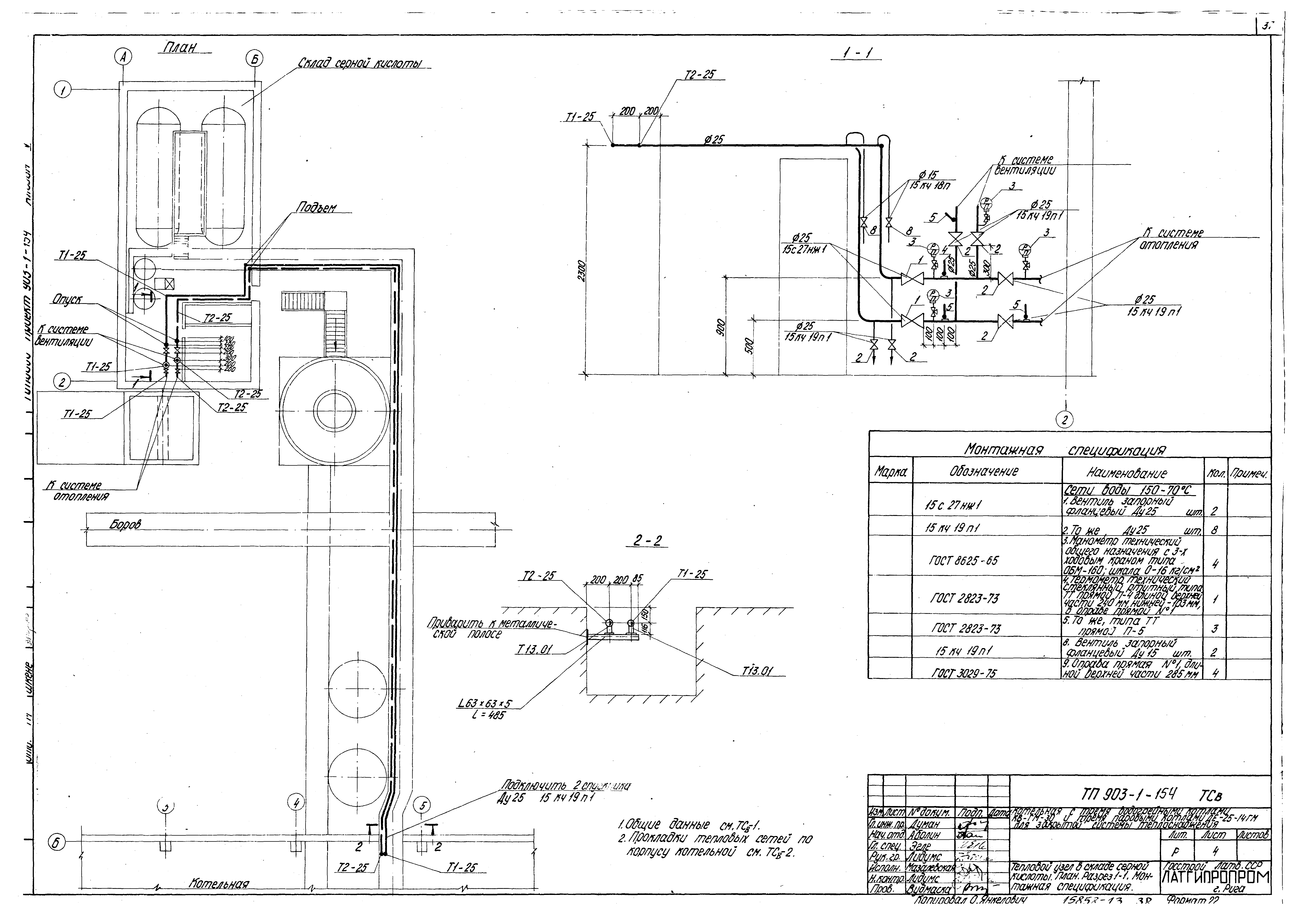
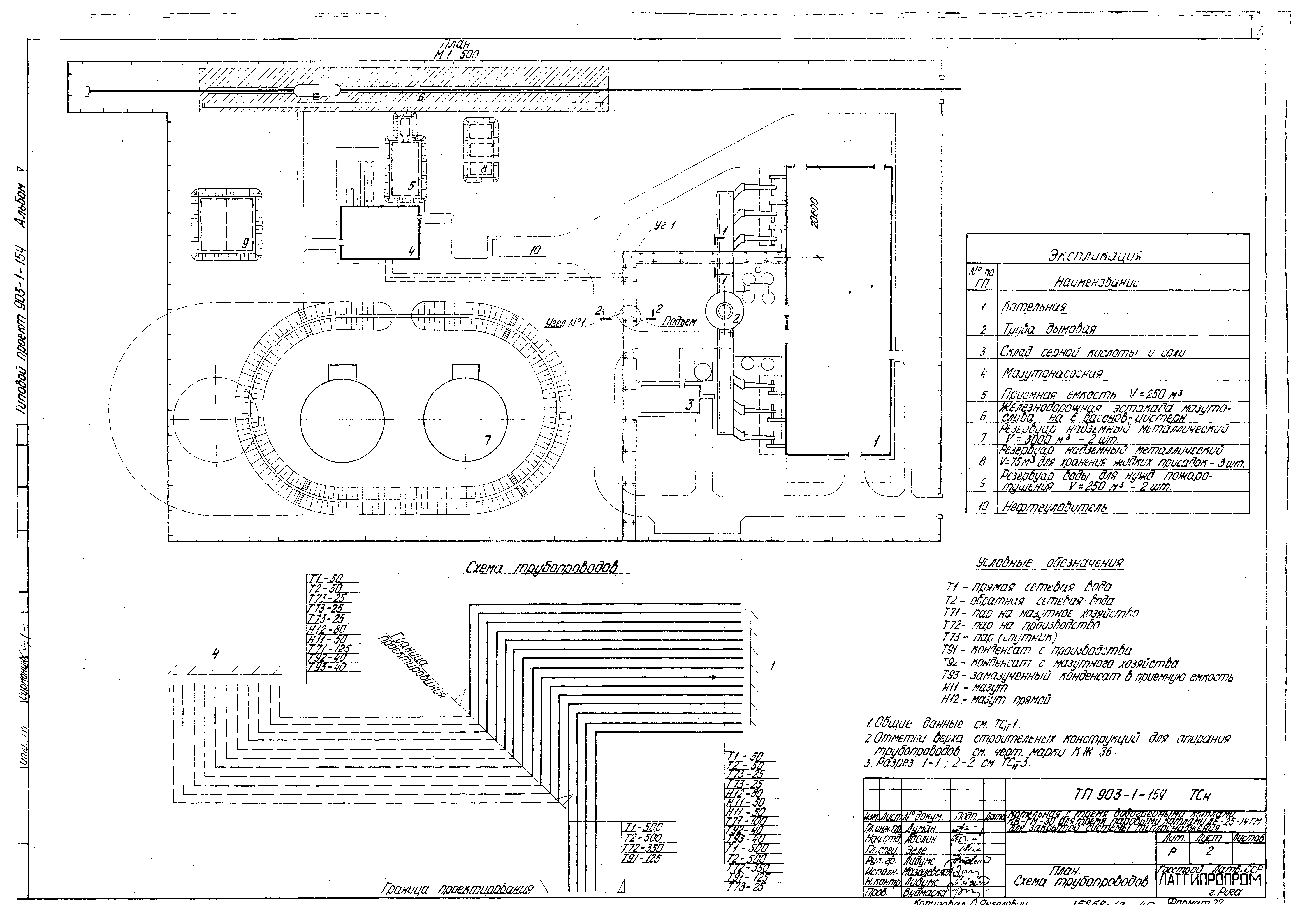
| Оглавление: | Содержание альбома Отопление и вентиляция Общие данные Планы на отм. 0.000; 3.600 и 4.200. Разрез 1-1 Схемы Отопительно-вентиляционные установки П1, В2 Склад серной кислоты. План на отм. 0.000. Разрез 1-1 Склад серной кислоты. Отопительно-вентиляционная установка П3 Водоснабжение и канализация Общие данные План на отм. 0.000 и - 0.150 План на отм. 0.000 и - 0.150 (открытая и закрытая установка дымососов) План на отм. 0.000. План кровли (открытая и закрытая установка дымососов) План на отм. 0.000 Схема системы В1 Схема систем Т3, В5 Схема системы В6 Схема систем К1, К2 Схема систем К2, К13, К14 Фрагмент плана 1. Разрез 1-1, 2-2. Схемы установок систем 1В5, 1В6. План бака 1В5.2. Вид А-А, Б-Б Чертежи основного комплекта марки НВК Общие данные Генплан с сетями водопровода и канализации Внутренние тепловые сети Общие данные Тепловой узел в котельной. План. Разрез А-А. Подключение теплового узла Тепловой узел в котельной. Разрез Б-Б. Схема теплового узла. Монтажная спецификация Тепловой узел в складе серной кислоты. План. Разрез 1-1. Монтажная спецификация Наружные тепловые сети Общие данные План Разрезы 1-1, 2-2. Узел №1 |
| Разработан: | Латгипропром |
| Утверждён: | 17.10.1977 Главпромстройпроект Госстроя СССР (71) |







































