Скачать Типовой проект 903-1-154 Альбом VI. Часть 2. Металлоконструкции газопроводов и воздухопроводов котла КВ-ГМ-30Дата актуализации: 01.01.2021
|
| Обозначение: | Типовой проект 903-1-154 |
| Обозначение англ: | 903-1-154 |
| Статус: | действует |
| Название рус.: | Альбом VI. Часть 2. Металлоконструкции газопроводов и воздухопроводов котла КВ-ГМ-30 |
| Дата добавления в базу: | 01.09.2013 |
| Дата актуализации: | 01.01.2021 |
| Дата введения: | 28.09.1978 |
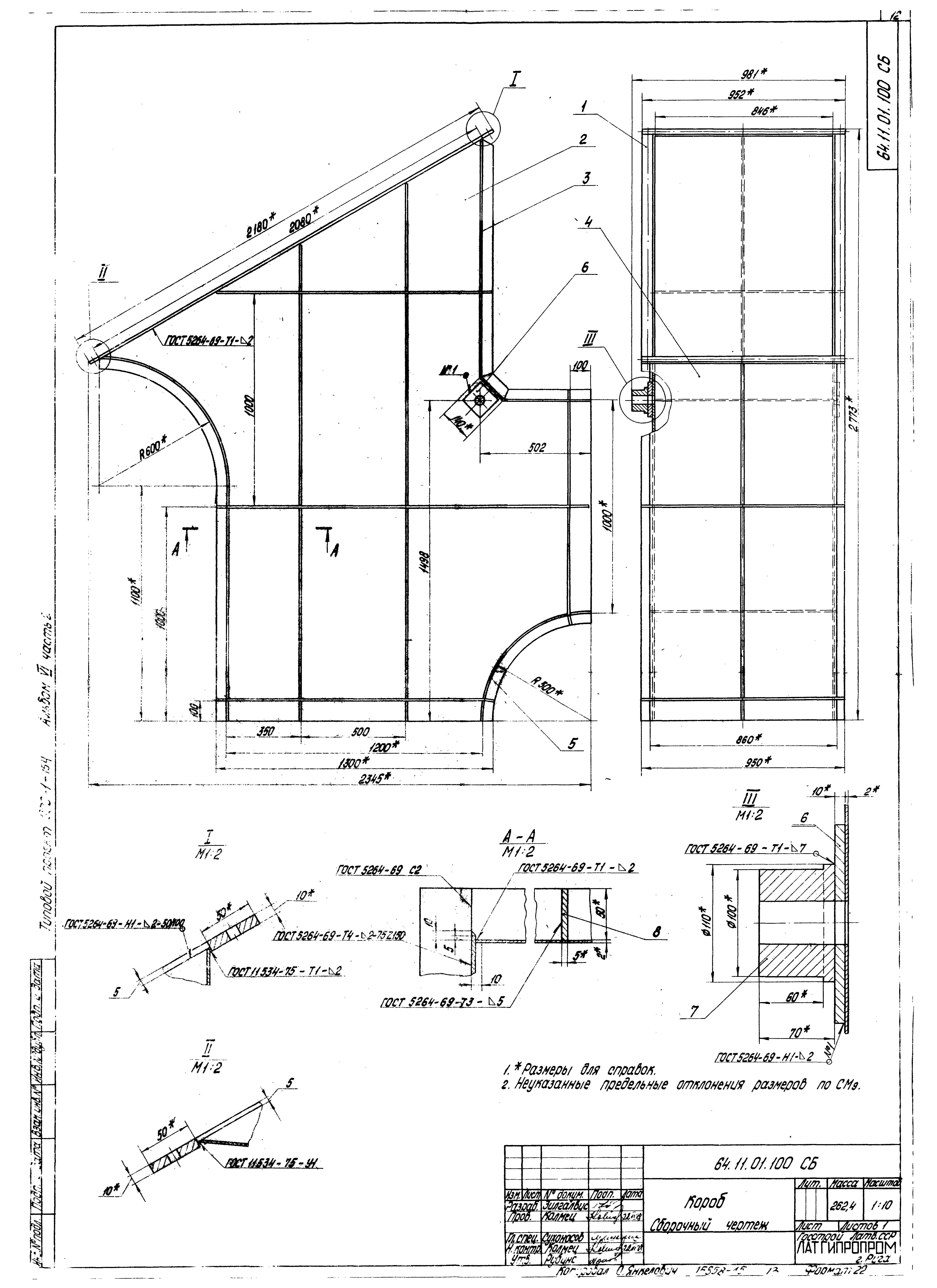
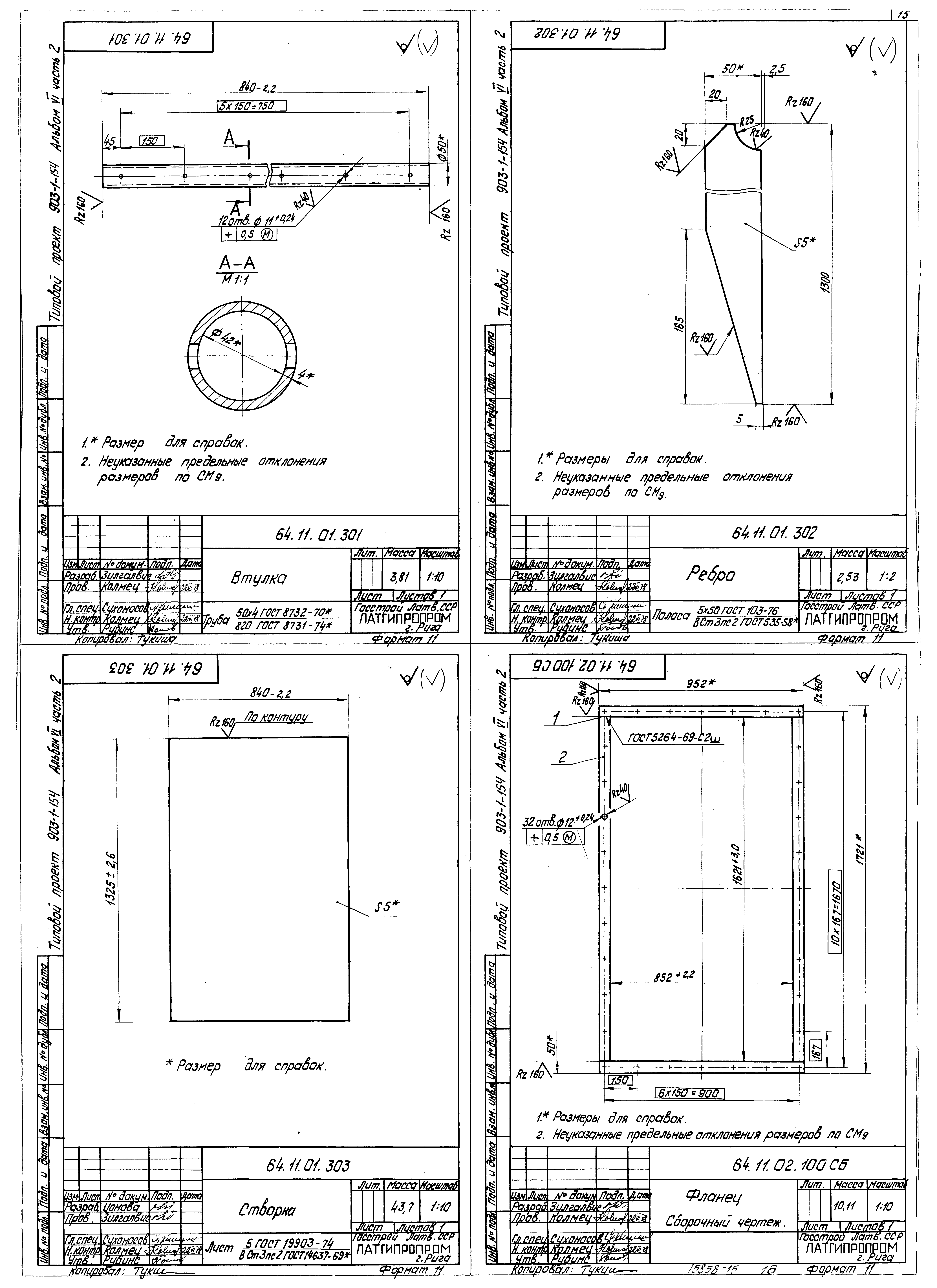
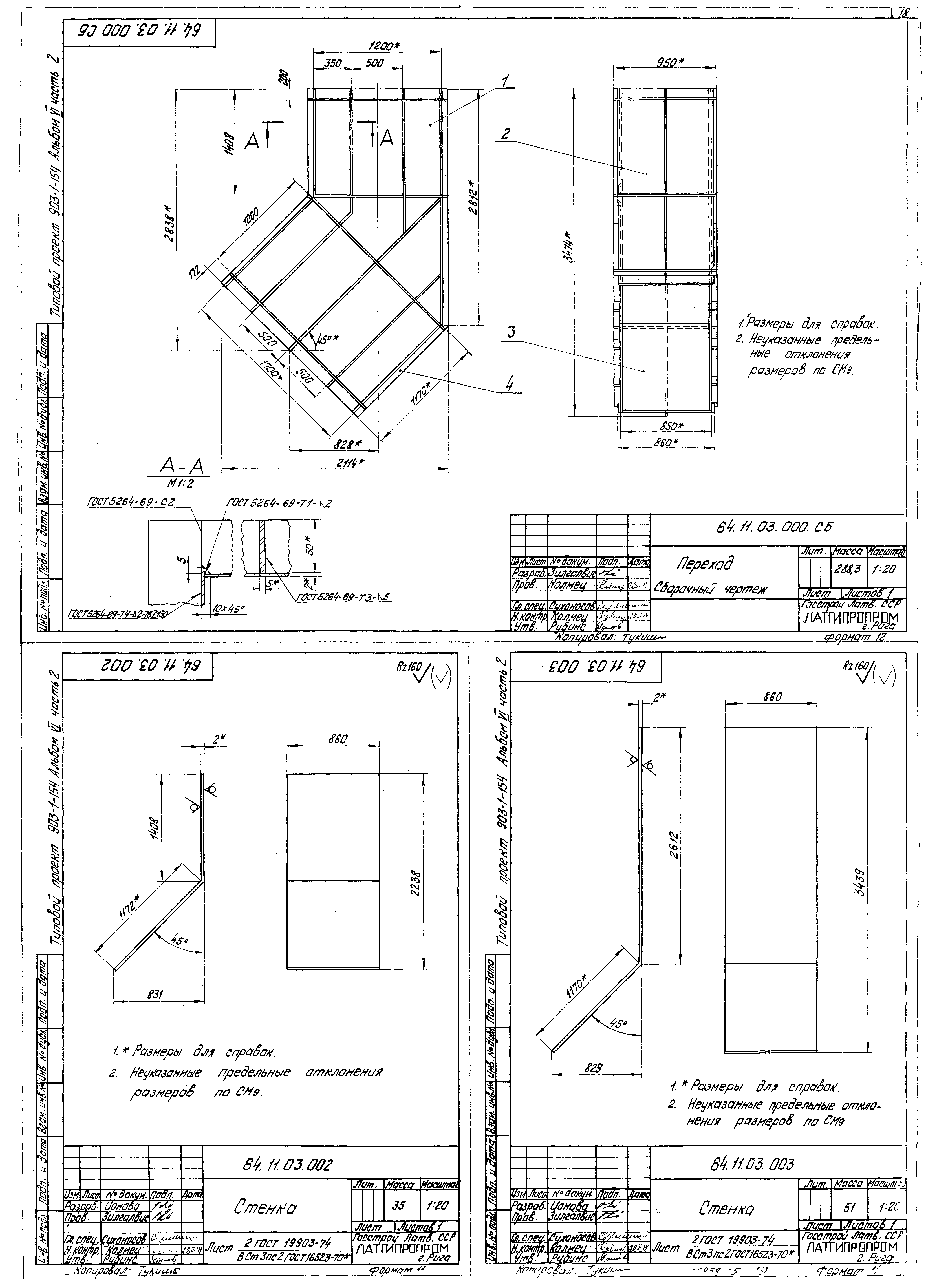
| Оглавление: | 64.11.00.000ВС Короб всасывающий 64.11.00.000 Короб всасывающий 64.11.01.000 Короб с заслонкой 64.11.01.100 Короб 64.11.01.200 Фланец 64.11.01.300 Заслонка 64.11.02.000 Короб с сеткой 64.11.02.100 Фланец 64.11.02.200 Короб 64.11.03.000 Переход 64.11.04.000 Карман 64.11.10.000 Патрубок 64.11.10.100 Фланец 64.11.10.200 Фланец 64.11.20.000 Короб напорный 64.11.20.100 Фланец 64.11.30.000 Переход 64.11.40.000 Переход 64.11.00.000СБ Короб всасывающий 64.11.01.000СБ Короб с заслонкой 64.11.01.001 Вал 64.11.01.002 Шайба 64.11.01.101 Стенка 64.11.01.100СБ Короб 64.11.01.102 Стенка 64.11.01.103 Стенка 64.11.01.104 Стенка 64.11.01.105 Усилитель 64.11.01.106 Бобышка 64.11.01.300СБ Заслонка 64.11.01.200СБ Фланец 64.11.01.301 Втулка 64.11.01.302 Ребро 64.11.01.303 Створка 64.11.02.100СБ Фланец 64.11.02.000СБ Короб с сеткой 64.11.02.200СБ Короб 64.11.02.201 Стенка 64.11.02.202 Стенка 64.11.02.203 Стенка 64.11.03.001 Боковина 64.11.03.000СБ Переход 64.11.03.002 Стенка 64.11.03.003 Стенка 64.11.04.000СБ Карман 64.11.04.001 Боковина 64.11.04.002 Стенка 64.11.04.003 Стенка 64.11.04.004 Фланец 64.11.04.005 Удлинитель 64.11.04.006 Конус 64.11.04.007 Полуконус 64.11.10.000СБ Патрубок 64.11.10.001 Боковина 64.11.10.002 Стенка 64.11.10.100СБ Фланец 64.11.10.200СБ Фланец 64.11.20.000СБ Короб напорный 64.11.20.100СБ Фланец 64.11.20.001 Стенка 64.11.20.002 Стенка 64.11.20.003 Стенка 64.11.20.004 Стенка 64.11.30.000СБ Переход 64.11.30.001 Фланец 64.11.30.002 Конус 64.11.40.000СБ Переход 64.11.40.001 Фланец 64.11.40.002 Переход 65.13.01.000 Газопровод №1 65.13.01.100 Фланец 65.13.01.200 Переход 65.13.01.300 Сектор 65.13.01.400 Короб 65.13.02.000 Газопровод №2 65.13.02.000ВС Газопровод №2 65.13.02.100 Карман 65.13.02.200 Переход 65.13.02.300 Короб 65.13.03.000 Переход 65.13.03.100 Фланец 65.13.04.000 Газопровод №3 65.13.04.100 Фланец 65.13.04.200 Сектор 65.13.04.300 Переход 65.13.01.000СБ Газопровод №1 65.13.01.100СБ Фланец 65.13.01.201 Боковина 65.13.01.200СБ Переход 65.13.01.202 Боковина 65.13.01.203 Стенка 65.13.01.204 Стенка 65.13.01.300СБ Сектор 65.13.01.301 Боковина 65.13.01.302 Стенка 65.13.01.303 Стенка 65.13.01.401 Стенка 65.13.01.400СБ Короб 65.13.01.402 Стенка 65.13.02.101 Стенка 65.13.02.000СБ Газопровод №2 65.13.02.100СБ Карман 65.13.02.102 Боковина 65.13.02.103 Фланец 65.13.02.104 Конус 65.13.02.105 Полуконус 65.13.02.201 Боковина 65.13.02.106 Стенка 65.13.02.200СБ Переход 65.13.02.202 Стенка 65.13.02.203 Стенка 65.13.02.300СБ Короб 65.13.03.000СБ Переход 65.13.03.001 Стенка 65.13.03.002 Стенка 65.13.03.003 Боковина 65.13.03.100СБ Фланец 65.13.04.100СБ Фланец 65.13.04.200СБ Сектор 65.13.04.000СБ Газопровод №3 65.13.04.201 Стенка 65.13.04.202 Боковина 65.13.04.203 Стенка 65.13.04.301 Боковина 65.13.04.300СБ Переход 65.13.04.302 Стенка 65.13.04.303 Стенка 64.15.00.000 Колено 64.15.00.000СБ Колено 64.15.00.001 Боковина 64.15.00.002 Стенка |
| Разработан: | Латгипропром |
| Утверждён: | 17.10.1977 Главпромстройпроект Госстроя СССР (71) |















































