Скачать Типовой проект 903-1-159 Альбом XIV. Щиты станций управления топливоподачи. Задание заводу-изготовителю (из ТП 903-1-153)Дата актуализации: 01.01.2021
|
| Обозначение: | Типовой проект 903-1-159 |
| Обозначение англ: | 903-1-159 |
| Статус: | заменен |
| Название рус.: | Альбом XIV. Щиты станций управления топливоподачи. Задание заводу-изготовителю (из ТП 903-1-153) |
| Дата добавления в базу: | 01.09.2013 |
| Дата актуализации: | 01.01.2021 |
| Дата введения: | 01.06.1979 |
| Дата окончания срока действия: | 01.07.1990 |
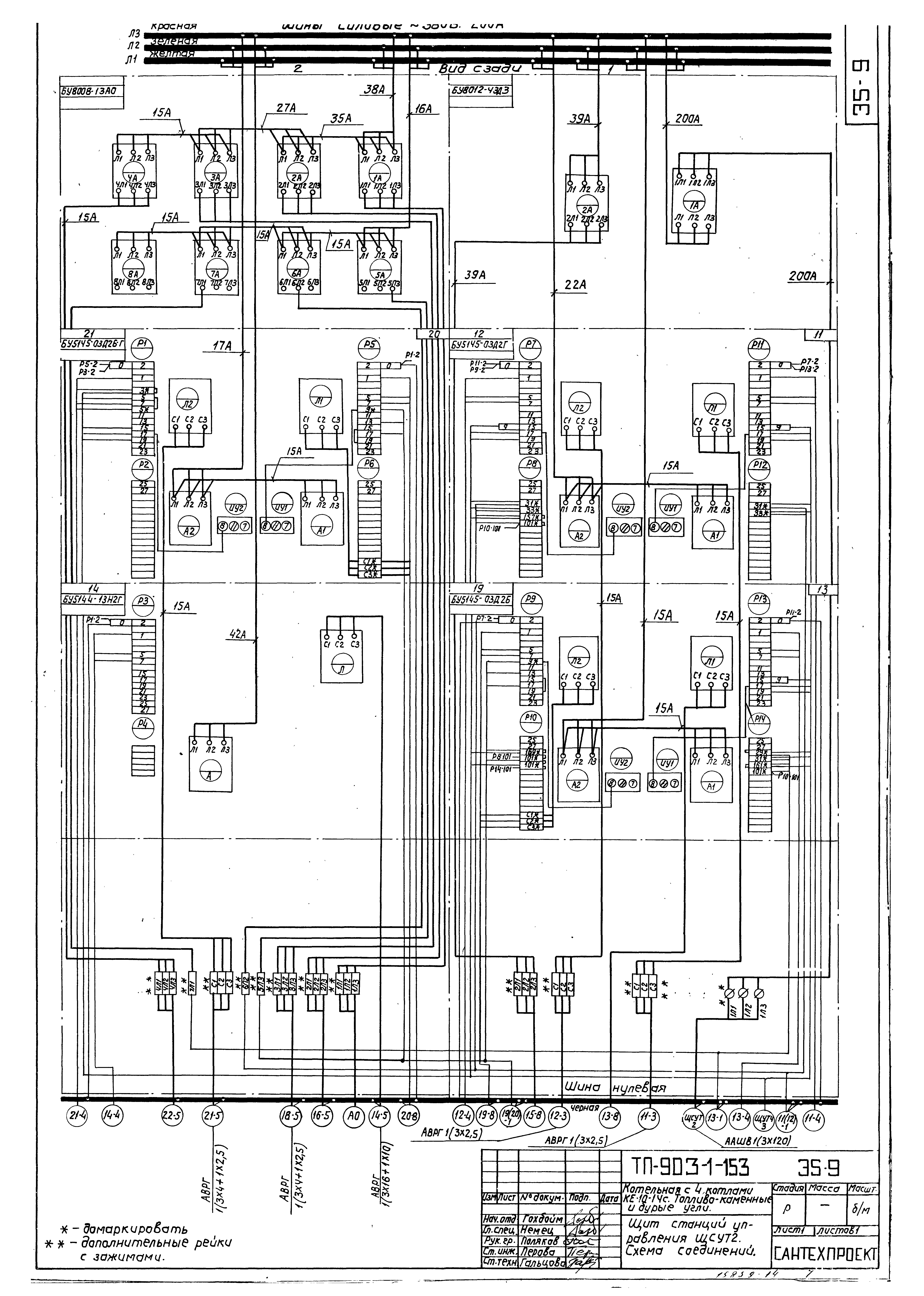
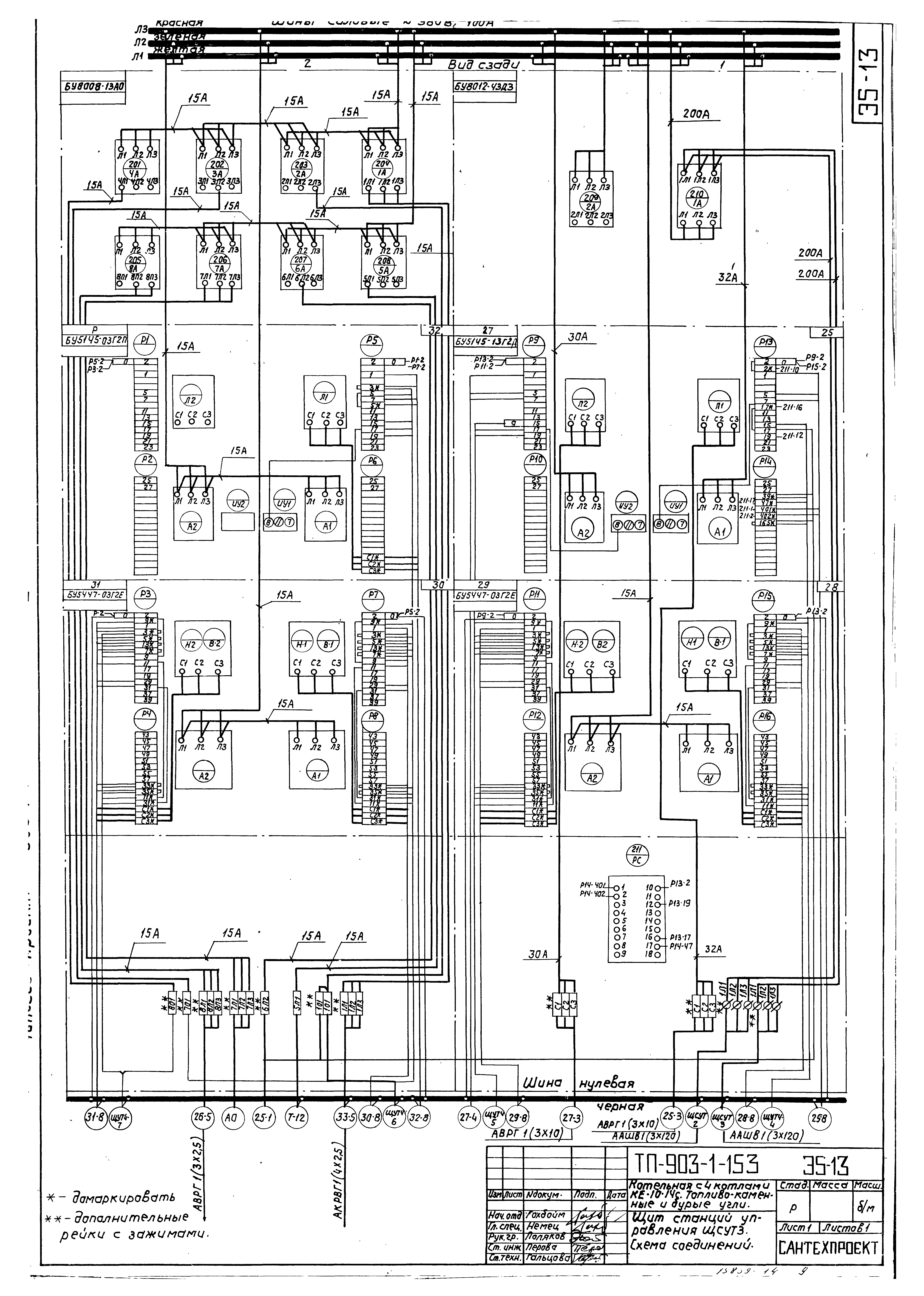
| Оглавление: | Содержание альбома Щиты станций управления. Задание заводу изготовителю. Общие данные Щит станций управления ЩСУТ1. Общий вид Щит станций управления ЩСУТ1. Технические данные электрооборудования Щит станций управления ЩСУТ1. Перечень надписей Щит станций управления ЩСУТ1. Схема соединений Щит станций управления ЩСУТ2. Общий вид Щит станций управления ЩСУТ2. Технические данные электрооборудования Щит станций управления ЩСУТ2. Перечень надписей Щит станций управления ЩСУТ2. Схема соединений Щит станций управления ЩСУТ3. Общий вид Щит станций управления ЩСУТ3. Технические данные электрооборудования Щит станций управления ЩСУТ3. Перечень надписей Щит станций управления ЩСУТ3. Схема соединений Щит управления ЩУТ4. Общий вид Щит управления ЩУТ4. Технические данные электрооборудования Щит управления ЩУТ4. Перечень надписей Щит управления ЩУТ4. Схема соединений |
| Разработан: | Сантехниипроект Госстроя России Минтяжмаш СССР Союзпроммеханизация |
| Утверждён: | 23.03.1979 ГПИ Сантехпроект (47) |
| Чем заменён: |














