Скачать Типовые проектные решения 907-02-222 Альбом 1.2. Световое ограждение дымовой трубы высотой 45 м. Электротехническая частьДата актуализации: 01.01.2021
|
| Обозначение: | Типовые проектные решения 907-02-222 |
| Обозначение англ: | 907-02-222 |
| Статус: | справочные материалы, мп, тпр |
| Название рус.: | Альбом 1.2. Световое ограждение дымовой трубы высотой 45 м. Электротехническая часть |
| Дата добавления в базу: | 01.09.2013 |
| Дата актуализации: | 01.01.2021 |
| Дата окончания срока действия: | 05.05.1980 |
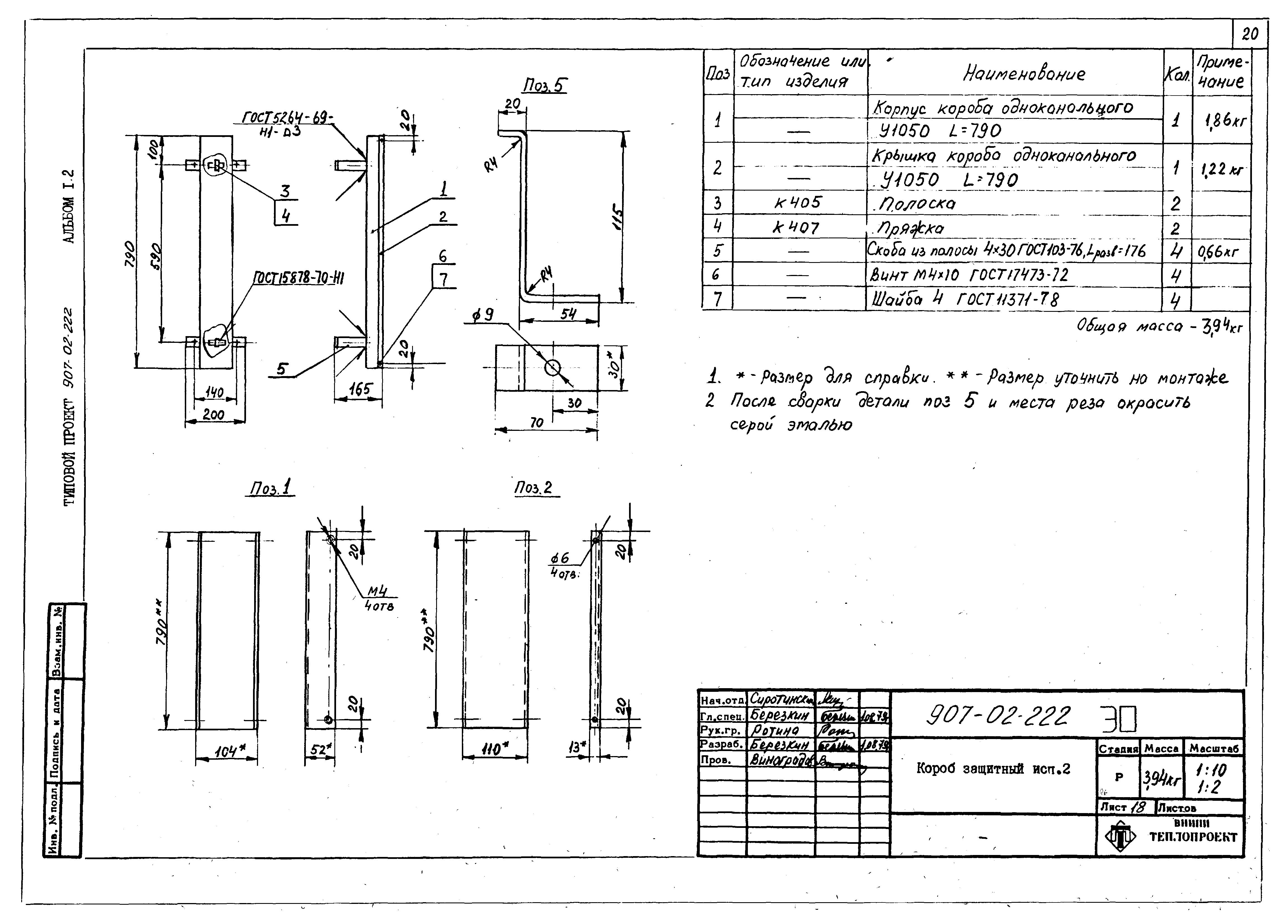
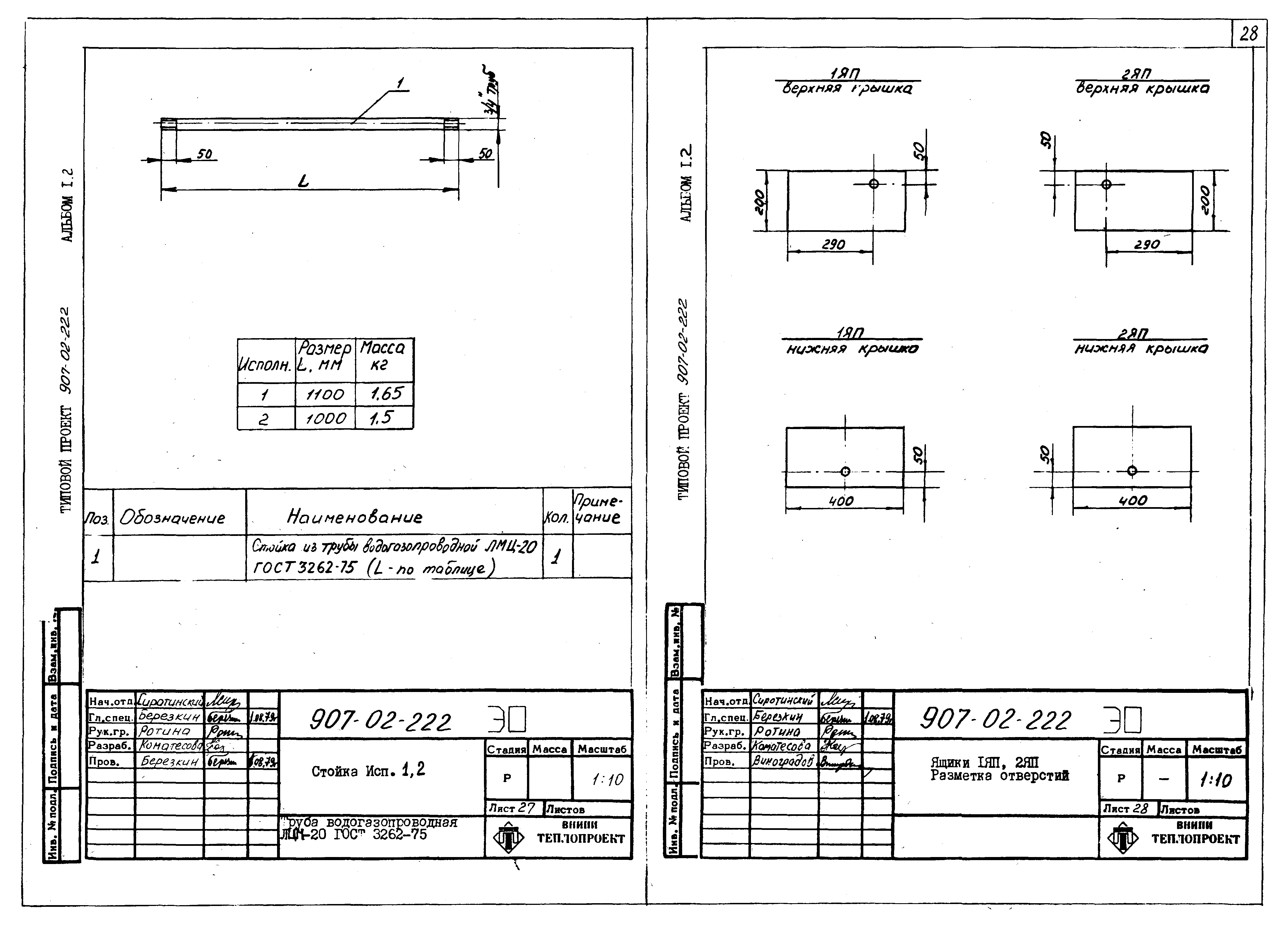
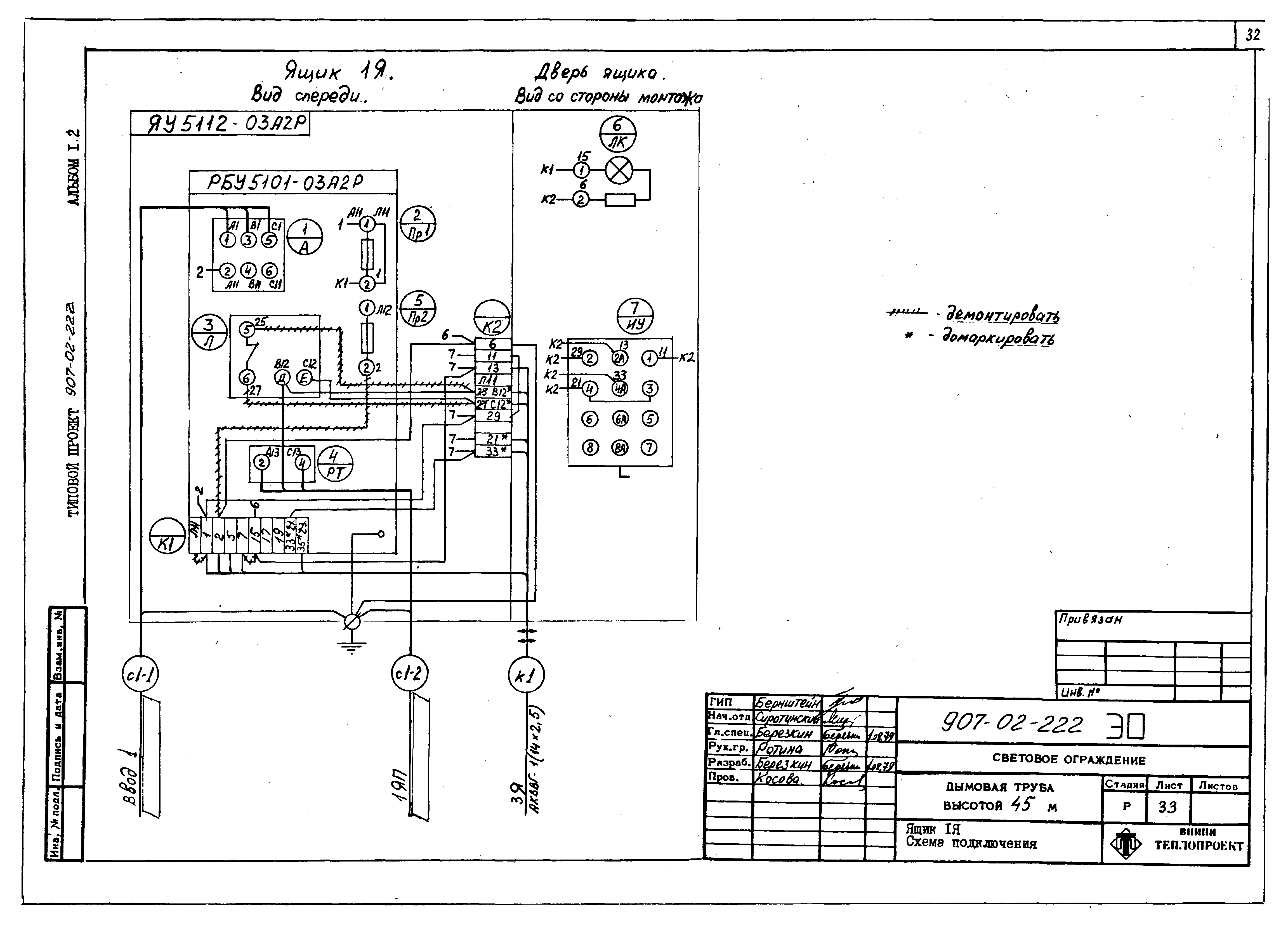
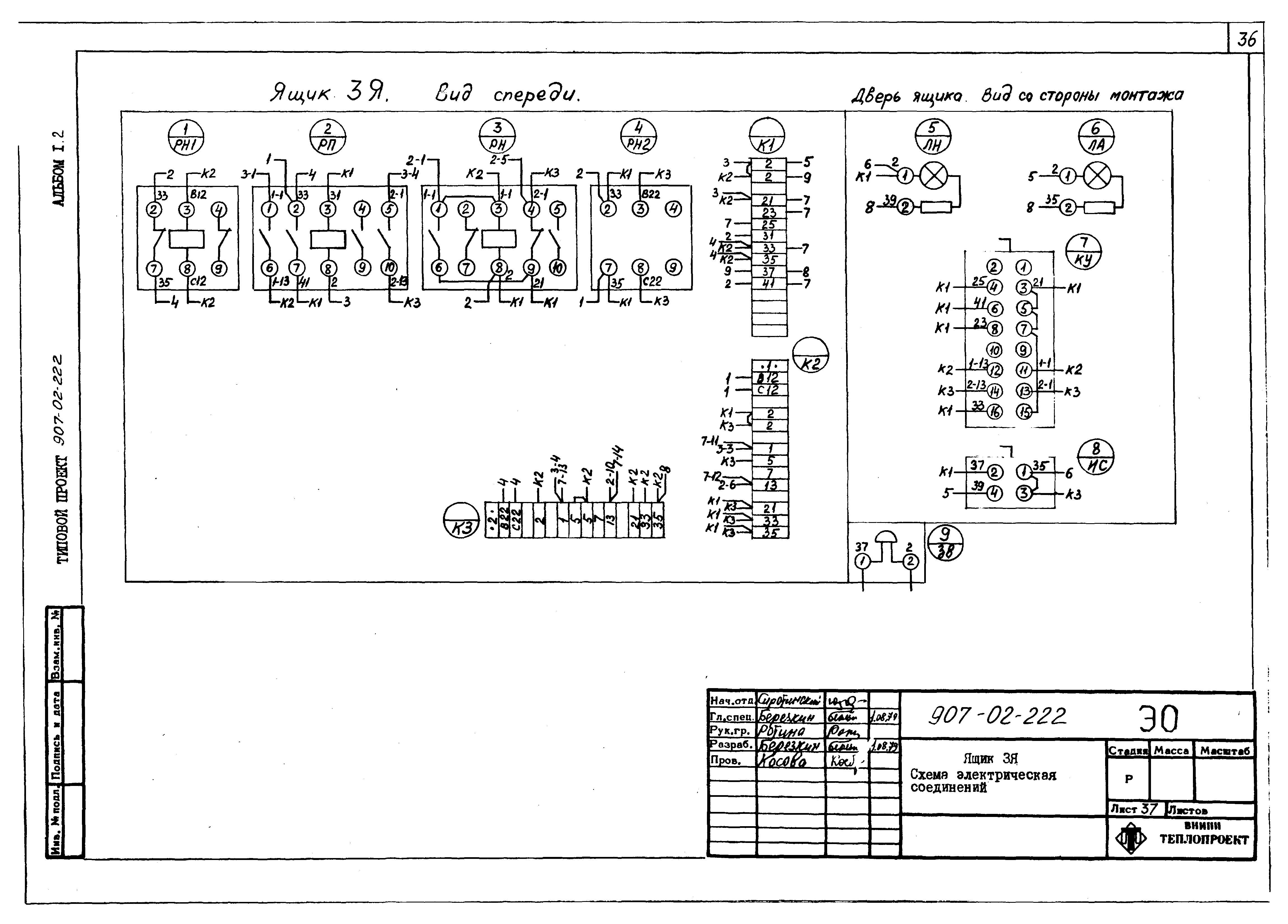
| Оглавление: | ТП 907-02-222 Электрическое освещение ТП 907-02-222-ЭО-1 Общие данные (начало) ТП 907-02-222-ЭО-2-ЭО7 Общие данные (продолжение) ТП 907-02-222-ЭО-8 Общие данные (окончание) ТП 907-02-222-ЭО-9 Схема принципиальная управления огнями ТП 907-02-222-ЭО-10 Общие цепи управления огнями ТП 907-02-222-ЭО-11 Схема принципиальная сетей светового ограждения ТП 907-02-222-ЭО-12 Кабельный журнал ТП 907-02-222-ЭО-13 Расположение электрооборудования и прокладка кабелей. Общий вид. План на отм. 40.0 м ТП 907-02-222-ЭО-14 Спецификация ТП 907-02-222-ЭО-15 Установка ящиков 1Я,2Я,3Я ТП 907-02-222-ЭО-16 Конструкция для установки ящиков 1Я,2Я,3Я ТП 907-02-222-ЭО-17 Короб защитный. Исп. 1 ТП 907-02-222-ЭО-18 Короб защитный. Исп. 2 ТП 907-02-222-ЭО-19 Ящики 1Я,2Я,3Я. Разметка отверстий ТП 907-02-222-ЭО-20 Установка ящиков 1ЯП,2ЯП ТП 907-02-222-ЭО-21 Конструкция для установки ящиков 1ЯП,2ЯП ТП 907-02-222-ЭО-22 Скоба для крепления стойки ТП 907-02-222-ЭО-23 Скоба комплектная ТП 907-02-222-ЭО-24 Труба комплектная ТП 907-02-222-ЭО-25 Установка заградительного огня ЗОЛ-2М. Исп.1 ТП 907-02-222-ЭО-26 Установка заградительного огня ЗОЛ-2М. Исп.2 ТП 907-02-222-ЭО-27 Стойка. Исп. 1,2 ТП 907-02-222-ЭО-28 Ящики 1Я,2Я. Разметка отверстий ТП 907-02-222-ЭО-29 Хомут ТП 907-02-222-ЭО-30 Клица ТП 907-02-222-ЭО-31 Скоба поддерживающая. Исп. 1,2 ТП 907-02-222-ЭО-32 Трубная заготовка поз. 7-13 ТП 907-02-222-ЭО-33 Ящик 1Я. Схема подключения ТП 907-02-222-ЭО-34 Ящик 2Я. Схема подключения ТП 907-02-222-ЭО-35 Ящик 3Я. Чертеж общего вида ТП 907-02-222-ЭО-36 Ящик 3Я. Установка дополнительного аппарата ТП 907-02-222-ЭО-37 Ящик 3Я. Схема электрическая соединений ТП 907-02-222-ЭО-38 Ящик 3Я. Схема соединений дополнительного аппарата. Схема подключения ТП 907-02-222 Задание предприятию-изготовителю ТП 907-02-222-ЗЗ-1 Общие данные ТП 907-02-222-ЗЗ-2 Перечень комплектных устройств ТП 907-02-222-ЗЗ-3 Ящик 3Я. Таблица технических данных аппаратов ТП 907-02-222-ЗЗ-4 Ящик 3Я. Чертеж общего вида ТП 907-02-222-ЗЗ-5 Ящик 3Я. Схема электрическая соединений ТП 907-02-222-ЗЗ-6 Ящик 3Я. Таблица перечня надписей |
| Разработан: | ВНИПИтеплопроект Минмонтажспецстроя СССР |
| Утверждён: | 25.12.1979 Минмонтажспецстрой СССР (USSR Minmontazhspetsstroy ) |









































