Скачать Типовой проект 407-3-656.01 Альбом 1. Пояснительная записка. Архитектурно-строительные решенияДата актуализации: 01.01.2021
|
| Обозначение: | Типовой проект 407-3-656.01 |
| Обозначение англ: | 407-3-656.01 |
| Статус: | не определен законодательством |
| Название рус.: | Альбом 1. Пояснительная записка. Архитектурно-строительные решения |
| Дата добавления в базу: | 01.09.2013 |
| Дата актуализации: | 01.01.2021 |
| Дата введения: | 23.01.2003 |
| Дата окончания срока действия: | 30.06.2003 |
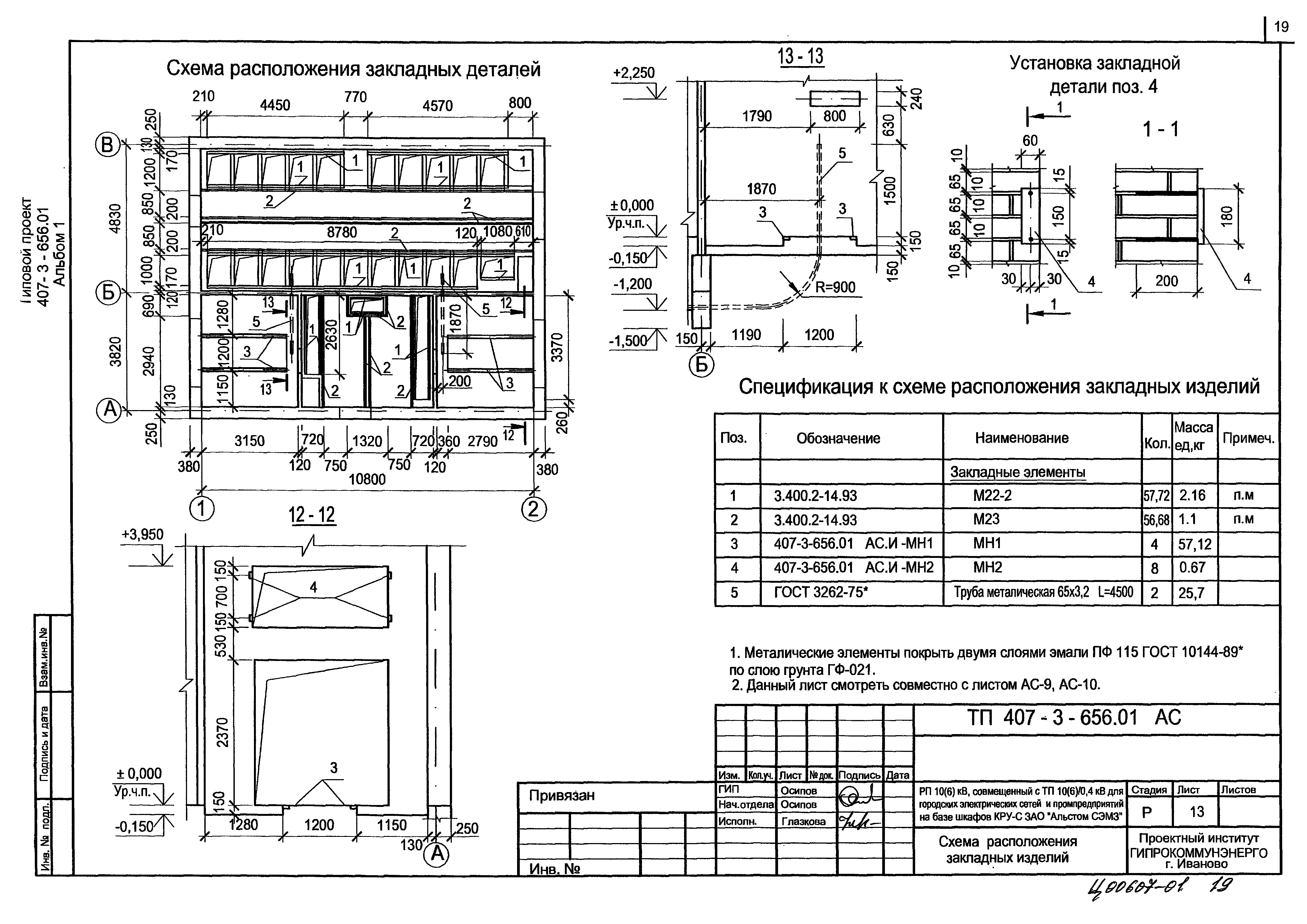
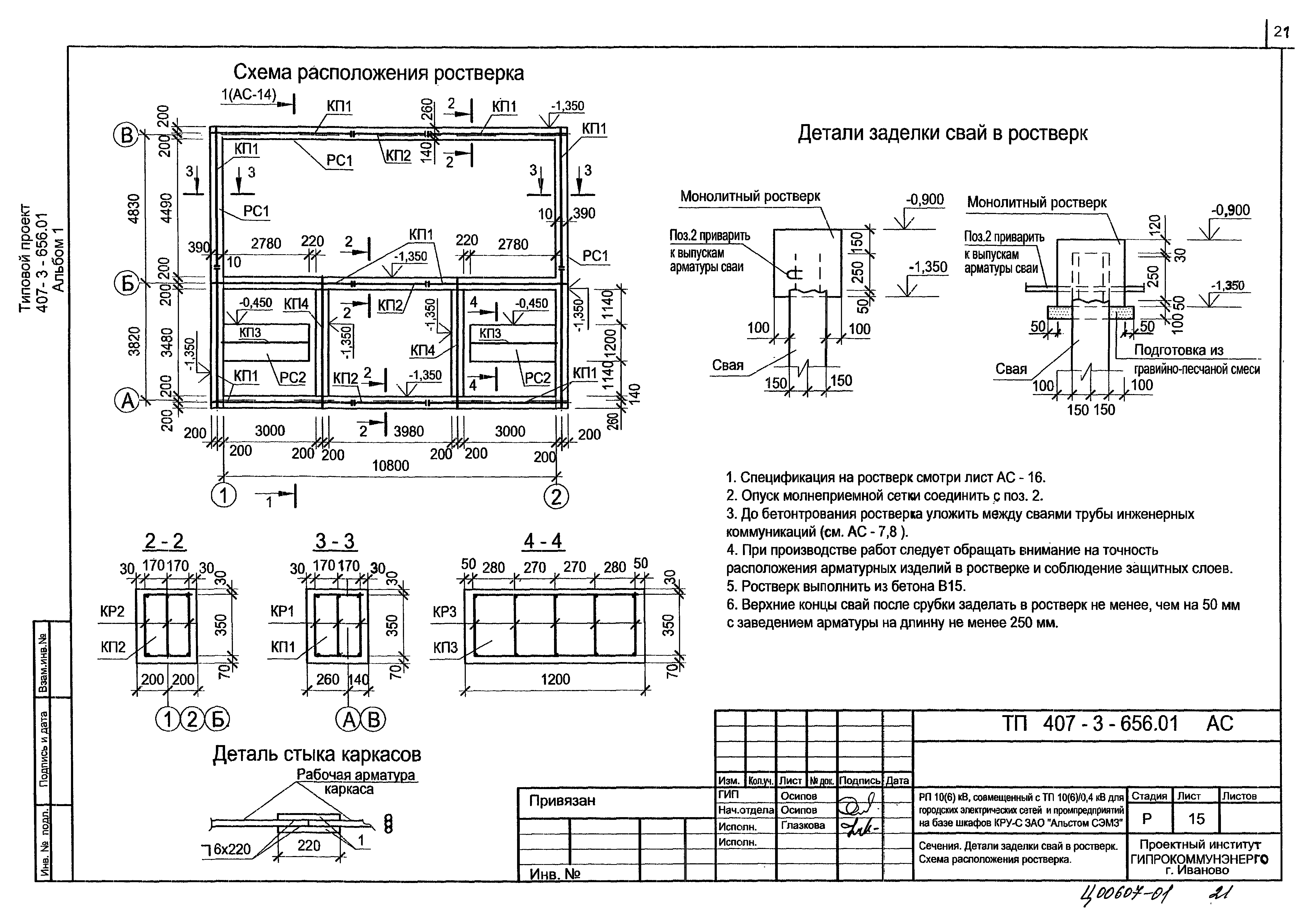
| Оглавление: | ТП 407-3-656.01-АС-1 Общие данные (начало). ТП 407-3-656.01-АС-2 Общие данные (окончание). ТП 407-3-656.01-АС-3 План на отм. 0.000 ТП 407-3-656.01-АС-4 Разрезы 1-1; 2-2. ТП 407-3-656.01-АС-5 Фасады. ТП 407-3-656.01-АС-6 План полов на отм. 0.000. План кровли. ТП 407-3-656.01-АС-7 Схемы расположения фундаментов. ТП 407-3-656.01-АС-8 Схемы расположения блоков в осях 1-2;2-1;А-Б;Б-А. Сечения 2-2;3-3;4-4. ТП 407-3-656.01-АС-9 Схемы расположения кабельных каналов. ТП 407-3-656.01-АС-10 Схемы перекрытия кабельных каналов. ТП 407-3-656.01-АС-11 Схема расположения плит покрытий. ТП 407-3-656.01-АС-12 Схема расположения горизонтальной диафрагмы. ТП 407-3-656.01-АС-13 Схема расположения закладных изделий. ТП 407-3-656.01-АС-14 План свайного поля. Сечение 1-1. ТП 407-3-656.01-АС-15 Сечения. Ведомость расхода стали на ростверк РС1. Детали заделки свай в ростверк. ТП 407-3-656.01-АС-16 Схема сечений нагрузок. Таблица нагрузок. Спецификация на ленточный ростверк. |
| Разработан: | Гипрокоммунэнерго |
| Утверждён: | 23.01.2003 ЗАО Альстом СЭМЗ (22) |





















