Скачать Типовой проект 501-5-76.86 Альбом 2. Технологические решения. Связь и сигнализация. Архитектурные решения. Конструкции железобетонные. Внутренние водопровод и канализация. Отопление и вентиляцияДата актуализации: 01.01.2021
|
| Обозначение: | Типовой проект 501-5-76.86 |
| Обозначение англ: | 501-5-76.86 |
| Статус: | не определен законодательством |
| Название рус.: | Альбом 2. Технологические решения. Связь и сигнализация. Архитектурные решения. Конструкции железобетонные. Внутренние водопровод и канализация. Отопление и вентиляция |
| Дата добавления в базу: | 01.09.2013 |
| Дата актуализации: | 01.01.2021 |
| Дата введения: | 01.01.1987 |
| Дата окончания срока действия: | 30.06.2003 |
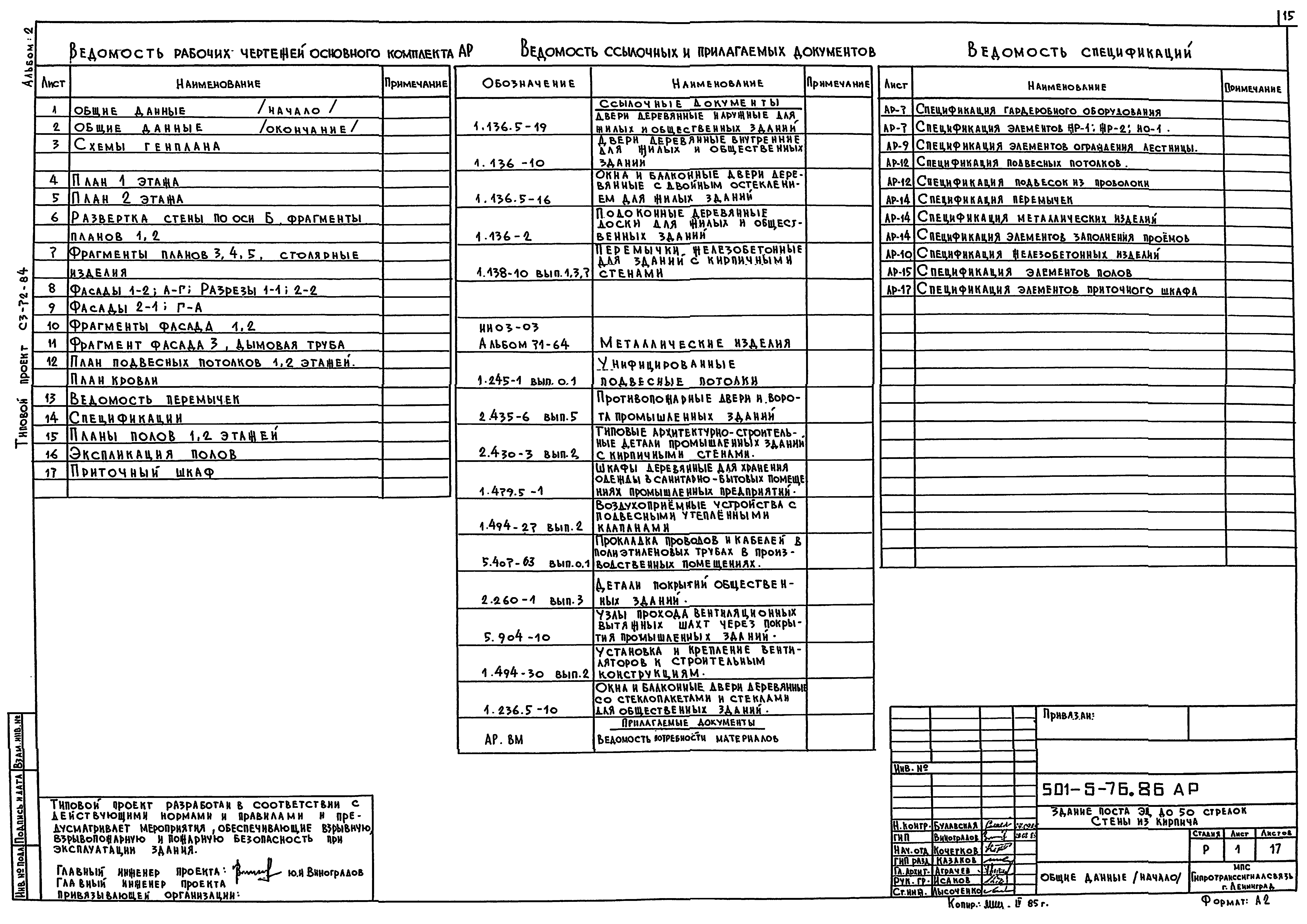
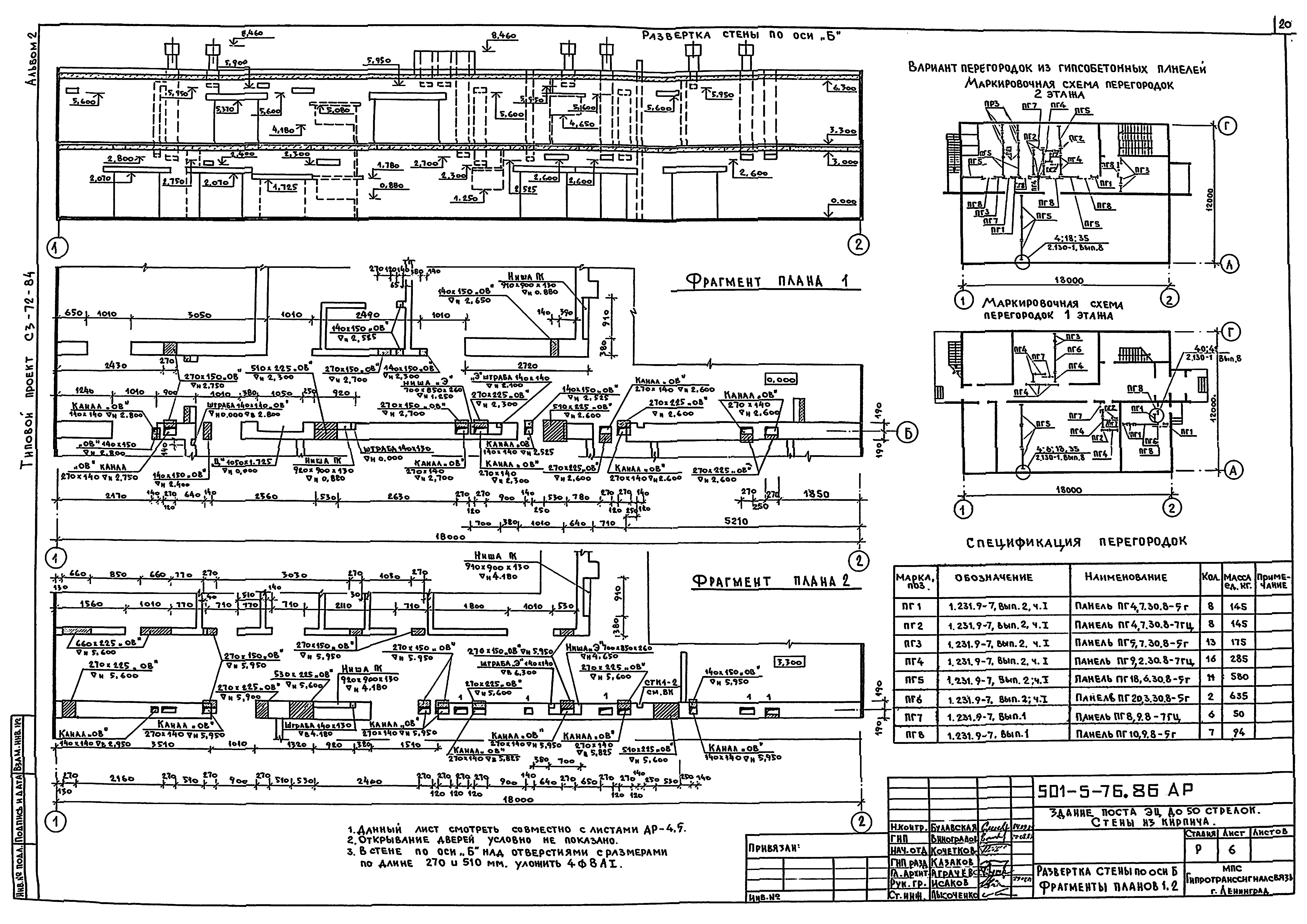
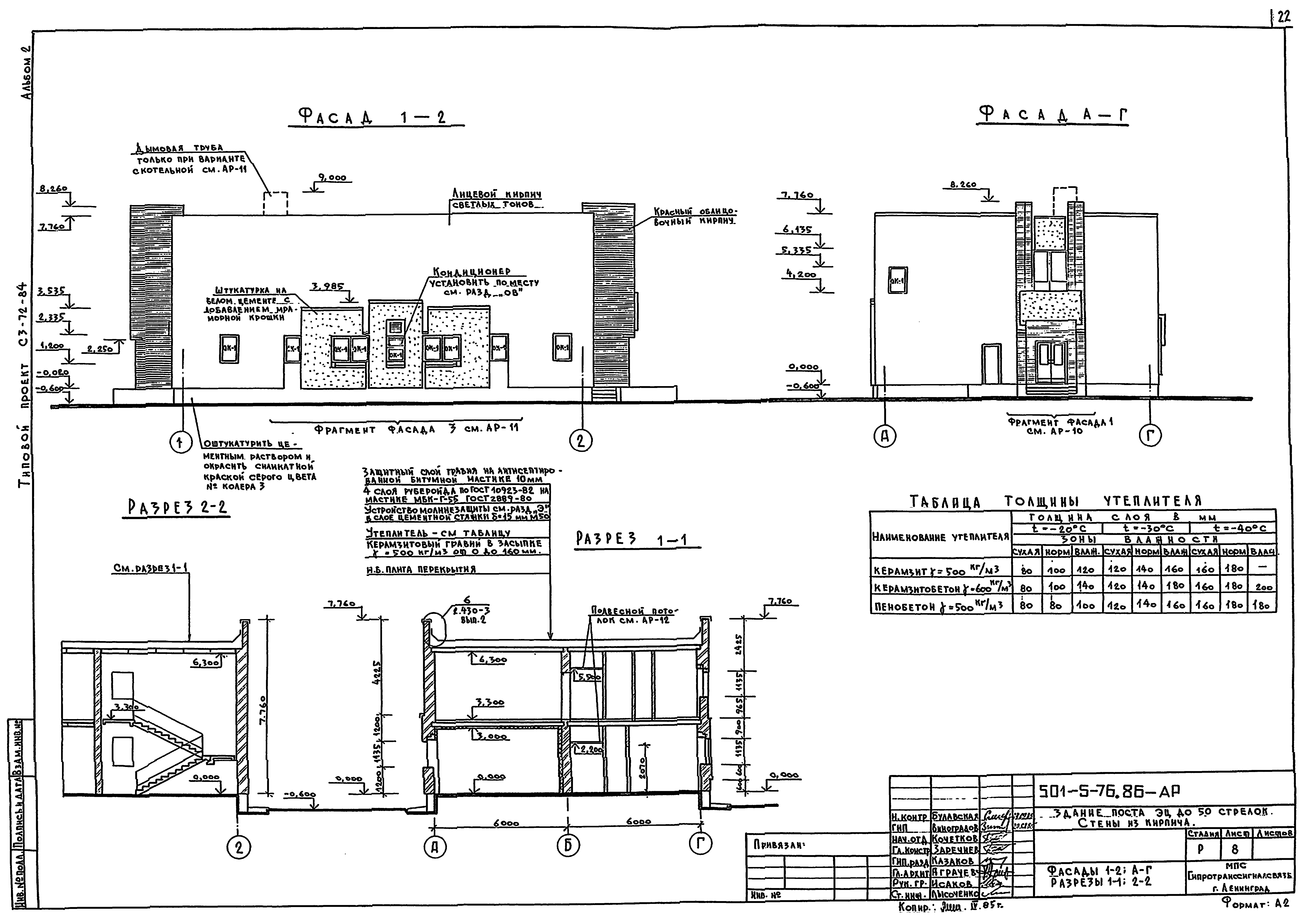
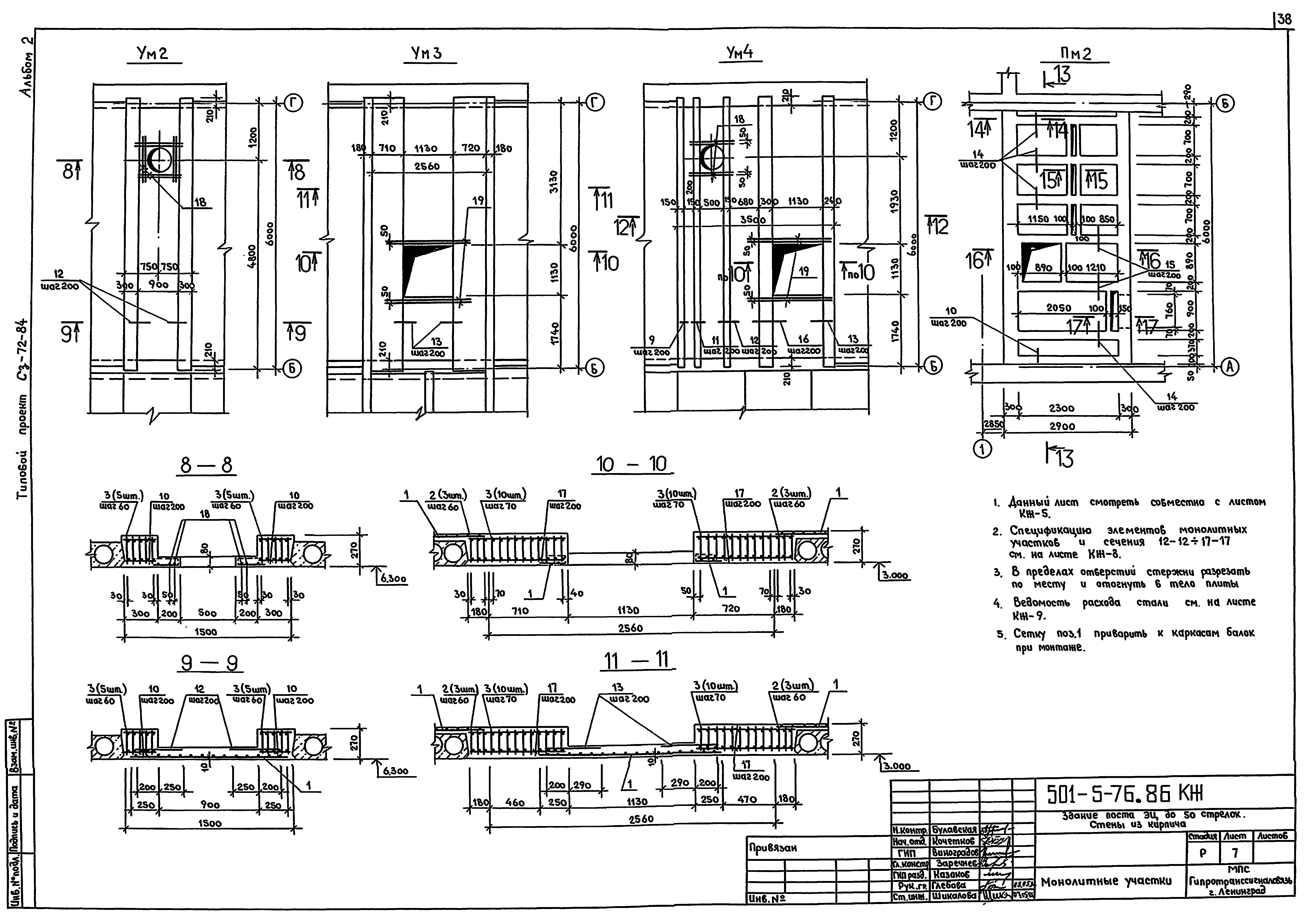
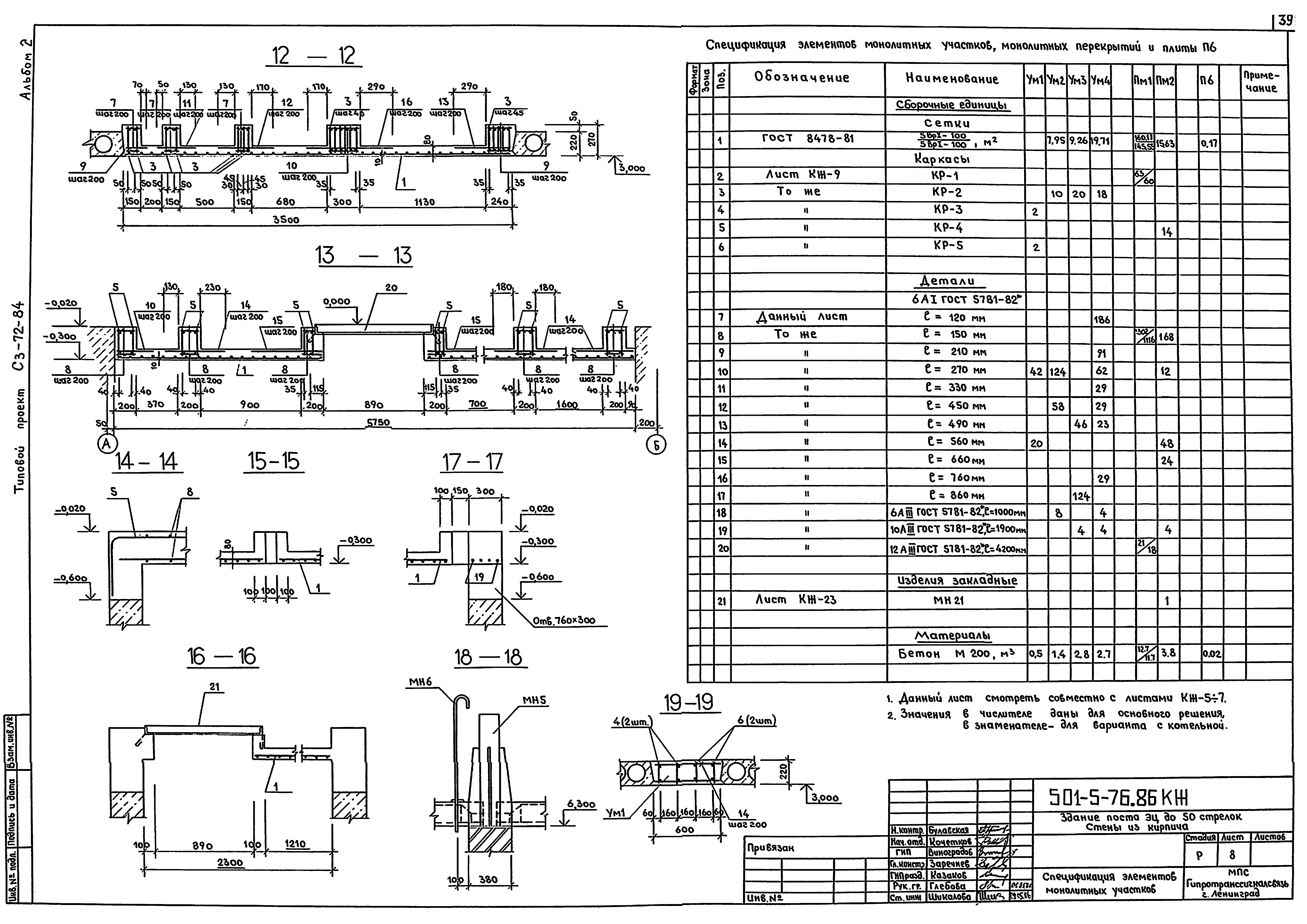
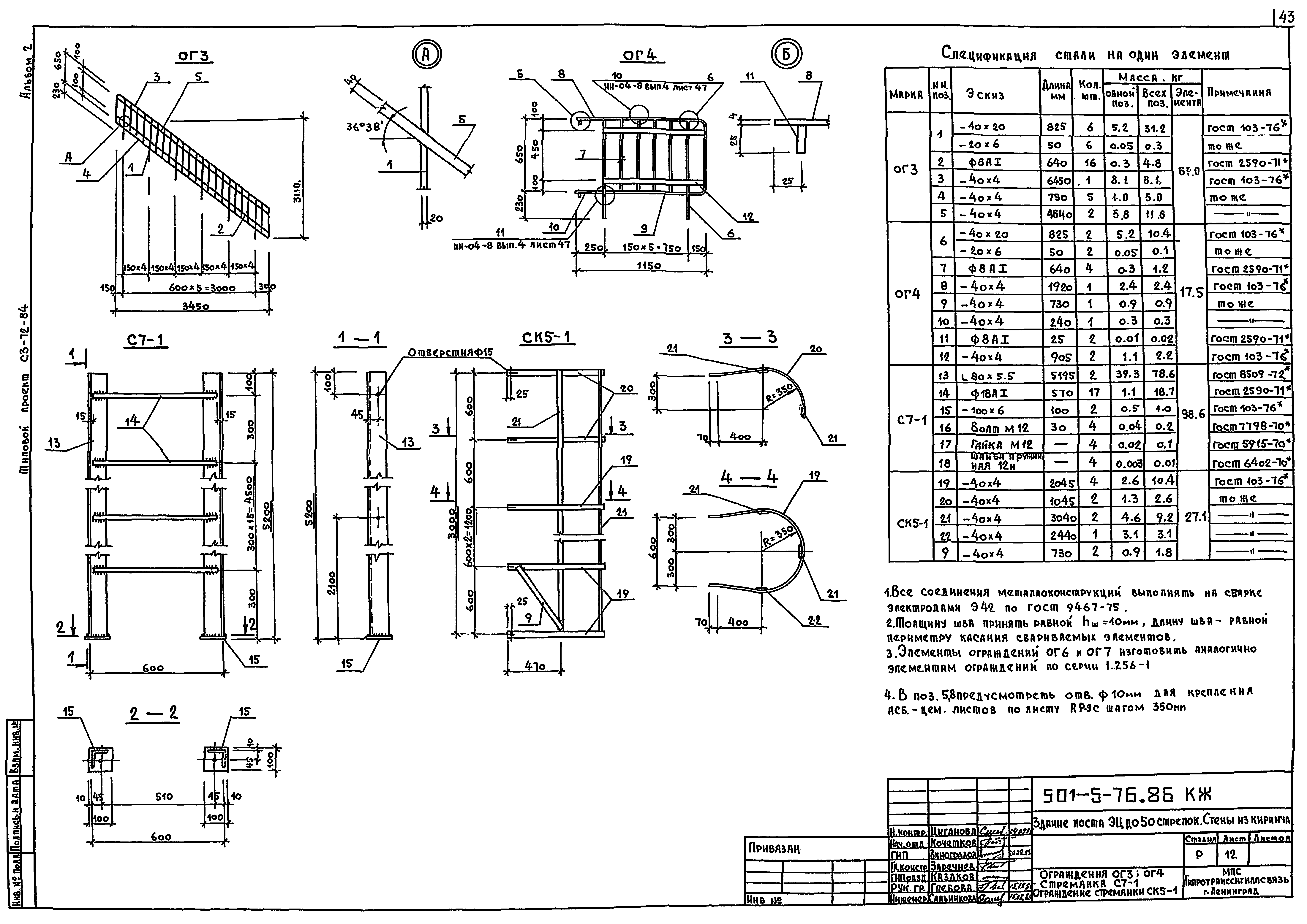
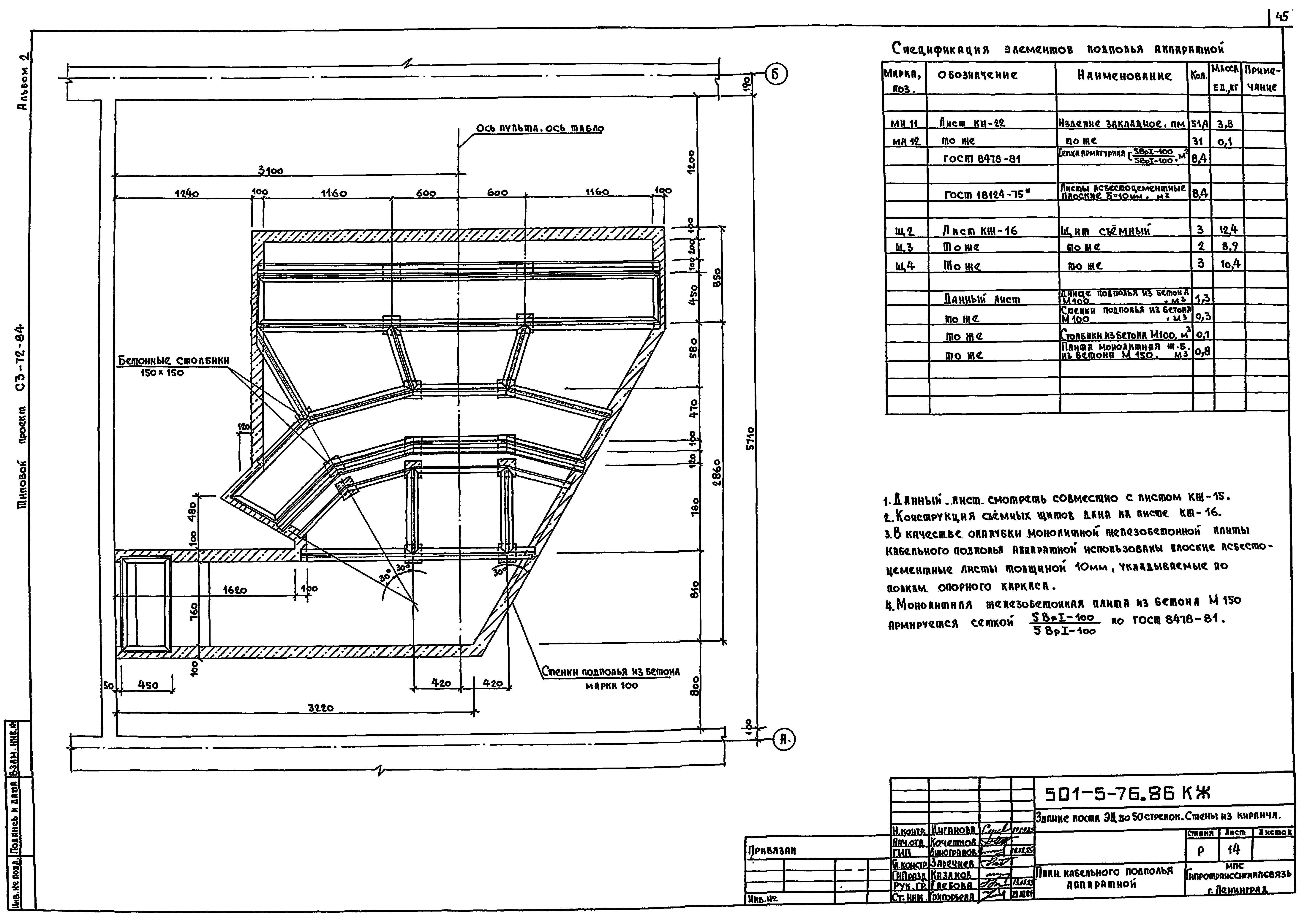
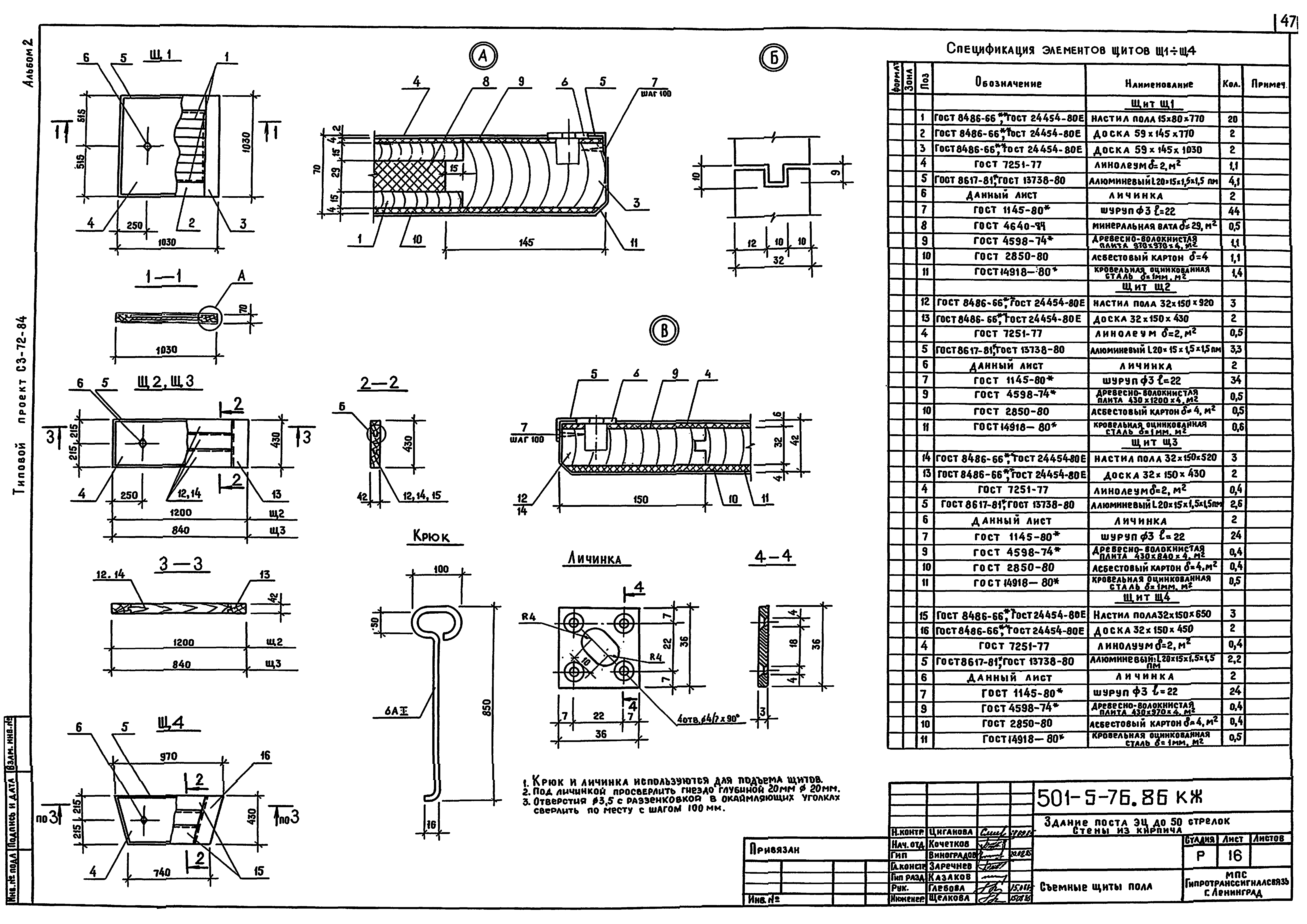
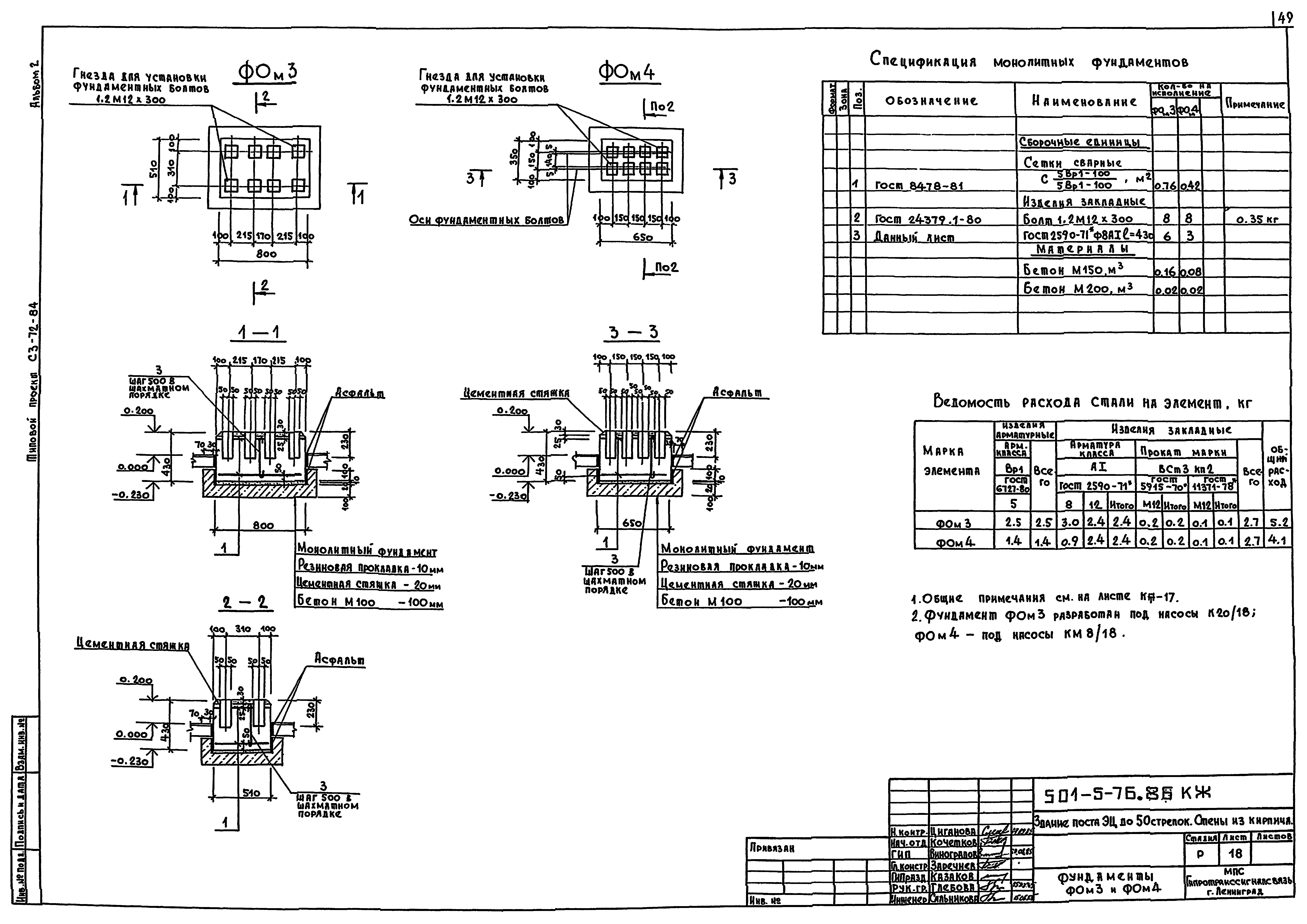
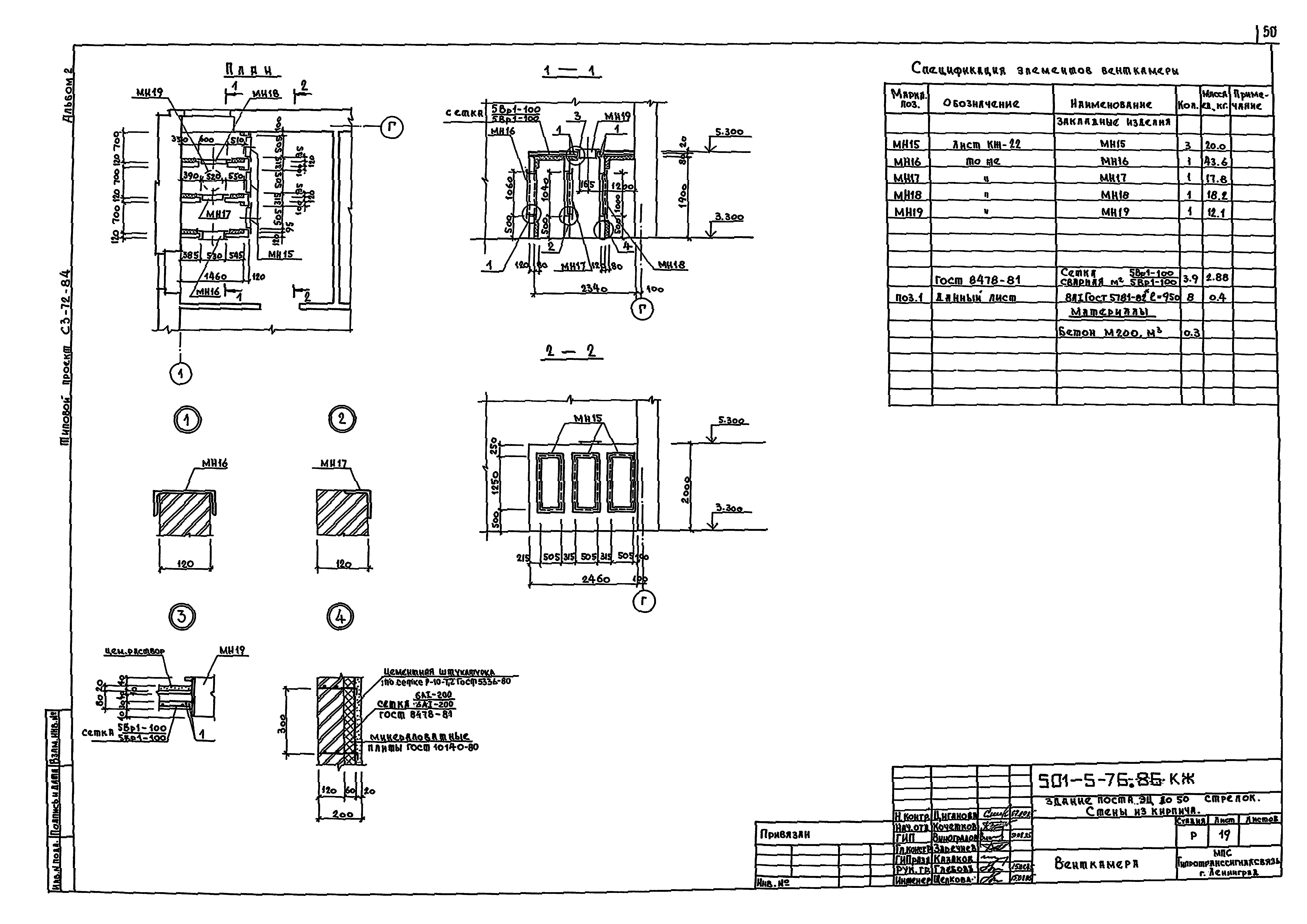
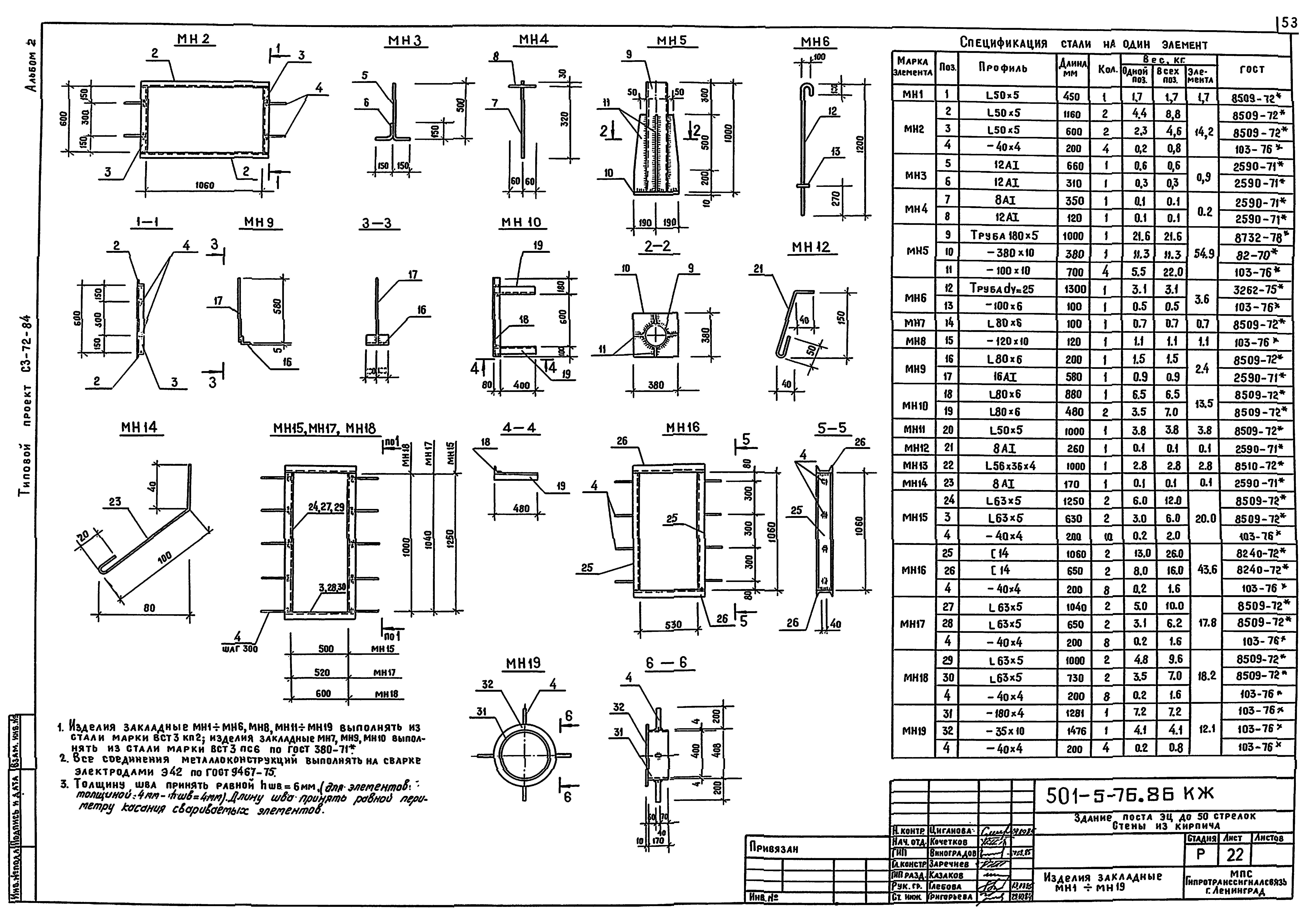
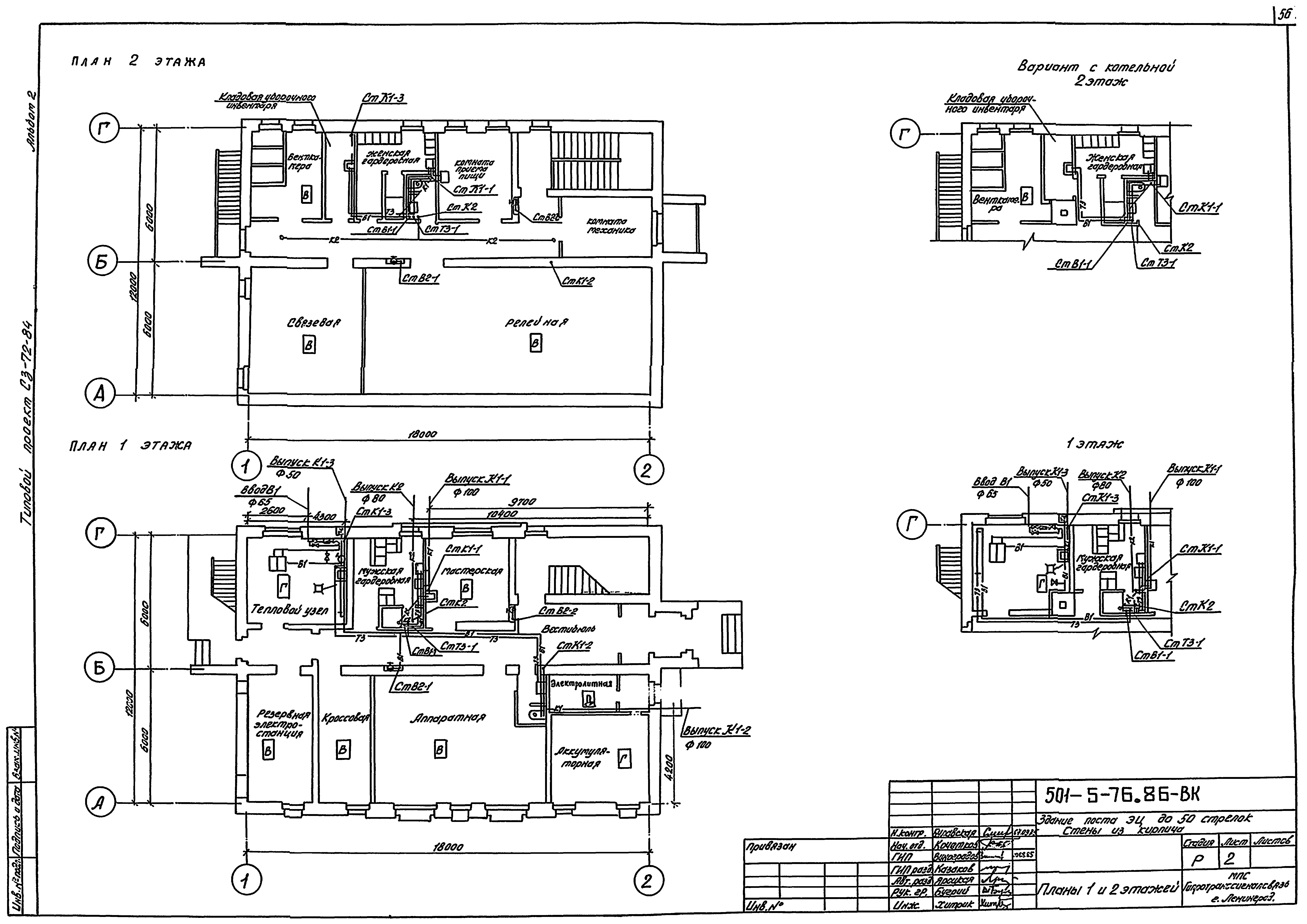
| Оглавление: | ТП 501-5-76.86 Содержание ТП 501-5-76.86-Т Технологические решения ТП 501-5-76.86-Т-1 Общие данные ТП 501-5-76.86-Т-2 Планы расположения технологического оборудования ТП 501-5-76.86-Т-3 Спецификация технологического оборудования ТП 501-5-76.86-Т-4 Расположение элементов кабельростов релейной (начало) ТП 501-5-76.86-Т-5 Расположение элементов кабельростов релейной (окончание) ТП 501-5-76.86-Т-6 Расположение элементов кабельростов связевой ТП 501-5-76.86-Т-7 Расположение элементов кабельростов кроссовой и кабельного приямка ТП 501-5-76.86-Т-8 Ведомость элементов кабельростов ТП 501-5-76.86-СС Связь и сигнализация ТП 501-5-76.86-СС-1 Общие данные ТП 501-5-76.86-СС-2 Сети связи и сигнализации. План расположения устройств на 1 и 2 этажах ТП 501-5-76.86-СС-3 Сети связи и сигнализации. Схема расположения устройств ТП 501-5-76.86-СС-4 Сети связи и сигнализации. Спецификация ТП 501-5-76.86-АР Архитектурные решения ТП 501-5-76.86-АР-1 Общие данные (начало) ТП 501-5-76.86-АР-2 Общие данные (окончание) ТП 501-5-76.86-АР-3 Схемы генплана ТП 501-5-76.86-АР-4 План 1 этажа ТП 501-5-76.86-АР-5 План 2 этажа ТП 501-5-76.86-АР-6 Развертка стены по оси Б, фрагменты планов 1,2 ТП 501-5-76.86-АР-7 Фрагменты планов 3,4,5, столярные изделия ТП 501-5-76.86-АР-8 Фасады 1-2,А-Г. Разрезы 1-1,2-2 ТП 501-5-76.86-АР-9 Фасады 2-1,Г-А ТП 501-5-76.86-АР-10 Фрагменты фасада 1,2 ТП 501-5-76.86-АР-11 Фрагмент фасада 3. Дымовая труба ТП 501-5-76.86-АР-12 План подвесных потолков 1,2 этажей. План кровли ТП 501-5-76.86-АР-13 Ведомость перемычек ТП 501-5-76.86-АР-14 Спецификации ТП 501-5-76.86-АР-15 План полов 1,2 этажей ТП 501-5-76.86-АР-16 Экспликация полов ТП 501-5-76.86-АР-17 Приточный шкаф ТП 501-5-76.86-КЖ Конструкции железобетонные ТП 501-5-76.86-КЖ-1 Общие данные ТП 501-5-76.86-КЖ-2 Схема расположения элементов фундаментов ТП 501-5-76.86-КЖ-3 Схема расположения элементов фундаментов (вариант из бутобетона) ТП 501-5-76.86-КЖ-4 Сечения ТП 501-5-76.86-КЖ-5 Схема расположения элементов перекрытия и покрытия ТП 501-5-76.86-КЖ-6 Сечения 1-1÷7-7. Плита П6 ТП 501-5-76.86-КЖ-7 Монолитные участки ТП 501-5-76.86-КЖ-8 Спецификация элементов монолитных участков ТП 501-5-76.86-КЖ-9 Каркасы КР1-КР5 ТП 501-5-76.86-КЖ-10 Схема расположения элементов лестницы ОП1 ТП 501-5-76.86-КЖ-11 Эвакуационная лестница ТП 501-5-76.86-КЖ-12 Ограждения ОГ3;ОГ4; стремянка С7-1; ограждение стремянки СК5-1 ТП 501-5-76.86-КЖ-13 План каналов 1 этажа ТП 501-5-76.86-КЖ-14 План кабельного подполья аппаратной ТП 501-5-76.86-КЖ-15 План пола аппаратной ТП 501-5-76.86-КЖ-16 Съемные щиты пола ТП 501-5-76.86-КЖ-17 Фундаменты ФОМ1 и ФОМ2 ТП 501-5-76.86-КЖ-18 Фундаменты ФОМ3 и ФОМ4 ТП 501-5-76.86-КЖ-19 Венткамера ТП 501-5-76.86-КЖ-20 Сетчатое ограждение ОГ5 ТП 501-5-76.86-КЖ-21 Люфт-клозет ТП 501-5-76.86-КЖ-22 Изделия закладные МН1-МН19 ТП 501-5-76.86-КЖ-23 Изделия закладные МН20,МН21. Изделия соединительные МС1-МС6. Монорельс МР-2Т. Трубы Т5,Т8-Т16 ТП 501-5-76.86-ВК Внутренние водопровод и канализация ТП 501-5-76.86-ВК-1 Общие данные ТП 501-5-76.86-ВК-2 Планы 1 и 2 этажей ТП 501-5-76.86-ВК-3 Схемы систем В1,Т3,К1,К2 ТП 501-5-76.86-ОВ Отопление и вентиляция ТП 501-5-76.86-ОВ-1 Общие данные (начало) ТП 501-5-76.86-ОВ-2 Общие данные (окончание) ТП 501-5-76.86-ОВ-3 Отопление. Планы 1 и 2 этажей ТП 501-5-76.86-ОВ-4 Отопление. Схемы. Распределительная гребенка ТП 501-5-76.86-ОВ-5 Теплоснабжение. Котельная. План. Разрезы. Схема трубопроводов ТП 501-5-76.86-ОВ-6 Теплоснабжение. Тепловой узел. План. Разрез. Схема трубопроводов ТП 501-5-76.86-ОВ-7 Изоляция холстом стекловолокнистыми жгутами или шнурами трубопроводов d=14-108 мм ТП 501-5-76.86-ОВ-8 Изоляция цилиндрами из минеральной ваты на синтетическом связующем трубопроводов d=45-273 мм ТП 501-5-76.86-ОВ-9 Вентиляция. План 1 и 2 этажей ТП 501-5-76.86-ОВ-10 Вентиляция. Схемы ТП 501-5-76.86-ОВ-11 Вентиляция. Венткамера. План. Разрезы. Спецификация |
| Разработан: | Гипротранссигналсвязь |
| Утверждён: | 26.06.1986 Министерство путей сообщения СССР (USSR Ministry of Railroads Д-19496) |




































































