Скачать Типовой проект 501-5-76.86 Альбом 3. Электроснабжение. Электрическое освещение. Силовое электрооборудование. Автоматизация отопления и вентиляцииДата актуализации: 01.01.2021
|
| Обозначение: | Типовой проект 501-5-76.86 |
| Обозначение англ: | 501-5-76.86 |
| Статус: | не определен законодательством |
| Название рус.: | Альбом 3. Электроснабжение. Электрическое освещение. Силовое электрооборудование. Автоматизация отопления и вентиляции |
| Дата добавления в базу: | 01.09.2013 |
| Дата актуализации: | 01.01.2021 |
| Дата введения: | 01.01.1987 |
| Дата окончания срока действия: | 30.06.2003 |
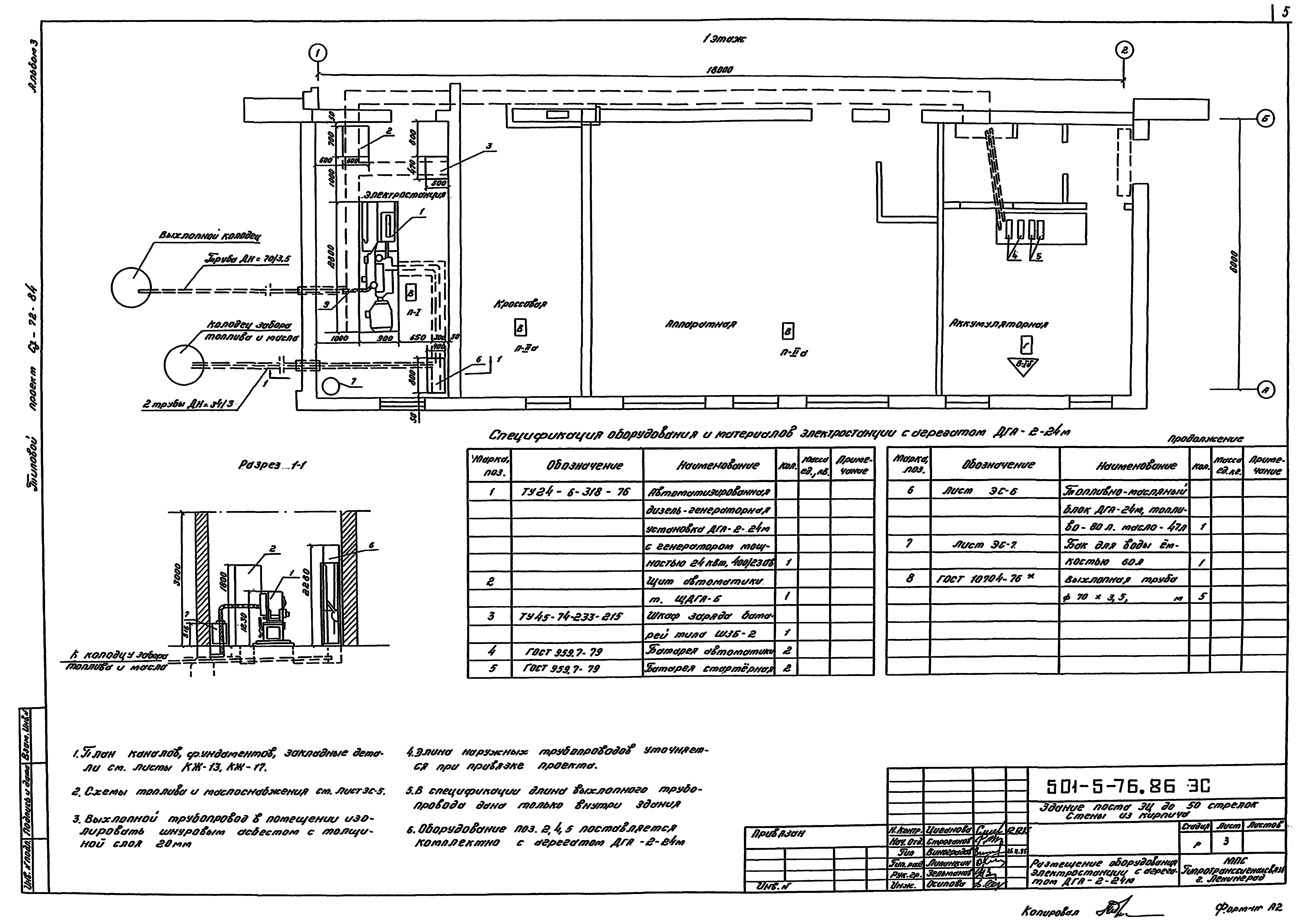
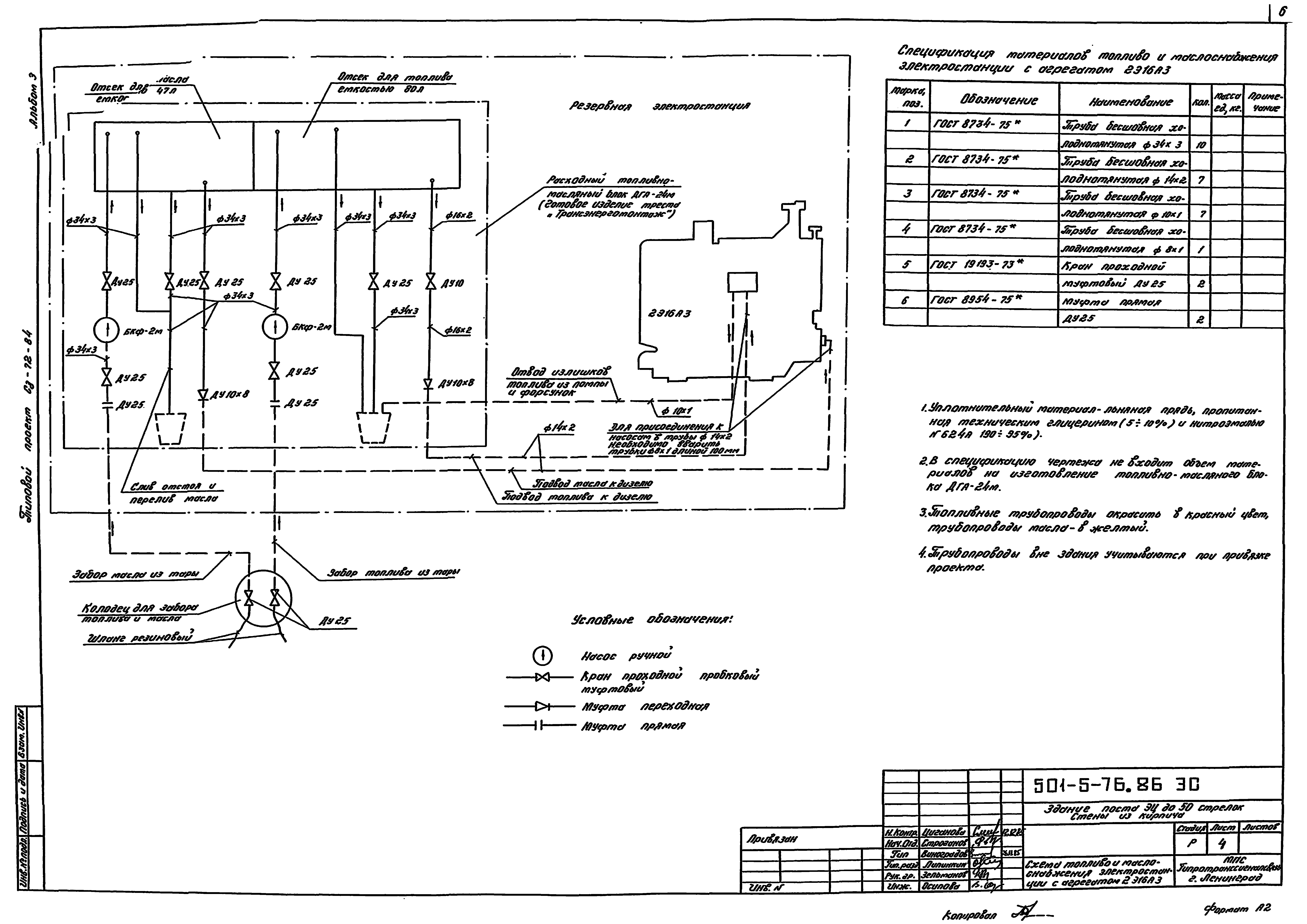
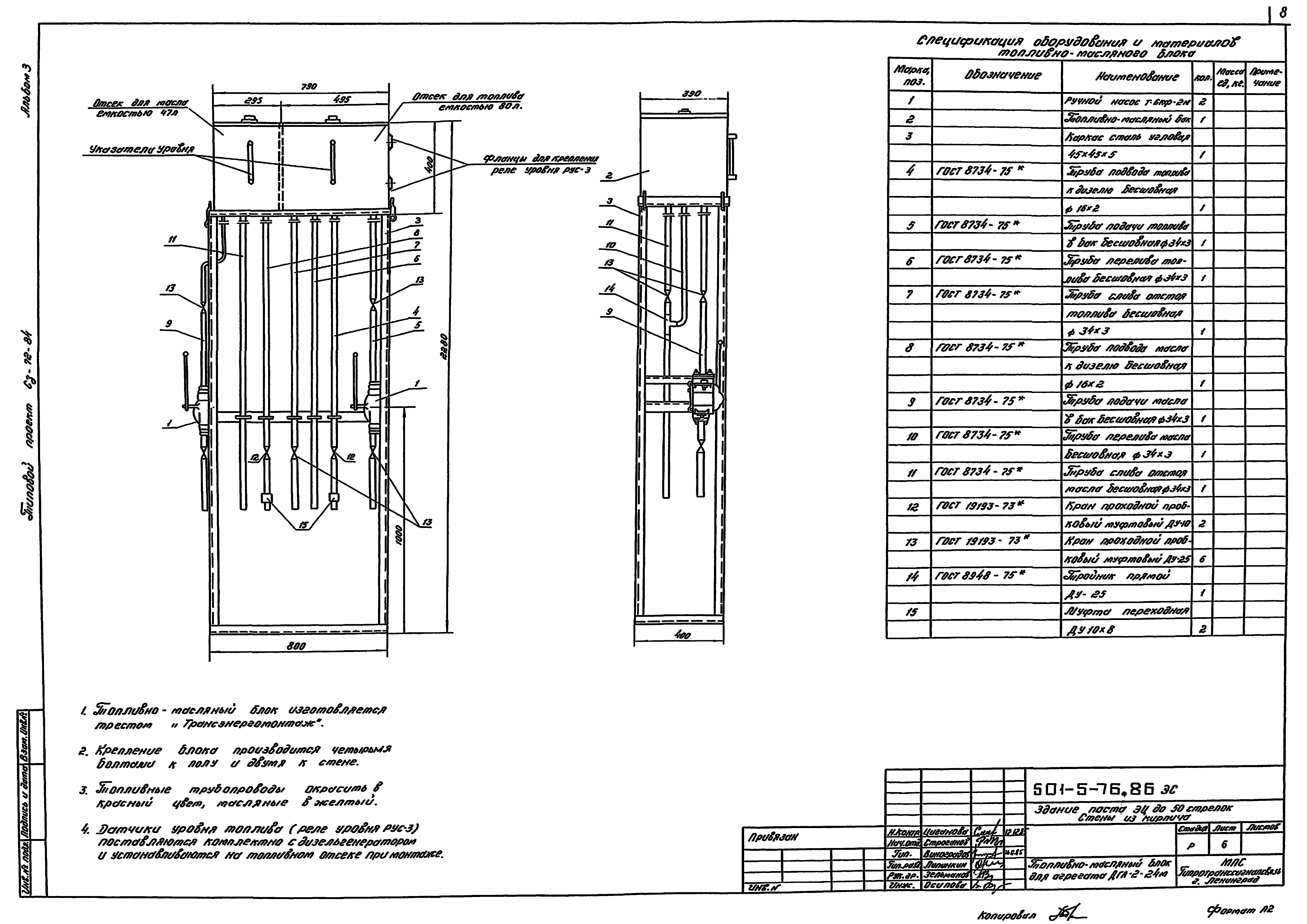
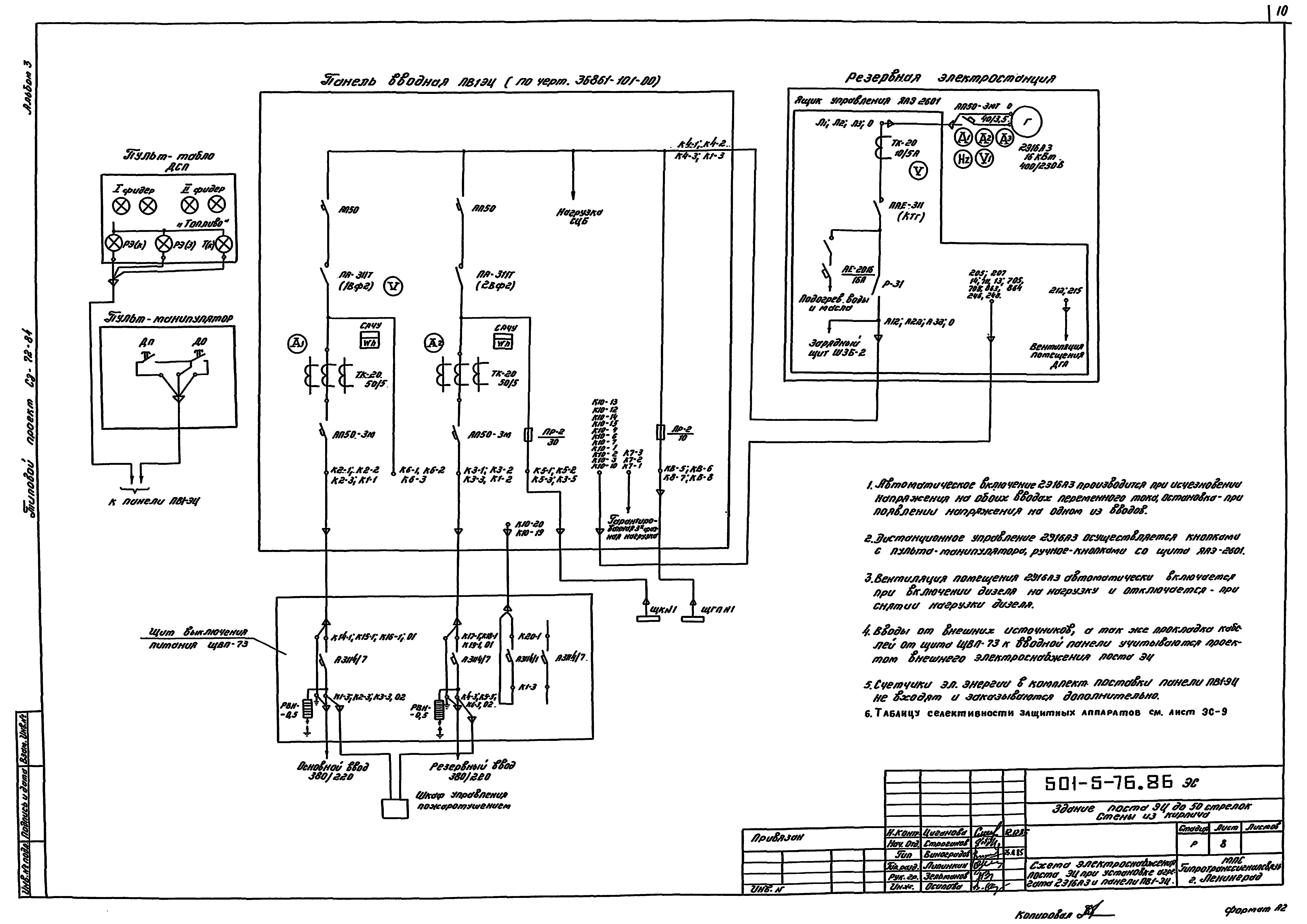
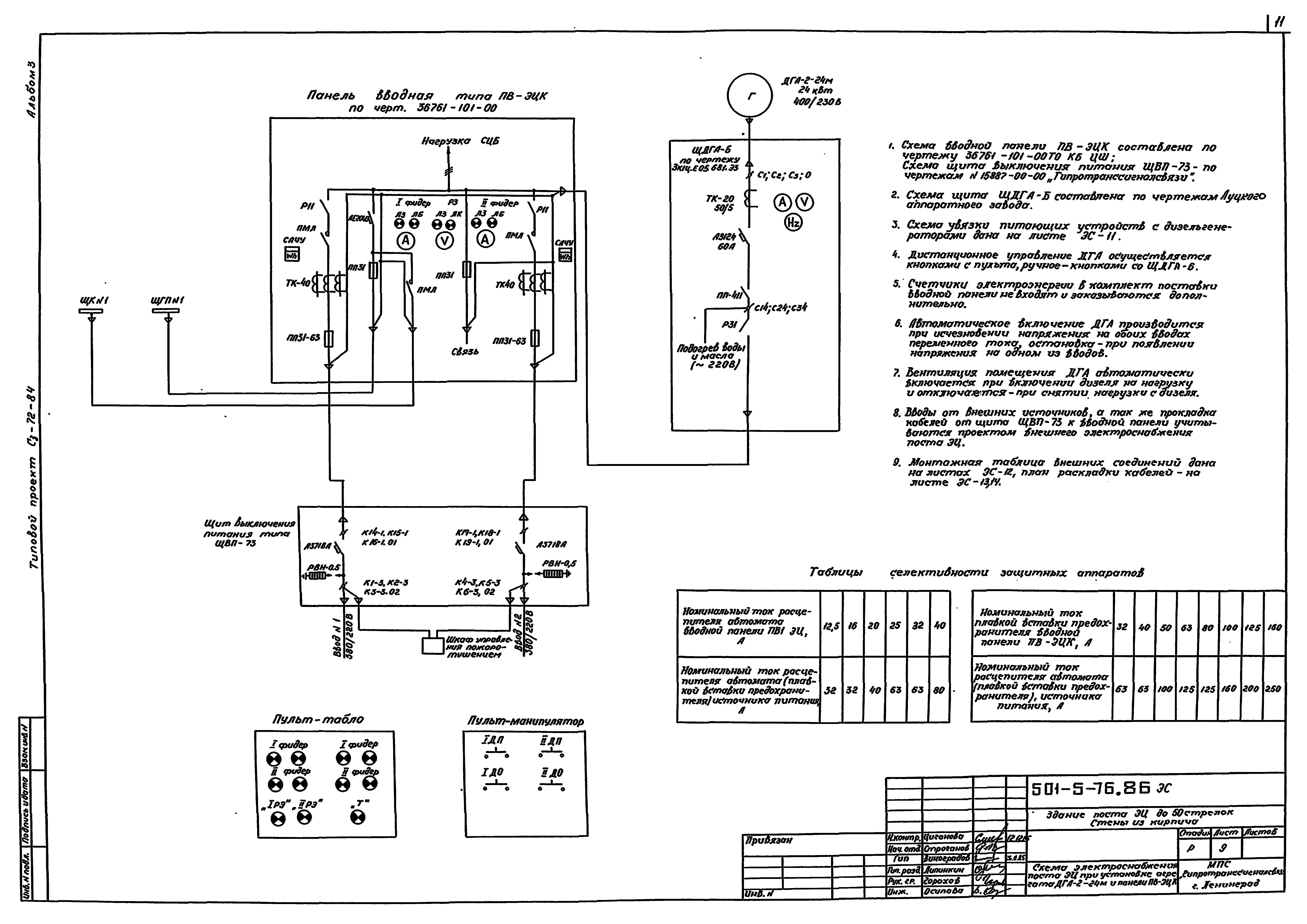
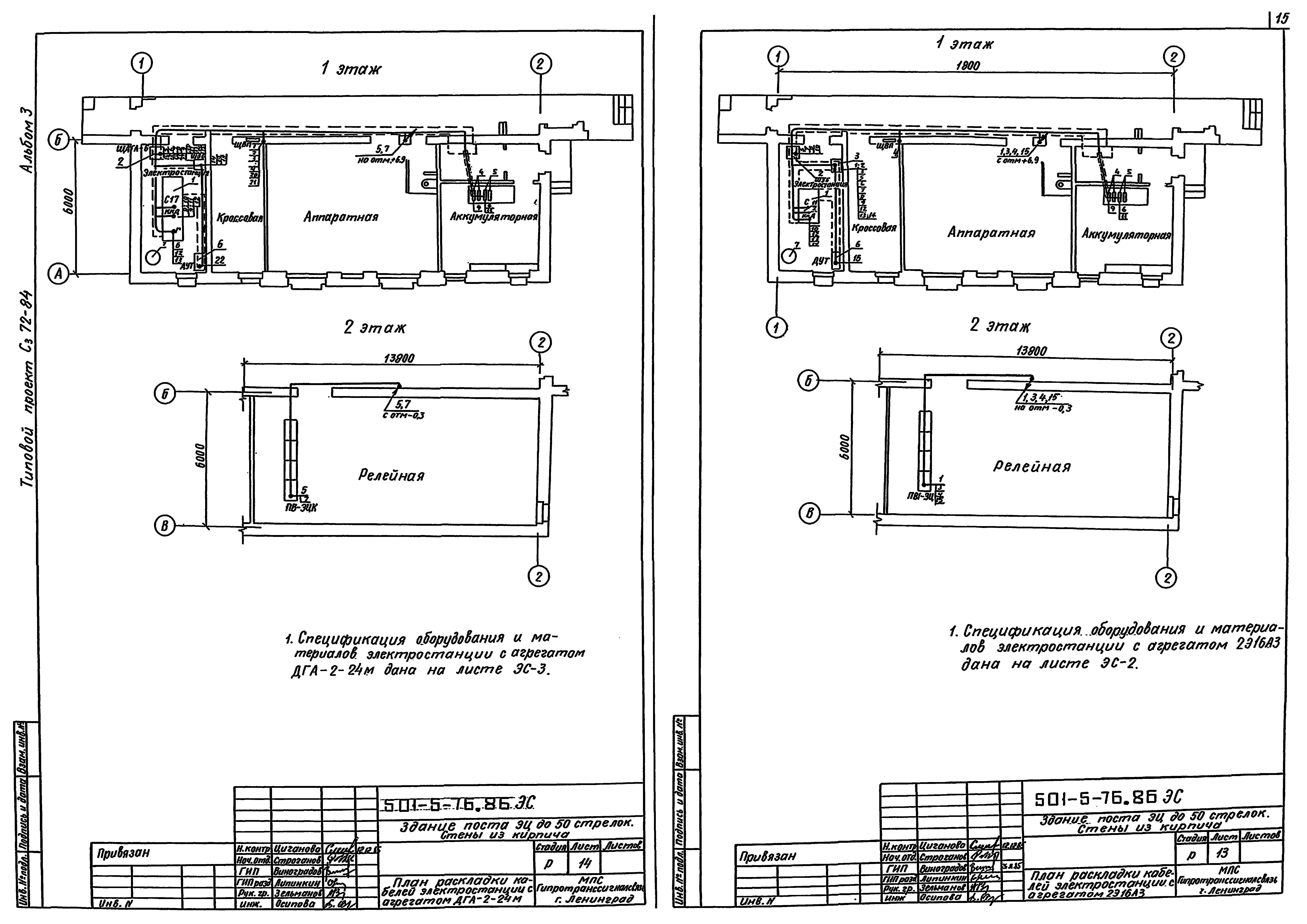
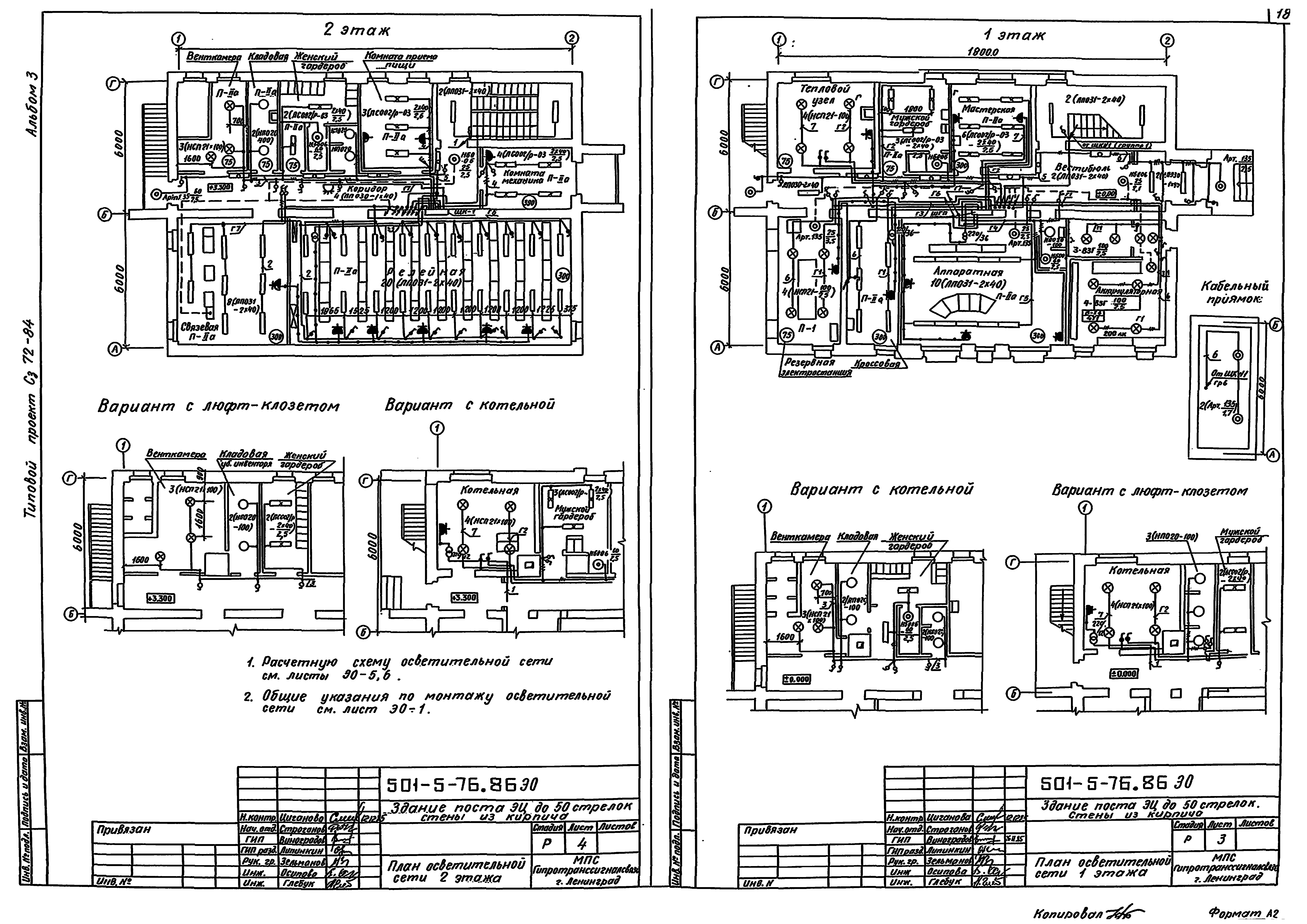
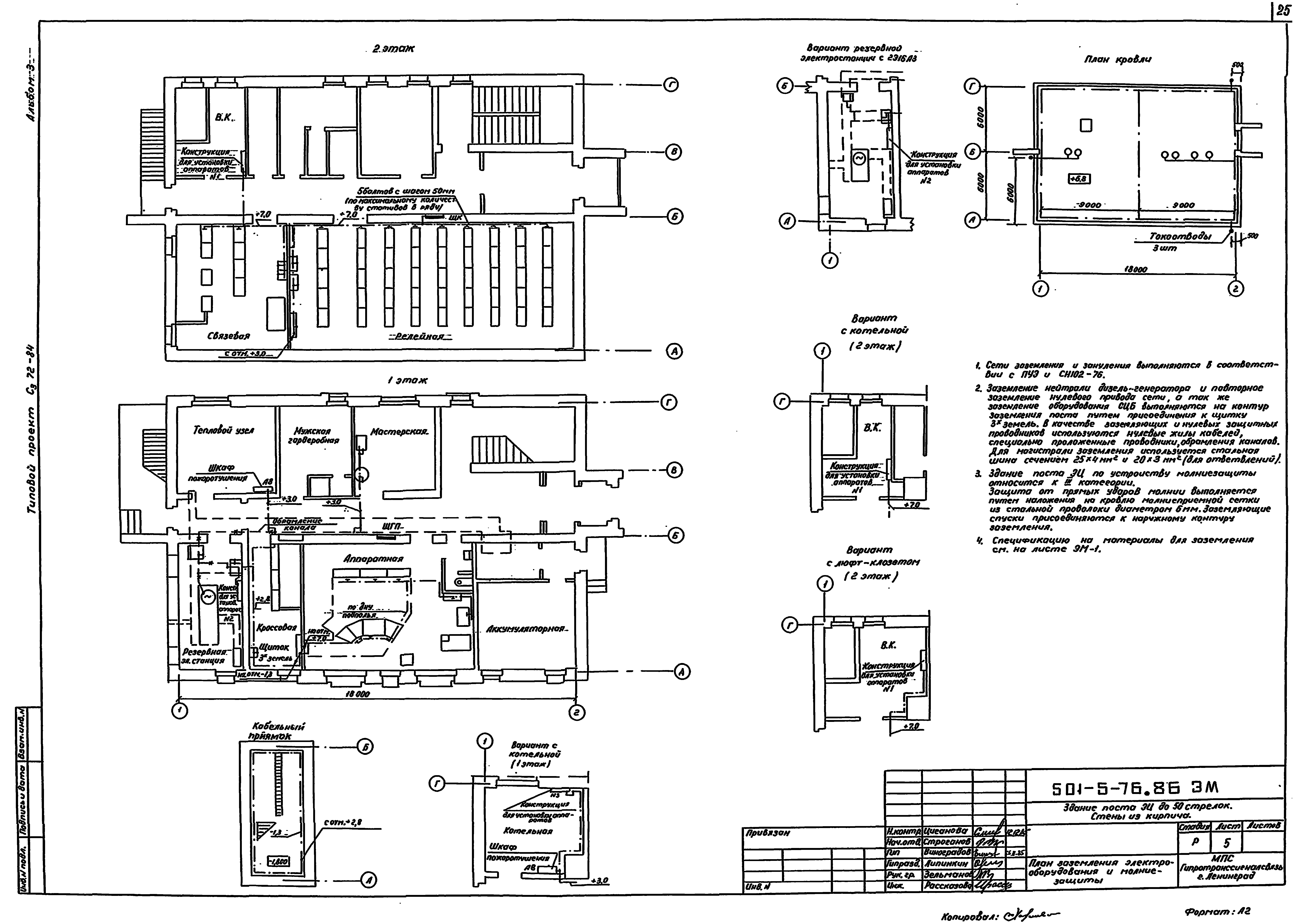
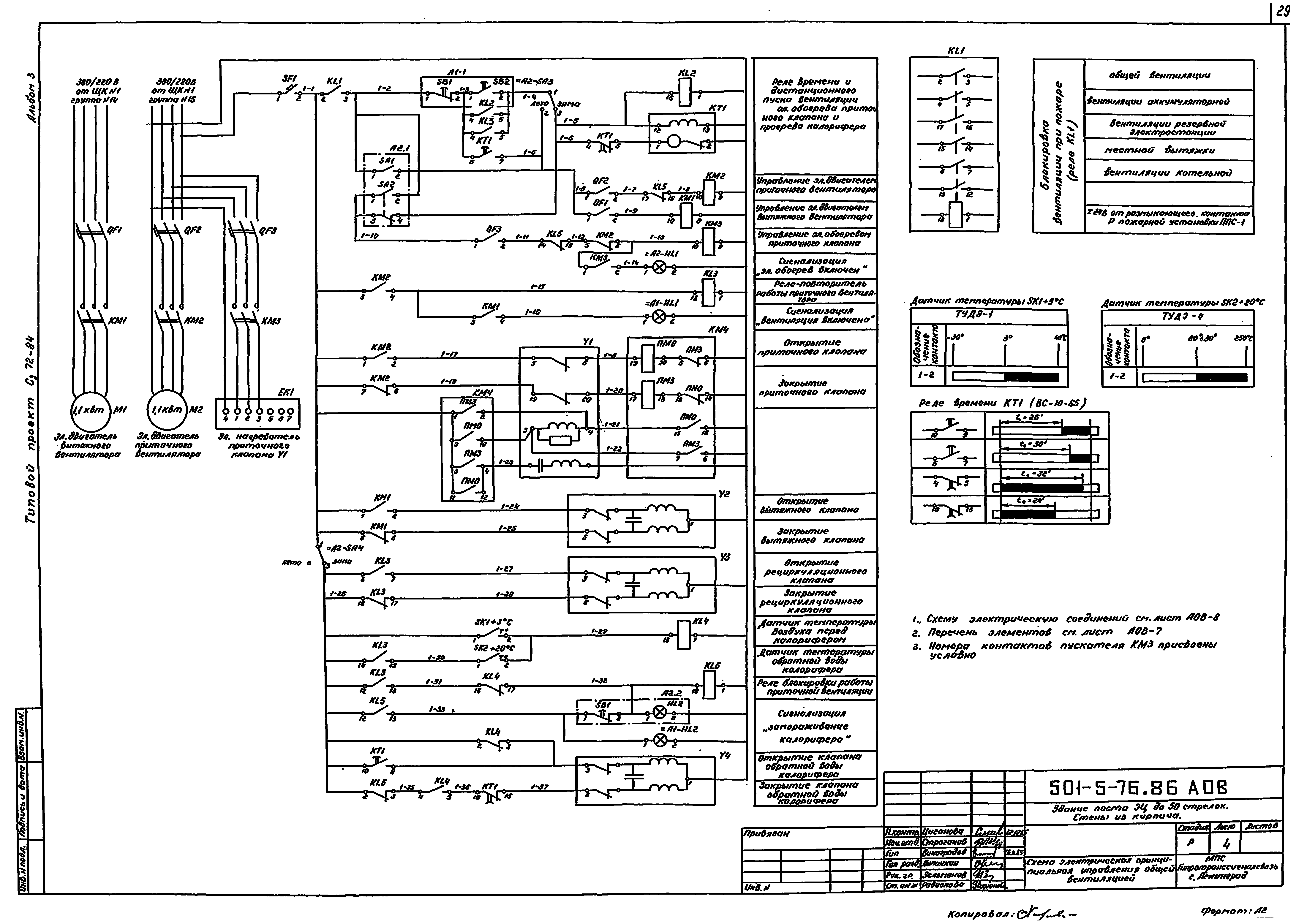
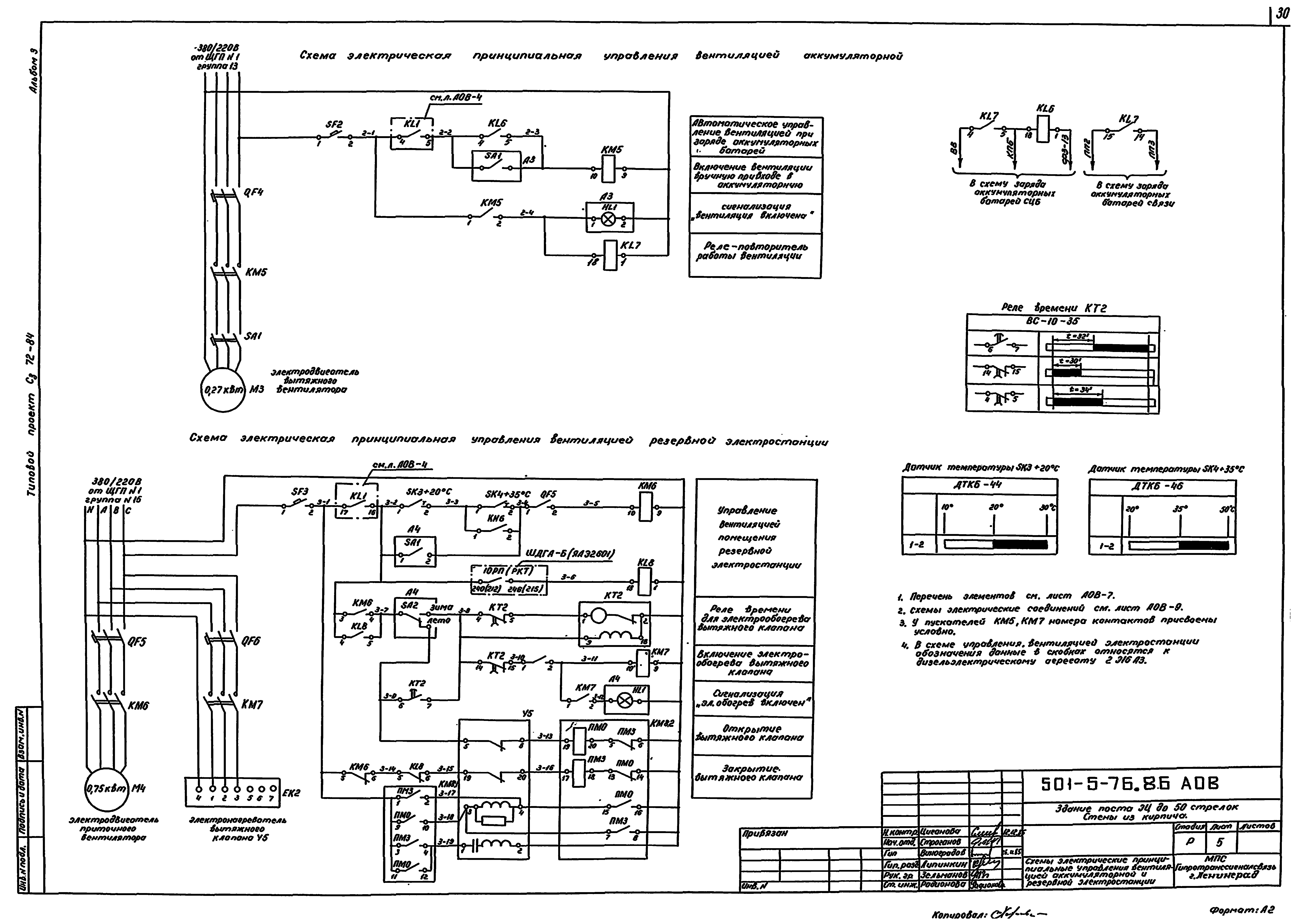
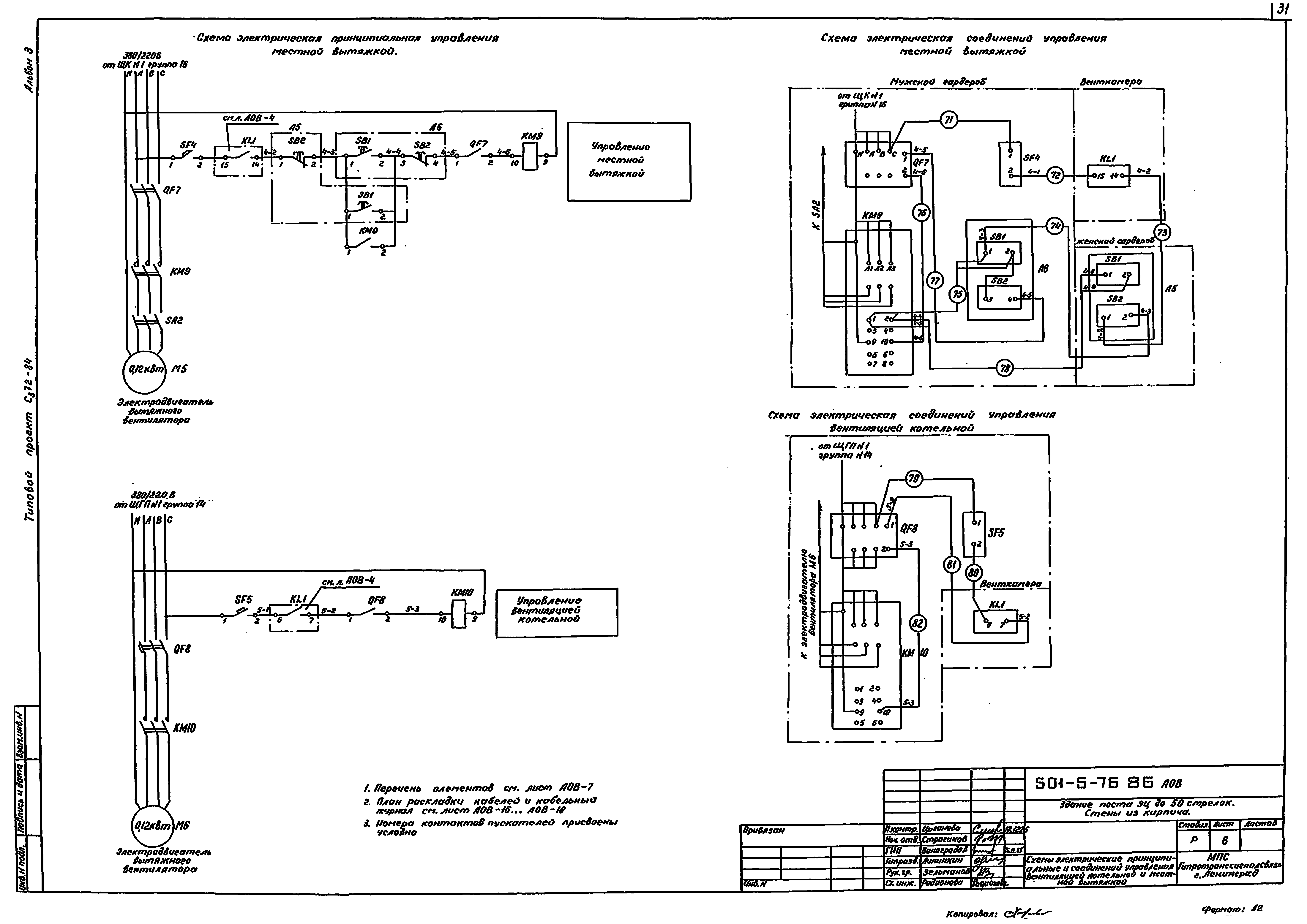
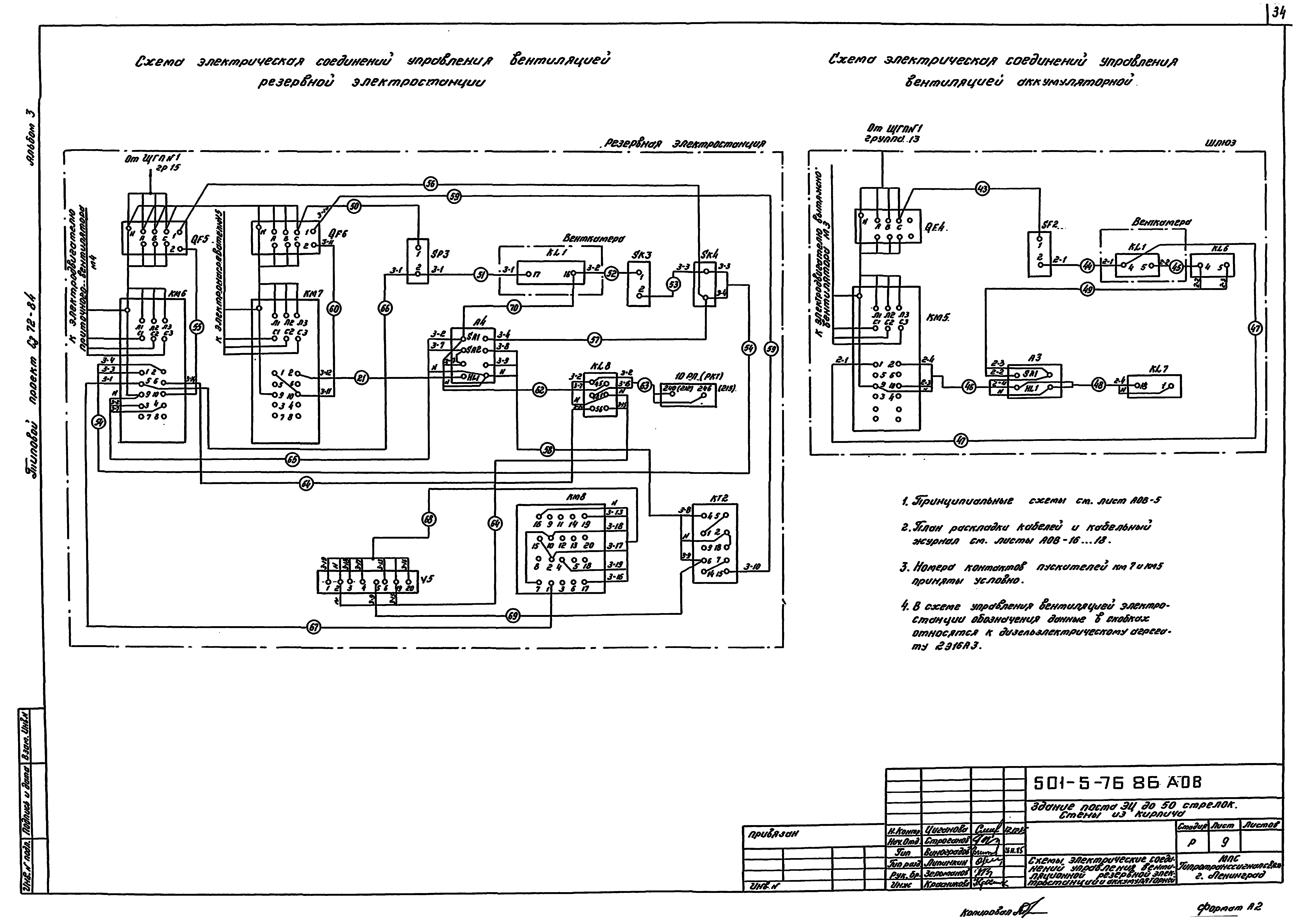
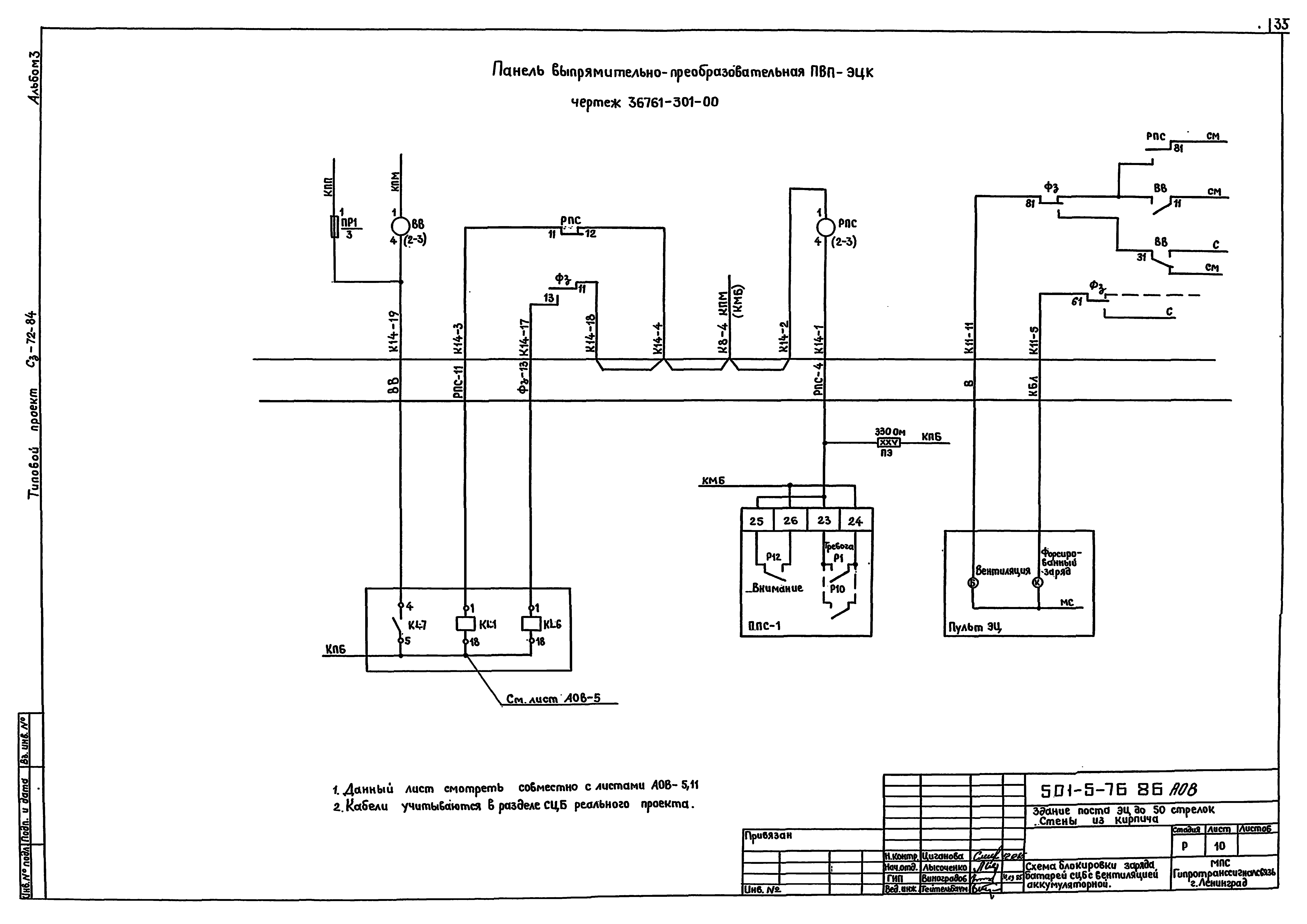
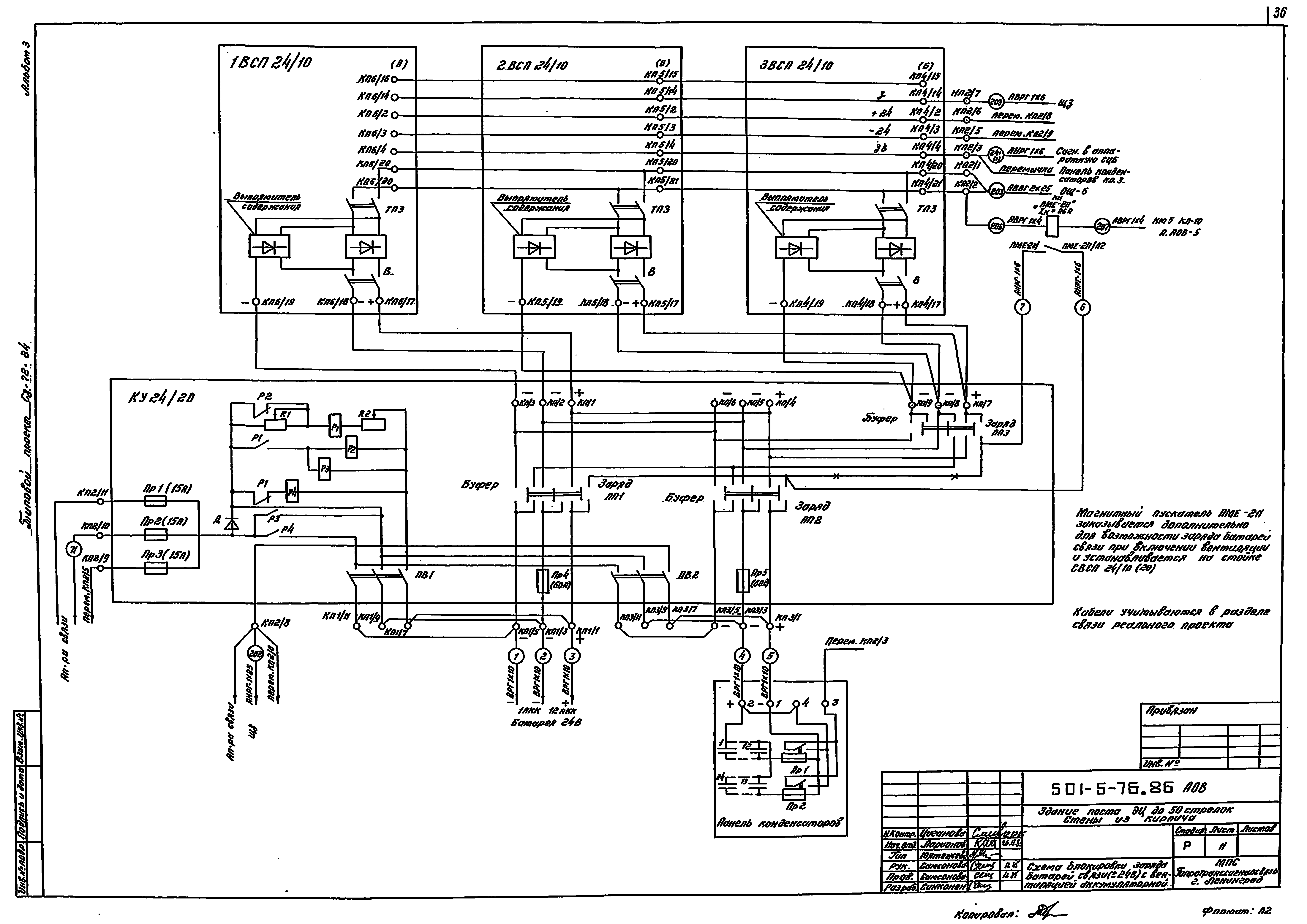
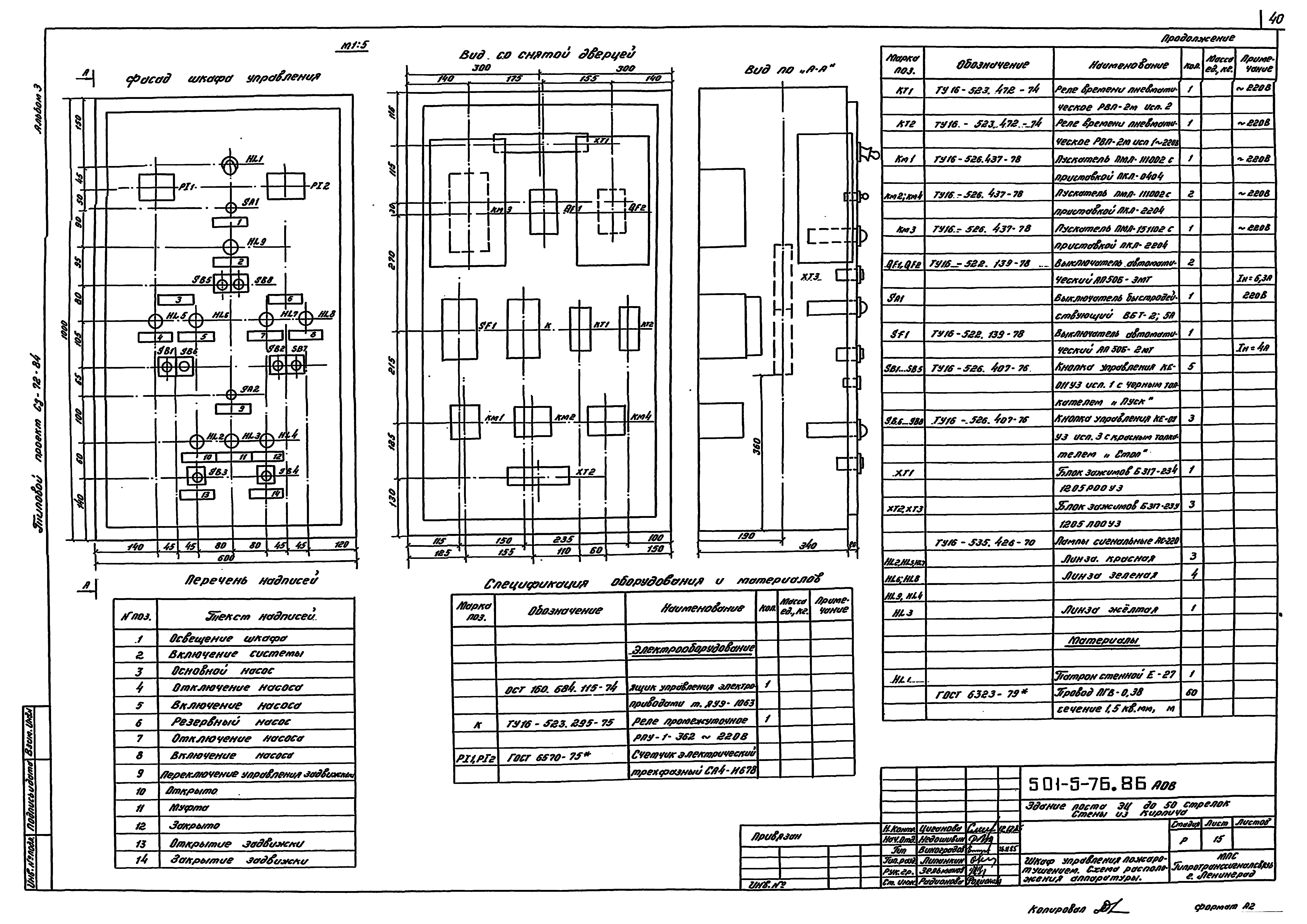
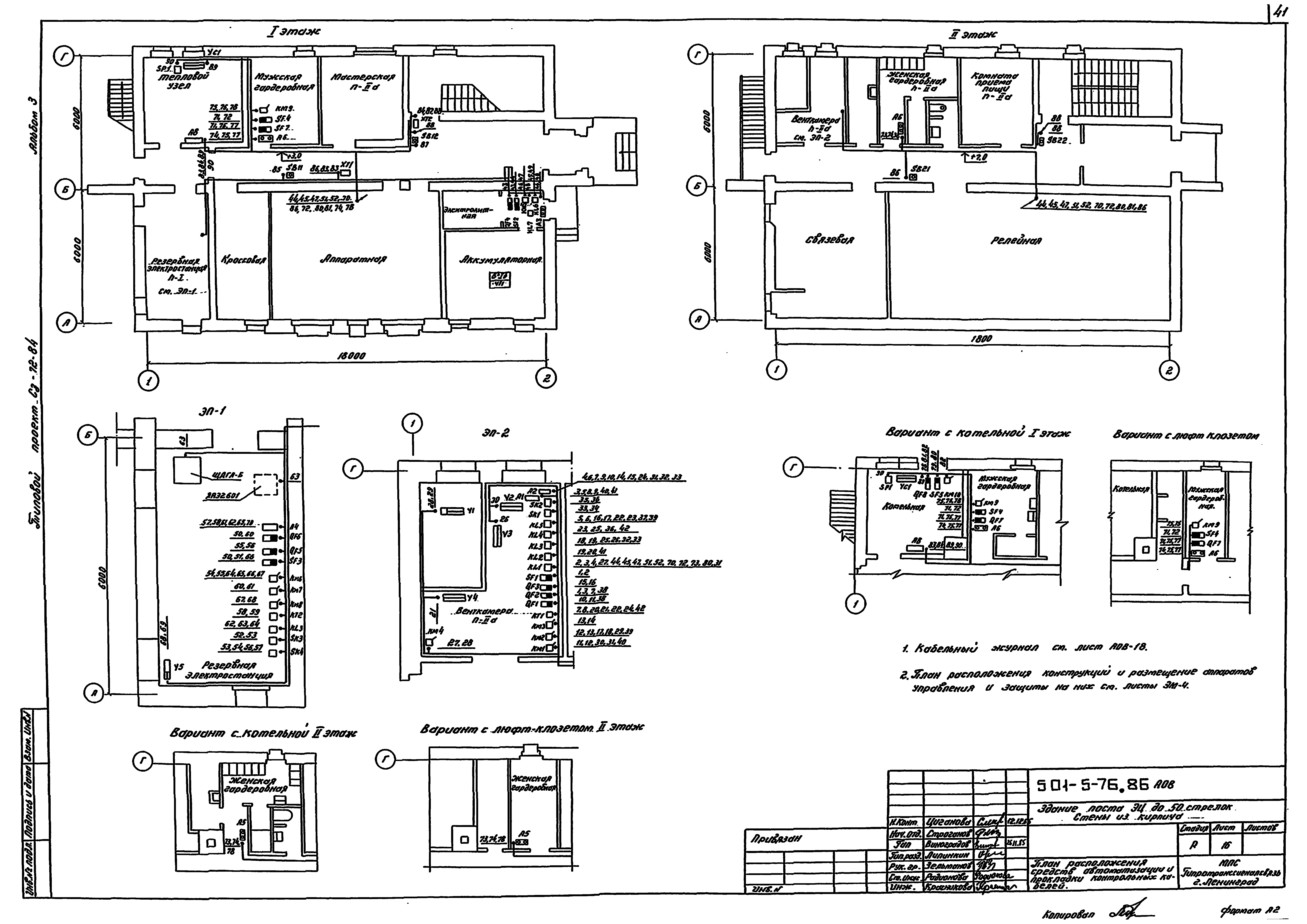
| Оглавление: | ТП 501-5-76.86 Содержание ТП 501-5-76.86-ЭС Электроснабжение ТП 501-5-76.86-ЭС-1 Общие данные ТП 501-5-76.86-ЭС-2 Размещение оборудования электростанции с агрегатом 2Э16А3 ТП 501-5-76.86-ЭС-3 Размещение оборудования электростанции с агрегатом ДГА-2-24м ТП 501-5-76.86-ЭС-4 Схема топливо и маслоснабжения электростанции с агрегатом 2Э16А3 ТП 501-5-76.86-ЭС-5 Схема топливо и маслоснабжения электростанции с агрегатом ДГА-2-24м ТП 501-5-76.86-ЭС-6 Топливо-масляный блок для агрегата ДГА-2-24м ТП 501-5-76.86-ЭС-7 Бак для воды емкостью 60 л ТП 501-5-76.86-ЭС-8 Схема электроснабжения поста ЭЦ при установке агрегата 2Э16А3 и панели ПВ1-ЭЦ ТП 501-5-76.86-ЭС-9 Схема электроснабжения поста ЭЦ при установке агрегата ДГА-2-24м и панели ПВ1-ЭЦК ТП 501-5-76.86-ЭС-10 Схема увязки и таблица электрических соединений при установке агрегата 2Э16А3 и панели ПВ1-ЭЦ ТП 501-5-76.86-ЭС-11 Схема увязки питающих устройств при установке агрегата ДГА-2-24м и панели ПВ-ЭЦК ТП 501-5-76.86-ЭС-12 Таблица электрических соединений при установке агрегата ДГА-2-24м и панели ПВ-ЭЦК ТП 501-5-76.86-ЭС-13 План раскладки кабелей электростанции с агрегатом 2Э16А3 ТП 501-5-76.86-ЭС-14 План раскладки кабелей электростанции с агрегатом ДГА-2-24м ТП 501-5-76.86-ЭО Электрическое освещение ТП 501-5-76.86-ЭО-1 Общие данные ТП 501-5-76.86-ЭО-2 Спецификация оборудования и материалов ТП 501-5-76.86-ЭО-3 План осветительной сети 1 этажа ТП 501-5-76.86-ЭО-4 План осветительной сети 2 этажа ТП 501-5-76.86-ЭО-5 Расчетная схема гарантированного питания ТП 501-5-76.86-ЭО-6 Расчетная схема негарантированного питания ТП 501-5-76.86-ЭМ Силовое электрооборудование ТП 501-5-76.86-ЭМ-1 Общие данные ТП 501-5-76.86-ЭМ-2 План силовой сети ТП 501-5-76.86-ЭМ-3 Кабельный журнал ТП 501-5-76.86-ЭМ-4 Конструкция для установки аппаратов управления и защиты ТП 501-5-76.86-ЭМ-5 План заземления электрооборудования и молниезащиты ТП 501-5-76.86-АОВ Автоматизация отопления и вентиляции ТП 501-5-76.86-АОВ-1 Общие данные ТП 501-5-76.86-АОВ-2 Спецификация оборудования и материалов ТП 501-5-76.86-АОВ-3 Функциональные схемы управления вентиляцией ТП 501-5-76.86-АОВ-4 Схема электрическая принципиальная управления общей вентиляцией ТП 501-5-76.86-АОВ-5 Схема электрическая принципиальная управления вентиляцией аккумуляторной и резервной электростанции ТП 501-5-76.86-АОВ-6 Схема электрическая принципиальная и соединений управления вентиляцией котельной и местной вытяжкой ТП 501-5-76.86-АОВ-7 Перечень элементов схем управления вентиляцией ТП 501-5-76.86-АОВ-8 Схема электрическая соединений управления общей вентиляцией ТП 501-5-76.86-АОВ-9 Схемы электрические соединений управления вентиляцией резервной электростанции и аккумуляторной ТП 501-5-76.86-АОВ-10 Схема блокировки заряда батарей СЦБ с вентиляцией аккумуляторной ТП 501-5-76.86-АОВ-11 Схема блокировки заряда батарей связи (±246) с вентиляцией аккумуляторной ТП 501-5-76.86-АОВ-12 Схема электрическая принципиальная системы пожаротушения ТП 501-5-76.86-АОВ-13 Схема электрическая соединений системы пожаротушения ТП 501-5-76.86-АОВ-14 Шкаф управления пожаротушение. Схема электрическая соединений ТП 501-5-76.86-АОВ-15 Шкаф управления пожаротушение. Схема расположения аппаратуры ТП 501-5-76.86-АОВ-16 План расположения средств автоматизации и прокладки контрольных кабелей ТП 501-5-76.86-АОВ-17 Кабельный журнал ТП 501-5-76.86-АОВ-18 Установка кнопки серии КЕ в стене |
| Разработан: | Гипротранссигналсвязь |
| Утверждён: | 26.06.1986 Министерство путей сообщения СССР (USSR Ministry of Railroads Д-19496) |











































