Скачать Типовой проект 903-2-34.90 Альбом 9. Силовое электрооборудование. Внутреннее освещение. Связь и сигнализация (из ТП 903-2-30.90)Дата актуализации: 01.01.2021
|
| Обозначение: | Типовой проект 903-2-34.90 |
| Обозначение англ: | 903-2-34.90 |
| Статус: | не определен законодательством |
| Название рус.: | Альбом 9. Силовое электрооборудование. Внутреннее освещение. Связь и сигнализация (из ТП 903-2-30.90) |
| Дата добавления в базу: | 01.09.2013 |
| Дата актуализации: | 01.01.2021 |
| Дата введения: | 01.04.1991 |
| Дата окончания срока действия: | 30.06.2003 |
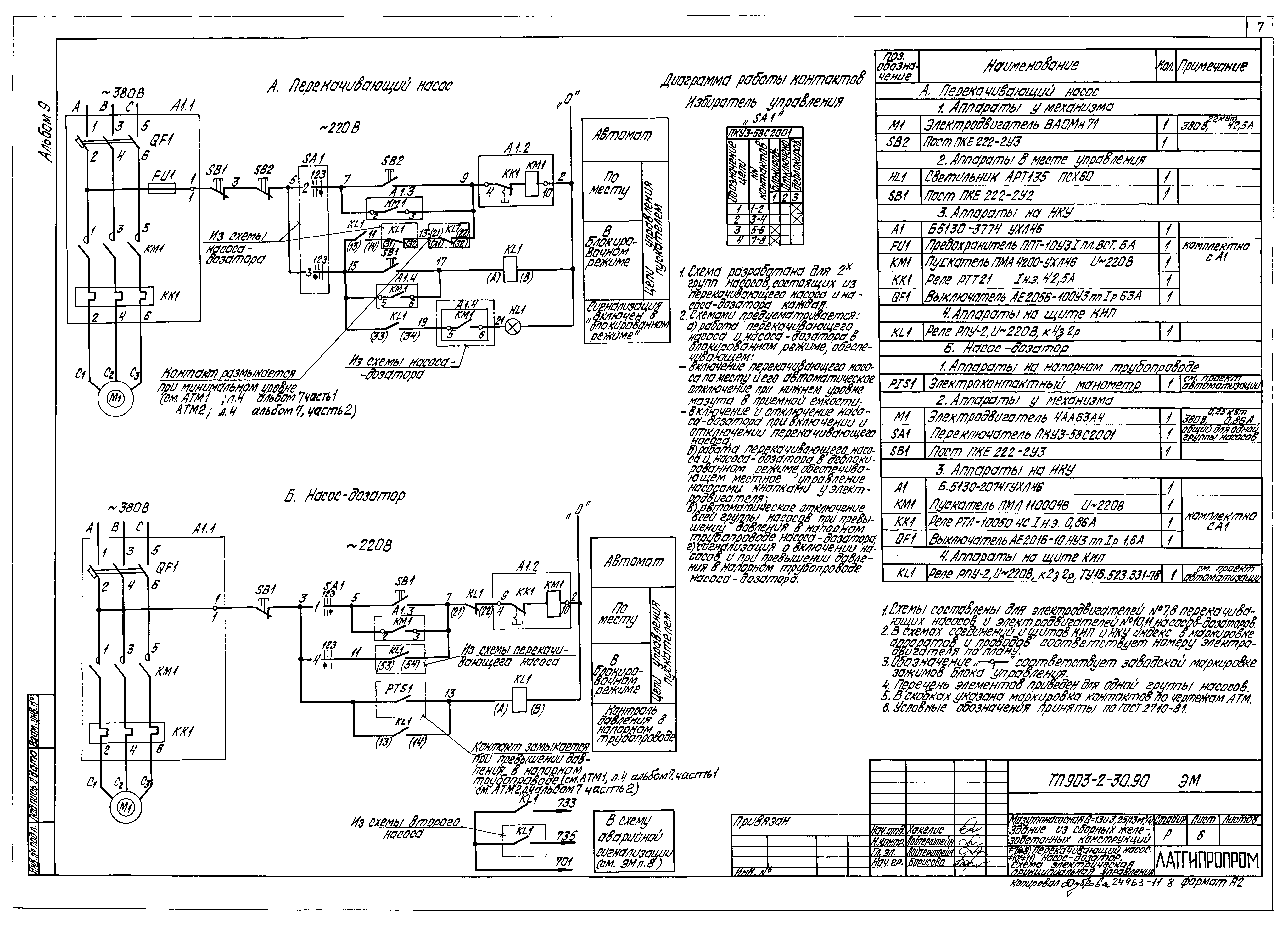
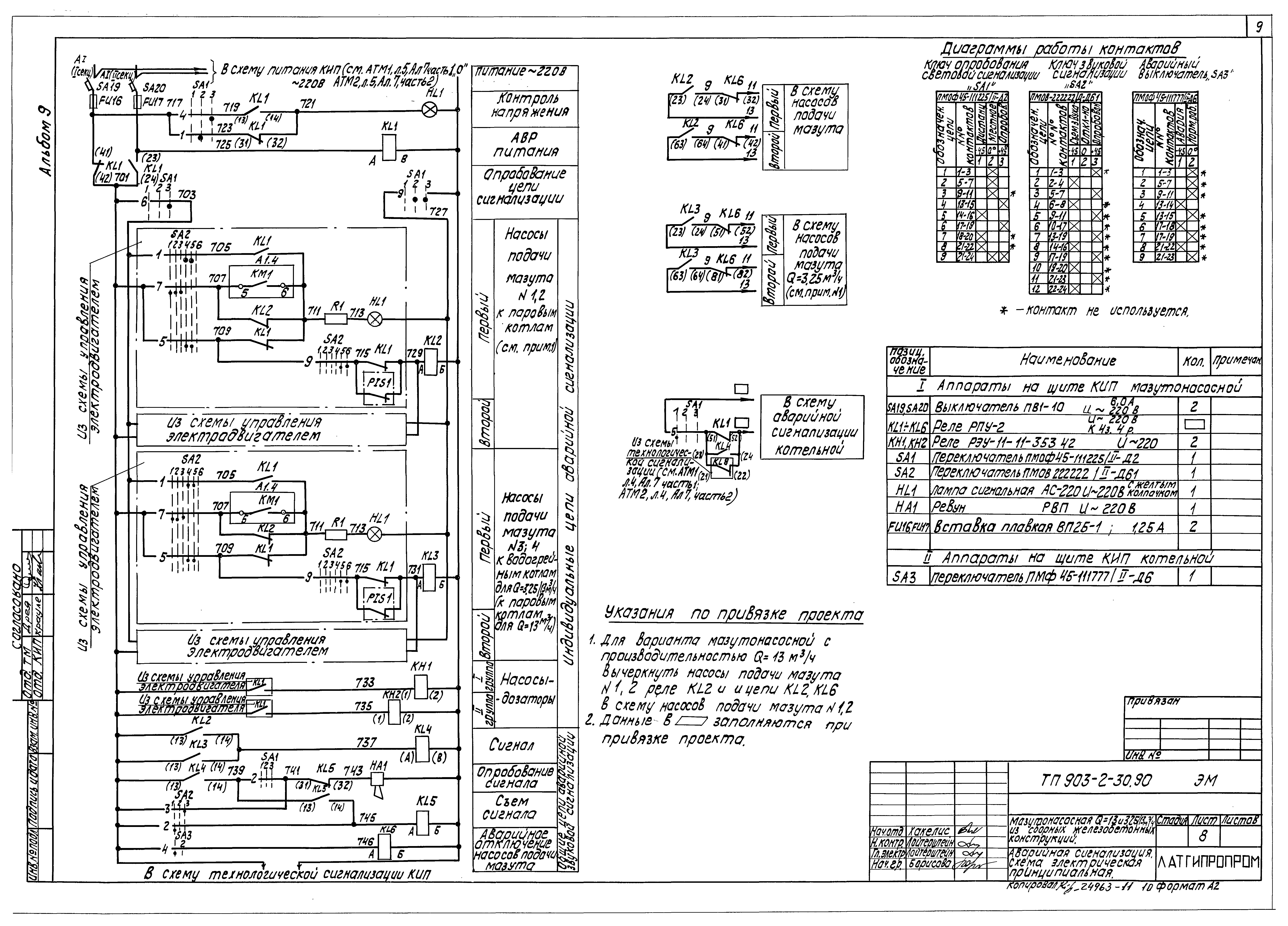
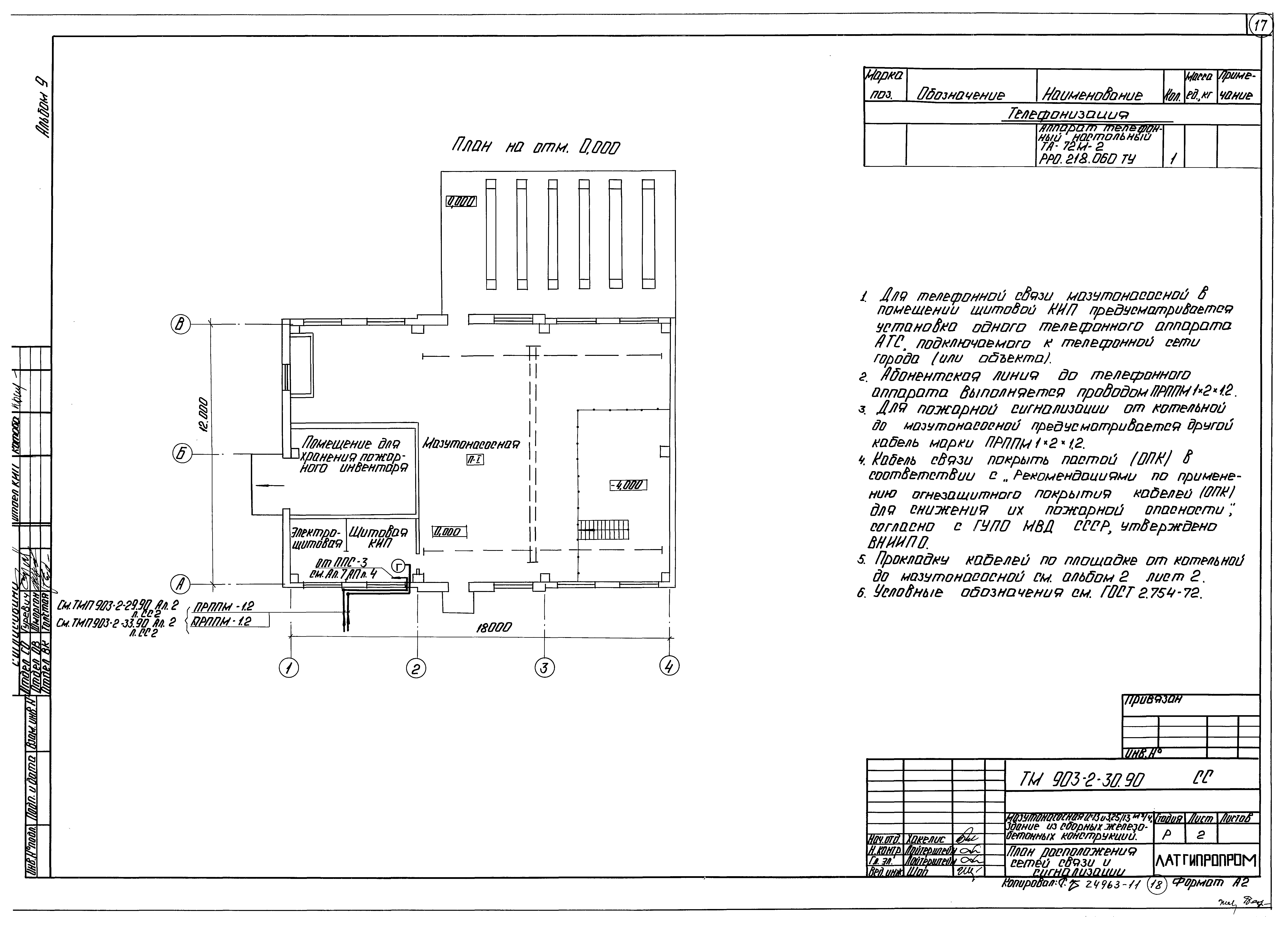
| Оглавление: | ТП 903-2-30.90-ЭМ Ведомость рабочих чертежей основного комплекта марки ЭМ ТП 903-2-30.90-ЭМ-1 Общие данные ТП 903-2-30.90-ЭМ-2 Щ. Схема электрическая принципиальная распределительная ТП 903-2-30.90-ЭМ-3 Насосы подачи мазута. Схема электрическая функциональная и блокировки ТП 903-2-30.90-ЭМ-4 ≠1(≠≠2,3,4). Насос подачи мазута. Схема электрическая принципиальная управления ТП 903-2-30.90-ЭМ-5 ≠7(≠8) Перекачивающий насос. ≠10(≠11) Насос-дозатор. Схема электрическая принципиальная управления ТП 903-2-30.90-ЭМ-6 ≠12А Дренажный насос. ≠6 Механизм управления по месту. Схема электрическая принципиальная управления ТП 903-2-30.90-ЭМ-7 Аварийная сигнализация. Схема электрическая принципиальная ТП 903-2-30.90-ЭМ-8 План расположения электрооборудования и прокладки электрических сетей. Установка кабельных конструкций ТП 903-2-30.90-ЭМ-9 План установки электрооборудования и расположение трубных проводок для прокладки электрических сетей ТП 903-2-30.90-ЭМ-10 Кабельный журнал ТП 903-2-30.90-ЭМ-11 ≠7,≠8,≠10,≠11,≠12 Схема электрическая подключений ТП 903-2-30.90-ЭО Ведомость рабочих чертежей основного комплекта марки ЭО ТП 903-2-30.90-ЭО-1 Общие данные ТП 903-2-30.90-ЭО-2 План расположения осветительного электрооборудования и прокладки электрических сетей на отм. -4.000;0.000 ТП 903-2-30.90-СС Ведомость рабочих чертежей основного комплекта марки СС ТП 903-2-30.90-СС-1 Общие данные ТП 903-2-30.90-СС-2 План расположения сетей связи и сигнализации |
| Разработан: | Латгипропром |
| Утверждён: | 01.04.1991 ГПКНИИ Сантехниипроект (22) |

















