Скачать Типовой проект 704-1-51 Альбом VI. Оборудование резервуара для темных нефтепродуктовДата актуализации: 01.01.2021
|
| Обозначение: | Типовой проект 704-1-51 |
| Обозначение англ: | 704-1-51 |
| Статус: | не действует |
| Название рус.: | Альбом VI. Оборудование резервуара для темных нефтепродуктов |
| Дата добавления в базу: | 01.09.2013 |
| Дата актуализации: | 01.01.2021 |
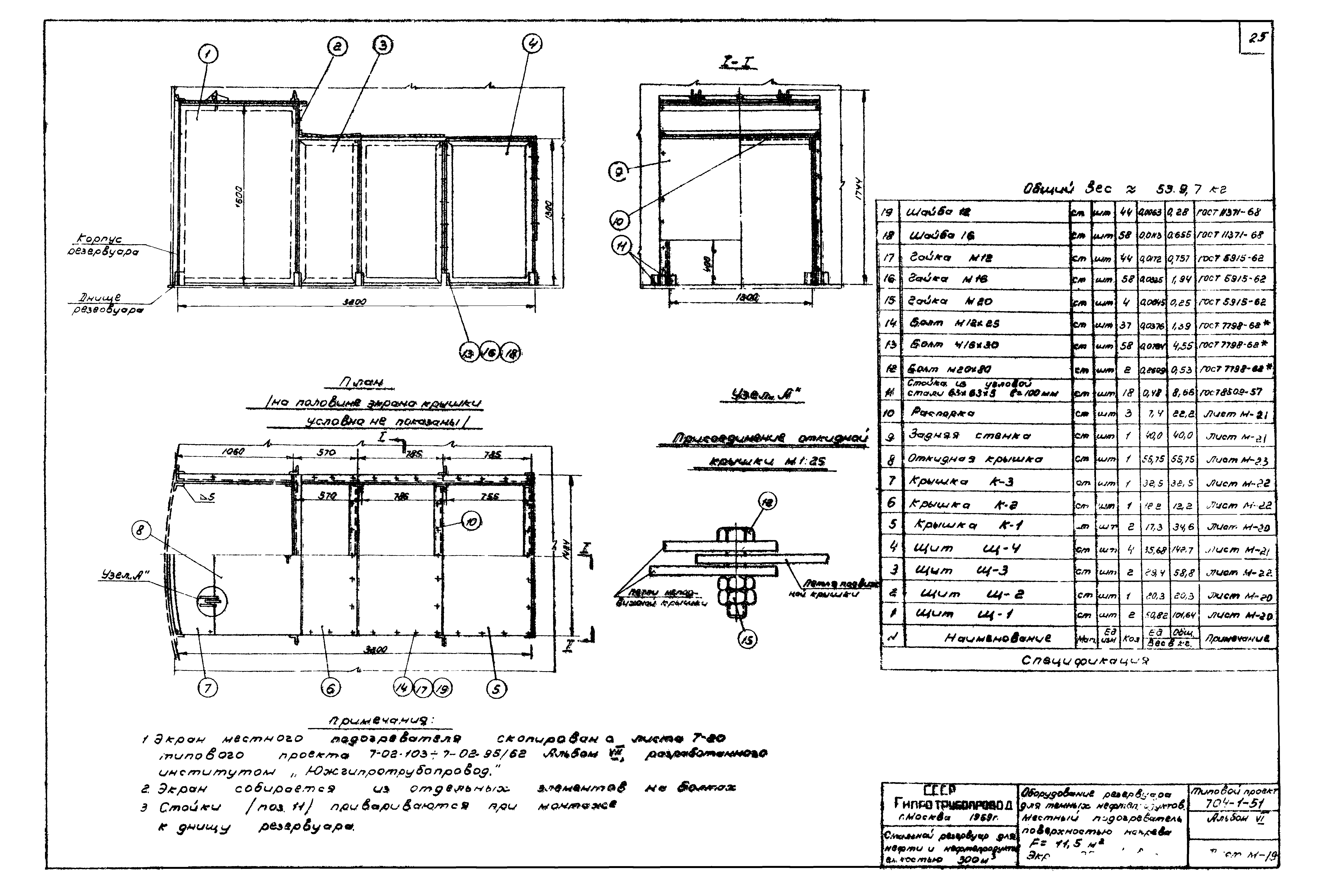
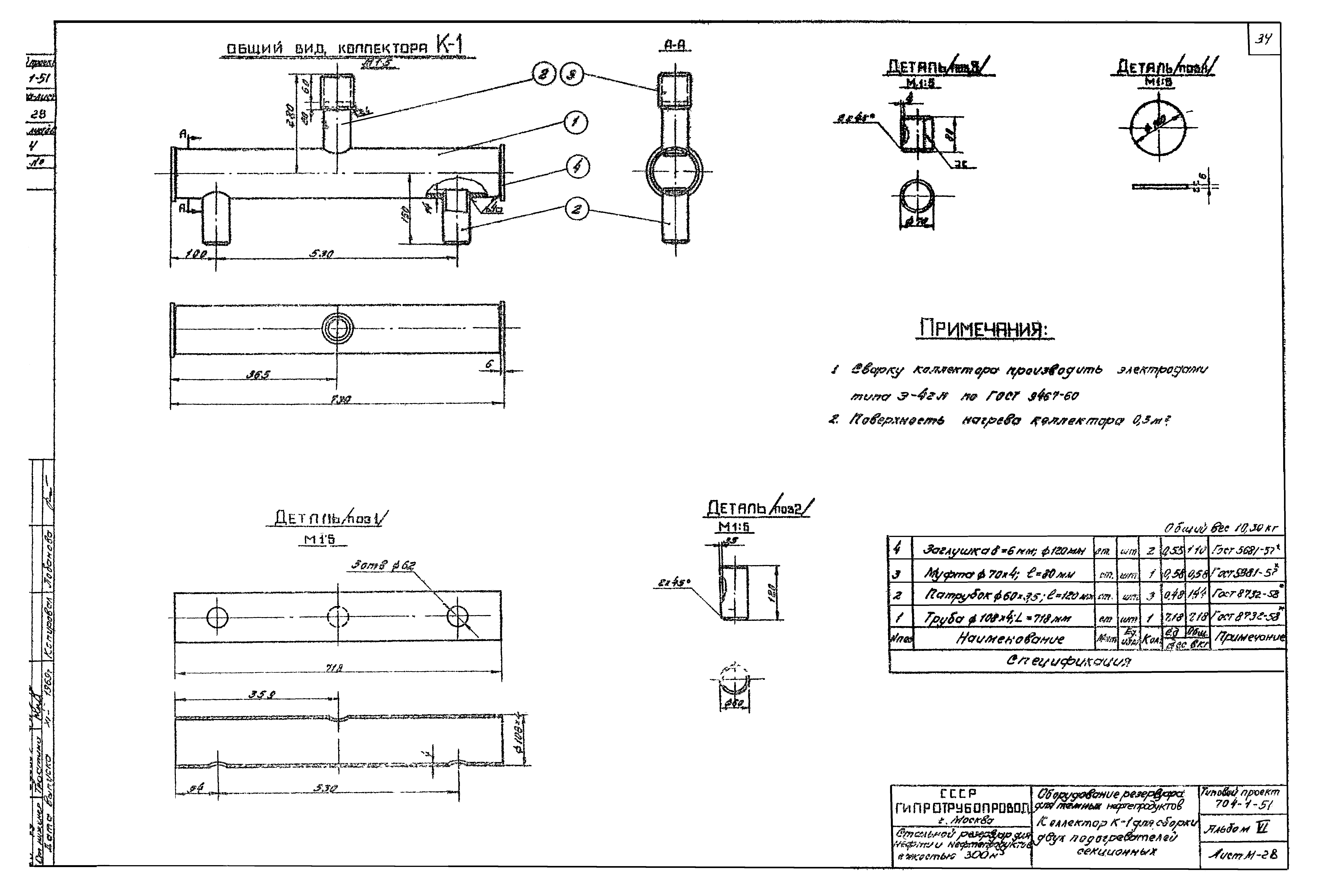
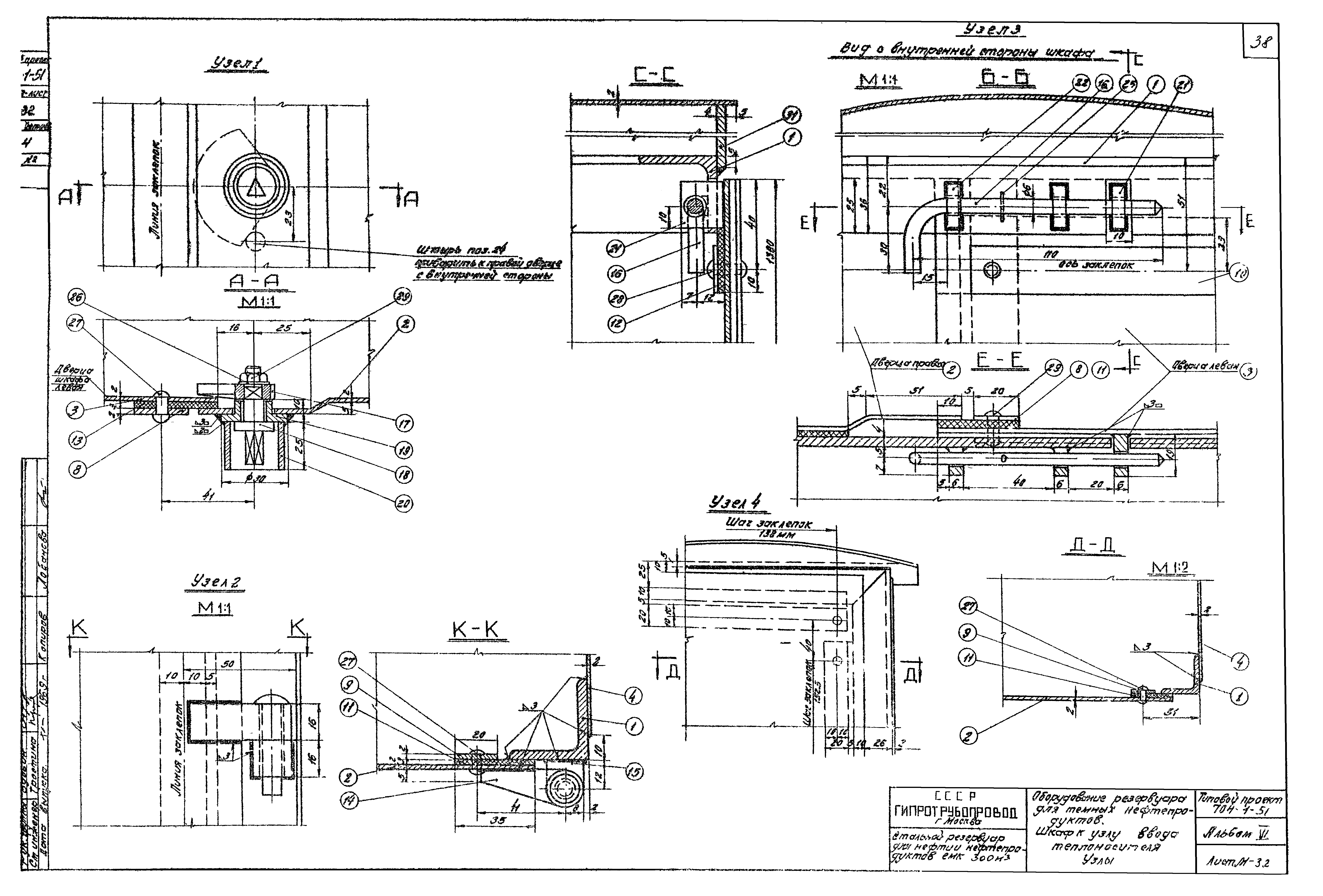
| Оглавление: | ТП 704-1-51 Обложка ТП 704-1-51-С-1 Содержание альбома ТП 704-1-51 ПЗ-1÷ПЗ-3 Пояснительная записка ТП 704-1-51-М-1 Общий вид оборудования резервуара для хранения темных нефтепродуктов ТП 704-1-51-М-2 Общий вид оборудования резервуара для хранения темных нефтепродуктов. Спецификация ТП 704-1-51-М-3 Общий вид оборудования резервуара для хранения темных нефтепродуктов (без подъемной трубы) ТП 704-1-51-М-4 Общий вид оборудования резервуара для хранения темных нефтепродуктов (без подъемной трубы). Спецификация ТП 704-1-51-М-5 Установка вентиляционного патрубка ВП-150 ТП 704-1-51-М-6 Установка приемо-раздаточного патрубка Ду150. Узел "А" ТП 704-1-51-М-7 Установка приемо-раздаточного патрубка Ду200. Узел "А" ТП 704-1-51-М-8 Установка подъемной трубы Ду150 ТП 704-1-51-М-9 Установка подъемной трубы Ду200 ТП 704-1-51-М-10 Узел крепления каната к подъемной трубе. Общий вид. Детали. Спецификация ТП 704-1-51-М-11 Опора подъемной трубы. Общий вид. Детали. Спецификация ТП 704-1-51-М-12 Расположение секционных и местного подогревателей общей поверхностью нагрева 12,8 м² ТП 704-1-51-М-13 Расположение секционных и местного подогревателей общей поверхностью нагрева 23,5 м² ТП 704-1-51-М-14 Местный подогреватель поверхностью нагрева F=2,3 м². Общий вид. Узлы ТП 704-1-51-М-15 Местный подогреватель поверхностью нагрева F=2,3 м². Детали ТП 704-1-51-М-16 Местный подогреватель поверхностью нагрева F=2,3 м². Детали ТП 704-1-51-М-17 Местный подогреватель поверхностью нагрева F=11,5 м². Общий вид ТП 704-1-51-М-18 Местный подогреватель поверхностью нагрева F=11,5 м². Опора. Подвеска для конденсатопроводов ТП 704-1-51-М-19 Местный подогреватель поверхностью нагрева F=11,5 м². Экран. Общий вид ТП 704-1-51-М-20 Местный подогреватель поверхностью нагрева F=11,5 м². Экран. Детали ТП 704-1-51-М-21 Местный подогреватель поверхностью нагрева F=11,5 м². Экран. Детали ТП 704-1-51-М-22 Местный подогреватель поверхностью нагрева F=11,5 м². Экран. Детали ТП 704-1-51-М-23 Местный подогреватель поверхностью нагрева F=11,5 м². Экран. Детали ТП 704-1-51-М-24 Подогревательный элемент ПЭ-0,ПЭ-1,ПЭ-4 ТП 704-1-51-М-25 Подогревательная система. Стойка С-1 ТП 704-1-51-М-26 Подогревательная система. Стойка С-2 ТП 704-1-51-М-27 Подогревательная система. Стойка С-5 ТП 704-1-51-М-28 Коллектор К-1 для сборки двух подогревательных элементов секционных ТП 704-1-51-М-29 Узел ввода теплоносителя ТП 704-1-51-М-30 Узел ввода теплоносителя ТП 704-1-51-М-31 Шкаф к узлу ввода теплоносителя. Общий вид ТП 704-1-51-М-32 Шкаф к узлу ввода теплоносителя. Узлы ТП 704-1-51-М-33 Шкаф к узлу ввода теплоносителя. Детали ТП 704-1-51-М-34 Шкаф к узлу ввода теплоносителя. Детали ТП 704-1-51-М-35 Шкаф к узлу ввода теплоносителя. Детали ТП 704-1-51-М-36 Установка термометра технического ртутного. Общий вид. Узлы. Детали ТП 704-1-51-А-1 Принципиальная схема автоматизации ТП 704-1-51-ЭО-1 Грозозащита и заземление |
| Разработан: | Гипротрубопровод Миннефтепрома (Giprotruboprovod, Minnefteprom ) |
| Утверждён: | 29.12.1969 ЦНИИпроектстальконструкция (TsNIIprojectstalkonstruktsiya 221) |












































