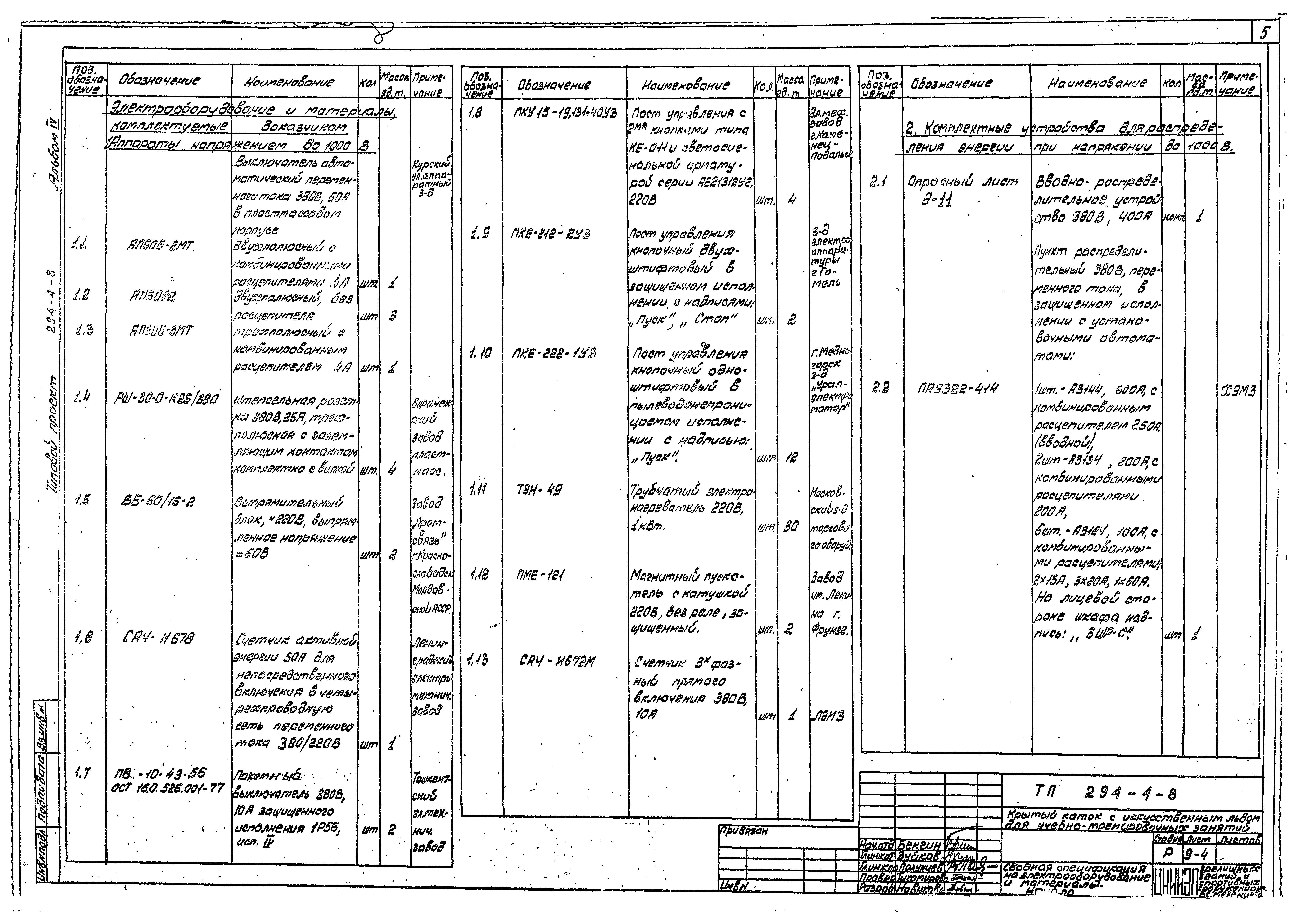
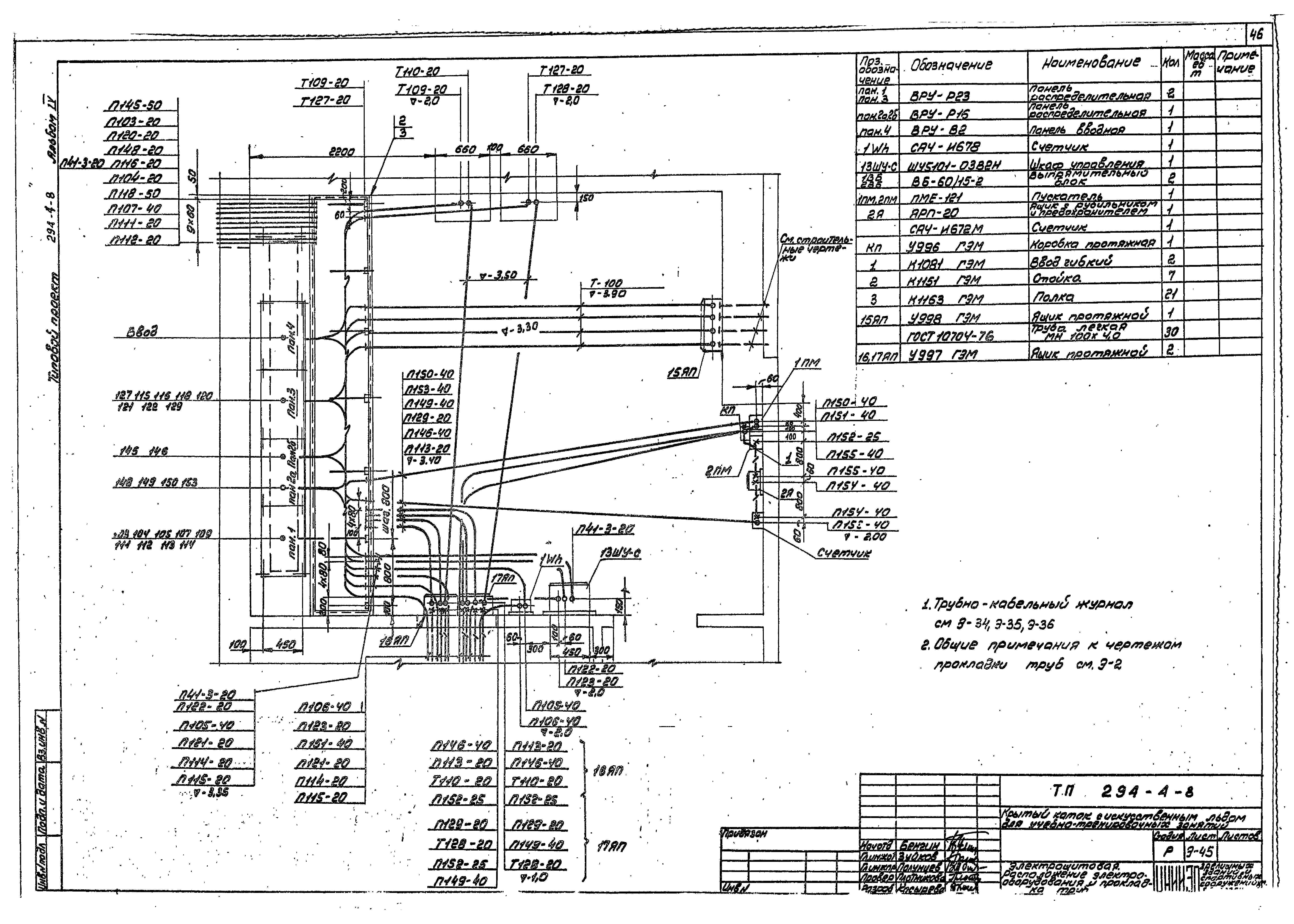
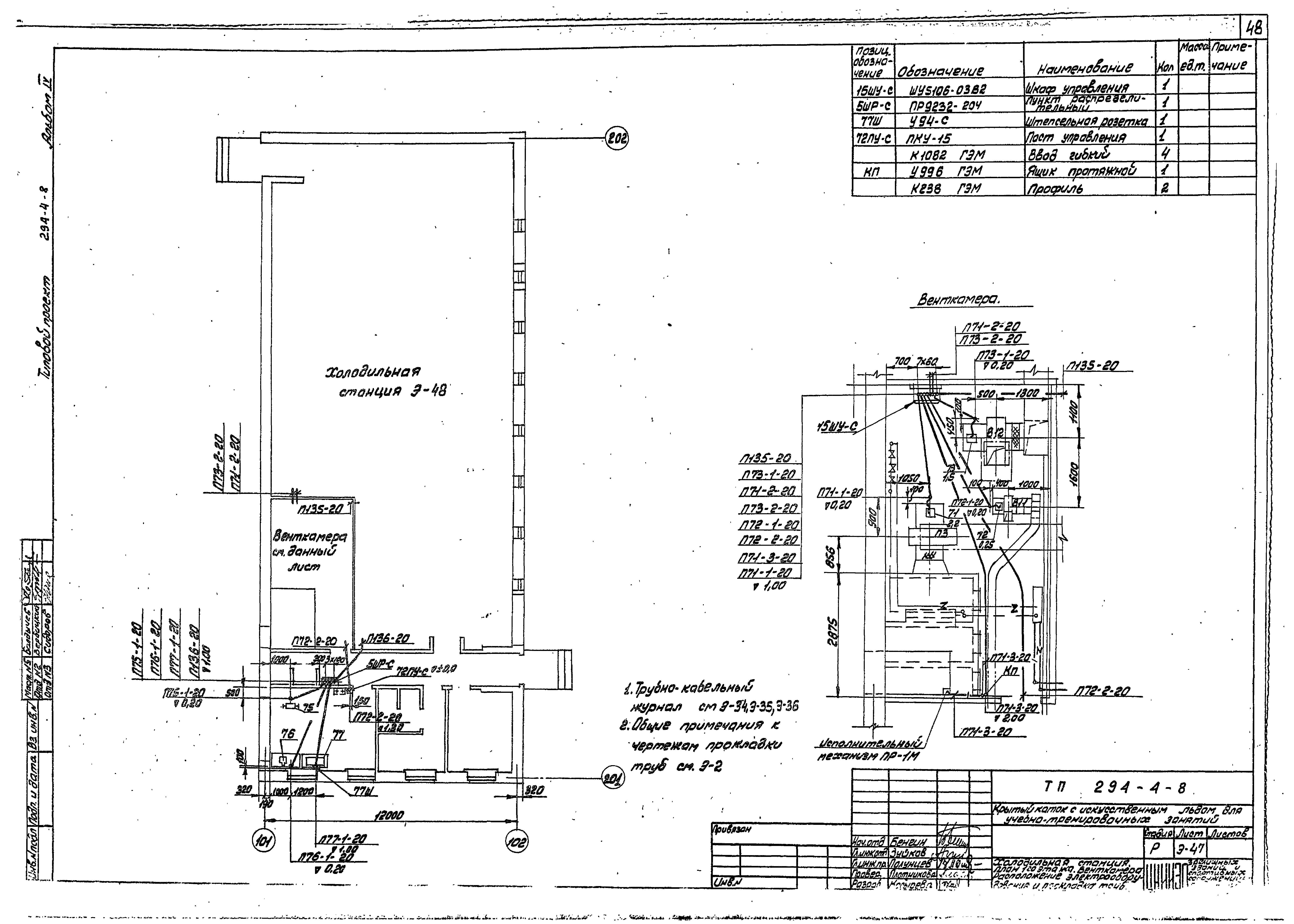
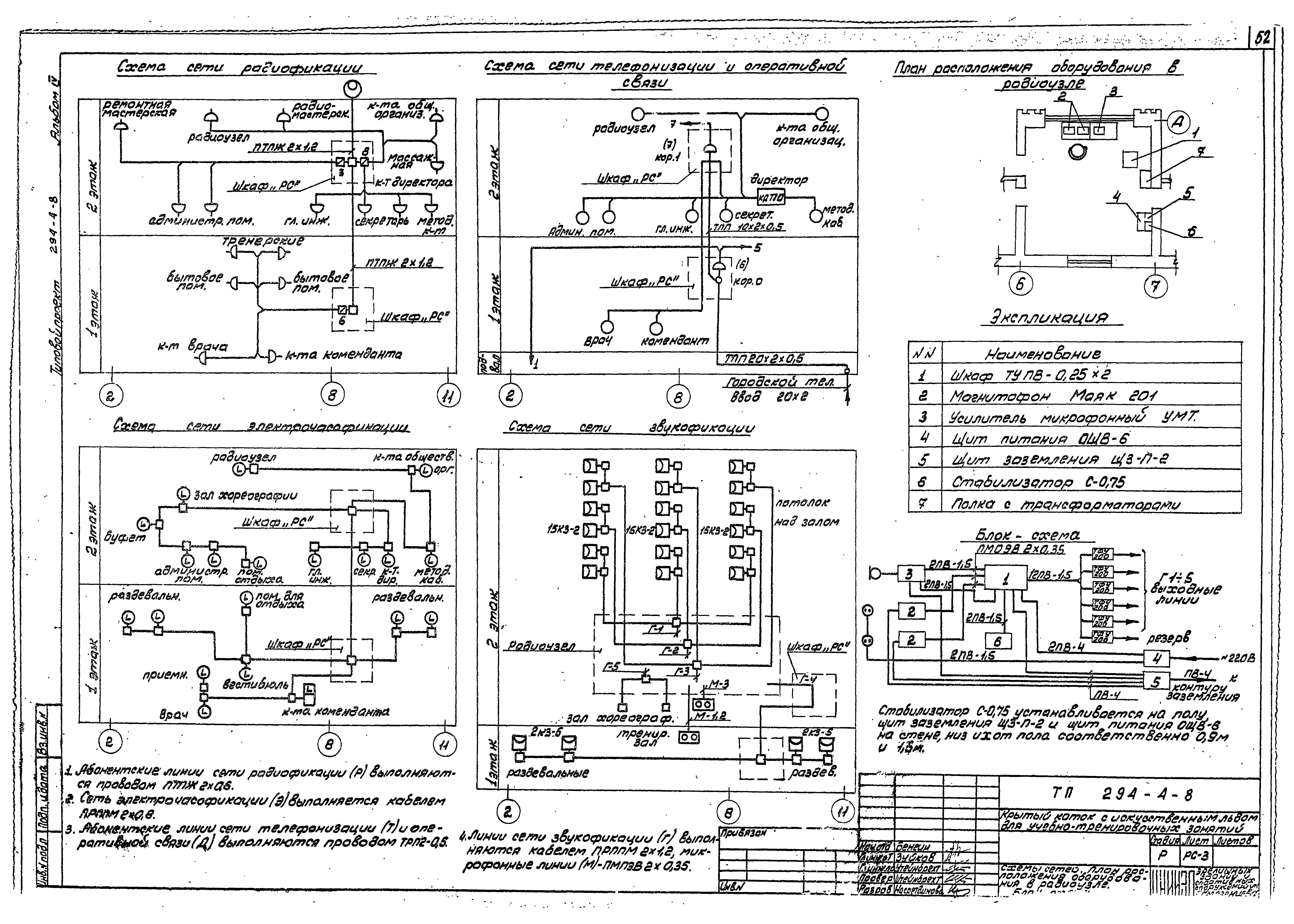
Скачать Типовой проект 294-4-8 Альбом IV. Чертежи электрооборудования, радио и связиДата актуализации: 01.01.2021 Типовой проект 294-4-8
Альбом IV. Чертежи электрооборудования, радио и связи| Обозначение: | Типовой проект 294-4-8 | | Обозначение англ: | 294-4-8 | | Статус: | не определен законодательством | | Название рус.: | Альбом IV. Чертежи электрооборудования, радио и связи | | Дата добавления в базу: | 01.09.2013 | | Дата актуализации: | 01.01.2021 | | Дата введения: | 05.12.1981 | | Дата окончания срока действия: | 30.06.2003 | | Разработан: | ЦНИИЭП зрелищных зданий и спортивных сооружений Госгражданстроя
| | Утверждён: | 08.11.1978 Госгражданстрой (Gosgrazhdanstroy 233)
|
                                                     
|