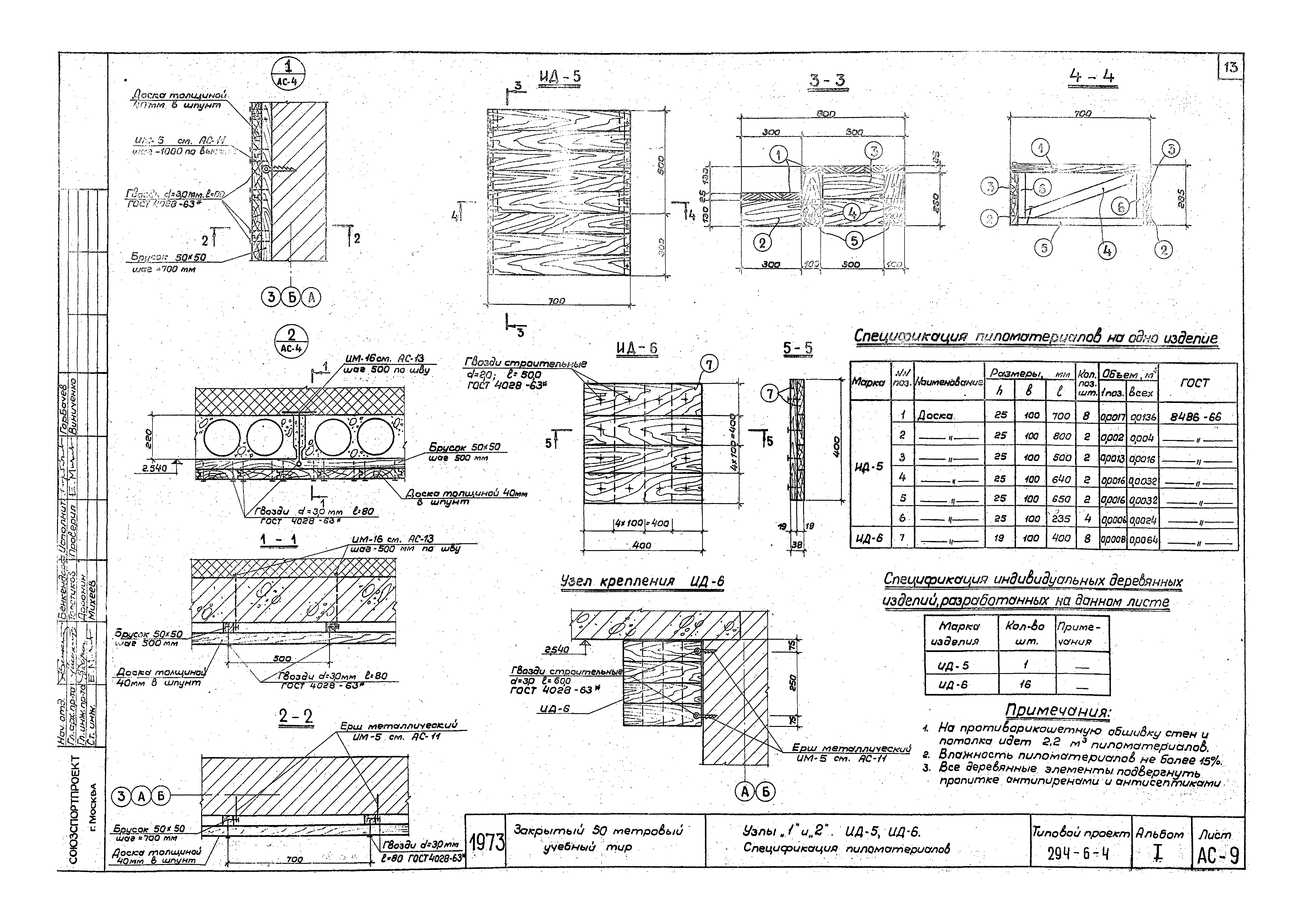
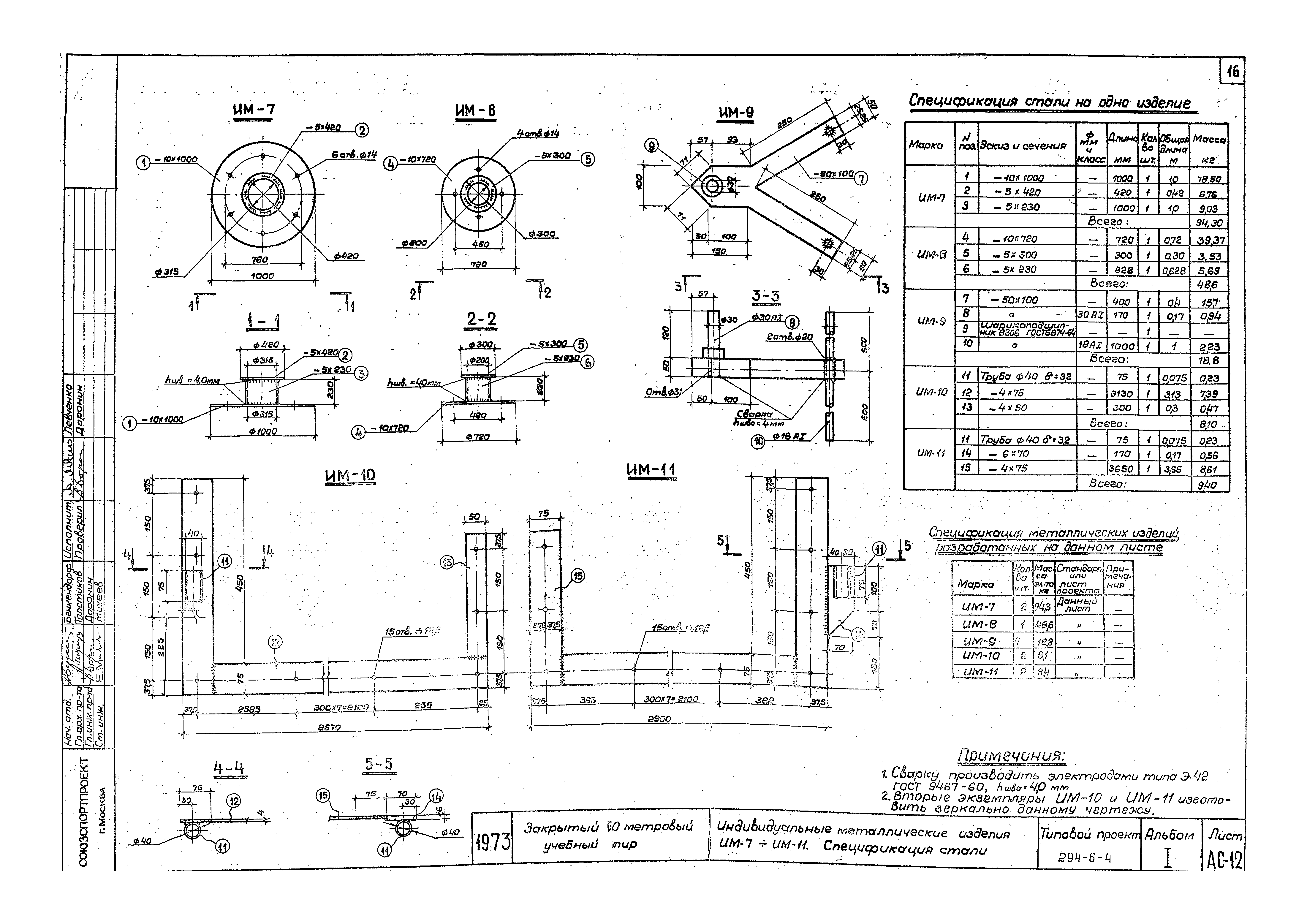
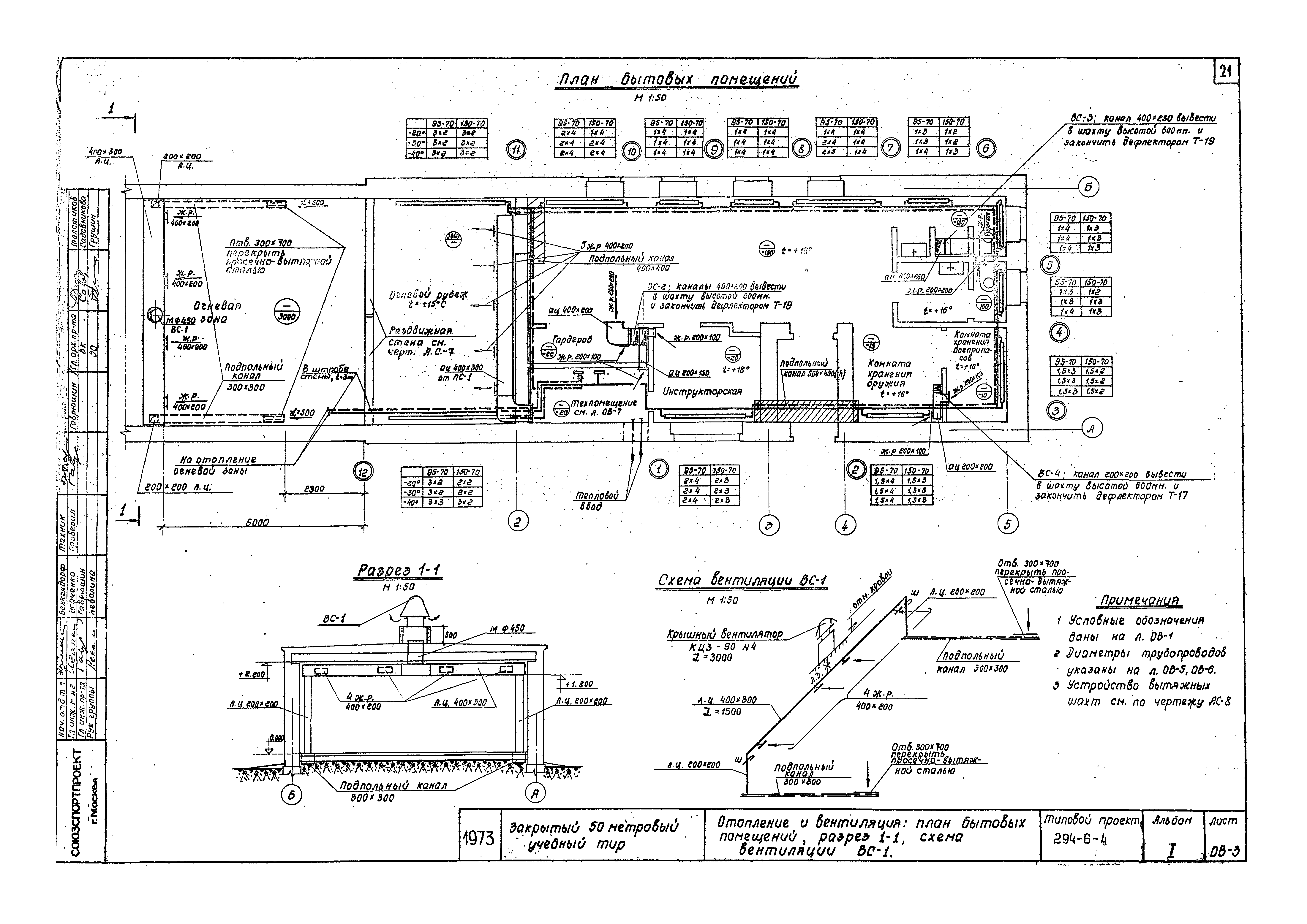
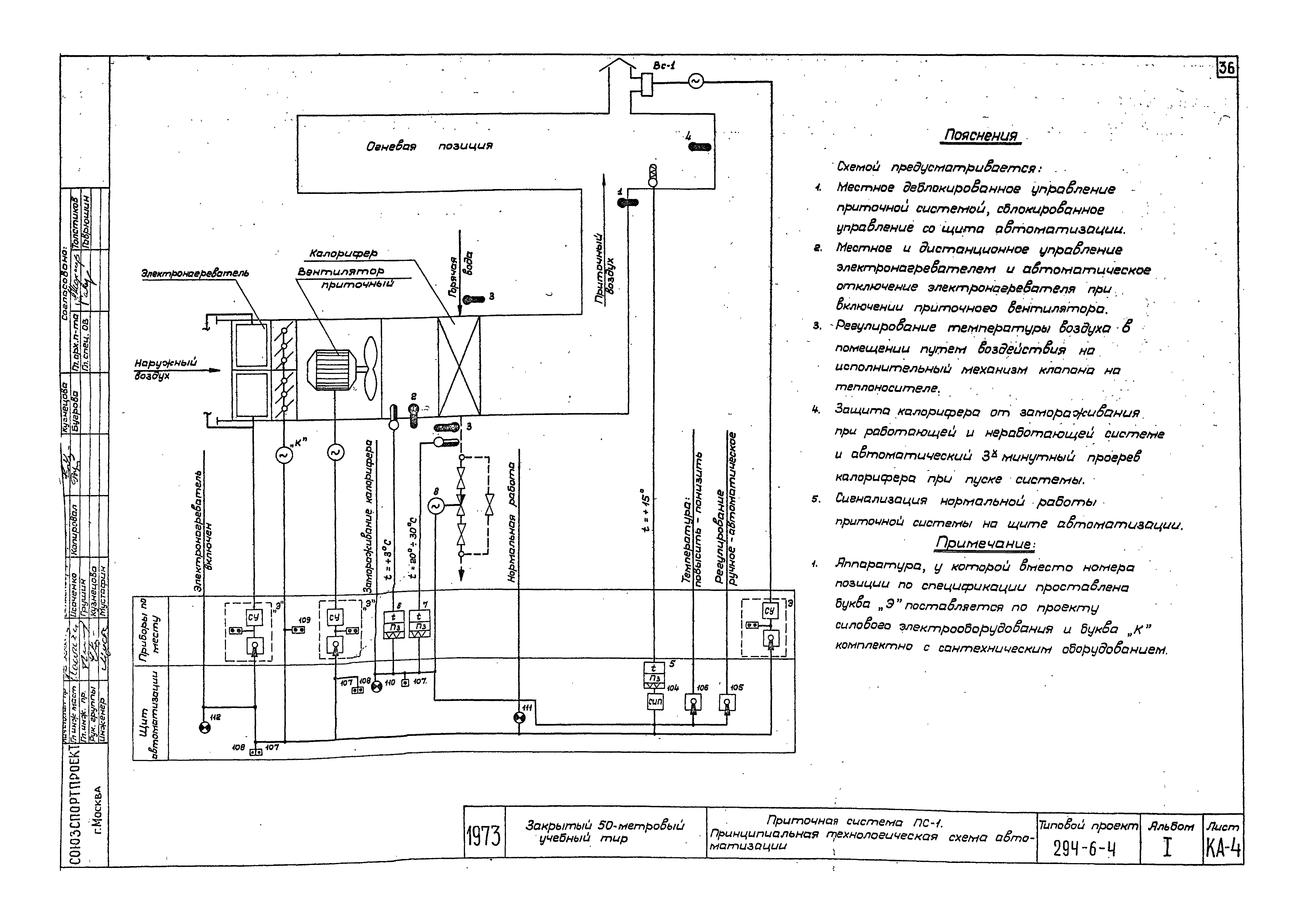
Скачать Типовой проект 294-6-4 Альбом I. Архитектурно-строительная, санитарно-техническая, электротехническая частиДата актуализации: 01.01.2021 Типовой проект 294-6-4
Альбом I. Архитектурно-строительная, санитарно-техническая, электротехническая части| Обозначение: | Типовой проект 294-6-4 | | Обозначение англ: | 294-6-4 | | Статус: | действует | | Название рус.: | Альбом I. Архитектурно-строительная, санитарно-техническая, электротехническая части | | Дата добавления в базу: | 01.09.2013 | | Дата актуализации: | 01.01.2021 | | Дата введения: | 16.04.1974 | | Разработан: | Институт Союзспортпроект
| | Утверждён: | 05.10.1973 Госгражданстрой (Gosgrazhdanstroy 231)
|
                                       
|