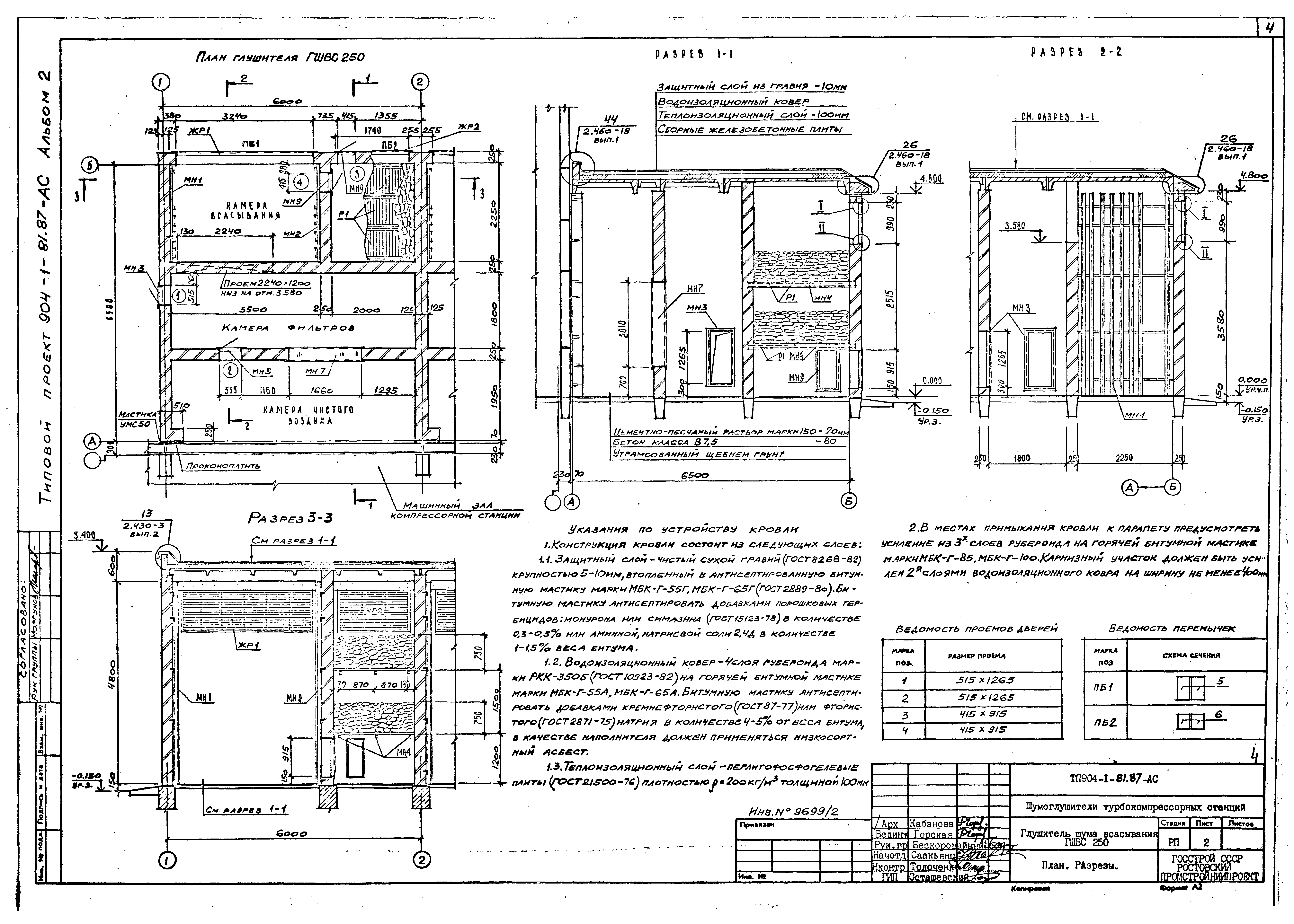
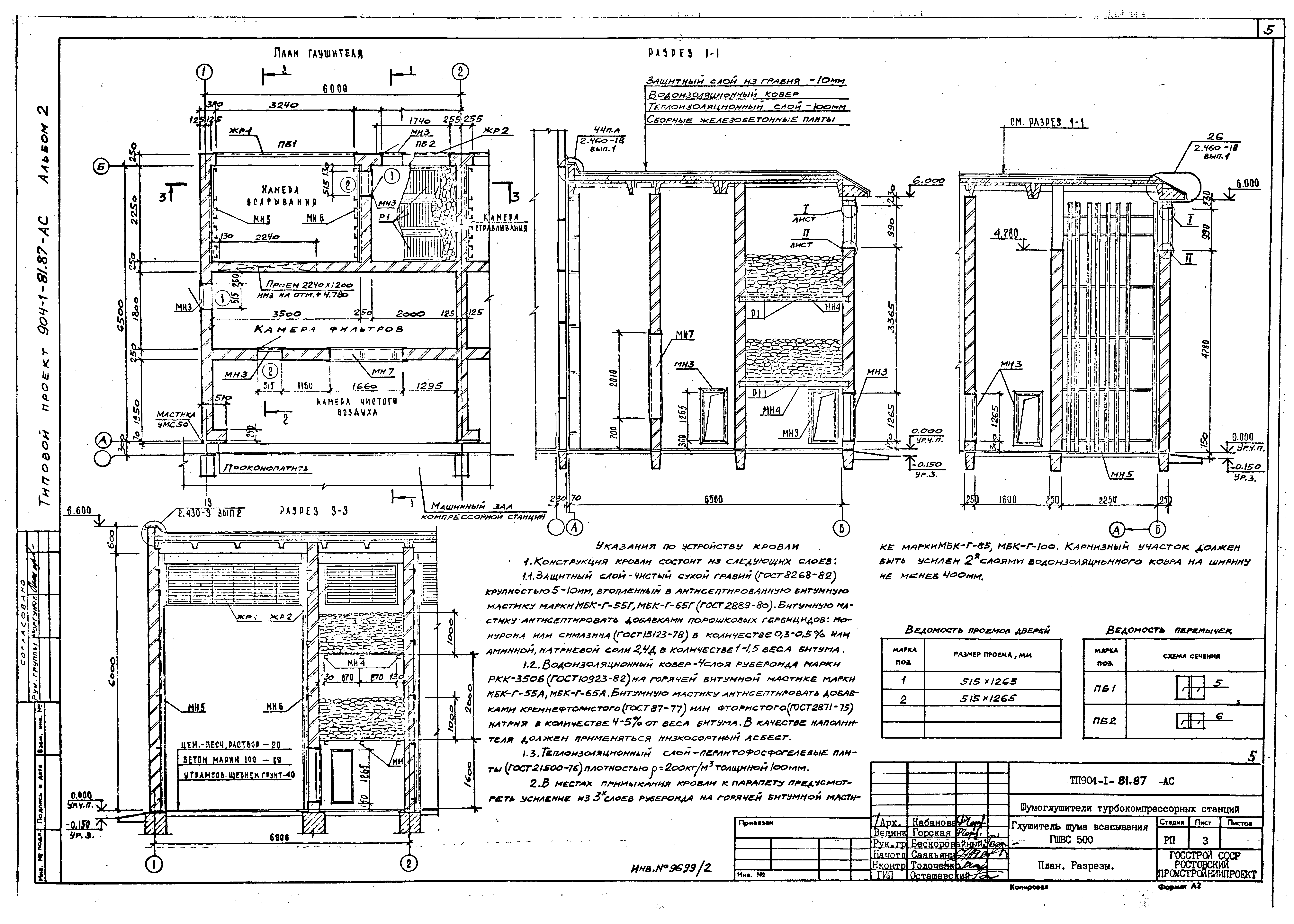
Скачать Типовой проект 904-1-81.87 Альбом 2. Строительные решенияДата актуализации: 01.01.2021
|
| Обозначение: | Типовой проект 904-1-81.87 |
| Обозначение англ: | 904-1-81.87 |
| Статус: | отменен в рф |
| Название рус.: | Альбом 2. Строительные решения |
| Дата добавления в базу: | 01.09.2013 |
| Дата актуализации: | 01.01.2021 |
| Дата введения: | 11.09.1987 |
| Дата окончания срока действия: | 01.01.1990 |
| Разработан: | Ростовский Промстройниипроект Госстроя СССР |
| Утверждён: | 11.09.1987 Минстройдормаш (Minstroydormash 518) |
| Заменяет собой: |












