Скачать Типовой проект 902-5-12.85 Альбом II. Технологическая, санитарно-техническая частиДата актуализации: 01.01.2021
|
| Обозначение: | Типовой проект 902-5-12.85 |
| Обозначение англ: | 902-5-12.85 |
| Статус: | не определен законодательством |
| Название рус.: | Альбом II. Технологическая, санитарно-техническая части |
| Дата добавления в базу: | 01.09.2013 |
| Дата актуализации: | 01.01.2021 |
| Дата введения: | 26.07.1985 |
| Дата окончания срока действия: | 30.06.2003 |
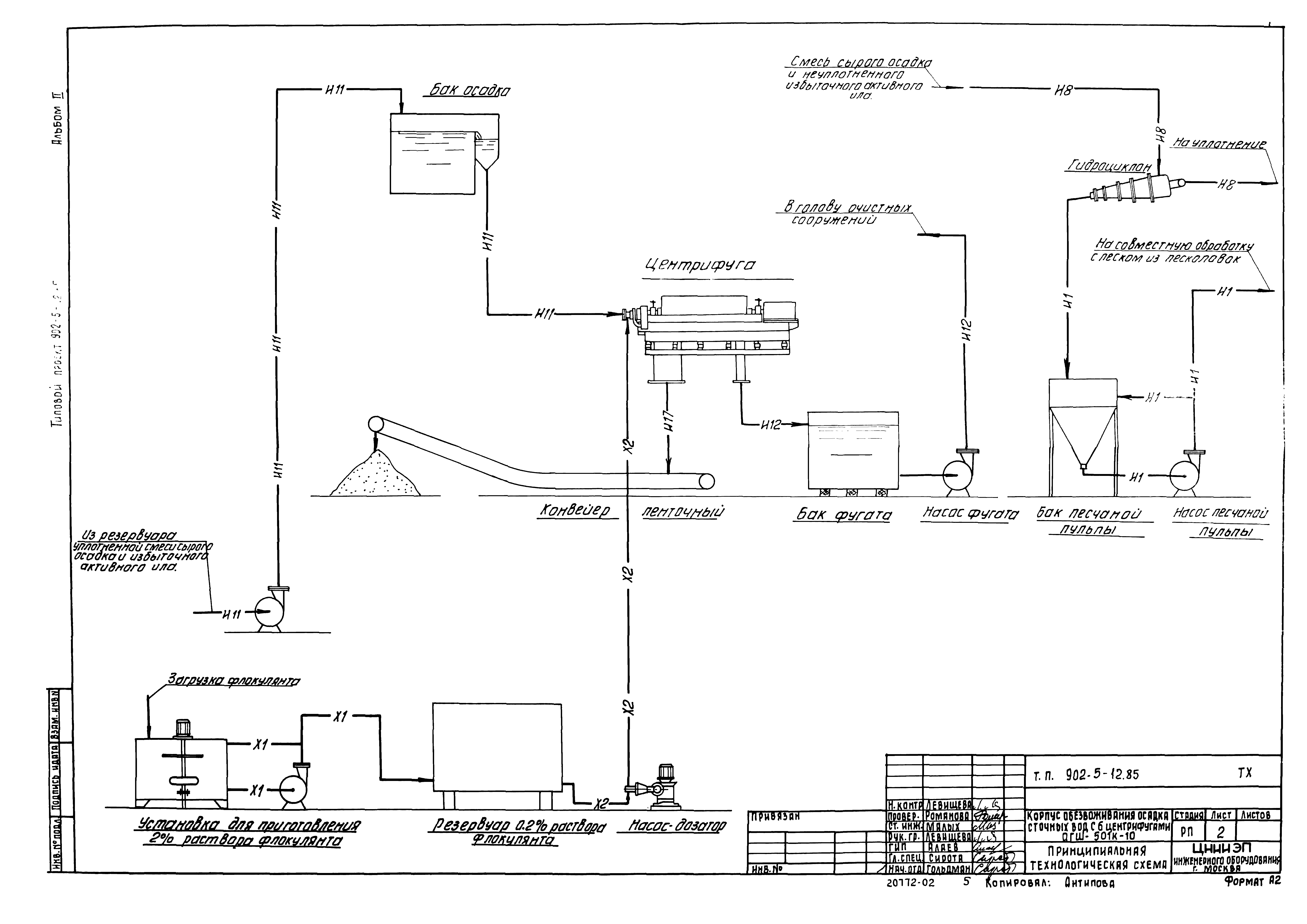
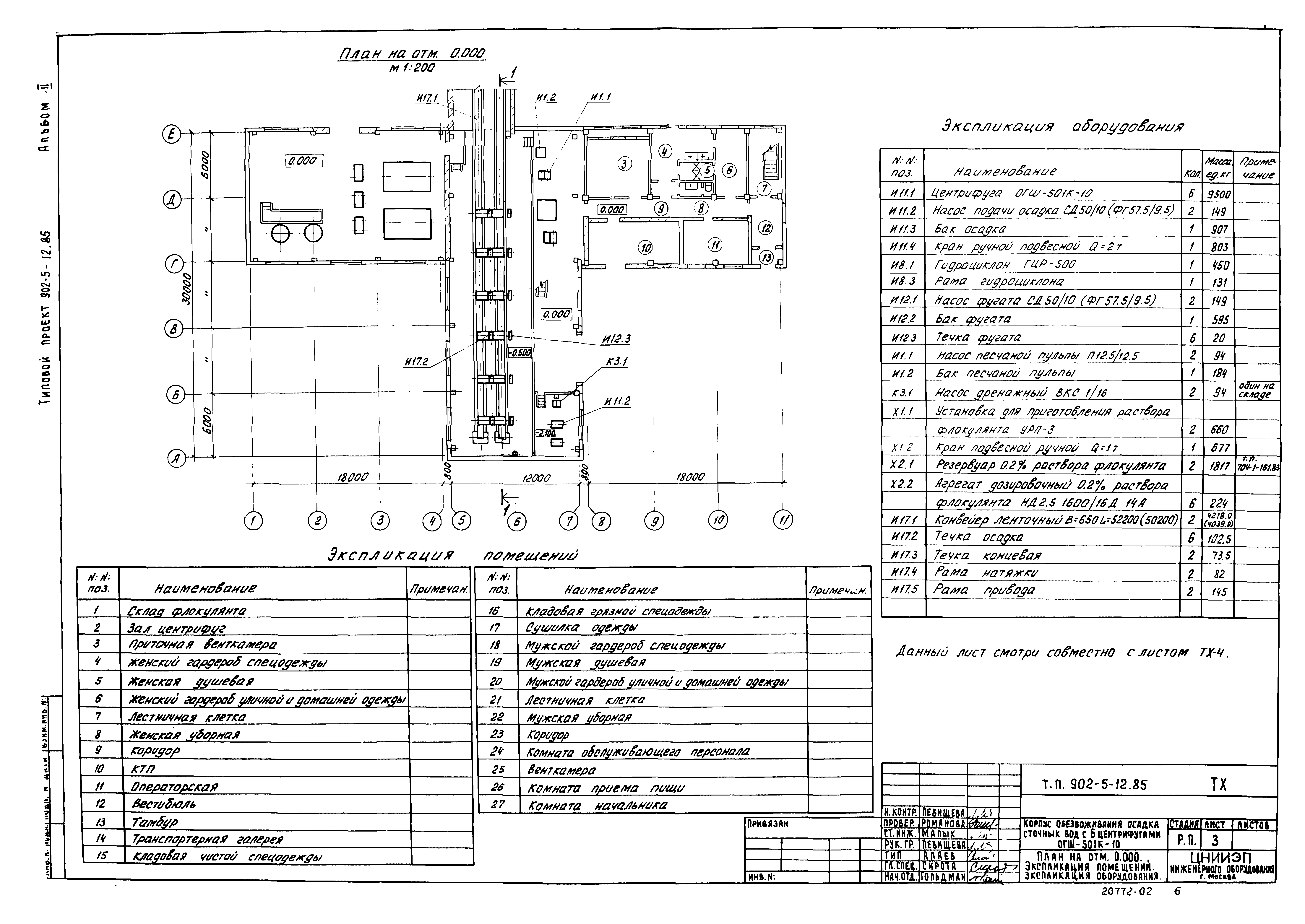
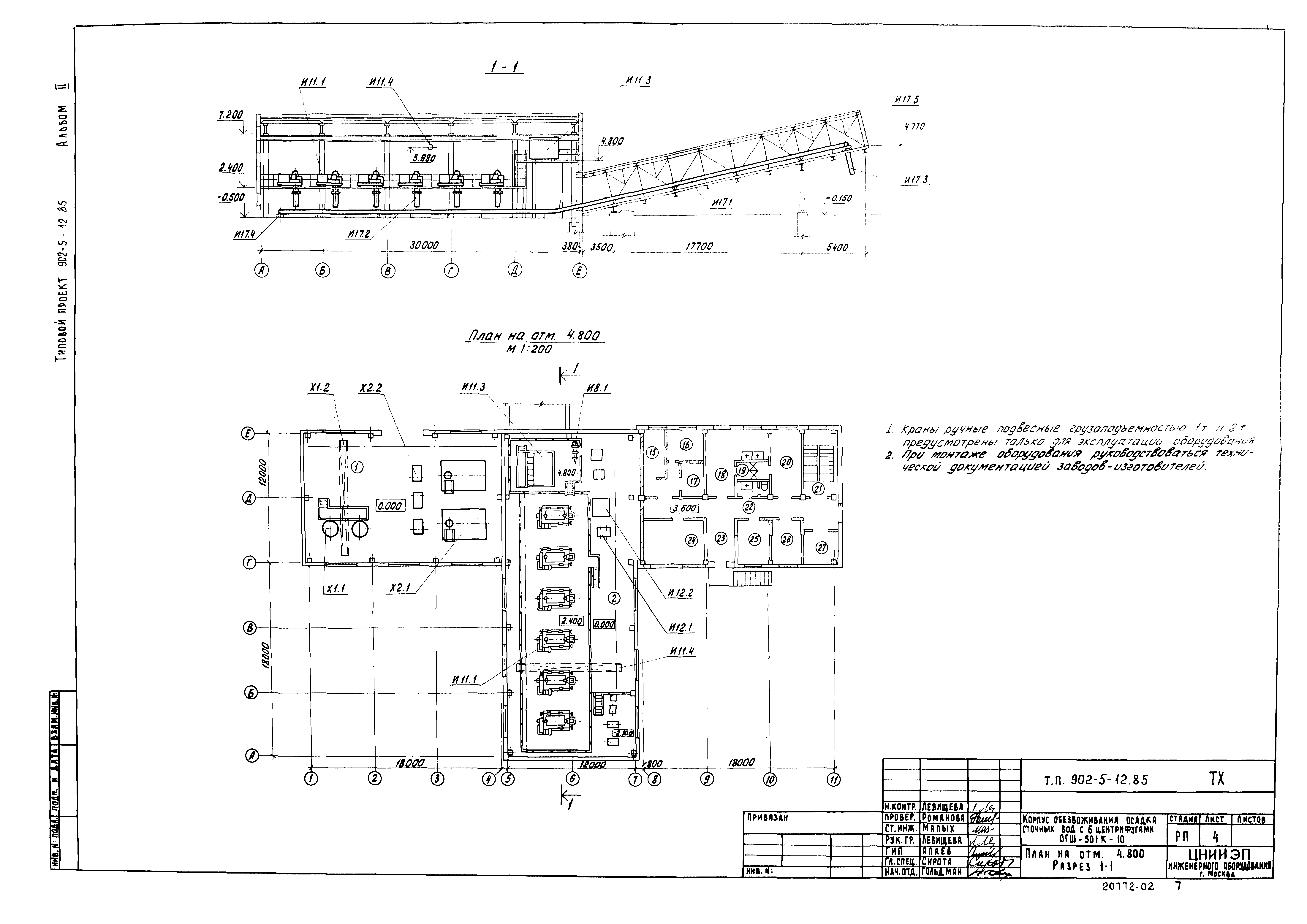
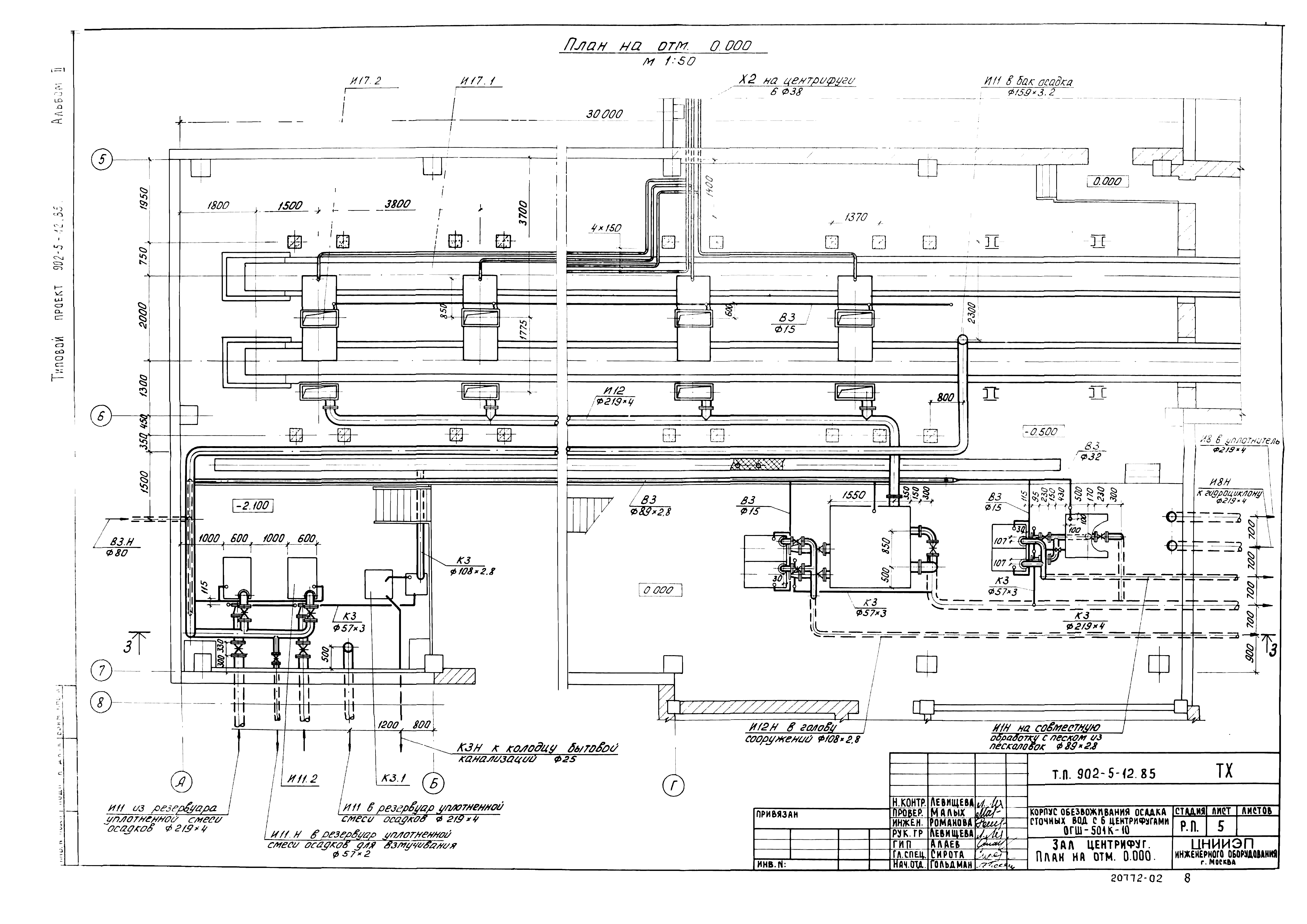
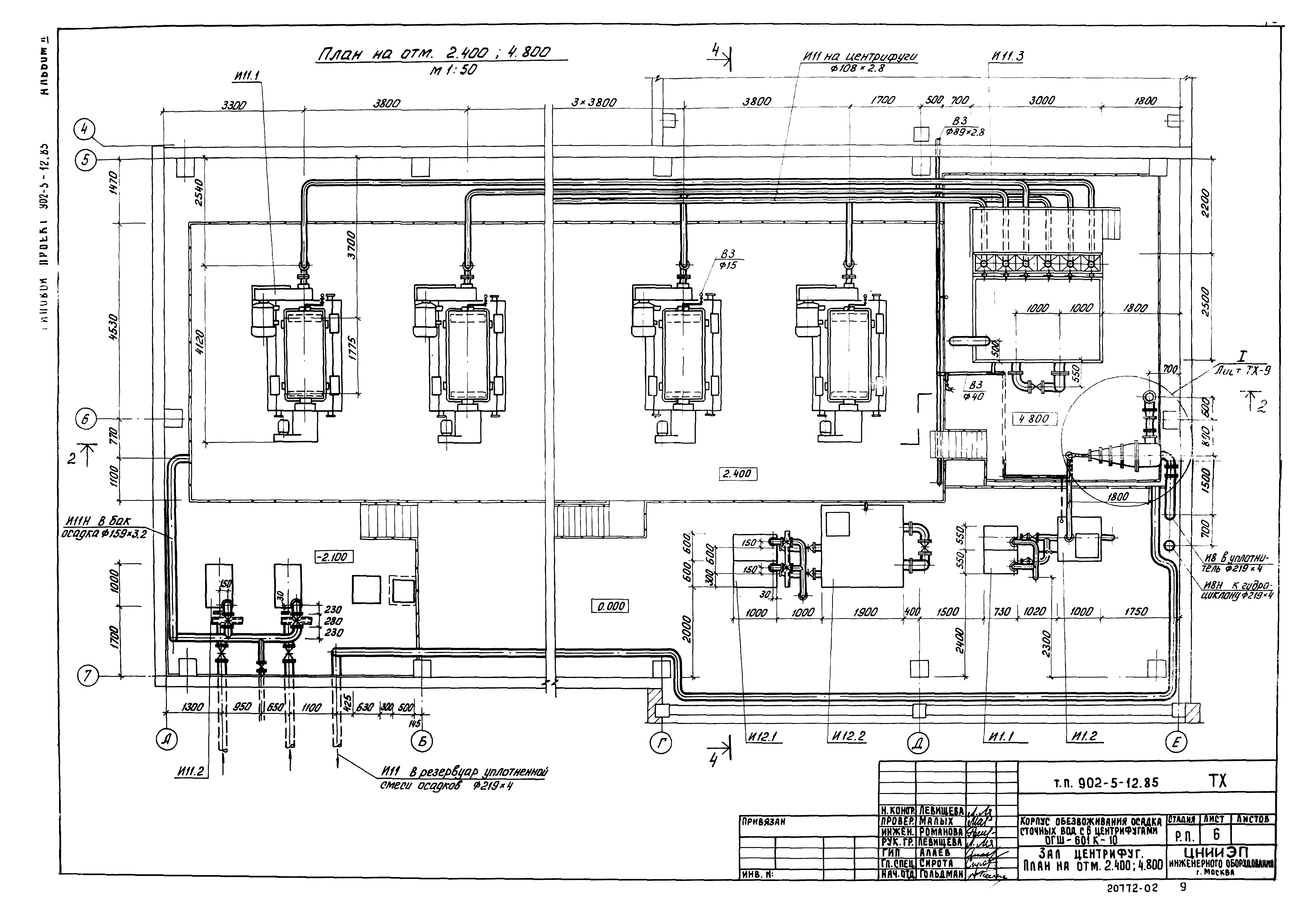
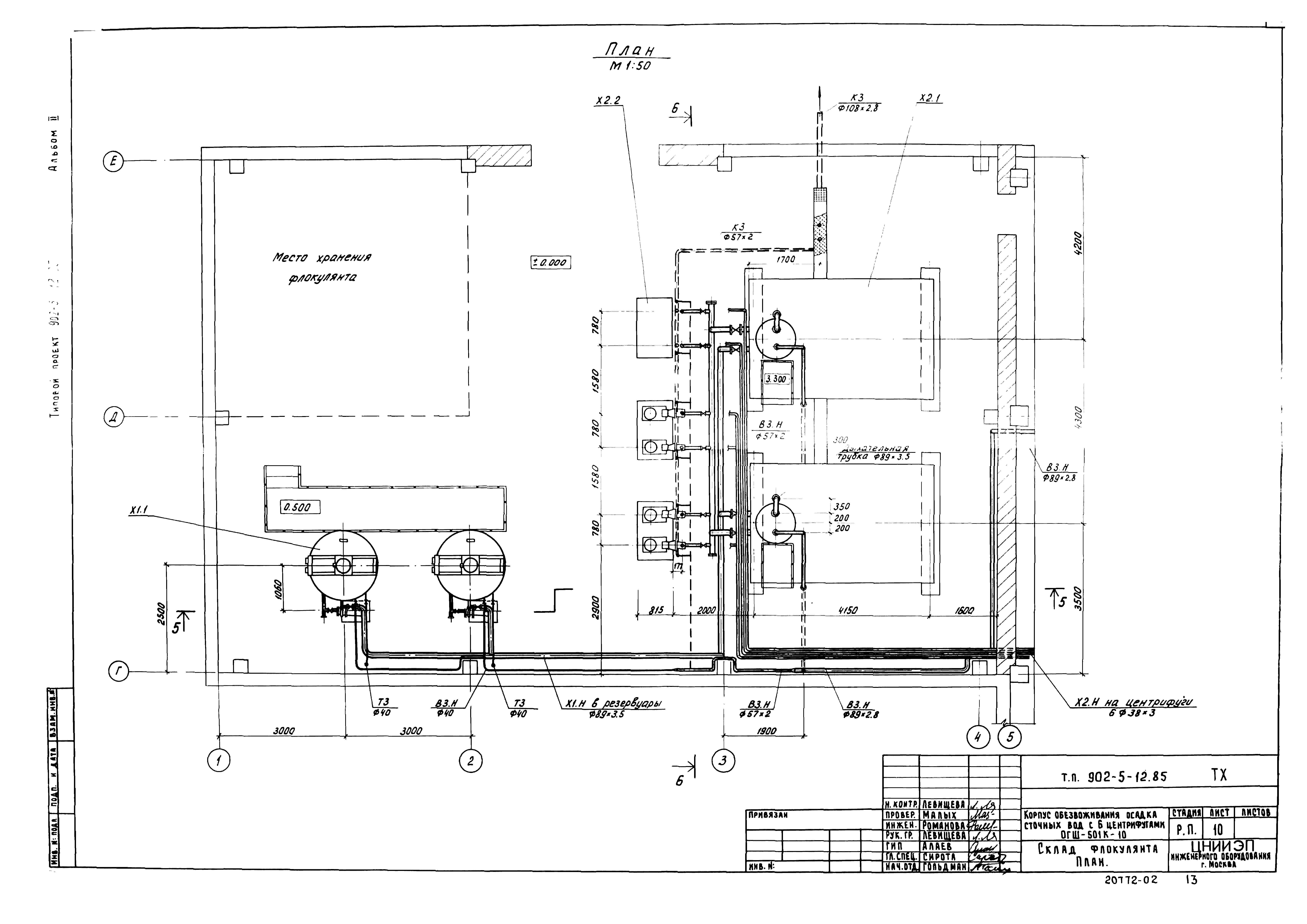
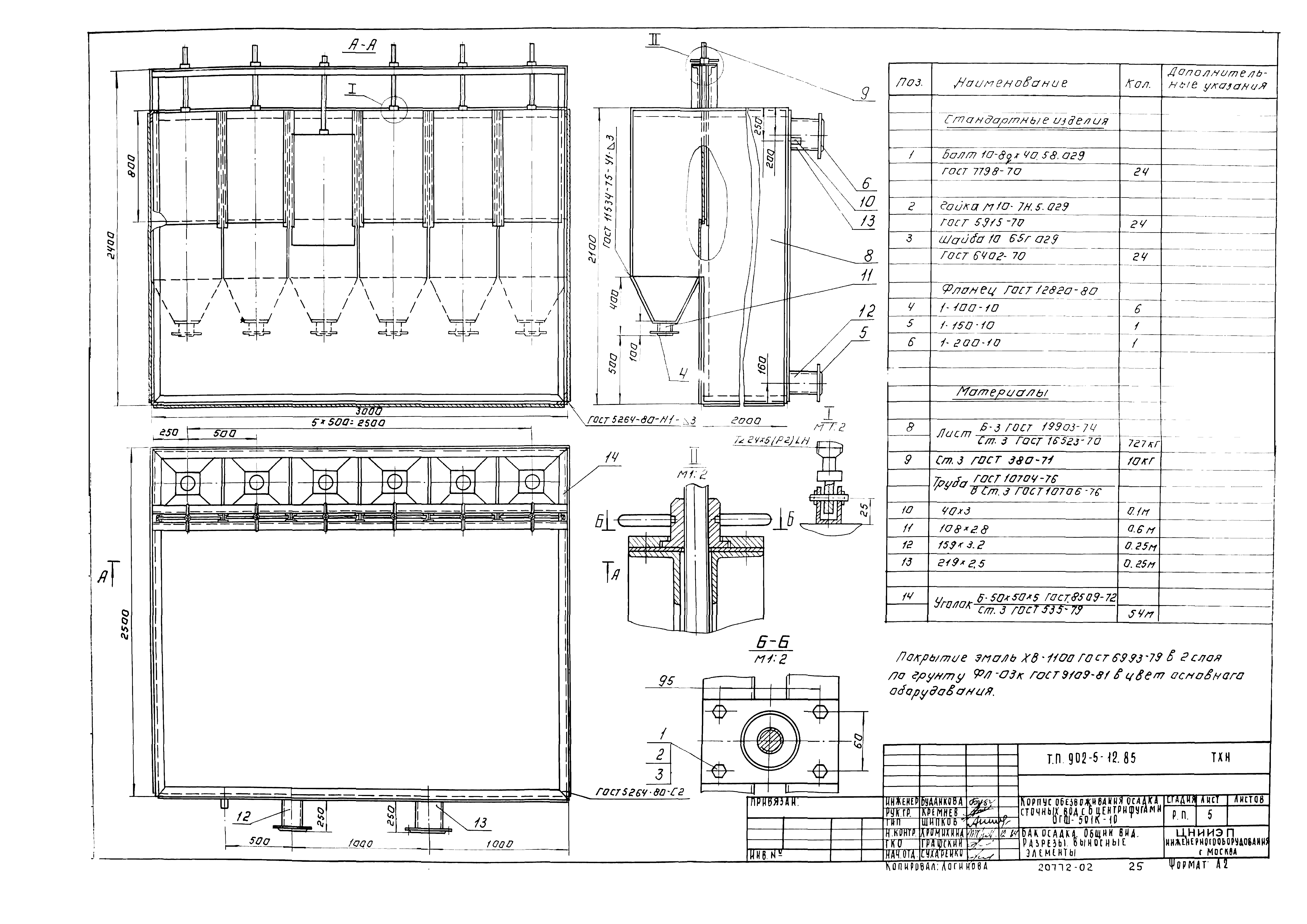
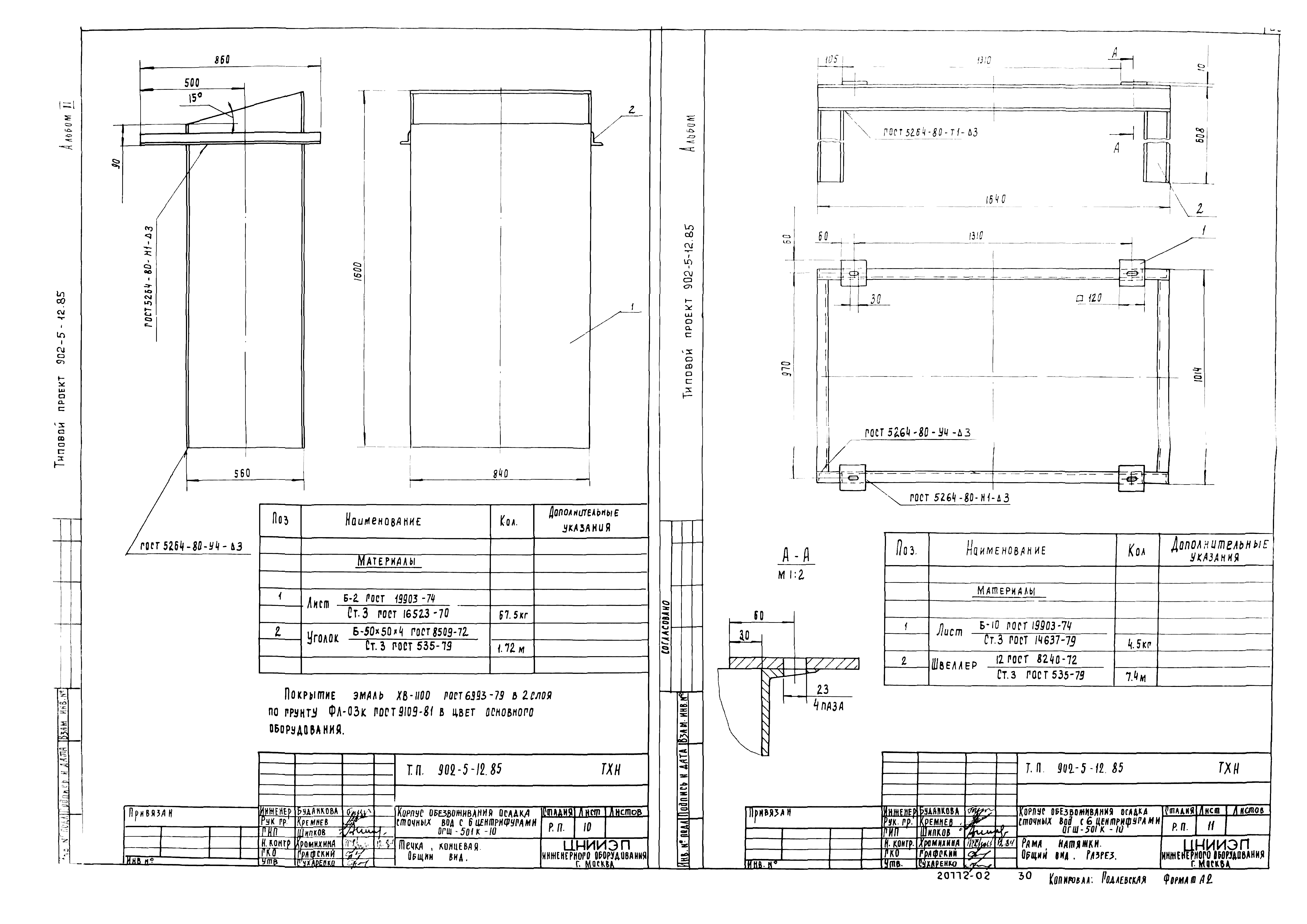
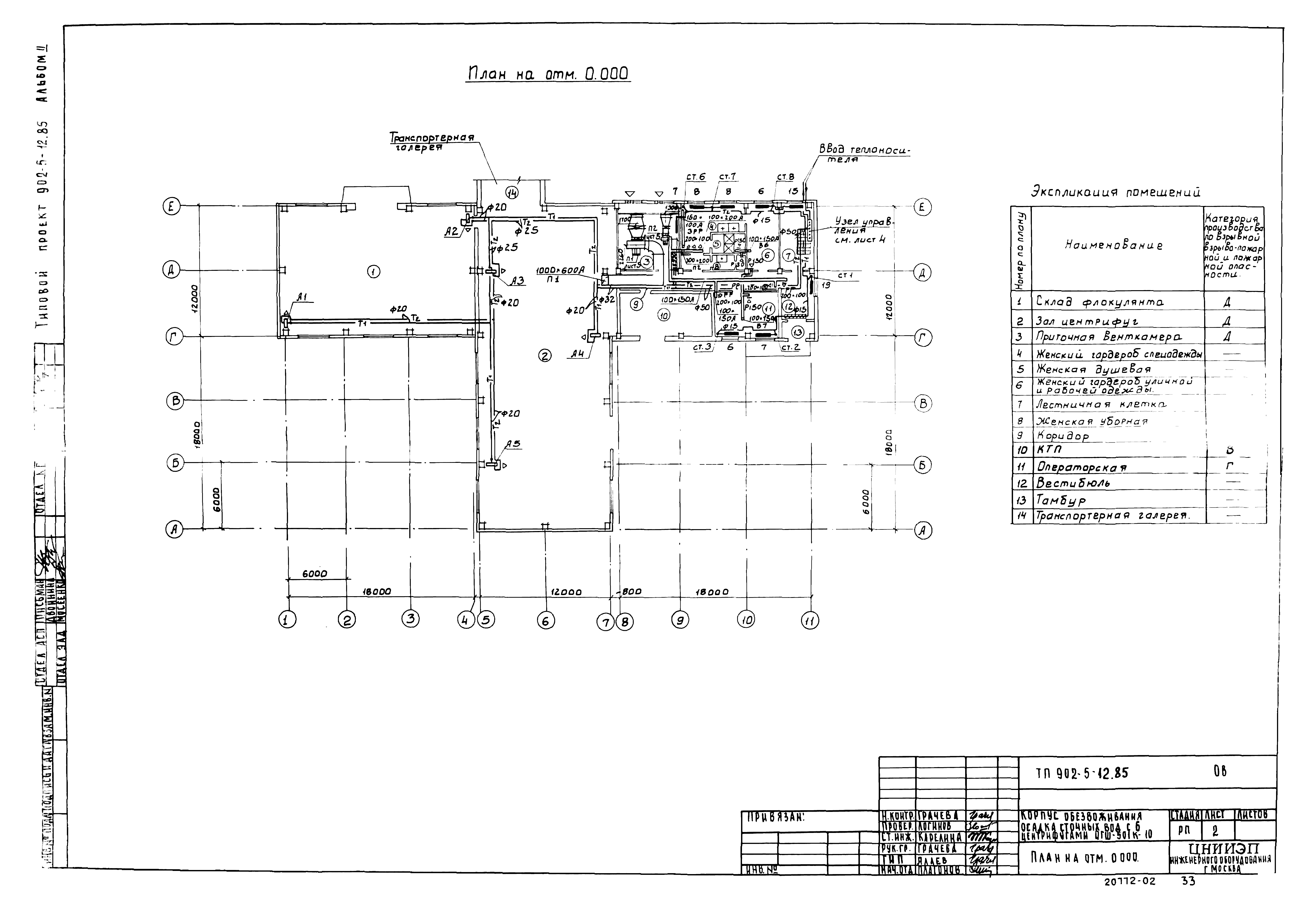
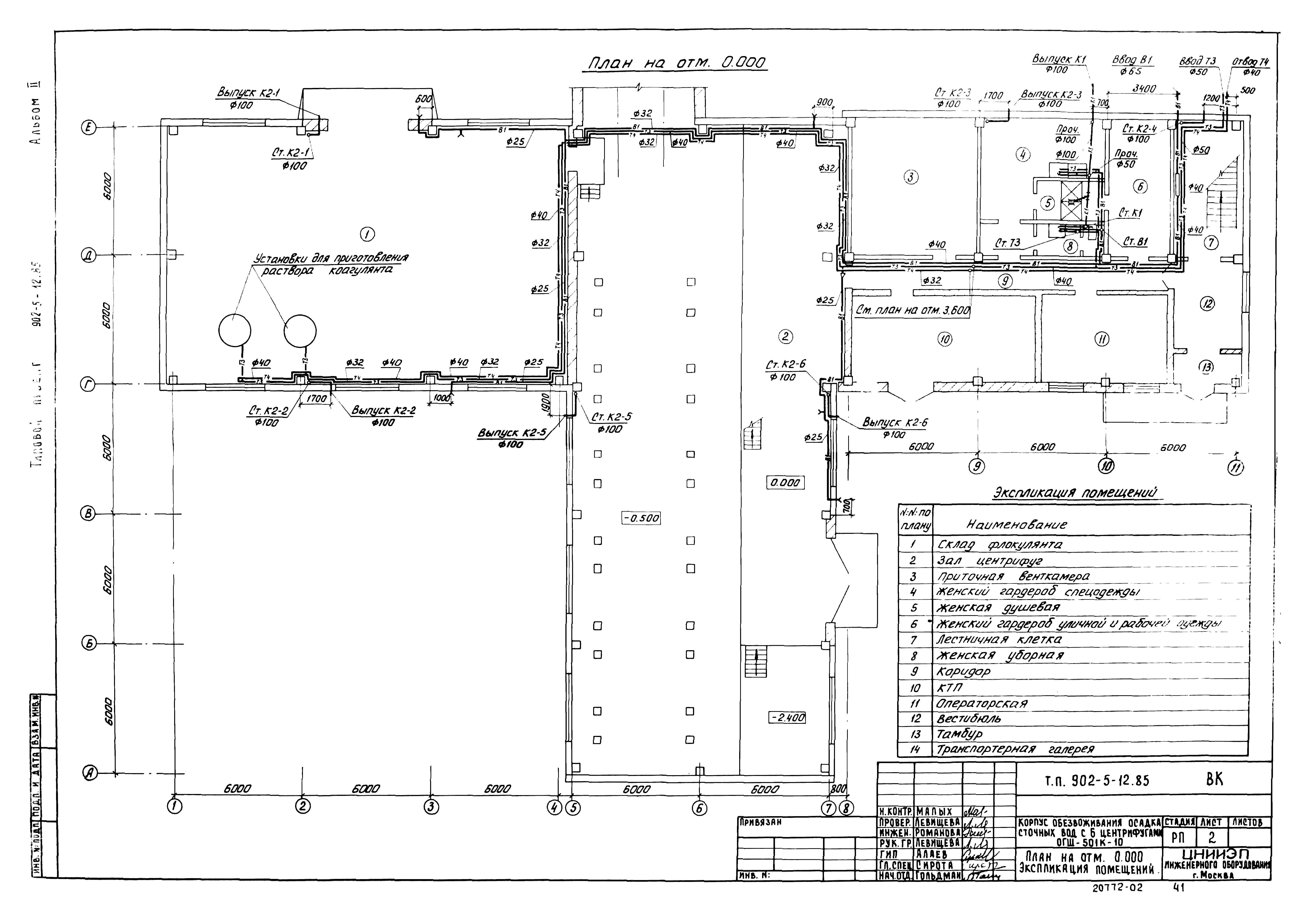
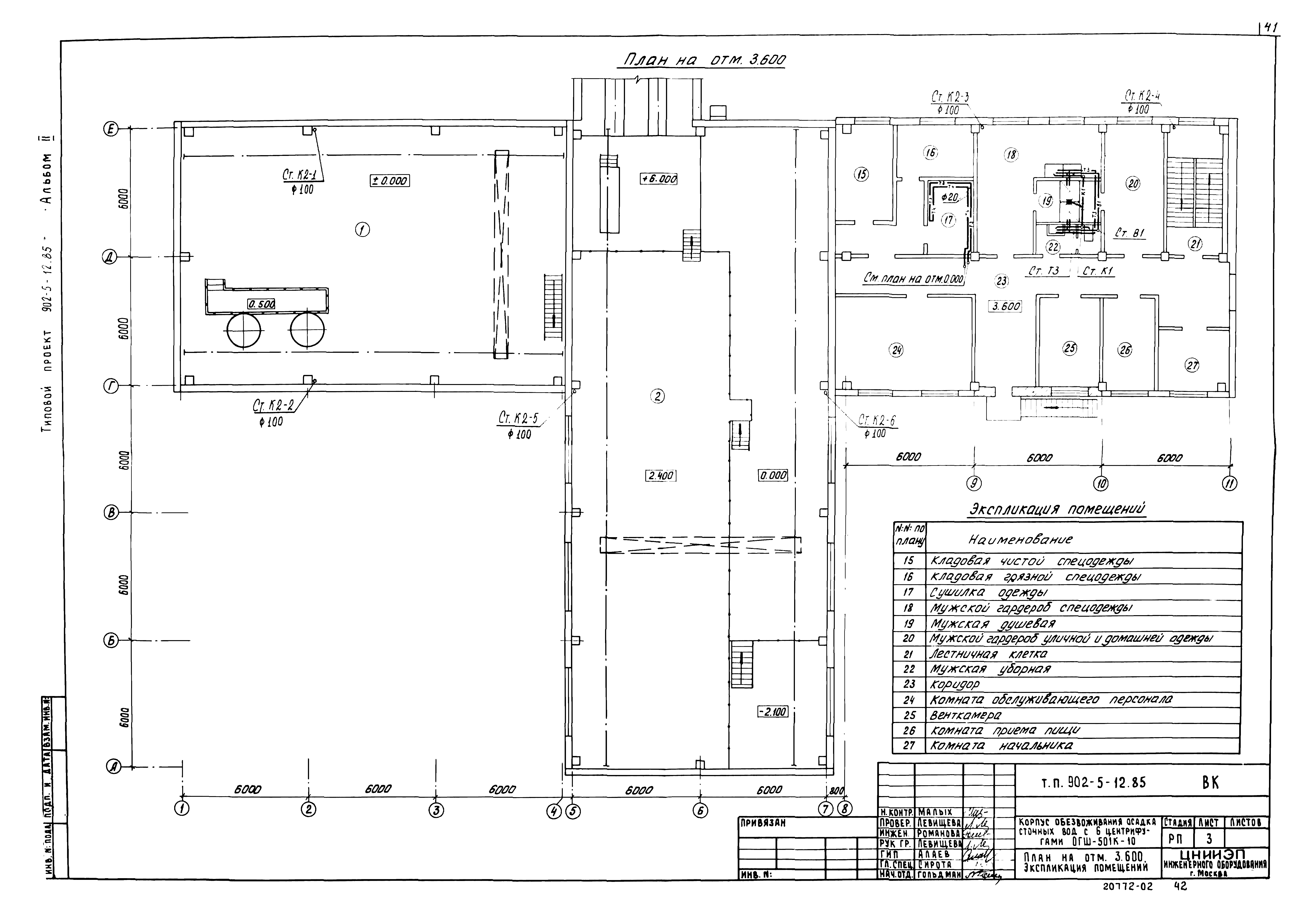
| Оглавление: | ТП 902-5-12.85 Содержание альбома ТП 902-5-12.85-ТХ Технологическая часть ТП 902-5-12.85-ТХ-1 Общие данные ТП 902-5-12.85-ТХ-2 Принципиальная технологическая схема ТП 902-5-12.85-ТХ-3 План на отм. 0.000. Экспликация помещений. Экспликация оборудования ТП 902-5-12.85-ТХ-4 План на отм. 4.800. Разрез 1-1 ТП 902-5-12.85-ТХ-5 Зал центрифуг. План на отм. 0.000 ТП 902-5-12.85-ТХ-6 Зал центрифуг. План на отм. 2.400;4.800 ТП 902-5-12.85-ТХ-7 Зал центрифуг. Разрез 2-2 ТП 902-5-12.85-ТХ-8 Зал центрифуг. Разрез 3-3 ТП 902-5-12.85-ТХ-9 Зал центрифуг. Разрез 4-4. Узел 1 ТП 902-5-12.85-ТХ-10 Склад флокулянта. План ТП 902-5-12.85-ТХ-11 Склад флокулянта. Разрез 5-5;6-6 ТП 902-5-12.85-ТХ-12 Схема И11 ТП 902-5-12.85-ТХ-13 Схемы И1;И8;И12 ТП 902-5-12.85-ТХ-14 Схема В3 ТП 902-5-12.85-ТХ-15 Схема К3 ТП 902-5-12.85-ТХ-16 Схемы Х1;Х2 ТП 902-5-12.85-ТХ-17 Пример размещения корпуса обезвоживания осадка на генплане станции биологической очистки сточных вод Q=100 тыс. м³/сут. ТП 902-5-12.85-ТХН-1 Линия транспорта обезвоженного осадка. Общий вид ТП 902-5-12.85-ТХН-2 Линия транспорта обезвоженного осадка. Схема. Разрез. Выносной элемент ТП 902-5-12.85-ТХН-3 Линия транспорта обезвоженного осадка. Выносной элемент. Виды ТП 902-5-12.85-ТХН-4 Линия транспорта обезвоженного осадка. Разрезы ТП 902-5-12.85-ТХН-5 Бак осадка. Общий вид ТП 902-5-12.85-ТХН-6 Бак песчаной пульпы. Общий вид ТП 902-5-12.85-ТХН-7 Бак фугата. Общий вид ТП 902-5-12.85-ТХН-8 Течка фугата. Общий вид ТП 902-5-12.85-ТХН-9 Течка осадка. Общий вид ТП 902-5-12.85-ТХН-10 Течка концевая. Общий вид ТП 902-5-12.85-ТХН-11 Рама натяжки. Общий вид ТП 902-5-12.85-ТХН-12 Рама привода. Общий вид ТП 902-5-12.85-ТХН-13 Рама гидроциклона. Общий вид ТП 902-5-12.85-ОВ Санитарно-техническая часть ТП 902-5-12.85-ОВ Отопление и вентиляция ТП 902-5-12.85-ОВ-1 Общие данные ТП 902-5-12.85-ОВ-2 План на отм. 0.000 ТП 902-5-12.85-ОВ-3 План на отм. 3.600 ТП 902-5-12.85-ОВ-4 Схема систем отопления. Схемы систем П1;П2;В1-В7. Узел управления. Схема системы теплоснабжения установок П1;П2;А1-А4 ТП 902-5-12.85-ОВ-5 Установки систем П1;П2. Схема системы теплоснабжения установок П1;П2 ТП 902-5-12.85-ОВ-6 Установки систем В5;В6;В7 ТП 902-5-12.85-ОВН-1,ОВН-2 Конфузоры. Переходы ТП 902-5-12.85-ОВН-3 Воздуховод из асбестоцементных листов. Узлы соединений ТП 902-5-12.85-ОВН-4 Конструкция изоляции трубопроводов ТП 902-5-12.85-ВК Водопровод и канализация ТП 902-5-12.85-ВК-1 Общие данные ТП 902-5-12.85-ВК-2 План на отм. 0.000. Экспликация помещений ТП 902-5-12.85-ВК-3 План на отм. 3.600. Экспликация помещений ТП 902-5-12.85-ВК-4 План кровли ТП 902-5-12.85-ВК-5 Схемы В3 и Т3,Т4 ТП 902-5-12.85-ВК-6 Схемы К1 и К2 |
| Разработан: | ЦНИИЭП |
| Утверждён: | 18.02.1985 Госгражданстрой (Gosgrazhdanstroy 49) |










































