Скачать Серия 1.462-12с Выпуск 1. Материалы для проектирования покрытий с применением балок серии 1.462-1Дата актуализации: 01.01.2021
|
| Обозначение: | Серия 1.462-12с |
| Обозначение англ: | Series 1.462-12с |
| Статус: | не действует |
| Название рус.: | Выпуск 1. Материалы для проектирования покрытий с применением балок серии 1.462-1 |
| Дата добавления в базу: | 01.09.2013 |
| Дата актуализации: | 01.01.2021 |
| Дата введения: | 01.10.1978 |
| Дата окончания срока действия: | 01.12.1991 |
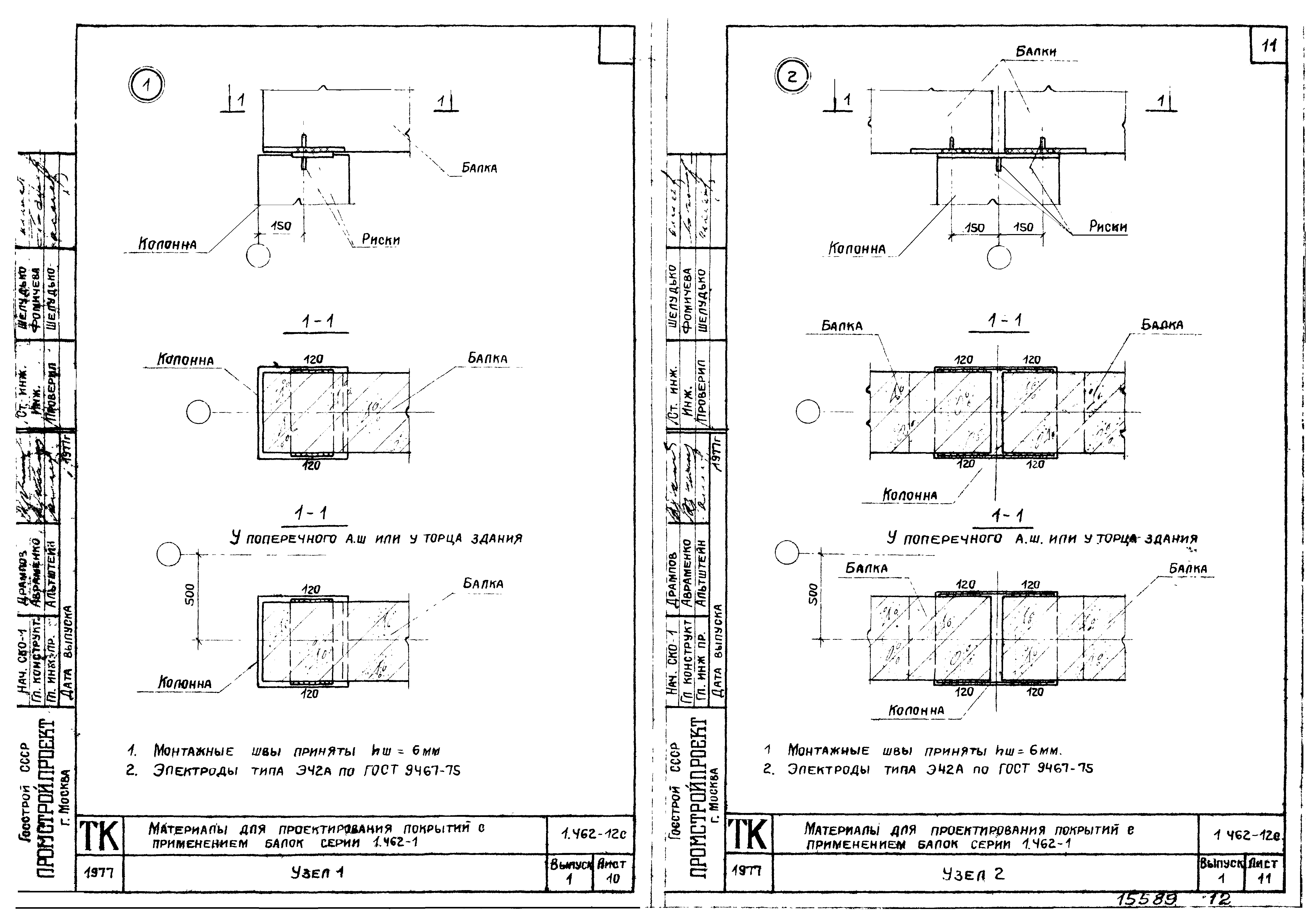
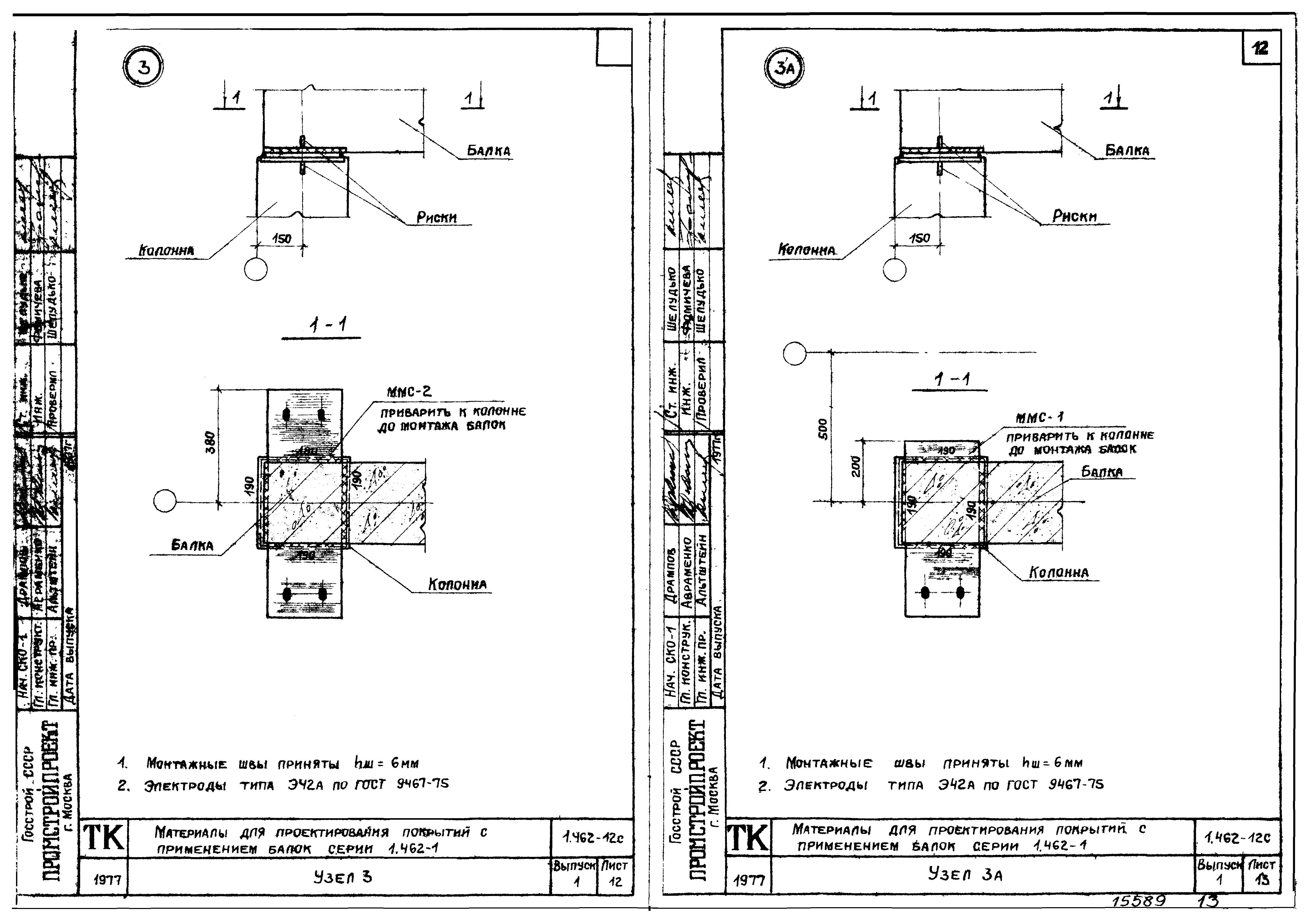
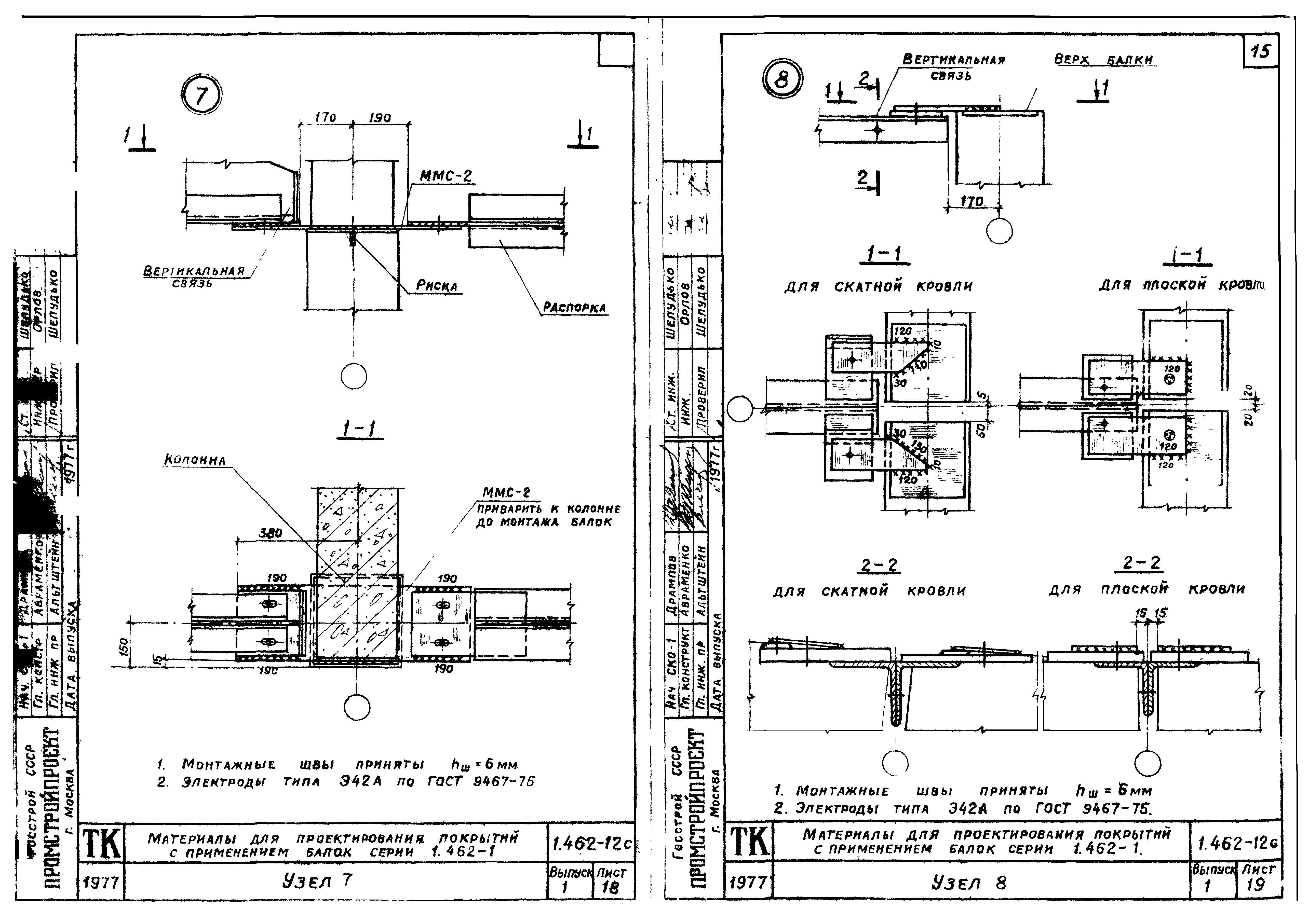
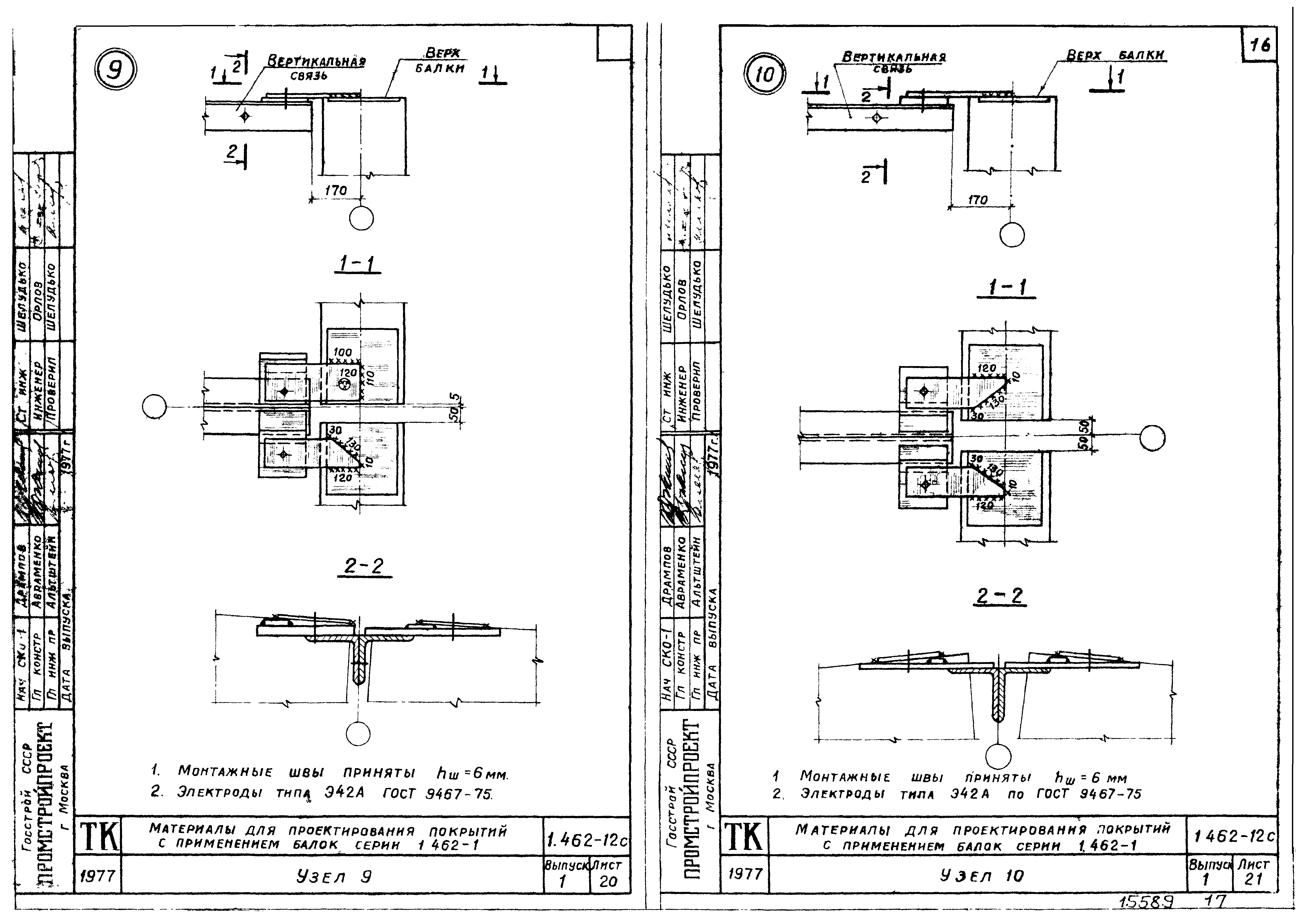
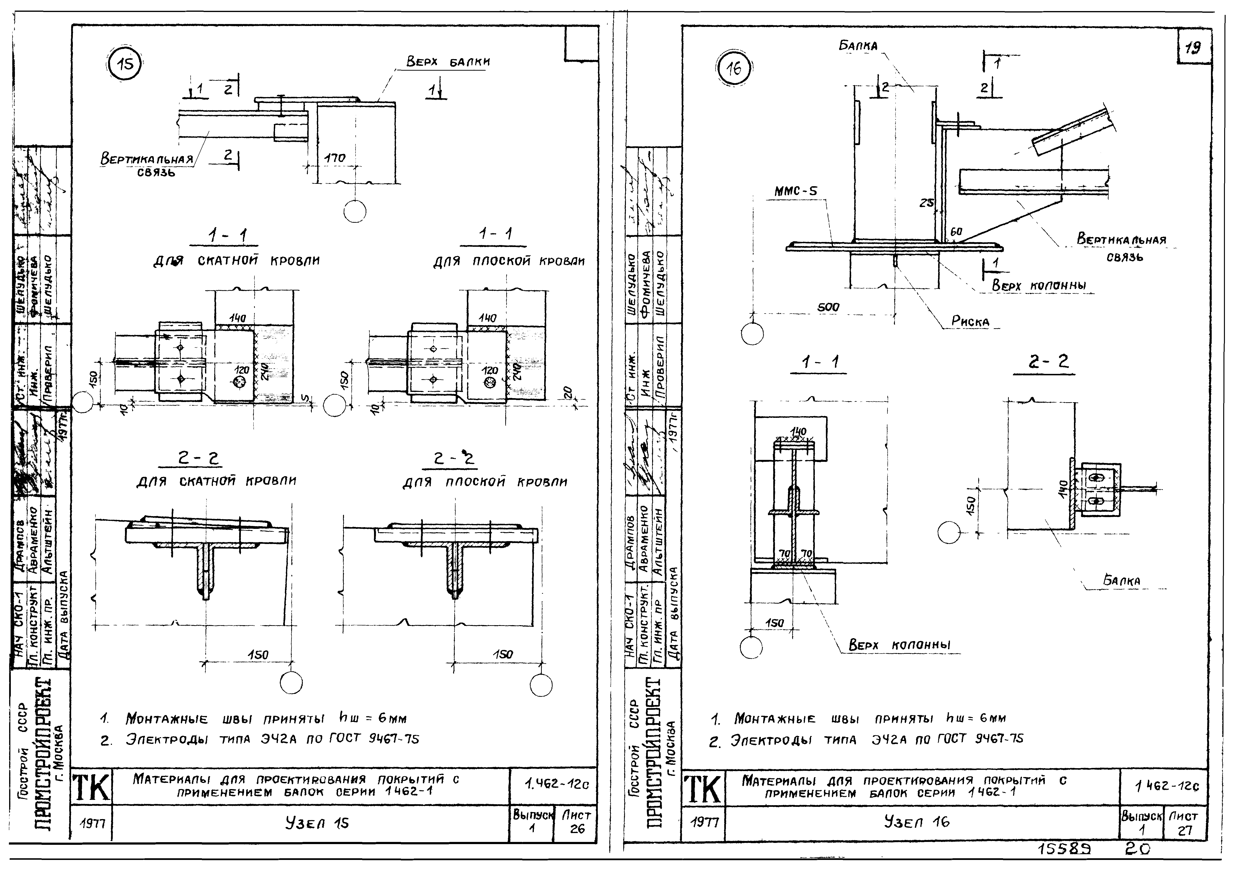
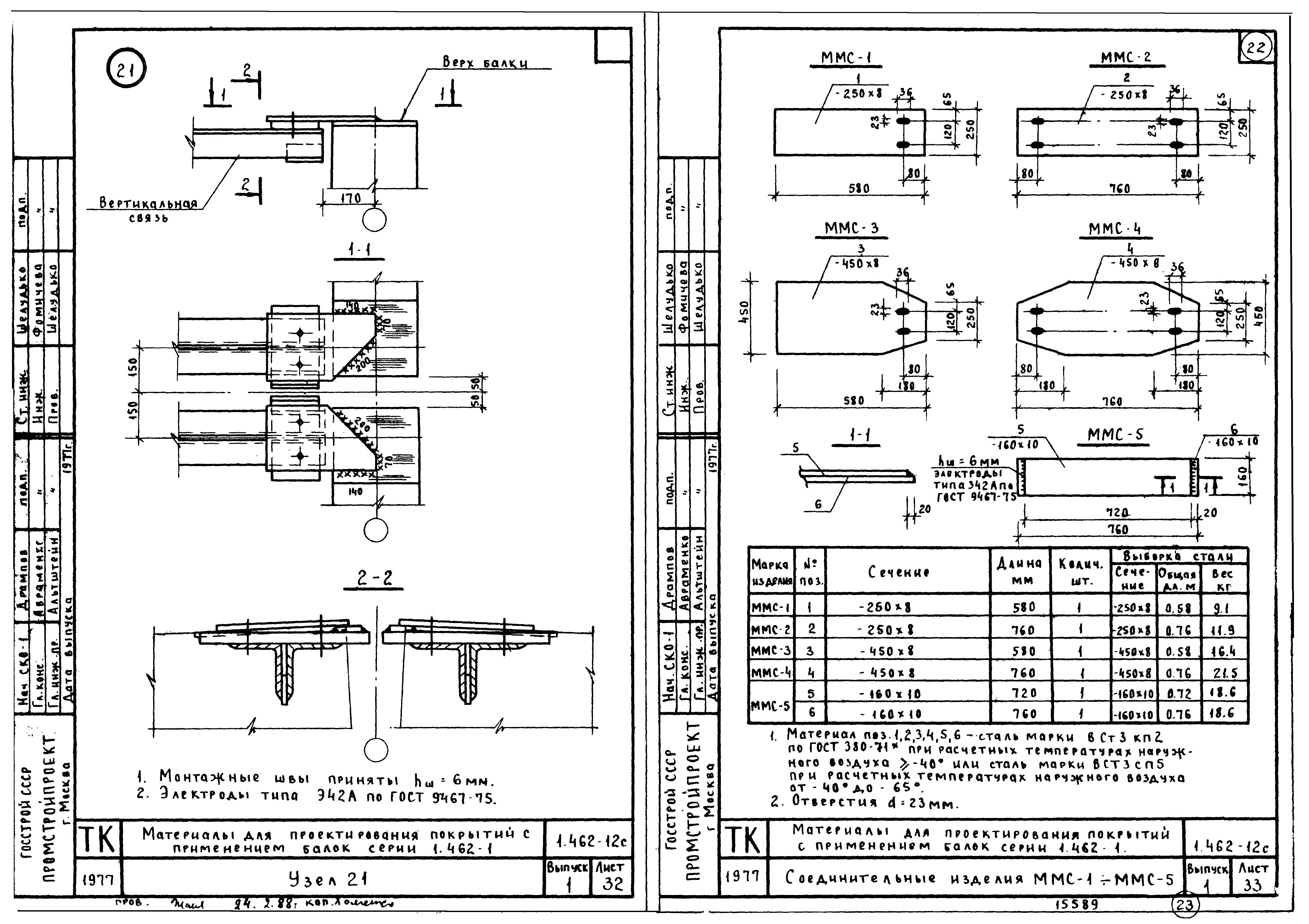
| Оглавление: | 1.462-12С Пояснительная записка 1.462-12С Схема конструкций покрытия при расчетной сейсмичности 7 баллов 1.462-12С Схема конструкций покрытия при расчетной сейсмичности 8 баллов 1.462-12С Продольные разрезы конструкций покрытия при расчетной сейсмичности 8 баллов 1.462-12С Схема конструкций покрытия при расчетной сейсмичности 9 баллов 1.462-12С Продольные разрезы конструкций покрытия при расчетной сейсмичности 9 баллов 1.462-12С Разбивка дополнительных закладных изделий 1.462-12С Закладные изделия А-1С,А-2С 1.462-12С Закладное изделие А-3С 1.462-12С Узел 1 1.462-12С Узел 2 1.462-12С Узел 3 1.462-12С Узел 3А 1.462-12С Узел 4 1.462-12С Узел 4А 1.462-12С Узел 5 1.462-12С Узел 6 1.462-12С Узел 7 1.462-12С Узел 8 1.462-12С Узел 9 1.462-12С Узел 10 1.462-12С Узел 11 1.462-12С Узел 12 1.462-12С Узел 13 1.462-12С Узел 14 1.462-12С Узел 15 1.462-12С Узел 16 1.462-12С Узел 17 1.462-12С Узел 18 1.462-12С Узел 19 1.462-12С Узел 20 1.462-12С Узел 21 1.462-12С Соединительные изделия ММС-1÷ММС-5 |
| Разработан: | НИИЖБ Промстройпроект |
| Утверждён: | 05.04.1978 Госстрой СССР (Государственный комитет Совета Министров СССР по делам строительства) (USSR Gosstroy 25) |






















