Скачать Типовой проект 902-3-71.87 Альбом I. Технологические решения. Конструкции железобетонныеДата актуализации: 01.01.2021
|
| Обозначение: | Типовой проект 902-3-71.87 |
| Обозначение англ: | 902-3-71.87 |
| Статус: | не определен законодательством |
| Название рус.: | Альбом I. Технологические решения. Конструкции железобетонные |
| Дата добавления в базу: | 01.09.2013 |
| Дата актуализации: | 01.01.2021 |
| Дата введения: | 04.09.1987 |
| Дата окончания срока действия: | 30.06.2003 |
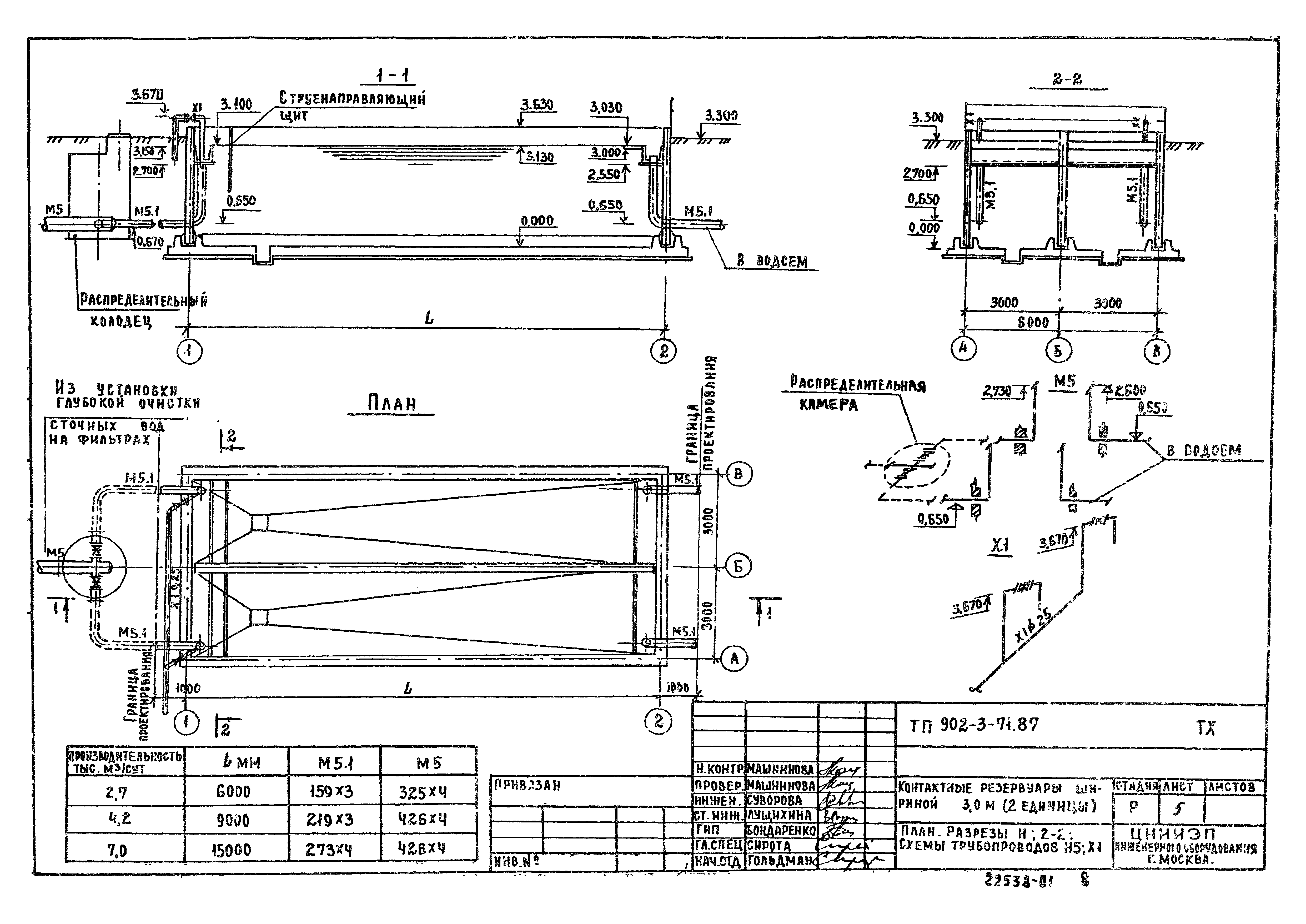
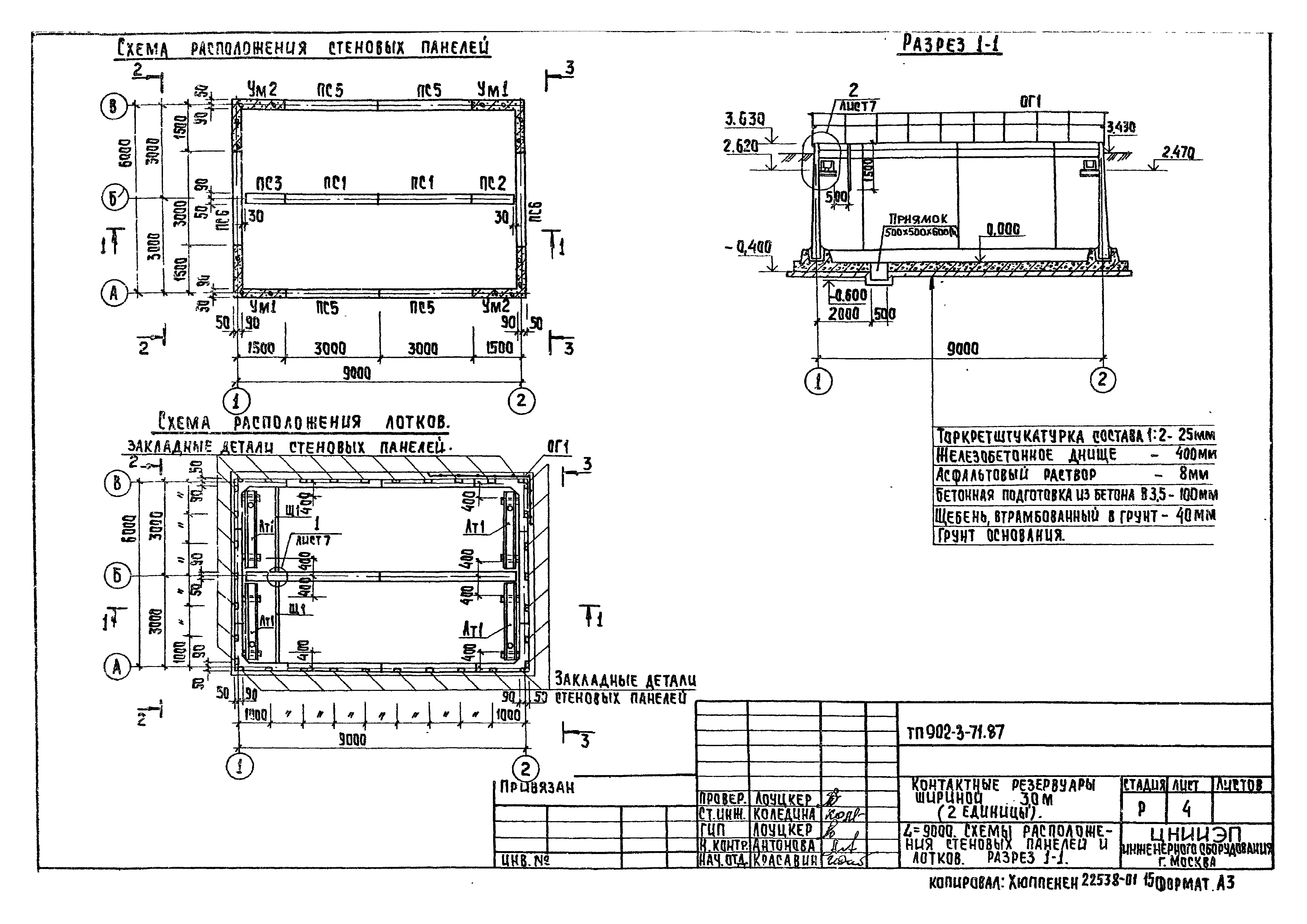
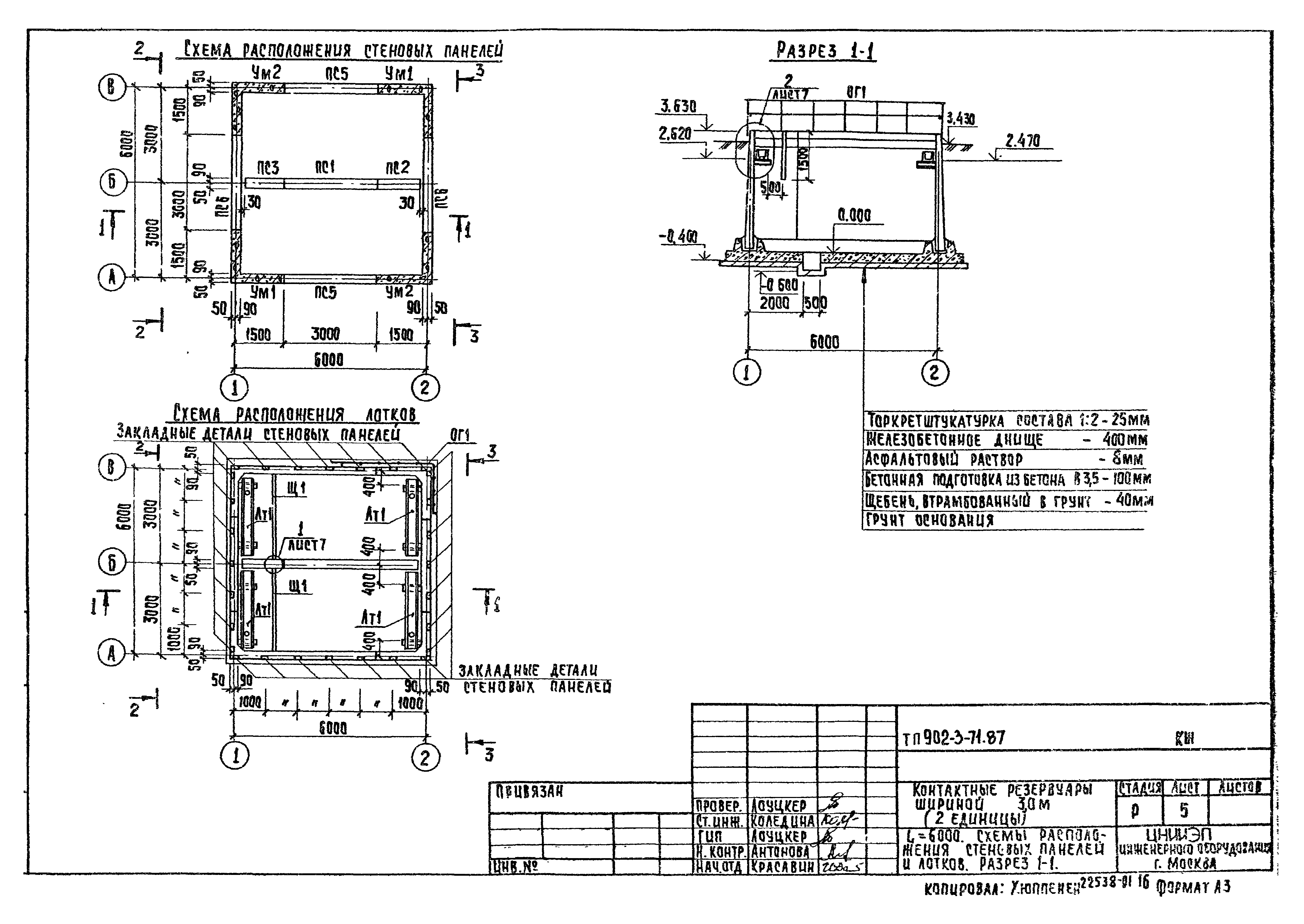
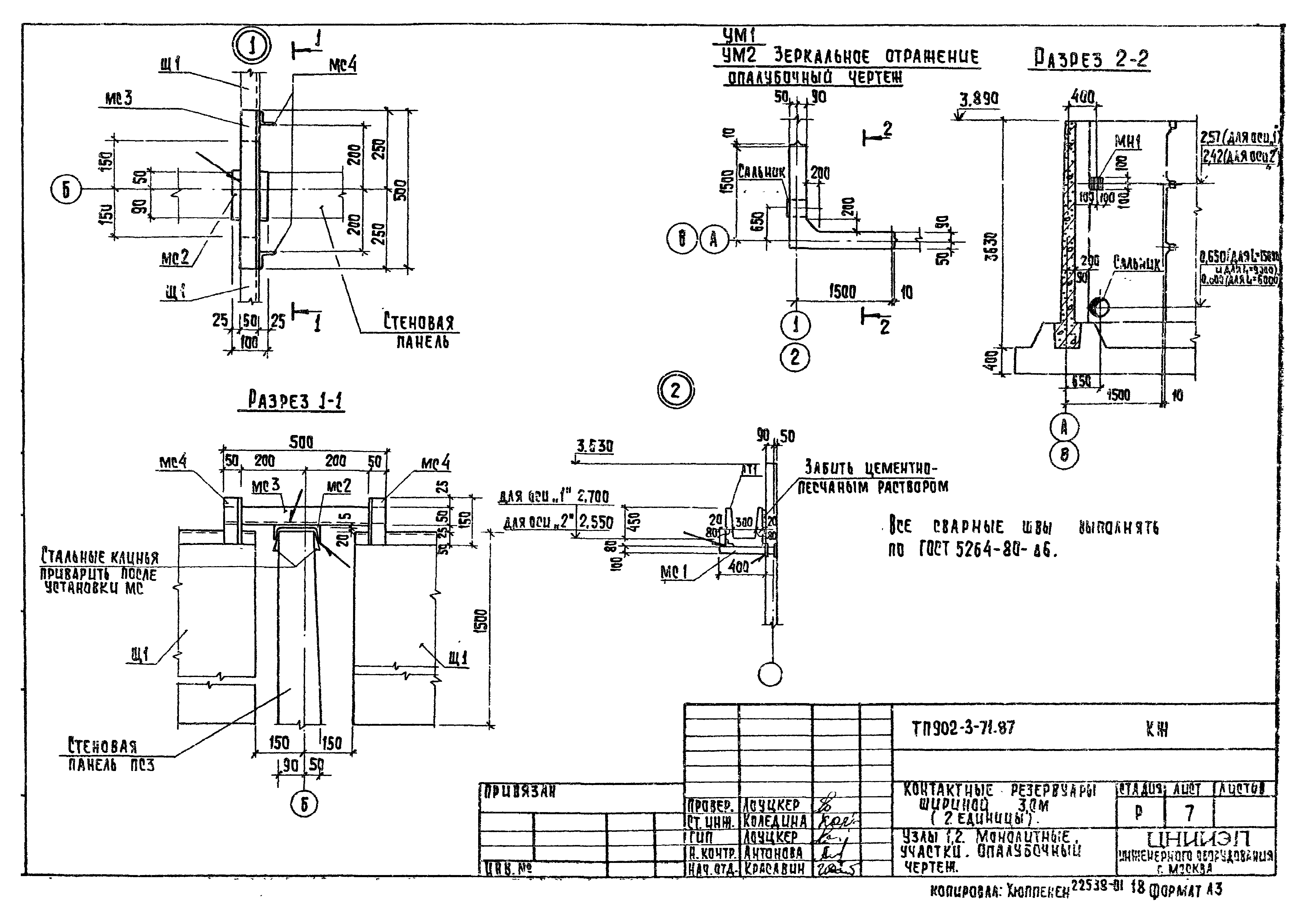
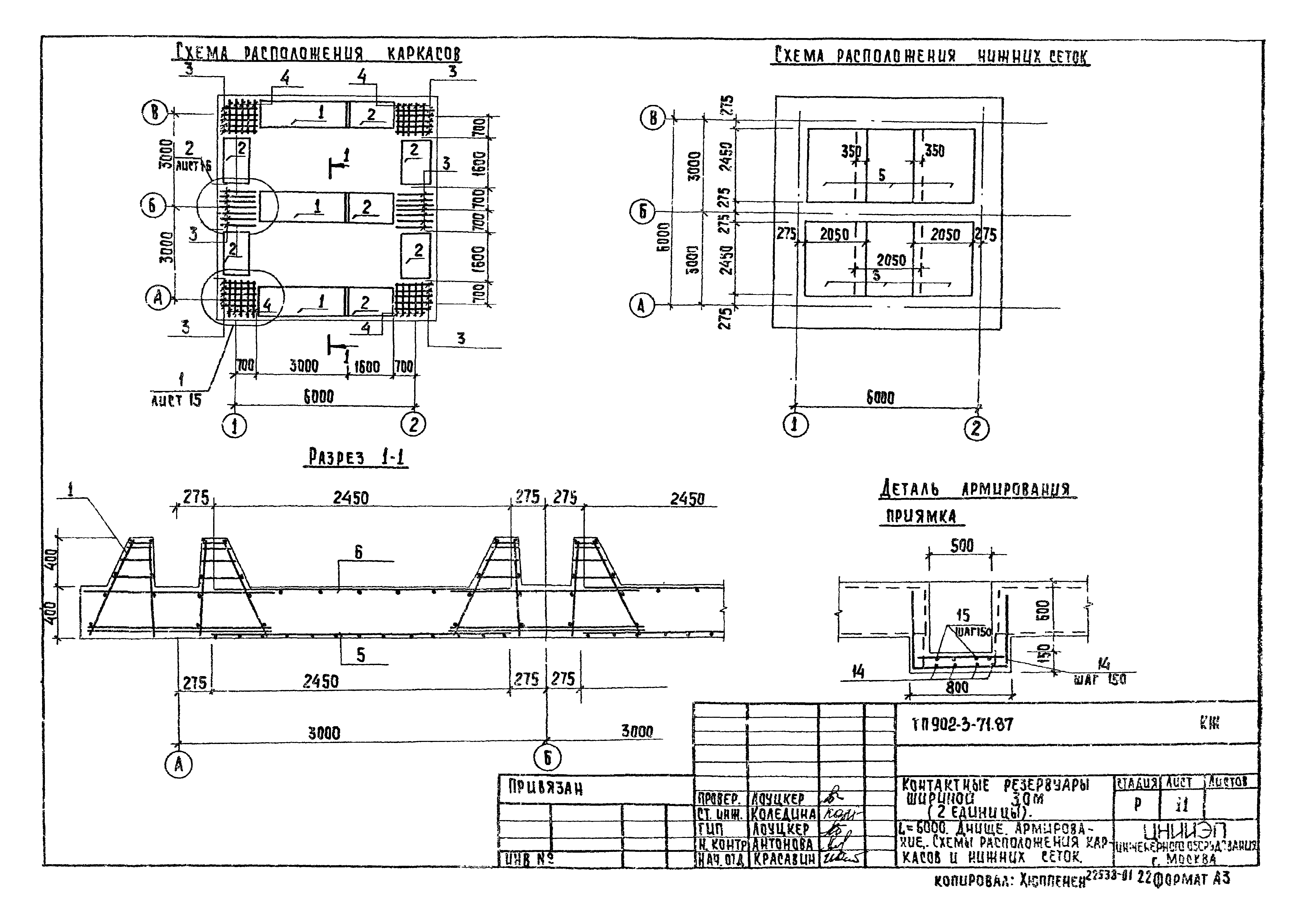
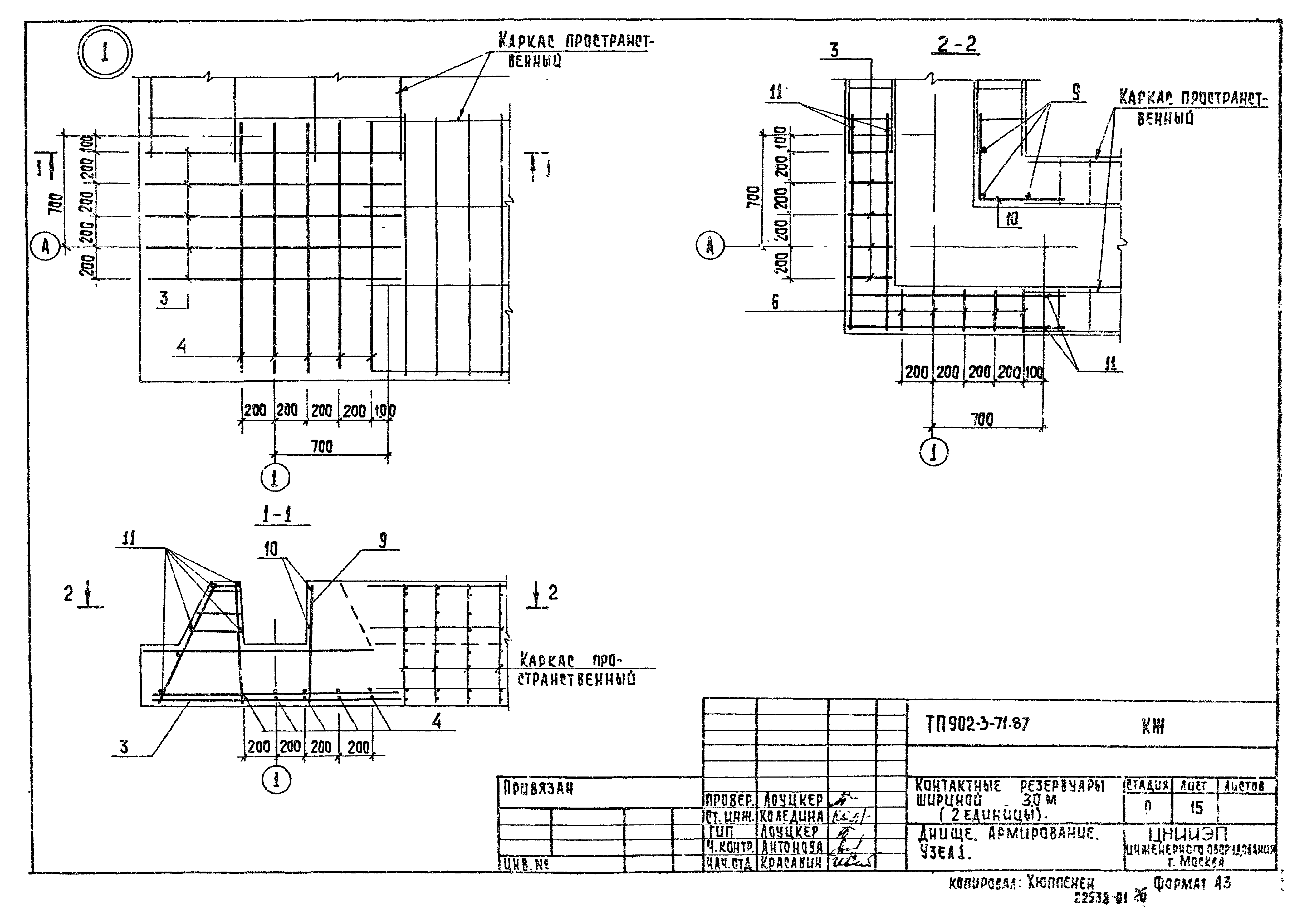
| Оглавление: | ТП 902-3-71.87 Содержание альбома ТП 902-3-71.87-ТХ Технологические решения ТП 902-3-71.87-ТХ-1 Общие данные (начало) ТП 902-3-71.87-ТХ-2 Общие данные (продолжение) ТП 902-3-71.87-ТХ-3 Общие данные (продолжение) ТП 902-3-71.87-ТХ-4 Общие данные (окончание) ТП 902-3-71.87-ТХ-5 План. Разрезы 1-1;2-2. Схемы трубопроводов М5,Х1 ТП 902-3-71.87-ТХ-6 Спецификация оборудования L=15000 ТП 902-3-71.87-ТХ-7 Спецификация оборудования L=9000 ТП 902-3-71.87-ТХ-8 Спецификация оборудования L=6000 ТП 902-3-71.87-КЖ Конструкции железобетонные ТП 902-3-71.87-КЖ-1 Общие данные (начало) ТП 902-3-71.87-КЖ-2 Общие данные (окончание) ТП 902-3-71.87-КЖ-3 L=15000. Схема расположения стеновых панелей и лотков. Разрез 1-1 ТП 902-3-71.87-КЖ-4 L=9000. Схемы расположения стеновых панелей и лотков. Разрез 1-1 ТП 902-3-71.87-КЖ-5 L=6000. Схемы расположения стеновых панелей и лотков. Разрез 1-1 ТП 902-3-71.87-КЖ-6 Схемы расположения стеновых панелей и лотков. Разрезы 2-2;3-3. Спецификация ТП 902-3-71.87-КЖ-7 Узлы 1,2. Монолитные участки. Опалубочный чертеж ТП 902-3-71.87-КЖ-8 Днище. Опалубочный чертеж ТП 902-3-71.87-КЖ-9 L=15000. Днище. Армирование. Схемы расположения каркасов и нижних сеток ТП 902-3-71.87-КЖ-10 L=9000. Днище. Армирование. Схемы расположения каркасов и нижних сеток ТП 902-3-71.87-КЖ-11 L=6000. Днище. Армирование. Схемы расположения каркасов и нижних сеток ТП 902-3-71.87-КЖ-12 L=15000. Днище. Армирование. Схемы расположения каркасов и верхних сеток. Спецификация ТП 902-3-71.87-КЖ-13 L=9000. Днище. Армирование. Схемы расположения каркасов и верхних сеток. Спецификация ТП 902-3-71.87-КЖ-14 L=6000. Днище. Армирование. Схемы расположения каркасов и верхних сеток. Спецификация ТП 902-3-71.87-КЖ-15 Днище. Армирование. Узел 1 ТП 902-3-71.87-КЖ-16 Днище. Армирование. Узел 2 ТП 902-3-71.87-КЖ-17 Монолитные участки УМ1,УМ2. Армирование ТП 902-3-71.87-КЖ-18 Монолитные участки УМ1,УМ2. Спецификации ТП 902-3-71.87-ОС Организация строительства ТП 902-3-71.87-ОС-1 Пояснительная записка ТП 902-3-71.87-ОС-2 График производства работ L=15000 ТП 902-3-71.87-ОС-3 График производства работ L=9000 ТП 902-3-71.87-ОС-4 График производства работ L=6000 |
| Разработан: | ЦНИИЭП |
| Утверждён: | 04.09.1987 Госгражданстрой (Gosgrazhdanstroy 277) |































