Скачать Типовой проект 228-1-604.88 Альбом II. Отопление, вентиляция, внутренний водопровод и канализация, электрооборудование, связь и сигнализацияДата актуализации: 01.01.2021
|
| Обозначение: | Типовой проект 228-1-604.88 |
| Обозначение англ: | 228-1-604.88 |
| Статус: | не определен законодательством |
| Название рус.: | Альбом II. Отопление, вентиляция, внутренний водопровод и канализация, электрооборудование, связь и сигнализация |
| Дата добавления в базу: | 01.09.2013 |
| Дата актуализации: | 01.01.2021 |
| Дата введения: | 01.06.1987 |
| Дата окончания срока действия: | 30.06.2003 |
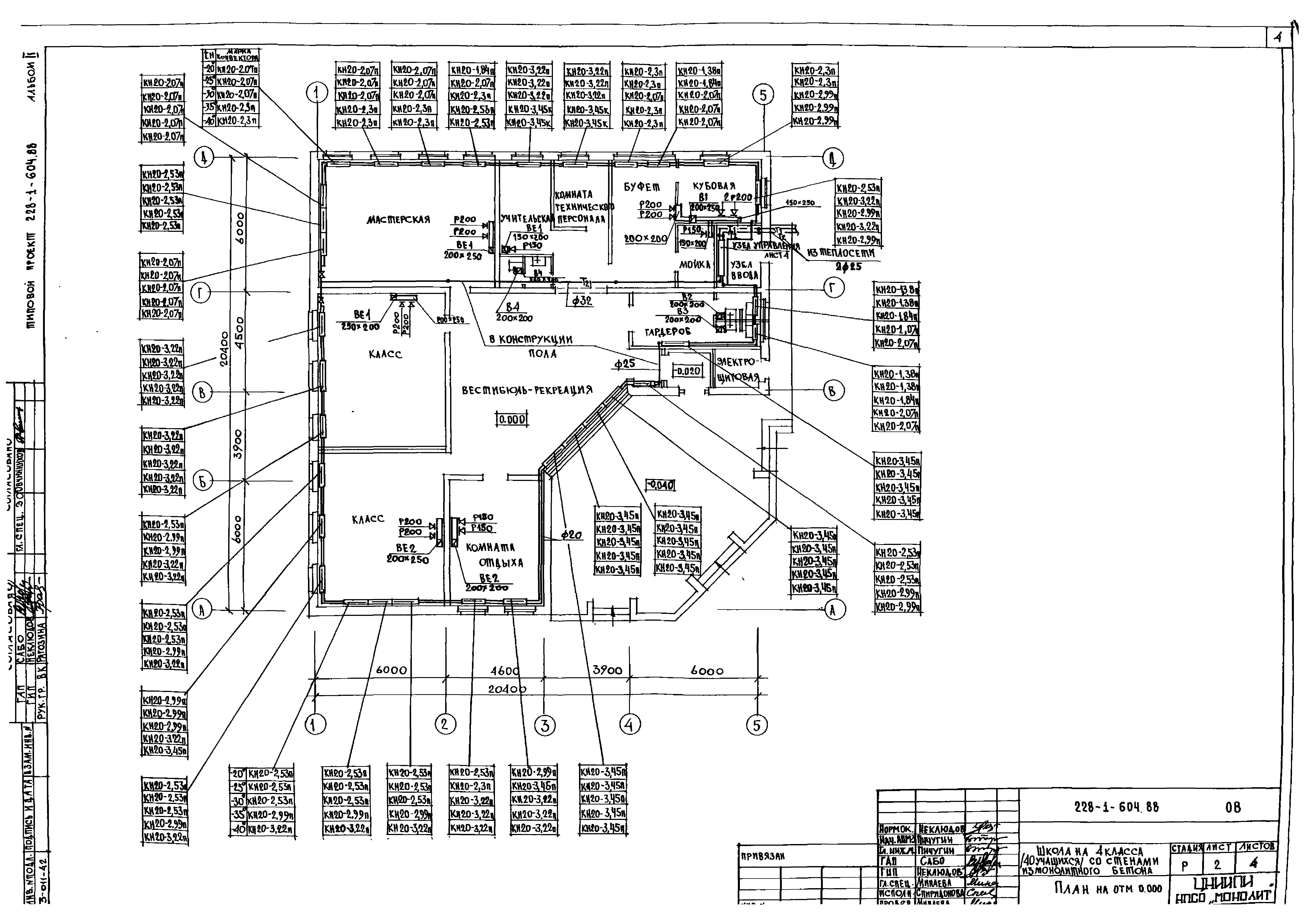
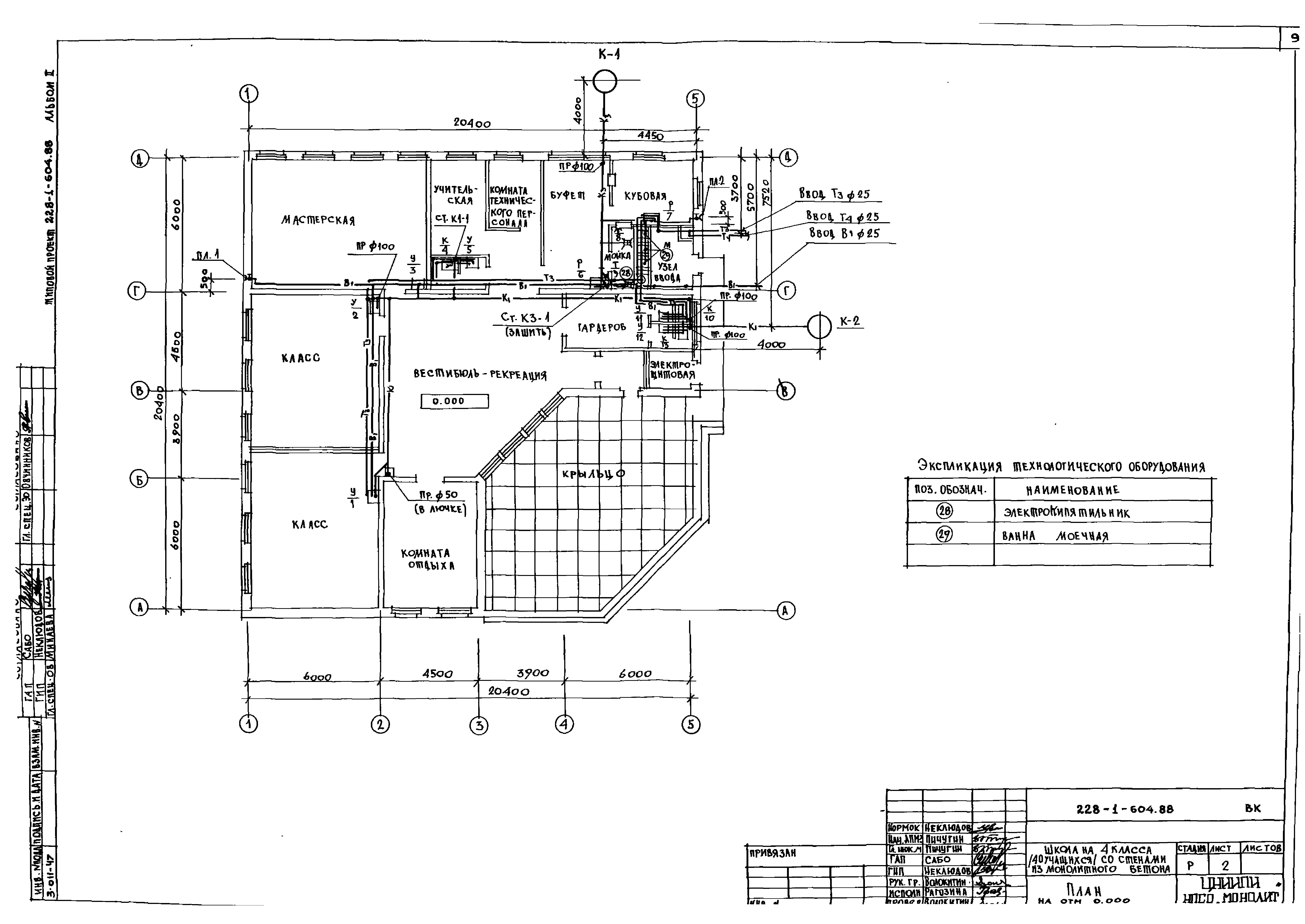
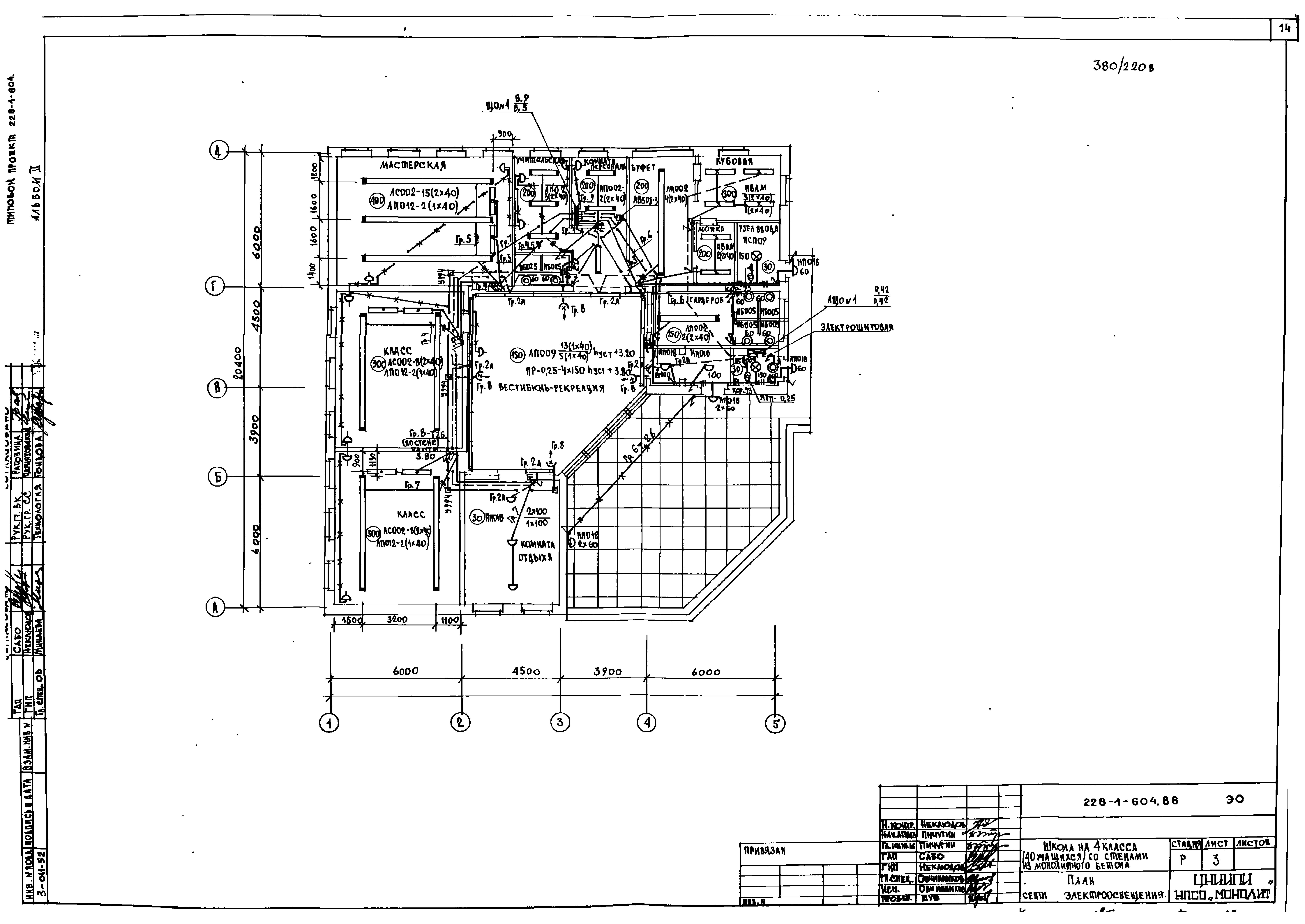
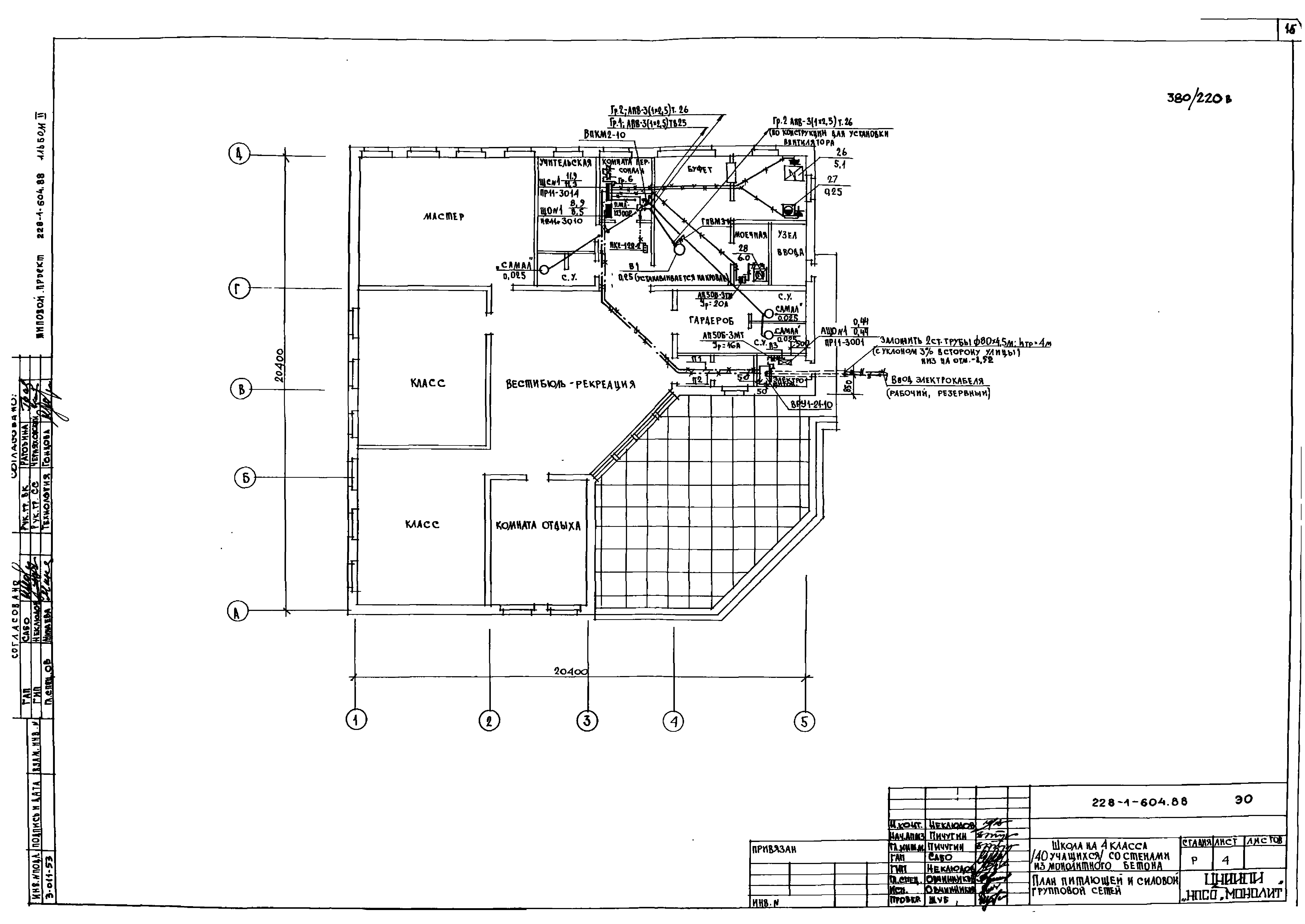
| Оглавление: | ТП 228-1-604.88 Титульный лист ТП 228-1-604.88 Содержание альбома ТП 228-1-604.88-ОВ Отопление и вентиляция марки ОВ ТП 228-1-604.88-ОВ-1 Общие данные ТП 228-1-604.88-ОВ-2 План ТП 228-1-604.88-ОВ-3 План чердака. Схемы систем В1,В2,В3,В4,ВЕ1,ВЕ2 ТП 228-1-604.88-ОВ-4 Схема системы отопления. Схема узла управления ТП 228-1-604.88 Прилагаемые документы ТП 228-1-604.88-ОВН1 Воздуховод из асбестоцементных листов ТП 228-1-604.88-ВК Водопровод и канализация марки ВК ТП 228-1-604.88-ВК-1 Общие данные ТП 228-1-604.88-ВК-2 План ТП 228-1-604.88-ВК-3 План чердака ТП 228-1-604.88-ВК-4 Схемы систем В1,Т3,Т4,К1,К3 ТП 228-1-604.88-ЭО Электрооборудование марки ЭО ТП 228-1-604.88-ЭО-1 Общие данные ТП 228-1-604.88-ЭО-2 Расчетная схема питающей и силовой групповой сетей ТП 228-1-604.88-ЭО-3 План сети электроосвещения ТП 228-1-604.88-ЭО-4 План питающей и силовой групповой сетей ТП 228-1-604.88 Прилагаемые документы ТП 228-1-604.88 Опросный лист ТП 228-1-604.88-СС-1 Общие данные (начало) ТП 228-1-604.88-СС-2 Общие данные (окончание) ТП 228-1-604.88-СС-3 Схема расположения устройств связи ТП 228-1-604.88-СС-4 План расположения |
| Разработан: | ПСК ЦНИИПИ Монолит |
| Утверждён: | 01.06.1987 Госгражданстрой (Gosgrazhdanstroy 172) |




















