Скачать Типовой проект 291-8-21.87 Альбом I. Архитектурно-строительные и технологические чертежиДата актуализации: 01.01.2021
|
| Обозначение: | Типовой проект 291-8-21.87 |
| Обозначение англ: | 291-8-21.87 |
| Статус: | не определен законодательством |
| Название рус.: | Альбом I. Архитектурно-строительные и технологические чертежи |
| Дата добавления в базу: | 01.09.2013 |
| Дата актуализации: | 01.01.2021 |
| Дата введения: | 15.06.1987 |
| Дата окончания срока действия: | 30.06.2003 |
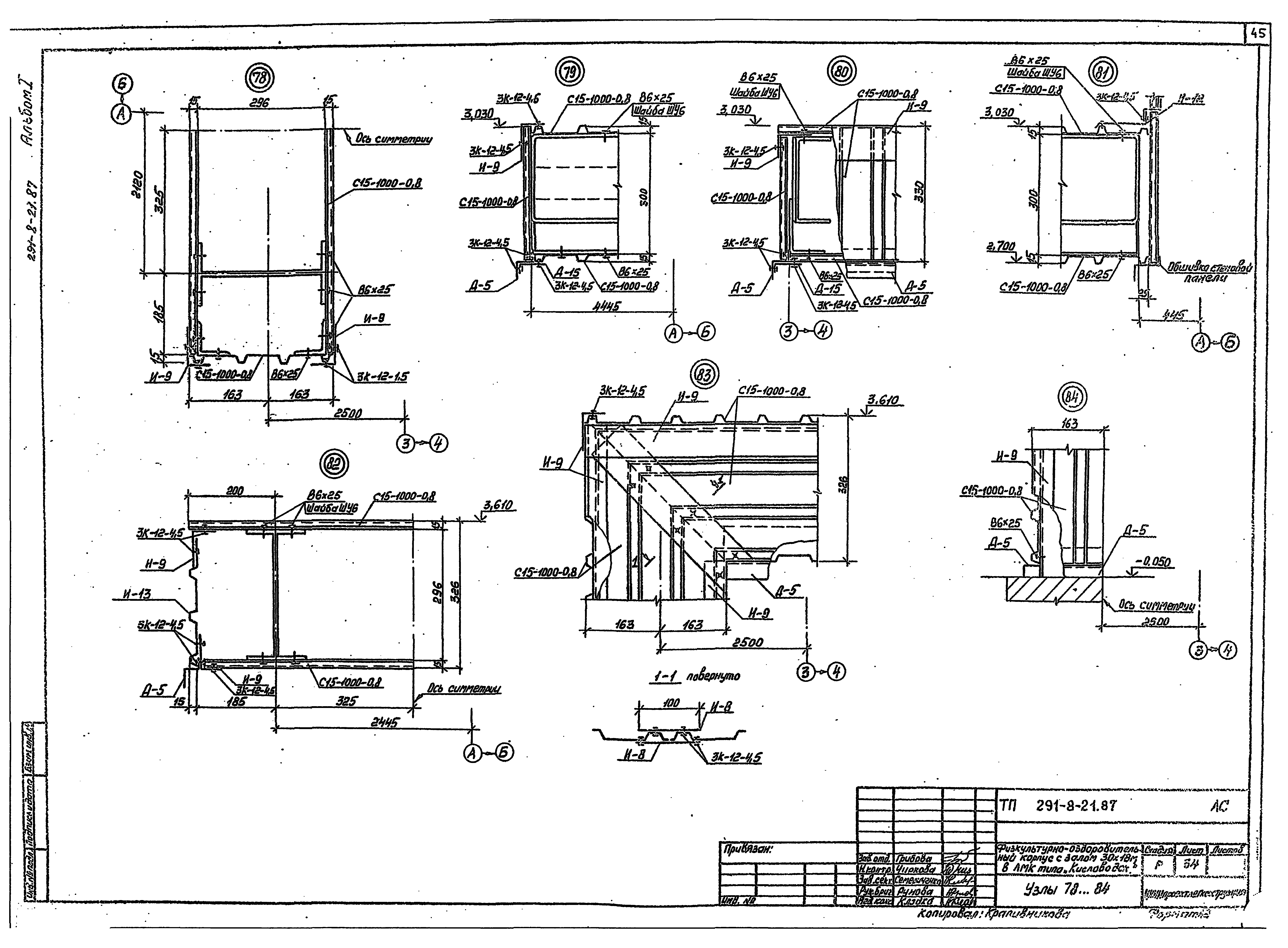
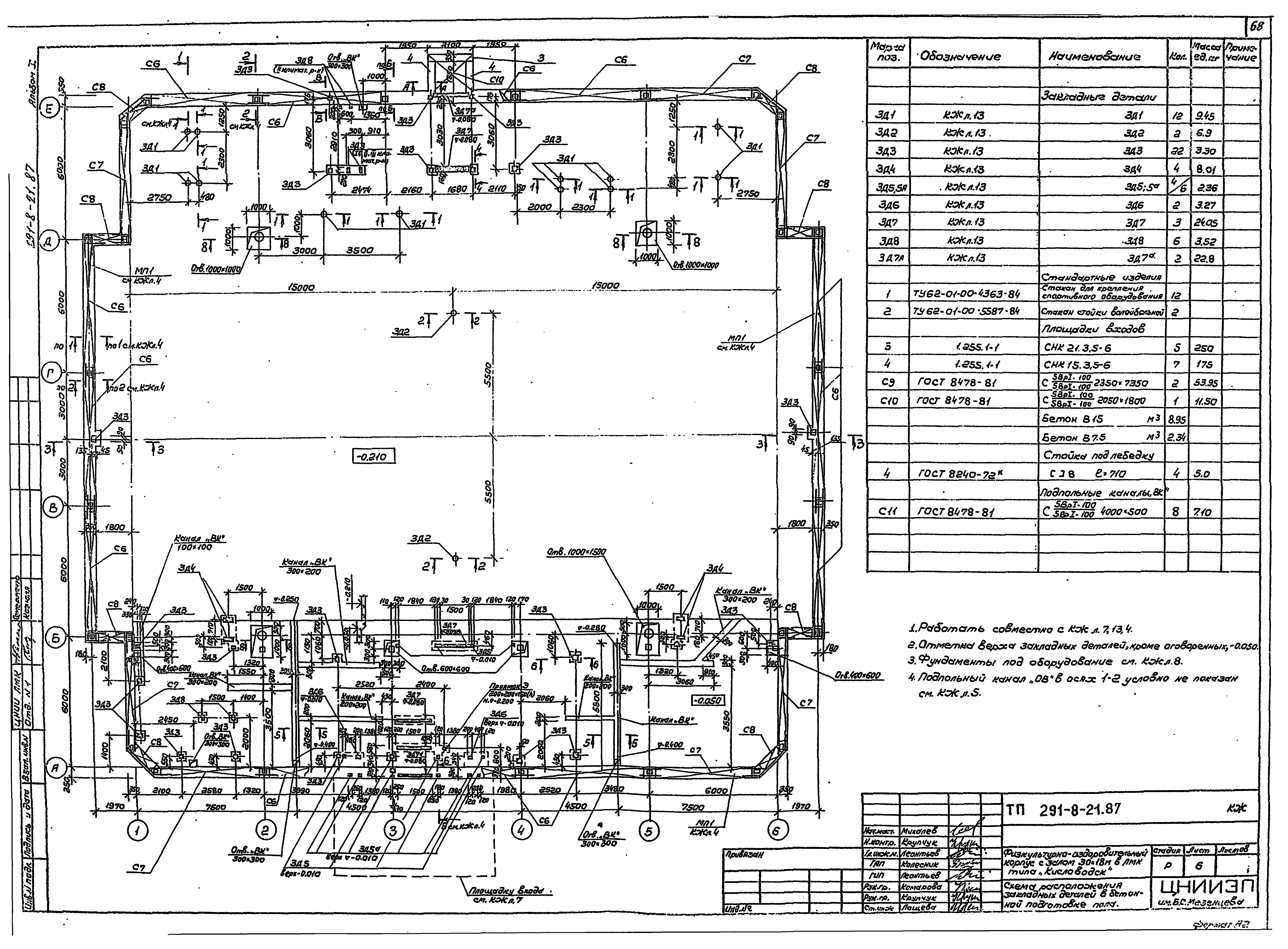
| Оглавление: | Чертежи марки АР Общие данные Планы на отм. 0.000; 3.300. Разрезы 1-1, 2-2 Фасады 1 - 6; А - Е; 6 - 1; Е - А План кровли. Узлы 1, 2 Фрагменты 1, 2 План пола на отм. 0.000; 3.300 Чертежи марки ТО Расстановка спортивного оборудования и мебели План сауны с расположением технологического оборудования Чертежи марки АС Общие данные Техническая спецификация металла Схемы расположения стеновых панелей по осям А и 6 Схемы расположения стеновых панелей по осям Е, 1, Б, Д Схемы расположения стеновых панелей. Разрезы 1-1…6-6 Схемы расположения оконных блоков в осях 1 - 6; 6 - 1; А - Е; Е - А Схемы заполнения алюминиевых окон Схемы расположения витражей и тамбурных блоков по оси А и дверей по оси Е Схема расположения подшивки вентиляционного короба. Схема расположения витражей и тамбурных блоков в осях 3 - 4 Схемы расположения ограждения антресоли и лестниц Схема расположения элементов козырька Узлы 1…3 Узлы 4…6 Узлы 7…10 Узлы 11…14 Узлы 15…19 Узлы 20…24 Узлы 25…28 Узлы 29…35 Узлы 36…41 Узлы 42…48 Узлы 49…57 Узлы 58…64 Узлы 65…69 Узлы 70…74 Узел 75 Узлы 76, 77 Узлы 78…84 Узлы крепления гимнастической стенки и баскетбольного щита Спецификация стальных доборных элементов Спецификация алюминиевых элементов и неметаллических материалов Схема расположения перегородок Спецификация к схеме расположения перегородок Схема расположения перегородок. Разрезы 1-1…16-16; 56-56 Схема расположения перегородок. Разрезы 17-17…23-23; 27-27…31-31; 35-35…38-38. Узлы 1…5 Схема расположения перегородок. Узлы 6…11 Схема расположения перегородок. Узлы 12…20 Схема расположения перегородок в осях Д - Е, 3 - 4 для IV климатического района Сауна. План. Разрезы. Детали Сауна. Конструкции каркаса Сауна. План подшивного потолка. Полки. Спецификация Сауна. Детали Сауна. Дверь ИД-1. Спецификация Конструкции крепления зеркала и гимнастической стенки Схема расположения перегородок на отм. 3.300 м Чертежи марки КЖ Общие данные Схема расположения фундаментов Монолитные фундаменты ФМ1 - ФМ7 Схема расположения фундаментов. Монолитный фундамент ФМ8. Сечения. Детали Подпольный канал "ОБ". План. Сечения Схема расположения закладных деталей в бетонной подготовке пола Схема расположения закладных деталей в бетонной подготовке пола. Сечения 1-1 - 8-8. Площадка входа Фундаменты под оборудование и элементы крепления Схема расположения закладных деталей цоколя для стеновых панелей и деревянной обшивки цоколя Схема расположения закладных деталей цоколя. Узлы Схема расположения закладных деталей для крепления конвекторов для наружной температуры минус 10 градусов Цельсия Схема расположения закладных деталей для крепления конвекторов для наружных температур минус 20; 30; 40 градусов Цельсия Металлические изделия ЗД1 - ЗД8 Металлические изделия ЗД9 - ЗД16 Металлические изделия ИМ1; ИМ2; РМ1 - РМ5 Металлические изделия С1 - С8; А1 - А3; К1; К2 |
| Разработан: | ЦНИИЭП им. Б.С. Мезенцева Госгражданстроя |
| Утверждён: | 15.06.1987 Госгражданстрой (Gosgrazhdanstroy 184) |
| Издан: | ЦИТП Госстроя СССР (CITP, Gosstroy (USSR) 1987 г. ) |














































































