Скачать Типовой проект 291-8-21.87 Альбом II. Конструкции металлическиеДата актуализации: 01.01.2021
|
| Обозначение: | Типовой проект 291-8-21.87 |
| Обозначение англ: | 291-8-21.87 |
| Статус: | не определен законодательством |
| Название рус.: | Альбом II. Конструкции металлические |
| Дата добавления в базу: | 01.09.2013 |
| Дата актуализации: | 01.01.2021 |
| Дата введения: | 15.06.1987 |
| Дата окончания срока действия: | 30.06.2003 |
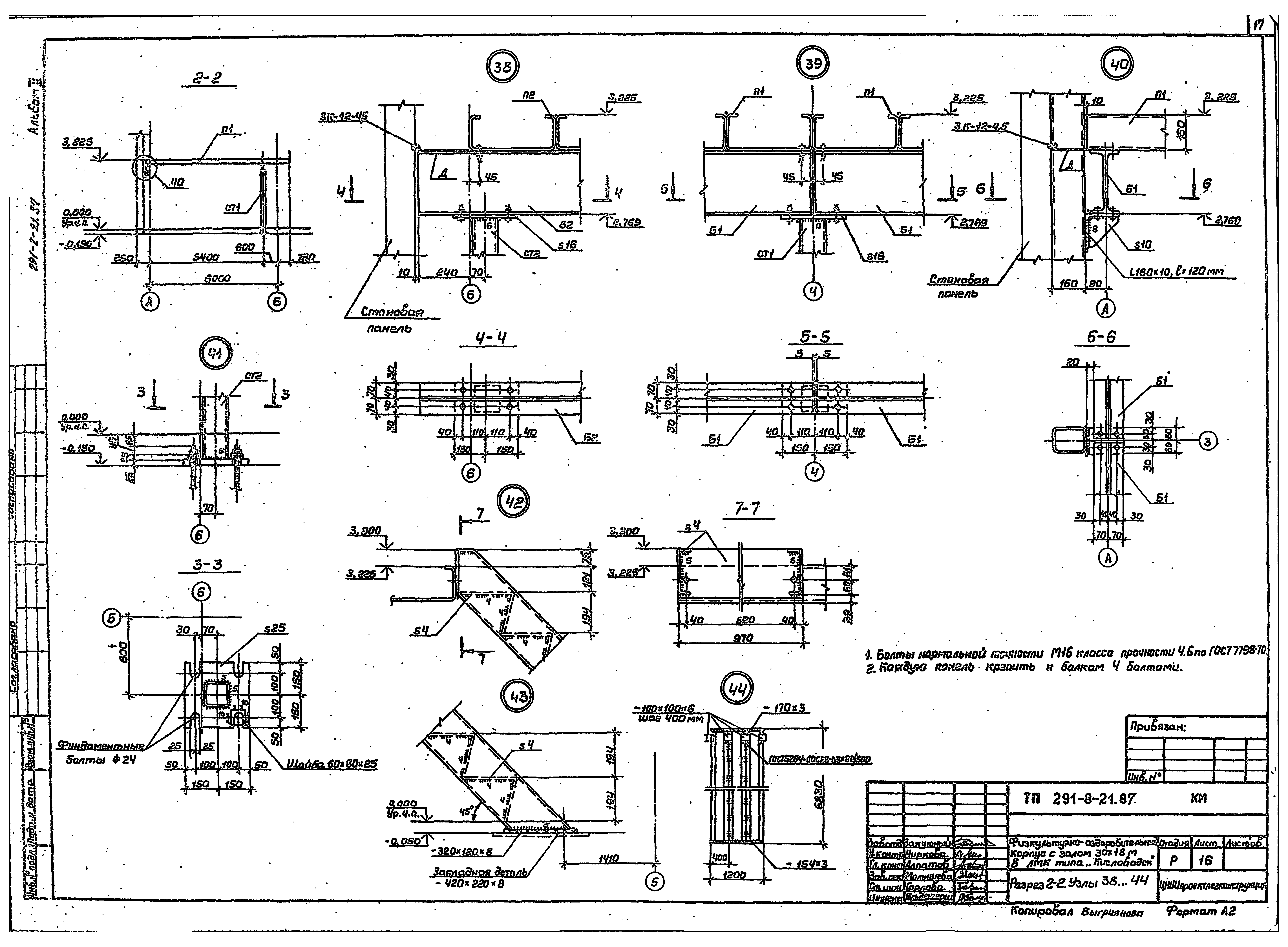
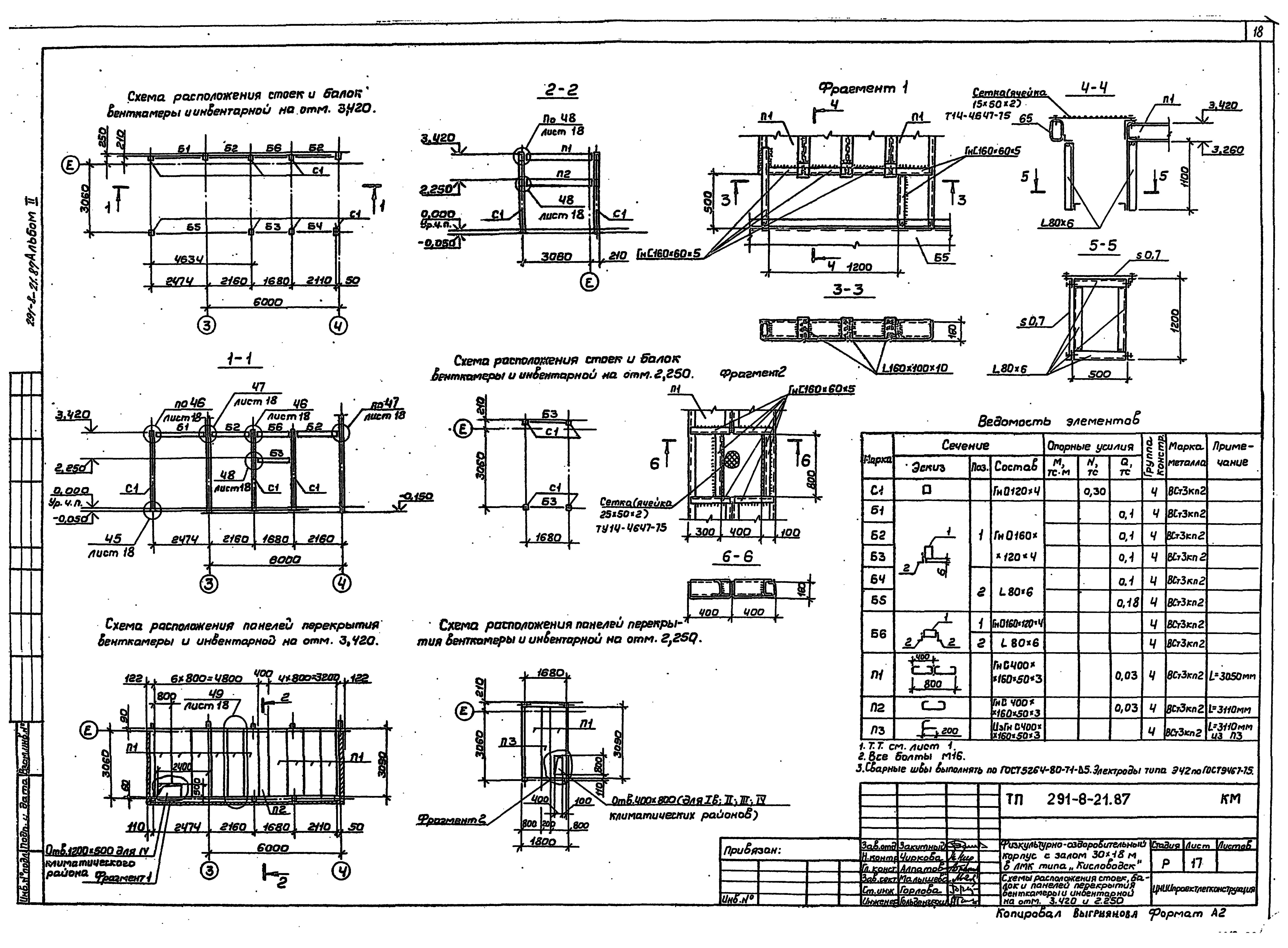
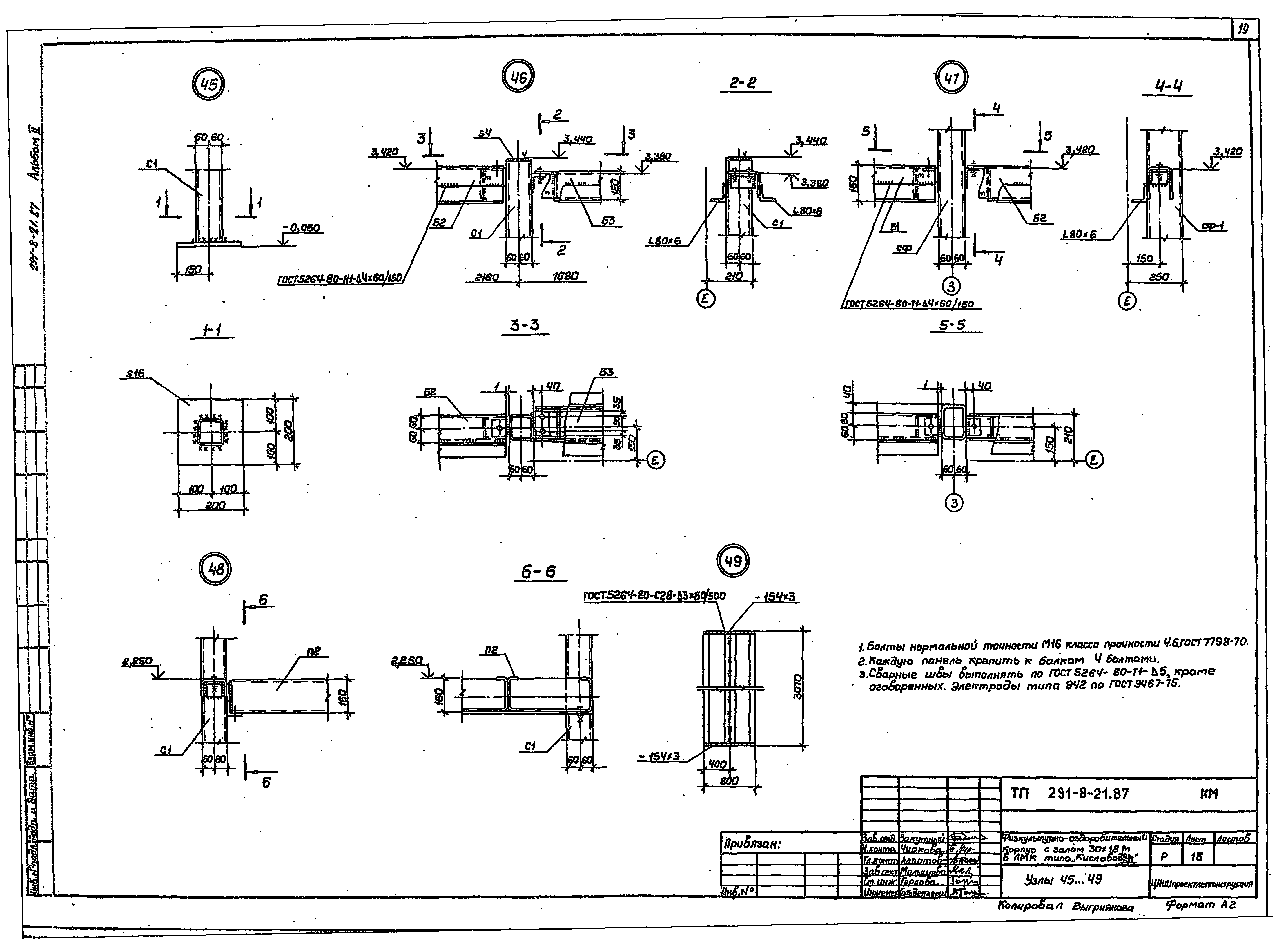
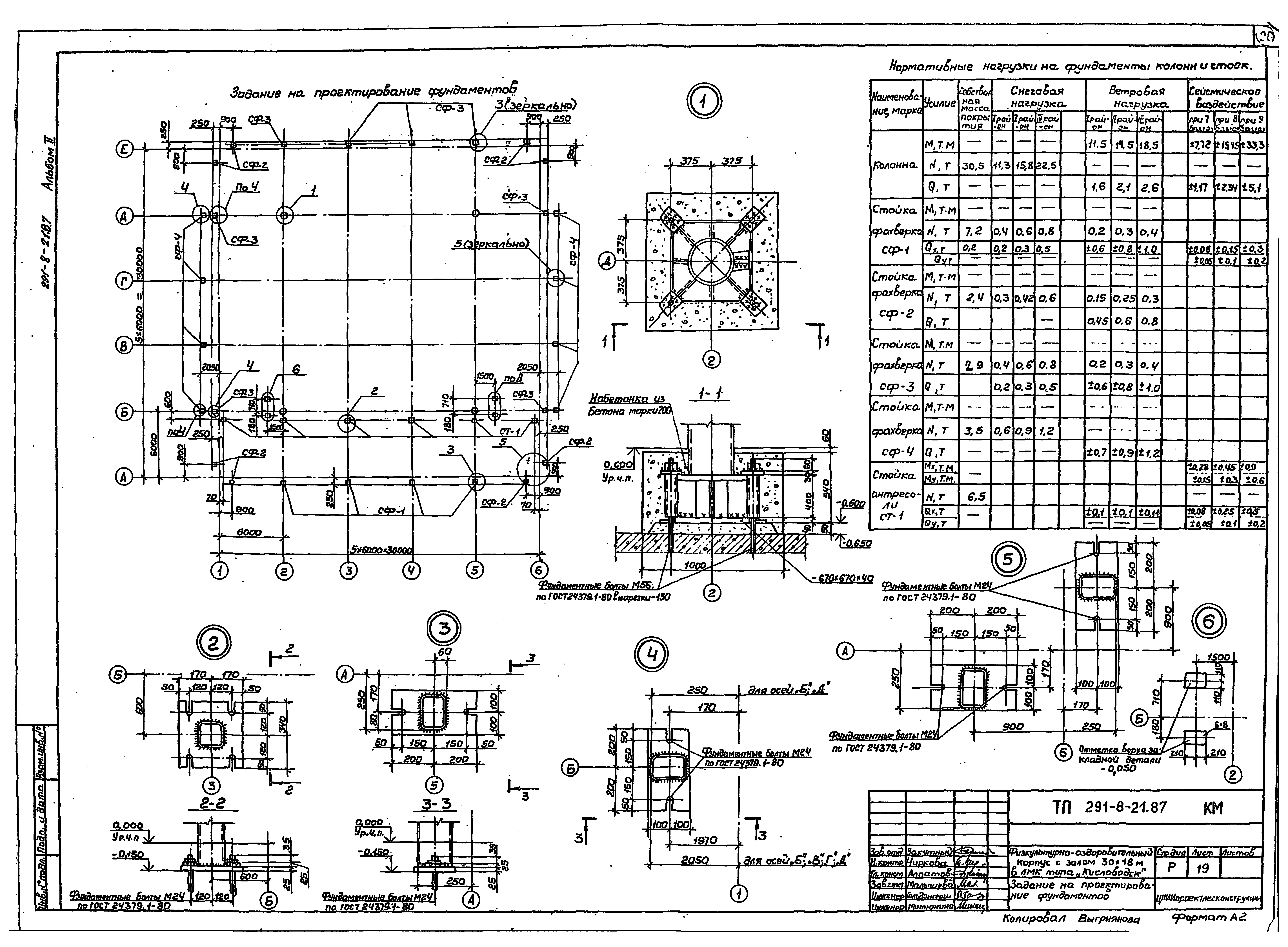
| Оглавление: | Общие данные Техническая спецификация металла Схема расположения секции Узлы 1…4 Схема расположения прогонов Узлы 5…13 Схема расположения профилированного настила Узлы 14…20 Схема расположения элементов фахверка Узлы 21…27 Узлы 28…31 Узлы 32…36 Схемы расположения стоек, балок, панелей и лестниц антресоли Разрез 2-2. Узлы 38…44 Схемы расположения стоек, балок и панелей перекрытия венткамеры и инвентарной на отм. 3.420 и 2.250 Узлы 45…49 Задание на проектирование фундаментов |
| Разработан: | ЦНИИЭП им. Б.С. Мезенцева Госгражданстроя |
| Утверждён: | 15.06.1987 Госгражданстрой (Gosgrazhdanstroy 184) |
| Издан: | ЦИТП Госстроя СССР (CITP, Gosstroy (USSR) 1987 г. ) |




















