Скачать Типовой проект 291-8-21.87 Альбом VII. Основные положения по производству монтажных работДата актуализации: 01.01.2021
|
| Обозначение: | Типовой проект 291-8-21.87 |
| Обозначение англ: | 291-8-21.87 |
| Статус: | не определен законодательством |
| Название рус.: | Альбом VII. Основные положения по производству монтажных работ |
| Дата добавления в базу: | 01.09.2013 |
| Дата актуализации: | 01.01.2021 |
| Дата введения: | 15.06.1987 |
| Дата окончания срока действия: | 30.06.2003 |
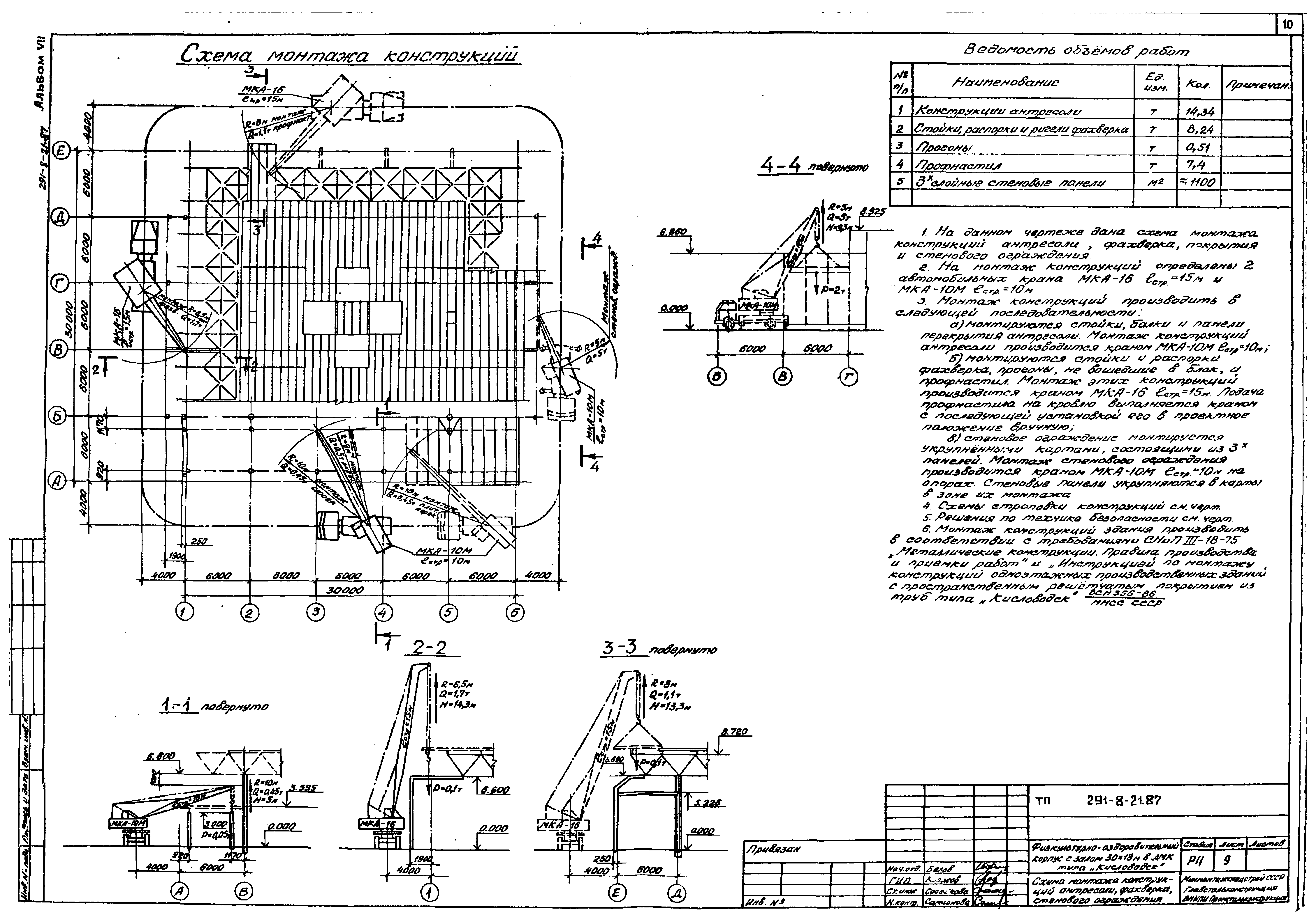
| Оглавление: | Общие данные Стройгенплан Схема монтажа колонн Схема укрупнения блока покрытия Схема монтажа блока покрытия Схема монтажа конструкций антресоли, фахверка и стенового ограждения Схемы строповки конструкций Решения по технике безопасности Календарный план монтажных работ |
| Разработан: | ЦНИИЭП им. Б.С. Мезенцева Госгражданстроя |
| Утверждён: | 15.06.1987 Госгражданстрой (Gosgrazhdanstroy 184) |
| Издан: | ЦИТП Госстроя СССР (CITP, Gosstroy (USSR) 1987 г. ) |














