Скачать Типовые материалы для проектирования 820-04-36.90 Альбом 2. Строительные решения. Конструкции железобетонные. Строительные изделияДата актуализации: 01.01.2021
|
| Обозначение: | Типовые материалы для проектирования 820-04-36.90 |
| Обозначение англ: | 820-04-36.90 |
| Статус: | справочные материалы, мп, тпр |
| Название рус.: | Альбом 2. Строительные решения. Конструкции железобетонные. Строительные изделия |
| Дата добавления в базу: | 01.09.2013 |
| Дата актуализации: | 01.01.2021 |
| Дата введения: | 04.07.1990 |
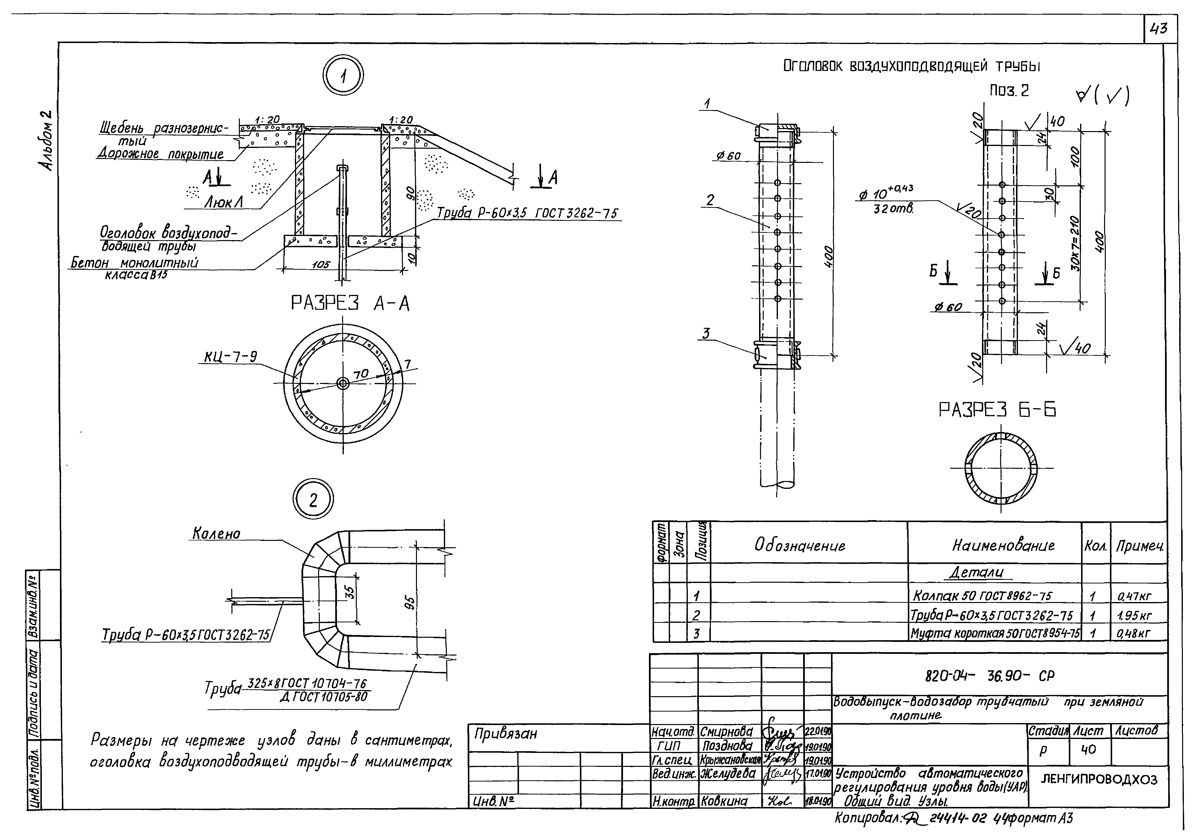
| Оглавление: | ТП 820-04-36.90-СР Рабочие чертежи комплекта СР ТП 820-04-36.90-СР-1 Общие данные ТП 820-04-36.90-СР-2 Водовыпуск-водозабор из железобетонных труб Ду=600 мм; Нmах=5.0 м; Qmах=0.7м³/с. Общий вид. Разрез 1-1. План ТП 820-04-36.90-СР-3 Водовыпуск-водозабор из железобетонных труб Ду=600 мм; Нmах=5.0 м; Qmах=0.7м³/с. Общий вид. Разрезы 2-2-6-6. Спецификация ТП 820-04-36.90-СР-4 Водовыпуск-водозабор из железобетонных труб Ду=600 мм; Нmах=8.0 м; Qmах=0.7м³/с. Общий вид. Разрез 1-1. План ТП 820-04-36.90-СР-5 Водовыпуск-водозабор из железобетонных труб Ду=600 мм; Нmах=8.0 м; Qmах=0.7м³/с. Общий вид. Разрезы 2-2-6-6. Спецификация ТП 820-04-36.90-СР-6 Водовыпуск-водозабор из железобетонных труб Ду=600 мм; Нmах=12.0 м; Qmах=0.7м³/с. Общий вид. Разрез 1-1. План ТП 820-04-36.90-СР-7 Водовыпуск-водозабор из железобетонных труб Ду=600 мм; Нmах=12.0 м; Qmах=0.7м³/с. Общий вид. Разрезы 2-2-6-6. Спецификация ТП 820-04-36.90-СР-8 Водовыпуск-водозабор из железобетонных труб Ду=800 мм; Нmах=8.0 м; Qmах=1.0м³/с. Общий вид. Разрез 1-1. План ТП 820-04-36.90-СР-9 Водовыпуск-водозабор из железобетонных труб Ду=800 мм; Нmах=8.0 м; Qmах=1.0м³/с. Общий вид. Разрезы 2-2-6-6. Спецификация ТП 820-04-36.90-СР-10 Водовыпуск-водозабор из железобетонных труб Ду=800 мм; Нmах=12.0 м; Qmах=1.0м³/с. Общий вид. Разрез 1-1. План ТП 820-04-36.90-СР-11 Водовыпуск-водозабор из железобетонных труб Ду=800 мм; Нmах=12.0 м; Qmах=1.0м³/с. Общий вид. Разрезы 2-2-6-6. Спецификация ТП 820-04-36.90-СР-12 Водовыпуск-водозабор из железобетонных труб Ду=800 мм; Нmах=8.0 м; Qmах=1.5 м³/с. Общий вид. Разрез 1-1. План ТП 820-04-36.90-СР-13 Водовыпуск-водозабор из железобетонных труб Ду=800 мм; Нmах=8.0 м; Qmах=1.5 м³/с. Общий вид. Разрезы 2-2-6-6. Спецификация ТП 820-04-36.90-СР-14 Водовыпуск-водозабор из железобетонных труб Ду=800 мм; Нmах=12.0 м; Qmах=1.5 м³/с. Общий вид. Разрез 1-1. План ТП 820-04-36.90-СР-15 Водовыпуск-водозабор из железобетонных труб Ду=800 мм; Нmах=12.0 м; Qmах=1.5 м³/с. Общий вид. Разрезы 2-2-6-6. Спецификация ТП 820-04-36.90-СР-16 Водовыпуск-водозабор из стальных труб Ду=600 мм; Нmах=5.0 м; Qmах=0.6 м³/с. Общий вид. Разрез 1-1. План ТП 820-04-36.90-СР-17 Водовыпуск-водозабор из стальных труб Ду=600 мм; Нmах=5.0 м; Qmах=0.6 м³/с. Общий вид. Разрезы 2-2-7-7. Спецификация ТП 820-04-36.90-СР-18 Водовыпуск-водозабор из стальных труб Ду=600 мм; Нmах=8.0 м; Qmах=0.6 м³/с. Общий вид. Разрез 1-1. План ТП 820-04-36.90-СР-19 Водовыпуск-водозабор из стальных труб Ду=600 мм; Нmах=12.0 м; Qmах=0.6 м³/с. Общий вид. Разрез 1-1. План ТП 820-04-36.90-СР-20 Водовыпуск-водозабор из стальных труб Ду=600 мм; Нmах=8.0...12.0 м; Qmах=0.6 м³/с. Общий вид. Разрезы 2-2-7-7. Спецификация ТП 820-04-36.90-СР-21 Водовыпуск-водозабор из стальных труб Ду=800 мм; Нmах=5.0 м; Qmах=1.0 м³/с. Общий вид. Разрез 1-1. План ТП 820-04-36.90-СР-22 Водовыпуск-водозабор из стальных труб Ду=800 мм; Нmах=8.0 м; Qmах=1.0 м³/с. Общий вид. Разрез 1-1. План ТП 820-04-36.90-СР-23 Водовыпуск-водозабор из стальных труб Ду=800 мм; Нmах=12.0 м; Qmах=1.0 м³/с. Общий вид. Разрез 1-1. План ТП 820-04-36.90-СР-24 Водовыпуск-водозабор из стальных труб Ду=800 мм; Нmах=5.0...12.0 м; Qmах=1.0 м³/с. Общий вид. Разрезы 2-2-7-7 ТП 820-04-36.90-СР-25 Водовыпуск-водозабор из стальных труб Ду=800 мм; Нmах=5.0 м; Qmах=1.5 м³/с. Общий вид. Разрез 1-1. План ТП 820-04-36.90-СР-26 Водовыпуск-водозабор из стальных труб Ду=800 мм; Нmах=8.0 м; Qmах=1.5 м³/с. Общий вид. Разрез 1-1. План ТП 820-04-36.90-СР-27 Водовыпуск-водозабор из стальных труб Ду=800 мм; Нmах=12.0 м; Qmах=1.5 м³/с. Общий вид. Разрез 1-1. План ТП 820-04-36.90-СР-28 Водовыпуск-водозабор из стальных труб Ду=800 мм; Нmах=5.0...12.0 м; Qmах=1.5 м³/с. Общий вид. Разрезы 2-2-7-7 ТП 820-04-36.90-СР-29 Водовыпуск-водозабор из стальных труб Ду=800 мм; Нmах=5.0...12.0 м; Qmах=1.0 м³/с. Общий вид. Спецификация ТП 820-04-36.90-СР-30 Водовыпуск-водозабор из стальных труб Ду=800 мм; Нmах=5.0...12.0 м; Qmах=1.5 м³/с. Общий вид. Спецификация ТП 820-04-36.90-СР-31 Водовыпуск-водозабор из железобетонных труб Ду=800 мм; Qmах=1.0 м³/с. Входной оголовок ОЗЖ-2. Общий вид ТП 820-04-36.90-СР-32 Водовыпуск-водозабор из железобетонных труб Ду=800 мм; Qmах=1.5 м³/с. Входной оголовок ОЗЖ-4. Общий вид ТП 820-04-36.90-СР-33 Детали конструкции железобетонного трубопровода ТП 820-04-36.90-СР-34 Водовыпуск-водозабор из железобетонных труб Ду=600 мм; Диафрагмы. Фундаменты под трубопровод. Общие виды ТП 820-04-36.90-СР-35 Водовыпуск-водозабор из железобетонных труб Ду=800 мм; Диафрагма. Фундаменты под трубопровод. Общие виды ТП 820-04-36.90-СР-36 Водовыпуск-водозабор из стальных труб. Примыкания трубопровода к входным оголовкам ОВМ. Общие виды ТП 820-04-36.90-СР-37 Водовыпуск-водозабор из стальных труб Ду=600 мм. Диафрагмы. Фундамент под трубопровод. Общие виды ТП 820-04-36.90-СР-38 Водовыпуск-водозабор из стальных труб Ду=800 мм. Диафрагмы. Фундамент под трубопровод. Общий вид ТП 820-04-36.90-СР-39 Устройство автоматического регулирования уровня воды (УАР). Общий вид ТП 820-04-36.90-СР-40 Устройство автоматического регулирования уровня воды (УАР). Общий вид. Узлы ТП 820-04-36.90-СР-41 Выходной оголовок. Общий вид ТП 820-04-36.90-СР-42 Выходной оголовок. Рассеивающий порог ТП 820-04-36.90-СР-43 Камера задвижек КМ1-1(КМ1-2). Общий вид. План. Разрезы ТП 820-04-36.90-СР-44 Камера задвижек КМ1-1(КМ1-2). Общий вид. Узлы ТП 820-04-36.90-СР-45 Помещение для трубопроводной арматуры. Общий вид. Разрез 1-1 ТП 820-04-36.90-СР-46 Помещение для трубопроводной арматуры. Разрезы 2-2,3-3. Узлы ТП 820-04-36.90-КЖ Рабочие чертежи комплекта КЖ ТП 820-04-36.90-КЖ-1 Общие данные ТП 820-04-36.90-КЖ-2 Входные оголовки ОЗЖ-2,ОЗЖ-4. Опоры. Плиты. Общий вид. Схема армирования ТП 820-04-36.90-КЖ-3 Входные оголовки ОЗЖ-2,ОЗЖ-4. Опоры. Стойка. Схема армирования. Спецификации ТП 820-04-36.90-КЖ-4 Диафрагма ДФМ6-1. Общий вид. Схема армирования ТП 820-04-36.90-КЖ-5 Диафрагма ДФМ6-2. Схема армирования. Спецификация ТП 820-04-36.90-КЖ-6 Диафрагма ДФМ8. Схема армирования. Спецификация ТП 820-04-36.90-КЖ-7 Диафрагма ДФМ6-2. Общий вид. Схема армирования ТП 820-04-36.90-КЖ-8 Диафрагма ДФМ8. Общий вид. Схема армирования ТП 820-04-36.90-КЖ-9 Фундамент под трубопровод ОБМ6. Общий вид. Схема армирования ТП 820-04-36.90-КЖ-10 Фундамент под трубопровод ОБМ8. Общий вид. Схема армирования ТП 820-04-36.90-КЖ-11 Входной оголовок ОВМ-1. Общий вид. Схема армирования. Разрез 1-1. План ТП 820-04-36.90-КЖ-12 Входной оголовок ОВМ-1. Общий вид. Схема армирования. Разрезы 2-2-5-5. Спецификация ТП 820-04-36.90-КЖ-13 Входной оголовок ОВМ-2. Общий вид. Схема армирования. Разрез 1-1. План ТП 820-04-36.90-КЖ-14 Входной оголовок ОВМ-2. Общий вид. Схема армирования. Разрезы 2-2-5-5. Спецификация ТП 820-04-36.90-КЖ-15 Входной оголовок ОВМ3. Общий вид. Схема армирования. Разрез 1-1. План ТП 820-04-36.90-КЖ-16 Входной оголовок ОВМ3. Общий вид. Схема армирования. Разрезы 2-2-5-5. Спецификация ТП 820-04-36.90-КЖ-17 Примыкания трубопровода из стальных труб к входным оголовкам ОВМ. Общие виды. Схема армирования ТП 820-04-36.90-КЖ-18 Примыкания трубопровода из стальных труб к входным оголовкам ОВМ. Схема армирования. Спецификация ТП 820-04-36.90-КЖ-19 Плита перекрытия 1П3-7АIVТ-I. Общий вид. Схема армирования ТП 820-04-36.90-КЖ-20 Плита перекрытия 1П3-7АIVТ-II. Общий вид. Схема армирования ТП 820-04-36.90-КЖ-21 Камера задвижек КМ1-1(КМ1-2). Общий вид ТП 820-04-36.90-КЖ-22 Камера задвижек КМ1-1(КМ1-2). Схема армирования ТП 820-04-36.90-КЖ-23 Камера задвижек КМ1-1(КМ1-2). Схема армирования. Спецификация ТП 820-04-36.90-КЖ-24 Помещение для трубопроводной арматуры. Общий вид ТП 820-04-36.90-КЖ-25,26 Помещение для трубопроводной арматуры. Схема армирования. Спецификация ТП 820-04-36.90-КЖ.И Рабочие чертежи арматурных и закладных изделий ТП 820-04-36.90-КЖ.И.010 Сетки арматурные С1,С2 ТП 820-04-36.90-КЖ.И.020 Сетка арматурная С3 ТП 820-04-36.90-КЖ.И.030 Сетки арматурные С4,С4н ТП 820-04-36.90-КЖ.И.040 Сетки арматурные С5,С5н ТП 820-04-36.90-КЖ.И.050 Сетки арматурные С6,С7 ТП 820-04-36.90-КЖ.И.060 Сетка арматурная С8 ТП 820-04-36.90-КЖ.И.070 Сетка арматурная С9 ТП 820-04-36.90-КЖ.И.080 Сетка арматурная С10 ТП 820-04-36.90-КЖ.И.090 Сетка арматурная С11 ТП 820-04-36.90-КЖ.И.100 Сетка арматурная С12 ТП 820-04-36.90-КЖ.И.110 Сетка арматурная С13 ТП 820-04-36.90-КЖ.И.120 Сетки арматурные С14,С15 ТП 820-04-36.90-КЖ.И.130 Сетка арматурная С16 ТП 820-04-36.90-КЖ.И.140 Сетка арматурная С17 ТП 820-04-36.90-КЖ.И.150 Сетки арматурные С18,С19 ТП 820-04-36.90-КЖ.И.160 Сетка арматурная С20 ТП 820-04-36.90-КЖ.И.170 Сетки арматурные С21,С22 ТП 820-04-36.90-КЖ.И.180 Сетки арматурные С23,С24 ТП 820-04-36.90-КЖ.И.190 Сетки арматурные С25,С26 ТП 820-04-36.90-КЖ.И.200 Сетки арматурные С27,С28 ТП 820-04-36.90-КЖ.И.210 Сетки арматурные С29,С30 ТП 820-04-36.90-КЖ.И.220 Сетки арматурные С31,С32 ТП 820-04-36.90-КЖ.И.230 Сетка арматурная С33 ТП 820-04-36.90-КЖ.И.240 Сетки арматурные С34,С35 ТП 820-04-36.90-КЖ.И.250 Сетка арматурная С36 ТП 820-04-36.90-КЖ.И.260 Сетка арматурная С37 ТП 820-04-36.90-КЖ.И.270 Сетки арматурные С38,С39 ТП 820-04-36.90-КЖ.И.280 Сетка арматурная С40 ТП 820-04-36.90-КЖ.И.290 Сетки арматурные С41,С42 ТП 820-04-36.90-КЖ.И.300 Сетка арматурная С43 ТП 820-04-36.90-КЖ.И.310 Сетки арматурные С44,С45 ТП 820-04-36.90-КЖ.И.320 Сетки арматурные С46,С47 ТП 820-04-36.90-КЖ.И.330 Сетки арматурные С48,С49 ТП 820-04-36.90-КЖ.И.340 Сетки арматурные С50,С51 ТП 820-04-36.90-КЖ.И.350 Сетки арматурные С52,С53 ТП 820-04-36.90-КЖ.И.360 Сетка арматурная С54 ТП 820-04-36.90-КЖ.И.370 Изделия закладные МН1,МН2 ТП 820-04-36.90-КЖ.И.380 Изделие закладное МН3 ТП 820-04-36.90-КЖ.И.390 Изделие закладное МН4 ТП 820-04-36.90-КЖ.И.400 Изделие закладное МН5 |
| Разработан: | Ленгипроводхоз Минводхоза СССР |
| Утверждён: | 04.07.1990 Минводстрой СССР (827) |
| Заменяет собой: |
|






























































































