Скачать Типовой проект 901-6-105.93 Альбом 2. Технологические решения. Архитектурно-строительные решенияДата актуализации: 01.01.2021
|
| Обозначение: | Типовой проект 901-6-105.93 |
| Обозначение англ: | 901-6-105.93 |
| Статус: | не определен законодательством |
| Название рус.: | Альбом 2. Технологические решения. Архитектурно-строительные решения |
| Дата добавления в базу: | 01.09.2013 |
| Дата актуализации: | 01.01.2021 |
| Дата введения: | 16.12.1993 |
| Дата окончания срока действия: | 30.06.2003 |
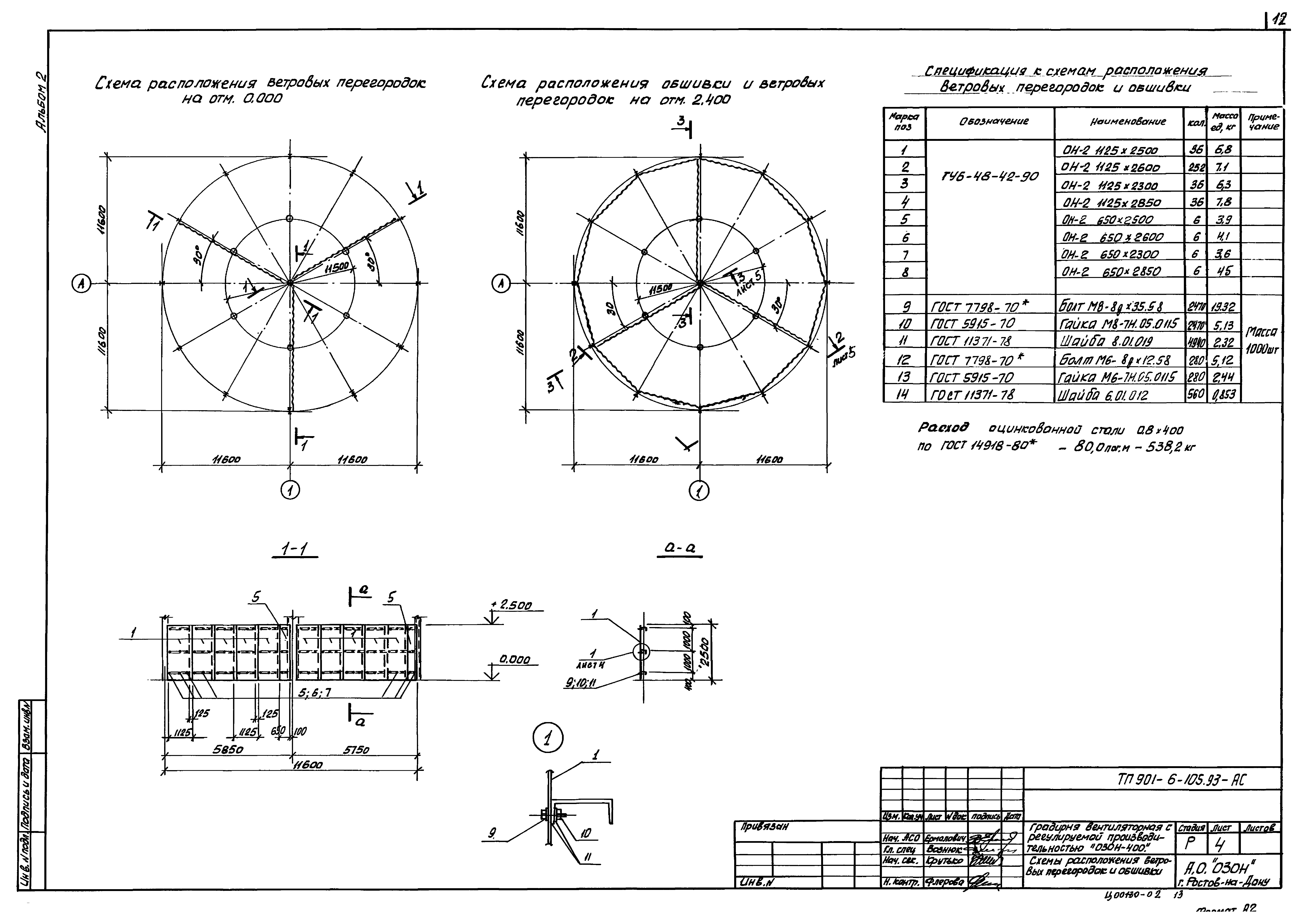
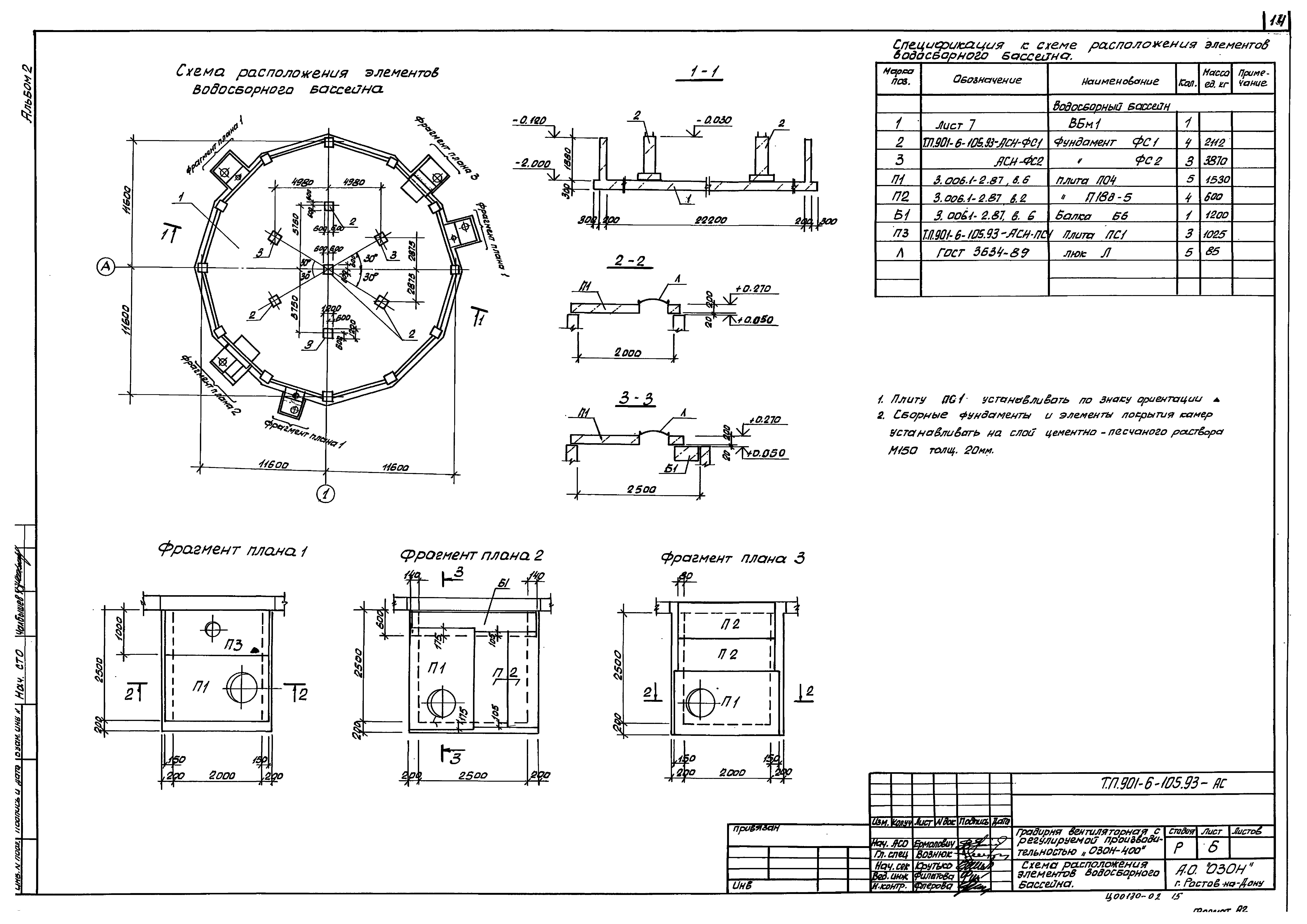
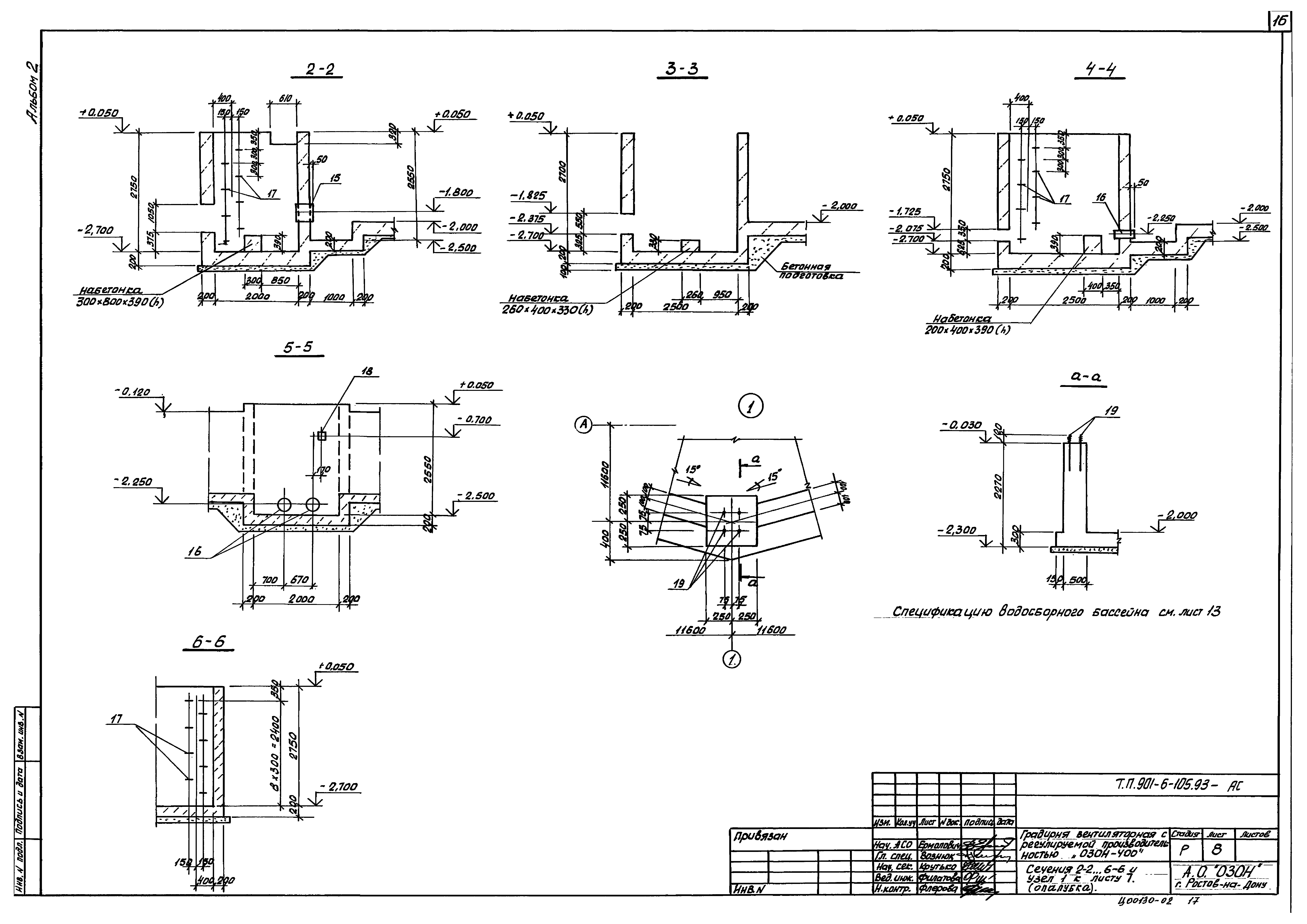
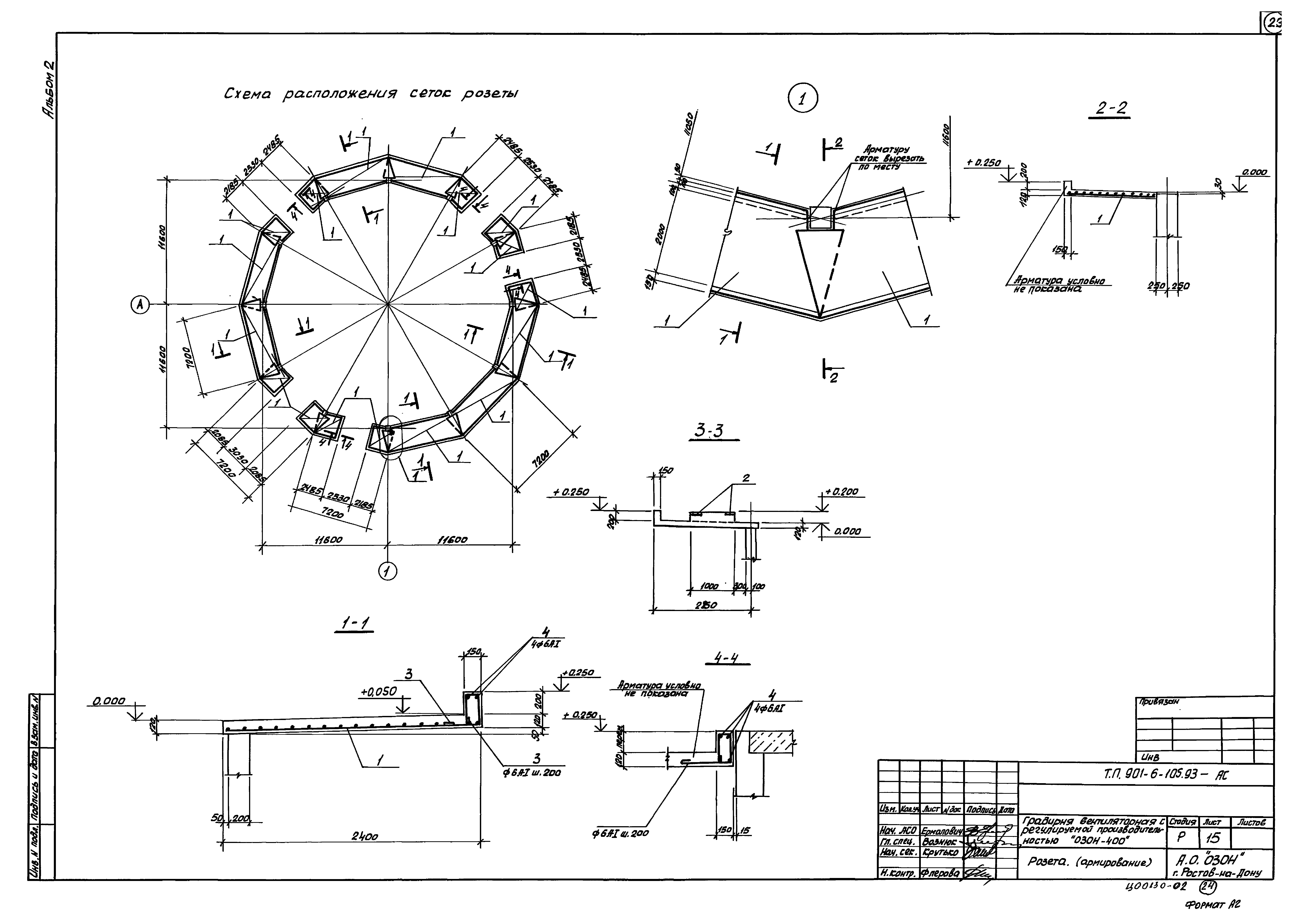
| Оглавление: | ТП 901-6-105.93-ТХ Технические решения ТХ ТП 901-6-105.93-ТХ-1 Общие данные ТП 901-6-105.93-ТХ-2 Общий вид градирни. Разрез 1-1 ТП 901-6-105.93-ТХ-3 Водосборный бассейн. План. Узлы ТП 901-6-105.93-ТХ-4 План расстановки блоков капельного оросителя ТП 901-6-105.93-ТХ-5 Водораспределительная система. План на отм. +5.650 ТП 901-6-105.93-ТХ-6 План расстановки водоуловительных решеток ТП 901-6-105.93-АС Архитектурно-строительные решения АС ТП 901-6-105.93-АС-1 Общие данные (начало) ТП 901-6-105.93-АС-2 Общие данные (окончание) ТП 901-6-105.93-АС-3 Планы, разрез, фасад ТП 901-6-105.93-АС-4 Схемы расположения ветровых перегородок и обшивки ТП 901-6-105.93-АС-5 Сечения 2-2,3-3 и узлы к листу 4 ТП 901-6-105.93-АС-6 Схема расположения элементов водосборного бассейна ТП 901-6-105.93-АС-7 Водосборный бассейн ВБмI (опалубка) ТП 901-6-105.93-АС-8 Сечение 2-2...6-6 и узел 1 к листу 7 ТП 901-6-105.93-АС-9 Схема раскладки верхнего ряда верхних и нижних сеток ТП 901-6-105.93-АС-10 Схемы раскладки нижнего ряда верхних и нижних сеток и поддерживающих каркасов ТП 901-6-105.93-АС-11 Схемы расположения выпусков из днища вертикальных сеток ТП 901-6-105.93-АС-12 Водосборный бассейн ВБмI. Сечения 2-2...4-4 (армирование) ТП 901-6-105.93-АС-13 Спецификация водосборного бассейна ВБмI ТП 901-6-105.93-АС-14 Розета (опалубка) ТП 901-6-105.93-АС-15 Розета (армирование) |
| Разработан: | АО ОЗОН |
| Утверждён: | 16.12.1993 Комитет РФ по химической и нефтехимической промышленности (09/1-11-145) |























