Скачать Типовой проект 901-6-105.93 Альбом 5. Конструкции металлическиеДата актуализации: 01.01.2021
|
| Обозначение: | Типовой проект 901-6-105.93 |
| Обозначение англ: | 901-6-105.93 |
| Статус: | не определен законодательством |
| Название рус.: | Альбом 5. Конструкции металлические |
| Дата добавления в базу: | 01.09.2013 |
| Дата актуализации: | 01.01.2021 |
| Дата введения: | 16.12.1993 |
| Дата окончания срока действия: | 30.06.2003 |
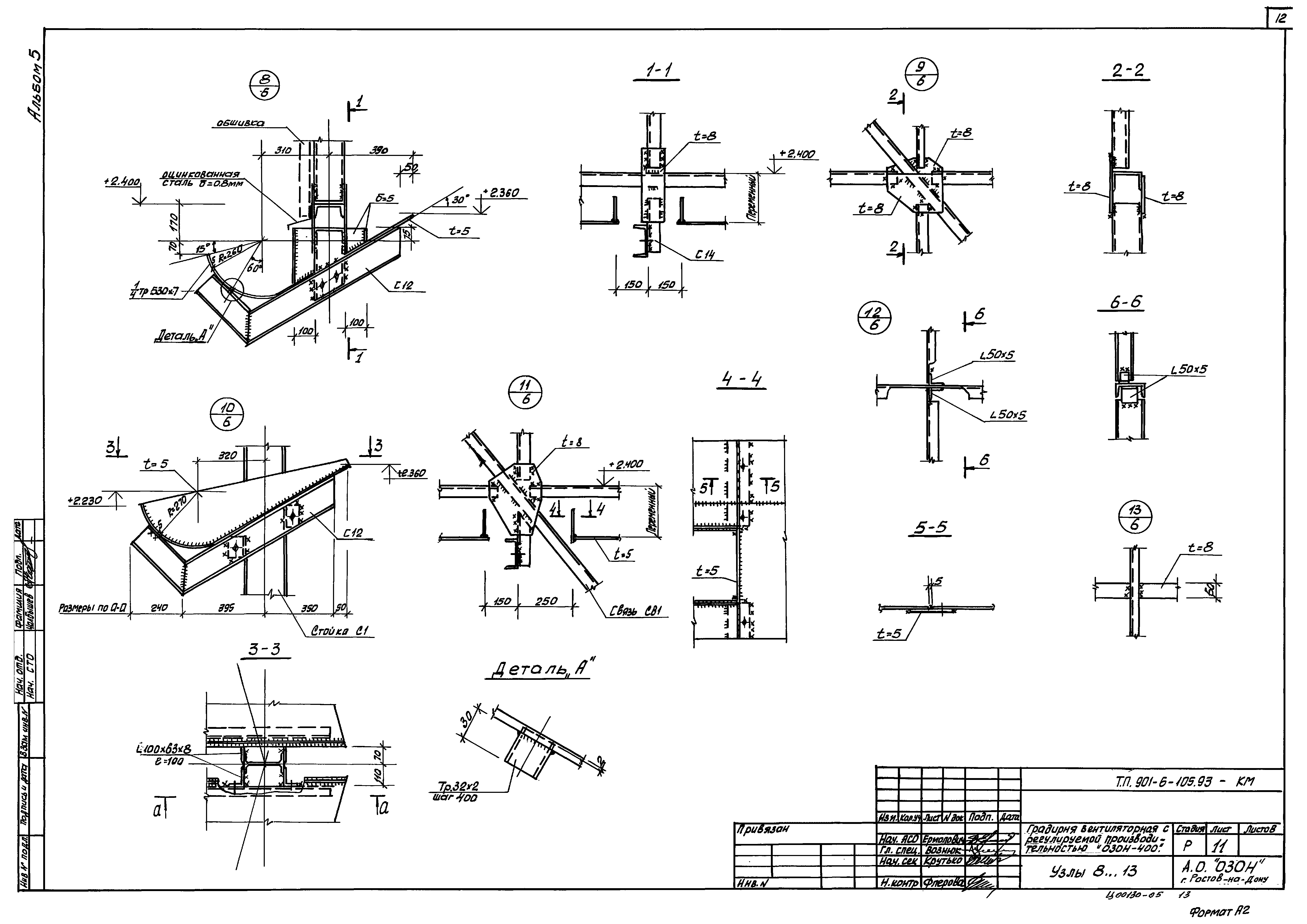
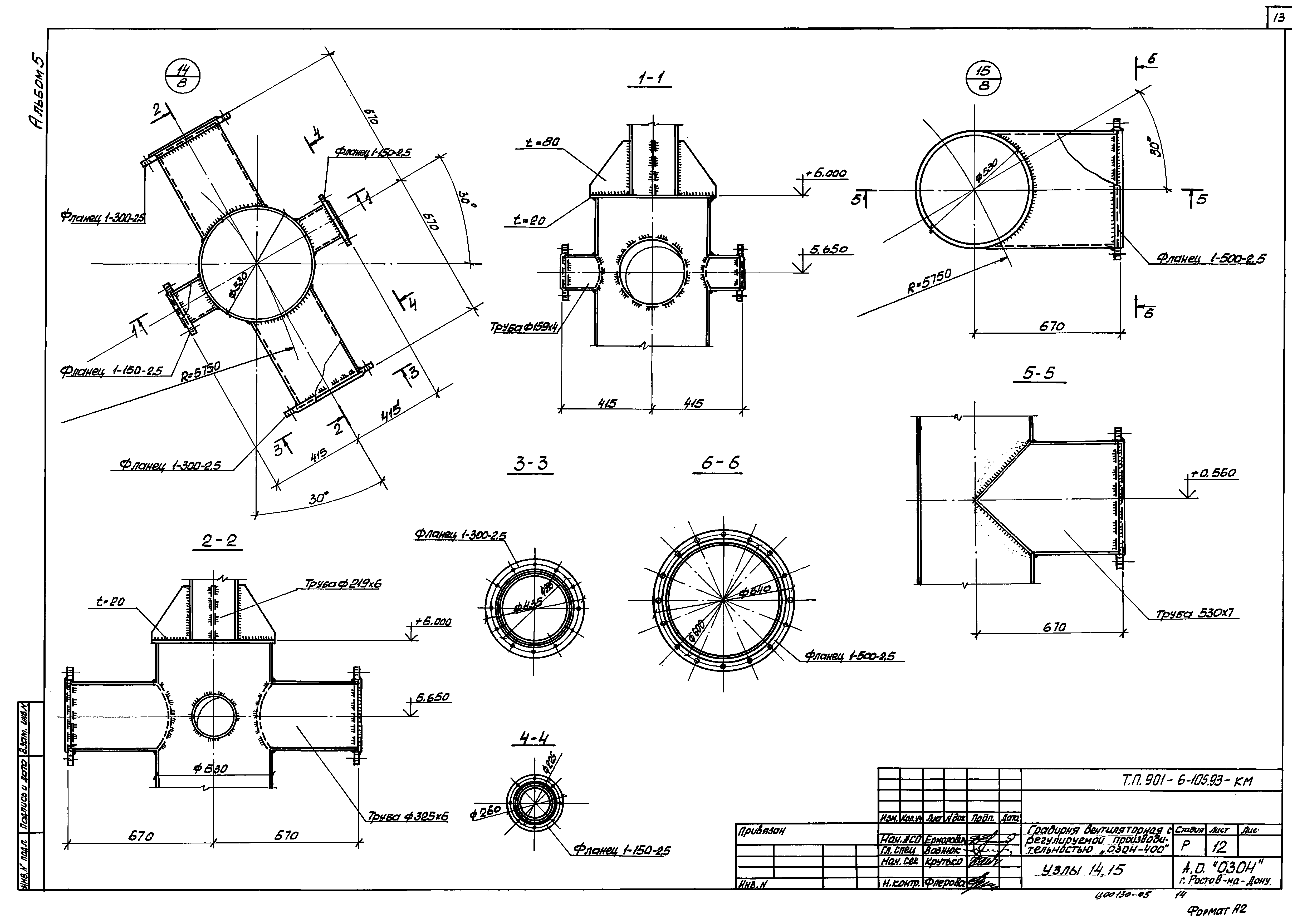
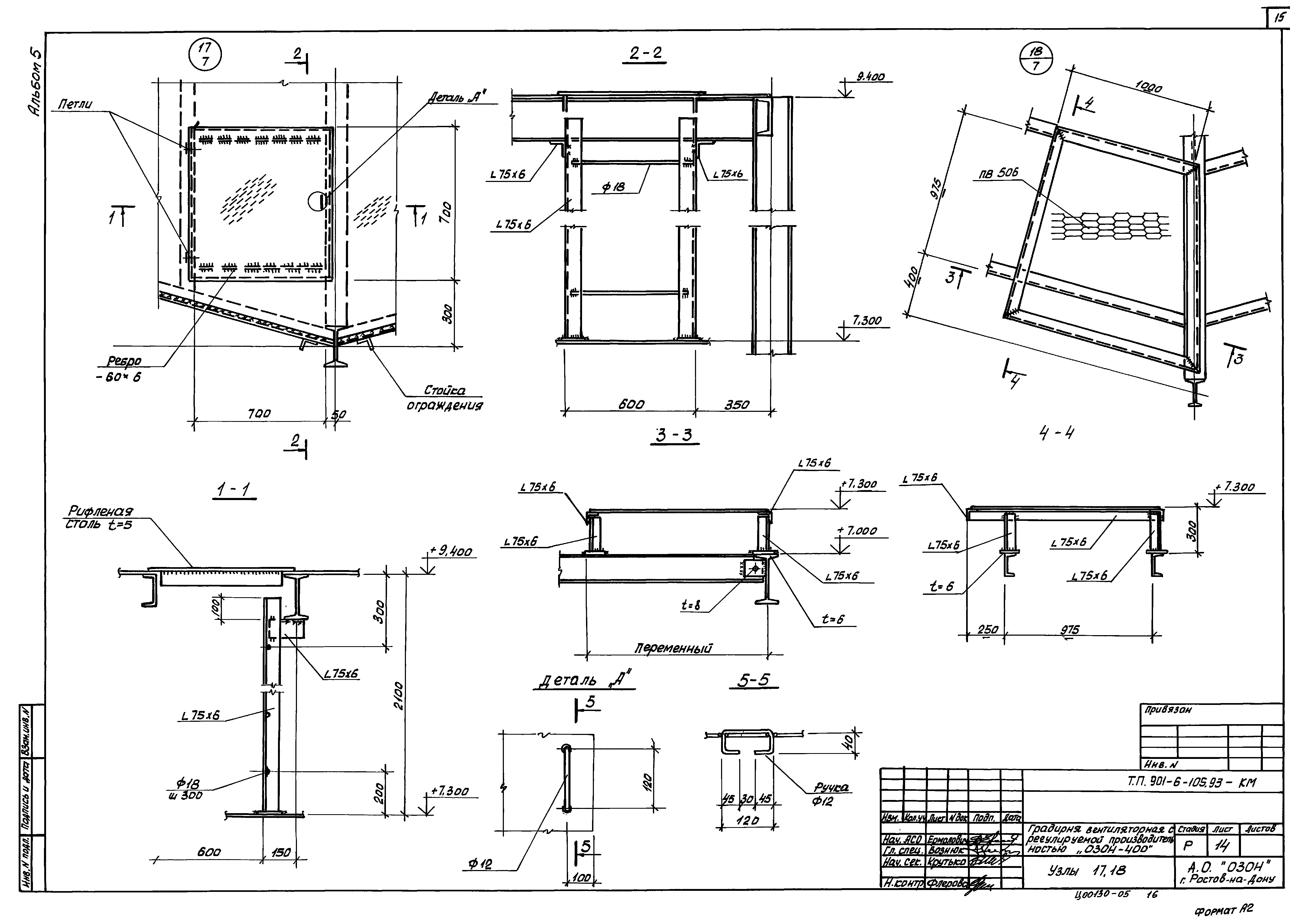
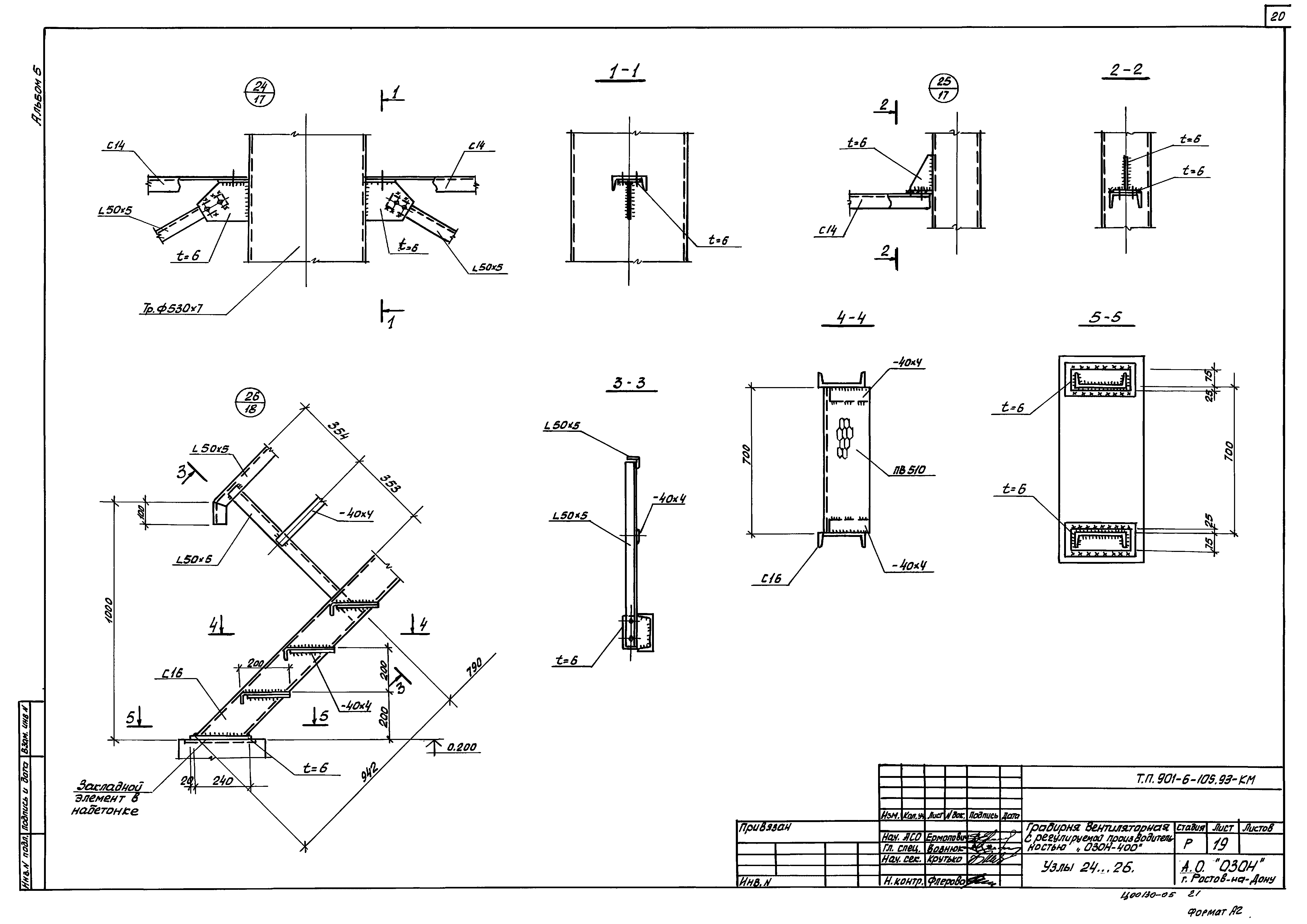
| Оглавление: | ТП 901-6-105.93-КМ-1 Общие данные (начало) ТП 901-6-105.93-КМ-2 Техническая спецификация металла (начало) ТП 901-6-105.93-КМ-3 Техническая спецификация металла (продолжение) ТП 901-6-105.93-КМ-4 Техническая спецификация металла (окончание) ТП 901-6-105.93-КМ-5 Ведомость металлоконструкций по видам профилей ТП 901-6-105.93-КМ-6 Схема расположения стоек ТП 901-6-105.93-КМ-7 Схемы расположения балок на отм. 7.000;9.400 ТП 901-6-105.93-КМ-8 Разрезы 1-1...4-4 ТП 901-6-105.93-КМ-9 Узлы 1,2 ТП 901-6-105.93-КМ-10 Узлы 3...7 ТП 901-6-105.93-КМ-11 Узлы 8...13 ТП 901-6-105.93-КМ-12 Узлы 14,15 ТП 901-6-105.93-КМ-13 Узлы 16,28,29 ТП 901-6-105.93-КМ-14 Узлы 17,18 ТП 901-6-105.93-КМ-15 Схема расположения решеток на отм. 7.000. Узлы 19,20 ТП 901-6-105.93-КМ-16 Схема расположения фахверка ветровых и межсекционных перегородок ТП 901-6-105.93-КМ-17 Сечения 1-1,2-2 к листу 16. Узлы 21...23 ТП 901-6-105.93-КМ-18 Схема расположения наружной лестницы ТП 901-6-105.93-КМ-19 Узлы 24...26 ТП 901-6-105.93-КМ-120 Схема расположения подвесок для труб водораспределительной системы |
| Разработан: | АО ОЗОН |
| Утверждён: | 16.12.1993 Комитет РФ по химической и нефтехимической промышленности (09/1-11-145) |





















