Скачать Типовой проект 902-1-122.87 Альбом III. Строительные решения. Подземная часть (сборно-монолитный вариант)Дата актуализации: 01.01.2021
|
| Обозначение: | Типовой проект 902-1-122.87 |
| Обозначение англ: | 902-1-122.87 |
| Статус: | не определен законодательством |
| Название рус.: | Альбом III. Строительные решения. Подземная часть (сборно-монолитный вариант) |
| Дата добавления в базу: | 01.09.2013 |
| Дата актуализации: | 01.01.2021 |
| Дата введения: | 23.11.1987 |
| Дата окончания срока действия: | 30.06.2003 |
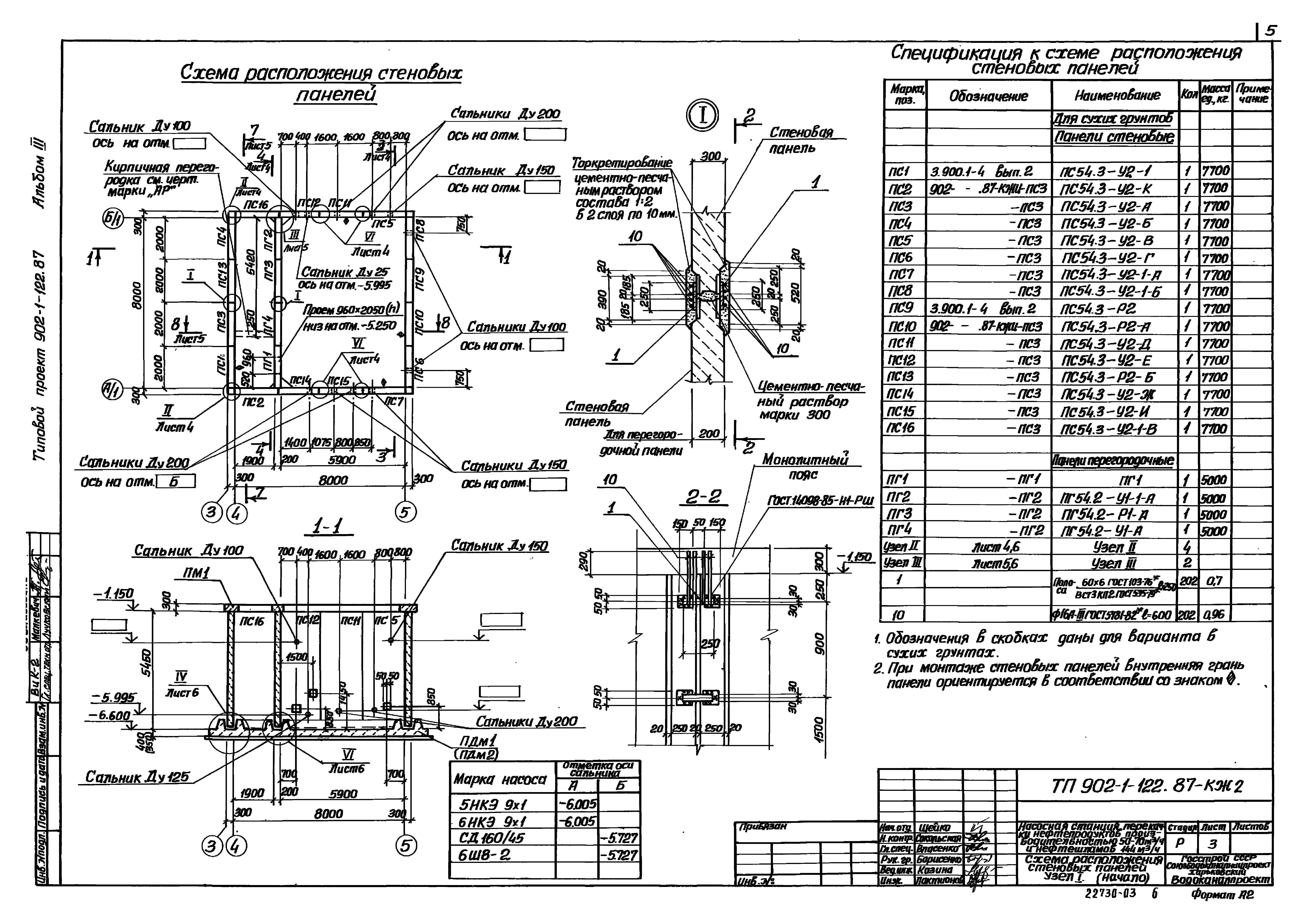
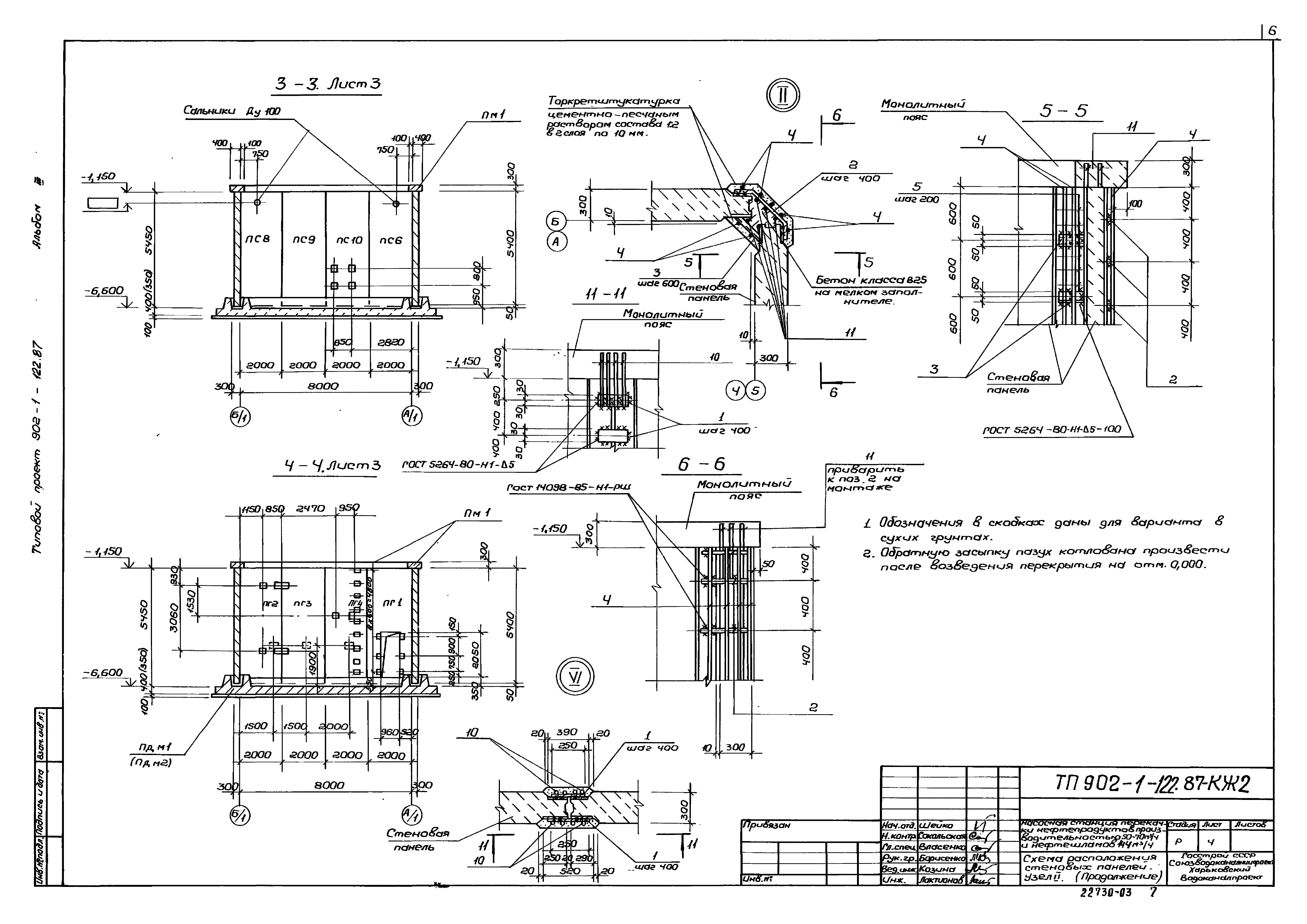
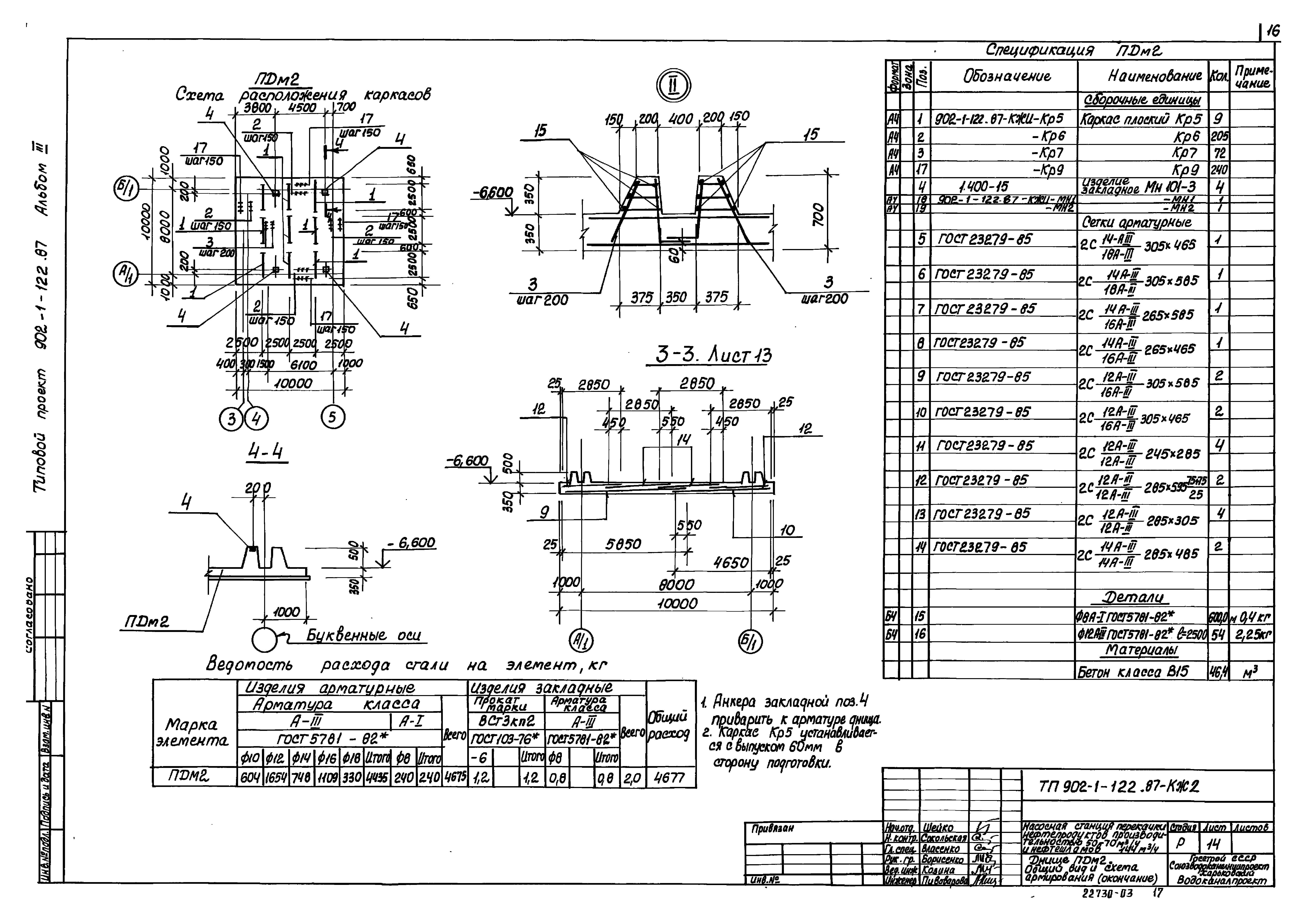
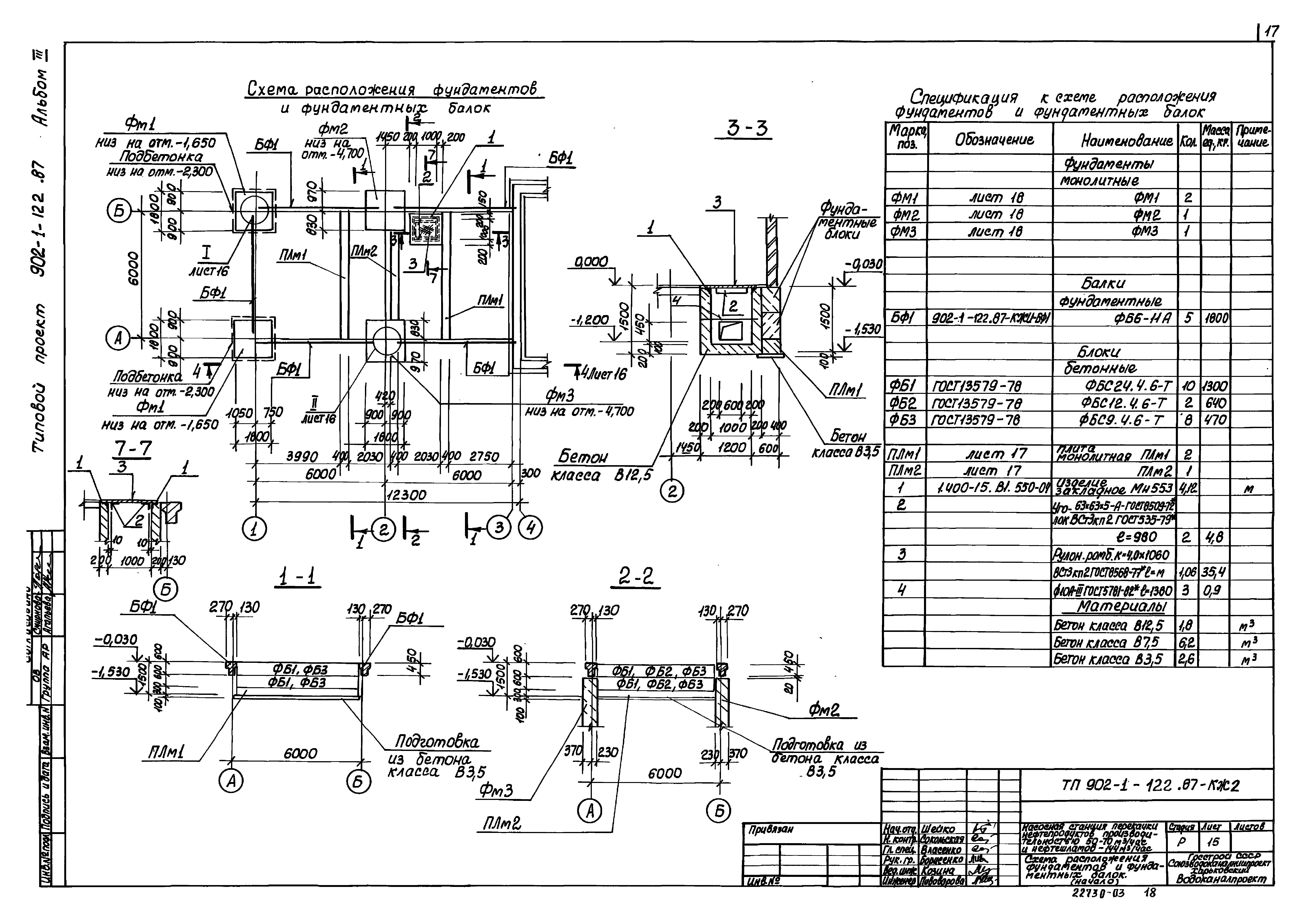
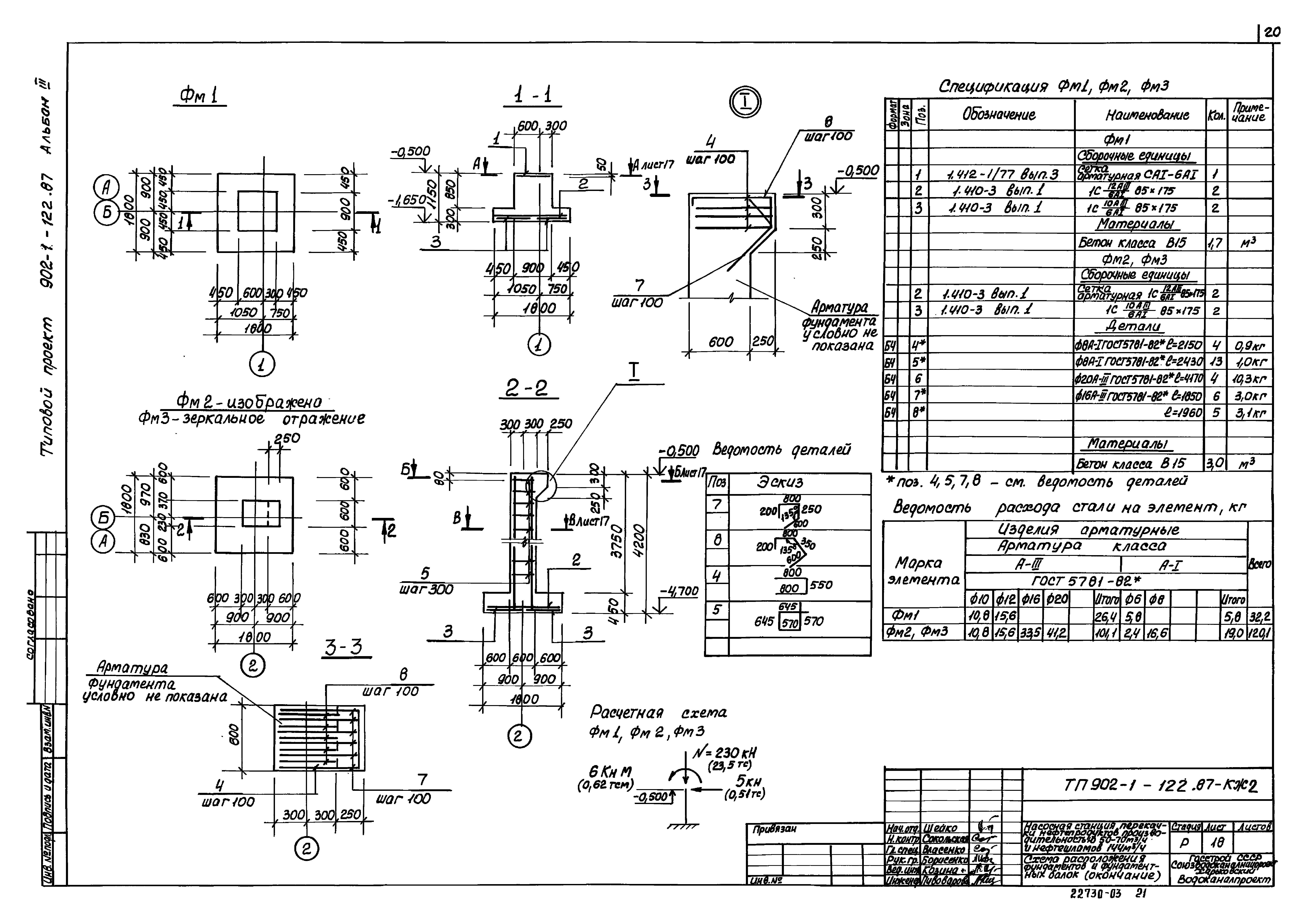
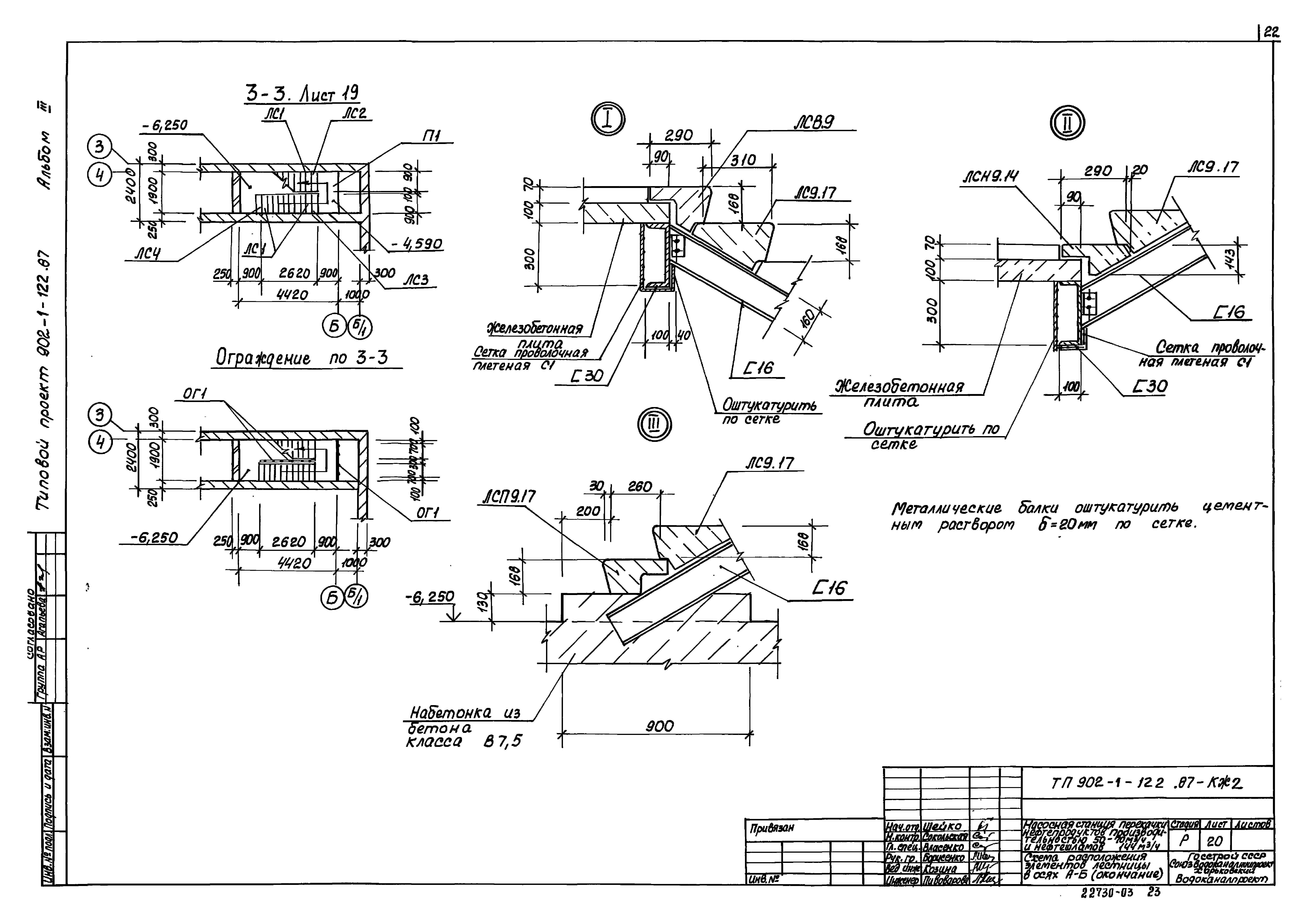
| Оглавление: | ТП 902-1-122.87 Содержание альбома ТП 902-1-122.87-КЖ2 Основной комплект марки КЖ2 ТП 902-1-122.87-КЖ2-1 Общие данные (начало) ТП 902-1-122.87-КЖ2-2 Общие данные (окончание) ТП 902-1-122.87-КЖ2-3 Схема расположения стеновых панелей. Узел 1 (начало) ТП 902-1-122.87-КЖ2-4 Схема расположения стеновых панелей. Узел 2 (продолжение) ТП 902-1-122.87-КЖ2-5 Схема расположения стеновых панелей. Узел 3 (продолжение) ТП 902-1-122.87-КЖ2-6 Схема расположения стеновых панелей. Узел 4,5 (окончание) ТП 902-1-122.87-КЖ2-7 Пояс монолитный ПМ1. Общий вид и схема армирования ТП 902-1-122.87-КЖ2-8 Схемы расположения балок и плит перекрытия на отм. -0.030 РКМ1, на отм. 1.500 РКМ2 (начало) ТП 902-1-122.87-КЖ2-9 Схемы расположения балок и плит перекрытия на отм. -0.030 РКМ1, на отм. 1.500 РКМ2 (продолжение) ТП 902-1-122.87-КЖ2-10 Схемы расположения балок и плит перекрытия на отм. -0.030 РКМ1, на отм. 1.500 РКМ2 (окончание) ТП 902-1-122.87-КЖ2-11 Днище ПДМ1. Общий вид и схема армирования (начало) ТП 902-1-122.87-КЖ2-12 Днище ПДМ1. Общий вид и схема армирования (окончание) ТП 902-1-122.87-КЖ2-13 Днище ПДМ2. Общий вид и схема армирования (начало) ТП 902-1-122.87-КЖ2-14 Днище ПДМ2. Общий вид и схема армирования (окончание) ТП 902-1-122.87-КЖ2-15 Схема расположения фундаментов и фундаментных балок (начало) ТП 902-1-122.87-КЖ2-16 Схема расположения фундаментов и фундаментных балок (продолжение 1) ТП 902-1-122.87-КЖ2-17 Схема расположения фундаментов и фундаментных балок (продолжение 2) ТП 902-1-122.87-КЖ2-18 Схема расположения фундаментов и фундаментных балок (окончание) ТП 902-1-122.87-КЖ2-19 Схема расположения элементов лестницы в осях А-Б (начало) ТП 902-1-122.87-КЖ2-20 Схема расположения элементов лестницы в осях А-Б (окончание) ТП 902-1-122.87-КЖ2-21 Схема расположения элементов заземления ТП 902-1-122.87-КЖ2-22 Детали гидроизоляции |
| Разработан: | Харьковский Водоканалпроект |
| Утверждён: | 18.08.1987 Госстрой СССР (Государственный комитет Совета Министров СССР по делам строительства) (USSR Gosstroy 49) |
























