Скачать Типовой проект 503-4-70.13.91 Альбом 3. Архитектурные решения. Конструкции железобетонные. Конструкции металлическиеДата актуализации: 01.01.2021
|
| Обозначение: | Типовой проект 503-4-70.13.91 |
| Обозначение англ: | 503-4-70.13.91 |
| Статус: | не определен законодательством |
| Название рус.: | Альбом 3. Архитектурные решения. Конструкции железобетонные. Конструкции металлические |
| Дата добавления в базу: | 01.09.2013 |
| Дата актуализации: | 01.01.2021 |
| Дата введения: | 22.11.1991 |
| Дата окончания срока действия: | 30.06.2003 |
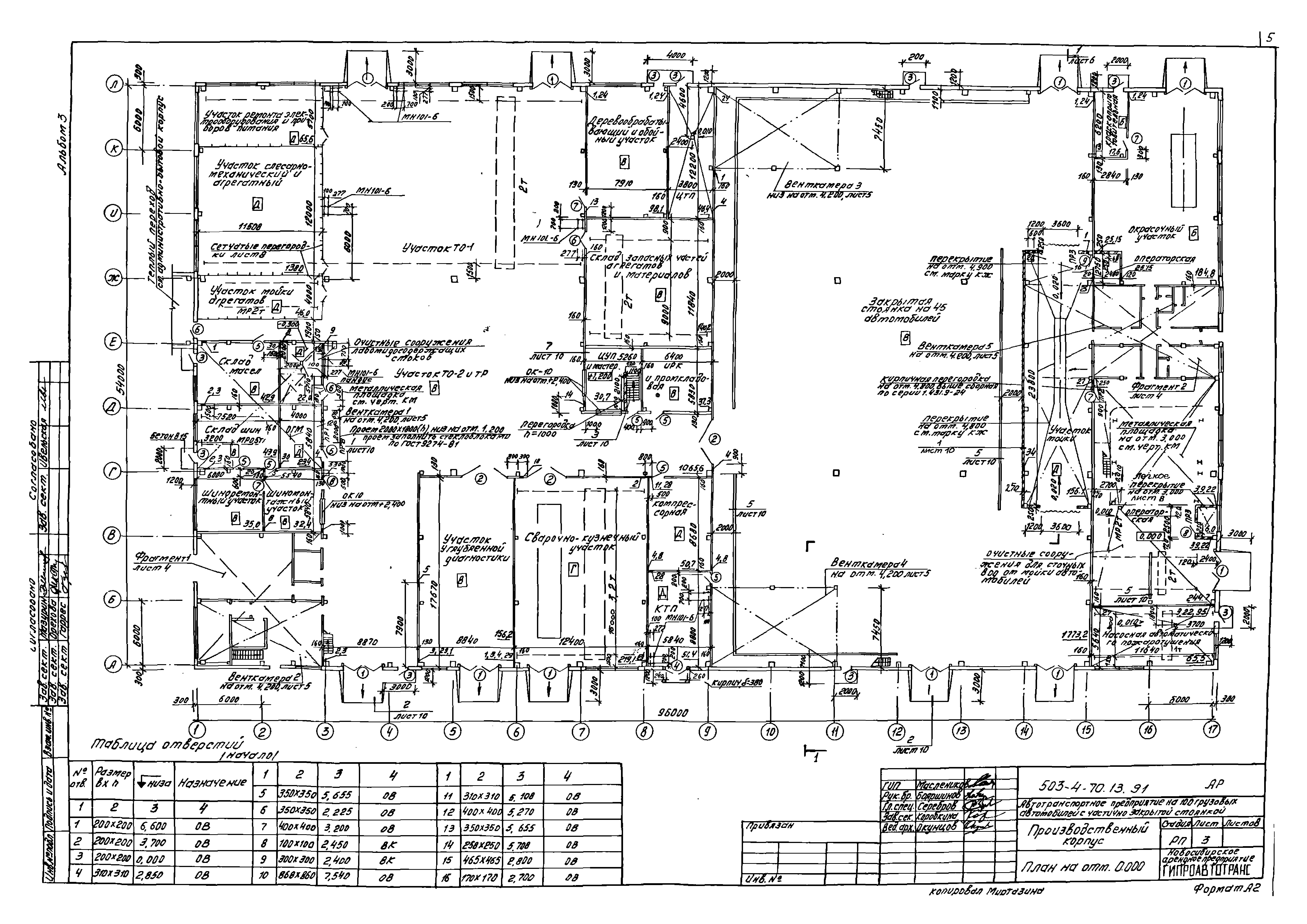
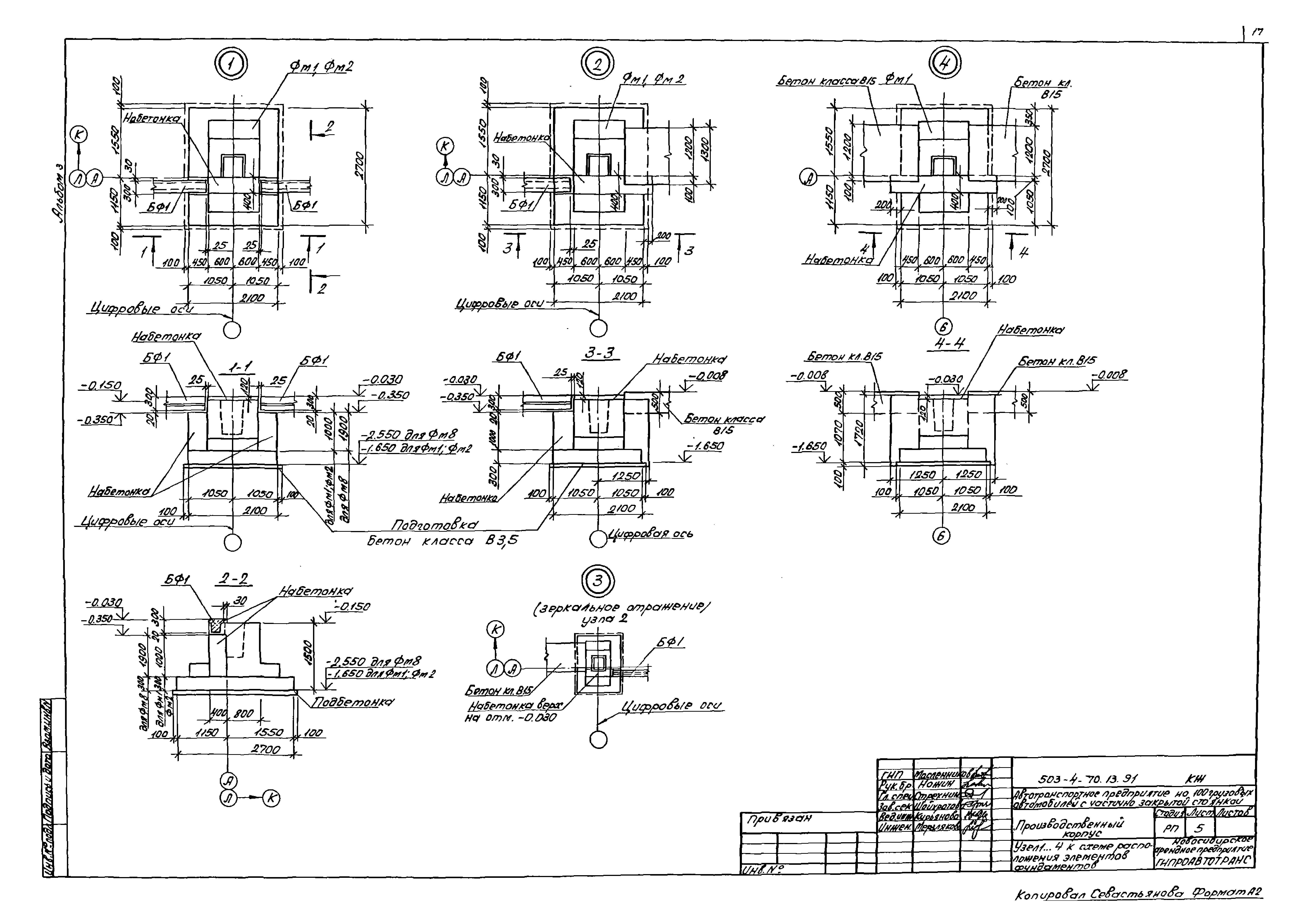
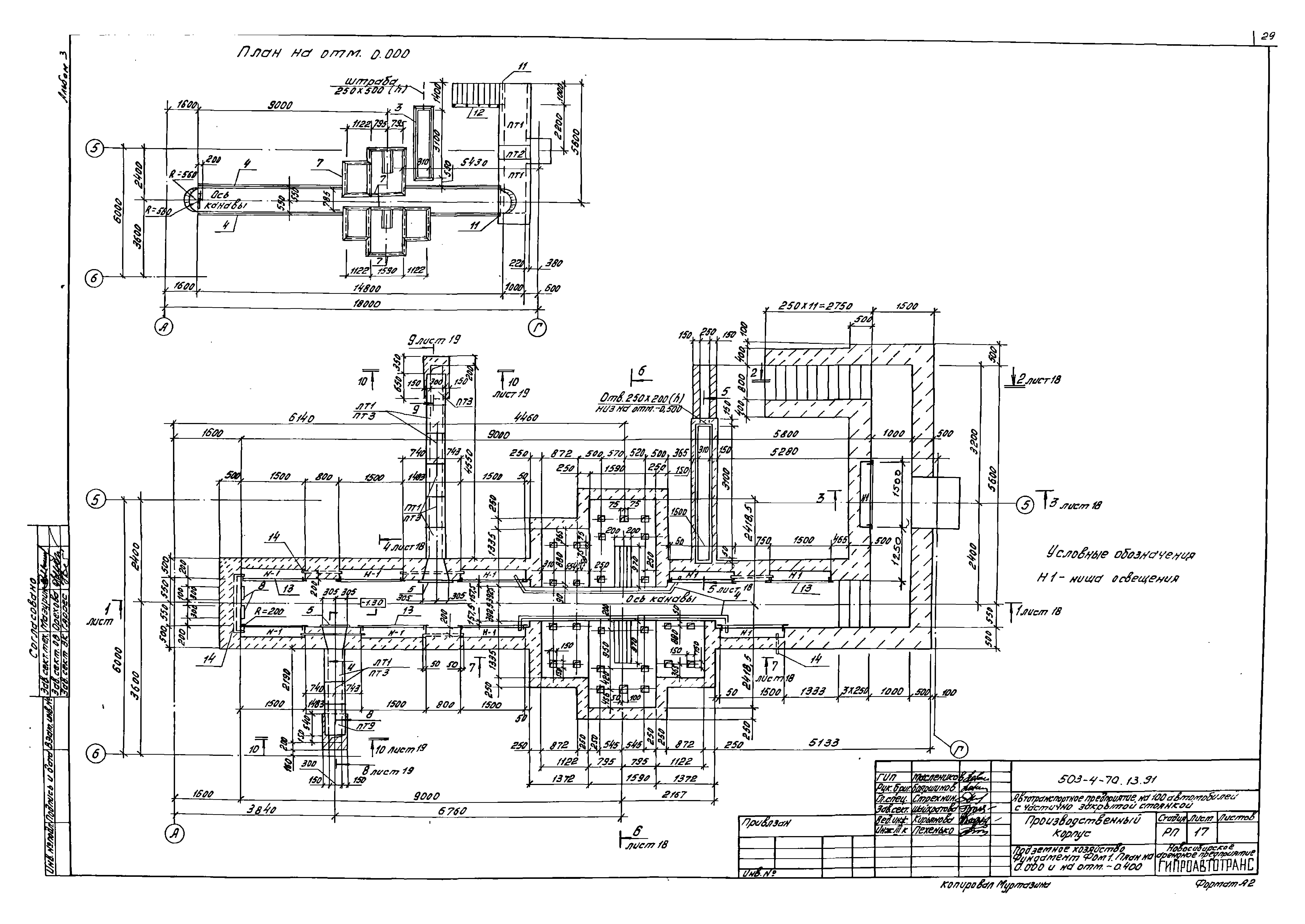
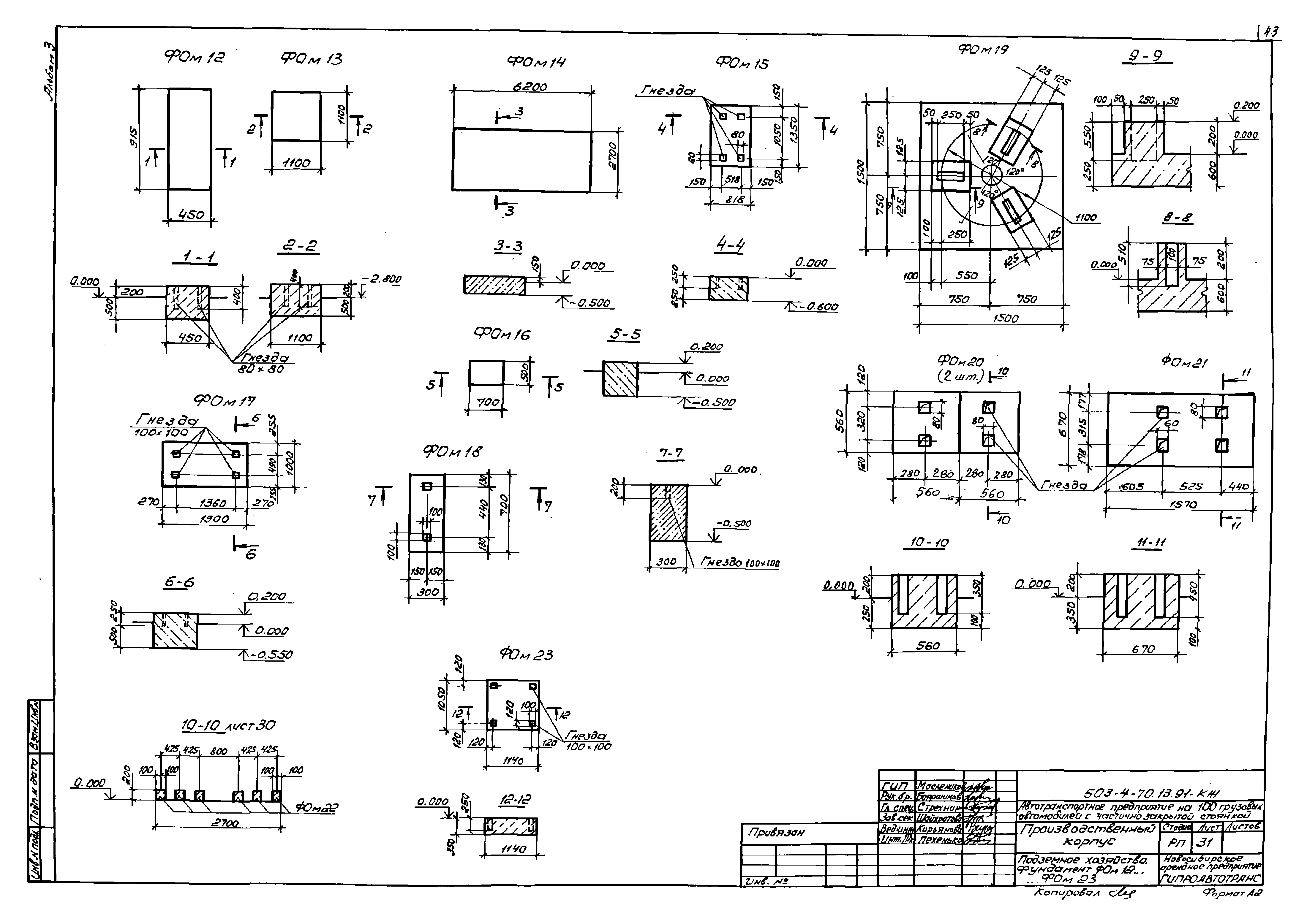
| Оглавление: | ТП 503-4-70.13.91 Содержание альбома ТП 503-4-70.13.91-АР Архитектурные решения ТП 503-4-70.13.91-АР-1 Общие данные (начало) ТП 503-4-70.13.91-АР-2 Общие данные (окончание) ТП 503-4-70.13.91-АР-3 План на отм. 0.600 ТП 503-4-70.13.91-АР-4 Фрагменты 1,2 ТП 503-4-70.13.91-АР-5 Планы венткамер на отм. 4.200 ТП 503-4-70.13.91-АР-6 План кровли. Разрез 1-1 ТП 503-4-70.13.91-АР-7 Фасады 1-17;17-1;А-Л;Л-А ТП 503-4-70.13.91-АР-8 Схемы расположения легких перекрытий и сетчатых перегородок ТП 503-4-70.13.91-АР-9 Планы полов ТП 503-4-70.13.91-АР-10 Узлы, детали ТП 503-4-70.13.91-КЖ Чертежи КЖ ТП 503-4-70.13.91-КЖ-1 Общие данные (начало) ТП 503-4-70.13.91-КЖ-2 Общие данные (окончание) ТП 503-4-70.13.91-КЖ-3 Схема расположения элементов фундаментов ТП 503-4-70.13.91-КЖ-4 Спецификация к схеме расположения элементов фундаментов ТП 503-4-70.13.91-КЖ-5 Узел 1...4 к схеме расположения элементов фундаментов ТП 503-4-70.13.91-КЖ-6 Узел 5...9 к схеме расположения элементов фундаментов ТП 503-4-70.13.91-КЖ-7 Узел 10,11. Фрагмент 1 к схеме расположения элементов фундаментов ТП 503-4-70.13.91-КЖ-8 Узел 12...16 к схеме расположения элементов фундаментов ТП 503-4-70.13.91-КЖ-9 Фундамент ФМ1...ФМ4 ТП 503-4-70.13.91-КЖ-10 Фундамент ФМ5...ФМ6,ФМ19...ФМ24 ТП 503-4-70.13.91-КЖ-11 Фундамент ФМ7,ФМ8,ФМ9 ТП 503-4-70.13.91-КЖ-12 Фундамент ФМ10,ФМ11 ТП 503-4-70.13.91-КЖ-13 Фундамент ФМ12...ФМ16 ТП 503-4-70.13.91-КЖ-14 Фундамент ФМ17...ФМ18 ТП 503-4-70.13.91-КЖ-15 Схема расположения элементов подземного хозяйства ТП 503-4-70.13.91-КЖ-16 Спецификация к схеме расположения элементов подземного хозяйства ТП 503-4-70.13.91-КЖ-17 Подземное хозяйство. Фундамент ФОМ1. План на отм. 0.000 и на отм. -0.400 ТП 503-4-70.13.91-КЖ-18 Подземное хозяйство. Фундамент ФОМ1 ТП 503-4-70.13.91-КЖ-19 Подземное хозяйство. Фундамент ФОМ1. Узел 2,3 ТП 503-4-70.13.91-КЖ-20 Подземное хозяйство. Фундамент ФОМ2 ТП 503-4-70.13.91-КЖ-21 Подземное хозяйство. Фрагмент 1 для ФОМ2 ТП 503-4-70.13.91-КЖ-22 Подземное хозяйство. Фрагмент 2 для ФОМ2 ТП 503-4-70.13.91-КЖ-23 Подземное хозяйство. Спецификации на ФОМ2. Ведомость расхода стали, кг ТП 503-4-70.13.91-КЖ-24 Подземное хозяйство. Фундамент ФОМ3. План на отм. 0.000 ТП 503-4-70.13.91-КЖ-25 Подземное хозяйство. Фундамент ФОМ3. План на отм. Ниже 0.000 ТП 503-4-70.13.91-КЖ-26 Подземное хозяйство. Фундамент ФОМ3. Сечения 3-3...13-13. Узел 1...6 ТП 503-4-70.13.91-КЖ-27 Подземное хозяйство. Фундамент ФОМ9. Поддон ПД1 ТП 503-4-70.13.91-КЖ-28 Подземное хозяйство. Фундамент ФОМ9. Колодец К1,К2. Приямок 1 ТП 503-4-70.13.91-КЖ-29 Подземное хозяйство. Фундамент ФОМ10 ТП 503-4-70.13.91-КЖ-30 Подземное хозяйство. Фрагмент 3. Фундамент ФОМ4...ФОМ11 ТП 503-4-70.13.91-КЖ-31 Подземное хозяйство. Фундамент ФОМ12...ФОМ23 ТП 503-4-70.13.91-КЖ-32 Подземное хозяйство. Приямок 2...5. Сечение 2-2...9-9 ТП 503-4-70.13.91-КЖ-33 Подземное хозяйство. Канал 1...10 ТП 503-4-70.13.91-КЖ-34 Подземное хозяйство. Канал 11...13. Сечение 1-1...22-22 ТП 503-4-70.13.91-КЖ-35 Подземное хозяйство. Спецификации ТП 503-4-70.13.91-КЖ-36 Резервуар приемный РЕП1. Сечения 1-1...2-2 ТП 503-4-70.13.91-КЖ-37 Резервуар приемный РЕП1. Схема расположения панелей стен, щитов перекрытия ТП 503-4-70.13.91-КЖ-38 Резервуар приемный РЕП1. Днище монолитное ДМ1. Сечение 1-1...2-2 ТП 503-4-70.13.91-КЖ-39 Стеллаж для зарядки аккумуляторов ТП 503-4-70.13.91-КЖ-40 Схема расположения колонн, ферм ТП 503-4-70.13.91-КЖ-41 Схема расположения плит покрытия ТП 503-4-70.13.91-КЖ-42 Схема расположения элементов торцового фахверка. Сечение 1-1...4-4 ТП 503-4-70.13.91-КЖ-43 Спецификация к схемам расположения колонн, ферм, элементов торцового фахверка, плит покрытия ТП 503-4-70.13.91-КЖ-44 Фундамент под оборудование ФОМ24...ФОМ29 ТП 503-4-70.13.91-КЖ-45 Схема расположения колонн, ригелей, металлических балок, венткамер ТП 503-4-70.13.91-КЖ-46 Узлы 1...10. Сечения 7-7...10-10 к схеме расположения колонн, ригелей, столиков, балок венткамер ТП 503-4-70.13.91-КЖ-47 Схемы расположения плит перекрытия венткамер на отм. 4.200 ТП 503-4-70.13.91-КЖ-48 Схемы расположения плит перекрытия венткамеры на отм. 4.800 ТП 503-4-70.13.91-КЖ-49 Участки монолитные УМ1...УМ3 ТП 503-4-70.13.91-КЖ-50 Схема расположения колонн для перегородок ТП 503-4-70.13.91-КЖ-51 Схемы расположения панелей стен по оси А;Л;1 ТП 503-4-70.13.91-КЖ-52 Схемы расположения панелей стен по оси 17 ТП 503-4-70.13.91-КМ Чертежи КМ ТП 503-4-70.13.91-КМ-1 Общие данные (начало) ТП 503-4-70.13.91-КМ-2 Общие данные (продолжение) ТП 503-4-70.13.91-КМ-3 Общие данные (продолжение) ТП 503-4-70.13.91-КМ-4 Общие данные (продолжение) ТП 503-4-70.13.91-КМ-5 Общие данные (окончание) ТП 503-4-70.13.91-КМ-6 Схема расположения элементов подвесных путей ТП 503-4-70.13.91-КМ-7 Сечение 1-1...8-8. Фрагмент 1 к схеме расположения элементов подвесных путей ТП 503-4-70.13.91-КМ-8 Схема расположения элементов лестницы около оси З,А,Л. Узел ТП 503-4-70.13.91-КМ-9 Схема расположения элементов лестницы между осями Д и Е, под емкость 16 м³. Узел 1...3 ТП 503-4-70.13.91-КМ-10 Стойки металлические СК1...СК12 ТП 503-4-70.13.91-КМ-11 Схемы расположения элементов площадки на отм. 3.000, площадок приемного резервуара ТП 503-4-70.13.91-КМ-12 Сечение 1-1...9-9, узел 1...5 к схемам расположения элементов площадок ТП 503-4-70.13.91-КМ-13 Схема расположения элементов площадки на отм. 2.2000. Стойка СК13 |
| Разработан: | Гипроавтотранс |
| Утверждён: | 22.11.1991 Новосибирский Облисполком (21) |













































































