Скачать Типовой проект 503-4-70.13.91 Альбом 5. Автоматизация отопления и вентиляции. Автоматизация внутреннего водопровода и канализацииДата актуализации: 01.01.2021
|
| Обозначение: | Типовой проект 503-4-70.13.91 |
| Обозначение англ: | 503-4-70.13.91 |
| Статус: | не определен законодательством |
| Название рус.: | Альбом 5. Автоматизация отопления и вентиляции. Автоматизация внутреннего водопровода и канализации |
| Дата добавления в базу: | 01.09.2013 |
| Дата актуализации: | 01.01.2021 |
| Дата введения: | 22.11.1991 |
| Дата окончания срока действия: | 30.06.2003 |
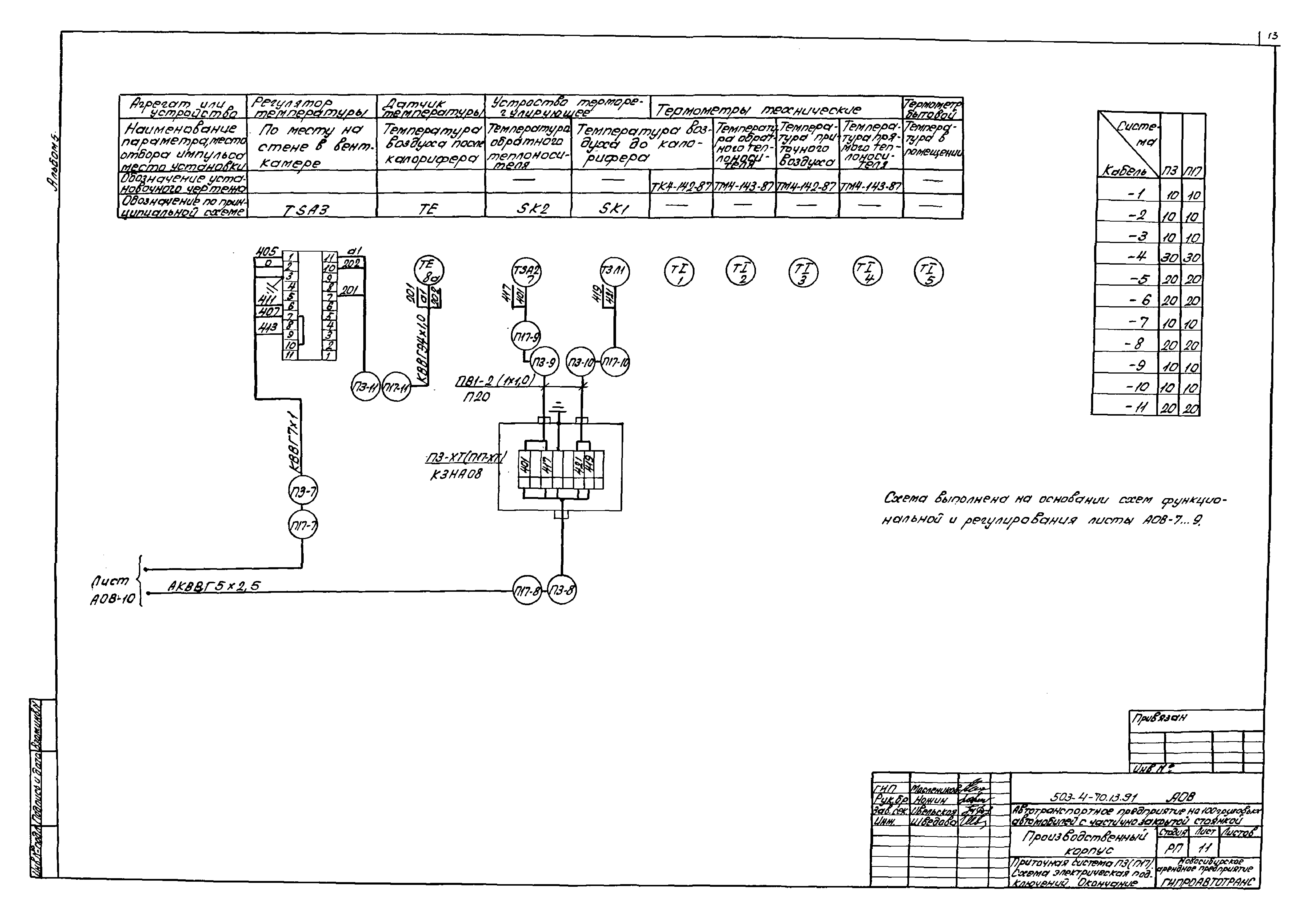
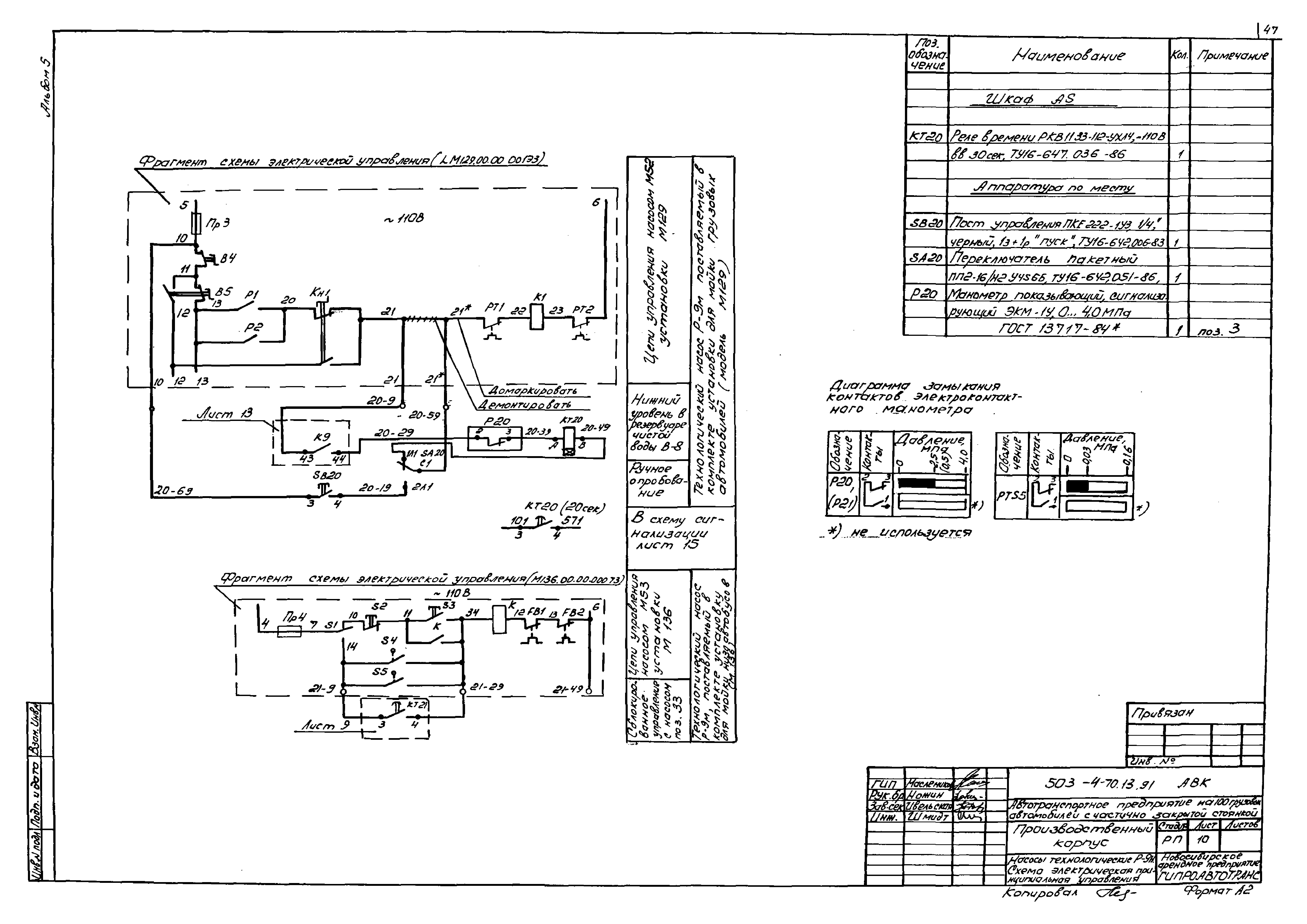
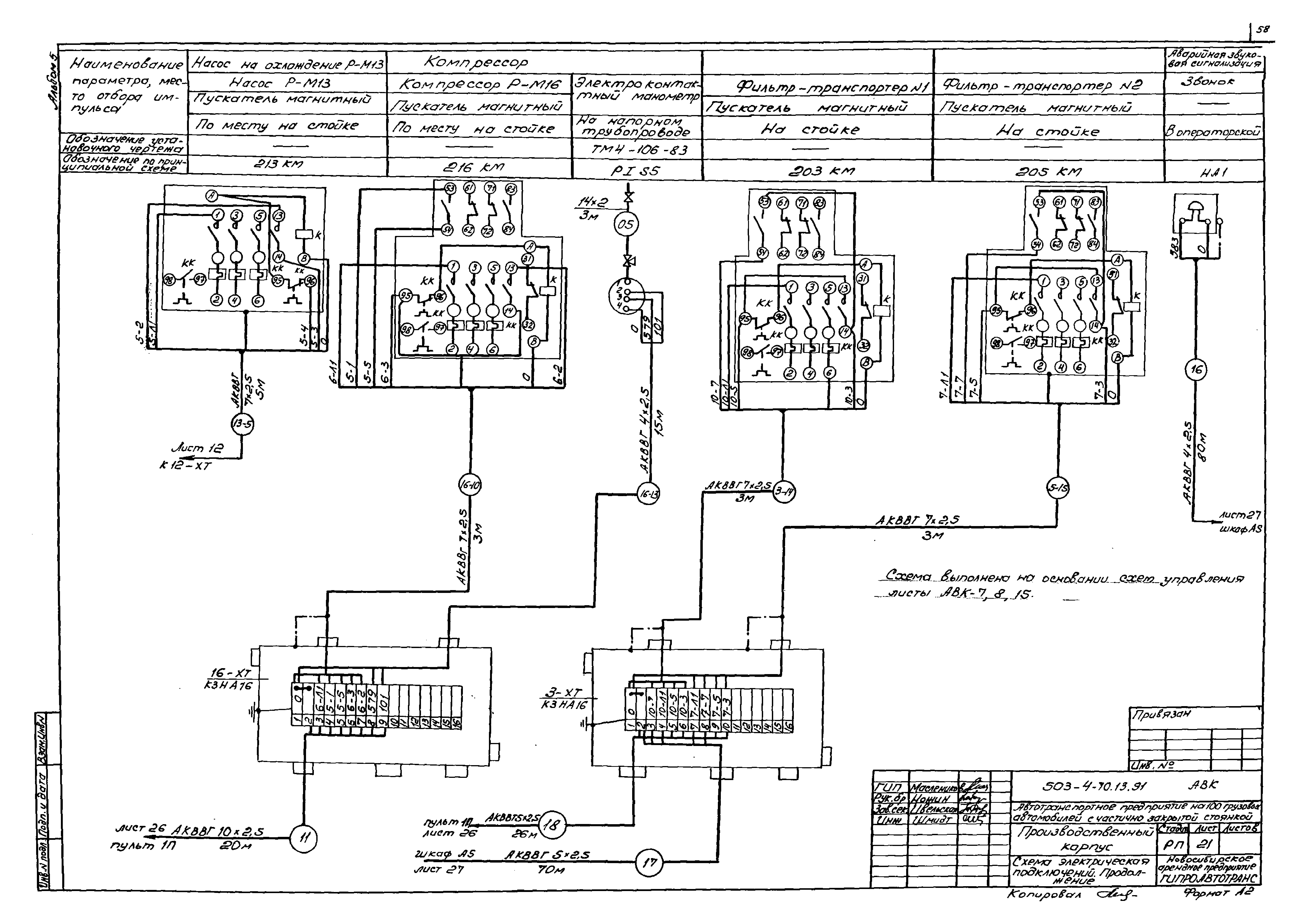
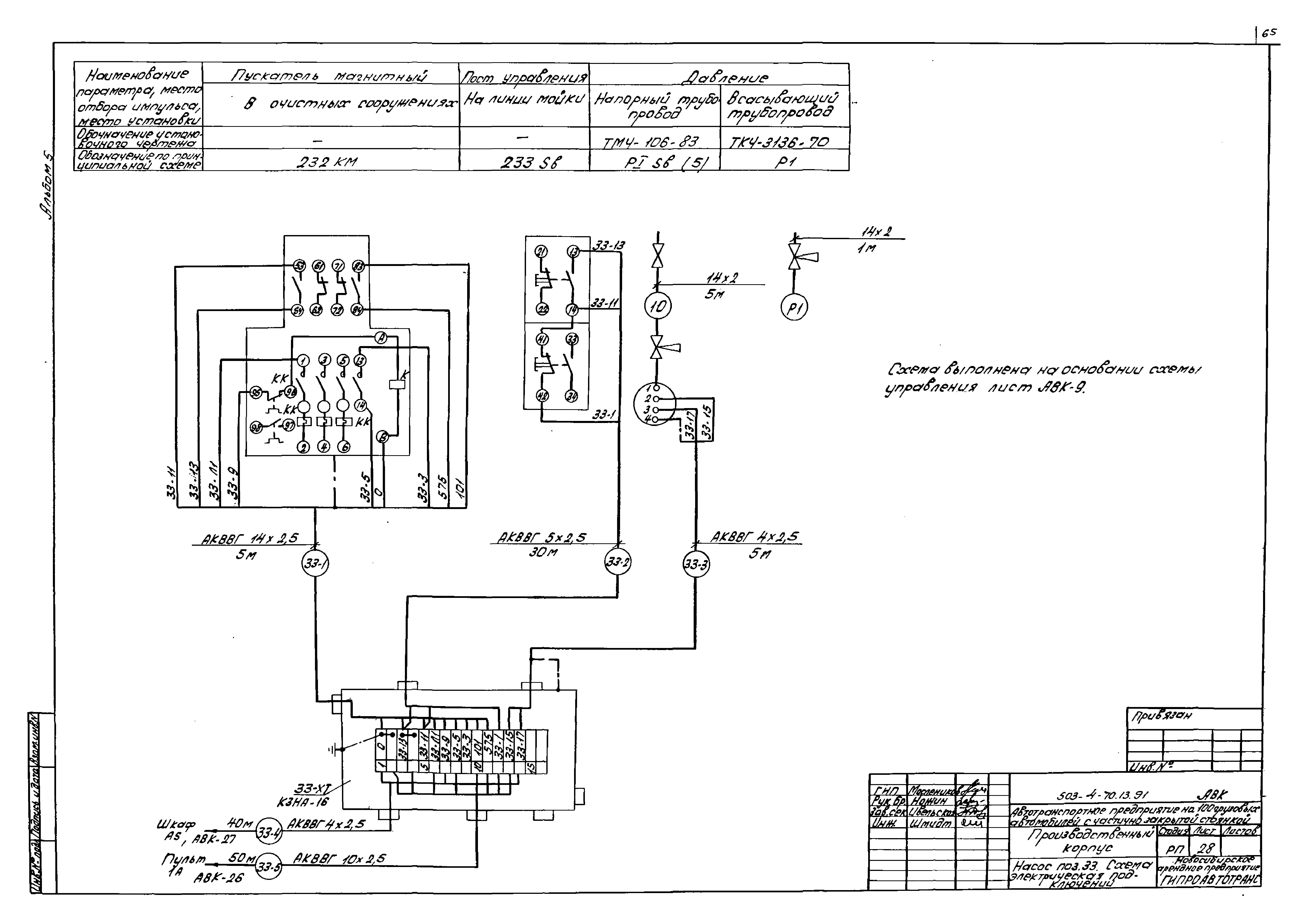
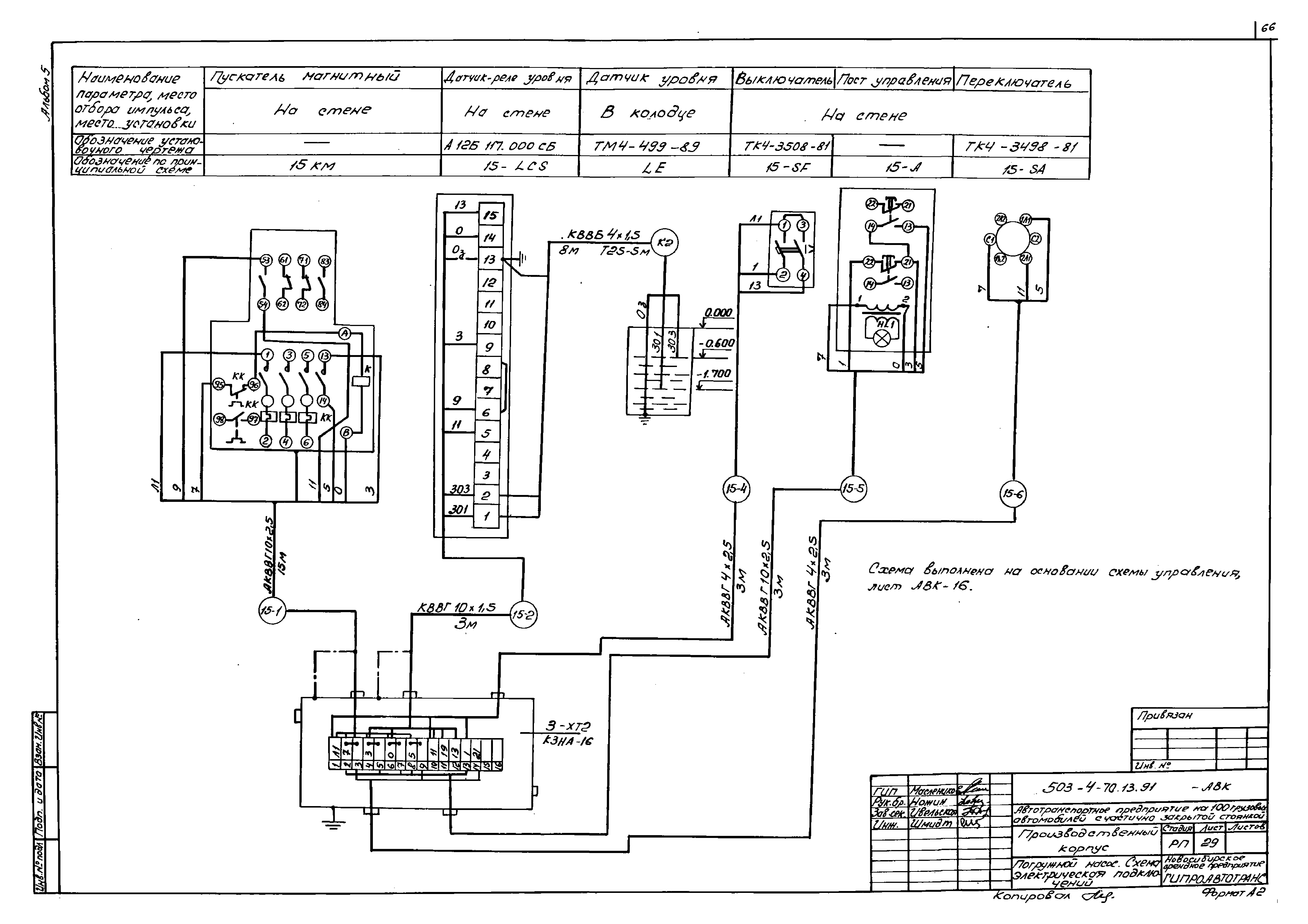
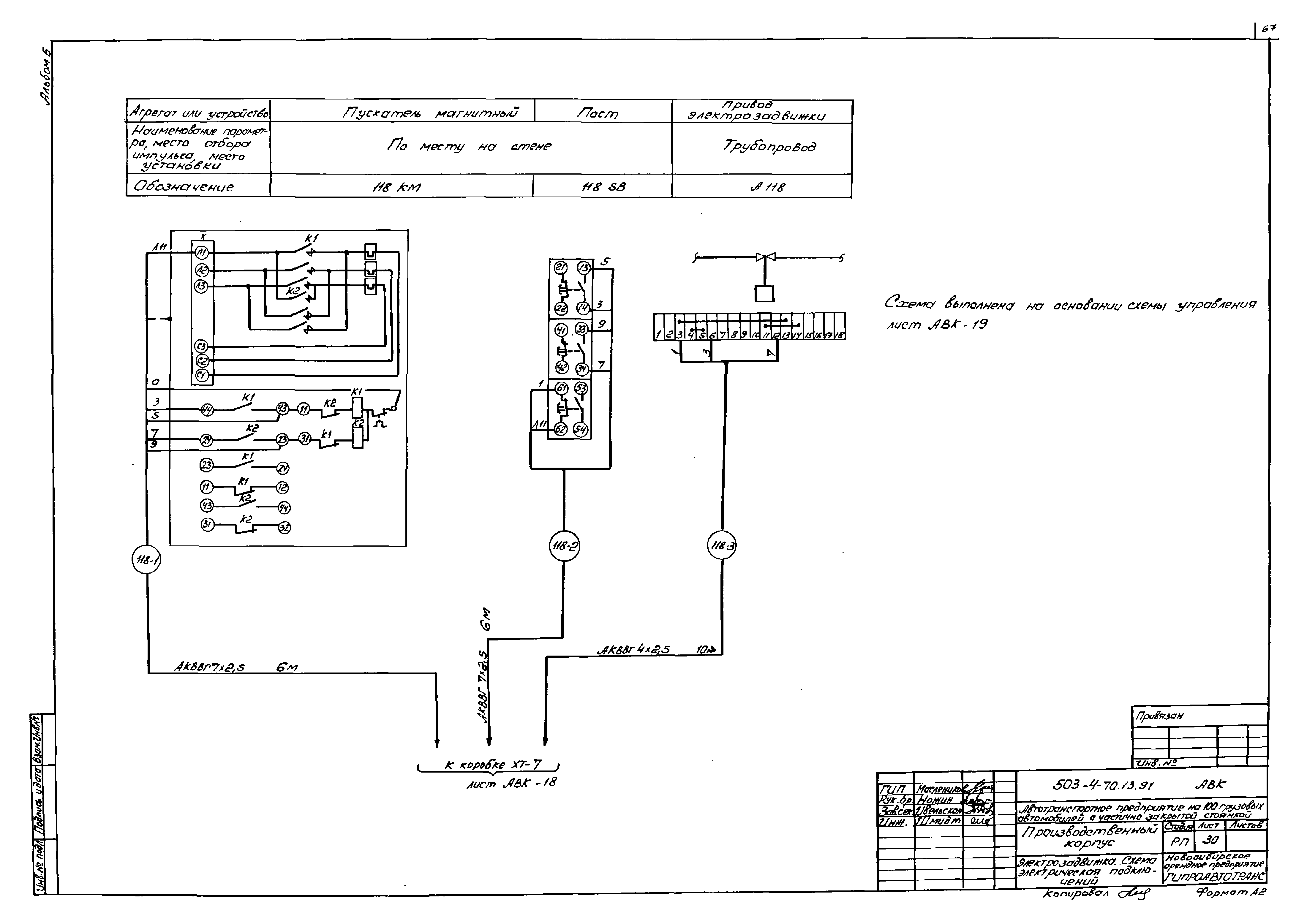
| Оглавление: | ТП 503-4-70.13.91-АОВ-1 Общие данные ТП 503-4-70.13.91-АОВ-2 Приточная система П1(П2,П4...П7,П10...П16). Схема функциональная ТП 503-4-70.13.91-АОВ-3 Приточная система П1(П2,П4...П7,П10...П16). Схема электрическая принципиальная управления ТП 503-4-70.13.91-АОВ-4 Приточная система П1(П2,П4...П7,П10...П16). Схема электрическая приточная регулирования ТП 503-4-70.13.91-АОВ-5 Приточная система П1(П2,П4...П7,П10...П16). Схема электрическая подключений. Начало ТП 503-4-70.13.91-АОВ-6 Приточная система П1(П2,П4...П7,П10...П16). Схема электрическая подключений. Окончание ТП 503-4-70.13.91-АОВ-7 Приточная система П3(П17). Схема функциональная ТП 503-4-70.13.91-АОВ-8 Приточная система П3(П17). Схема электрическая принципиальная управления ТП 503-4-70.13.91-АОВ-9 Приточная система П3(П17). Схема электрическая принципиальная регулирования ТП 503-4-70.13.91-АОВ-10 Приточная система П3(П17). Схема электрическая подключений. Начало ТП 503-4-70.13.91-АОВ-11 Приточная система П3(П17). Схема электрическая подключений. Окончание ТП 503-4-70.13.91-АОВ-12 Приточная система П8(П9). Схема функциональная ТП 503-4-70.13.91-АОВ-13 Приточная система П8(П9). Схема электрическая принципиальная управления ТП 503-4-70.13.91-АОВ-14 Приточная система П8(П9). Схема электрическая принципиальная регулирования ТП 503-4-70.13.91-АОВ-15 Приточная система П8(П9). Схема электрическая подключений. Начало ТП 503-4-70.13.91-АОВ-16 Приточная система П8(П9). Схема электрическая подключений. Окончание ТП 503-4-70.13.91-АОВ-17 Воздушно-тепловая завеса У1,У2,(У3,У4,У5,У6,У7,У8). Схема функциональная ТП 503-4-70.13.91-АОВ-18 Воздушно-тепловая завеса У1,У2,(У3,У4,У5,У6,У7,У8). Схема электрическая принципиальная управления ТП 503-4-70.13.91-АОВ-19 Схема электрическая подключений ТП 503-4-70.13.91-АОВ-20 Управление вентсистемами В9,В19,В6,В16 и блокировка их с оборудованием ТП 503-4-70.13.91-АОВ-21 Отключение вентсистем при пожаре. Схема электрическая принципиальная управления ТП 503-4-70.13.91-АОВ-22 Отключение вентсистем при пожаре. Схема электрическая подключений ТП 503-4-70.13.91-АОВ-23 ЦТП. Схема функциональная ТП 503-4-70.13.91-АОВ-24 ЦТП. Схема подключений. Начало ТП 503-4-70.13.91-АОВ-25 ЦТП. Схема подключений. Окончание ТП 503-4-70.13.91-АОВ-26 Водоподогреватели. Схема функциональная. Схема подключений ТП 503-4-70.13.91-АОВ-27 План расположения средств автоматизации. Начало ТП 503-4-70.13.91-АОВ-28 План расположения средств автоматизации. Продолжение ТП 503-4-70.13.91-АОВ-29 План расположения средств автоматизации. Продолжение ТП 503-4-70.13.91-АОВ-30 План расположения средств автоматизации. Продолжение ТП 503-4-70.13.91-АОВ-31 План расположения средств автоматизации. Окончание ТП 503-4-70.13.91-АОВ-Н1 Щит управления П1-(П2,П4...П7,П10...П16)Щ4 ТП 503-4-70.13.91-АОВ-Н1 Эскизный чертеж общего вида ТП 503-4-70.13.91-АОВ-Н2 Щит управления П3-ЩУ(П17-ЩУ). Эскизный чертеж общего вида ТП 503-4-70.13.91-АОВ-Н3 Щит управления П8-ЩУ(П9-ЩУ). Эскизный чертеж общего вида ТП 503-4-70.13.91-АОВ-Н4 Щит управления ЩУ1(ЩУ2...ЩУ4). Эскизный чертеж общего вида ТП 503-4-70.13.91-АВК-1 Общие данные. Начало ТП 503-4-70.13.91-АВК-2 Общие данные. Окончание ТП 503-4-70.13.91-АВК-3 Схема функциональная. Начало ТП 503-4-70.13.91-АВК-4 Схема функциональная. Окончание ТП 503-4-70.13.91-АВК-5 Насосы сточных вод Р-3. Схема электрическая принципиальная управления. Начало ТП 503-4-70.13.91-АВК-6 Насосы сточных вод Р-3. Схема электрическая принципиальная управления. Окончание ТП 503-4-70.13.91-АВК-7 Флотатор. Насос на охлаждение. Компрессор. Схема электрическая принципиальная управления ТП 503-4-70.13.91-АВК-8 Схема электрическая принципиальная управления задвижкой гидроциклона, фильтр-транспортером ТП 503-4-70.13.91-АВК-9 Насос поз. 33. Схема электрическая принципиальная управления ТП 503-4-70.13.91-АВК-10 Насосы технологические Р-9Н. Схема электрическая принципиальная управления ТП 503-4-70.13.91-АВК-11 Фильтр "Полимер П-86". Схема электрическая принципиальная управления ТП 503-4-70.13.91-АВК-12 Насос технической воды. Схема электрическая принципиальная управления и подключений ТП 503-4-70.13.91-АВК-13 Схема электрическая принципиальная измерений. Начало ТП 503-4-70.13.91-АВК-14 Схема электрическая принципиальная измерений. Окончание ТП 503-4-70.13.91-АВК-15 Схема электрическая принципиальная сигнализации ТП 503-4-70.13.91-АВК-16 Погружной насос. Схема электрическая принципиальная управления ТП 503-4-70.13.91-АВК-17 Пожарные краны. Схема электрическая принципиальная управления и подключений. Начало ТП 503-4-70.13.91-АВК-18 Пожарные краны. Схема электрическая принципиальная подключений. Окончание ТП 503-4-70.13.91-АВК-19 Электрозадвижка. Схема электрическая принципиальная управления ТП 503-4-70.13.91-АВК-20 Схема электрическая подключений. Начало ТП 503-4-70.13.91-АВК-21 Схема электрическая подключений. Продолжение ТП 503-4-70.13.91-АВК-22 Схема электрическая подключений. Продолжение ТП 503-4-70.13.91-АВК-23 Схема электрическая подключений. Продолжение ТП 503-4-70.13.91-АВК-24 Схема электрическая подключений. Продолжение ТП 503-4-70.13.91-АВК-25 Схема электрическая подключений. Продолжение ТП 503-4-70.13.91-АВК-26 Схема электрическая подключений. Продолжение ТП 503-4-70.13.91-АВК-27 Схема электрическая подключений. Окончание ТП 503-4-70.13.91-АВК-28 Насос поз. 33. Схема электрическая подключений ТП 503-4-70.13.91-АВК-29 Погружной насос. Схема электрическая подключений ТП 503-4-70.13.91-АВК-30 Электрозадвижка. Схема электрическая подключений ТП 503-4-70.13.91-АВК-31 План расположения средств автоматизации. Начало ТП 503-4-70.13.91-АВК-32 План расположения средств автоматизации. Продолжение ТП 503-4-70.13.91-АВК-33 План расположения средств автоматизации. Продолжение ТП 503-4-70.13.91-АВК-34 План расположения средств автоматизации. Окончание ТП 503-4-70.13.91-АВК-Н1 Шкаф АS. Эскизный чертеж общего вида ТП 503-4-70.13.91-АВК-Н2 Щит управления ЩУ6(ЩУ7). Эскизный чертеж общего вида ТП 503-4-70.13.91-АВК-Н3 Щит управления ЩУ11. Эскизный чертеж общего вида ТП 503-4-70.13.91-АВК-Н4 Щит управления ЩУ8(ЩУ9). Эскизный чертеж общего вида ТП 503-4-70.13.91-АВК-Н5 Пульт 1П. Эскизный чертеж общего вида |
| Разработан: | Гипроавтотранс |
| Утверждён: | 22.11.1991 Новосибирский Облисполком (21) |












































































