Скачать Серия 2.436-18 Выпуск 2. Узлы заполнения с применением коробчатого профильного стекла. Рабочие чертежиДата актуализации: 01.01.2021
|
| Обозначение: | Серия 2.436-18 |
| Обозначение англ: | Series 2.436-18 |
| Статус: | не действует |
| Название рус.: | Выпуск 2. Узлы заполнения с применением коробчатого профильного стекла. Рабочие чертежи |
| Дата добавления в базу: | 01.09.2013 |
| Дата актуализации: | 01.01.2021 |
| Дата введения: | 01.08.1986 |
| Дата окончания срока действия: | 01.05.1999 |
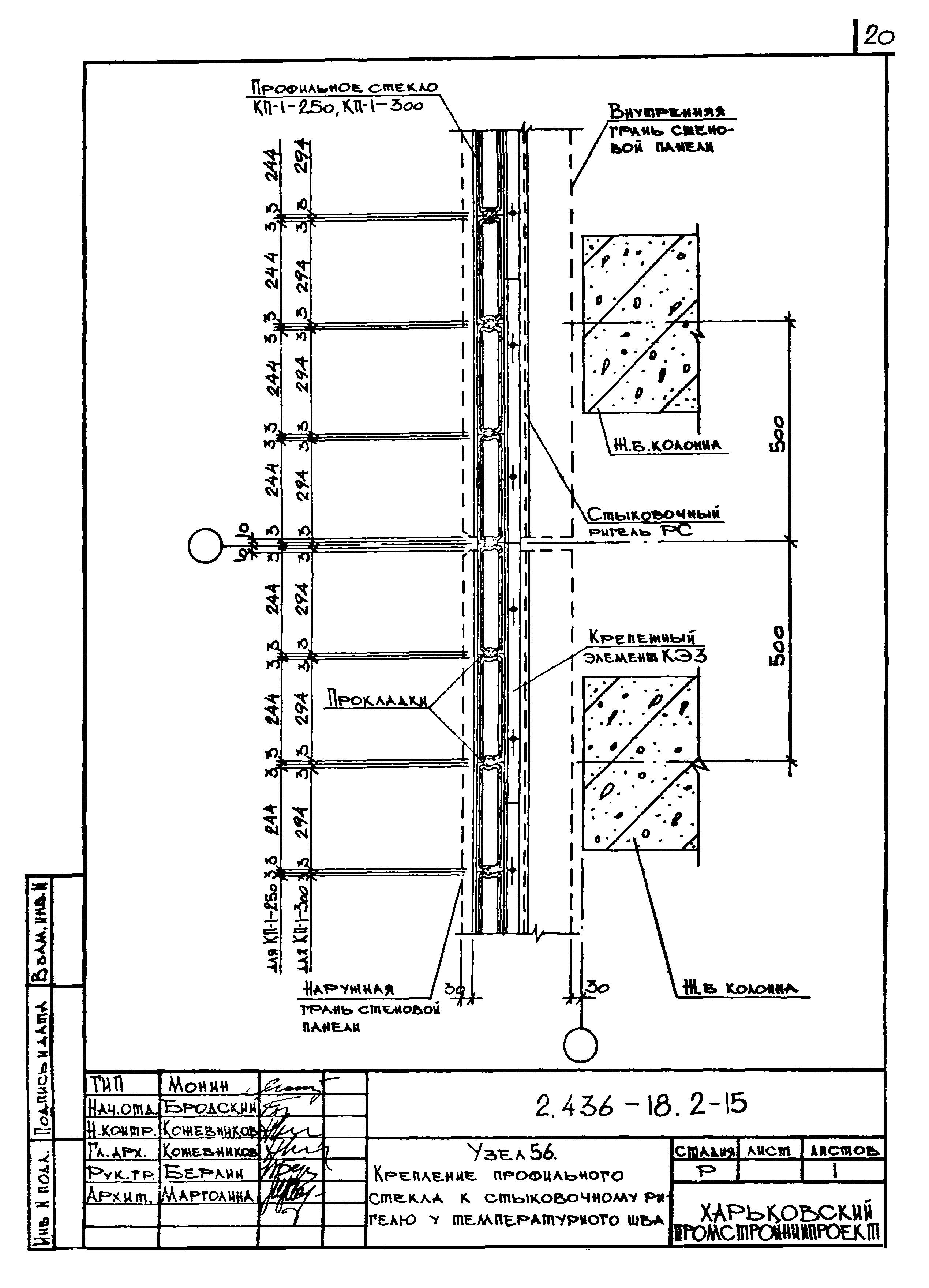
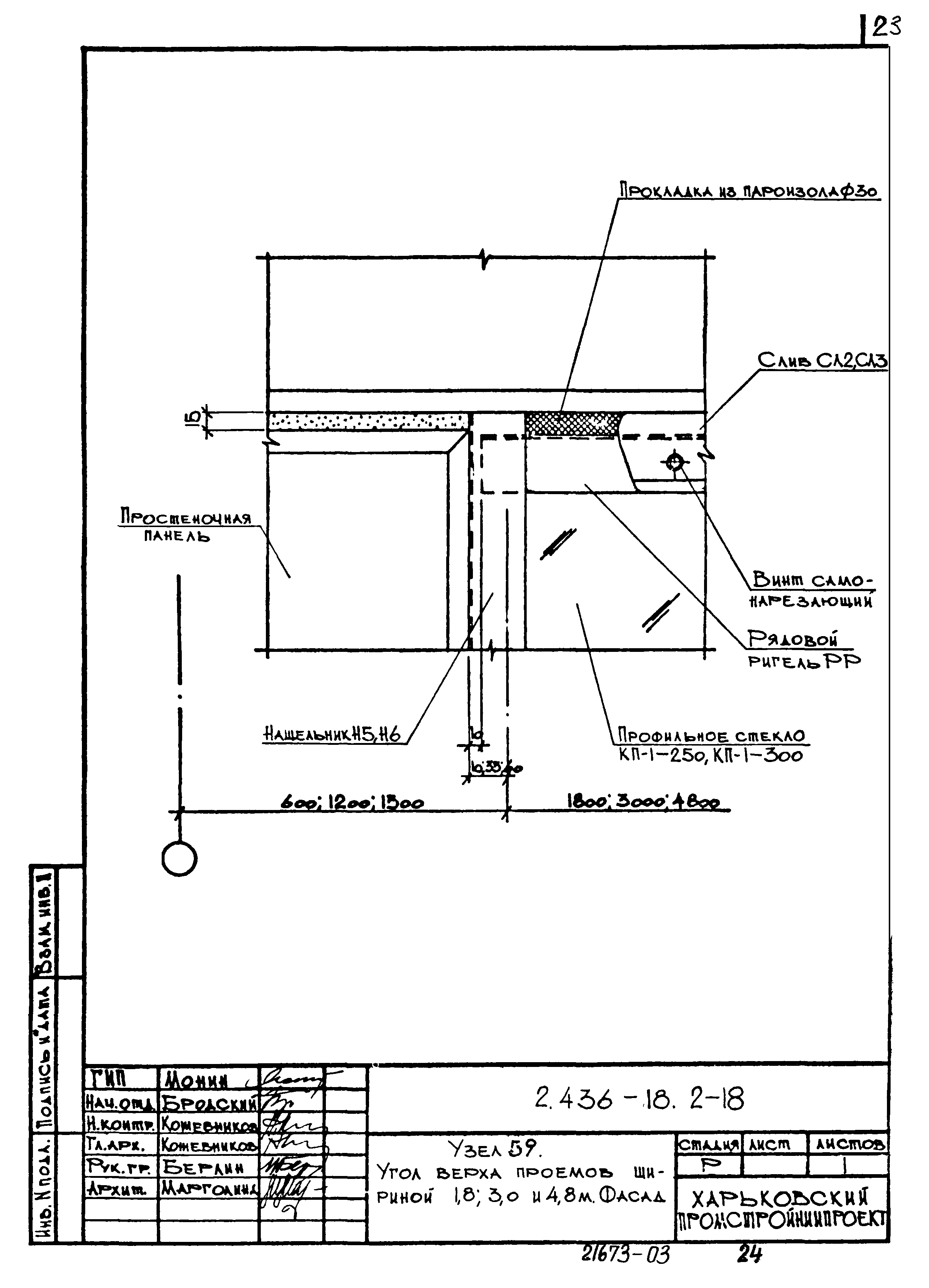
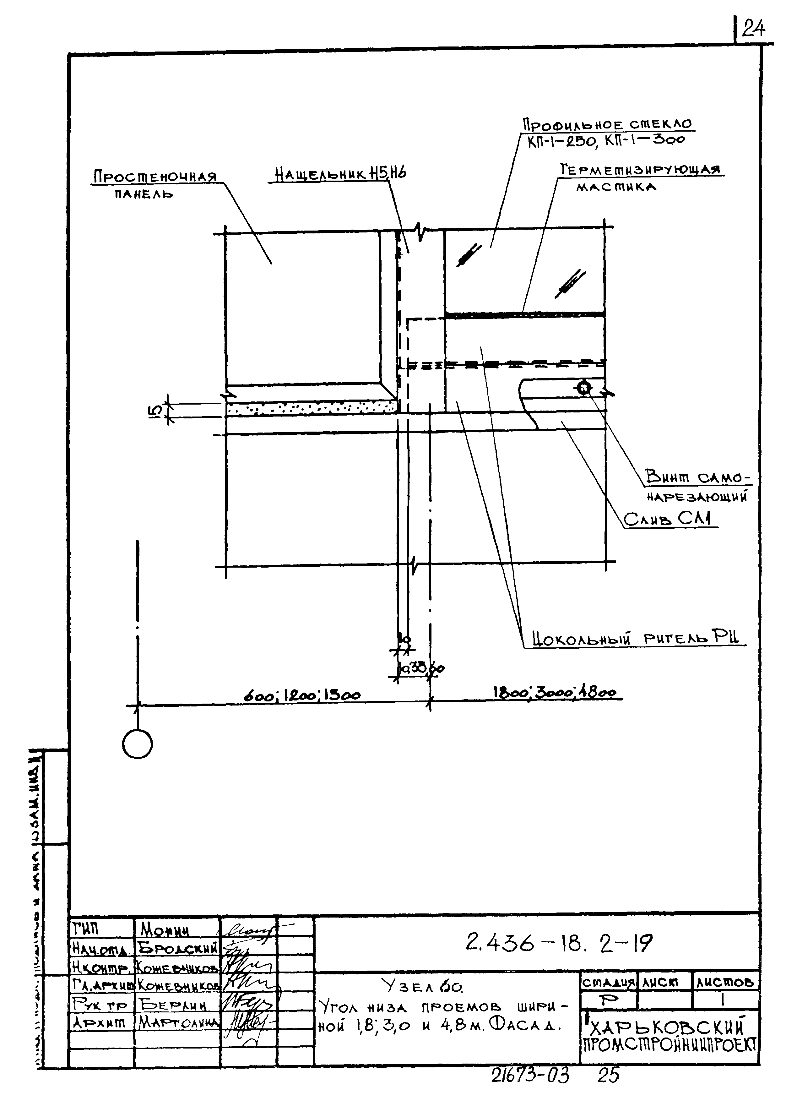
| Оглавление: | 2.436-18.2-00 Содержание 2.436-18.2-00 ПЗ Пояснительная записка 2.436-18.2-01 Узлы 40,41,42. Вертикальные швы 2.436-18.2-02 Узел 43. Верх проема 2.436-18.2-03 Узел 44. Верх проема 2.436-18.2-04 Узел 45. Крепление профильного стекла к рядовому ригелю у рядовой колонны 2.436-18.2-05 Узел 46. Крепление профильного стекла к рядовому ригелю у температурного шва 2.436-18.2-06 Узел 47. Низ проема 2.436-18.2-07 Узел 48. Низ проема 2.436-18.2-08 Узел 49. Крепление профильного стекла к цокольному ригелю у рядовой колонны 2.436-18.2-09 Узел 50. Крепление профильного стекла к цокольному ригелю у температурного шва 2.436-18.2-10 Узел 51. Примыкание профильного стекла к простеночной панели с зазором 13 мм 2.436-18.2-11 Узел 52. Примыкание профильного стекла к простеночной панели с зазором 38 мм 2.436-18.2-12 Узел 53. Примыкание профильного стекла к стыковочному ригелю 2.436-18.2-13 Узел 54. Примыкание профильного стекла к стыковочному ригелю 2.436-18.2-14 Узел 55. Примыкание профильного стекла к стыковочному ригелю у рядовой колонны 2.436-18.2-15 Узел 56. Крепление профильного стекла к стыковочному ригелю у температурного шва 2.436-18.2-16 Узел 57. Опирание профильного стекла на надоконный ригель при окнах со стальными переплетами серии 1.436.2-15 2.436-18.2-17 Узел 57. Опирание профильного стекла на надоконный ригель при окнах со стальными переплетами серии 1.436.2-17 2.436-18.2-18 Узел 59. Угол верха проемов шириной 1,8;3,0;4,8 м. Фасад 2.436-18.2-19 Узел 60. Угол низа проемов шириной 1,8;3,0;4,8 м. Фасад 2.436-18.2-20 Узел 61. Примыкание стыковочного ригеля к простеночной панели. Фасад 2.436-18.2-21 Узел 62. Угол верха проема шириной 6,0 м. Фасад 2.436-18.2-22 Узел 63. Угол низа проема шириной 6,0 м. Фасад 2.436-18.2-23 Узел 64. Примыкание стыковочного ригеля к стеновой панели. Фасад 2.436-18.2-24 Узел 65. Примыкание профильного стекла с открывающимися окнами внизу к простеночной панели. Фасад |
| Разработан: | Харьковский Промстройниипроект |
| Утверждён: | 21.05.1986 Госстрой СССР (Государственный комитет Совета Министров СССР по делам строительства) (USSR Gosstroy 64) |
| Принят: | ЦНИИпромзданий (TsNIIpromzdaniy ) |






























