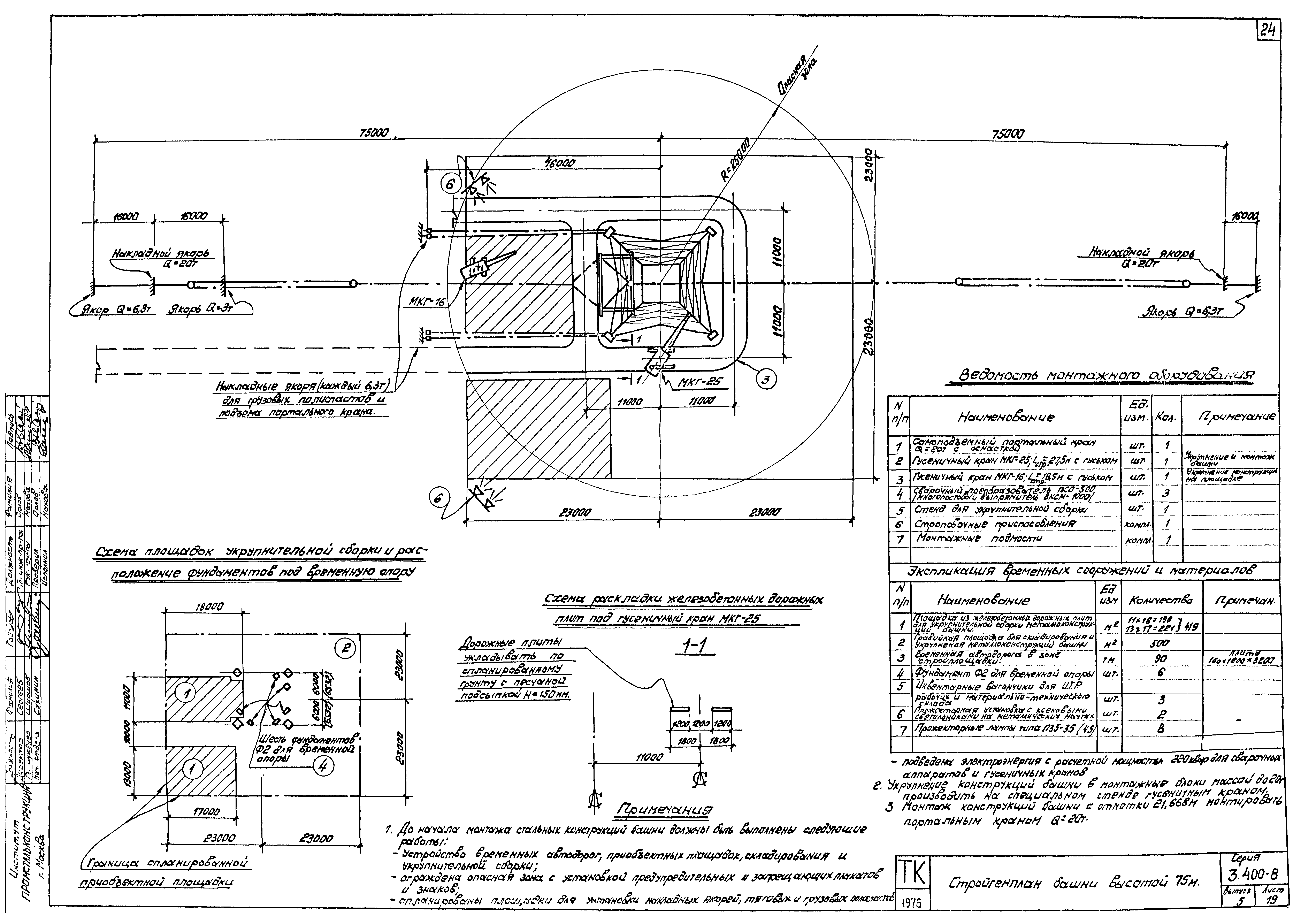
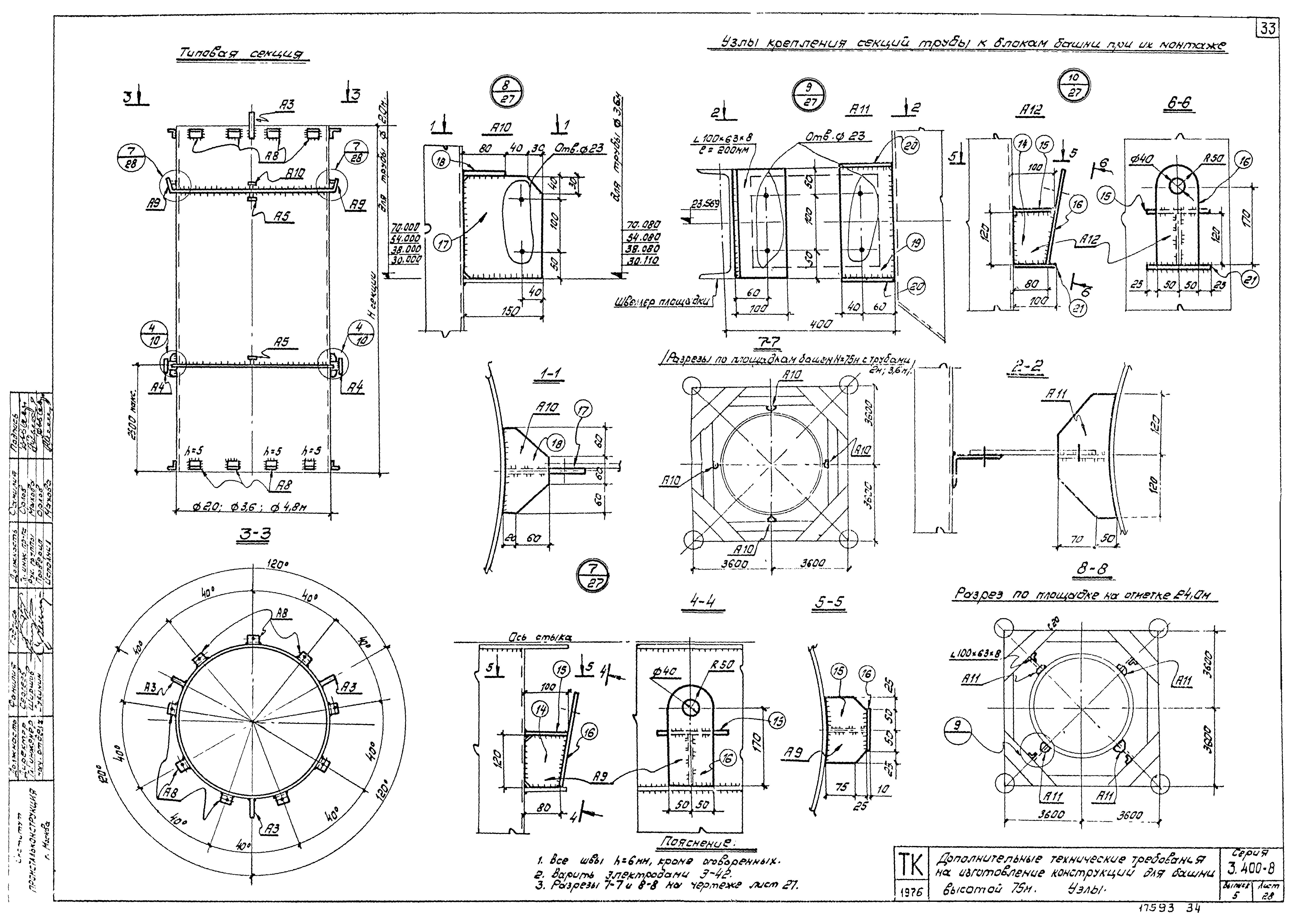
Скачать Серия 3.400-8 Выпуск 5. Рекомендации по монтажу. Чертежи КМ. Материалы для проектированияДата актуализации: 01.01.2021
|
| Обозначение: | Серия 3.400-8 |
| Обозначение англ: | Series 3.400-8 |
| Статус: | не действует |
| Название рус.: | Выпуск 5. Рекомендации по монтажу. Чертежи КМ. Материалы для проектирования |
| Дата добавления в базу: | 01.09.2013 |
| Дата актуализации: | 01.01.2021 |
| Дата окончания срока действия: | 01.05.1990 |
| Разработан: | ЦНИИпроектстальконструкция |
| Утверждён: | 02.12.1980 Госстрой СССР (Государственный комитет Совета Министров СССР по делам строительства) (USSR Gosstroy 2/3-413) |


































