Скачать Типовой проект 507-63 Альбом I. Архитектурно-строительная и санитарно-техническая частиДата актуализации: 01.01.2021
|
| Обозначение: | Типовой проект 507-63 |
| Обозначение англ: | 507-63 |
| Статус: | действует |
| Название рус.: | Альбом I. Архитектурно-строительная и санитарно-техническая части |
| Дата добавления в базу: | 01.09.2013 |
| Дата актуализации: | 01.01.2021 |
| Дата введения: | 08.12.1980 |
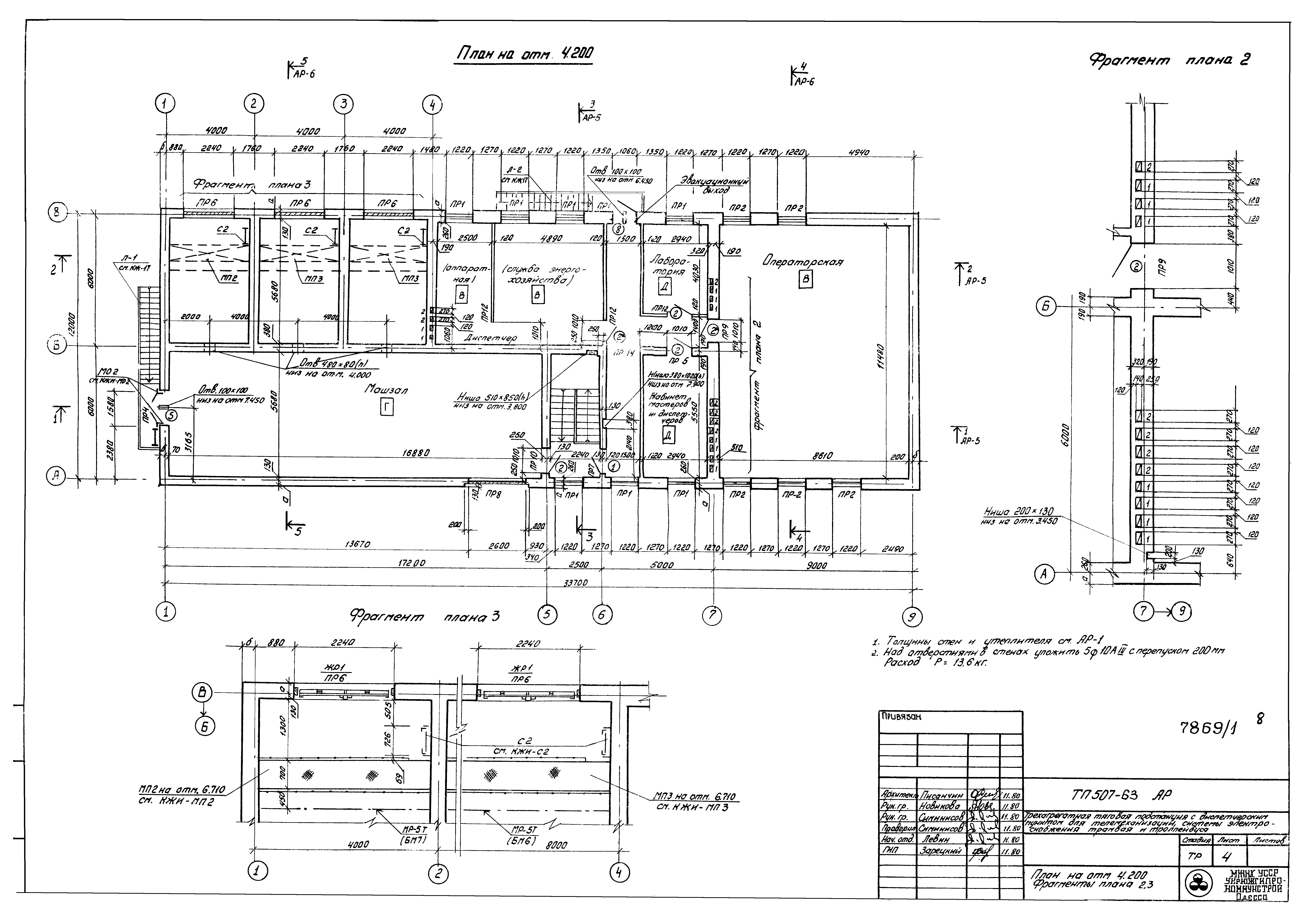
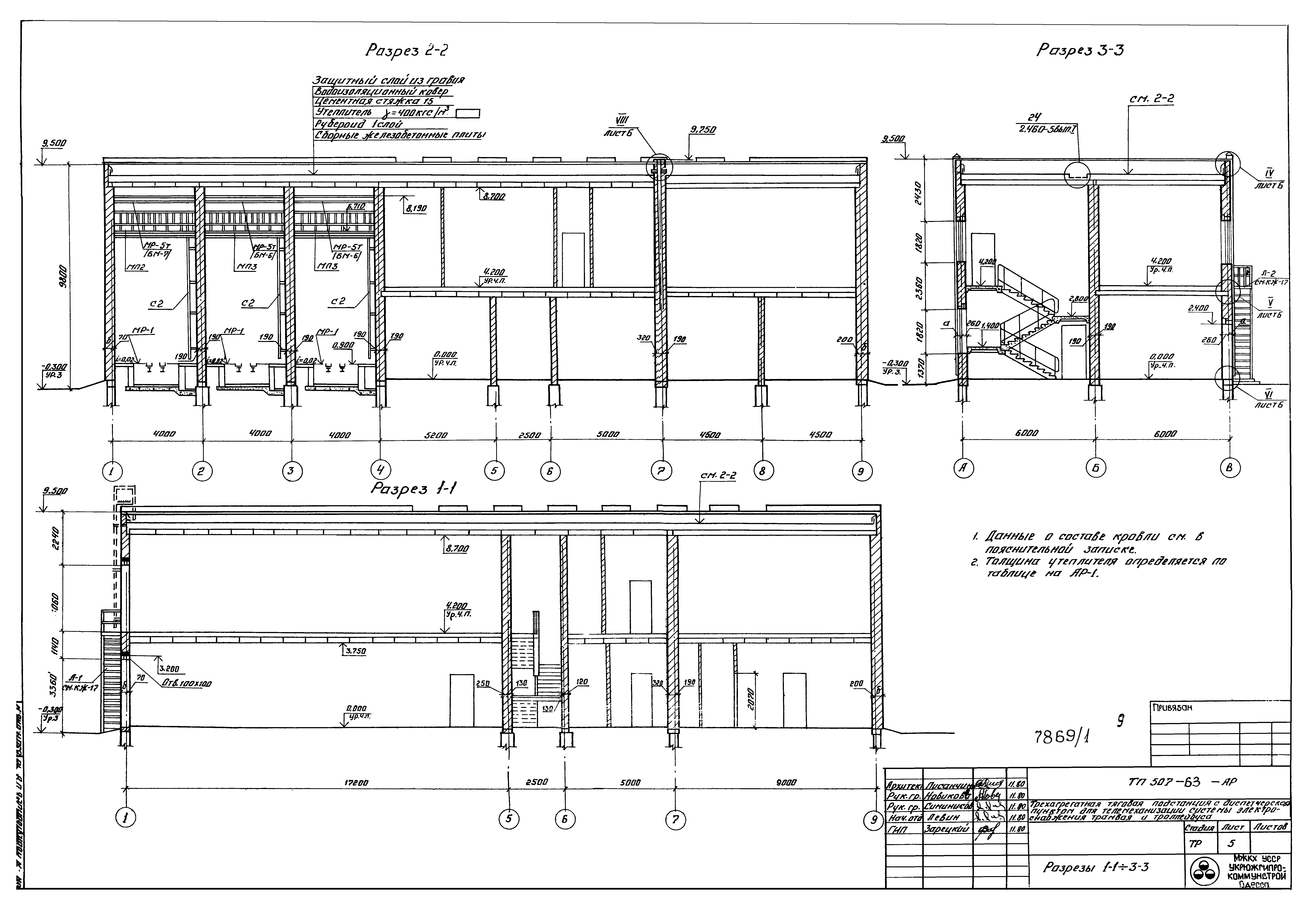
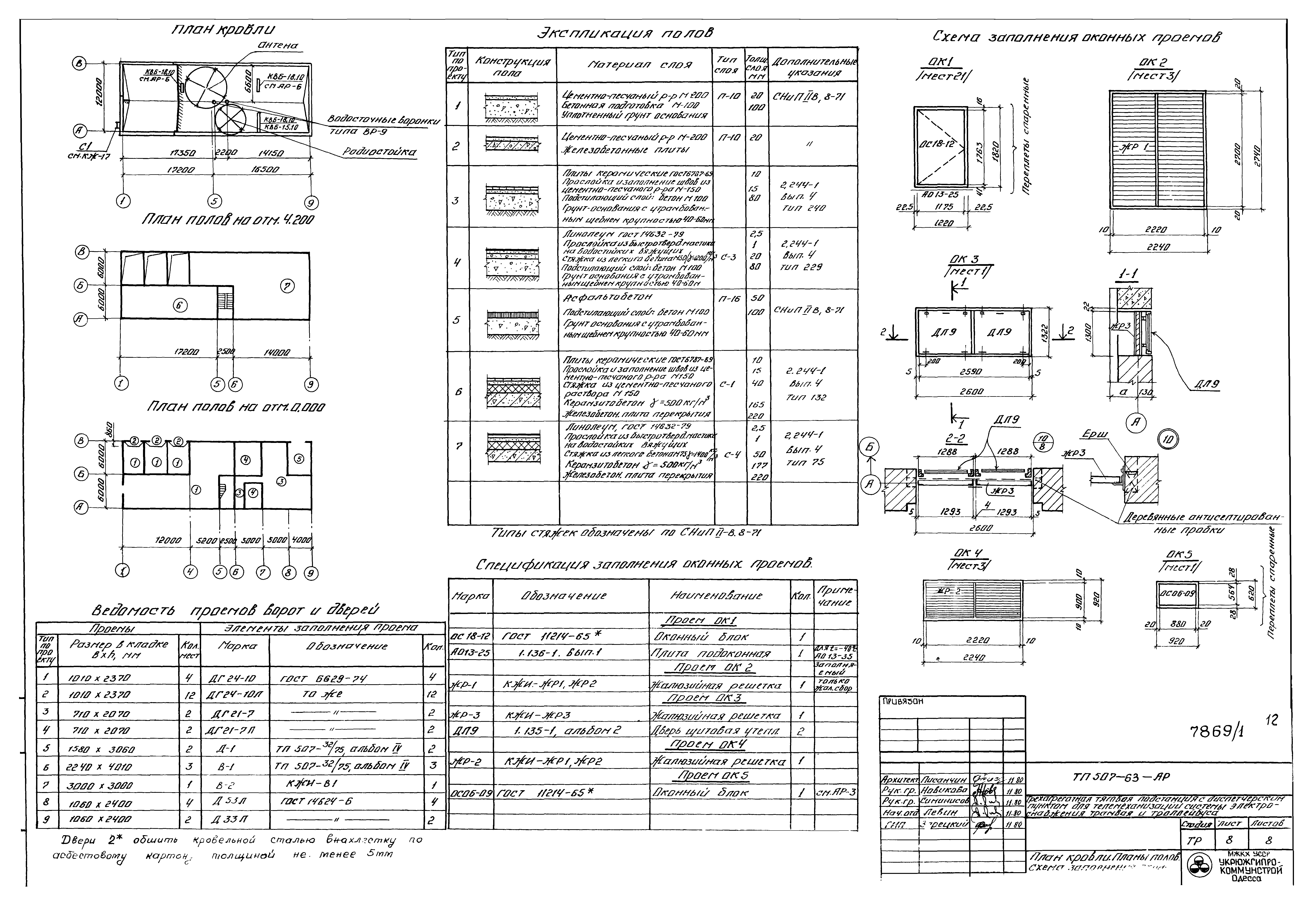
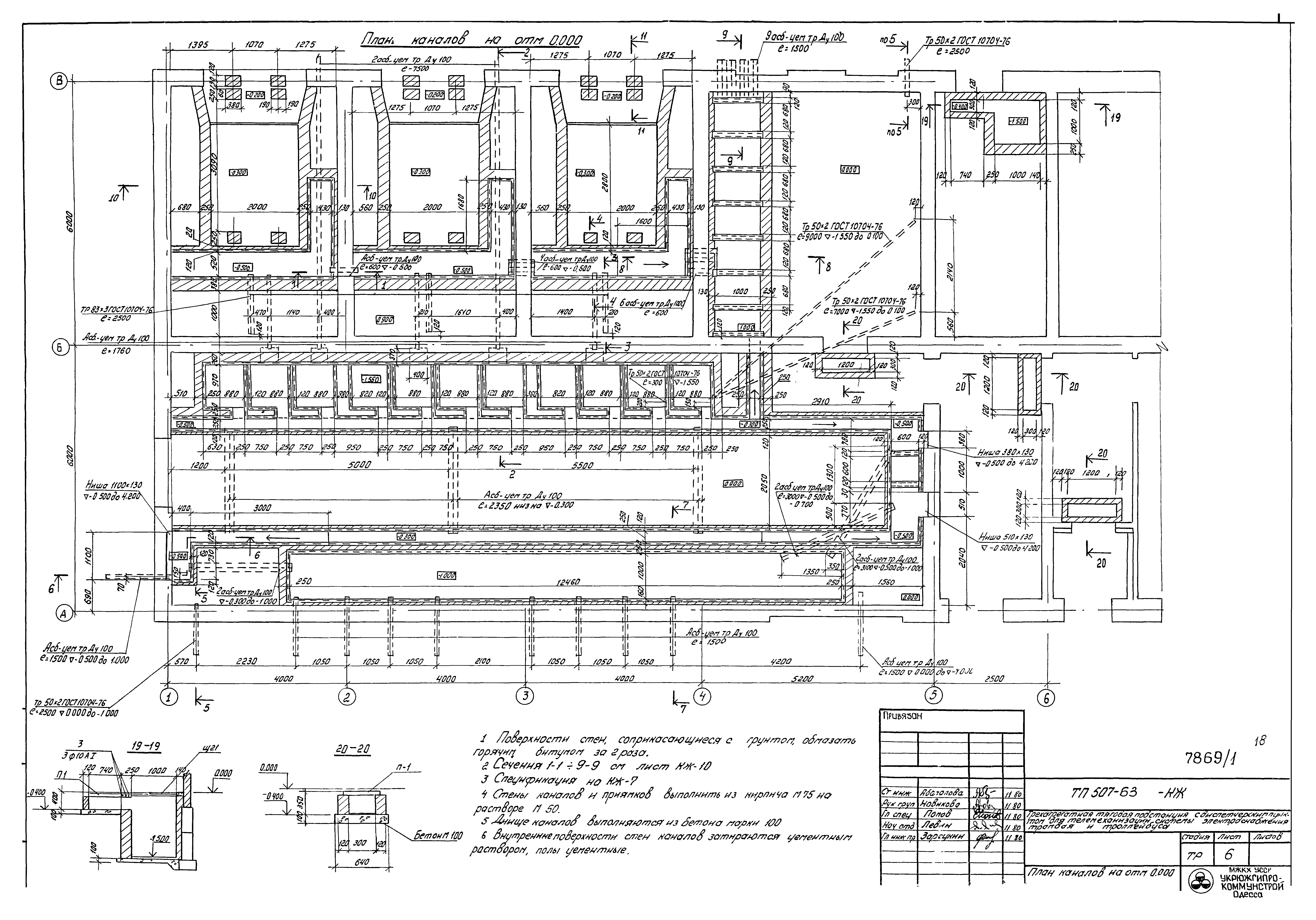
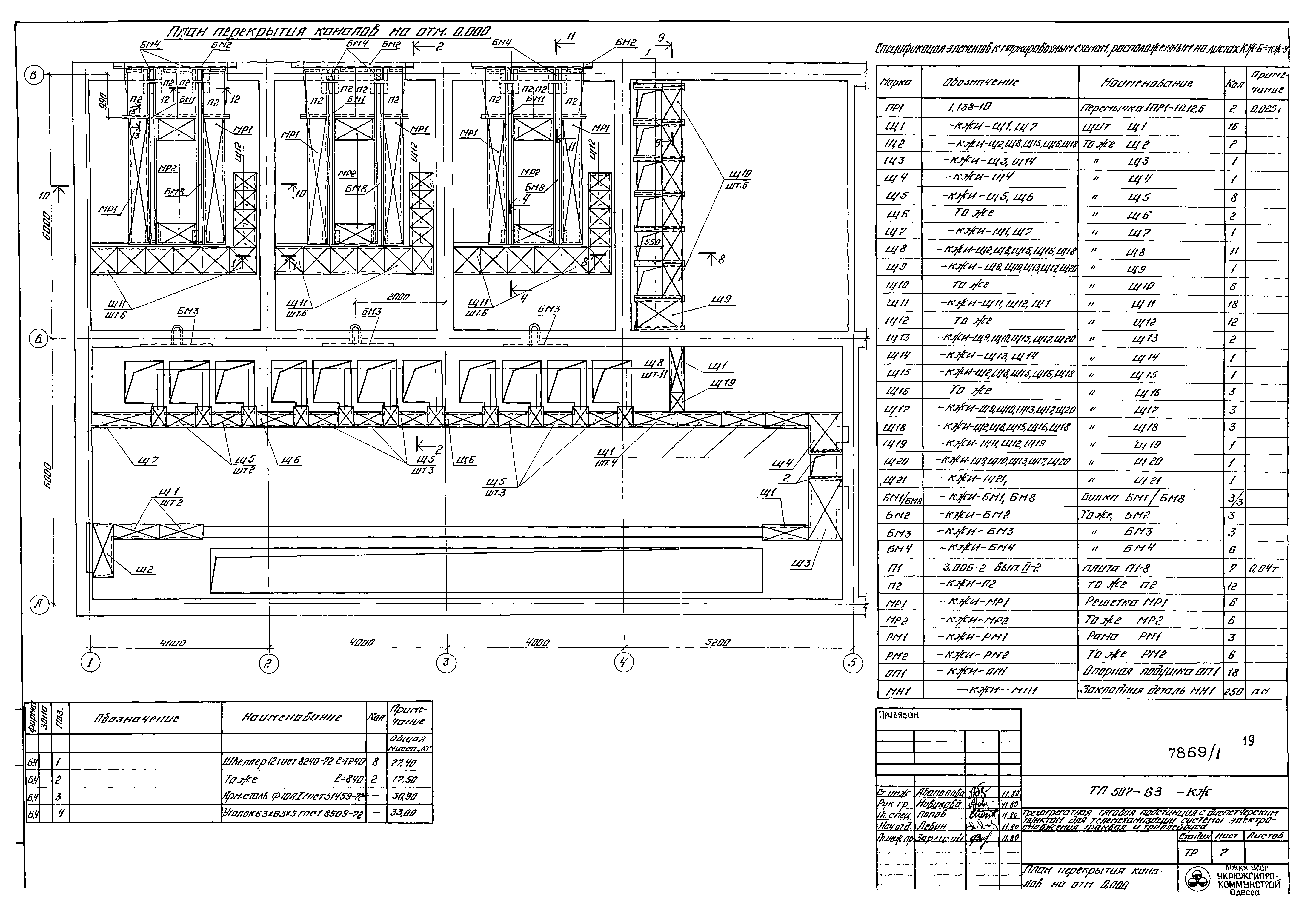
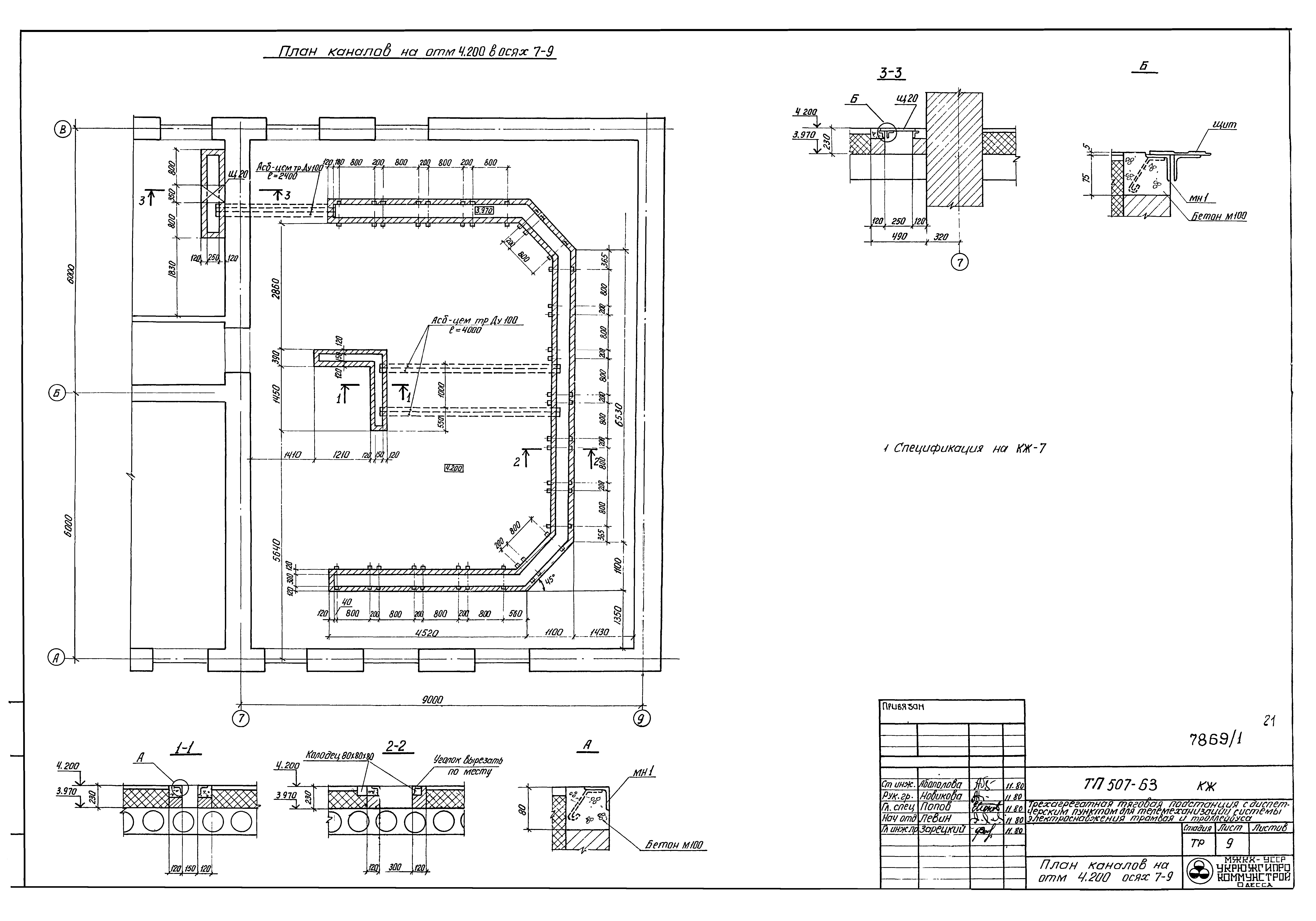
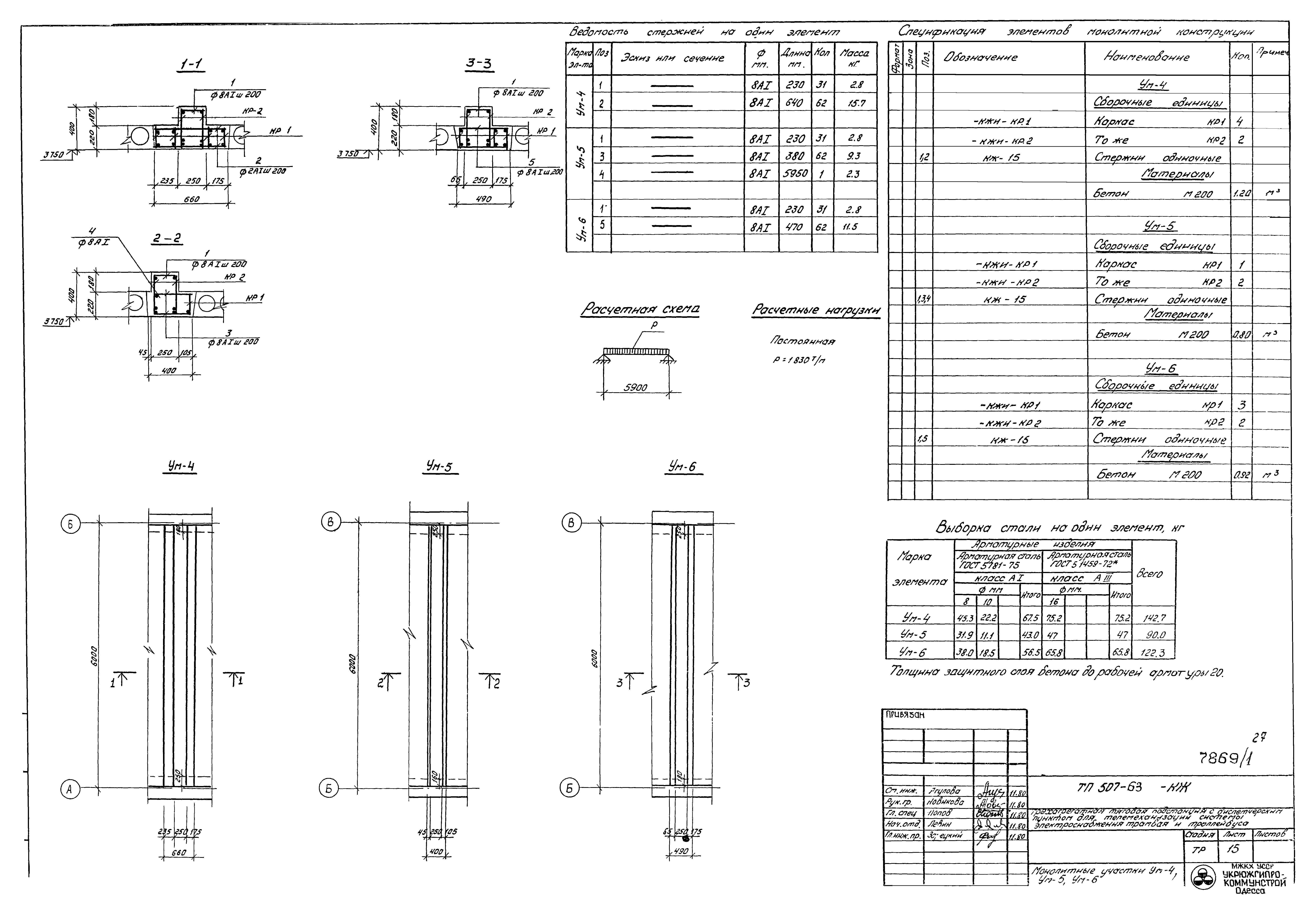
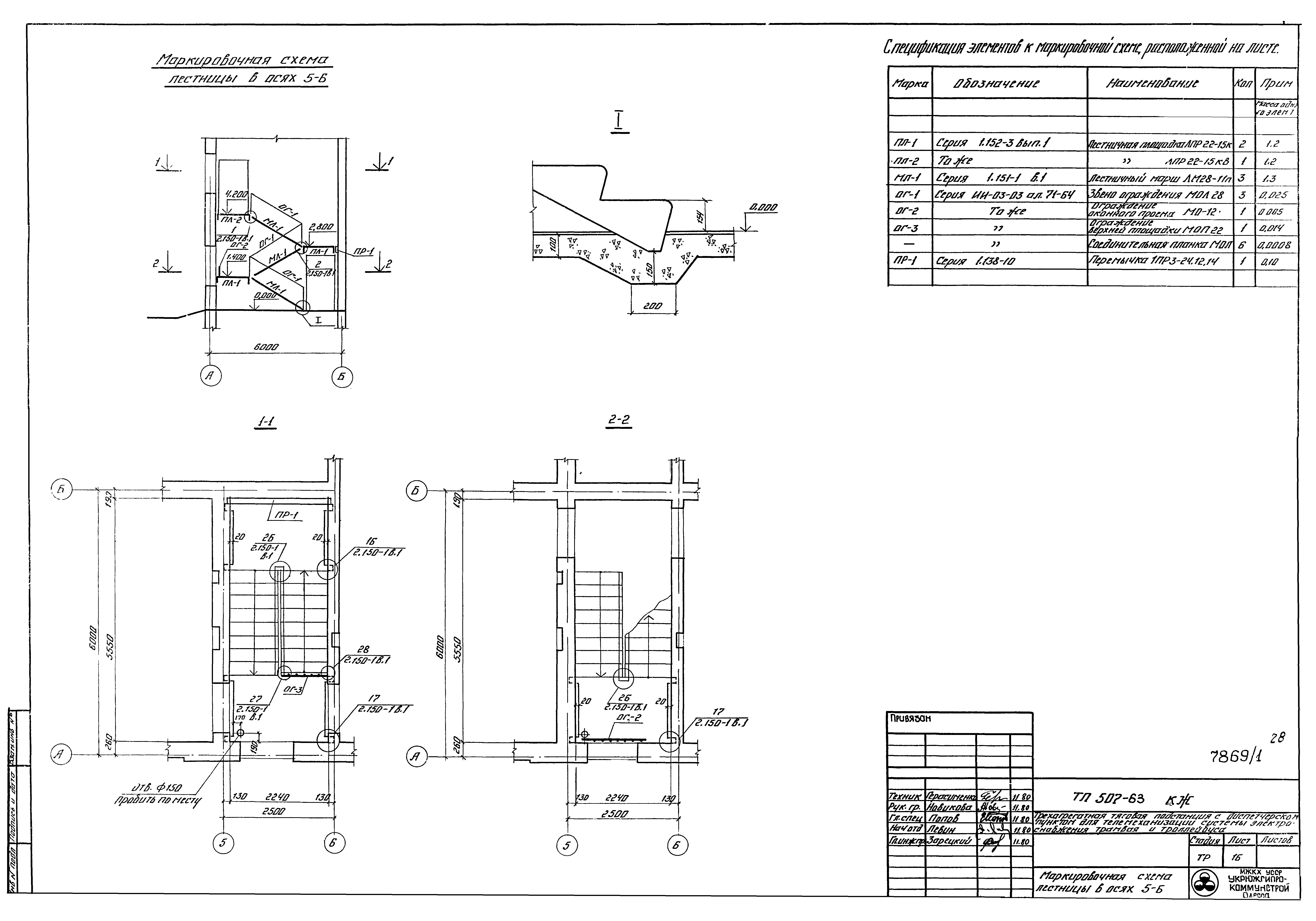
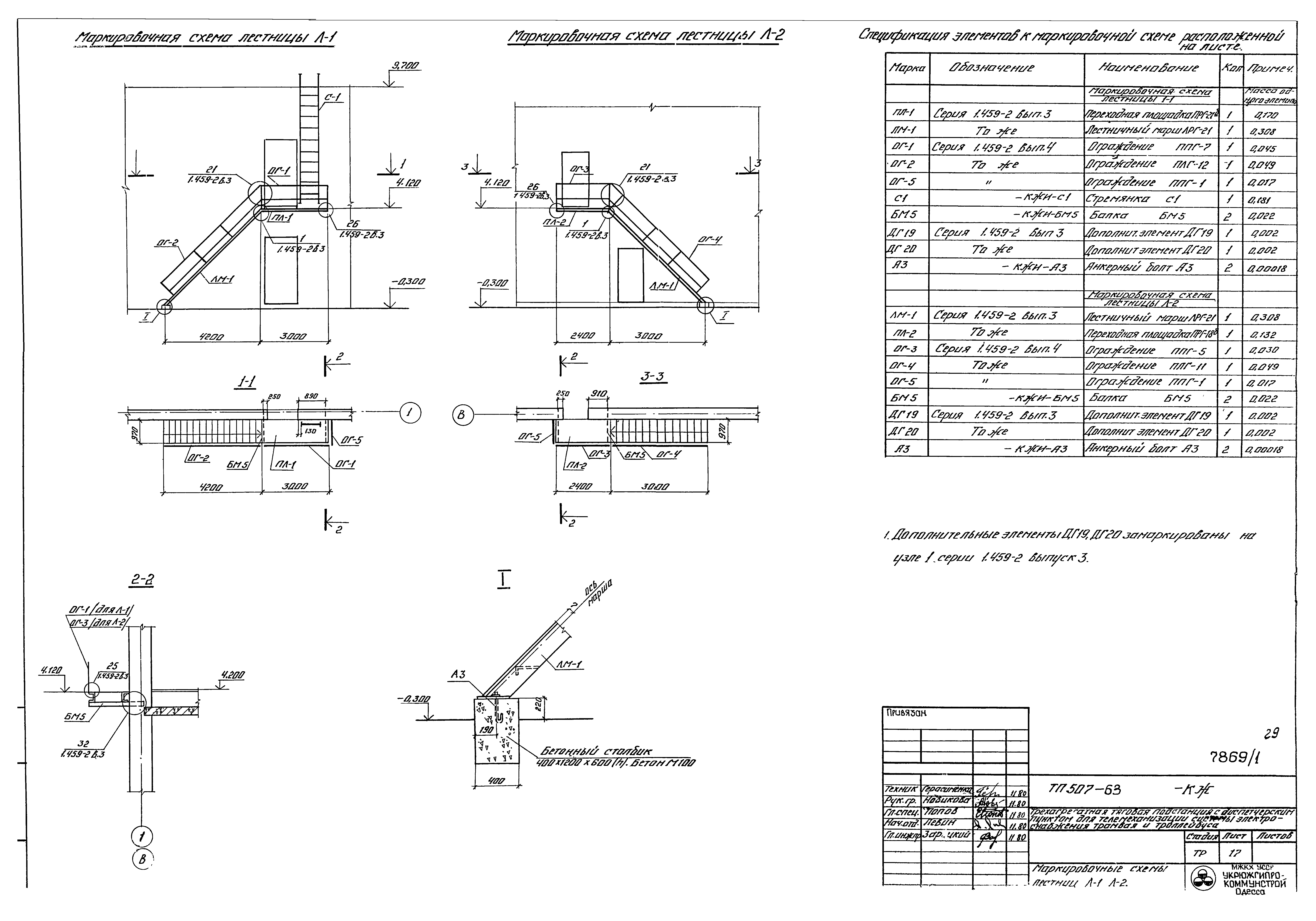
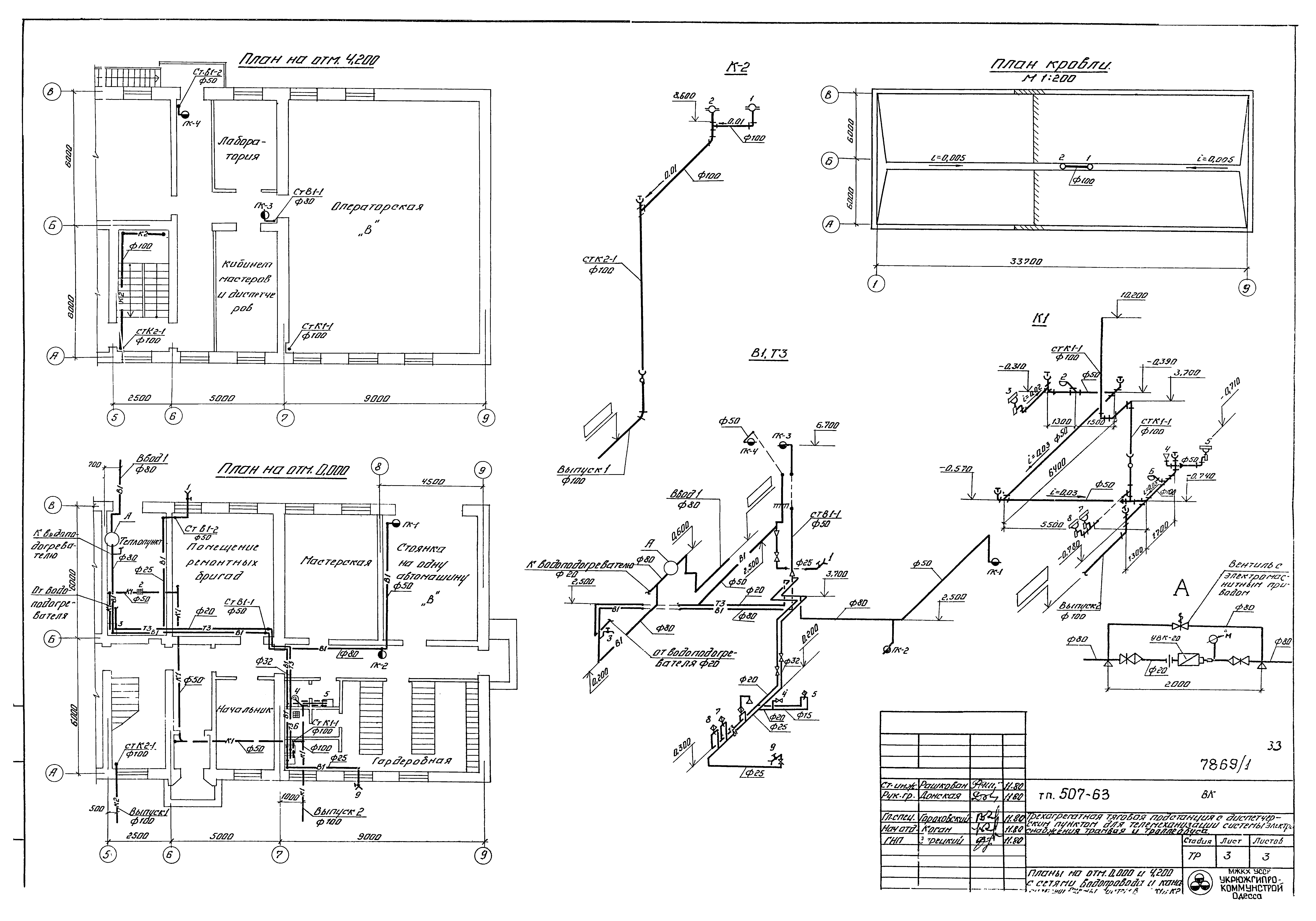
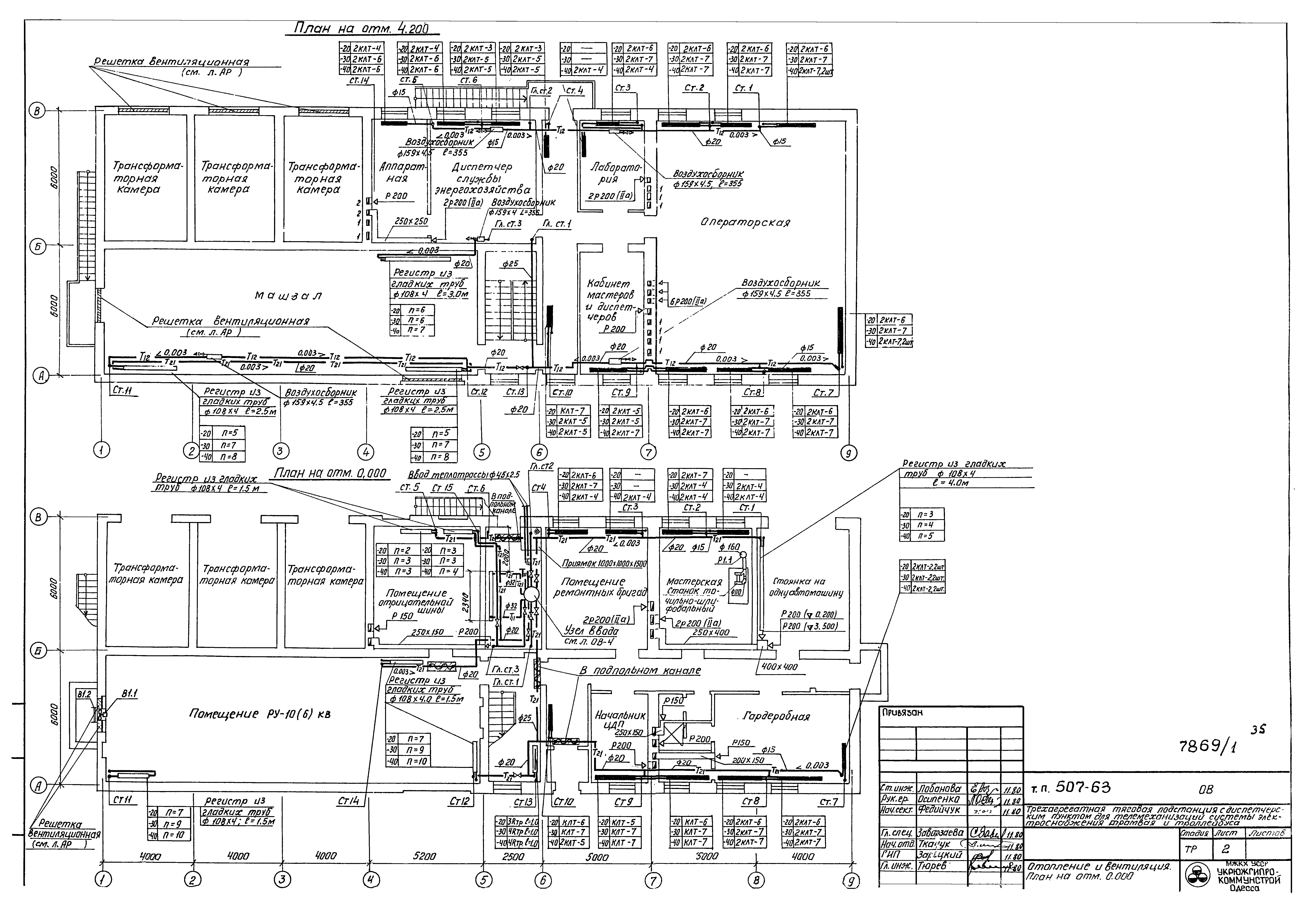
| Оглавление: | ТП 507-63 Содержание ТП 507-63 Пояснительная записка ТП 507-63-АР Архитектурно-строительные решения ТП 507-63-АР-1 Общие данные (начало) ТП 507-63-АР-2 Общие данные (окончание) ТП 507-63-АР-3 План на отм. 0.000. Фрагмент плана 1. Узлы ТП 507-63-АР-4 План на отм. 4.200. Фрагменты плана 2,3 ТП 507-63-АР-5 Разрезы 1-1÷3-3 ТП 507-63-АР-6 Разрезы 4-4÷5-5 ТП 507-63-АР-7 Фасады 1-9;9-1;А-В;В-А ТП 507-63-АР-8 План кровли. Планы полов. Схема заполнения оконных проемов ТП 507-63-КЖ Конструкции железобетонные ТП 507-63-КЖ-1 Общие данные (начало) ТП 507-63-КЖ-2 Общие данные (окончание) ТП 507-63-КЖ-3 Маркировочная схема фундаментов. Сечения 13-13;14-14 ТП 507-63-КЖ-4 Развертки фундаментов по осям А,Б,В,1,2,3,4 ТП 507-63-КЖ-5 Развертки фундаментов по осям 5,6,7,8,9. Сечения 1-1÷12-12 ТП 507-63-КЖ-6 План каналов на отм. 0.000 ТП 507-63-КЖ-7 План перекрытия каналов на отм. 0.000 ТП 507-63-КЖ-8 План каналов на отм. 4.200 в осях 1-5 ТП 507-63-КЖ-9 План каналов на отм. 4.200 в осях 7-9 ТП 507-63-КЖ-10 Сечение 1-1÷7-7 ТП 507-63-КЖ-11 Сечения 8-8÷13-13 ТП 507-63-КЖ-12 Маркировочная схема панелей перекрытия на отм. 4.200 ТП 507-63-КЖ-13 Маркировочная схема панелей покрытия ТП 507-63-КЖ-14 Монолитные участки УМ-1,УМ-2,УМ-3 ТП 507-63-КЖ-15 Монолитные участки УМ-4,УМ-5,УМ-6 ТП 507-63-КЖ-16 Маркировочная схема лестницы в осях 5-6 ТП 507-63-КЖ-17 Маркировочная схемы лестниц Л-1,Л-2 ТП 507-63-КЖ-18 Маркировочная схема стальных площадок, балок, стремянок и лестниц в осях 1-4,Б-В ТП 507-63-ВК Внутренний водопровод и канализация ТП 507-63-ВК-1 Общие данные (начало) ТП 507-63-ВК-2 Общие данные (окончание) ТП 507-63-ВК-3 Планы на отм. 0.000 и 4.200 с сетями водопровода и канализации. Схемы систем В1,Т3,К1 и К2 ТП 507-63-ОВ Отопление и вентиляция ТП 507-63-ОВ-1 Отопление и вентиляция. Общие данные ТП 507-63-ОВ-2 Отопление и вентиляция. Планы на отм. 0.000 и 4.200 ТП 507-63-ОВ-3 Отопление. Схемы ТП 507-63-ОВ-4 Отопление. Узел управления. Схема трубопроводов ТП 507-63-ОВ-5 Отопление и вентиляция. Сводная спецификация |
| Разработан: | Укрюжгипрокоммунстрой Минжилкомхоза УССР |
| Утверждён: | 05.12.1980 МЖКХ УССР (453) |







































