Скачать Типовой проект 507-63 Альбом II. Электротехническая частьДата актуализации: 01.01.2021
|
| Обозначение: | Типовой проект 507-63 |
| Обозначение англ: | 507-63 |
| Статус: | действует |
| Название рус.: | Альбом II. Электротехническая часть |
| Дата добавления в базу: | 01.09.2013 |
| Дата актуализации: | 01.01.2021 |
| Дата введения: | 08.12.1980 |
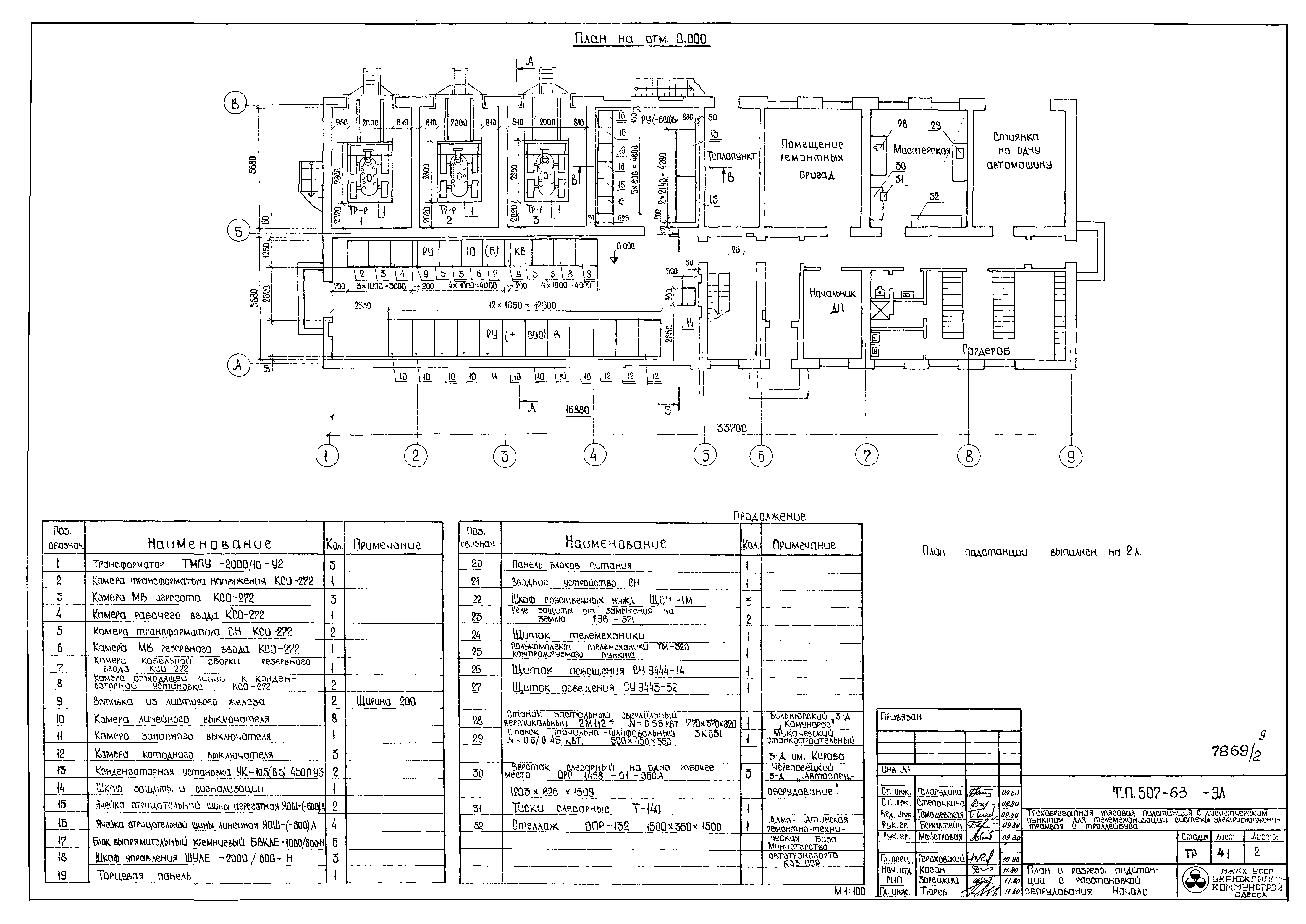
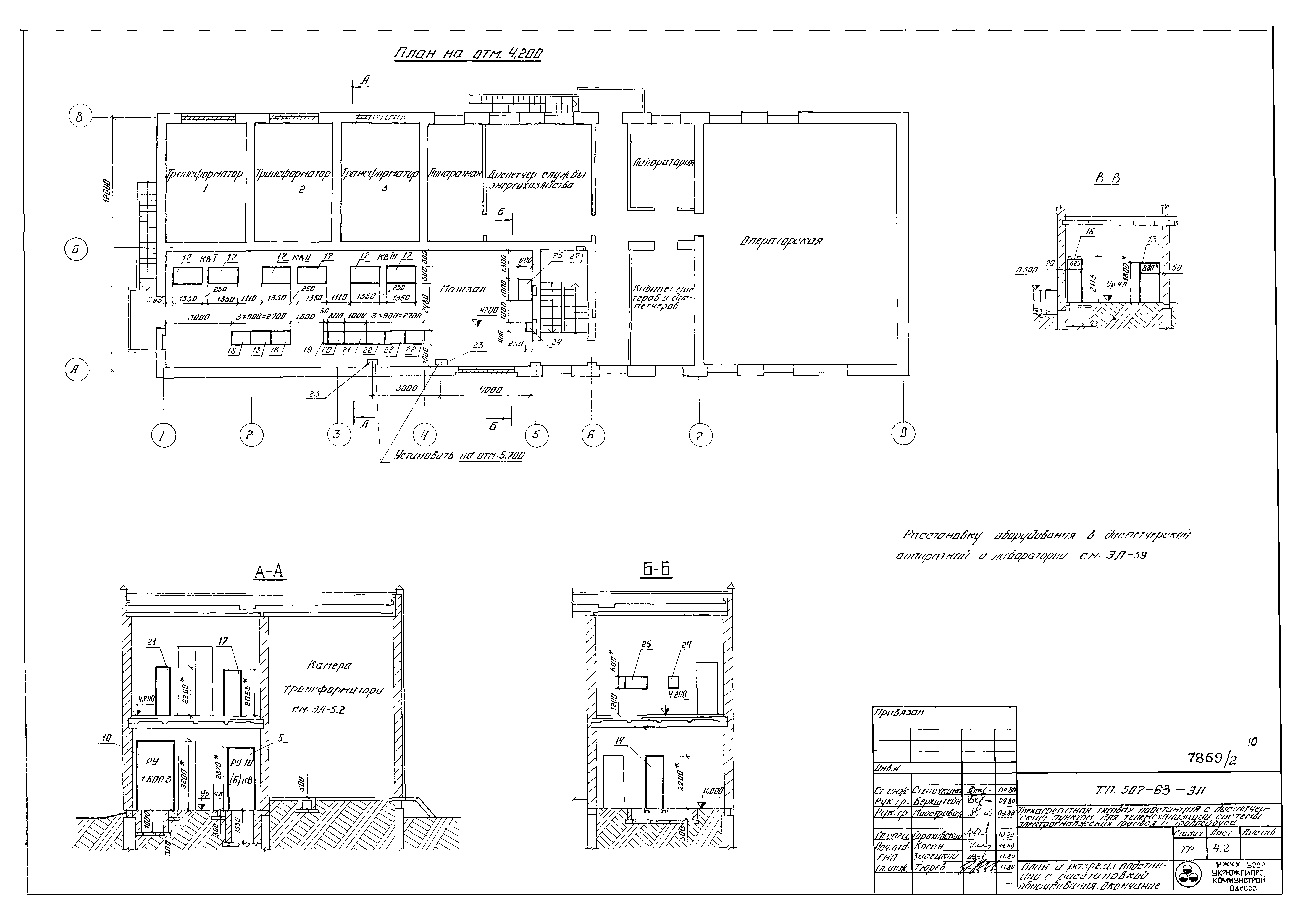
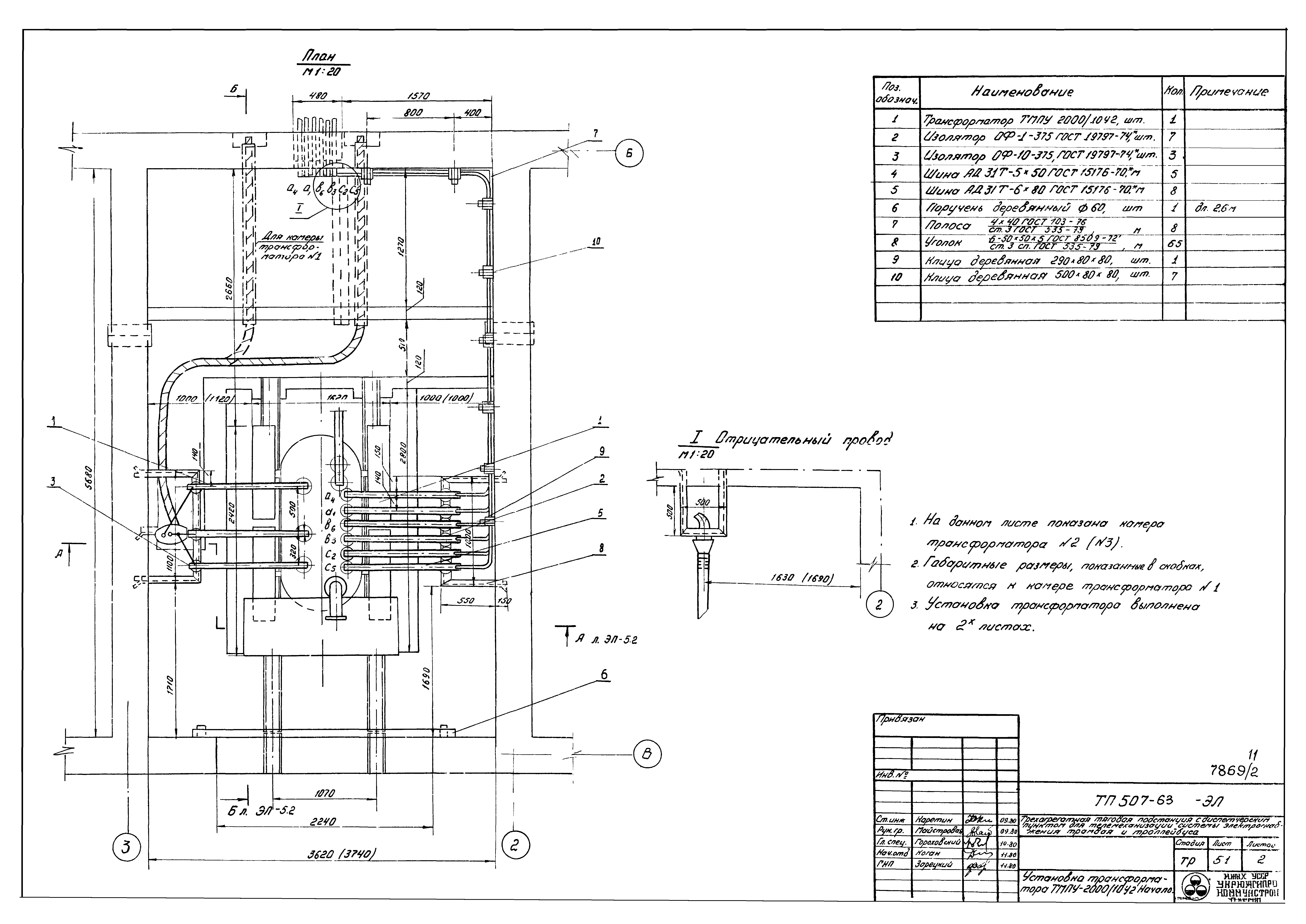
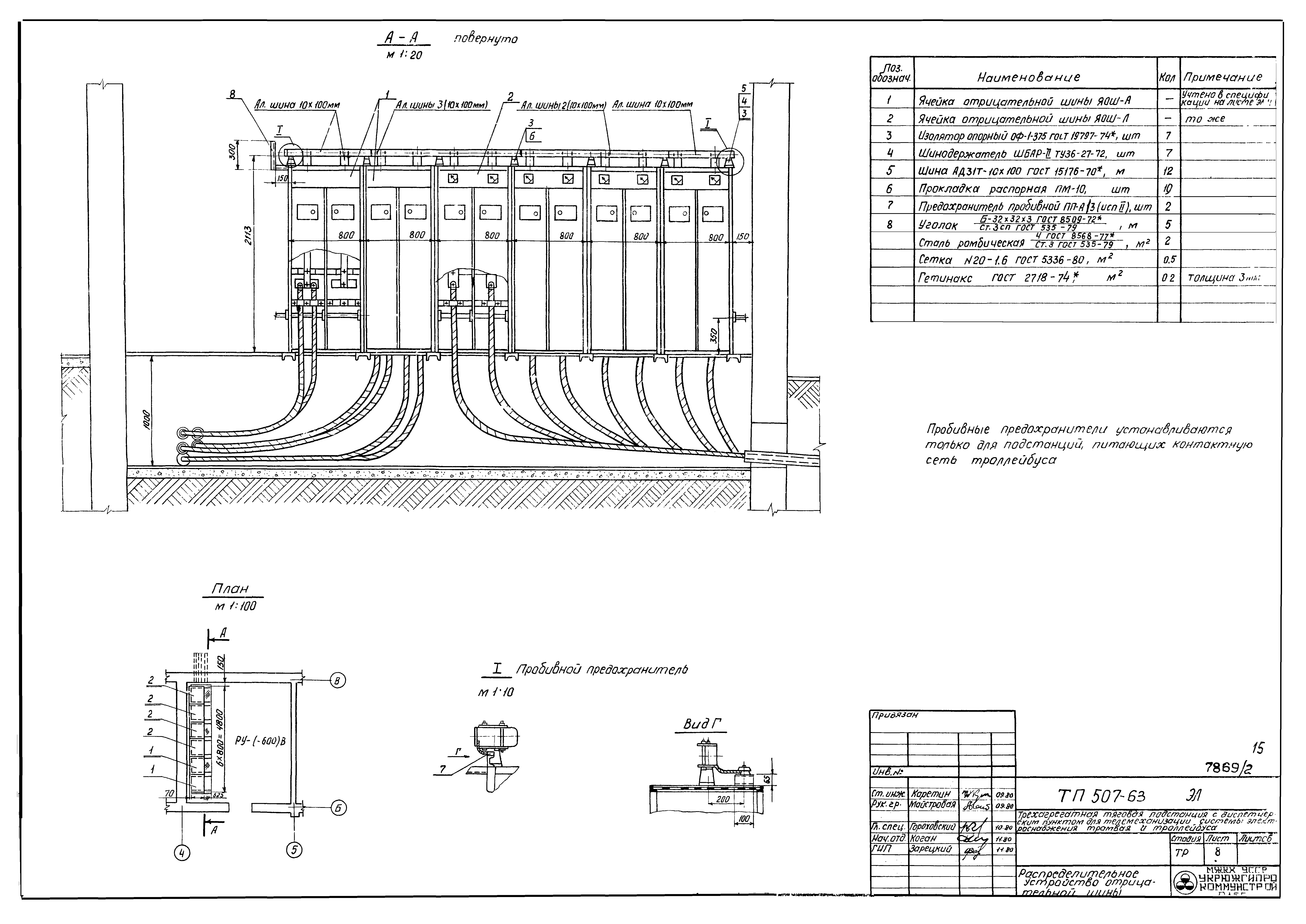
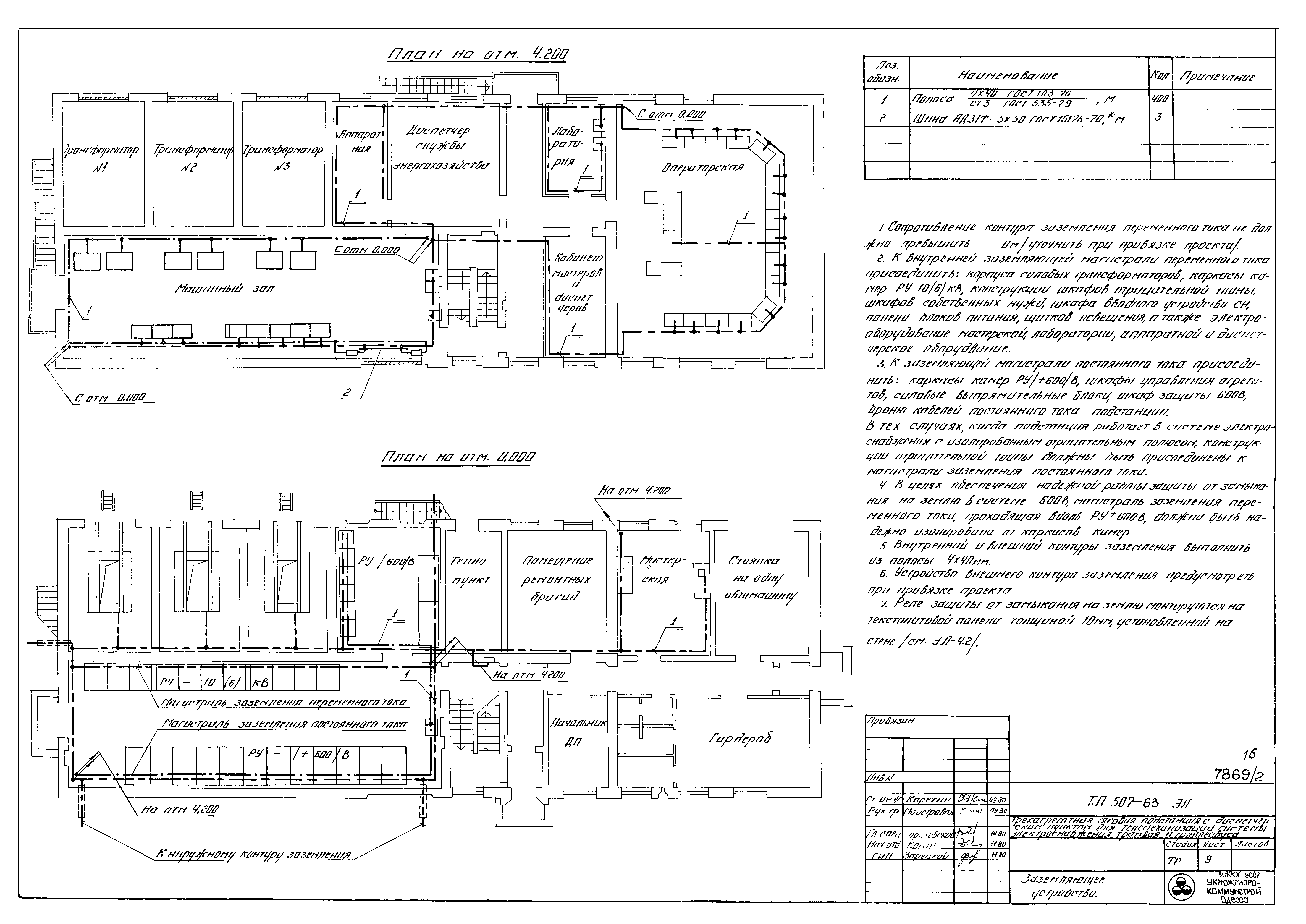
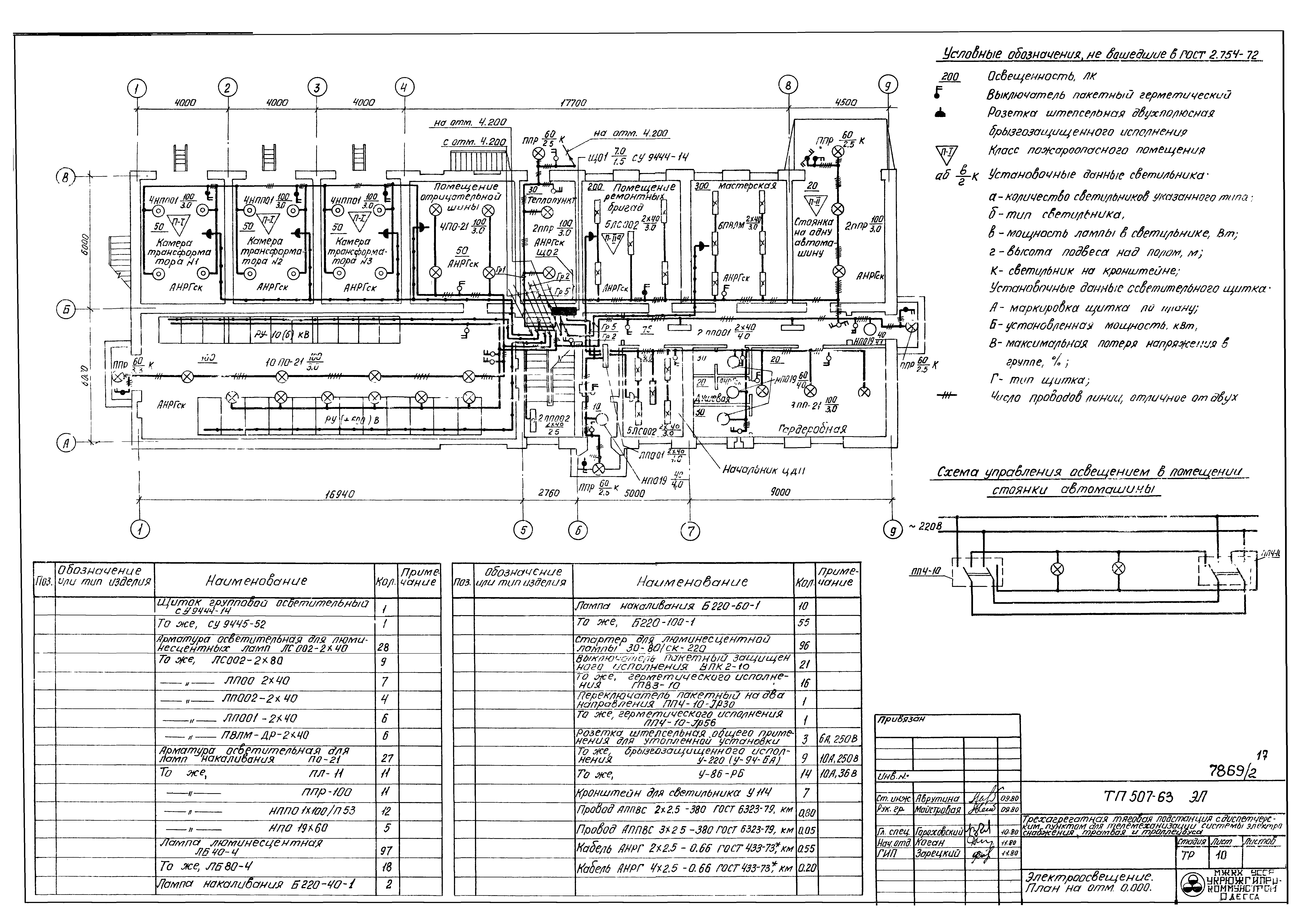
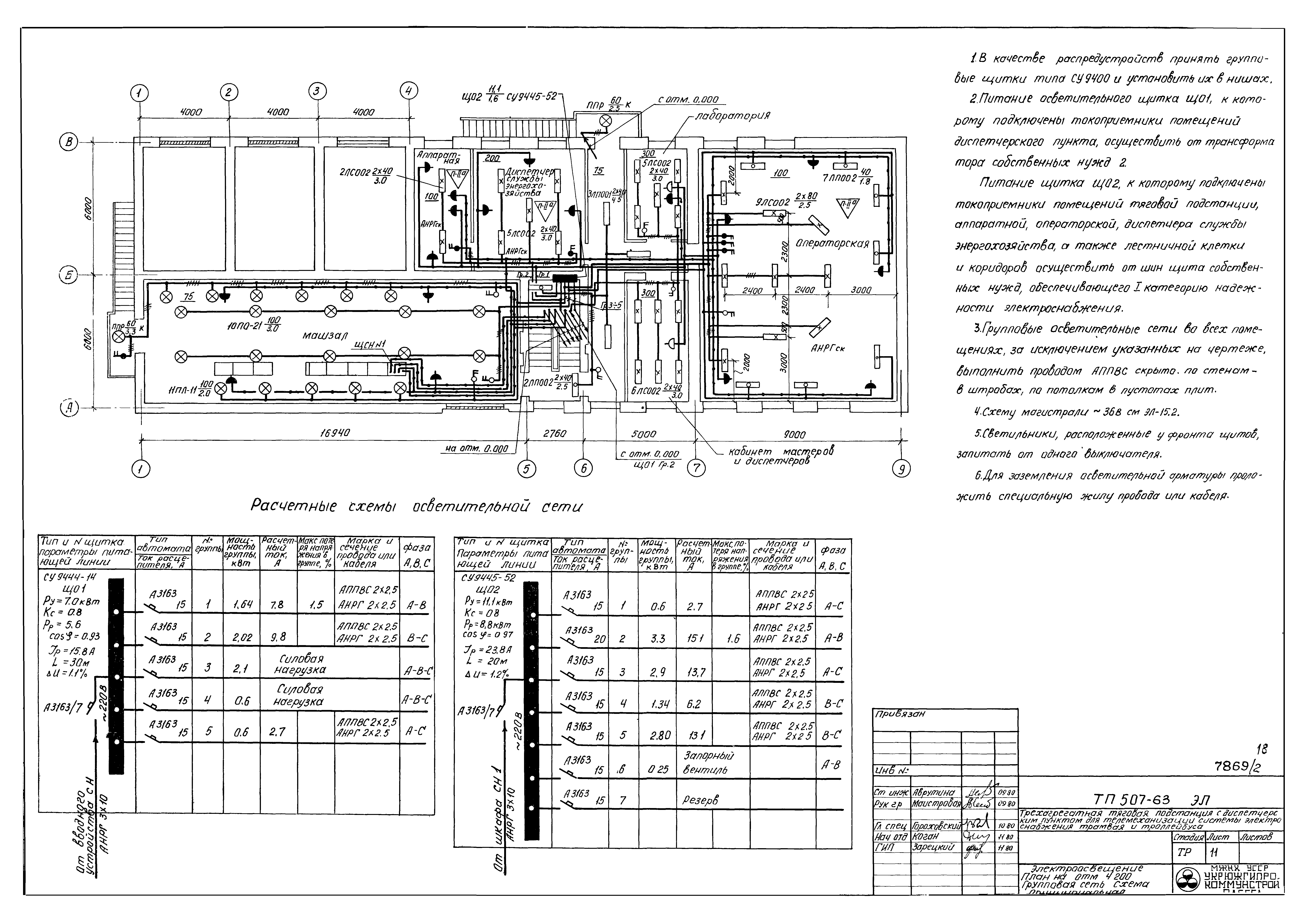
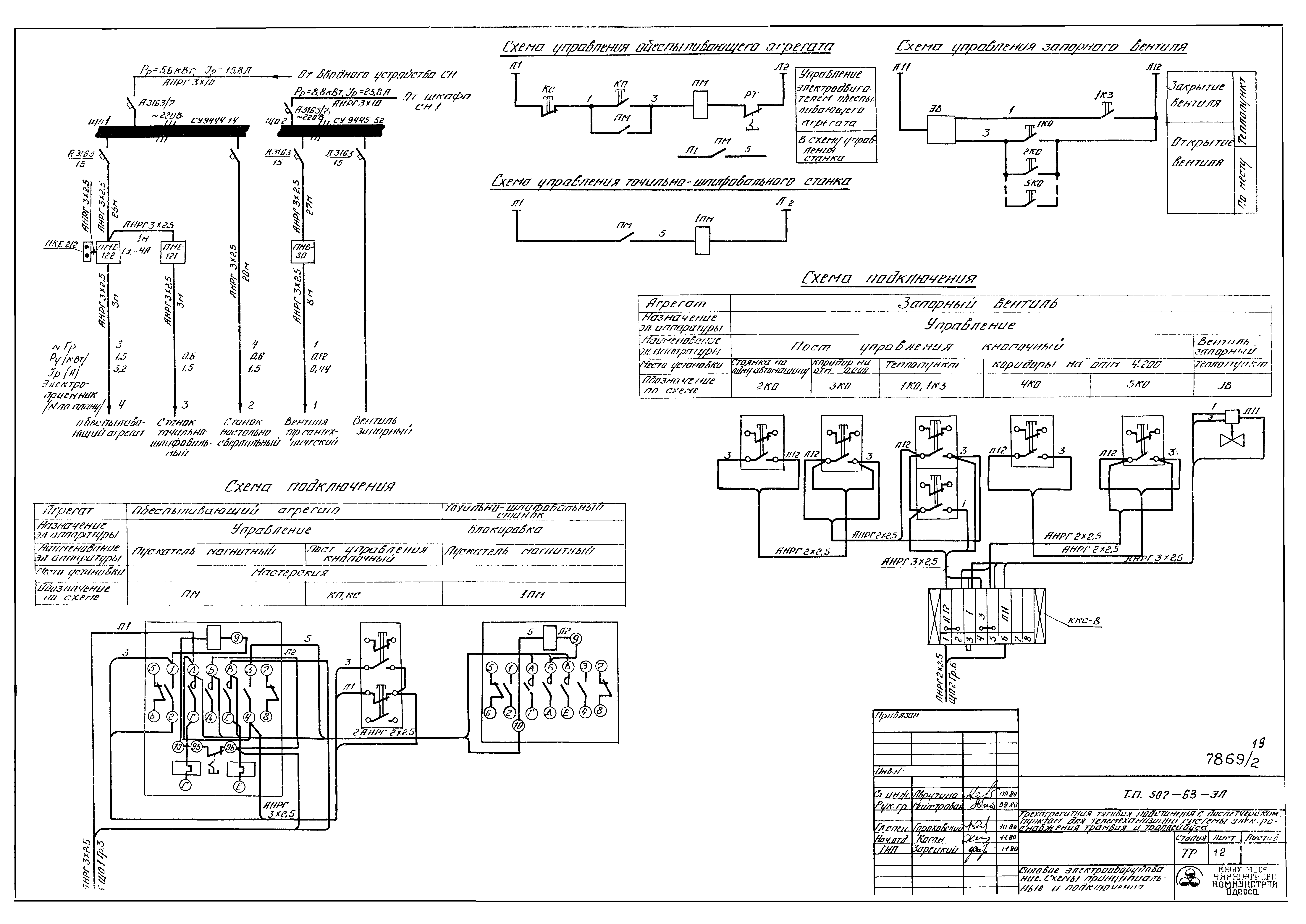
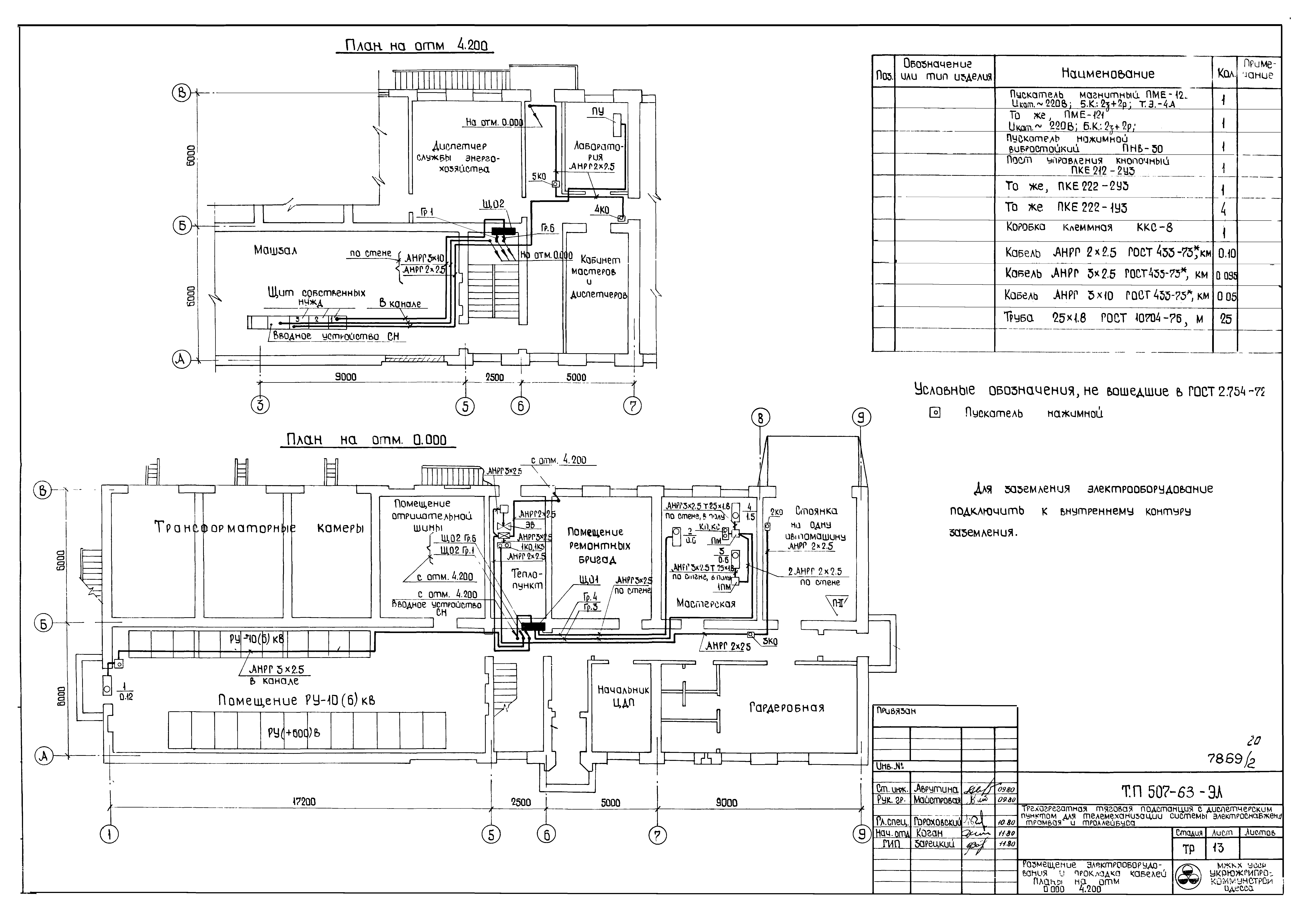
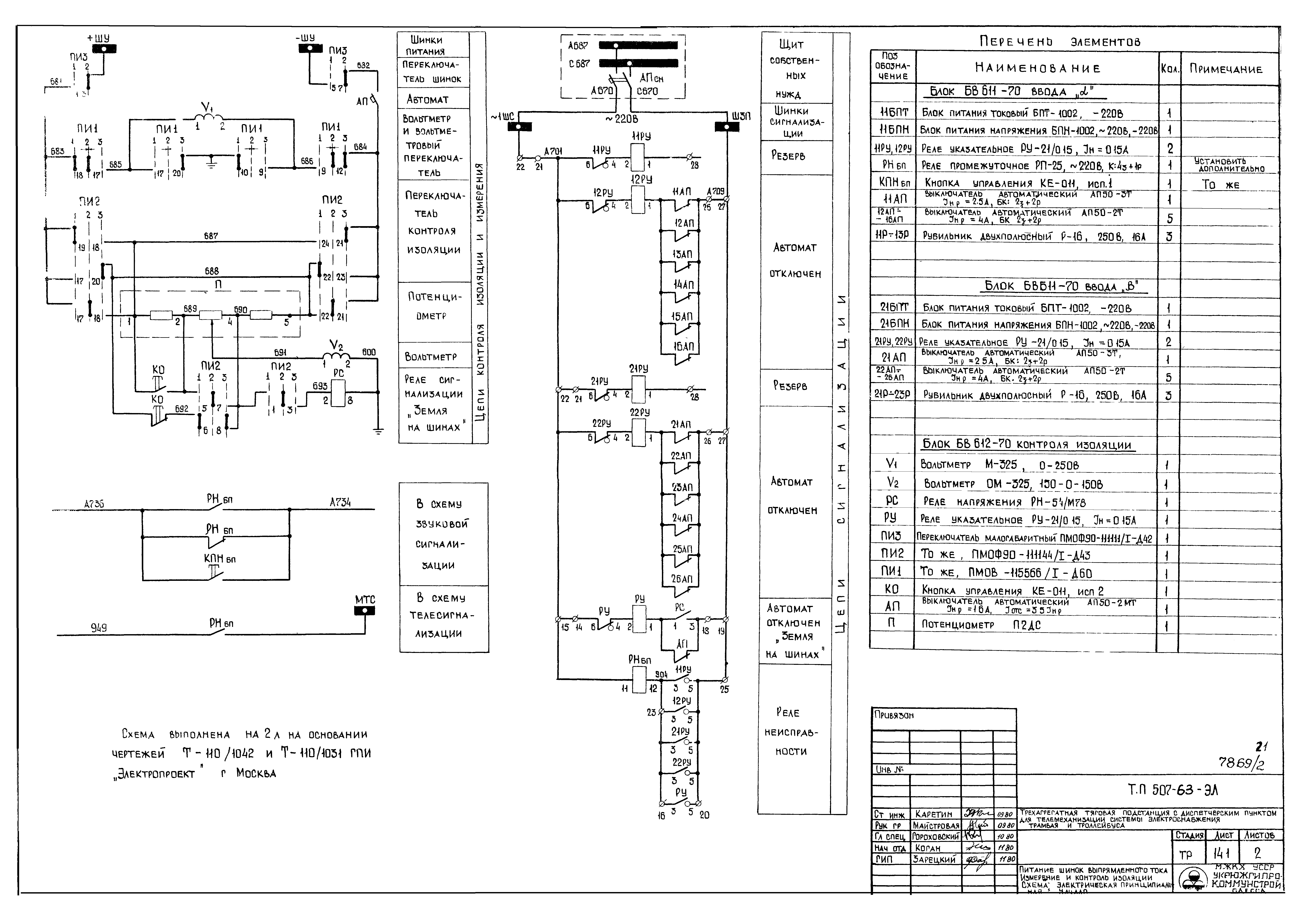
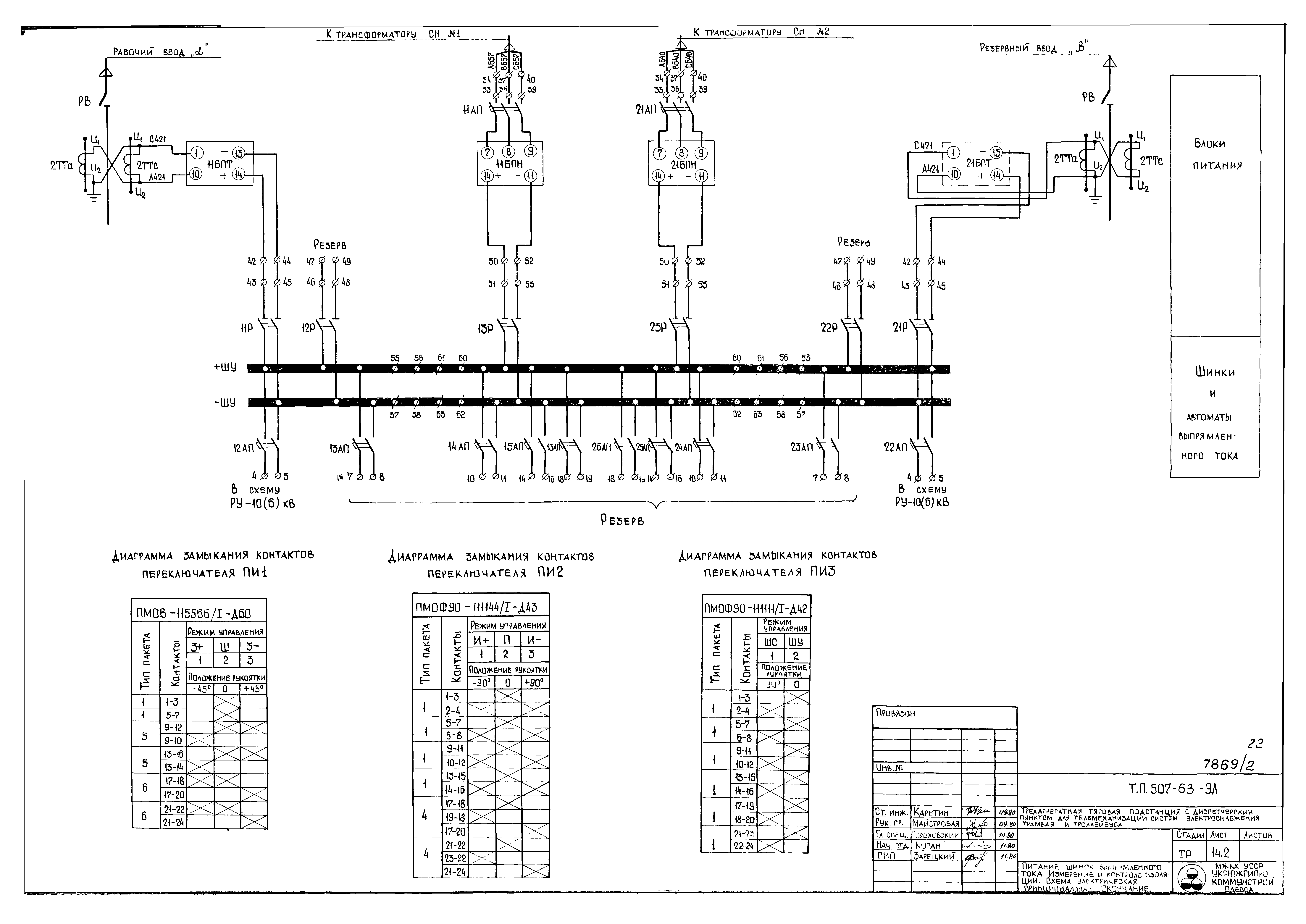
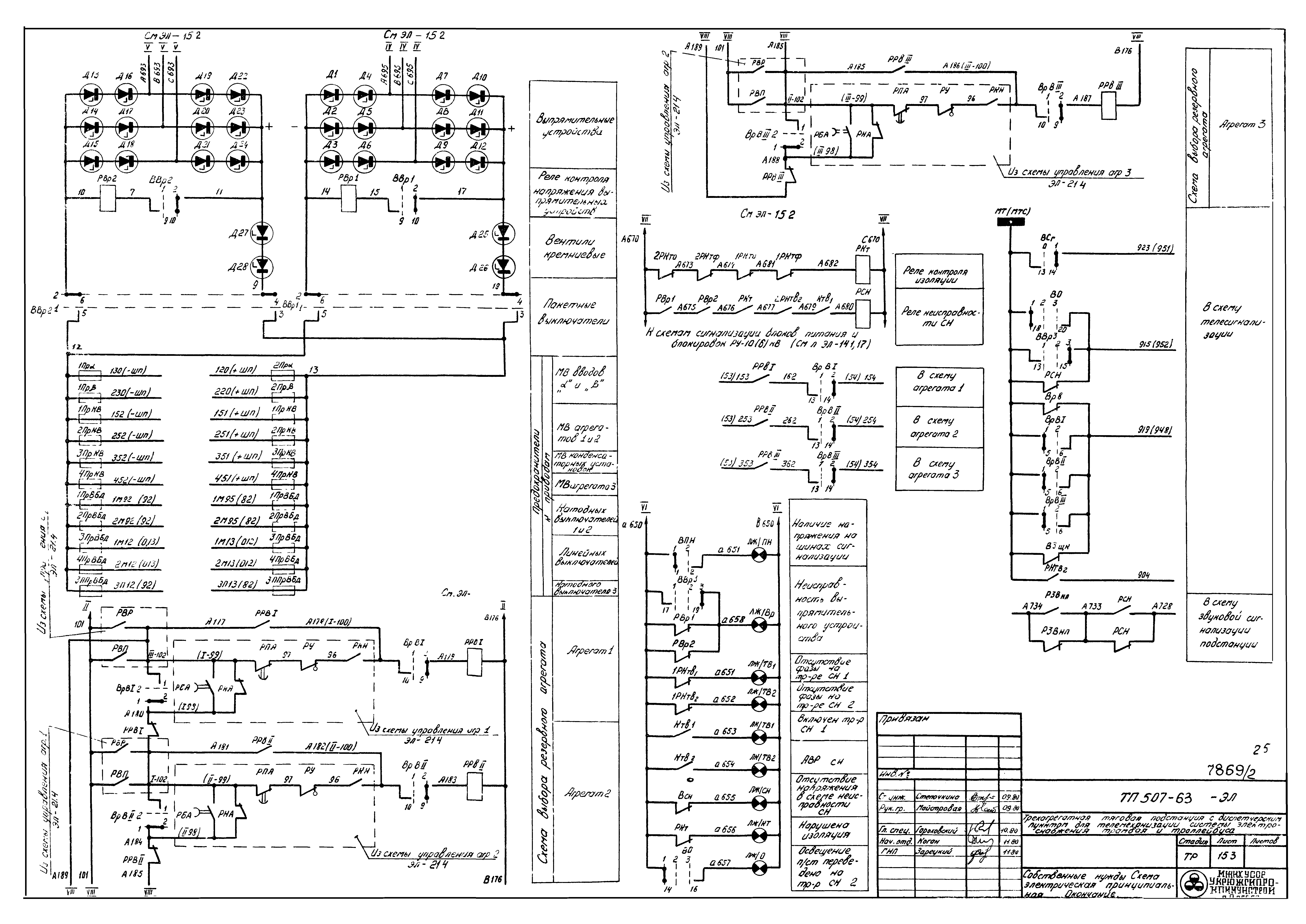
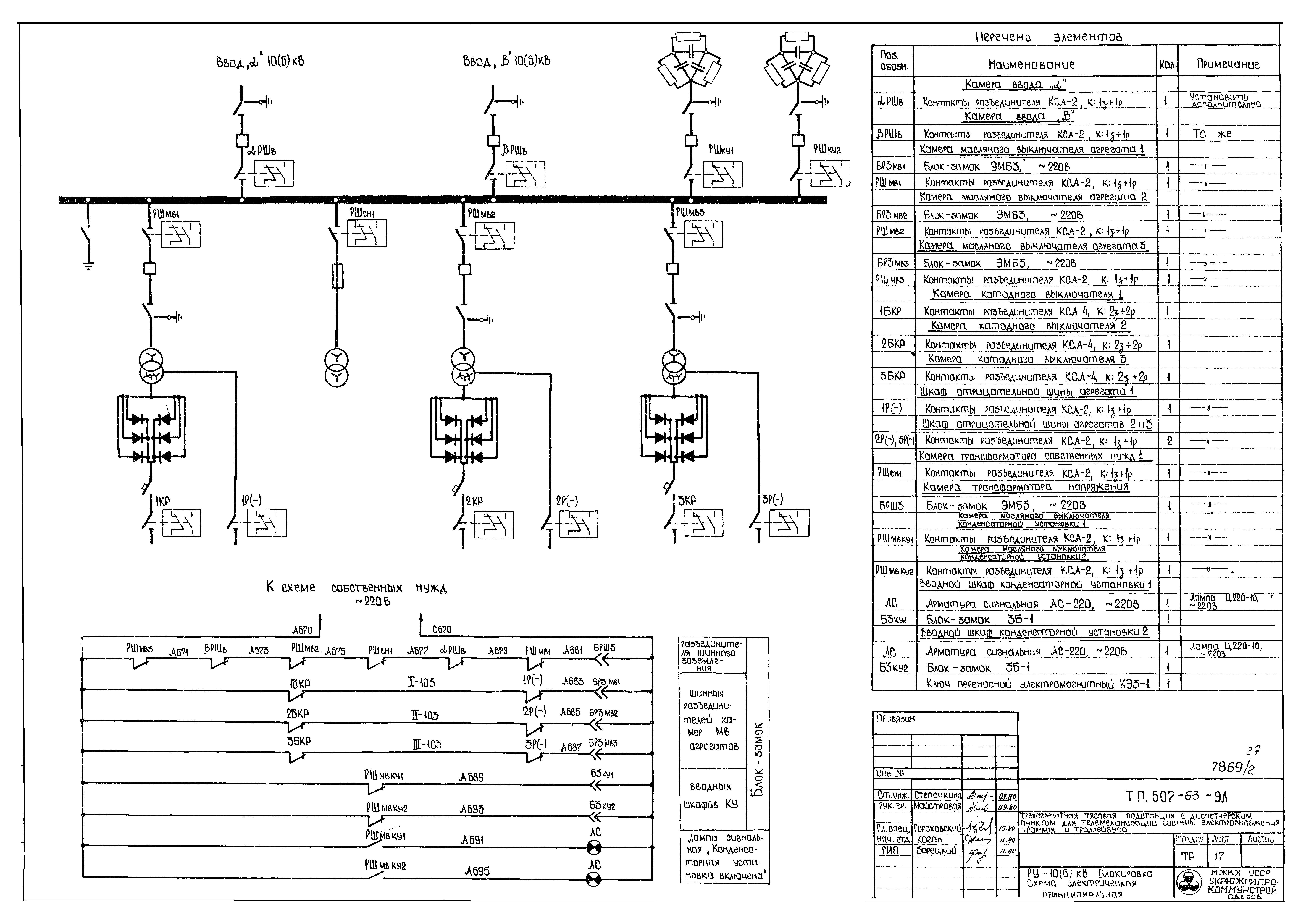
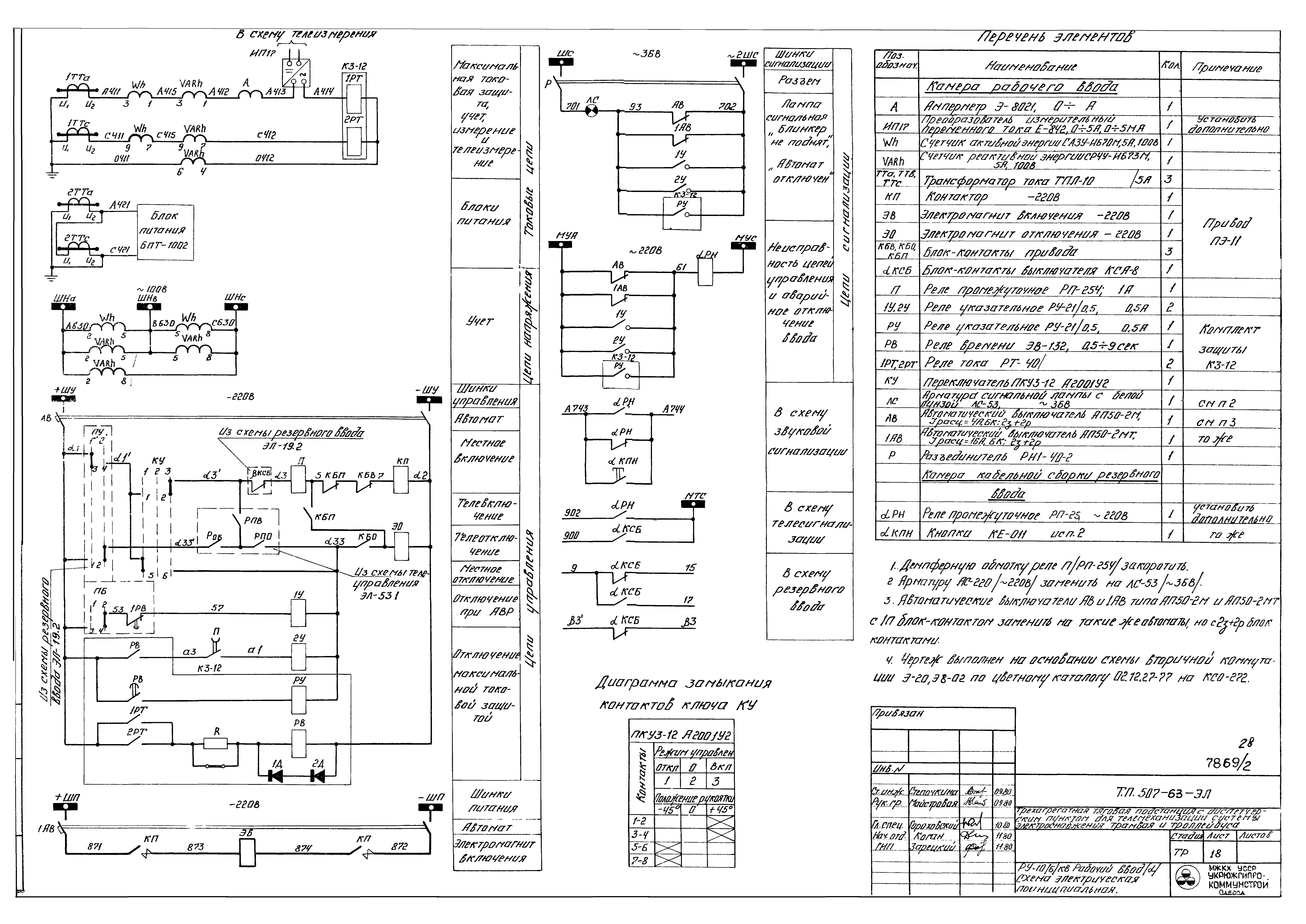
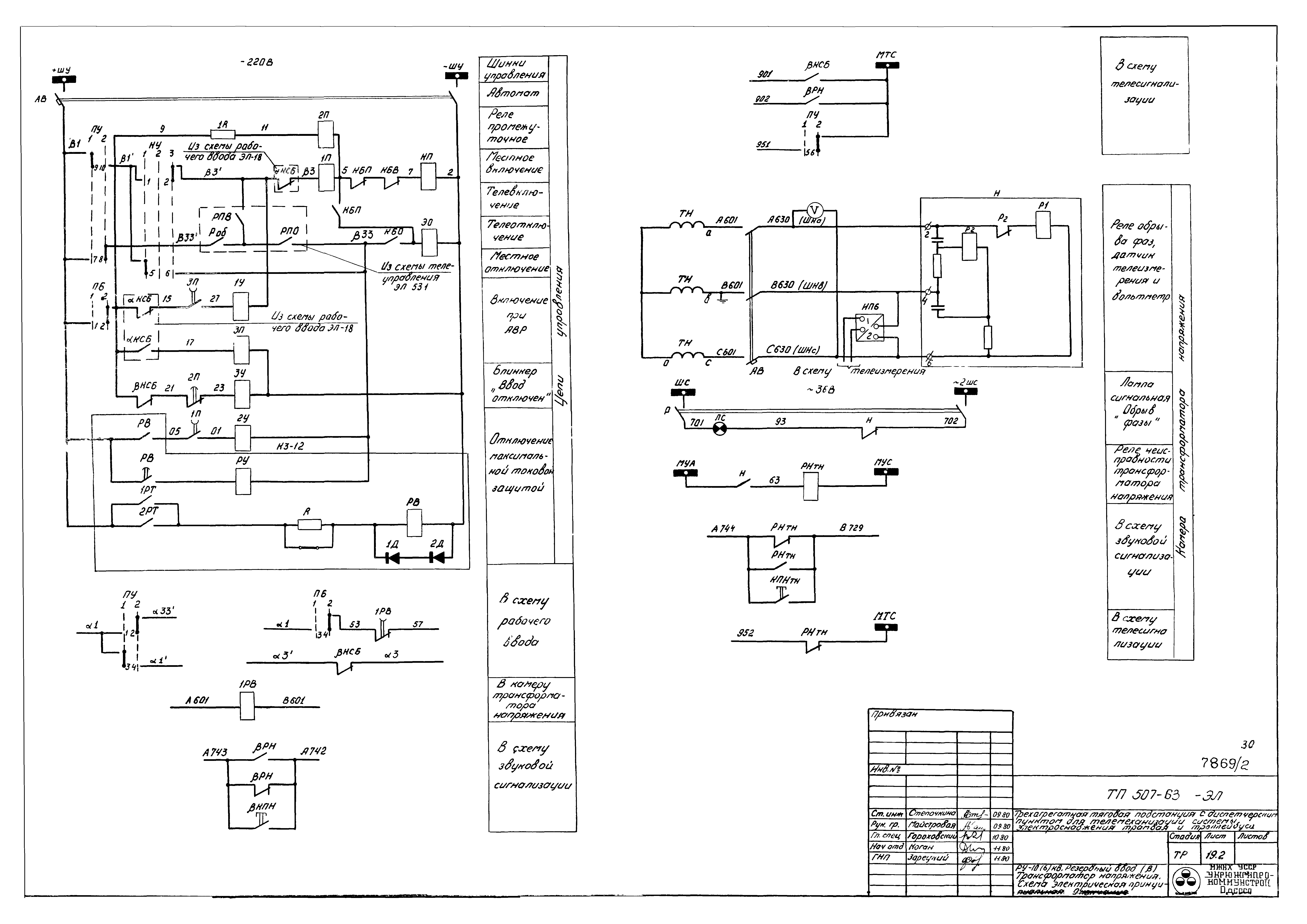
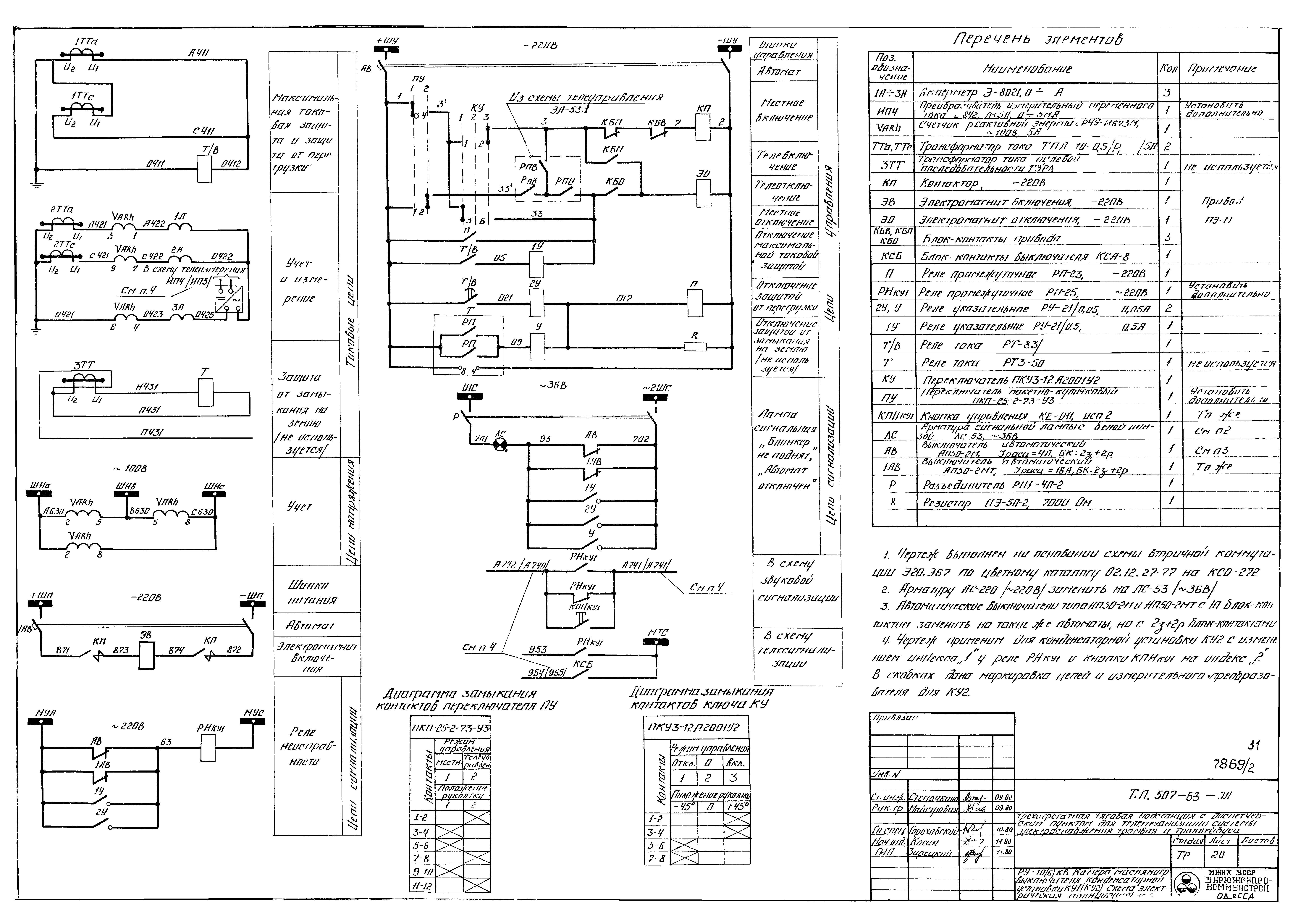
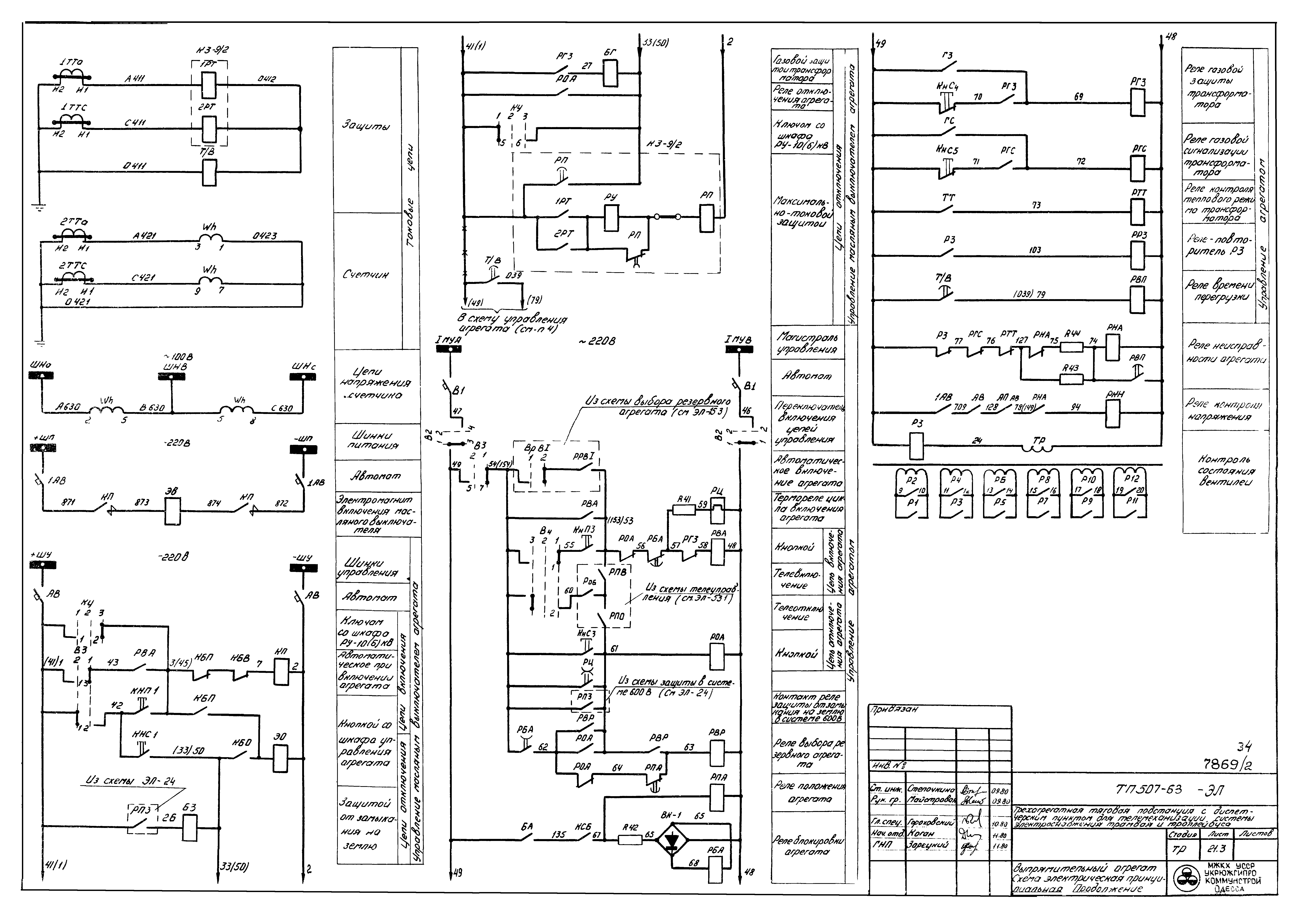
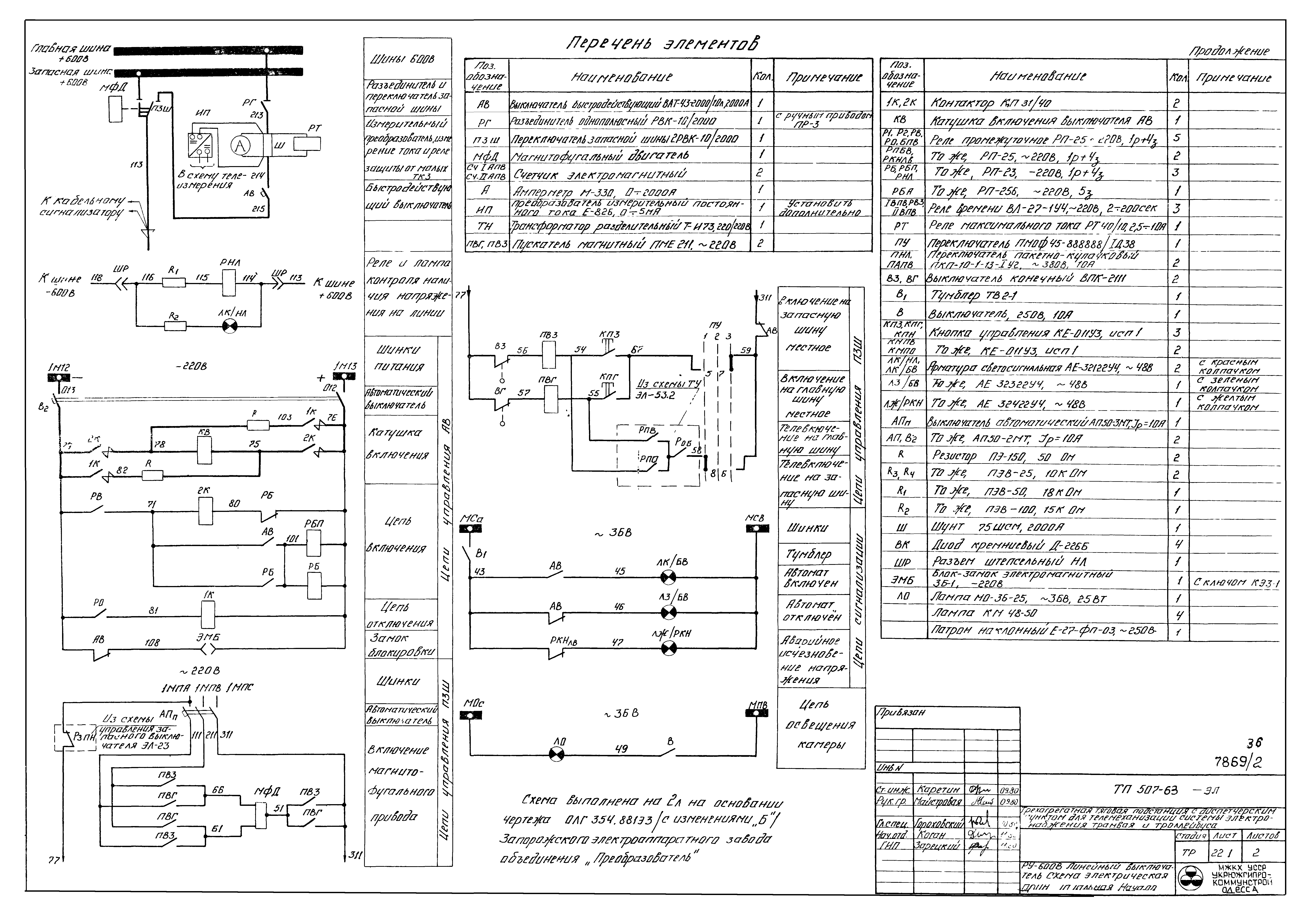
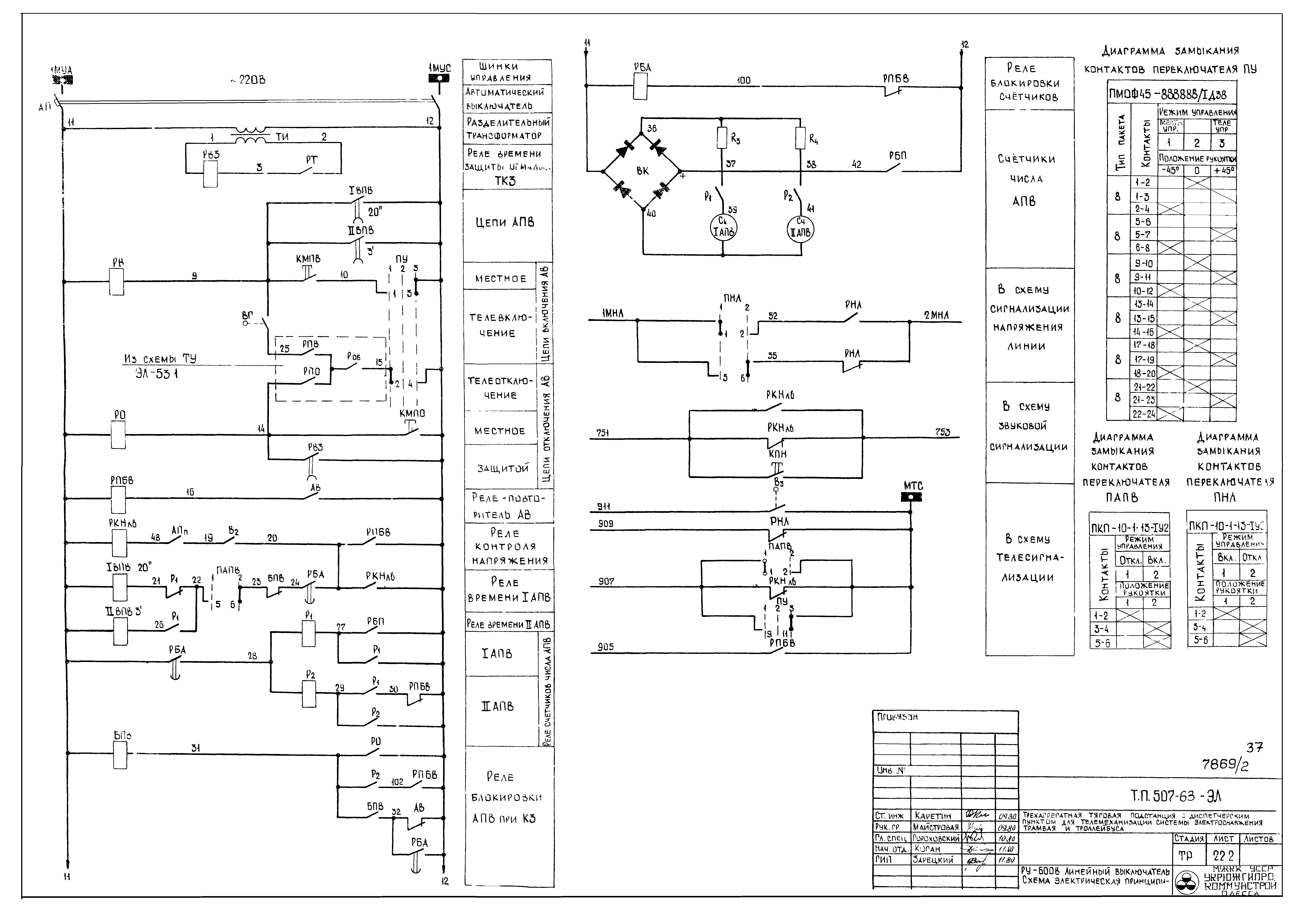
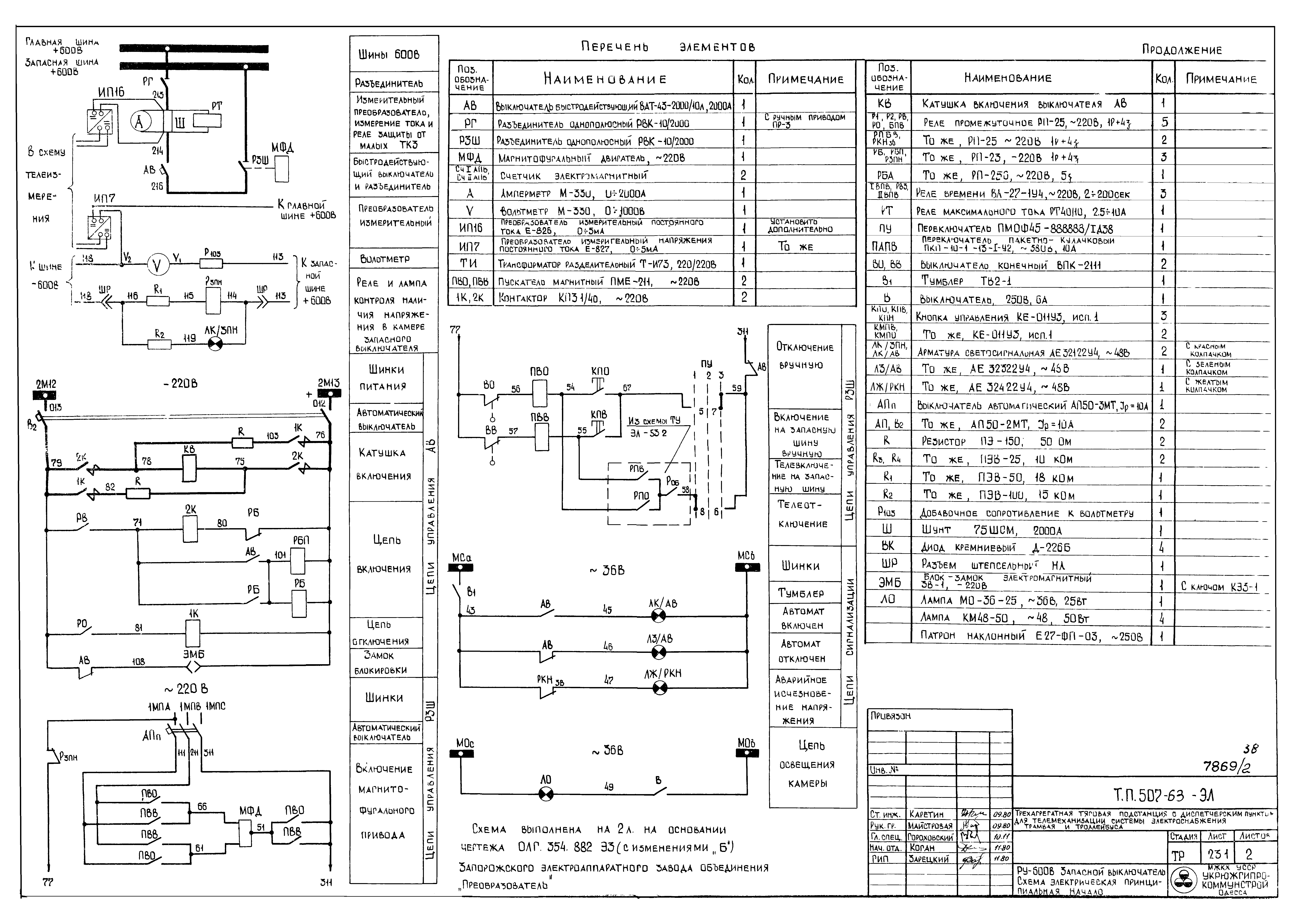
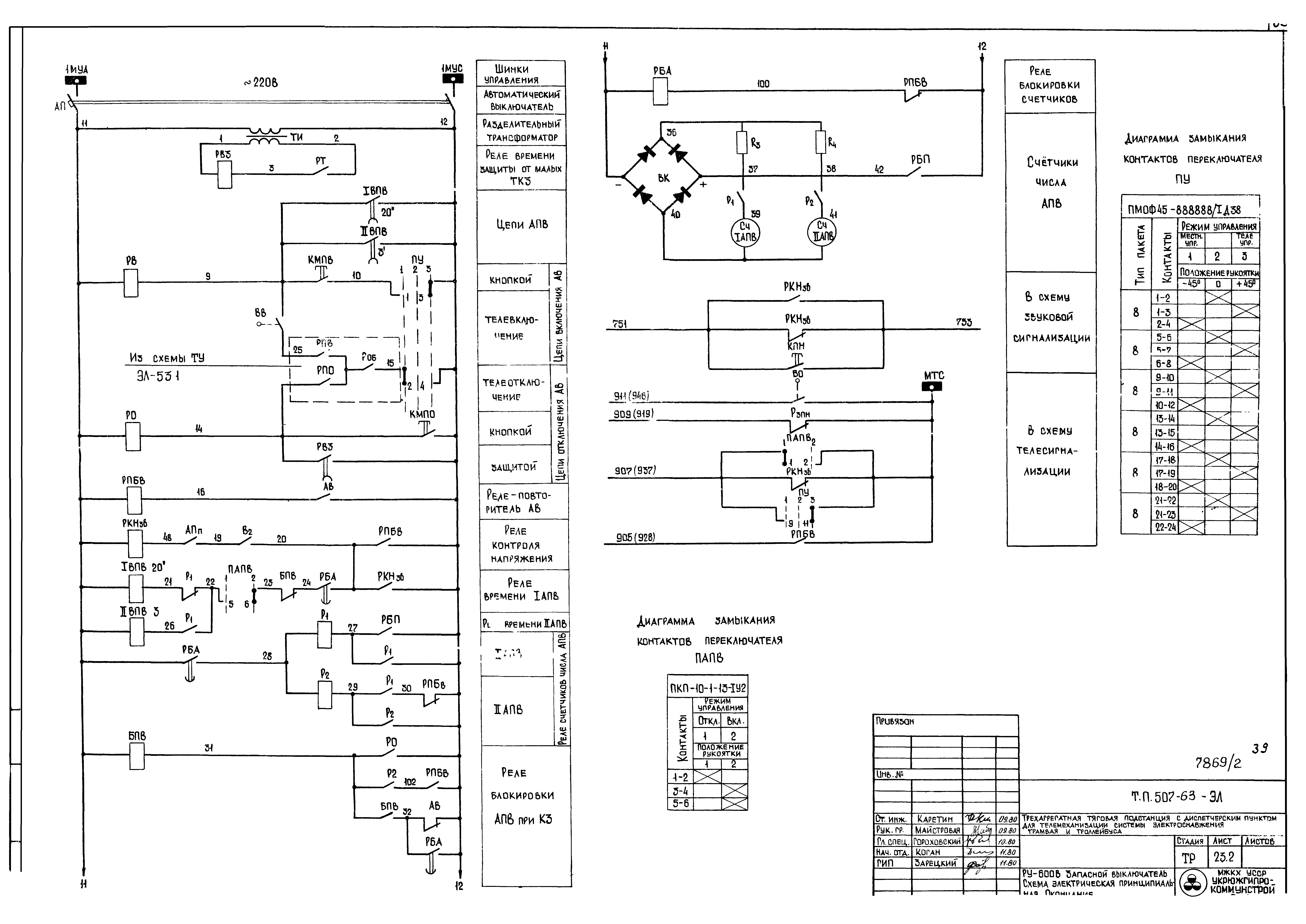
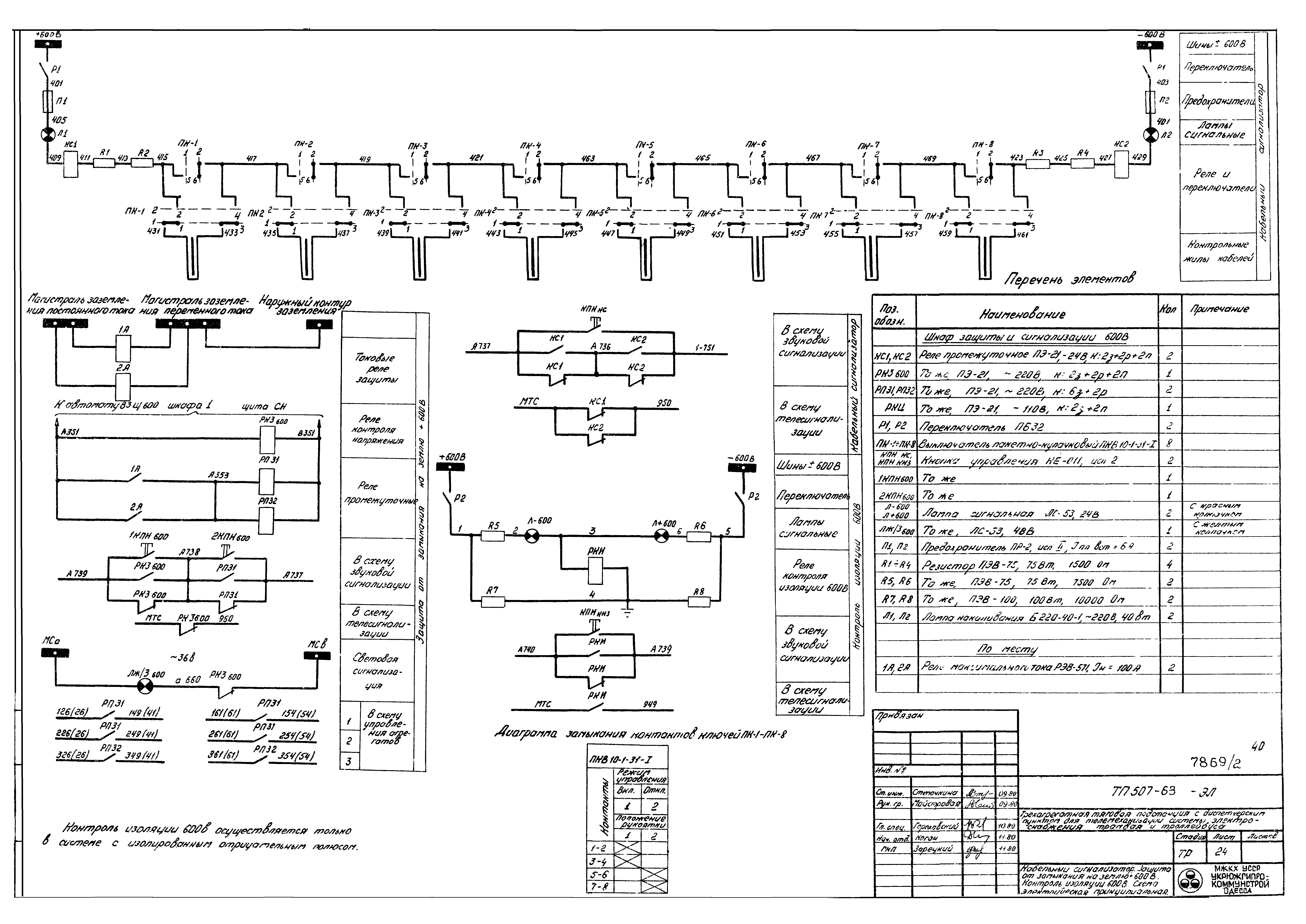
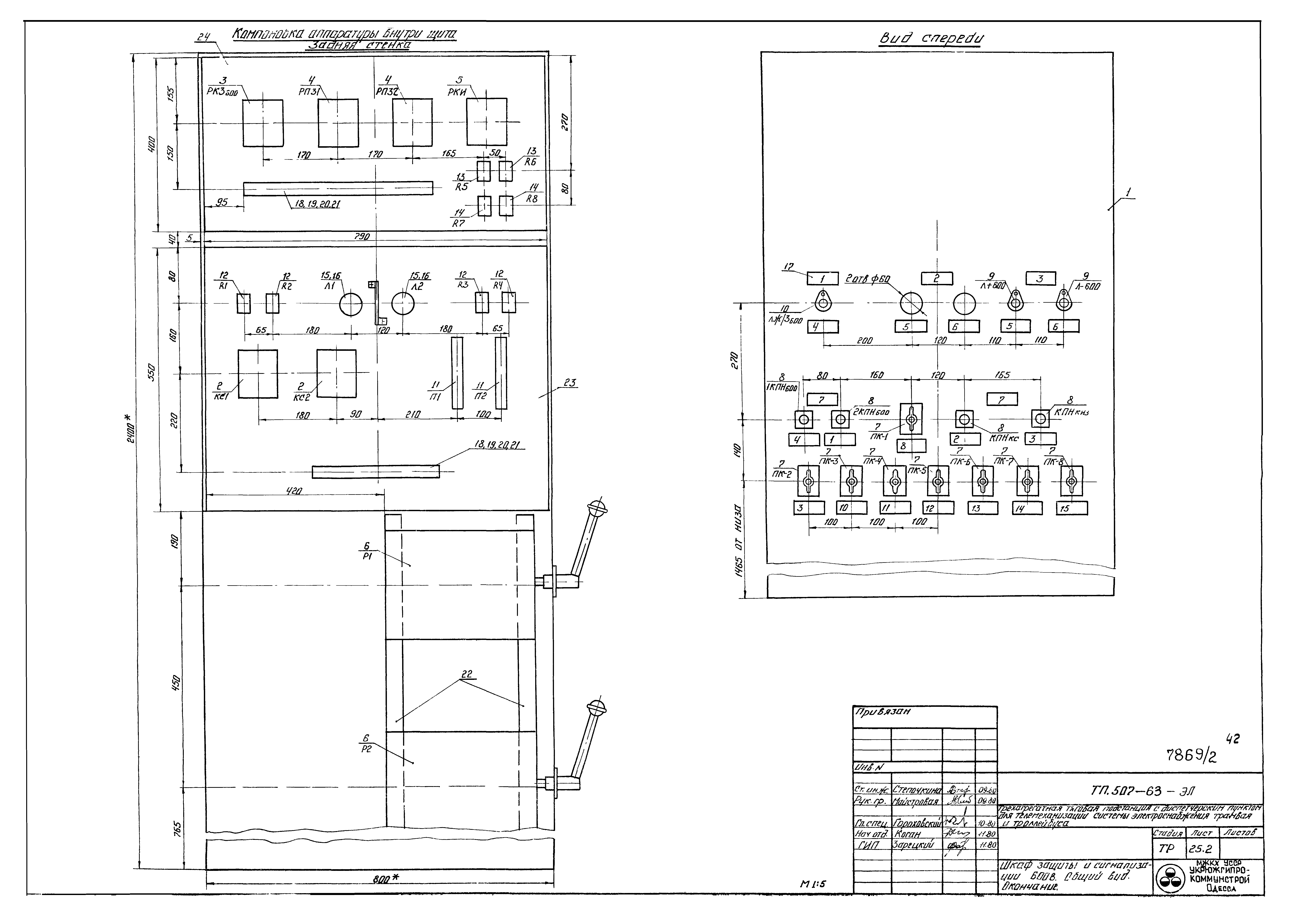
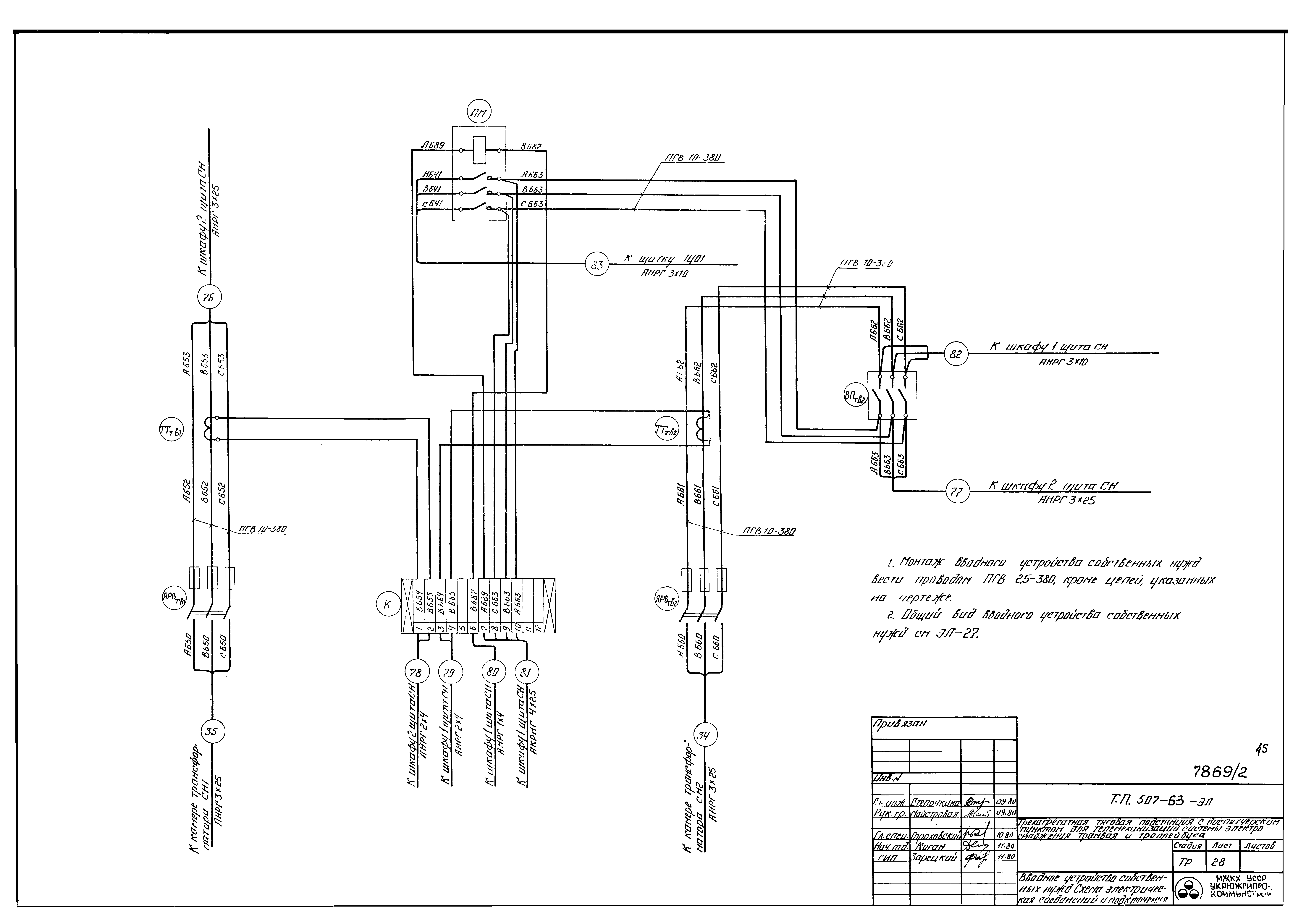
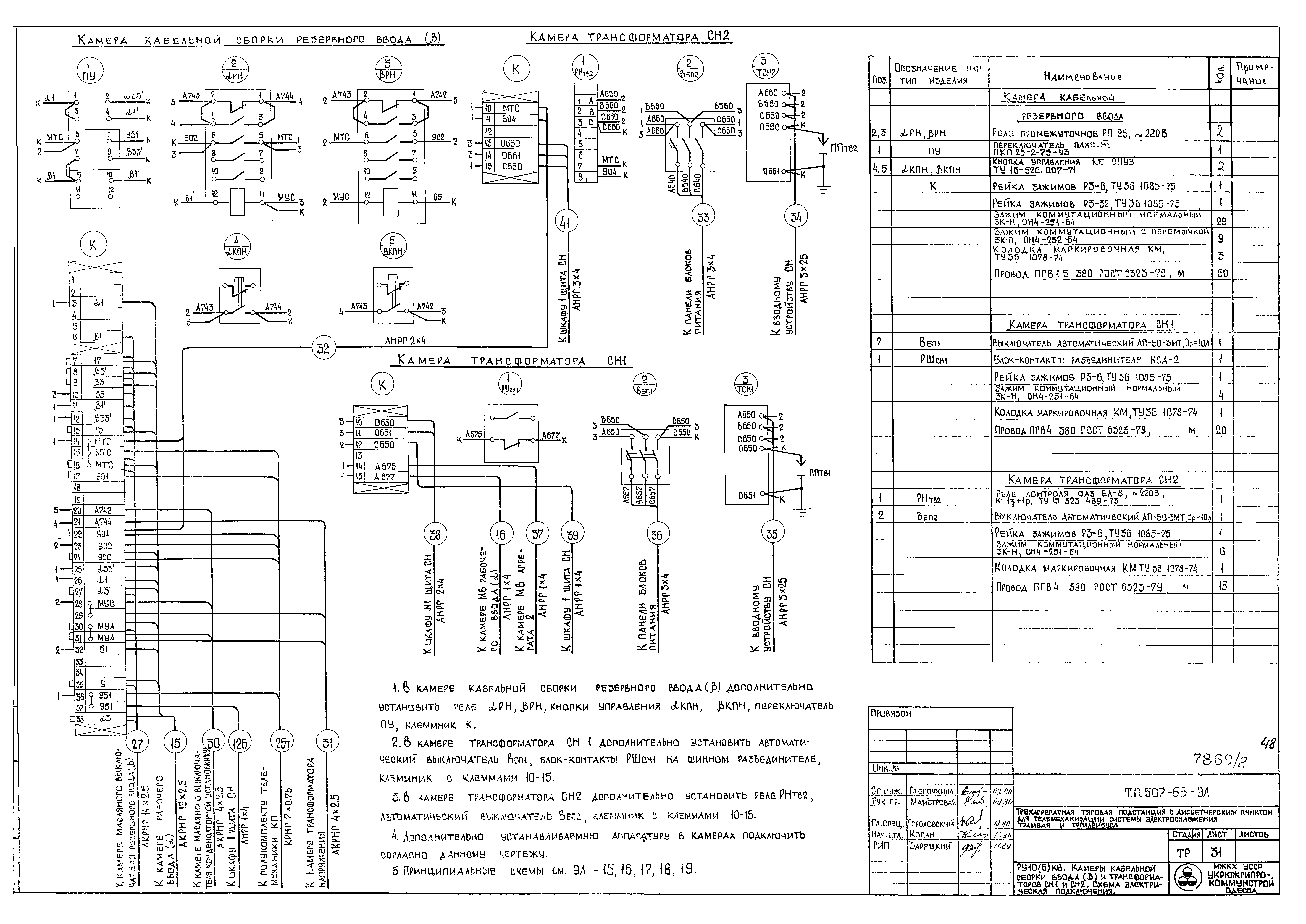
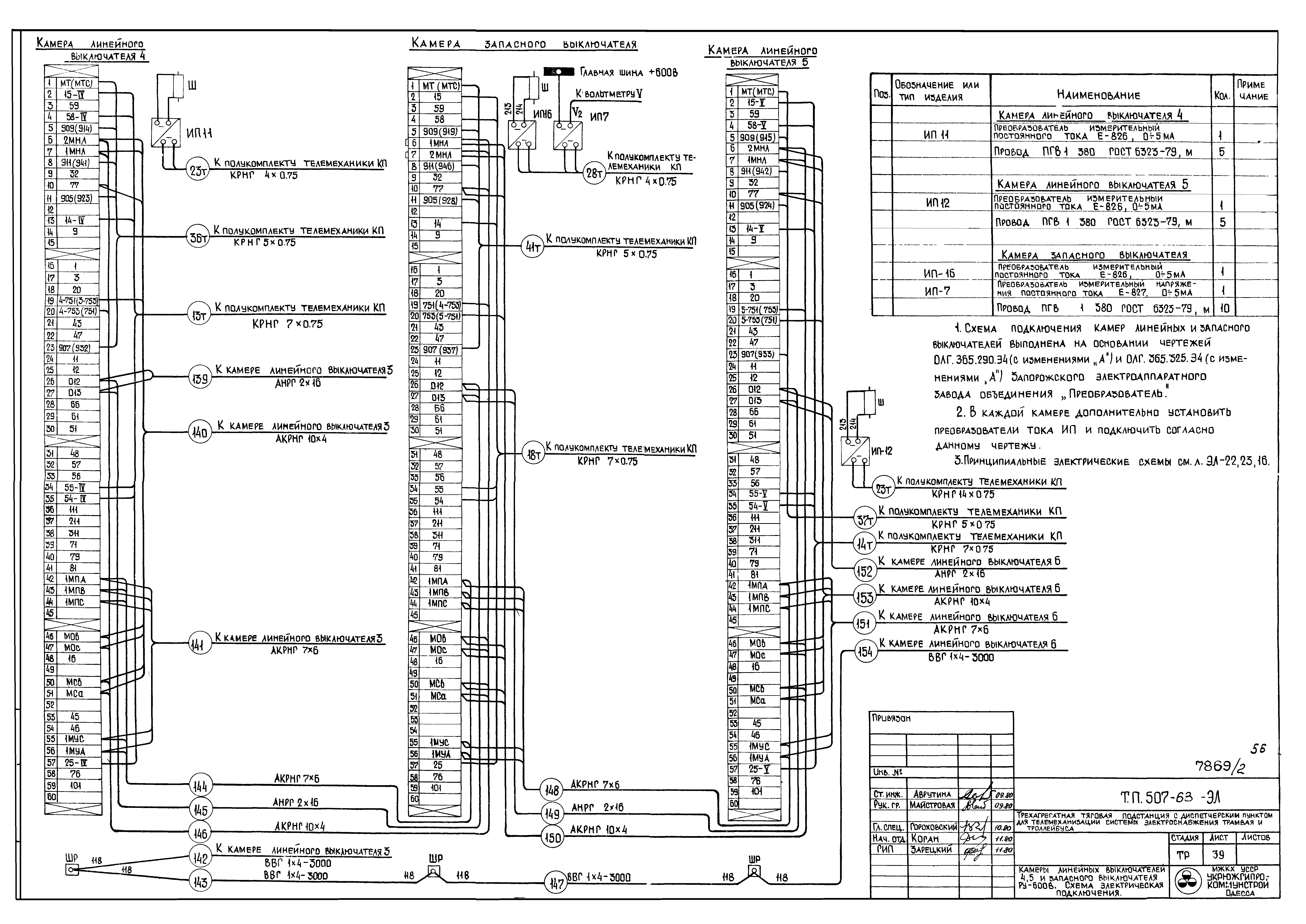
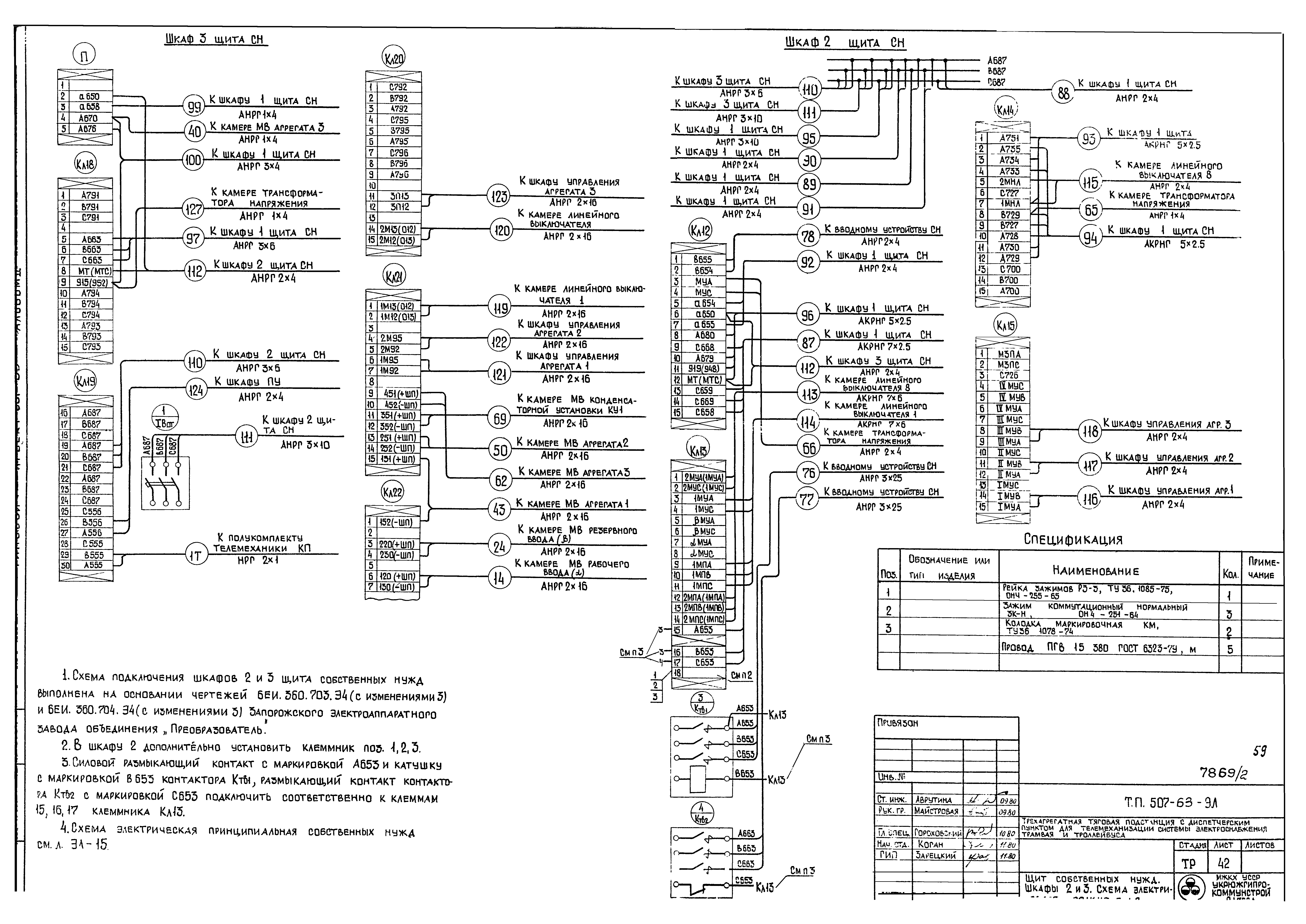
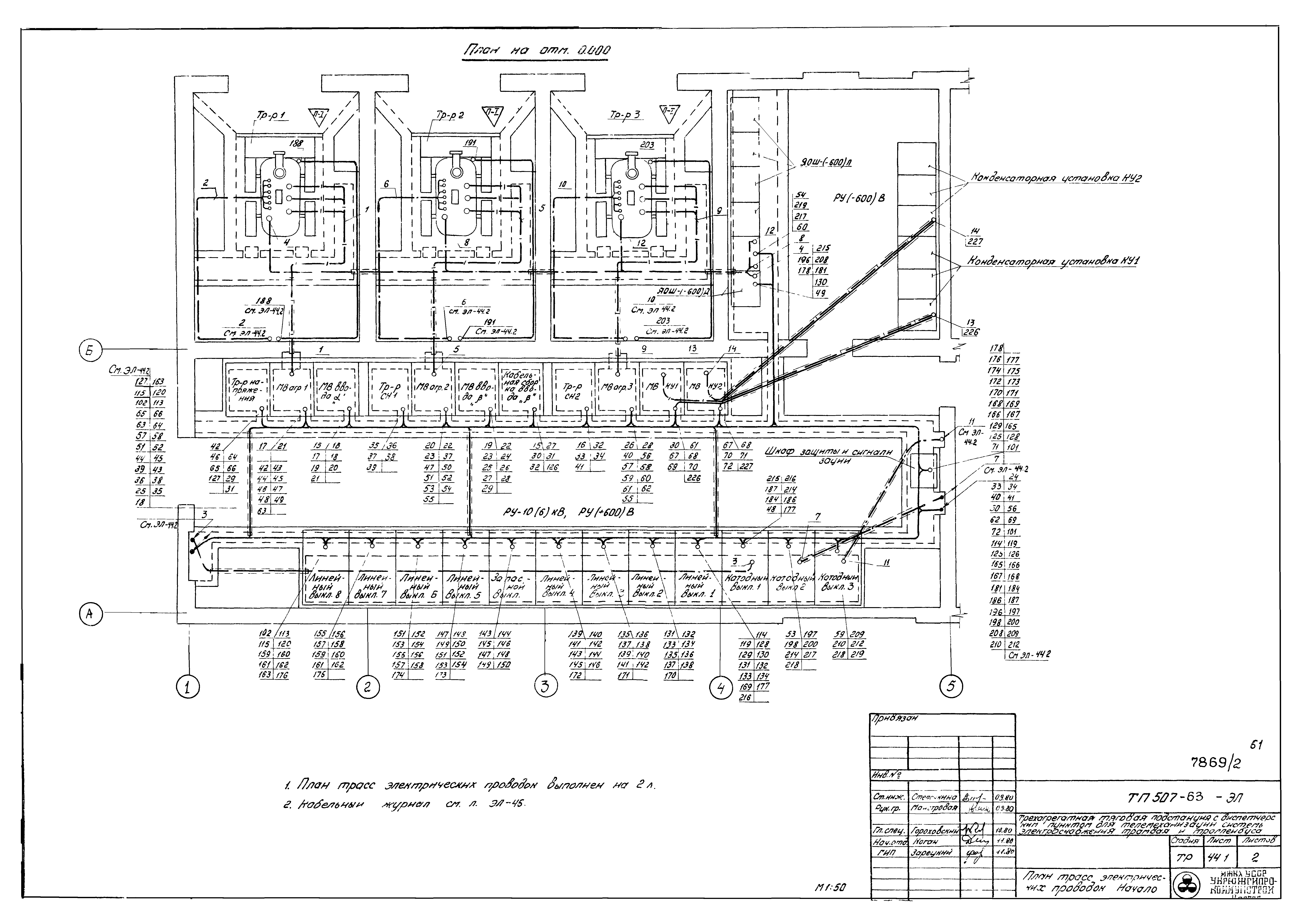
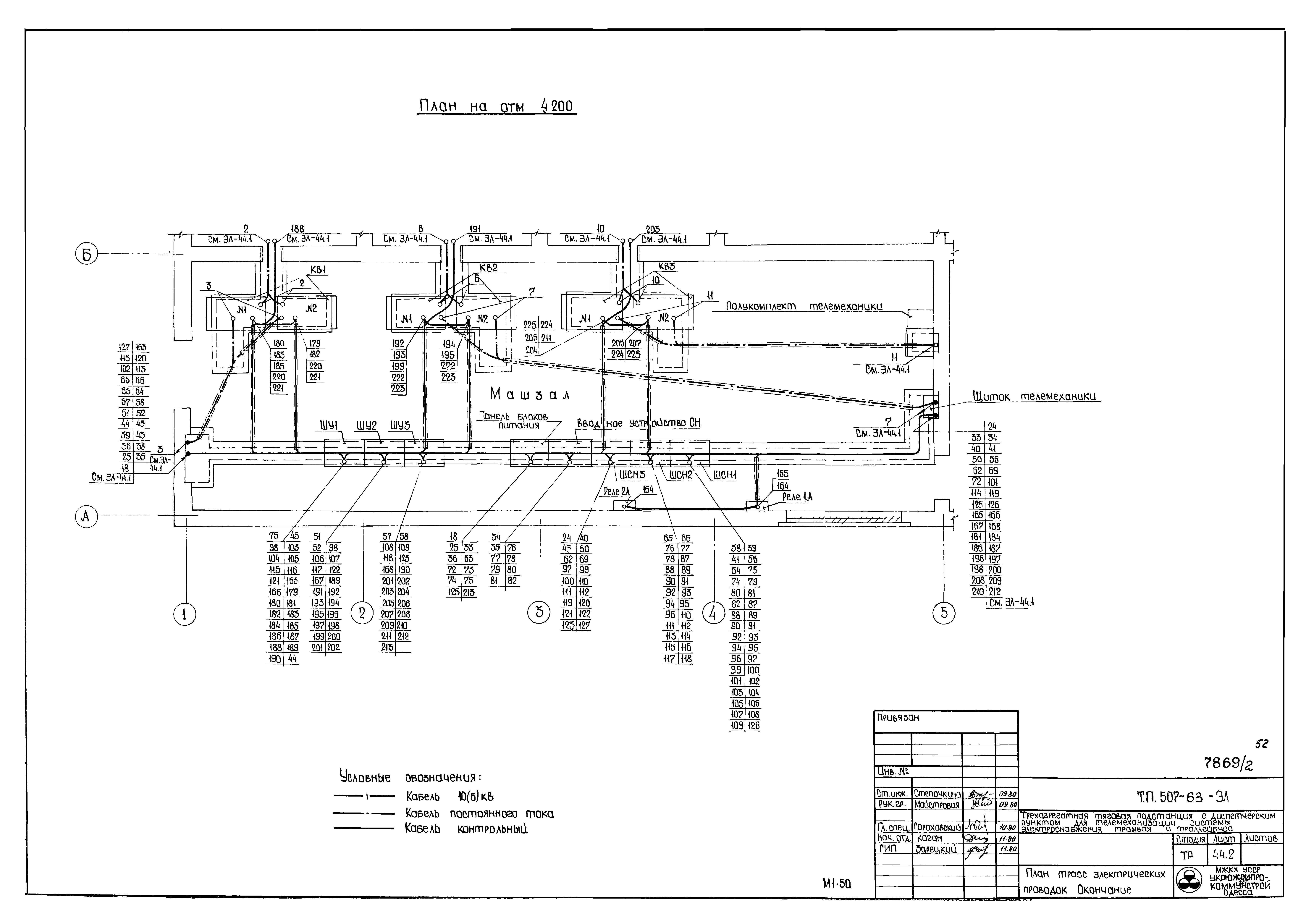
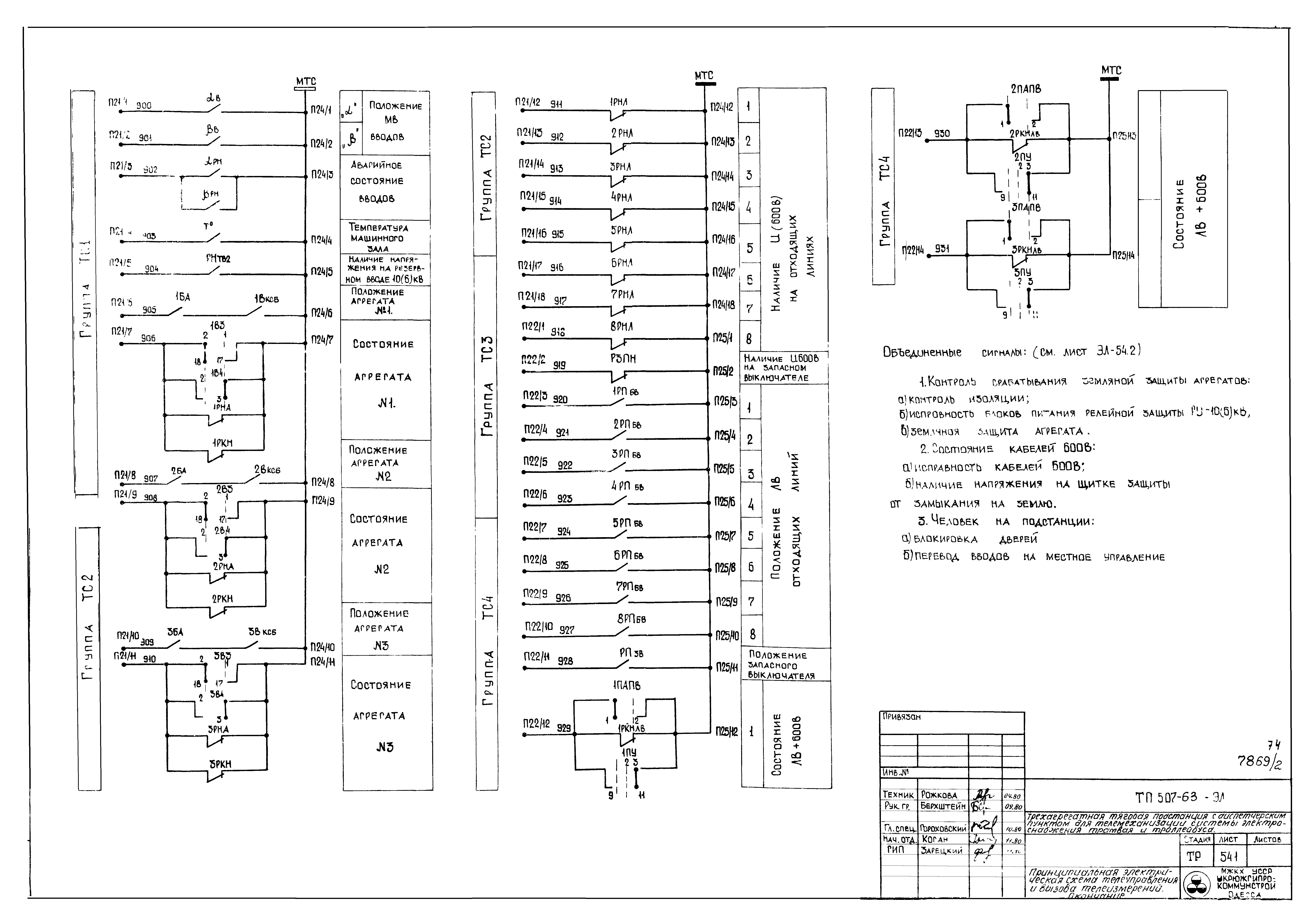
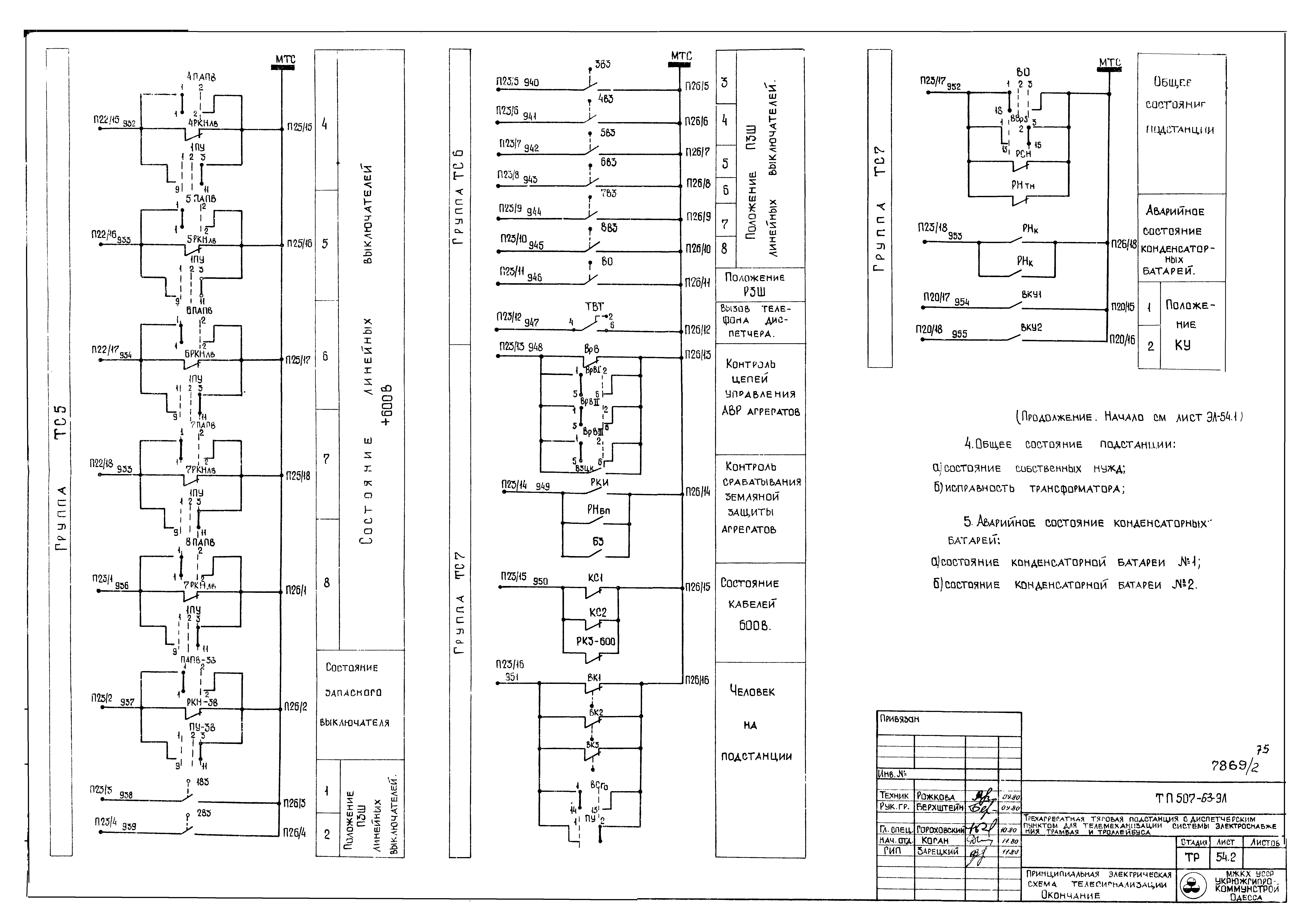
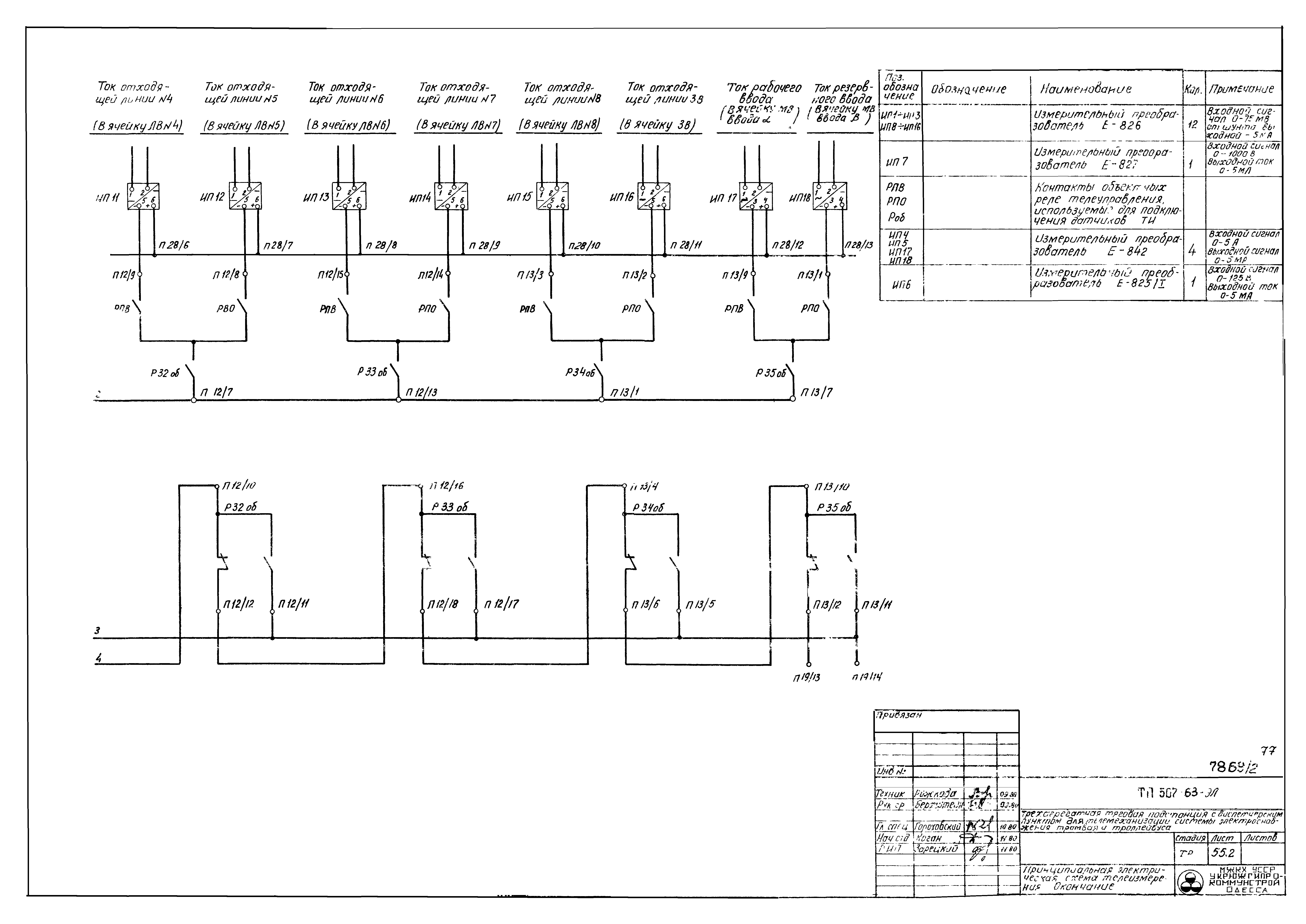
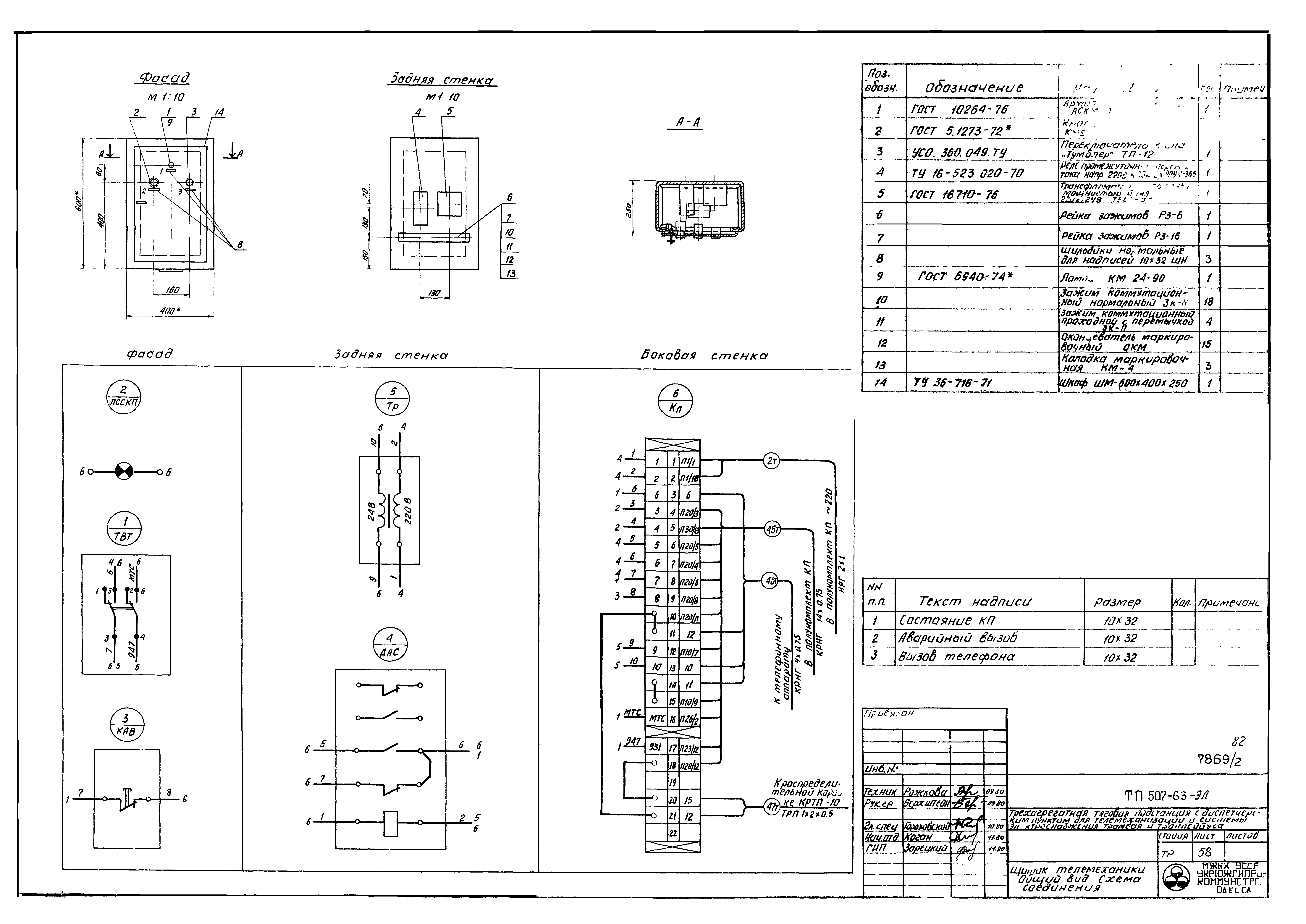
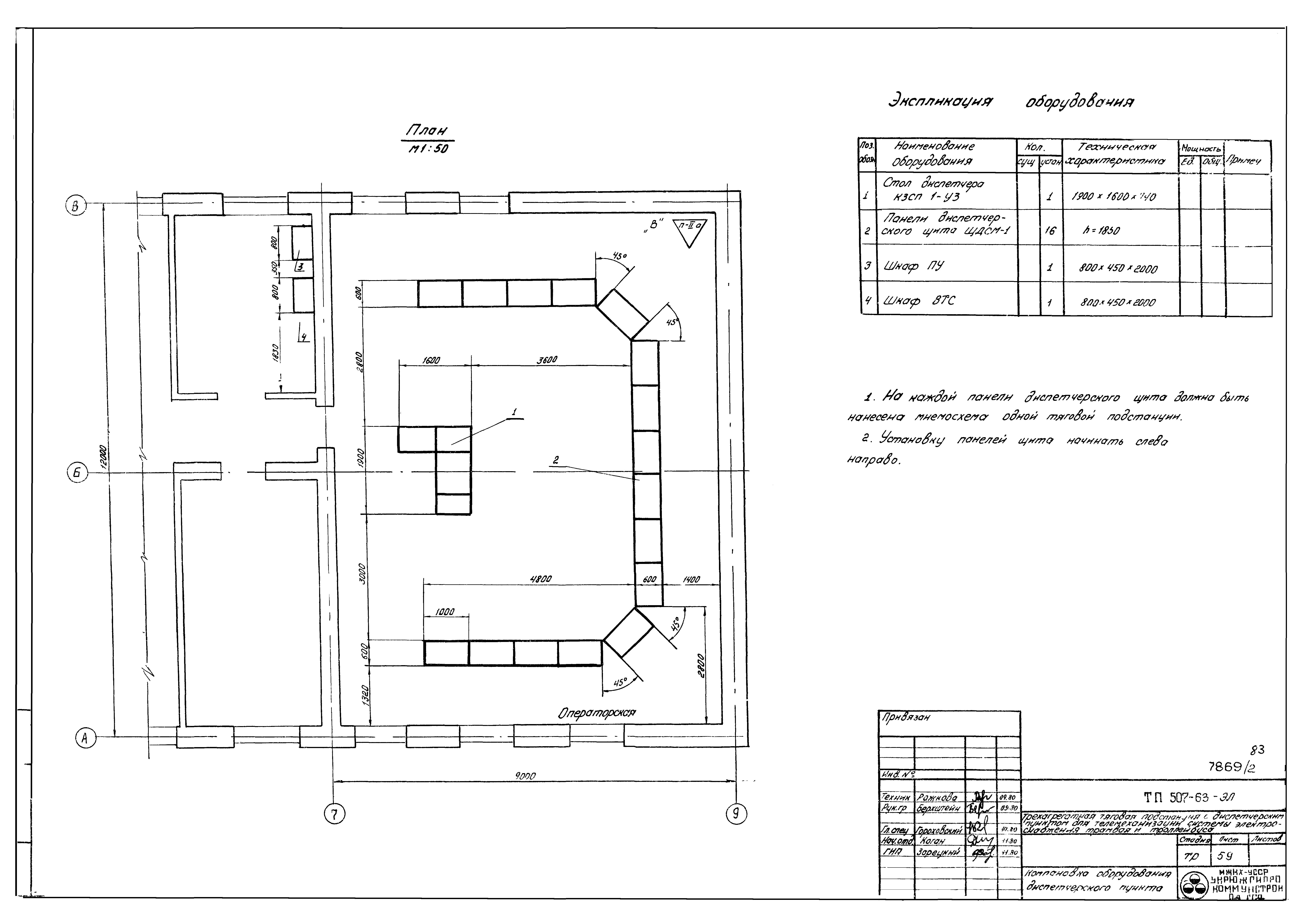
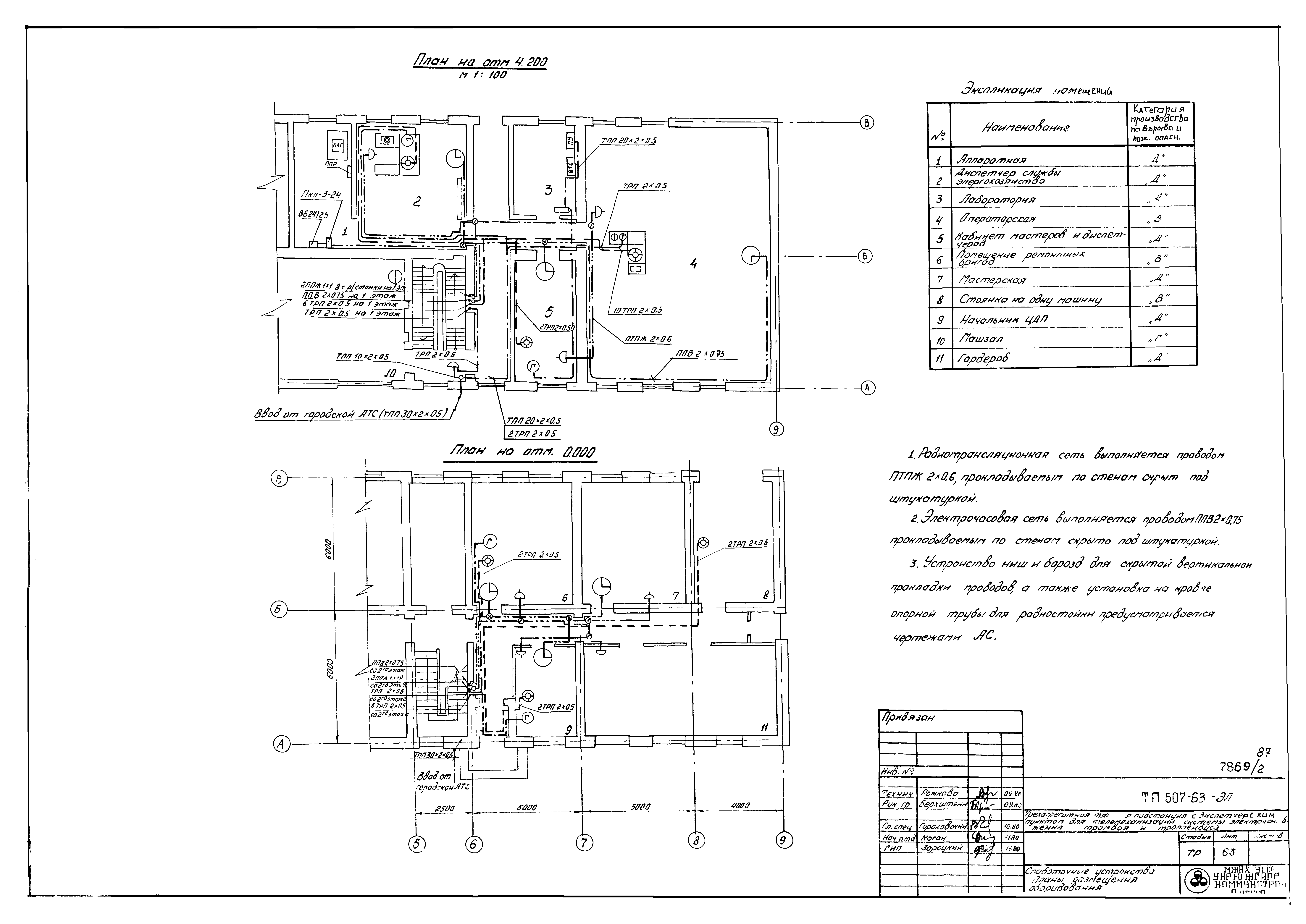
| Оглавление: | ТП 507-63-ЭЛ-1.1 Общие данные. Начало ТП 507-63-ЭЛ-1.2 Общие данные. Окончание ТП 507-63-ЭЛ-2.1 Пояснительная записка. Начало ТП 507-63-ЭЛ-2.2 Пояснительная записка. Продолжение ТП 507-63-ЭЛ-2.3 Пояснительная записка. Окончание ТП 507-63-ЭЛ-3.1 Однолинейная схема электрических соединений. Начало ТП 507-63-ЭЛ-3.2 Однолинейная схема электрических соединений. Окончание ТП 507-63-ЭЛ-4.1 План и разрезы подстанции с расстановкой оборудования. Начало ТП 507-63-ЭЛ-4.2 План и разрезы подстанции с расстановкой оборудования. Окончание ТП 507-63-ЭЛ-5.1 Установка трансформатора ТМПУ-2000/10У2. Начало ТП 507-63-ЭЛ-5.2 Установка трансформатора ТМПУ-2000/10У2. Окончание ТП 507-63-ЭЛ-6 Установка кремневого выпрямителя ТП 507-63-ЭЛ-7 Общий вид РУ-600В ТП 507-63-ЭЛ-8 Распределительное устройство отрицательной шины ТП 507-63-ЭЛ-9 Заземляющее устройство ТП 507-63-ЭЛ-10 Электроосвещение. План на отм. 0.000 ТП 507-63-ЭЛ-11 Электроосвещение. План на отм. 4.200. Групповая сеть. Схема принципиальная ТП 507-63-ЭЛ-12 Силовое электрооборудование. Схемы принципиальные и подключения ТП 507-63-ЭЛ-13 Размещение электрооборудования и прокладка кабелей. Планы на отм. 0.000;4.200 ТП 507-63-ЭЛ-14.1 Питание шинок выпрямленного тока. Измерение и контроль изоляции. Схема электрическая принципиальная. Начало ТП 507-63-ЭЛ-14.2 Питание шинок выпрямленного тока. Измерение и контроль изоляции. Схема электрическая принципиальная. Окончание ТП 507-63-ЭЛ-15.1 Собственные нужды. Схема электрическая принципиальная. Начало ТП 507-63-ЭЛ-15.2 Собственные нужды. Схема электрическая принципиальная. Продолжение ТП 507-63-ЭЛ-15.3 Собственные нужды. Схема электрическая принципиальная. Окончание ТП 507-63-ЭЛ-16 Звуковая сигнализация. Схема электрическая принципиальная ТП 507-63-ЭЛ-17 РУ-10(6) кВ. Блокировка. Схема электрическая принципиальная ТП 507-63-ЭЛ-18 РУ-10(6) кВ. Рабочий ввод (α). Схема электрическая принципиальная ТП 507-63-ЭЛ-19.1 РУ-10(6) кВ. Резервный ввод (β). Трансформатор напряжения. Схема электрическая принципиальная. Начало ТП 507-63-ЭЛ-19.2 РУ-10(6) кВ. Резервный ввод (β). Трансформатор напряжения. Схема электрическая принципиальная. Окончание ТП 507-63-ЭЛ-20 РУ-10(6) кВ. Камера масляного выключателя конденсаторной установки КУ1(КУ2). Схема электрическая принципиальная ТП 507-63-ЭЛ-21.1 Выпрямительный агрегат. Схема электрическая принципиальная. Начало ТП 507-63-ЭЛ-21.2 Выпрямительный агрегат. Схема электрическая принципиальная. Продолжение ТП 507-63-ЭЛ-21.3 Выпрямительный агрегат. Схема электрическая принципиальная. Продолжение ТП 507-63-ЭЛ-21.4 Выпрямительный агрегат. Схема электрическая принципиальная. Окончание ТП 507-63-ЭЛ-22.1 РУ-600В. Линейный выключатель. Схема электрическая принципиальная. Начало ТП 507-63-ЭЛ-22.2 РУ-600В. Линейный выключатель. Схема электрическая принципиальная. Окончание ТП 507-63-ЭЛ-23.1 РУ-600В. Запасной выключатель. Схема электрическая принципиальная. Начало ТП 507-63-ЭЛ-23.2 РУ-600В. Запасной выключатель. Схема электрическая принципиальная. Окончание ТП 507-63-ЭЛ-24 Кабельный сигнализатор. Защита от замыкания на землю +600В. Контроль изоляции 600В. Схема электрическая принципиальная ТП 507-63-ЭЛ-25.1 Шкаф защиты и сигнализации 600В. Общий вид. Начало ТП 507-63-ЭЛ-25.2 Шкаф защиты и сигнализации 600В. Общий вид. Окончание ТП 507-63-ЭЛ-26 Шкаф защиты и сигнализации 600В. Схема электрическая принципиальная ТП 507-63-ЭЛ-27 Вводное устройство собственных нужд. Общий вид ТП 507-63-ЭЛ-28 Вводное устройство собственных нужд. Схема электрическая соединений и подключения ТП 507-63-ЭЛ-29 РУ-10(6)кВ. Камера масляного выключателя рабочего ввода (α). Схема электрическая подключения ТП 507-63-ЭЛ-30 РУ-10(6)кВ. Камера масляного выключателя рабочего ввода (β). Схема электрическая подключения ТП 507-63-ЭЛ-31 РУ-10(6)кВ. Камера кабельной сборки ввода (β) и трансформаторов СН1 и СН2. Схема электрическая подключения ТП 507-63-ЭЛ-32 РУ-10(6)кВ. Камеры масляных выключателей конденсаторных установок КУ1 и КУ2. Схема электрическая подключения ТП 507-63-ЭЛ-33 РУ-10(6)кВ. Камеры масляных выключателей агрегатов 1 и 2. Схема электрическая подключения ТП 507-63-ЭЛ-34 РУ-10(6)кВ. Камеры масляного выключателя агрегата 3 и трансформатора напряжения. Схема электрическая подключения ТП 507-63-ЭЛ-35 Шкаф управления выпрямительного агрегата 1(2,3). Схема электрическая подключения ТП 507-63-ЭЛ-36 Выпрямительные блоки 1 и 2 агрегата 1(2,3). Шкафы отрицательной шины агрегатов 1,2 и 3. Схема электрическая подключения ТП 507-63-ЭЛ-37 Камеры катодных выключателей агрегатов 1,2,3. Шкаф защиты и сигнализации 600 В. Схема электрическая подключения ТП 507-63-ЭЛ-38 Камеры линейных выключателей 1-3 РУ-600В. Схема электрическая подключения ТП 507-63-ЭЛ-39 Камеры линейных выключателей 4,5 и запасного выключателя РУ-800В. Схема электрическая подключения ТП 507-63-ЭЛ-40 Камеры линейных выключателей 6-8 РУ-600В. Схема электрическая подключения ТП 507-63-ЭЛ-41 Щит собственных нужд. Шкаф 1. Схема электрическая подключения ТП 507-63-ЭЛ-42 Щит собственных нужд. Шкаф 2 и 3. Схема электрическая подключения ТП 507-63-ЭЛ-43 Панель блоков питания. Схема электрическая подключения ТП 507-63-ЭЛ-44.1 План трасс электрических проводок. Начало ТП 507-63-ЭЛ-44.2 План трасс электрических проводок. Окончание ТП 507-63-ЭЛ-45.1 Кабельный журнал. Начало ТП 507-63-ЭЛ-45.2 Кабельный журнал. Продолжение ТП 507-63-ЭЛ-45.3 Кабельный журнал. Продолжение ТП 507-63-ЭЛ-45.4 Кабельный журнал. Продолжение ТП 507-63-ЭЛ-45.5 Кабельный журнал. Окончание ТП 507-63-ЭЛ-46 Опросный лист для заказа камер серии КСО-272 ТП 507-63-ЭЛ-47 Опись документов ТП 507-63-ЭЛ-48 Схема расположения УК ТП 507-63-ЭЛ-49 Таблица. УК и технических данных аппаратуры по заказу ТП 507-63-ЭЛ-50 Схема межблочных соединений рядов зажимов ТП 507-63-ЭЛ-51 Панель питания оперативных цепей. Компоновка панели из типовых блоков ТП 507-63-ЭЛ-52 Электрическая схема соединений сигнально-оперативных шинок ТП 507-63-ЭЛ-53.1 Принципиальная электрическая схема телеуправления и вызова телеизмерений. Начало ТП 507-63-ЭЛ-53.2 Принципиальная электрическая схема телеуправления и вызова телеизмерений. Окончание ТП 507-63-ЭЛ-54.1 Принципиальная электрическая схема телесигнализации. Начало ТП 507-63-ЭЛ-54.2 Принципиальная электрическая схема телесигнализации. Окончание ТП 507-63-ЭЛ-55.1 Принципиальная электрическая схема телеизмерения. Начало ТП 507-63-ЭЛ-55.2 Принципиальная электрическая схема телеизмерения. Окончание ТП 507-63-ЭЛ-56 Щиток телемеханики. Принципиальная электрическая схема ТП 507-63-ЭЛ-57.1 Полукомплект КП. Схема подключения. Начало ТП 507-63-ЭЛ-57.2 Полукомплект КП. Схема подключения. Продолжение ТП 507-63-ЭЛ-57.3 Полукомплект КП. Схема подключения. Окончание ТП 507-63-ЭЛ-58 Щиток телемеханики. Общий вид. Схема соединения ТП 507-63-ЭЛ-59 Компоновка оборудования диспетчерского пункта ТП 507-63-ЭЛ-60 План раскладки кабелей телемеханики ТП 507-63-ЭЛ-61 Кабельный журнал ТП 507-63-ЭЛ-62 Слаботочные устройства. Условные обозначения. Спецификация ТП 507-63-ЭЛ-63 Слаботочные устройства. Планы размещения оборудования ТП 507-63-ЭЛ-64 Планы сетей пожарной сигнализации |
| Разработан: | Укрюжгипрокоммунстрой Минжилкомхоза УССР |
| Утверждён: | 05.12.1980 МЖКХ УССР (453) |

























































































